- Schémas de câblage dans une maison en bois
- Sélection de produits de câbles et de fils
- Groupes de prises
- Circuits d'éclairage
- Chaudières et machines à laver
- Fours, cuisinières électriques
- Chaudières de chauffage
- Climatiseurs
- Méthodes d'alimentation
- informations générales
- Méthodes de montage
- Caractéristiques et avantages d'une méthode de pose fermée
- Caractéristiques et avantages de la pose à ciel ouvert
- Caractéristiques et avantages de la pose du câblage dans un chemin de câbles
- Un câblage correct commence par la préparation du circuit
- Pose de compteur électrique
- Règles d'entrée de l'électricité dans la maison
- Numéro 3. Câblage ouvert dans une maison en bois
- Rédaction d'un schéma de câblage
- Installation du tableau à faire soi-même
- Options de pose de câblage électrique dans une maison en bois
- dans les chaînes câblées
- Extérieur
- Caché
- Câblage
- câblage exposé
- 1 Exigences d'installation et plan de travail général
Schémas de câblage dans une maison en bois
Le schéma d'installation est quelque peu différent du schéma de câblage. Les sites d'installation de tous les appareils et lignes ont déjà été déterminés, il reste à indiquer la séquence des travaux électriques, c'est-à-dire l'ordre dans lequel certains appareils et équipements sont connectés.
Avant de commencer les travaux, vous devez déterminer la puissance consommée par tous les appareils électriques allumés en même temps.Si la valeur obtenue est inférieure à 15 kW, une machine d'initiation est installée à 25 A. Si ce chiffre est dépassé, un transformateur supplémentaire sera nécessaire.
Ensuite, l'installation d'un compteur électrique et de machines d'introduction est effectuée. Lors de l'installation de ces appareils à l'extérieur, un boîtier étanche est utilisé, protégé de la pénétration de saleté, de poussière et d'humidité. Pour faciliter la prise de mesures, l'armoire est équipée d'une fenêtre de visualisation.
Le compteur est réglé après la machine d'introduction. Ensuite, un RCD est installé, qui fournit un arrêt d'urgence du courant en cas de court-circuit. Ensuite, le câble est connecté au panneau électrique situé à l'intérieur de la maison. La valeur nominale de la machine située dans la maison est inférieure d'un cran à celle installée à l'extérieur. En cas de violation, cela fonctionnera en premier, ce qui élimine le besoin de sortir vers le périphérique d'entrée.
Dans le bouclier domestique, il y a des disjoncteurs unipolaires, à partir desquels les fils divergent dans toutes les pièces. Le nombre de ces machines correspond au nombre de groupes de consommateurs. Pour la connexion éventuelle de nouveaux consommateurs, des machines gratuites sont installées à raison de 2-3 pièces.
Les groupes de consommation dans les maisons en bois peuvent avoir différents objectifs. Par exemple, à travers une machine, l'alimentation est fournie aux prises, à travers l'autre aux appareils d'éclairage. Des équipements puissants - cuisinières électriques, chaudières, machines à laver - sont alimentés par des machines automatiques personnelles. Les groupes séparés comprennent l'éclairage public et l'alimentation électrique des dépendances.
Des lignes électriques séparées sont le meilleur moyen d'assurer le fonctionnement sûr d'un réseau domestique.De ce fait, le nombre de jonctions potentiellement dangereuses est réduit, où l'oxydation et l'échauffement des contacts se produisent le plus souvent. Pour faciliter l'installation, chaque ligne du schéma est indiquée par sa propre couleur, indiquant la séquence de pose.
La prochaine étape sera le câblage et les câbles dans les locaux. Dans les maisons en bois, les câbles peuvent être posés de la manière suivante :
- Câblage externe (ouvert). Il est posé à l'aide d'isolants. Actuellement, cette méthode redevient populaire lors de la décoration de pièces de style rétro.
- Utilisation des chaînes câblées. En fait, il s'agit du même câblage ouvert, uniquement posé dans des plateaux spéciaux.
- Câblage interne (caché). Son dispositif est possible dans le cas où il est prévu de recouvrir les surfaces du plafond et des murs. Pour la pose de manchons ondulés en métal ou de tuyaux en métal sont utilisés. Les angles de flexion sont de 90, 120 ou 135 degrés, ce qui permet de remplacer la section endommagée du câble sans perturber la finition. Pour les connexions filaires, des boîtes métalliques avec un accès libre sont utilisées.
De plus, conformément au schéma, l'installation de prises ou d'interrupteurs est effectuée. Pour les maisons en bois, il existe des modèles spéciaux avec une plaque de montage en métal sur laquelle le panneau extérieur est installé. Du plastique ignifuge certifié par les pompiers peut être utilisé. Pour des raisons de sécurité, toutes les prises doivent avoir un fil de terre.
Sélection de produits de câbles et de fils

Groupes de prises
Selon de nombreuses années d'expérience dans les travaux électriques dans les maisons en bois, un câble de type PVSng, VVGng ou NYM avec un marquage 3x2,5 mm est utilisé pour alimenter les groupes de prises. Cela signifie qu'un câble à 3 conducteurs d'une section de 2,5 mm2 chacun doit arriver à chaque sortie.
Les âmes des câbles sont codées par couleur et servent à alimenter la phase (marron ou blanc), le zéro (bleu) et la terre de protection (jaune ou jaune-vert).
Circuits d'éclairage
Dans la plupart des cas, un câble 3x1,5 mm2 de type PVSng, VVGng ou NYM est utilisé pour alimenter les luminaires et les éléments décoratifs. Il convient également de noter que sa section transversale peut être plus petite, car l'éclairage moderne utilise des technologies d'économie d'énergie (éclairage LED), ce qui réduit considérablement la consommation d'énergie.
Chaudières et machines à laver
Étant donné que les chaudières et les machines à laver contiennent des éléments chauffants en contact avec l'eau, pour les protéger, il est nécessaire d'installer une entrée séparée du tableau et d'installer une protection supplémentaire.
Pour connecter les appareils ci-dessus, il est nécessaire d'installer un câble d'une section de 2,5 mm2 avec au moins 3 conducteurs. Cela peut être comme PVSng, VVGng ou NYM.
Fours, cuisinières électriques
Selon le fabricant et la puissance des appareils, qui peuvent atteindre 7 à 15 kW, pour un fonctionnement fiable des appareils, il est nécessaire d'installer un câble d'une section d'au moins 4 mm2 de type PVSng, VVGng ou NYM .
Chaudières de chauffage
Si vous avez installé une chaudière à gaz, alors pour son fonctionnement, il suffira d'installer un câble d'une section de 3x1,5 mm2, car ce sera plus que suffisant pour allumer la flamme.
Si une chaudière électrique est installée dans votre maison en bois, vous devez alors consulter son mode d'emploi qui indique la puissance maximale et le type de réseau d'alimentation (mono ou triphasé). Toujours dans la documentation technique, le fabricant indique le type recommandé de produits de câbles et de fils.
Si, pour une raison quelconque, il n'y a pas de documentation technique, il vous suffit d'inspecter l'étiquette sur la chaudière, qui contient la puissance de l'appareil et le courant consommé, et de sélectionner le type et la section du câble, selon ce qui suit table:

Climatiseurs
Tous les équipements climatiques doivent être alimentés à partir du tableau de distribution avec un câble solide vers chaque climatiseur. Dans le cas du raccordement de climatiseurs muraux domestiques classiques, un câble d'une section de 3x2,5 mm2 suffira pour les raccorder.
Cependant, si des climatiseurs puissants sont installés (sol-plafond, cassette, etc.), dans ce cas, le nombre de noyaux et leur section peuvent être augmentés en fonction de la consommation électrique, indiquée dans la documentation technique.
Méthodes d'alimentation
Quel câblage utiliser pour une maison en bois - ouverte ou fermée ? La première méthode implique le placement externe de fils sur les murs et le plafond. Dans ce cas, les câbles sont fixés dans des chemins de câbles spéciaux, sur des isolateurs ou sur des supports.





La deuxième méthode peut être utilisée si les locaux ne sont pas encore complètement terminés. Les fils dans une telle situation sont posés dans une ondulation ou un tuyau métallique. C'est une méthode assez coûteuse, mais les câbles seront bien cachés.

Le choix du type de câblage dans une maison en bois dépend de l'expérience de l'électricien et de la présence ou non d'outils pour des travaux spécifiques.

informations générales
Méthodes de montage
Le câblage électrique sécurisé dans une maison en bois privée est monté de trois manières: fermé (le long de l'intérieur des murs et des plafonds), ouvert (câblage rétro) et utilisant des canaux de câbles.
Caractéristiques et avantages d'une méthode de pose fermée
Le câblage caché est posé à travers de minces tubes métalliques. Le principal avantage de cette installation est la sécurité incendie. L'acier à partir duquel le tube porteur est fabriqué, en cas de court-circuit ou d'étincelle, ne permettra pas au feu de se propager aux matériaux combustibles. De plus, si vous cachez le câblage à l'intérieur des murs en bois, vous n'avez pas besoin de les finir de l'extérieur. Les électriciens expérimentés recommandent d'utiliser un tuyau carré ou des tuyaux ondulés en métal. Ces matériaux sont plus pratiques dans le processus.
Le seul inconvénient de la méthode fermée est le prix élevé et la complexité du câblage.
Caractéristiques et avantages de la pose à ciel ouvert
Un tel câblage est réalisé avec un câble torsadé sur des isolateurs en céramique. Pour réduire le risque d'incendie lors de l'installation, un fil à double tresse est utilisé.
Une attention particulière doit être portée à la distance entre le câble et le mur. Le PUE en Fédération de Russie réglemente au moins 1 centimètre
Sinon, une couche de métal ou d'amiante devra être posée entre la surface du mur et le câble.
Le coût du câblage ouvert est considérable, mais l'esthétique est au top.
Caractéristiques et avantages de la pose du câblage dans un chemin de câbles
L'utilisation de chaînes câblées modernes vous permet d'installer le câblage électrique dans une maison en bois dans les plus brefs délais.Il convient de rappeler qu'il est interdit de poser des fils dans des plinthes en plastique ordinaires ! Il est permis d'utiliser uniquement des tuyaux ondulés spécialisés et des canaux de câbles en matériaux incombustibles. Au stade de la finition finale, ils ne peuvent pas être cousus sous des cloisons sèches!
Il sera moins cher et plus facile d'effectuer un tel câblage de vos propres mains.
Un câblage correct commence par la préparation du circuit
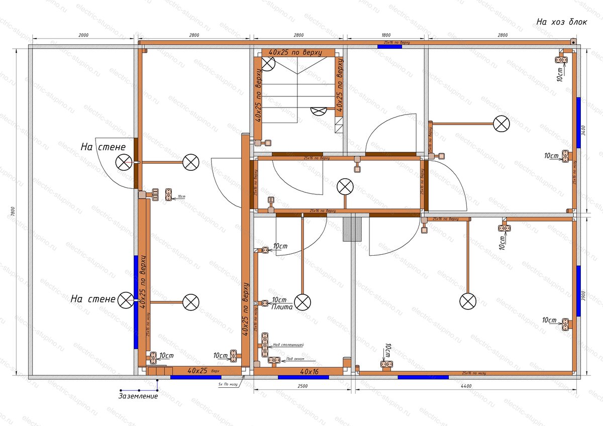
Un dessin de la future disposition des fils dans une maison en bois privée peut même être réalisé à la main. La principale chose à faire est de marquer tous les câbles pour le câblage, les boîtes de jonction, les prises, les interrupteurs et les prises pour les appareils d'éclairage. Un schéma bien conçu aidera à ne pas se tromper au stade de la pose, et pendant le fonctionnement de la maison, il éliminera les dommages aux fils (par exemple, si vous devez percer un mur).
Les prises et les interrupteurs doivent être planifiés de manière à ce qu'ils soient à l'avenir dans le domaine public (et non derrière de gros meubles ou derrière des portes). pas à pas instruction avec photo et vidéo vous aider à créer l'agencement parfait pour votre maison.
Lors de l'organisation de l'espace de la cuisine, la puissance déclarée des appareils électroménagers doit être prise en compte. Le nombre de prises doit correspondre au nombre d'appareils. Cela garantira leur fonctionnement en toute sécurité et facilitera la maintenance du tableau de distribution.
Le bon schéma = le réseau le plus sécurisé. L'alimentation électrique de la maison est un système unique fonctionnant sans interruption dans lequel tout est pensé dans les moindres détails : de la section et du type de câble à la puissance du disjoncteur.
Pose de compteur électrique
Selon les exigences des autorités de contrôle de l'énergie, les compteurs d'électricité dans les maisons privées doivent être installés dans des endroits avec la possibilité d'un accès constant par les personnes contrôlantes.Par conséquent, le blindage doit être monté à l'extérieur, là où les composants qui y sont placés sont exposés aux intempéries. Dans cette optique, deux tableaux sont installés dans une maison particulière :
- extérieur - pour accueillir le compteur électrique et le minimum requis d'appareils supplémentaires (aux frais de la compagnie d'approvisionnement en énergie);
- interne - situé dans la maison, connecté à un blindage externe, équipé de l'équipement nécessaire à la gestion sûre et pratique du système d'alimentation électrique du logement (aux frais du propriétaire du bâtiment).
Règles d'entrée de l'électricité dans la maison
Pour les ménages privés, une question telle que l'introduction de l'électricité dans la maison est importante. Habituellement, il est réalisé à l'aide d'un fil SIP autoportant.
Si la tour électrique est à moins de 25 m de la maison, aucun poteau de support supplémentaire ne sera nécessaire.

Le fil s'étend généralement jusqu'au panneau électrique avec des différentiels situés à l'intérieur, des machines automatiques et une connexion à la boucle de terre. La transition vers un câble domestique (par exemple, VVGng) se produit généralement dans un autre panneau - avec des appareils de mesure
Exigences d'entrée :
- avec une longueur de fil supérieure à 25 m, des supports supplémentaires sont nécessaires (un blindage peut être installé sur le poteau le plus proche de la maison et une boucle de terre peut être enterrée à proximité dans le sol);
- la hauteur du fil tendu entre les supports est d'au moins 2 m au-dessus du sol ;
- si le fil traverse des structures de bâtiment, il est monté dans un tuyau de protection ;
- la distance minimale du sol pour le point de raccordement du bâtiment est de 2,75 m ;
- s'il est prévu que le fil du panneau de commande à la maison soit tiré sous terre, il doit être placé dans une gaine de protection, puis dans un fossé d'une profondeur d'au moins 0,7 m.
Il est clair que lors du choix d'une pose souterraine, l'entrée directe dans le bâtiment doit être prévue même pendant le processus de construction.
Numéro 3. Câblage ouvert dans une maison en bois
La pose de fils électriques à l'intérieur de murs en bois est non seulement très dangereuse, mais aussi techniquement difficile. Avec la méthode ouverte, le propriétaire peut résoudre le problème à tout moment, car l'accès aux fils est toujours ouvert, cette option d'installation est donc devenue plus populaire. Parmi les défauts, seul inesthétique est appelé en raison de la visibilité des fils, mais aujourd'hui, ce moins peut être traité.
Pour le câblage ouvert dans les maisons en bois, utilisez :
- des chaînes câblées ou des boîtiers électriques. C'est le moyen le plus pratique et le plus populaire. De tels canaux sont relativement faciles à monter sur une surface en bois, et si vous choisissez la bonne couleur, ils seront peu perceptibles. Les fabricants produisent des boîtes avec des couleurs et des motifs pour différents types de bois. En termes d'esthétique, de coût et de facilité d'accès aux fils, c'est la meilleure option, mais il n'est pas toujours facile de calculer correctement le nombre d'éléments, de virages, d'angles et de bouchons nécessaires ;
- socle électrique - l'option la plus moderne qui vous permet d'obtenir les résultats les plus esthétiques. Il fournit des pinces vécues;
- rouleaux pour l'isolement. Ce sont de petits éléments en céramique qui sont montés en surface et maintiennent le câblage. Tous les fils seront visibles, donc en termes d'esthétique, l'option n'est pas la meilleure, mais elle vous permet de créer un intérieur de style rétro. Une méthode d'installation similaire est généralement utilisée dans les maisons construites à partir de rondins;
- agrafes spéciales. C'est l'option la moins chère et la plus simple, mais elle n'a pas l'air très bonne ;
- le tuyau métallique est utilisé pour le câblage ouvert uniquement dans les bâtiments non résidentiels, car la pièce devient comme une pièce de production. L'ondulation, peu importe vos efforts, ne mentira pas parfaitement, elle s'affaissera et, de plus, accumulera de la poussière.
Rédaction d'un schéma de câblage
Faisons une réservation tout de suite : nous parlons d'un réseau monophasé avec une tension de 220 volts, qui est déjà relié à une maison privée d'une superficie de 100-150 m² ou un appartement. Des organismes spécialisés sont engagés dans la conception et l'installation de réseaux électriques triphasés 380 V pour les grands chalets. Dans ce cas, cela n'a aucun sens de prendre en charge le câblage électrique par vous-même, car sans projet d'alimentation électrique et sans documentation exécutive convenue, la société de gestion n'autorisera pas la connexion à ses communications.
Le câblage à faire soi-même dans une maison privée peut être fait
Le câblage dans une maison privée est effectué avant le début des travaux de finition. La boîte de la maison est expulsée, les murs et le toit sont prêts - il est temps de commencer les travaux. La séquence d'actions est la suivante :
- Détermination du type d'entrée - monophasée (220 V) ou triphasée (380 V).
- Élaboration du schéma, calcul de la capacité de l'équipement prévu, soumission des documents et réception du projet. Ici, il faut dire que pas toujours dans les conditions techniques, ils détermineront la puissance que vous avez déclarée, très probablement ils n'alloueront pas plus de 5 kW.
- Sélection de composants et d'accessoires, achat d'un compteur, d'automates, de câbles, etc.
- Entrée des électriciens du poteau dans la maison. Il est effectué par une organisation spécialisée, vous devez décider du type - aérien ou souterrain, installer une machine d'entrée et un compteur au bon endroit.
- Installez un bouclier, apportez l'électricité à la maison.
- Pose de câbles à l'intérieur de la maison, branchement de prises, interrupteurs.
- Dispositif de boucle de masse et sa connexion.
- Tester le système et obtenir un acte.
- Branchement électrique et fonctionnement.
Ceci n'est qu'un plan général, chaque cas a ses propres nuances et caractéristiques, mais vous devez commencer par obtenir les conditions techniques de connexion au réseau électrique et au projet. Pour ce faire, vous devez décider du type d'entrée et de la consommation électrique prévue. Il faut rappeler que la préparation des documents peut prendre jusqu'à six mois, il est donc préférable de les soumettre avant même le début des travaux : deux ans sont accordés pour remplir les conditions techniques. Pendant ce temps, c'est sûr, vous pourrez chasser le mur sur lequel vous pourrez poser la machine et le comptoir.
Installation du tableau à faire soi-même
Le corps du tableau électrique est fixé à l'endroit établi par le schéma. Après cela, procédez comme suit :
- le doseur est monté dans le carter de blindage ;
- une machine d'introduction est installée sur un profilé métallique spécial (rail din). La phase et le neutre sont connectés à une machine bipolaire ;
- les bornes de sortie (bornes) du dispositif de mesure sont connectées à l'entrée du disjoncteur d'introduction;
Le dénudage des fils ne doit être effectué que lorsque l'alimentation est coupée.
- le fil est amené dans la maison et connecté aux bornes d'entrée du compteur (compteur);
- relais de tension, automates pour différents groupes de puissance (prises, appareils d'éclairage), les différentiels sont montés sur le rail DIN;
- les pinces des appareils électriques sont reliées par un câble unipolaire.
Options de pose de câblage électrique dans une maison en bois
Vous pouvez effectuer le câblage des fils électriques dans une maison en bois:
- voie ouverte ;
- par technologie cachée (à l'intérieur des murs) ;
- avec pose dans des canaux de câbles spéciaux.
dans les chaînes câblées
Tous les électriciens professionnels ne recommandent pas d'utiliser des canaux câblés dans les maisons en bois maintenant. Le câblage qu'ils contiennent n'est pas visible et ne gâche pas l'intérieur avec son apparence.
Cependant, pour les lignes d'alimentation électrique, les boîtes et plinthes en plastique ordinaires ne peuvent pas être jetées le long des murs en bois. Ils sont trop combustibles et tout tient au fait que cette méthode sera généralement interdite par la réglementation. Si vous choisissez des chaînes câblées, alors seulement des chaînes spéciales non combustibles.

Il est plus facile de poser le câblage électrique dans les canaux de câbles, il vous suffit de choisir les bons éléments
Extérieur
L'option extérieure consiste à poser le câblage dans une maison en bois le long des murs sur des isolateurs en céramique. En règle générale, un câble à double tresse torsadée est utilisé pour cela. Et au final, à la fois sur la photo et dans la réalité, c'est plutôt beau.
Cependant, il doit y avoir une distance d'au moins 10 mm entre le fil et le mur de la maison. Sinon, un joint d'amiante ou de fer doit être placé entre eux. Mais cela ne sera certainement pas élégant. Ce type d'installation ne doit être utilisé que dans les arrière-salles, il ne convient pas aux pièces à vivre.

Le câblage extérieur a l'air bien, mais dans les zones résidentielles, surtout s'il y a de jeunes enfants, il vaut mieux ne pas utiliser
Caché
Le câblage caché dans une maison en bois n'est autorisé que dans les tuyaux métalliques (cuivre ou acier). L'utilisation d'ondulations et de canaux en plastique est ici interdite. Ils ne sont pas en mesure d'arrêter complètement la propagation du feu. Et dans les murs en rondins ou en bois, même la moindre étincelle à l'intérieur peut provoquer leur inflammation.
Cette option est difficile à faire de vos propres mains et coûteuse.Mais d'un autre côté, les fils ne seront certainement pas visibles, tous seront posés à l'intérieur des cloisons et des plafonds.

Il est préférable de confier la pose du câblage électrique caché à des spécialistes. Une erreur peut coûter très cher.
Câblage
L'installation du câblage du réseau électrique interne dans une maison en bois s'effectue en sept étapes:
- Marquage sur les murs des lignes de câblage et des emplacements d'installation des prises, interrupteurs, boîtes de jonction, etc.
- Perçage de trous pour produits d'installation électrique et chemins de câbles.
- Assemblage d'un bouclier d'introduction avec protection et d'un compteur électrique.
- Pose et connexion de fils électriques à l'aide de bornes ou de soudure (soudage).
- Connexion des interrupteurs et des prises.
- Essai de résistance d'isolement.
- Vérification générale du système pour les courts-circuits.
Les instructions étape par étape données sont standard et ne dépendent pas du matériau des murs et des caractéristiques individuelles du schéma de câblage créé dans une maison privée. Cependant, pour les chalets en bois, il y a quelques nuances:
La première est que tous les passages de câbles électriques à travers les murs extérieurs en bois, les cloisons et les plafonds se font uniquement à l'aide de gaines métalliques (tubes). Même si des canaux de câbles et des isolateurs en céramique montés en surface sont utilisés, le câblage électrique ne doit traverser le bois qu'avec une protection métallique supplémentaire.

Manchons pour la pose de câblage électrique dans différentes pièces
La seconde - il est recommandé d'exclure la torsion des noyaux lors de la connexion. Ces endroits sont les plus problématiques en termes de sécurité et le plus souvent chauffés. Dans une maison en rondins ou en bois, le terminal est l'option la meilleure et la plus fiable pour connecter les fils. Vous pouvez aussi les souder ou les souder, mais c'est plus difficile et plus long.

Connexion terminale des fils dans la boîte de jonction
Troisièmement - si le câblage est posé sous le décor ou un plafond suspendu, il doit être monté dans des tuyaux métalliques. La pose à ciel ouvert n'est autorisée que dans les endroits non couverts où les fils restent visibles.

Il est préférable de cacher le câblage sous un faux plafond dans les canaux câblés
Il n'y a rien de particulièrement difficile. L'essentiel est d'avoir des compétences dans le maniement d'un tournevis, d'une perceuse et d'une pince. Et puis l'auto-câblage dans votre maison en termes de complexité, c'est approximativement comment nettoyer une cheminée ou construire vous-même une serre chauffée sans impliquer de travailleurs embauchés.
câblage exposé
Le câblage électrique dans une maison en bois de ce type est utilisé depuis longtemps. Son avantage réside dans le coût relativement faible et la sécurité incendie : tout dommage à l'isolation sera immédiatement remarqué. Il y a aussi un inconvénient - la partie visible du câblage sera frappante, mais cela peut être transformé en vertu en l'intégrant à la solution de design d'intérieur.
Le câblage électrique exposé est fixé sur des rouleaux de support en porcelaine à une distance minimale de 1 cm de la surface du mur.Les interrupteurs, les prises et les boîtiers de montage sont installés au-dessus. La méthode d'installation moderne implique l'utilisation de deux fils monoconducteurs toronnés torsadés en spirale. Contrairement à ceux utilisés auparavant, ils sont à double isolation avec des matériaux de haute technologie. Dans le boîtier de montage, les conducteurs des fils sont connectés par des borniers spéciaux.
La pose externe de câbles dans des boîtes et des tuyaux ondulés fait également référence à la méthode d'installation ouverte.
1 Exigences d'installation et plan de travail général
Si vous respectez strictement les dispositions du PUE et du SNiP, il est vraiment possible d'équiper de vos propres mains un système d'alimentation électrique fiable et sûr pour une maison en bois. Vous devez d'abord vous familiariser avec les principales exigences de ces règles et réglementations :
- Un calcul scrupuleux compétent de la section de câble est nécessaire. Un matériau incombustible est utilisé pour leur isolation.
- Il est conseillé de poser un câblage ouvert.
- Le câblage dissimulé n'est pas recommandé pour les structures en bois. Si vous devez l'utiliser, vous devez travailler avec des câbles dans un tuyau métallique ou dans une autre gaine.
- Dans le tableau, un dispositif de protection (RCD) et un disjoncteur sont montés et connectés.
Le câblage est divisé en externe et interne. Le premier est posé sur la rue et est connecté au réseau domestique par des puits et des canaux souterrains ou par voie aérienne (auvent).
Le câblage dans une maison en bois est posé par étapes. Il est conseillé aux électriciens expérimentés de respecter la séquence de travail suivante :
- La capacité totale de l'équipement qu'il est prévu d'installer dans le logement est calculée.
- Un projet d'alimentation électrique est en préparation.
- Sélection et achat d'interrupteurs, prises, fils, appareils techniques.
- Le bâtiment est alimenté en électricité, un disjoncteur, un compteur électrique et un tableau de distribution (PS) sont connectés.
- Le câble est reproduit autour de la maison.
- Appareils d'éclairage montés, prises, interrupteurs.
Enfin, le RCD est connecté et le système de mise à la terre est équipé. Après cela, le câblage à faire soi-même est testé pour son fonctionnement et sa sécurité de fonctionnement.




































