- Règles de câblage ouvertes
- Démarrage et vérification du fonctionnement du câblage électrique
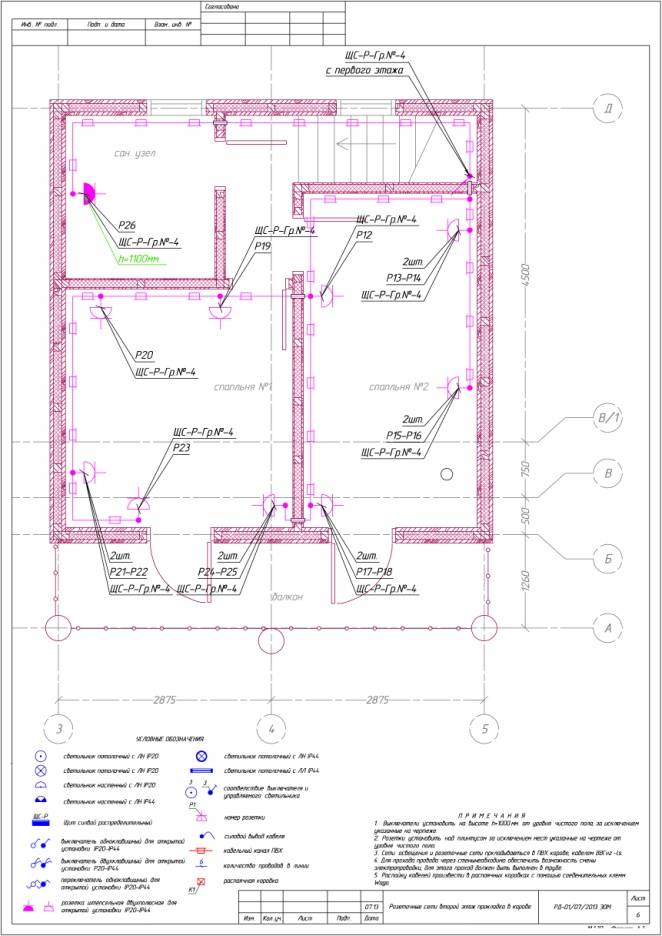
- Schémas d'installation
- Exigences de base pour le câblage dans une maison privée
- Numéro 6. Câblage dans les chambres
- Câblage ouvert dans les chemins de câbles
- Câblage interne dans un tuyau métallique
- Connexion filaire
- Les matériaux utilisés
- Caniveaux pour la pose
- Sélection de fil
- Règles d'installation d'un câblage ouvert: un résumé de 3 techniques avec des images explicatives
- Nuances techniques du câblage dans les maisons en bois et à ossature
Règles de câblage ouvertes
Les moyens de pose à ciel ouvert des fils ne doivent pas contredire les exigences du PUE.
Ainsi, les produits suivants peuvent être utilisés pour fixer les câbles à la surface en bois des murs, cloisons ou plafonds :
- isolateurs en céramique ou porcelaine;
- plinthes de sol avec canal de câble intégré ;
- tuyaux en PVC ondulé et rigide;
- boîte en PVC ;
- boîtes et tuyaux en métal.
Les noms de produits spécifiques sont indiqués dans la documentation de conception et, en ce qui concerne les structures en bois, ils doivent être accompagnés d'un certificat de sécurité incendie et être marqués du marquage « NG » comme incombustible.

L'installation de canaux de câbles et d'autres éléments de montage doit être pensée à l'avance, car les parties saillantes peuvent interférer avec la disposition des meubles ou d'autres problèmes d'intérieur.
Le choix des chaînes câblées ne pose aucun problème, car dans les quincailleries, vous pouvez acheter des produits à la fois en couleur et en largeur, et avec un ensemble d'accessoires connexes - fiches, éléments rotatifs, adaptateurs.
Il est préférable de choisir des produits à parois épaisses et assez larges avec une seule serrure, car les boîtes à double serrure sont plus difficiles à entretenir.
Exigences et recommandations pour l'installation :
- Le câble, comme les garnitures de protection, ne doit pas supporter la combustion, c'est-à-dire qu'il doit être marqué « ng ». La meilleure option pour les maisons en bois est VVGng-ls (avec émission de fumée réduite).
- La présence d'une plate-forme métallique pour l'installation - une base ignifuge qui augmente la sécurité d'utilisation des appareils électriques.
- Interrupteurs et prises - uniquement aériens, externes.
- L'utilisation de manchons métalliques pour organiser la transition du câble à travers les murs, plafonds, cloisons en bois.
Les manchons passants sont des segments d'un tuyau métallique à paroi épaisse qui doivent dépasser de 1 cm de chaque côté de la structure combustible.Pour éviter que le câble ne se déforme, les bords des manchons sont protégés par des revêtements en plastique.

Selon les règles, il ne doit pas y avoir de section de câblage ouverte entre le manchon et le boîtier. L'extrémité du manchon qui sort du trou doit obligatoirement rentrer à l'intérieur de la boite
Lors du choix de la section d'un câble électrique pour la pose dans une maison en bois, ils sont guidés par les normes généralement acceptées:
- 3 * 2,5 mm - pour douilles;
- à partir de 6 mm² - pour les équipements électriques puissants, par exemple les cuisinières électriques;
- 3 * 1,5 mm - pour le groupe d'éclairage, etc.
La formation de groupes est réalisée selon le principe "le moins possible", c'est-à-dire qu'un bloc de 4-5 points de vente est isolé en tant que ligne séparée et équipé d'une machine séparée.
Ceux qui veulent se débarrasser des câbles utilisent un câblage ouvert sur des isolateurs. Selon les règles du PUE, il est permis de placer des fils isolés sous une forme ouverte à une distance de 10 mm ou plus d'une surface en bois.
La méthode qui était activement utilisée au milieu du XXe siècle revient à la mode, alors faisons attention au câblage rétro. Quelques années après la construction d'une maison en bois, celle-ci rétrécit, de sorte que les fils affaissés sont inévitables.
Pour garder les lignes belles sans serrer, les fils sont fixés avec des attaches de câble au-dessus et au-dessous des isolateurs.
Quelques années après la construction d'une maison en bois, celle-ci rétrécit, de sorte que les fils affaissés sont inévitables. Pour garder les lignes belles sans serrer, les fils sont fixés avec des attaches de câble au-dessus et au-dessous des isolateurs.
Pour plus d'informations sur le câblage ouvert, consultez l'article - Installation de câblage ouvert : examen de la technologie de travail + analyse des principales erreurs
Démarrage et vérification du fonctionnement du câblage électrique
Lorsque tous les appareils électriques sont connectés et que l'installation est terminée, il est nécessaire de mesurer la résistance du câblage électrique dans une maison en bois. Ce processus est nécessaire pour s'assurer que l'isolation n'est pas endommagée.
Des mesures de résistance sont réalisées régulièrement, avec une régularité d'environ une fois tous les trois ans. Les mesures de résistance aideront à identifier les imperfections et à protéger le bâtiment contre les courts-circuits pouvant provoquer un incendie.
Après avoir terminé vous-même l'installation du câblage électrique, vous devez contacter des spécialistes pour un examen compétent de l'ensemble des travaux d'installation. Les électriciens mesurent la résistance de l'isolant et du conducteur de mise à la terre.

Après les travaux, des spécialistes publient un protocole confirmant la fonctionnalité de l'ensemble du système. Ce document doit être présenté lors du scellement du compteur électrique. Le plus souvent, pour plus de clarté et pour faciliter les réparations, un schéma est collé sur le tableau électrique indiquant l'emplacement des principales machines.
Schémas d'installation
Normes modernes pour fournir à une maison privée un état d'énergie électrique: si un transformateur (convertisseur d'électricité) n'est pas installé dans le bâtiment, la consommation électrique totale des appareils électroménagers ne doit pas dépasser 15 kilowatts par jour. Comment calculer cet indicateur ? Additionnez tous les indicateurs de puissance des appareils installés dans la maison. Avez-vous obtenu un chiffre de plus de 15 kilowatts? Procurez-vous un transformateur. Cela coûte de 500 à 5 mille roubles. Choisissez des produits de fabricants de confiance : OSRAM, Yourled, Toroidal, Eglo.

Un transformateur de câblage dans une maison en bois convertit l'électricité et redistribue la tension. Installez-le si tous les appareils électriques du bâtiment consomment plus de 15 kilowatts par jour
Le schéma de câblage de la maison doit être conçu en tenant compte de toutes les prises, interrupteurs dans les locaux. L'éclairage est "alimenté" par certains groupes de câbles, appareils électriques puissants - par d'autres.
Veuillez noter que :
- les compteurs et les machines d'entrée de données doivent être placés à l'extérieur du bâtiment afin que les lectures puissent être lues par les employés de l'organisme d'approvisionnement en ressources;
- le bouclier, le comptoir, la machine doivent être protégés de la poussière, de la saleté, de l'eau ;
- le boîtier de protection du compteur et le blindage doivent être en métal ;
- prévoir un RCD pour préserver les équipements électriques des pannes.
Pour calculer la consommation électrique totale, utilisez le tableau suivant :
| Appareil électroménager | Puissance en watts |
| Télévision | 200 |
| Un aspirateur | 1000 |
| Frigo | 400 |
| Machine à laver | 700 |
| Un ordinateur | 550 |
| Lampe de bureau | 120 |
| Cuisinière électrique | 2500 |
| Le fer | 1000 |
| Sèche-cheveux | 1000 |
| Bouilloire alimentée à l'électricité | 1200 |
| Four micro onde | 1800 |
| Four | 1200 |
| Chauffage | 1400 |
Rappelez-vous qu'il y a 1000 watts dans un kilowatt. Le calcul de la puissance totale vous aidera à comprendre si un transformateur est nécessaire dans la maison ou si vous pouvez vous en passer.
Important : le tableau ne montre que des valeurs moyennes. Pour faire un calcul précis, vous devrez trouver des passeports d'appareils électriques, qui indiquent la quantité d'énergie qu'ils consomment par jour.
Élaborez maintenant un plan technique pour fournir de l'électricité à la maison. Il doit inclure les éléments suivants :
- emplacements pour fixer les prises, interrupteurs, lampes, appareils électroménagers connectés en permanence au réseau (TV, cuisinière, hotte);
- choisissez un câble à trois conducteurs. Il fournira une tension de 220 volts dans le réseau. Pour un tel fil, vous devez monter des prises avec mise à la terre et des interrupteurs à deux boutons (clés);
- des boîtes de jonction sont installées dans les locaux. À l'intérieur, il y a une connexion de câbles entre eux;
- le schéma doit refléter la puissance de chaque appareil électrique qui fonctionnera dans le bâtiment ;
- dans le plan, il est nécessaire de noter la distance du câblage des fenêtres, des portes, du sol et du plafond. En cas de réparations futures, ce plan permettra d'éviter d'endommager le câblage électrique ;
- vous ne pouvez tourner les fils que de 90 degrés - ni plus ni moins (dessinez-le sur le schéma).

Le câblage dans une maison en bois peut être tourné à 90 degrés, ni plus ni moins. Les plis ou les grands coudes provoqueront un court-circuit
Exigences de base pour le câblage dans une maison privée
Avant d'étudier de vos propres mains les instructions étape par étape pour l'installation du câblage électrique dans une maison pavée, en rondins ou dans toute autre maison privée, vous devez comprendre les règles et exigences de base relatives au câblage dans une structure en bois:
- les lignes doivent être isolées. Pour ce faire, utilisez des matériaux incombustibles tels que : PVC, caoutchouc, plastique ;
- en aucun cas des câbles en aluminium ne doivent être utilisés, uniquement en cuivre, avec une section d'au moins 16 millimètres carrés;

Pour le câblage dans une maison en bois, vous ne pouvez utiliser qu'un câble en cuivre, l'aluminium est moins résistant au feu. Section transversale - 16 millimètres
- de la rue, le câblage pénètre dans l'habitation par une gaine métallique. De pièce en pièce - à travers un tube ou un manchon métallique;
- les experts conseillent de monter le câble électrique à l'intérieur de l'habitation uniquement à l'air libre. C'est pratique s'il y a des problèmes de câblage. L'utilisateur peut toujours trouver lui-même les endroits défectueux ;
- lors du calcul de l'épaisseur du fil, il est nécessaire d'ajouter une marge - environ 20 à 30%;
- ne posez pas de câbles dans des tuyaux en carton ondulé ;
- assurez-vous d'installer un RCD dans la maison - un dispositif à courant résiduel, il peut être situé dans le panneau électrique. En cas de court-circuit, l'appareil sauvera les appareils électriques d'une panne prématurée;
- le bouclier est toujours séparé du mur pavé - pour cela, il est placé à l'intérieur d'une boîte en métal, à l'abri de la poussière, de la saleté et de l'humidité;
- il est préférable de monter le bouclier sur un mur de briques spécialement construit à cet effet.Il est souhaitable de le faire (si possible), mais pas nécessaire.
Numéro 6. Câblage dans les chambres
La section des câbles de câblage dépend de la charge sur laquelle ils seront placés. C'est un sujet de calculs sérieux, mais vous pouvez également utiliser des tableaux dans lesquels la section des fils a déjà été calculée en fonction du courant, de la puissance et de la tension.

Câblage ouvert dans les chemins de câbles
Avant de commencer les travaux, il est préférable de marquer les emplacements du futur emplacement des prises et des interrupteurs. Il est préférable pour la sécurité et l'esthétique d'une maison en bois d'installer un câblage ouvert dans les canaux de câbles. Ils sont fabriqués en plastique auto-extinguible, sont une boîte avec un loquet, la taille et la couleur peuvent varier. Le processus de câblage dans ce cas est le suivant :
- choisissez un chemin de câble qui correspond au nombre de fils et à leur section ;
- retirez le couvercle et fixez la boîte de canal à la surface avec des vis autotaraudeuses ;
- des boîtes de jonction sont placées aux jonctions des câbles ;
- la base des prises et des interrupteurs (seuls ceux destinés au câblage externe sont utilisés) sont fixés aux endroits désignés ;
- le câble est posé dans le canal, fermé par un couvercle;
- les extrémités des câbles seront connectées dans des boîtes de jonction. Connectez le câble aux prises, interrupteurs et machines.
Câblage interne dans un tuyau métallique
Si vous décidez d'installer un câblage caché dans une maison en bois, la procédure sera la suivante:
- préparation des portes et installation des boîtes de jonction ouvertes, elles doivent être librement disponibles même après le revêtement des murs ;
- le passage du câblage à travers les murs se fait à l'aide de tuyaux métalliques, appelés traversées.Tout d'abord, un trou du diamètre requis est préparé dans le mur, puis un manchon est placé, le long des bords, il doit avoir un manchon en plastique. Des manchons métalliques spéciaux sont placés sous les prises et les interrupteurs ;
- le diamètre du tuyau est choisi de telle sorte qu'après l'installation de tous les câbles, 60% de l'espace libre y reste. La préférence est donnée aux tuyaux en cuivre, qui se plient bien et sont faciles à couper. Les extrémités des tuyaux après coupe sont bien meulées ou elles sont munies de rebords en plastique. Les tuyaux sont fixés à la surface en bois avec des pinces, à des manchons métalliques - en raison de l'évasement du tuyau à l'intérieur du manchon;
- tirer le câble à travers le tuyau et vérifier l'isolation ;
- connexion des câbles dans les boîtes de jonction et connexion aux prises, interrupteurs.
Connexion filaire
Dans les boîtes de jonction, les fils peuvent être connectés de l'une des manières suivantes :
- lien avec sizami. Ce sont des capuchons isolants spéciaux qui vous permettent de connecter deux fils pré-dénudés de 2-3 cm et torsadés ensemble. Les casquettes sont très faciles à mettre et peu coûteuses ;
- la connexion wagami n'est pas moins simple, mais plus fiable. Un wag avec un nombre approprié de trous pour les fils est sélectionné, les câbles y sont insérés jusqu'à ce qu'ils cliquent;
- le sertissage avec des manchons est l'une des méthodes les plus modernes, mais un équipement spécial est nécessaire;
- il vaut mieux ne pas utiliser la méthode de torsion à l'ancienne, suivie d'une isolation avec du ruban électrique dans une maison en bois.
Il ne reste plus qu'à installer des prises et des interrupteurs. Pour une maison en bois, les raccords en bois sont les mieux adaptés, mais ce n'est pas nécessaire.Vient ensuite le travail de connexion de tous les groupes de fils au blindage, l'installation d'un compteur, d'un RCD et de machines.
Vous devrez également effectuer une mise à la terre. Pour ce faire, un trou est creusé près de la maison sous la forme d'un triangle équilatéral de 1 m de côté. La profondeur est d'au moins 30 cm. Un coin métallique ou une goupille de 3 m de long est enfoncé dans les sommets du triangle , ils sont reliés les uns aux autres par un angle de 1 m de long par soudage. Un trou est fait dans l'un des coins et un conducteur de mise à la terre y est fixé avec un boulon et un écrou, il est amené au tableau de distribution et connecté au bus de mise à la terre, et les conducteurs de mise à la terre des câbles y sont connectés.

Une fois tous les travaux d'installation terminés, les spécialistes du laboratoire électrique sont appelés, qui effectuent tous les tests nécessaires et émettent un protocole confirmant l'exactitude du câblage et sa sécurité. Il est recommandé de coller le schéma de câblage sur la surface intérieure de la porte blindée - il sera beaucoup plus pratique de naviguer en cas d'accident.
Il est nécessaire d'effectuer tous les travaux d'installation du câblage électrique dans une maison en bois uniquement si vous disposez des connaissances et de l'expérience appropriées. Au moindre doute, il vaut mieux faire appel à des spécialistes - la sécurité de la maison et de ses habitants dépend de la qualité et de l'exactitude de la mise en œuvre de toutes les étapes du travail.
Les matériaux utilisés
Caniveaux pour la pose
Le câblage électrique caché dans une maison en rondins est disposé dans des canaux pré-préparés en matériaux réfractaires qui peuvent localiser tout incendie dans les espaces intérieurs
Dans le même temps, une attention est portée à son esthétique et à son attrait, ainsi qu'au coût des travaux d'installation eux-mêmes et à la qualité des matériaux selon le principe résiduel.
Important! Dans ce cas, le principe d'un câblage sûr est mis en avant en premier lieu, puis seulement l'attention est attirée sur les caractéristiques décoratives et les caractéristiques techniques du système. Compte tenu de ces conditions, un matériau est sélectionné, adapté à la disposition des câbles posés le long des murs en bois du bâtiment dans des boîtiers métalliques (boîtes) ou dans des tuyaux de même structure
Compte tenu de ces conditions, un matériau est sélectionné, adapté à la disposition des câbles posés le long des murs en bois du bâtiment dans des boîtiers métalliques (boîtes) ou dans des tuyaux de même structure
Compte tenu de ces conditions, un matériau est sélectionné, adapté à la disposition des câbles posés le long des murs en bois du bâtiment dans des boîtiers métalliques (boîtes) ou dans des tuyaux de même structure.
Les plus appropriés, du point de vue de la sécurité des fils cachés dans des niches libres et des vides et posés sur des structures en bois, sont les matériaux suivants :
- Boîtiers en acier standard (boîtes) et conduites métalliques ;
- Produits de tuyauterie à base de cuivre;
- Boîtes de montage (enveloppes) et tuyaux ondulés en matériaux PVC résistants au feu avec des bouchons en béton ou en albâtre installés à leurs extrémités.
L'épaisseur des bouchons de sécurité (joints) est sélectionnée conformément à GOST et doit répondre aux exigences du PUE concernant les problèmes de sécurité du câblage.
Les avantages des tuyaux en cuivre incluent la facilité de former un coude du rayon requis (sans avoir besoin de dispositifs et d'outils spéciaux)
Ceci est particulièrement important dans les cas où la pose d'un vaste réseau de fils électriques avec de nombreuses branches est organisée.
Lors de l'utilisation de tuyaux en acier, certaines difficultés peuvent survenir en termes d'installation et de coûts de main-d'œuvre pour le moulage, mais leur coût, par rapport à leurs homologues en cuivre, sera nettement inférieur.
Noter! Les bords aiguisés des ébauches tubulaires et des conduits peuvent endommager l'isolation des fils et entraîner des conséquences indésirables. C'est pourquoi, lors de la préparation des canaux, vous devez surveiller attentivement l'état des bords dangereux et couper les pièces d'origine uniquement avec un outil de coupe spécial.
Sélection de fil
À ce stade des travaux, il est nécessaire de déterminer la marque du fil d'installation adapté à la pose directe dans des boîtes ou des tuyaux en acier. Selon les exigences de GOST et les normes stipulées dans le PUE, l'utilisation des types de câbles suivants est considérée comme optimale pour les bâtiments en bois :
- Fil VVGng (A) ou sa variété sous le nom VVGng-P (A);
- Deux autres types de produits de câble liés à la même série sont VVGngLS et VVGng-PLS ;
- Fils modernes d'un fabricant étranger NYM.
Les fils multiconducteurs (jusqu'à cinq conducteurs) répertoriés dans la liste avec le marquage VVGng ont une double isolation fiable. Conformément aux règles du PUE, l'une des couches isolantes (internes) est réalisée à base de PVC et a sa propre couleur pour chaque noyau individuellement.
Informations Complémentaires. Les normes de couleur généralement acceptées facilitent grandement le câblage, en particulier lors de la connexion des fils aux boîtes de jonction, aux bornes d'éclairage et aux prises (voir photo ci-dessous).

À l'extérieur, le câble VVGng a un revêtement isolant commun en composite flexible - plastique, ce qui permet de le faire fonctionner dans la plage de température de plus 50 à moins 50 ° C.
Les caractéristiques des produits sous les noms VVGng LS, VVGng-P LS ne diffèrent presque pas de celles déjà considérées, sauf que l'isolation de ces fils n'émet pas de substances nocives pour la santé humaine lorsqu'elles sont chauffées. Le câble appelé NYM est fabriqué conformément à GOST 22483 et possède trois revêtements isolants.
Lors de sa production, chacun des noyaux individuels est d'abord isolé individuellement, après quoi leur ensemble total est placé dans une gaine en matériau composite, et enfin, tout cela est protégé par un revêtement en PVC incombustible.
Règles d'installation d'un câblage ouvert: un résumé de 3 techniques avec des images explicatives
Assurer un entrefer
Dans les maisons anciennes, les lignes électriques étaient séparées du bois par une lame d'air en installant des fils sur des rouleaux de porcelaine. Les points de commutation (prises et interrupteurs) ont été montés sur des boîtiers de prises qui empêchent les brûlures.
Des fils flexibles ont été torsadés manuellement et fixés sur des isolateurs en céramique fixés aux éléments de construction.
Cette méthode d'installation a permis d'observer visuellement l'état technique des fils et le fonctionnement en toute sécurité des interrupteurs et des prises. Les dommages au câblage n'importe où étaient clairement visibles.
La même règle de sécurité est entièrement préservée dans le câblage rétro moderne, qui est installé comme une élite dans des maisons respectables, soulignant leur amour pour l'antiquité.
Cette méthode d'installation demande un budget assez conséquent. De nombreux propriétaires ne peuvent tout simplement pas se le permettre. Un tel équipement coûte cher. Les fils toronnés sont produits avec une protection contre la lumière, la chaleur et une résistance mécanique accrue.
Les interrupteurs et les prises ont non seulement un beau design, mais également des mécanismes de commutation améliorés.
Support de montage
Avec cette méthode, le câble électrique est séparé du bois par une étroite bande de tôle dépassant de l'isolant du câble et fixée avec les mêmes supports.
La section transversale des conducteurs doit être jusqu'à 6 mm carrés, et tous sont placés à l'intérieur d'une gaine de câble.
Le montage sur des supports aggrave l'intérieur de la pièce. Il est plus adapté aux locaux industriels.
Câblage dans des plinthes électriques ou des chemins de câbles
La sécurité de la technique d'installation repose sur l'utilisation de caisses en plastique de différentes conceptions qui ne supportent pas la combustion. Ils sont d'abord fixés aux murs, puis le câblage est posé à l'intérieur et les couvercles sont enclenchés.
Le gros avantage de cette méthode est la possibilité d'une mise à niveau pratique du circuit en ajoutant simplement un câble sans utiliser de technologies complexes.
La vente propose une large gamme de plinthes électriques et de chemins de câbles avec divers accessoires.
Quelle que soit la méthode de câblage ouvert, il devient nécessaire de faire passer le câble à travers un mur ou d'autres structures de bâtiment. Le PUE nécessite de l'isoler du bois avec des tuyaux métalliques.
Nuances techniques du câblage dans les maisons en bois et à ossature
Ainsi, d'après ce qui précède, il devient clair que certains utilisateurs de FORUMHOUSE pensent que le câble électrique dans les maisons en bois, avec un câblage caché, ne devrait être acheminé que dans des tuyaux métalliques. Nous soulignons - c'est dans des tuyaux en acier, et non dans un tuyau métallique, une ondulation auto-extinguible en plastique ou un tuyau ondulé en acier.

L'arc de court-circuit (court-circuit) brûle à travers le tuyau ondulé en acier et l'ondulation en plastique, en raison de sa fragilité, ne sauvera pas le câblage des dommages mécaniques.
D'autres la considèrent comme redondante et s'appuient sur l'expérience étrangère. Par exemple, dans un cadre classique utilisant la technologie nord-américaine, un câble électrique est tiré directement à travers des grilles en bois, dans des trous technologiques percés, sans ondulations, tuyaux métalliques, etc.

Dans la version "finlandaise" du cadre, le câble électrique est généralement tiré dans la couche interne de contre-isolation noyée dans un contre-treillis en bois.

Il semble que la technologie soit disponible pour la répétition, car elle a résisté à l'épreuve du temps, mais, comme vous le savez, l'essentiel réside dans les détails.
Premièrement: «outre-mer», il faut faire la mise à la terre, et double - l'une va à la ligne de rue, au bouclier, la seconde est indépendante, connectée soit à des broches en cuivre enfoncées dans le sol, soit à la conduite d'eau centrale. De plus, il y a aussi un bus "zéro", et chaque ligne et appareil électrique (prises, lampes, etc.) a sa propre mise à la terre indépendante.
Deuxièmement: dans un câble "étranger" à trois conducteurs, le fil de cuivre - "terre", va sans tresse. Cela garantit le fonctionnement du RCD au moindre dommage à l'isolation des fils "zéro" et "phase" tout au long du parcours. Alors que dans notre pays, le fil de terre est isolé et ne protège que les utilisateurs finaux.
Et ce n'est qu'une partie des nuances qui garantissent la sécurité électrique. Quant aux maisons construites en bois, après avoir décidé de faire passer un câble dans un tuyau en acier, nous nous souvenons que l'arbre se rétrécit avec le temps. De plus, selon la teneur en humidité du matériau source, cette valeur peut être importante. Cela signifie qu'il est nécessaire de réfléchir à l'avance à la manière d'assurer le mouvement / l'indépendance nécessaire du tuyau en acier avec le câble afin que la poutre ne «s'accroche» pas dessus dans 2-3 ans.

De plus, de la condensation peut se former dans le tuyau en acier et de l'humidité peut pénétrer dans la prise ou la boîte de jonction en raison de la pente du tracé. Un autre "casse-tête" est de savoir comment conduire des pistes dans des maisons en bois d'une grande surface. C'est une chose de poser des tuyaux en acier dans un chalet en bois de 100 à 150 m². m, mais une tâche complètement différente en complexité - dans des maisons de 300 à 500 m². m) En plus d'augmenter l'estimation, des exigences particulières sont imposées aux qualifications des travailleurs impliqués dans l'installation du câblage électrique dans les tuyaux en acier.
Par conséquent, des exemples de mise en œuvre pratique de câbles de câblage dans des conduites métalliques sont intéressants.
Un tube carré est plus pratique à installer qu'un tube rond.
Pour ce faire, nous achetons un tuyau de 15x15 mm de 300 mètres de long et une ondulation métallique d'un diamètre de 2 cm, ainsi que des supports (ils servent à fixer des ondulations d'un diamètre de 1,5 cm) pour fixer les tuyaux sur les murs. Ensuite, nous procédons à l'installation du câblage, sans oublier de nettoyer d'abord les bords des tuyaux des bavures!
Si cela n'est pas fait, vous pouvez couper l'isolation du câble.
Qu'est-il arrivé à la fin, montrez des photos.
Prochain reportage photo. Il s'agit d'une maison à ossature.


De plus, la section des fils a été calculée et un équipement de protection a été sélectionné.Les lignes ont été réalisées sans torsions / connexions et boîtes de jonction, avec des câbles entiers depuis le tableau avec la machine jusqu'au consommateur.










































