- Classification des gazoducs
- Catégorie I-A haute pression
- Catégorie haute pression I
- Moyenne pression
- Basse pression
- Que comprend la gazéification clé en main ?
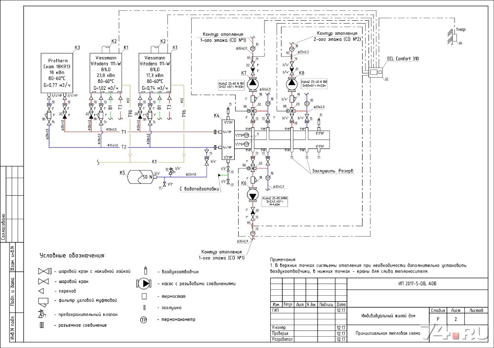
- Conception d'une installation d'extinction d'incendie à gaz
- Enregistrement de la gazéification de la maison
- Obtention des spécifications
- Développement d'un projet d'approvisionnement en gaz
- Émission d'une procuration pour le raccordement au gaz
- Comment choisir un entrepreneur de projet
- Le coût de la gazéification autonome d'une maison privée
- Conception de systèmes d'alimentation en gaz - Projet clé en main : GK OdinPROEKT
- Caractéristiques et nécessité du système d'alimentation en gaz
- Nos services
- Processus de conception de gazoduc
- Facteurs pris en compte lors de la conception d'un gazoduc
- Les documents
- Le coût d'un projet d'approvisionnement en gaz
- Appel! +7 (903) 541-07-34
- Liste des documents requis
- Taxes et redevances gouvernementales pour le raccordement au gazoduc
- Informations requises pour la conception de systèmes extérieurs et souterrains
- 1.2 Informations sur les études climatiques et géotechniques
- Le besoin de conception
- Conclusions et vidéo utile sur le sujet
- conclusion
Classification des gazoducs
Selon les normes GOST, tous les gazoducs sont divisés en catégories ou classes en fonction de la pression de la substance déplacée.Les principales installations qui effectuent des livraisons en transit sur de longues distances sont divisées en deux catégories, la première est capable de transporter du gaz avec des paramètres de 25,0 à 100,0 kgf/cm2, la seconde est calculée pour des indicateurs de 12,0 à 25,0 kgf/cm2.
La conception des réseaux de gaz qui remplissent des fonctions de distribution dans les établissements prévoit l'utilisation d'autres indicateurs du milieu gazeux pour les valeurs calculées.
Les branches de distribution, en fonction de la pression, sont divisées en catégories :
Catégorie I-A haute pression
Il est utilisé pour fournir du gaz supérieur à 12,0 kgf/cm2 à de grandes zones urbaines ou à des entreprises industrielles ayant de gros volumes de consommation pour des besoins technologiques.
Catégorie haute pression I
Il est utilisé dans les réseaux urbains à des valeurs de 3,0 à 6,0 kgf/cm2 pour une transmission ultérieure via des unités de contrôle de gaz (GRP, ShRP, GRPSH, GSGO, GRPSHN, PGB, UGRSH, GRPB) vers des réseaux à moyenne et basse pression.
Moyenne pression
De 0,05 à 3,0 kgf / cm2, concentrés dans les réseaux de distribution de quartier et de rue, à partir desquels sont alimentés les consommateurs basse pression ou les entreprises industrielles à forte consommation.
Basse pression
À partir de 0,05 kgf / cm2 et moins, ils sont utilisés pour connecter des appareils à gaz dans des maisons du secteur privé, des immeubles résidentiels à plusieurs appartements (pas plus de 10 étages), des bâtiments publics, des établissements de restauration et d'autres installations, dont l'alimentation en gaz ne pas en contradiction avec les exigences des normes et règles de construction.
La conception des gazoducs devrait prévoir des distances admissibles entre les conduites de gaz et les communications de la ville, ainsi que l'attribution d'une zone de sécurité pouvant atteindre 10,0 mètres des deux côtés des principaux gazoducs, qui est régie par des règles de sécurité.
Que comprend la gazéification clé en main ?
Ceci comprend:
- Départ sur place et prise de mesure de toutes les dimensions du site. Ces travaux sont nécessaires pour établir un plan d'implantation, y placer tous les bâtiments existants, déterminer le degré d'amélioration et tracer l'emplacement du futur réservoir de gaz et du gazoduc.
- Construire un plan de la maison avec l'application de tous les appareils consommant du gaz dessus. Collecte du passeport et des caractéristiques techniques de l'équipement.
- Conception du système en tenant compte des exigences de la documentation réglementaire moderne. Cela comprend la sélection et le placement approprié d'un réservoir de gaz, l'acheminement d'une conduite de gaz à basse pression dans tout le site et la maison, la sélection des vannes d'arrêt, de contrôle et d'automatisation nécessaires.
- Achat d'équipements et de matériaux certifiés dans des magasins spécialisés et leur livraison sur le chantier.
- Installation du système conçu. S'il est impossible de réaliser la construction strictement conforme au projet, les concepteurs sont appelés à corriger les décisions prises.
- Test de gazoduc, dépannage.
- Fournir une garantie pour le travail effectué.
Conception d'une installation d'extinction d'incendie à gaz
Il est maintenant temps de découvrir ce qui est nécessaire pour préparer la conception, en quelles étapes le projet consiste. Nous élaborons le projet, guidés par le document SP 5.13130.2009.
Avant la première étape du projet, nous devons collecter et étudier les informations suivantes :
- destination des locaux : entrepôt, public, industriel ou résidentiel ;
- localisation des services publics : eau, électricité, ventilation, câbles internet et téléphoniques ;
- architecture et planification, caractéristiques de conception de l'objet;
- conditions climatiques, température de l'air maintenue;
- classe de risque d'incendie et d'explosion de la structure.
Après avoir étudié et analysé ces informations en détail, nous serons en mesure d'identifier les étapes successives de notre planification.
L'élaboration de la documentation du projet est effectuée conformément à ce plan.
- Définition et approbation des TDR du projet.
- Réglage de l'indicateur d'efficacité d'AUGPT, en tenant compte de l'indicateur de fuite de l'objet protégé.
- Détermination du type d'agent extincteur.
- Calcul hydraulique d'AUGPT. Nous le produisons selon la méthodologie du document SNiP RK 2.02-15-2003. Il comprend le calcul :
- masse estimée de MO pour l'extinction des incendies ;
- la durée de l'administration de la substance ;
- intensité d'irrigation;
- zone d'extinction maximale avec un gicleur ;
- le diamètre des canalisations du système, les sorties, le nombre et le type de buses (filtres) pour une distribution uniforme du gaz dans toute l'installation;
- la valeur maximale de surpression lorsque la solution de travail est injectée ;
- le nombre de modules du système, ainsi que le stock de RH.
- Estimation des coûts d'équipement, installation d'AUGPT.
- Calcul de la taille des ouvertures pour jeter une substance dans la pièce en surpression.
- Calcul du temps de retard pour la libération de gaz à l'extérieur, qui sera nécessaire pour éteindre le système de ventilation, etc., ainsi que l'évacuation en toute sécurité des personnes (au moins 10 secondes).
- Choix du type d'appareil : centralisé ou modulaire.
- Détermination du nombre de cylindres RH à installer.
- Décision sur la nécessité de conserver un stock d'agent extincteur.
- Créer une disposition de tuyauterie.
- Décider de la nécessité d'un dispositif de démarrage local pour un AUGPT centralisé.
- Établissement de la conception correcte des pipelines.
- Le choix des dispositifs de contrôle pour une installation d'extinction d'incendie à gaz.
Après l'achèvement du projet, c'est-à-dire un calcul complet de l'installation, ainsi que l'achat de l'équipement nécessaire, nous pouvons commencer le processus d'installation et de mise en service, qui sont réglementés par les documents réglementaires SNiP 3.05.06-85, RD 78.145-93 et autres ingénierie, technique, documents juridiques.

Chers lecteurs, nous avons passé en revue le processus et les étapes de conception d'une installation d'extinction d'incendie à gaz.
Ce projet typique AUGPT pour la salle serveur d'un établissement de crédit est plutôt un guide académique pour tous ceux qui souhaitent mettre en place cet équipement dans leur établissement.
Si ce matériel vous a été utile, recommandez-le à vos amis.
A bientôt sur nos pages de blog.
Enregistrement de la gazéification de la maison
Pour obtenir l'autorisation de poser un gazoduc vers une maison privée, vous devez rassembler un ensemble impressionnant de documents et passer par quatre étapes :
- l'obtention de TU ;
- le développement de projets;
- installation d'équipements de gazoducs;
- lien.
Documents requis:
- demande de gazéification du propriétaire du bien ;
- passeport d'un citoyen de la Fédération de Russie;
- un document sur le droit de propriété lorsque la gazéification est prévue ;
- si le pipeline doit être posé à travers des sections voisines, le consentement écrit de leurs propriétaires est requis pour une telle procédure.
Souvent, les propriétaires commencent le processus de gazéification lorsque la maison est encore en construction. Naturellement, ils souhaitent savoir s'il est possible de fournir du gaz à une maison inachevée et toujours non enregistrée?
Dans ce cas, en plus des documents énumérés ci-dessus, vous devez fournir des documents supplémentaires :
- la propriété de la parcelle de terrain où la construction est réalisée ;
- une copie du certificat d'enregistrement de l'immeuble, qui est en cours de construction, inscrit par un notaire ;
- demande d'obtention de TU (conditions techniques) ;
- confirmation écrite de l'organisme territorial de l'État de la légalité des travaux de construction.
Le raccordement d'une maison non enregistrée s'effectue en tant que gazéification d'un bâtiment auxiliaire et non d'un bâtiment résidentiel.
Obtention des spécifications
Des spécifications techniques sont nécessaires pour concevoir un gazoduc externe et un système d'alimentation en gaz intra-maison. Pour obtenir des spécifications techniques, vous devez contacter le service de gaz pour déterminer si la capacité est suffisante pour le raccordement.
Papiers requis :
- propriété foncière;
- plan d'étage de la maison ou autorisation de la construire (doit être certifié dans le quartier "Architecture");
- plan du site à l'échelle 1:5 000 ;
- une déclaration signée par le chef du Gas Trust.
Le délai minimum de préparation du cahier des charges est de 2 semaines. La durée peut être prolongée jusqu'à un mois. En pratique, la coordination prend beaucoup plus de temps.
Après l'acceptation de la demande de gazéification, conformément à la législation, le raccordement au gaz doit avoir lieu dans les trois mois
La durée de validité des spécifications techniques est de deux ans maximum. Passé ce délai, le gazoduc doit être construit.
Développement d'un projet d'approvisionnement en gaz
Une fois que le propriétaire a reçu le cahier des charges pour la fourniture de gaz, un projet est en cours d'élaboration.
L'ensemble de documents suivant doit être soumis à l'organisme de conception :
- CE;
- relevé géodésique d'une parcelle personnelle avec toutes les communications et bâtiments en référence au terrain;
- tous les documents pour la construction ;
- pour la gazéification d'un bâtiment non résidentiel (non fini), un relevé des caractéristiques techniques est requis (le bâtiment doit être prêt à au moins 70%).
Après cela, vous devez appeler le capitaine, qui effectuera toutes les mesures nécessaires et rédigera la documentation. L'examen du projet est effectué dans un délai de 15 jours ouvrables. La prochaine étape consiste à payer pour le projet. Le coût du service dépend de la distance de l'objet au gazoduc.
Deux projets sont nécessaires pour la construction inachevée. Dans l'un, le système d'alimentation en gaz du bâtiment est affiché, là où la construction n'est pas terminée, et dans le second, au contraire, sur les logements achevés
Le projet tient compte de tous les appareils à gaz dont l'installation est prévue dans la maison (chaudière au sol ou chauffe-eau instantané mural, cuisinière à gaz, foyer, etc.). Ceci est fait afin de calculer le volume requis de matières premières.
Le volume de gaz consommé est indiqué dans le passeport de l'équipement. De plus, vous devez également fournir un plan pour l'emplacement des appareils électroménagers dans la maison.
Le client doit absolument vérifier le projet fini, de sorte qu'il n'est pas nécessaire par la suite de réaménager les locaux
Une fois les formalités administratives terminées, les travaux d'installation et de construction commencent.
Émission d'une procuration pour le raccordement au gaz
La gazéification est un processus complexe et long. Tous les propriétaires n'ont pas assez de temps libre pour s'occuper personnellement de ce problème.
Dans ce cas, une procuration est délivrée à une personne privée qui représente les intérêts du propriétaire de la maison. Ce document doit être notarié et joint à d'autres documents.
Comment choisir un entrepreneur de projet
Il est impossible de réaliser indépendamment un projet de gazéification avec tout le désir. Et économisez aussi sur son développement. Il s'agit d'un document obligatoire, qui est élaboré en tenant compte de nombreuses exigences. Ils sont indiqués dans la littérature technique spéciale, les ouvrages de référence et les codes de pratique, ainsi que dans les normes nationales. Toutes ces exigences sont connues des concepteurs professionnels, qui devraient être engagés dans la conception.
De plus, il doit s'agir d'employés de départements de conception spéciaux, et pas seulement de spécialistes offrant leurs services. En règle générale, dans votre ville, vous pouvez trouver plusieurs organisations impliquées dans la mise en œuvre de projets de gazéification de logements à la fois. Le plus souvent, des organisations crédibles sont membres de l'OAR. Cet acronyme signifie « Organismes d'autorégulation ».
Toutes les organisations incluses dans le SRO reçoivent un certificat qui doit être étudié lors du choix d'une entreprise de conception (+)
Il est préférable pour le client de traiter avec de telles entreprises. Dans ce cas, il peut être sûr que le travail sera effectué de manière efficace, compétente et dans les délais. En effet, sinon l'organisation fait face à de sérieux problèmes liés à des problèmes de réputation et à des pertes financières. Les sociétés non OAR sont limitées dans leur choix de clients. Ils ne peuvent pas compter sur des commandes sérieuses et ne peuvent pas participer à des appels d'offres.
Pour rejoindre le SRO, une organisation doit répondre exactement à certaines exigences. Ils doivent avoir au moins deux ingénieurs concepteurs professionnels à temps plein. Tous les trois ans, ils doivent passer des tests, confirmant ainsi leurs qualifications et leurs connaissances.Le contrôle est effectué par une commission spéciale, selon ses résultats, des certificats sont délivrés ou non à des spécialistes.
De plus, seul un organisme habilité à mener ce type d'activité peut développer un projet. Ce point doit être clarifié avant de conclure un contrat pour la réalisation d'un projet de gazéification.
De plus, lors de sa conclusion, il est important de préciser que l'entrepreneur assume la responsabilité de coordonner et d'approuver les documents, de prendre des mesures et de visiter les services de gaz. Une telle clause dans le contrat permet au client de prendre une part minimale dans le processus de conception.
Le coût de la gazéification autonome d'une maison privée
Pour calculer les coûts potentiels de gazéification autonome du site, vous devez connaître la surface chauffée et calculer le degré d'intensité d'utilisation du système de gaz.
Le prix d'un réservoir d'essence de 1 000 litres est d'environ 230 000 roubles, un réservoir de 1 650 litres coûtera 260 000 roubles, pour 5 000 litres - 520 000 roubles.
Certains habitants s'unissent pour installer un système autonome d'approvisionnement en gaz dans plusieurs zones voisines.
Bien sûr, le coût d'achat d'un réservoir de gaz n'est pas le seul coût pour la gazéification autonome d'une maison privée.
Cependant, le raccordement aux principaux gazoducs peut nécessiter des dépenses importantes.
Évidemment, dans ce cas, la principale exigence est la disponibilité de réseaux de gaz à basse pression pour le raccordement aux réseaux centralisés. S'ils ne sont pas disponibles, la possibilité de se connecter au gaz naturel peut être attendue pendant des années.
Dans ce cas, la seule alternative est la gazéification autonome, qui est réalisée rapidement et relativement sans tracas, et en même temps peut coûter moins cher.
Le coût moyen de raccordement aux réseaux centralisés d'approvisionnement en gaz de la région de Moscou à un réseau de gaz naturel est de 400 000 roubles. (sous réserve qu'un gazoduc basse pression passe à proximité). La présence d'un gazoduc moyenne ou haute pression n'est pas adaptée.
Comparaison des différentes options pour les coûts de chauffage
Dans ce tableau, nous avons analysé les coûts de différents types de combustibles pour le chauffage d'un immeuble résidentiel d'une superficie de 100 m².
| Type de chauffage | Pouvoir calorifique spécifique kW/ MJ | La quantité de fuel pour chauffer 100m2 | Prix pour 1 unité (rub.) | Coût de 1 kW/h de chaleur (rub) | Coûts de chauffage annuels approximatifs (rub.) |
| Électrique, / 1kW*h | 1 / 3,62 | 10 | 3,2 | 32 | 80 000 |
| Carburant diesel, carburant diesel, / l | 11,9 / 43,12 | 0,84 | 35 | 29,41 | 73 529 |
| Gazéification autonome (gaz liquéfié / m 3) | 29,2 / 105,5 | 0,34 | 54,05 | 18,51 | 46 276 |
| Raccordement aux réseaux de gaz (Gaz naturel / m 3) | 9,3/33,5 | 1,08 | 5,13 | 5,52 | 13 790 |
Pour plus d'informations sur la possibilité de raccorder le gaz dans une maison privée (au gazoduc principal), consultez cet article.
Vous avez encore des questions ? Voulez-vous des réponses ?
Conception de systèmes d'alimentation en gaz - Projet clé en main : GK OdinPROEKT

Pour l'approvisionnement en gaz naturel à l'aide d'un pipeline, une structure spéciale est utilisée - un gazoduc.
L'approvisionnement en gaz est la livraison et la distribution du type de combustible le plus accessible - le gaz, qui peut être centralisé ou autonome.
Caractéristiques et nécessité du système d'alimentation en gaz
La présence d'un système d'alimentation en gaz est une condition essentielle au fonctionnement de toutes les installations modernes (tant résidentielles que commerciales). Grâce à l'approvisionnement en gaz, il est possible de créer des conditions confortables pour que les personnes séjournent sans frais particuliers - dans les bâtiments publics, industriels et techniques.
Il existe deux types de gazoducs - principaux et de distribution. Le premier type est conçu pour fournir du gaz sur de longues distances. Le niveau de pression dans la canalisation est maintenu grâce aux stations de compression installées à intervalles réguliers. La pression est réduite à un niveau adapté à l'alimentation des consommateurs au dernier point du gazoduc.
Les stations de distribution sont utilisées pour livrer du gaz au consommateur à partir des stations de distribution.
Nos services
La conception des systèmes d'alimentation en gaz est une tâche complexe, dont la solution est largement basée sur l'emplacement de l'objet. Nous développons des projets d'objets à Moscou, dans la région de Moscou et pour les régions de Russie.
Dans notre entreprise, vous pouvez commander un projet:
- gazoduc externe (intershop, rue, cour, quartier);
- gazoduc interne (construit à l'intérieur du bâtiment);
- autres types de gazoducs, y compris introduction, impulsion, distribution, déchets, etc.
Processus de conception de gazoduc
La conception de systèmes d'alimentation en gaz autonomes est une condition nécessaire à la construction de haute qualité d'un système d'alimentation en gaz efficace. Grâce au projet de gazéification de l'installation, il est possible de déterminer l'emplacement des équipements de ventilation, des cheminées et des canalisations. La phase de conception détermine également le type d'équipement utilisé.
Des calculs inexacts peuvent entraîner des problèmes de fonctionnement du système d'alimentation en gaz. Par conséquent, seuls des spécialistes expérimentés sont autorisés à concevoir dans notre société.
Quels que soient le niveau de pression et le but du gazoduc, il est généralement posé sous terre.
Selon le niveau de pression, on distingue les réseaux :
- bas;
- moyen;
- haute;
- hyper haute pression.
Dans certains cas, il est permis de poser des gazoducs au-dessus du sol (principalement à l'intérieur des zones résidentielles, ainsi que sur le territoire des entreprises municipales et industrielles).
Facteurs pris en compte lors de la conception d'un gazoduc
Les conditions d'exploitation du gazoduc sont influencées par de nombreux facteurs, dont chacun est nécessairement pris en compte par nos spécialistes lors de l'élaboration du projet.
Les plus significatifs d'entre eux sont :
- volume estimé de gaz utilisé ;
- le type de sol;
- éloignement de l'installation à laquelle le gaz est fourni à partir du gazoduc principal ;
- type d'équipement à gaz;
- position des canalisations, puits de ventilation, cheminées ;
- caractéristiques du tracé pour l'organisation du gazoduc.
Le projet est développé conformément aux conditions d'exploitation et doit être convenu avec le propriétaire des communications et les organisations responsables des spécifications d'approvisionnement en gaz.
Les documents
Les documents suivants sont requis pour les travaux de conception :
- relevé topographique de la zone (échelle 1:500);
- conditions techniques de gazéification;
- mission de conception.
Le coût d'un projet d'approvisionnement en gaz
Le projet d'approvisionnement en gaz pour les colonies, les entreprises industrielles et commerciales est calculé individuellement et dépend de la complexité et de l'étendue des travaux. Pour un immeuble résidentiel, le coût du projet varie généralement entre 25 et 30 000 roubles.
La conception et la construction de systèmes d'alimentation en gaz est l'un des principaux domaines de notre travail.
Nous garantissons une performance de haute qualité de toutes les étapes de gazéification des installations.
Appel! +7 (903) 541-07-34
Liste des documents requis
Pour que les concepteurs puissent commencer, le client doit fournir des données de conception. Ceci comprend:
- conditions techniques de raccordement aux réseaux gaziers obtenues à Gorgaz ;
- plan de situation du site, délivré par l'administration de l'agglomération ;
- le protocole de recherche géologique, qui est effectué par des organismes spécialisés ;
- plan de la maison indiquant l'emplacement souhaité des équipements.
Un exemple de plan de maison. (Cliquez pour agrandir) Le plan de la maison peut être reproduit par l'ingénieur concepteur si le bâtiment existe déjà.
En même temps, il pourra effectuer toutes les mesures nécessaires.
Lors de la conception, un spécialiste peut avoir besoin de:
- distance de la source d'alimentation en gaz aux murs de la maison;
- dimensions des locaux;
- la distance entre les structures, les bâtiments et les communications situés sur le site.
Ce n'est que si toutes les données initiales sont disponibles que l'ingénieur peut procéder aux calculs et au dessin.
Cet article explique comment choisir un geyser.
Lisez un article avec des critiques sur les chaudières à gaz ici.
Taxes et redevances gouvernementales pour le raccordement au gazoduc
Pour connecter l'installation au gazoduc, vous devrez payer les taxes et droits d'État suivants.
Coordination du projet de gazoduc - le paiement est effectué sur le compte du GRO "PeterburgGaz" "Gazprom Distribution" - à partir de 2 700 roubles. jusqu'à 7 500 roubles
Obtention d'un acte sur l'inspection des systèmes de ventilation et de cheminée - 3 000 roubles.
Vérification de la documentation exécutive dans le GRO "PeterburgGaz" si la région de Leningrad. JSC "Gazprom Distribution" - à partir de 500 roubles. jusqu'à 3 000 r.
Contrat de maintenance technique et d'urgence de GDO "PeterburgGaz" si la région de Leningrad. JSC "Gazprom Distribution" - 500 roubles. jusqu'à 3 000 r. pendant 1 an
Contrat de connexion technologique de GRO "PeterburgGaz" si la région de Leningrad JSC "Gazprom Distribution" - 20 000 roubles.
Gaz start-up GRO "PeterburgGaz" si la région de Leningrad.JSC "Gazprom Distribution" - à partir de 1 500 roubles. jusqu'à 3000 r.
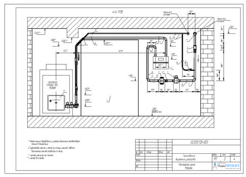
Informations requises pour la conception de systèmes extérieurs et souterrains
Pour l'élaboration de la documentation technique, qui commence par une étude approfondie de l'objet gazéifié, les spécialistes d'Energia and Co. Ltd. rassemblent tous les matériaux nécessaires.
Nos employés étudient les données des levés géologiques effectués, ainsi que les résultats du levé topographique de la région. La base de la conception des canalisations principales et secondaires est également un plan de situation de la zone le long de laquelle la pose aérienne ou souterraine sera effectuée. Si le gazoduc traverse des voies ferrées ou routières, d'autres voies de communication, des conditions techniques sont également obtenues.
Au dernier stade de la phase préparatoire, les spécialistes d'Energia and Co LLC préparent une section du plan du bâtiment ou de la structure avec la pose autorisée des communications existantes et le gazoduc en cours de conception.
- la distance d'une installation commerciale ou industrielle par rapport au pipeline principal ;
- caractéristiques du sol, profondeur des eaux souterraines ;
- schémas possibles pour la pose d'un gazoduc, l'emplacement des cheminées et des puits de ventilation;
- le volume de gaz que le client prévoit d'utiliser dans une période de temps limitée ;
- caractéristiques de l'itinéraire, diamètre extérieur et type de conduite sélectionné - pour les conduites de gaz en acier ou en polyéthylène ;
- types d'équipements de traitement du gaz utilisés;
- caractéristiques architecturales des bâtiments et des structures.
Energia & Co LLC fournit une assistance professionnelle dans le développement de la documentation de conception pour les gazoducs aériens et souterrains. Nos employés sont prêts à réaliser toute la gamme d'enquêtes pour les réseaux de tout niveau de complexité. Toutes les opérations liées au calcul et à la pose des tracés des gazoducs souterrains sont effectuées conformément aux autorisations en vigueur.
1.2 Informations sur les études climatiques et géotechniques
La région climatique du village de Nadeevo selon - II.
Sous-région climatique - IIe siècle.
Température de l'air extérieur, °C :
- la période de cinq jours la plus froide (avec une probabilité de 0,92) -32 ;
- le jour le plus froid (avec une probabilité de 0,92) -37 ;
- durée de la période de chauffage -231 jours.
Degré-jour de la période de chauffe - 5567°C*jour.
Poids de l'enneigement par 1m2, Wo = 240 kg/m2.
Vitesse vent tête So = 23 kg/m2.
Le climat de la région est continental tempéré.
Le mois le plus froid est janvier, avec une température mensuelle moyenne = -12,6 C.
Le mois le plus chaud est juillet, avec une température mensuelle moyenne de 16,8 °C.
La durée de la période chaude va jusqu'à 205 jours, la période froide est de 160 jours.
Selon le rapport sur les études d'ingénierie et géologiques produit par GeoStroyIzyskaniya LLC, la zone de construction est caractérisée par les couches de sol suivantes et leurs indications physiques et mécaniques :
— les formations modernes (b IV) ont été mises à jour par tous les forages et sont représentées par une couche sol-végétative avec des racines de plantes herbacées. L'épaisseur du sol est de 0,2 m.
- Dépôts lacustres-glaciaires du Quaternaire moyen (lg III) partout sous les formations modernes et représentés par plusieurs couches. Dans la partie supérieure de la coupe, on trouve des argiles légères de consistance plastique dure à texture stratifiée.L'épaisseur de ces dépôts est de 1,3 à 2,8 m.
Puits n ° 1 d'une profondeur de 1,5 à 3,0 m (trou de fond) loams exposés d'une texture en couches, de consistance fluide-plastique avec des inclusions de gravier jusqu'à 10%.
Le puits n° 2 d'une profondeur de 2,0 à 3,0 m (trou de fond) a révélé des loams gris de consistance plastique molle.
Sur la base de la description visuelle sur le terrain et des études en laboratoire, les dépôts quaternaires sont divisés en éléments géotechniques. 4 éléments géotechniques ont été identifiés.
Selon les matériaux des études d'ingénierie et géologiques réalisées par GSI LLC en 2012. les sols sur le chantier sont :
EGE-1 (p IV) - couche sol-végétative. Épaisseur 0,2-0,3 m.
EGE-2 (lg III) est un limon plastique fluide et lourd. Puissance 1,7 m.
EGE-3 (lg III) - limon plastique lourd, gris et souple. Puissance 1,0 m.
EGE-4 (lg III) - l'argile est légère, en plastique dur. Épaisseur 1,3-2,8 mètres.
L'activité corrosive des sols par rapport au carbone et à l'acier à faible teneur en carbone selon GOST 9.602-2005 est moyenne.
La profondeur normative du gel saisonnier est :
- pour les limons et argiles -1.50m.
Pour la période des opérations de forage, les eaux souterraines ont été notées à une profondeur de 3,0 m de la surface de la terre, un niveau stable a été noté à une profondeur de 1,0 m-1,3 m, ce qui correspond aux limites des marques absolues de 90,40-100,58 M.
Selon les conditions d'occurrence, de distribution, de nutrition et de rejet, les eaux sont des eaux souterraines. Les eaux ont une surface libre, ne sont pas sous pression et sont alimentées par infiltration des précipitations atmosphériques.
Le besoin de conception

La tâche principale des ingénieurs dans la conception des systèmes de gaz est d'assurer un approvisionnement ininterrompu en combustible de tous les appareils.
Dans le même temps, il est nécessaire de prendre en compte un certain nombre d'exigences pour les appareils et systèmes utilisant du gaz qui fournissent du gaz aux consommateurs.
Toutes les normes de conception sont indiquées dans une documentation technique spéciale - normes d'État, codes de pratique et ouvrages de référence. La connaissance de ces règles est l'apanage de spécialistes compétents.
C'est pourquoi la conception de l'alimentation en gaz ne doit pas être confiée uniquement à des spécialistes civils, mais également à des membres du personnel des services de conception.
Sans un projet approuvé et agréé par le service du gaz, il sera impossible de procéder à l'installation du système, et plus encore à son exploitation.
Conclusions et vidéo utile sur le sujet
Pour faciliter la compréhension des nuances de l'alimentation en gaz de votre chalet, nous vous recommandons de vous familiariser avec une petite sélection de matériel vidéo.
À propos de l'exécution des documents de raccordement au réseau de gaz et du coût de certains types de travaux :
La procédure pour effectuer des travaux sur la gazéification de la maison - les nuances de la connexion au pipeline principal:
Étapes de gazéification d'une maison privée:
Et enfin des conseils. Si l'autoroute est éloignée ou si les spécificités du relief posent des problèmes difficiles pour amener le pipeline sur le site, il existe une autre option pour fournir du "carburant bleu" à la maison - la gazéification autonome avec un réservoir de gaz.
Vous venez de terminer la gazéification de votre maison et souhaitez partager votre expérience avec d'autres propriétaires de maisons de campagne ? Laissez vos commentaires dans le bloc sous l'article - dites-nous combien cet événement vous a coûté, avez-vous fait quelque chose par vous-même ou avez-vous confié l'ensemble du travail à des spécialistes ? Quels tuyaux avez-vous recommandés pour la pose du gazoduc? De nombreux utilisateurs vous seront reconnaissants de vos conseils.
conclusion
Le système d'alimentation en gaz dans les bâtiments est utilisé pour le chauffage des locaux, le chauffage du liquide de refroidissement, la cuisson à domicile ou à l'échelle industrielle. La sous-section "Système d'alimentation en gaz" est incluse dans la documentation de conception pour la construction, la reconstruction ou la révision des installations. Lors de la conception, il est nécessaire de prendre en compte les conditions techniques de l'organisation de distribution de gaz, les règles de construction et les normes de sécurité incendie.
Commandez la conception d'un système d'alimentation en gaz auprès de Smart Way. Nous offrons les conditions de coopération les plus favorables, des prix abordables, une assurance qualité. Contactez-nous, nous consulterons gratuitement sur toutes vos questions !








































