- Vérification des joints de tuyaux
- Types de câblage de communication d'ingénierie
- Type 1. Câblage de type série
- Type 2. Câblage type collecteur
- Démantèlement de l'ancien système
- Raccordement aux réseaux d'égouts, quels documents sont nécessaires
- Démantèlement de l'ancienne canalisation
- Étapes de démontage
- 7 Pose de tuyaux internes de haute qualité - confort de vie
- Types de schémas de plomberie
- tee
- Collectionneur
- Avec prises traversantes
- Démantèlement de l'ancien égout
- Comptabilité et contrôle
- HMS, aquastop, filtre
- Câblage et installation interne
- Montage parallèle
- Montage en série
- Plomberie chez les particuliers
- Méthodes de pose de tuyaux
- Caractéristiques de montage
- Recommandations pour l'installation des toilettes
Vérification des joints de tuyaux
Pour vous assurer que les tuyaux sont hermétiquement connectés les uns aux autres dans un divorce et une colonne montante, vous devez procéder comme suit.
- Composez la salle de bain en fermant le trou de trop-plein.
- Relâchez les drains et ouvrez en même temps les vannes d'eau chaude et froide à pleine capacité.
- Bouchez le trou de vidange sur les toilettes. Il est pratique d'utiliser un piston pour cela.
- Remplissez les toilettes avec un seau d'eau à ras bord et ouvrez le drain.
- Demandez aux voisins d'en haut de vidanger l'eau pour vérifier l'étanchéité de la colonne montante.
Si le travail est effectué qualitativement, il ne devrait pas y avoir d'eau du tout au niveau des joints.
Ces travaux difficiles restent à faire pour remplacer le réseau d'égouts à l'intérieur de l'appartement. Si vous doutez que vous puissiez le faire efficacement et en peu de temps, contactez les experts. Après tout, les voisins ne viennent pas non plus attendre pendant que vous traitez les nuances du démantèlement de l'ancien et de l'installation d'un nouveau réseau sur place.
Types de câblage de communication d'ingénierie
Avant de concevoir le câblage, vous devez vous familiariser avec les variétés de telles structures existantes. Il n'y en a que trois. Et l'un, avec des prises traversantes, n'est pratiquement pas utilisé. Par conséquent, nous ne le considérerons pas.
Type 1. Câblage de type série
Pour sa mise en œuvre, des robinets sont réalisés à partir des colonnes montantes d'alimentation en eau froide et chaude, aboutissant au premier consommateur. Des tuyaux sont posés de celui-ci au second et plus loin. Chaque point de prélèvement est équipé d'un té, à l'une des prises dont le consommateur est raccordé.
En général, c'est un schéma très simple. Il ne peut être utilisé que là où le nombre de consommateurs d'eau est faible.
Cela est dû au fait qu'avec l'activation simultanée de plusieurs points de prise d'eau à la fois, la pression en eux s'affaiblit et peut ne pas être suffisante pour le bon fonctionnement de l'équipement. C'est le principal inconvénient du câblage série.
Cependant, pour les appartements avec une salle de bain et une petite quantité de plomberie usagée, cette option peut être la meilleure. Un inconvénient important du système est l'impossibilité d'éteindre l'un des appareils de plomberie pour le remplacer ou le réparer.
Le câblage en série est extrêmement facile à mettre en œuvre, mais pas très pratique à utiliser. Cependant, pour les petites salles de bains, cette solution peut être tout à fait acceptable.
Les avantages du câblage en série sont bien plus importants.Tout d'abord, c'est la simplicité de conception et d'installation. Il n'y aura pas de schémas compliqués, tout est très simple.
De plus, un tel câblage est considéré comme l'option la plus économique. La consommation de tuyaux et d'autres éléments sera nettement inférieure à celle des autres systèmes, les coûts d'installation sont également minimes.
Même un plombier novice peut gérer la conception et la disposition ultérieure d'un câblage cohérent, sinon en T.
Type 2. Câblage type collecteur
Le schéma de type collecteur implique le raccordement de chacun des consommateurs à la ligne principale. Pour cela, un élément spécial est utilisé, appelé collecteur - un appareil qui distribue les flux d'eau.
Dans une version plus complexe, et c'est le mieux, chaque sortie de collecteur est équipée d'une vanne d'arrêt. Le câblage de type collecteur peut être considéré comme l'option la plus pratique à utiliser. Il y a plusieurs raisons à cela.
Tout d'abord, l'absence de chutes de pression dans le système. Tous les consommateurs reçoivent la même bonne pression d'eau, même si tous les points de puisage fonctionnent simultanément.
Si la pression dans le système d'un appartement ou d'une maison privée, ou pour une raison quelconque, est trop faible, vous pouvez temporairement limiter l'alimentation en eau de l'un des consommateurs, par exemple les toilettes, afin d'augmenter ainsi la pression pour les autres.
Le câblage de type collecteur est plus pratique à utiliser que le câblage série. Dans ce cas, une ligne distincte va à chaque consommateur, ce qui garantit qu'il n'y a pas de problèmes de pression. Cependant, la conception et l'installation d'un tel système est plus complexe.
Deuxièmement, la possibilité d'éteindre les appareils de plomberie de l'alimentation en eau s'ils doivent être remplacés ou réparés.
Troisièmement, la fiabilité.En fait, un seul tuyau va à chaque consommateur, sans aucune connexion ni aucun autre élément. Une fuite ne peut apparaître que dans la zone du collecteur ou à proximité de l'appareil lui-même. Ici, il sera très facile à trouver. Pour cette raison, les tuyaux avec câblage de collecteur peuvent être installés en toute sécurité en utilisant une méthode cachée.
Quatrièmement, la facilité d'utilisation. S'il y a un problème avec un appareil de plomberie et qu'une fuite apparaît, par exemple, au niveau d'un mélangeur, vous n'avez pas besoin de ramper sous l'évier. Il suffit de fermer la vanne d'arrêt sur le collecteur menant à l'appareil défectueux et d'attendre l'arrivée de spécialistes.
Même une femme ou un enfant qui ne connaît pas les subtilités de la plomberie peut le faire. Dans ce cas, tous les autres équipements fonctionneront correctement.
Les professionnels recommandent d'utiliser des collecteurs avec des robinets d'arrêt pour l'installation dans les systèmes de plomberie. Avec leur aide, si nécessaire, vous pouvez facilement arrêter l'alimentation en eau d'une branche ou d'un appareil de plomberie nécessitant des réparations.
Cependant, le câblage du collecteur présente également certains inconvénients. Tout d'abord, cela coûtera plus cher au propriétaire que le circuit série, le montant. Cela est dû au fait que vous devez établir une branche pour chaque consommateur. Il faudra beaucoup plus de matériel.
De plus, l'installation de collecteurs et de vannes d'arrêt sera nécessaire si les distributeurs n'en sont pas équipés. Et le circuit lui-même sera beaucoup plus compliqué que le séquentiel.
Démantèlement de l'ancien système

Le remplacement des égouts commence par une colonne montante. C'est la section la plus difficile, les drains des appartements voisins la traversent, par conséquent, lors du remplacement du tuyau, il convient de demander aux voisins de ne pas utiliser l'égout pendant un certain temps. Le démontage se déroule comme suit :
- Ouvre l'accès au point d'amarrage de la colonne montante avec un site voisin. Cela peut nécessiter de casser une partie du sol.
- Une partie du tuyau en fonte est découpée par une meuleuse. S'il est totalement impossible de couper, il peut être cassé avec un marteau. Les travaux doivent être effectués avec soin, car un morceau de tuyau cassé peut rester à l'intérieur et bloquer tout le tuyau.
- Un té est installé au bas de la colonne montante près du sol. Le tuyau en plastique droit sélectionné pour la colonne montante est relié en haut au reste du tuyau en fonte à l'aide d'un manchon de transition. La fixation avec un té est réalisée par une cloche. L'étanchéité du joint est assurée par un anneau en caoutchouc et un mastic silicone.
- Le tuyau est fixé au mur avec des colliers. Dans la zone des douilles, le tuyau est fixé de manière rigide, à d'autres endroits, la fixation est flottante.
Une fois l'installation de la colonne montante terminée, procédez au câblage.
Raccordement aux réseaux d'égouts, quels documents sont nécessaires
Plan de maison terminé. Obligatoire, sur papier, un schéma de pose d'une canalisation d'égout doit être présenté. Ce processus est réalisé avec l'aide d'une société qui réalise une expertise géodésique.
Toutes les conditions techniques pour le raccordement à l'égout. Toutes ces questions sont prises en compte par l'organisation.
Le schéma sur lequel le plan sera indiqué, c'est en fonction de celui-ci qu'il faut raccorder l'égout. Ce document doit être fourni par un spécialiste qui conçoit et installe les fonctions techniques. Il s'appuie sur le cahier des charges, produisant ainsi un nouveau plan.
Le projet, qui est préparé dans le service des eaux, avec leur approbation. Ce processus est effectué par la direction architecturale.
Il est également nécessaire de rappeler une nuance principale. Avant de procéder à des travaux de construction, vous devez obtenir l'autorisation de vos riverains. Ils sont tenus de signer leur consentement. Si des questions supplémentaires se posent concernant le pipeline qui traversera les endroits où d'autres réseaux électriques ou thermiques ont déjà été posés, alors dans ce cas, il est nécessaire de prendre un autre permis. Il est nécessaire d'exiger un document spécial dans l'organisation. Si le propriétaire ne respecte pas certaines exigences, il devra payer une énorme amende.
Pour poser le pipeline vers l'autoroute centrale, vous devez obtenir une autorisation. S'il y a un puits à proximité. Le tuyau qui traversera le site jusqu'au puits sera dirigé selon une certaine pente et un certain angle. Pour déterminer la profondeur de pose avec précision, il est nécessaire d'utiliser les valeurs spéciales fournies par les données dans SNiP.
Il y a aussi un conseil principal à garder à l'esprit. Cette question concerne l'existence de courbes existantes sur la voie. Comme le montre la pratique, les virages sur la piste ne devraient pas exister, mais si un tel problème survient soudainement, il est alors nécessaire de tourner l'autoroute de quelques degrés, environ 90. Il est également recommandé d'installer un puits d'inspection. Puisque, dans ce cas, le puits remplit la fonction de contrôle de ce système.
Un rôle important est joué par le choix correct de la hauteur de creusement de la tranchée. Certains éléments doivent être pris en compte. Le diamètre du tuyau doit être supérieur au diamètre intérieur. La taille habituelle est jusqu'à 250 mm. Fondamentalement, des tuyaux d'un diamètre de 150 à 250 mm sont utilisés. Une fois que le spécialiste a décidé de la taille des tuyaux, il est nécessaire de creuser le fond de la tranchée.Dès que le processus est terminé, l'oreiller peut être fourni pour la pose du pipeline.
Démantèlement de l'ancienne canalisation
Pour effectuer les travaux de démontage de l'ancien et de montage d'un nouveau système d'égout, les outils suivants seront nécessaires:
- meuleuse ou scie à métaux;
- perceuse à percussion ou perceuse à percussion;
- un marteau;
- ciseau;
- clé;
- dossier;
- Ensemble de tournevis;
- pistolet de montage (s'il n'est pas disponible, vous pouvez utiliser le manche du marteau).
Étapes de démontage
Le démontage s'effectue dans l'ordre suivant :
Libérez complètement la pièce en accédant à tous les tuyaux.
Couper l'alimentation en eau.
Débranchez le tuyau du réservoir des toilettes avec une clé.
Desserrez les vis qui maintiennent les toilettes au sol. Retirez les toilettes.
Démanteler l'ancien système
A distance de la colonne montante, vous pouvez utiliser un marteau pour casser des tuyaux en fonte (la fonte est un matériau cassant).
Soigneusement, à l'aide d'une meuleuse ou d'une scie à métaux, démontez les tuyaux d'égout dans l'appartement adjacent au té d'entrée installé sur la colonne montante.
Nettoyez la douille du té d'entrée. Les restes de l'ancienne graisse doivent être enlevés.

Démontage de tuyaux en fonte
Vous devez être particulièrement prudent lors du démontage des tuyaux adjacents à la colonne montante, car une force excessive peut endommager la colonne montante et rompre l'étanchéité du système d'égout dans tous les appartements situés au-dessus et en dessous de vous.
7 Pose de tuyaux internes de haute qualité - confort de vie
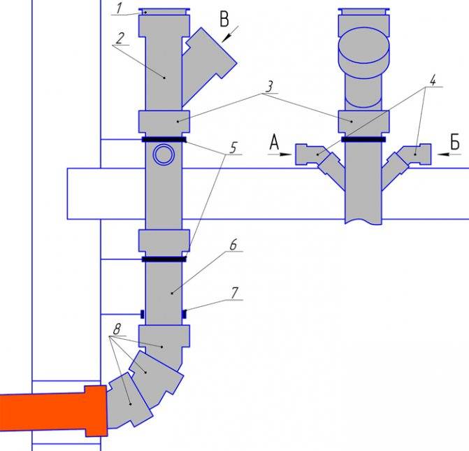
La zone limite entre les égouts internes et externes est la sortie - la jonction de la colonne montante avec un tuyau qui est relié à un réservoir pour stocker et traiter les déchets humains.Nous montons la sortie à travers la fondation: à l'aide d'un perforateur, nous faisons un trou correspondant au diamètre de la colonne montante. La profondeur de pose doit être inférieure à la profondeur de congélation du sol afin d'éviter les problèmes en hiver. Nous montons le tuyau placé dans le manchon. La longueur du manchon doit dépasser la longueur du trou, de chaque côté il doit dépasser d'au moins 15 cm Nous couvrons toutes les fissures avec une solution.
Nous commençons à poser les égouts internes à partir de la colonne montante. S'il n'y a pas de puits spécialement préparés pour les communications dans la maison, nous plaçons la colonne montante dans le coin de la salle de bain, près du mur. Le lieu de coupe pour la pose des tuyaux doit être posé avec du mortier. Nous assemblons la colonne montante de bas en haut, tout en veillant à ce que la douille des tuyaux soit dirigée vers le haut. Nous installons une inspection à chaque étage pour nettoyer les tuyaux s'ils sont bouchés. Il doit être à plus d'un mètre du sol.
Il est impossible d'assembler une colonne montante à partir de buses de diamètres différents, elle doit être strictement verticale, sans pentes. Après l'installation, la colonne montante peut être recouverte d'un matériau d'insonorisation et lui donner un aspect esthétique. Il peut être monté dans une niche, un canal ou une boîte. Si la colonne montante est située dans une pièce non chauffée, il est nécessaire d'effectuer des travaux sur son isolation thermique. S'il est nécessaire d'installer une colonne montante supplémentaire, un té oblique avec un angle de 45 degrés est monté et une sortie supplémentaire est installée.
En plus de la colonne montante, il est nécessaire d'installer un tuyau de ventilateur - une continuation qui mène au toit. Il est installé sur la colonne montante, à la jonction, vous devez monter une révision. Le tuyau du ventilateur est amené au grenier sous une pente.Il doit être situé à une distance de plus de 4 mètres des fenêtres et des portes, à différents niveaux avec une cheminée et des tuyaux de ventilation. Les tuyaux de ventilation pour les égouts doivent dépasser d'au moins 70 cm au-dessus du toit.L'organisation de la ventilation du système d'égout vous permet de vous débarrasser des odeurs désagréables possibles avec l'accumulation de gaz et d'air pollué.
Pour passer d'un drain vertical à un drain horizontal, nous installons des raccords avec un angle de 45 degrés, cela réduira la pression de la pression de l'eau sur les tuyaux lors de la vidange. Pour évacuer l'eau des baignoires et des lavabos, nous utilisons des tuyaux d'un diamètre de 50 mm. Les tuyaux doivent être amenés à la colonne montante avec une pente de 2-3 cm pour chaque mètre de longueur. Nous fixons les tuyaux avec des colliers spéciaux de la taille appropriée.
À l'intersection des éléments provenant de la douche, des lavabos et des baignoires, nous montons un tuyau collecteur d'un diamètre de 10-11 cm.Nous installons des joints d'étanchéité tout au long du pipeline pour empêcher la pénétration d'odeurs désagréables dans les pièces d'habitation. Son appareil a un design similaire, diffère par la taille. L'eau agit comme un bouchon pour la pénétration des odeurs. Si le système d'égout est inactif pendant une longue période, l'eau s'évapore et le joint hydraulique perd ses performances.
Types de schémas de plomberie
En pratique, le câblage s'effectue de trois manières :
- en utilisant des tees-distributeurs - séquentiels;
- par le collecteur
- avec éléments de passage - prises.
Le choix du schéma de distribution d'eau dans l'appartement dépend des besoins individuels du propriétaire et des caractéristiques de conception de la pièce. Dans certains cas, il convient d'utiliser en même temps un câblage série et collecteur.
tee

Ce schéma de distribution d'eau dans un appartement est basé sur le transport d'eau froide et chaude via deux canalisations centrales. Aux emplacements des points de prise d'eau, à l'aide de tés, des branches sont montées à travers lesquelles l'eau atteint le consommateur.
Étant donné qu'après le début de l'écoulement de l'eau à travers n'importe quel robinet, la pression du liquide dans la conduite diminue, le tuyau central est sélectionné avec un diamètre supérieur aux dimensions internes des sorties.
De plus, il est nécessaire de positionner correctement les joints des tuyaux. Il est préférable de les disposer dans des endroits à l'abri des regards. Par exemple, dans les parties fermées des éviers, des baignoires, des niches murales. Là, les connexions seront disponibles pour l'entretien, mais ne gâcheront pas l'apparence de la pièce.
L'inconvénient de la connexion série est la coupure complète de la branche de l'entrée en cas de réparation. Pour résoudre ce problème, des vannes d'urgence supplémentaires peuvent être installées, mais une augmentation de leur nombre entraîne une diminution de la pression. De plus, le schéma en té se caractérise par l'étanchéité des joints dans les murs. Si le tuyau fuit, vous devrez démonter la finition et casser le mur.
Le câblage en série sera inefficace dans les pièces avec un grand nombre de points d'eau sur une branche. Dans une telle section, une chute de pression se produira inévitablement aux points les plus éloignés de l'entrée, surtout lorsque plusieurs appareils fonctionnent simultanément. Ces fluctuations peuvent entraîner une défaillance de l'équipement.
Collectionneur

Il est plus rentable d'utiliser un système de collecte pour la distribution d'eau dans le cas d'un grand nombre d'unités d'alimentation en eau dans un appartement.
La principale différence avec la version en T est l'utilisation d'un collecteur. De la colonne montante centrale, l'eau est fournie au collecteur et de celui-ci à chaque appareil de plomberie individuel. Grâce à cela, il est réparti uniformément. Par conséquent, la pression dans le pipeline ne diminue pas aux points les plus éloignés de l'entrée.
Si des réparations sont nécessaires, seule la branche endommagée est coupée, et non toute l'alimentation en eau. Pour la même raison, chaque branche peut être montée de façon unique pour les besoins d'un seul consommateur. Il peut être nécessaire d'installer des filtres supplémentaires dans la zone qui alimente en eau la machine à laver. Et pour le fonctionnement de la cuvette des toilettes, ils ne seront pas nécessaires.
Des collecteurs séparés sont achetés pour la distribution d'eau chaude et froide. Entre eux et les colonnes montantes, des robinets sont installés pour arrêter l'alimentation en eau en cas d'urgence ou lors de réparations.Les consommateurs reçoivent de l'eau des collecteurs, et de l'eau chaude et de l'eau froide sont fournies au bain, aux éviers. Aux toilettes et à la machine à laver - uniquement du froid, et au porte-serviettes chauffant - uniquement de l'eau chaude.
S'il y a beaucoup de points de prélèvement, plusieurs consommateurs peuvent être connectés à une branche du collecteur dans un schéma en T.
Avec prises traversantes

Une prise traversante est un raccord en forme de coude avec un coude à 90°, avec lequel vous raccordez l'arrivée d'eau dans l'appartement. La conception des prises comprend des supports pour la fixation au mur, des filetages côté connexion consommateur et des entrées à souder avec un tuyau à travers lequel l'eau est fournie.
Pour connecter des mélangeurs, des prises doubles sur la barre sont produites. Ces connecteurs sont utilisés pour les robinets de la salle de bain ou de la cabine de douche. Un inconvénient important est la complexité de l'installation - vous devez souder deux tuyaux en même temps.
Démantèlement de l'ancien égout
Pour préparer la base de l'installation d'un nouvel égout, vous devez démonter l'ancien système d'égout.
Il est souhaitable d'effectuer le démantèlement de l'égout dans l'appartement par étapes.
Étapes du démantèlement de l'ancien égout:
- Vous devez d'abord couper l'eau.
- À l'aide d'une clé à molette, débranchez le tuyau qui conduit l'eau au barillet de la chasse d'eau.
- Dévissez les boulons de fixation de la cuvette des toilettes et démontez-la.
- Videz la salle de bain. Pour ce faire, vous devez retirer tous les appareils de plomberie.
- Démonter le système d'égout précédent.
- Démontez les tuyaux qui sont attachés à la colonne montante.
- Nettoyez la douille en T. Pour installer un nouveau brassard, vous devez vous débarrasser des restes de l'ancienne graisse, car cela peut devenir un obstacle à l'installation de qualité d'un nouveau système d'égout.
Ce sont les principales étapes du démantèlement de l'égout
Cependant, vous devez d'abord faire attention au câblage de l'égout dans la pièce.
Comptabilité et contrôle
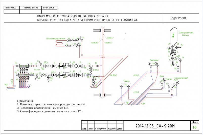
L'unité de sélection et de comptabilisation se compose d'une vanne d'arrêt, d'un filtre grossier, d'un compteur d'eau et d'un clapet anti-retour. Assemblé comme indiqué sur l'image. Chacun des appareils indique le sens de l'écoulement de l'eau pour celui-ci, il doit être respecté lors du montage.
Unité de distribution d'eau à comptabilité sélective, assemblage
L'ensemble est assemblé avec imperméabilisation des joints avec du ruban FUM et est également relié à la colonne montante, après avoir préalablement bloqué l'eau; N'oubliez pas de fermer le robinet d'arrêt avant de fournir de l'eau. C'est la seule opération, et de courte durée, qui nécessite de couper l'alimentation en eau des voisins dans la colonne montante.
Des compteurs séparés sont nécessaires pour l'eau froide et l'eau chaude. Il est hautement souhaitable que les compteurs et les poignées de vanne soient mis en évidence en couleur.Les relevés de compteur doivent être clairement lisibles sans aucune opération supplémentaire (enlèvement de trappe, etc.), il est donc souvent nécessaire de pré-assembler une partie d'une canalisation intégrale, parfois d'une configuration assez bizarre, pour connecter les appareils de mesure à la colonne montante. En plus des tuyaux et d'un fer à souder, cela nécessitera des raccords de transition du plastique au métal MPV - un raccord intérieur fileté. Le plastique est connecté aux unités de dosage à l'aide de MRN - raccords filetés externes.
Les compteurs sont vendus scellés, mais cela ne signifie pas que vous pouvez immédiatement appeler le service des eaux et payer l'eau aux frais. Le sceau d'usine est pour cela (la terre russe est riche en artisans) afin que personne n'entre dans le compteur et ne torde ou ne lime quoi que ce soit là-bas. Le sceau d'usine doit être protégé; sans lui, le compteur est considéré comme inutilisable, ainsi que sans certificat.
Lors de l'installation de compteurs d'eau, vous devez déclarer au service des eaux et appeler son inspecteur. Vous pouvez utiliser de l'eau avant son arrivée, l'inspecteur n'a pas besoin de lectures nulles, il notera les lectures initiales, scellera le compteur et vidangera le filtre avec son sceau. Le paiement de la consommation d'eau ira après l'enregistrement des appareils de mesure.
HMS, aquastop, filtre
Bien que la conception du HMS ne soit pas séparable et ne permette pas de voler de l'eau avec son aide, et que cet appareil ne soit pas soumis à l'étanchéité, la connexion du HMS au compteur est inacceptable: la roue du compteur peut se boucher avec des boues. HMS avec un filtre à ballon est connecté après les appareils de mesure ; filtre - immédiatement après HMS. Un aquastop peut être branché immédiatement après le filtre, mais s'il est électrodynamique, le champ magnétique du HMS peut provoquer son faux fonctionnement, mais cela n'a aucun sens d'attribuer l'aquastop loin de la colonne montante : il ne réagit pas à une percée avant ce.
Câblage et installation interne
L'installation de tuyaux à l'intérieur de la maison est une étape importante et cruciale. Il est vraiment possible de faire l'installation de tuyaux de vos propres mains, mais en ne tenant compte que des caractéristiques de conception de la disposition des tuyaux à l'intérieur de la maison.
Faire le bon agencement de tuyaux signifie vous simplifier la vie à l'avenir. Avec un câblage approprié pour n'importe quel tuyau, le risque de destruction est réduit, sa réparation est extrêmement rare et le rendement utile est amélioré.
Il existe deux principaux types de distribution des systèmes d'approvisionnement en eau dans les maisons privées. Il y a une panne :
- parallèle;
- cohérent.
Le câblage parallèle convient mieux aux grandes maisons, où les tuyaux divergent dans de nombreuses pièces éloignées les unes des autres. Sequential convient aux immeubles de type appartement, où les salles de bains sont situées de manière compacte.
Montage parallèle
Le schéma de pose de tuyaux parallèles prévoit l'installation de nombreuses branches dont le diamètre est égal aux valeurs minimales, à savoir qu'il ne dépasse pas la marque de 30 à 40 mm, sauf dans de rares cas.
Le petit diamètre du tuyau a un effet positif sur les économies de coûts. Le point ici est que le câblage parallèle prévoit la nécessité de créer de nombreuses branches d'alimentation en eau parallèles. Chaque branche sert sa direction spécifique. Il y a un ou deux nœuds par branche.
Les branches sont isolées les unes des autres, l'entrée est effectuée dans la chaufferie, où elles sont connectées à la sortie du collecteur fini. Des grues sont montées à chaque sortie, permettant de couper n'importe quel tuyau de l'alimentation.
Un tel schéma vous permet de créer le pipeline le plus sûr et le plus autonome. Chaque tuyau fonctionne séparément, la rupture dans n'importe quelle zone est facilement localisée.
Mais en même temps, un schéma de câblage parallèle, même en tenant compte du fait que le diamètre minimum des tuyaux est requis pour cela, nécessite des fonds importants, car chaque branche doit être posée, ce qui coûte de l'argent.
Montage en série
Le schéma séquentiel adopte une approche légèrement différente. Il a un ou deux tuyaux de base dont le diamètre commence à 80 mm. Ces tuyaux sont une sorte de grappes, ils traversent tous les locaux avec sanitaires.
À l'emplacement de la salle de bain, une branche plus petite est déviée du tuyau principal, dont le diamètre est calculé en fonction de la demande en eau d'un appareil particulier.
Plus le diamètre est grand, plus le nœud recevra d'eau. Un circuit en série est une option plus traditionnelle. Les eaux usées sont collectées selon le même système.
Le grand diamètre des tuyaux augmente légèrement leur coût, mais cette approche est toujours moins chère que la parallèle, car au final, vous économisez sur la longueur des tuyaux.
Plomberie chez les particuliers
- Des tuyaux préparés sont posés dans la maison, à partir des consommateurs d'eau.
- Les tuyaux sont reliés au point de consommation avec un adaptateur afin qu'un robinet puisse être installé pour couper l'eau.
- Les tuyaux sont posés au collecteur. Il est conseillé de ne pas faire passer les tuyaux à travers les murs, ainsi que les cloisons, et si cela doit être fait, les enfermer dans des verres.
Pour faciliter les réparations, placez les tuyaux à 20-25 mm des surfaces murales. Lors de l'installation des robinets de vidange, créez une légère pente dans leur direction. Les tuyaux sont fixés aux murs avec des clips spéciaux, en les installant sur des sections droites tous les 1,5 à 2 mètres, ainsi que dans tous les joints d'angle. Les raccords, ainsi que les tés, sont utilisés pour combiner des tuyaux à des angles.
Lors du raccordement des tuyaux au collecteur, des vannes d'arrêt sont toujours installées (elles sont nécessaires pour les réparations et la possibilité de couper la consommation d'eau).
Méthodes de pose de tuyaux
Il existe deux méthodes de pose :
- ouvert. Les tuyaux sont fixés au mur à l'aide d'éléments de support spéciaux (colliers);
- caché. Dans les murs (parfois dans le sol), des évidements sont pratiqués dans lesquels des tuyaux sont posés.
La première option se trouve dans les maisons aux murs relativement minces qui ne permettent pas de faire des évidements. Cette méthode est plus simple, mais lors de la finition, vous devrez cacher le câblage derrière des conceptions spéciales. Le plus souvent, les boîtes sont constituées de cloisons sèches ou d'un autre matériau en feuille, sur lesquelles une finition est installée. Les boîtes occupent l'espace de la pièce, gâchent la forme uniforme des murs. Lors du montage, il est nécessaire de penser à l'avance à la possibilité d'un démontage rapide pour les réparations urgentes. De nombreux propriétaires d'appartements ne tiennent pas compte du risque de fuites ou d'autres problèmes lors des réparations. Dans les situations d'urgence, ils doivent casser la finition et ensuite la restaurer, en dépensant de l'argent et du temps.
Avec une installation cachée, le plan des murs et l'espace de la pièce sont conservés intacts. Cependant, la pose d'une finition murale (généralement du carrelage) rend impossible l'accès aux canalisations. Il est impossible de prévoir la possibilité d'un démontage temporaire de la dalle. Cela pose des exigences particulières pour le montage et la qualité des connexions. S'il y a des fuites, elles ne seront pas remarquées immédiatement. Parfois, les voisins du rez-de-chaussée, qui ont gravement endommagé des réparations coûteuses, en informent. Par conséquent, il est nécessaire d'effectuer toutes les connexions avec beaucoup de soin, sans la moindre erreur.
Le choix d'une méthode ou d'une autre est l'apanage du propriétaire de l'appartement.Il est nécessaire de bien peser le pour et le contre de chaque option, en tenant compte de la configuration de l'appartement, du type et de la composition du câblage. Habituellement, l'épaisseur des murs devient le critère principal - s'ils le permettent, ils font une installation cachée.
Caractéristiques de montage
En fait, la plupart des informations ont déjà été données, il ne reste plus qu'à assembler les composants achetés conformément à
avec une idée de conception.
Les tuyaux sont assemblés depuis la colonne montante (tuyau d'entrée) vers le consommateur. En d'autres termes, les tuyaux sont installés en premier, ce qui
plus près du point de rejet dans la colonne montante de la maison commune.
À chaque connexion, le tuyau doit pénétrer dans la douille du précédent d'environ 50 mm. Si les poignets de la cloche sont trop
dense et il est impossible d'insérer un robinet, alors vous devez lubrifier les poignets avec du savon liquide ou du détergent - cela fonctionnera
beaucoup plus facile.
Les tuyaux en plastique sont coupés par n'importe quel moyen improvisé: une meuleuse, une scie à métaux pour le métal. Vous pouvez même couper
avec une scie à bois ordinaire. L'essentiel est de nettoyer le bord coupé de toutes sortes de bavures - les bavures à l'intérieur du tuyau
provoquer un blocage, et les bavures à l'extérieur ne vous permettront pas d'assembler correctement les pièces.
Certains artisans pratiquent l'application de silicone sur les poignets des pièces assemblées - soi-disant le joint est encore plus
scellé. Je voudrais noter que les raccords de manchette dont tout tuyau d'égout en plastique est équipé
font très bien leur travail sans silicone. Par conséquent, il est toujours recommandé de s'abstenir de performances amateurs.
Dans certaines situations, il est nécessaire de fixer deux pièces ensemble afin que pendant le fonctionnement l'une ne sorte pas de l'autre.
Il est catégoriquement impossible de le faire à l'aide de vis autotaraudeuses, que certains maîtres tordent à l'extrémité de la douille. Collage
à l'intérieur du tuyau, la pointe acérée de la vis autotaraudeuse recueillera les cheveux et provoquera un blocage. Si, pour une raison quelconque, les objets collectés
l'ensemble subit des contraintes mécaniques "pour le désamarrage" - vous devez fixer les deux pièces avec des supports ou d'autres
méthodes de fixation.
Pour former et contrôler les pentes de tuyau requises, il est très pratique d'utiliser un niveau laser. En construisant une horizontale
la poutre est légèrement plus haute que la chaise longue horizontale, vous pouvez contrôler la pente en substituant un ruban à mesurer sur les zones contrôlées et
comparer les distances entre le tuyau et la poutre.
Sur ce, en principe, et tout. Nous avons examiné les principaux points de l'installation des égouts dans la salle de bain, j'ajouterai peut-être quelque chose
avec le temps.
Noter cet avis:
- Actuellement 4,78
Note : 4,8 (63 votes)
Recommandations pour l'installation des toilettes
Le modèle de toilette le plus populaire est celui au sol. Si le sol de la salle de bain est recouvert de carreaux de céramique, vous devez placer quelque chose de doux sous les toilettes, par exemple un morceau de linoléum ou de caoutchouc. Pour connecter les toilettes à l'égout, vous devez utiliser un brassard spécial. Une extrémité est reliée à la sortie des toilettes et l'autre au tuyau d'égout.
La cuvette des toilettes est fixée au sol avec des goujons spéciaux, qui sont insérés dans des chevilles fixées dans des trous préfabriqués.

La toilette est généralement vendue déjà assemblée. Il vous suffit de le fixer au sol et de le raccorder à l'alimentation en eau et aux égouts.
Dans certains cas, les toilettes sont collées au sol avec de l'époxy. Dans ce cas, les toilettes ne doivent pas être utilisées pendant environ 12 heures jusqu'à ce que l'adhésif ait complètement durci.









































