- Types et caractéristiques de conception des ventilateurs de toit
- pour hotte
- Pour éliminer la fumée
- Évacue la fumée horizontalement
- Ventilateur axial
- Diagonale
- Radial
- Procédure d'installation des ventilateurs axiaux industriels
- But et caractéristiques du choix des ventilateurs d'extraction de fumée pour les toits
- Champ d'application
- Types de ventilateurs : comment choisir ?
- Recommandations pour l'installation et la fixation
- Caractéristiques des ventilateurs de toit
- Les ventilateurs axiaux peuvent être installés de plusieurs façons :
- Installation murale et sur fenêtre de ventilateurs axiaux
- Installation de ventilateurs axiaux au plafond
- Installation d'un ventilateur axial dans un conduit
- Ensemble de passage de tuyau de ventilation
- 2 Le bon choix de puissance est un gage de sécurité et de consommation optimale des ressources
- 2.1 Installation de ventilateurs de désenfumage : ce qu'il faut savoir
- 1 Principaux types de ventilateurs de toit
- Conclusions et vidéo utile sur le sujet
Types et caractéristiques de conception des ventilateurs de toit

Les systèmes de toiture de ventilation peuvent être classés en fonction de leur objectif.
pour hotte
L'appareil comprend un moteur électrique, un régulateur automatique et des mécanismes qui réduisent les vibrations de l'appareil.
De plus, les ventilateurs d'extraction de type toit sont équipés d'un déflecteur pour protéger contre les précipitations et de capteurs thermiques qui protègent contre la surchauffe.
Pour éliminer la fumée

Le plus souvent, des systèmes de ventilation de toit sont utilisés à cet effet.
Le dispositif de désenfumage est de deux types :
Il évacue verticalement le flux d'air avec les produits de combustion. Des appareils de cette conception sont installés s'il est nécessaire de se débarrasser des gaz contenant des impuretés nocives, de la fumée et des produits de combustion.
Le ventilateur doit être installé horizontalement afin que l'axe de rotation soit vertical. Ce type d'appareil doit être protégé de l'humidité entrant dans le boîtier.
Pour ce faire, vous pouvez utiliser un capuchon de protection ou un revêtement imperméable.
Évacue la fumée horizontalement

Mais la plupart des modèles de systèmes de ventilation avec désenfumage pour toitures fonctionnent selon deux modes :
- urgence (s'allume automatiquement lorsque les capteurs sont déclenchés en cas d'incendie, de fuite de gaz, etc.) ;
- standard (le ventilateur remplit la fonction d'aération de la pièce).
Les appareils de ventilation peuvent également être divisés en types selon l'appareil.
Ventilateur axial

Ce type d'équipement de ventilation est le plus courant. Pour le fonctionnement de l'appareil, il n'est pas nécessaire d'installer une structure de conduits d'air.
Un système axial est une hélice avec des pales dans un carter de protection qui tourne autour d'un axe. La base de l'appareil est un moteur électrique qui contrôle le mouvement des lames.
Pendant le fonctionnement de l'appareil, une zone de basse pression est créée, tandis que l'air stagnant est aspiré hors de la pièce.
Les ventilateurs axiaux sont le plus souvent en acier à haute résistance, qui n'est pas affecté par l'humidité et possède des propriétés anti-corrosion. La roue du mécanisme est en alliage d'aluminium.
Diagonale

Cette vue est une version améliorée du ventilateur axial.Il se compose d'un boîtier robuste dans lequel se trouve la roue à aubes.
En raison de leur forme, l'appareil aspire l'air le long de l'axe et le restitue en diagonale.
Grâce à cela, le ventilateur est pratiquement silencieux et a des performances élevées.
Radial

Le ventilateur est fait d'un matériau à haute résistance qui résiste à la corrosion et aux attaques chimiques. Cette conception peut être utilisée dans des pièces contenant des substances chimiquement agressives et une humidité élevée.
Une caractéristique distinctive de l'appareil est que ses pales incurvées ont une forme aérodynamique spéciale. L'air est éliminé en raison de la force centrifuge générée lors de leur rotation.
Les ventilateurs radiaux sont très puissants, ils vibrent et font beaucoup de bruit pendant le fonctionnement. Pour cette raison, ils sont beaucoup plus souvent utilisés dans les locaux industriels que dans les locaux résidentiels.
Un ventilateur avec un moteur à deux ou trois vitesses ajuste lui-même les performances en fonction de la saison et des conditions générales. Il est principalement utilisé pour le désenfumage et dans le cadre d'un système de ventilation générale.
Les modèles automatisés régulent indépendamment la vitesse de rotation du moteur, en fonction des performances des capteurs, à l'aide de programmes installés. De tels appareils peuvent réduire considérablement la consommation d'énergie.
Pour une protection supplémentaire des appareils contre les précipitations atmosphériques, lorsqu'ils sont installés sur le toit, des capuchons de protection sont utilisés.
Il est important de choisir et d'installer correctement cet élément, car son emplacement peut modifier la pression produite par la roue et augmenter les performances de l'appareil.
Procédure d'installation des ventilateurs axiaux industriels
Le dispositif d'échappement de type axial est conçu pour fournir une quantité d'air importante avec une faible résistance aérodynamique du réseau d'air. Le ventilateur axial est constitué d'une roue et de pales fixées sur le moyeu. La roue est montée directement sur le moteur électrique du ventilateur axial. Lorsqu'il tourne, il capte les courants d'air, les tire et les déplace dans le sens axial. Les ventilateurs axiaux peuvent fonctionner en mode inversé, c'est-à-dire pour l'extraction et le soufflage. Par rapport aux unités radiales et diamétrales, les unités axiales ont un rendement plus élevé.Les unités de ventilation sont fournies en tant qu'éléments d'unités d'extraction ou d'alimentation, ainsi que de manière indépendante. Sur rendez-vous, il y a général, ménage, spécial. Les appareils à usage général sont utilisés pour déplacer l'air dans des systèmes propres ou légèrement pollués. Valeur spéciale pour l'air contenant des impuretés agressives. Ce sont des ventilateurs d'extraction de fumée, des ventilateurs de mine, des tours de refroidissement, etc.. Des exemples d'utilisation domestique du type de ventilateur axial le plus simple comprennent des unités d'extraction pour salles de bains, sanitaires, ainsi qu'un ventilateur de table ordinaire. d'un manchon, d'une turbine, d'un moteur et de pales . Les roues sont en plastique ou en métal, les pales sont en tôle ou par fonderie, les douilles sont soudées ou coulées. Les ventilateurs antidéflagrants sont faits de métaux différents : acier et laiton. Les lames sont fixées au manchon avec des tiges ou par soudure. Le nombre de pales dépend de la taille de l'unité et peut atteindre jusqu'à 50. Les unités de ventilation sont sélectionnées en fonction des nomogrammes de pression totale extraits des catalogues des fabricants.Le nombre de ventilateurs doit être déterminé de manière à ce que les valeurs de la pression totale du réseau et du débit d'air correspondent à l'efficacité maximale.
But et caractéristiques du choix des ventilateurs d'extraction de fumée pour les toits
Les locaux modernes se distinguent par la présence de toutes sortes de matériaux artificiels qui, malgré leur aspect pratique et esthétique, peuvent constituer un réel danger pour l'homme lors de la combustion. De plus, nous ne parlons même pas du feu lui-même, mais de la fumée et des fumées, qui ne contiennent pas d'émissions nocives en petites quantités.
La question de la prévention de l'accumulation de fumée est aujourd'hui vitale. Les ventilateurs d'évacuation des fumées sur les toits sont considérés comme une solution efficace au problème. La plupart de ces équipements sont installés dans des bâtiments présentant un risque accru d'incendie, par exemple des centres commerciaux et de divertissement, des entreprises industrielles et autres. Fonctionnellement, dans toute situation extrême, par exemple en cas d'incendie, l'appareil élimine rapidement la fumée, les gaz et autres composants nocifs contenus dans l'air de la pièce. Un ventilateur de toit pour une maison privée est également utilisé pour éliminer la fumée lors de l'utilisation d'équipements de chauffage domestique, par exemple des chaudières à gaz, des poêles, etc.
En règle générale, l'installation est effectuée dans des systèmes d'échappement, où ils peuvent fonctionner comme climatiseur, ainsi que dans un système de ventilation incendie. Cependant, il existe des cas où les ventilateurs d'évacuation des fumées de toit ne commencent à fonctionner qu'en cas d'incendie.
Champ d'application
Le plus souvent, les ventilateurs d'évacuation des fumées de toit sont installés dans les entreprises industrielles, les grands bâtiments publics, les centres sportifs et commerciaux et autres locaux présentant un risque d'incendie.

Ils sont conçus pour éliminer rapidement la fumée, les gaz et autres substances nocives dans l'air intérieur lors d'un incendie ou d'autres situations extrêmes. Dans les maisons privées, les ventilateurs peuvent être utilisés pour éliminer la fumée des poêles domestiques, des cheminées, lors de l'utilisation de chaudières à gaz.
Le ventilateur de toit télécommandé est monté dans les systèmes d'extraction, où il peut fonctionner comme climatiseur, ainsi que dans les systèmes de ventilation incendie. Parfois, le système peut être dans un état de repos et ne fonctionner qu'en cas d'incendie.
Types de ventilateurs : comment choisir ?
Il existe plusieurs types et types de systèmes de désenfumage :
- axial;
- diagonale;
- centrifuge.
Un ventilateur axial est une conception dans laquelle plusieurs pales montées sur un axe tournent à une certaine vitesse. C'est l'unité la plus utilisée aujourd'hui, car elle est simple en soi, tant techniquement qu'en maintenance de ce type. Les avantages de ce type de ventilateur pour le désenfumage incluent son rendement élevé.

types de ventilateurs de toit
Les ventilateurs diagonaux sont des ventilateurs axiaux avancés. La conception des pales sous cette forme se distingue par sa forme, grâce à laquelle la fumée entrante va dans une direction axiale, est évacuée en diagonale vers l'extérieur.
Les ventilateurs centrifuges ou radiaux, selon le principe de fonctionnement, ressemblent aux deux types précédents. Mais il existe des caractéristiques de conception qui les distinguent des autres types. L'air de ce type de ventilateur de désenfumage est aspiré par la force centrifuge, qui est formée par la rotation des pales de forme spéciale.

1 - surface de montage, 2 - ventilateur, 3 - rondelle de blocage (4 pièces), 4 - vis (8x50mm)
Comme vous pouvez le voir, tous les appareils fonctionnent selon le même principe - ils aspirent l'air avec la fumée de la pièce et l'évacuent dans l'atmosphère. Mais la présence de diverses caractéristiques de conception permet de les distinguer selon un certain nombre de paramètres techniques.
Le choix de l'un ou l'autre ventilateur d'extraction de toit est influencé par divers facteurs - les caractéristiques des locaux, les systèmes de climatisation et de ventilation de toit existants, l'alimentation, la toiture et l'ensemble du système de toiture, et bien plus encore.
Le ventilateur, comme tout appareil électrique, est sélectionné en fonction de plusieurs paramètres :
- fiabilité;
- Puissance;
- mise en place simple ;
- durée d'exploitation.
Tout d'abord, ils font attention à la puissance, car une unité puissante est capable de nettoyer rapidement l'air de la pièce, sauvant ainsi éventuellement plus d'une vie. Le choix dépend de la facilité d'installation des ventilateurs de toit, sur les tâches qui lui sont assignées et sur d'autres facteurs.
Il existe de nombreux acteurs bien connus sur le marché des équipements de ventilation
Comment choisir la meilleure option en termes de rapport qualité-prix ? Les experts du marché conseillent de prêter attention aux produits de la société suédoise SystemAir. Cette entreprise est reconnue comme le leader incontesté dans le domaine de la ventilation en Europe, en Asie et même dans les Amériques
Les ventilateurs de toit SystemAir sont présentés dans une large gamme sur le marché russe et sont capables de répondre aux besoins de tout client, tant en termes de puissance, de caractéristiques de conception que de portée.
Recommandations pour l'installation et la fixation
Vous pouvez installer la sortie de ventilation sur le toit de vos propres mains.L'emplacement d'installation du tuyau doit être choisi de manière à ce que, si possible, il traverse le grenier sans virages.En même temps, il ne peut pas traverser les chevrons, et plus encore la course de crête.
La meilleure option est lorsque la sortie du tuyau de ventilation se trouve directement au-dessus de la colonne montante interne de la gaine de ventilation ou du conduit d'air. Si cela n'est pas possible, un tuyau ondulé peut être utilisé pour le raccordement.
Le tuyau doit être connecté à la colonne montante strictement verticalement
Lors de l'installation de tuyaux ou d'un conduit d'évacuation, la plus petite distance autorisée par rapport à l'entrée d'air soufflé doit être prise en compte :
- horizontalement - 10m;
- verticalement - au moins 6m.
La hauteur du tuyau de ventilation est déterminée comme suit :
- s'il est situé près de la crête, l'ouverture finale du capot doit s'élever d'un demi-mètre au-dessus de la crête;
- s'il reste un mètre et demi à trois mètres jusqu'à la crête, le trou doit être au ras de celle-ci;
- si le tuyau est à plus de trois mètres du faîte, le trou est affiché le long de l'angle de 10 degrés par rapport à l'horizon avec le sommet sur le faîte du toit ;
- si la sortie de ventilation est située à côté de la cheminée, la longueur des tuyaux doit être la même;
- sur un toit plat, la hauteur du tuyau est calculée selon un tableau spécial, mais elle ne doit pas être inférieure à 50 cm.
Lors de l'installation d'un tuyau sur un toit en pente, la sortie de ventilation doit être placée aussi près que possible du point le plus élevé du toit - la crête. Dans ce cas, la plus grande partie du tuyau sera située dans le grenier ou le grenier, il sera protégé des forts changements de température et des rafales de vent.
La hauteur du tuyau de ventilation par rapport au toit est choisie en fonction de la distance par rapport au faîte. Ces conditions doivent être respectées afin que la sortie ne se retrouve pas dans la zone de remous.
Pour un toit plat, le rôle principal est joué par la géométrie du conduit, qui doit être situé directement sous la cheminée afin que l'air puisse sortir librement à l'extérieur.
Caractéristiques des ventilateurs de toit
Un autre élément du système de ventilation est le ventilateur de toit. À l'aide de ces appareils, l'air pollué évacué est évacué des locaux.
Ils sont principalement conçus pour fonctionner dans des systèmes de ventilation généraux sans conduits de ventilation, mais sont également utilisés avec des conduits d'air. Le principal avantage des ventilateurs de toit est que leur utilisation permet de réduire la longueur requise des conduits d'air.
Dans les régions à charge de vent faible et moyenne, vous pouvez installer un déflecteur girouette original et efficace. Il fera fonctionner le système même avec de légers coups de vent
Les variantes de ventilateurs de toit diffèrent par leurs dimensions, leur puissance, leurs performances et leur niveau de pression acoustique.
Les types communs suivants peuvent être distingués :
- des entretoises axiales aéroportées sont installées sur des bâtiments industriels ;
- KROV peut être utilisé dans les maisons privées ;
- VKRM et VKR sont connectés aux conduits d'air.
Quels sont les avantages des ventilateurs de toit :
- l'installation ne nécessite pas de pièce séparée;
- entretien simple;
- dans les modèles avec boîtiers articulés, l'accès aux pièces principales est facilité.
Lors du choix d'un ventilateur de toit, vous devez faire attention aux performances du modèle, au matériau du boîtier, au mode d'alimentation et au bruit généré. S'il n'y a pas de courant d'air dans le conduit d'évacuation, un ventilateur de toit est une bonne solution
Lors de l'utilisation de modèles à décharge verticale, l'air est projeté vers le haut, parfois jusqu'à plusieurs mètres de hauteur
S'il n'y a pas de courant d'air dans le conduit d'évacuation, un ventilateur de toit est une bonne solution. Lors de l'utilisation de modèles à décharge verticale, l'air est projeté vers le haut, parfois jusqu'à plusieurs mètres de hauteur
La plupart des produits sont fabriqués en version centrifuge ou axiale :
- Un ventilateur axial est utilisé pour pomper les masses d'air à basse pression. Le gaz se déplaçant à travers le rotor ne change pas de direction, se déplaçant le long de l'axe du moteur.
- Le ventilateur centrifuge est équipé de pales spéciales qui distribuent l'air sur les côtés, qui se déplace plus loin vers la sortie.
Les types de ventilateurs de toit sont divisés en fonction de la direction d'émission. Les ventilateurs à soufflage horizontal sont installés là où l'air extrait n'est pas pollué et où il n'y a aucun risque qu'il se mélange avec l'air frais entrant dans la maison.
Les ventilateurs de toit peuvent être installés sur différents types de toits. La technologie de l'unité de passage dans un toit rigide est simple. Une ouverture technologique est découpée dans le plafond et une fondation en brique pour le ventilateur est construite sur le puits de ventilation.
Pour simplifier les travaux d'installation, des verres spéciaux sont utilisés, qui sont parfois fournis avec des ventilateurs. Les verres ont des trous sur les brides de montage et sont fixés au toit avec des boulons d'ancrage. Le ventilateur et la vitre sont reliés par des brides boulonnées.
Entre les brides, il devrait y avoir un joint en caoutchouc pour une plus grande étanchéité. Le verre lors de l'installation doit être placé strictement verticalement. Le ventilateur sur le verre est monté à un niveau horizontal. Après l'installation, les éventuelles lacunes sont éliminées avec un scellant.Ensuite, un tablier en acier est installé.
Les ventilateurs axiaux peuvent être installés de plusieurs façons :
- mur ou fenêtre;
- plafond;
- dans le canal.
Installation murale et sur fenêtre de ventilateurs axiaux
Lors de l'installation de la ventilation dans la salle de production, les unités axiales sont installées à une hauteur de plus de 2 mètres. Pour soulever l'unité à la hauteur requise, des mécanismes de levage et des treuils sont utilisés.L'équipement est monté dans une ouverture faite à l'avance et encadrée d'un coin métallique dans une fenêtre ou un mur, et fixée avec des boulons. Les dimensions des ouvertures doivent correspondre aux dimensions du diamètre de la roue. Les ventilateurs de grande section sont montés sur des supports ou un cadre de support, ce qui réduit la charge sur le mur et assure la fiabilité de la structure. Des patins en caoutchouc d'une épaisseur d'au moins 7 mm sont posés sur le châssis pour réduire les vibrations et le bruit des équipements d'exploitation. Le ventilateur est fixé au support ou au cadre avec des boulons d'ancrage, qui sont serrés avec des contre-écrous. Cela est nécessaire pour protéger le système des précipitations, des oiseaux et des débris.
Installation de ventilateurs axiaux au plafond
Cette méthode d'installation est souvent utilisée lors de l'installation d'un ventilateur axial domestique dans les cuisines, les salles de bains et les toilettes. Les dispositifs d'échappement axiaux restent opérationnels dans n'importe quelle position, l'essentiel est de les installer conformément à la direction indiquée du flux d'air. Ils sont montés dans des plafonds suspendus ou tendus.Une extrémité du conduit d'air est reliée au ventilateur et fixée avec du ruban de montage, et l'autre extrémité est reliée au conduit de ventilation.L'installation d'unités axiales au plafond n'est pratiquement pas utilisée dans les locaux industriels. Une exception est l'installation d'unités de toit, dont la conception comprend un ventilateur axial. Ils sont livrés entièrement assemblés et disposent d'un soi-disant boîtier de montage. Les ventilateurs sont fixés à une coupelle en béton armé dans le toit, ce qui doit être prévu au stade de la conception. Le vitrage est installé en usine lors de la fabrication de la toiture.Lors de l'installation d'un ventilateur axial de toiture, l'étanchéité des joints entre le toit et le verre doit être assurée. Une vanne est montée sous le ventilateur du côté de la pièce ; lorsque le ventilateur est éteint, elle se ferme et empêche les refoulements d'air.
Installation d'un ventilateur axial dans un conduit
Les conduits d'air du réseau de ventilation, dans lequel l'unité de ventilation est installée, doivent maintenir une section droite devant l'entrée ou la sortie. La section doit avoir une longueur d'au moins 3 dimensions des sections de conduit. Ceci est nécessaire pour égaliser le débit d'air. Le non-respect de cette condition entraînera une diminution des caractéristiques aérodynamiques de l'unité Des travaux sur l'installation de ventilateurs axiaux à des fins spéciales sont effectués selon les exigences des normes techniques Voici les règles de base pour l'installation d'unités de ventilation axiale pour toute méthode d'installation.
- installer des ventilateurs axiaux de manière à assurer un entretien sûr et une réparation pratique ;
- l'installation de l'installation n'est effectuée qu'après le montage et un contrôle complet des performances;
- avec une disposition des conduits dans le conduit, une trappe pour les raccordements électriques et le suivi des travaux doit être prévue ;
- les paramètres du réseau électrique doivent correspondre aux caractéristiques du ventilateur ;
- le raccordement à l'alimentation doit être effectué conformément au schéma joint à l'équipement et aux solutions de conception ;
- les appareils doivent être mis à la terre.
Le travail avec l'équipement est effectué uniquement par des travailleurs qualifiés qui disposent de tous les permis nécessaires.
Ensemble de passage de tuyau de ventilation
Un évent de toit est un tuyau en métal ou en plastique qui s'insère dans un trou du toit. Le tuyau est fixé dans une coupelle en métal. Après son installation, le trou est scellé et isolé de l'extérieur et de l'intérieur. Par le bas, un conduit d'air est relié au nœud et un déflecteur est installé par le haut.
Il est plus pratique d'utiliser un raccord d'usine prêt à l'emploi pour monter le passage du tuyau de ventilation. Les fabricants de systèmes de ventilation proposent de nombreux modèles qui diffèrent par leur conception, leur forme et leur couleur. Pour chaque type de toit, leurs propres types de tuyaux de ventilation ont été développés.
Les tuyaux en acier galvanisé enveloppés dans une couche de polypropylène sont les plus demandés. Dans la partie inférieure d'un tel produit, il y a un joint et en haut, un capuchon avec un déflecteur.
Il est impossible de combiner les sorties des conduits d'air en une seule, sinon, en cas de conditions météorologiques défavorables, à la suite d'un courant d'air inversé, des odeurs désagréables se répandront dans toute la maison
Les caractéristiques d'installation de l'ensemble de passage du tuyau de ventilation dépendent d'un certain nombre de facteurs :
- du type de toit - complexe ou plat, simple ou à pignon;
- à partir de matériaux de toiture - tuiles métalliques ou céramiques, carton ondulé, tuiles souples, etc.;
- du coin du toit en pente.
L'étanchéité et l'isolation du toit sur le site d'installation de l'élément de passage doivent être effectuées avec soin. Si cela n'est pas fait, l'humidité pénétrera dans la couche d'isolation thermique de la tourte de toiture et dans la pièce par la jonction du tuyau avec le revêtement, ce qui entraînera la destruction des structures.
La jonction du tuyau de ventilation avec le toit doit être soigneusement scellée. L'étanchéité est réalisée en appliquant un matériau hydrofuge sur le passage et en appliquant du mastic silicone sous la bride de sortie de ventilation
Quelles sont les principales exigences pour le nœud de passage :
- les sorties des tuyaux doivent être strictement verticales afin que l'air ne rencontre pas d'obstacles lors de sa montée;
- pour chaque conduit d'air - de la hotte de cuisine, de la colonne montante d'égout, des salles de bain, il doit y avoir une sortie séparée vers le toit;
- la meilleure option est que les sorties d'échappement passent près du bord de faîte du toit, mais de sorte que la course ne soit pas perturbée et que l'ensemble du système de chevrons basé sur celui-ci ne soit pas affaibli;
- les raccords choisis doivent assurer le libre mouvement des masses d'air et l'étanchéité.
L'élément principal de l'ensemble de passage est la sortie - un raccord: un tuyau de dérivation avec une base métallique flexible, réalisée sous la forme d'une bride. Il est plaqué contre la toiture, donnant du relief au toit sur lequel il est monté. Lors du processus d'installation, la géométrie des matériaux de toiture utilisés est réalisée et le nœud est impeccablement scellé.
En vente, vous pouvez trouver différents types de produits façonnés qui facilitent et accélèrent l'installation d'une sortie de ventilation sur le toit. Peut être acheté séparément - une sortie pour la hotte, séparément - pour l'égout, etc.
Pénétration du toit : une installation appropriée assurera une étanchéité complète de la tarte de toiture
Il existe plusieurs types d'éléments de passage :
- Sans valve / avec valve. Les modèles sans valve sont parfaits pour aménager des sorties de ventilation dans une maison privée. Les vannes sont plus adaptées aux bâtiments industriels.
- Avec isolation / sans isolation. Dans les régions froides, il est préférable de choisir une sortie de ventilation avec isolation thermique. De plus, une isolation est nécessaire si le tuyau est placé près de l'avant-toit. Dans les régions aux hivers chauds, l'option sans isolation suffira.
- Avec contrôle manuel et automatique. Le choix dépend du budget de la conception. Les produits avec un câble pour régler la circulation de l'air sont très populaires auprès des propriétaires de maisons privées.
Pour un dispositif de pénétration de ventilation, vous ne pouvez pas acheter une pièce similaire pour une cheminée, car ils mettent en œuvre une protection contre l'incendie qui n'est pas nécessaire pour les sorties de ventilation.
2 Le bon choix de puissance est un gage de sécurité et de consommation optimale des ressources
En général, lors du choix de la puissance d'un ventilateur, il faut partir des indicateurs de leur fonctionnement en mode normal et d'urgence, ainsi que du volume des locaux. Choisir trop de ventilation de toit entraînera un gaspillage d'énergie inutile, et un système faible ne pourra pas aider en cas d'urgence.
Pour les bâtiments résidentiels, par exemple, les ventilateurs de toit axiaux sont idéaux, en raison des besoins en énergie relativement modérés, et aussi en raison de la facilité d'installation du verre pour eux. Ce type de ventilateur est également disponible dans la gamme de produits Veza.
Les ventilateurs Vkrn peuvent également être un excellent choix pour les bâtiments résidentiels et les bureaux, qui, grâce à la forme spéciale des pales, offrent un faible niveau de bruit. Et les caractéristiques de conception de ces systèmes vous permettent de placer les manchons de montage à proximité les uns des autres, augmentant ainsi le nombre de ventilateurs et leur puissance combinée.

Formes et types de ventilateurs de toit
Les installations industrielles et les grands halls de production nécessitent une ventilation de toit plus puissante. Ici, les systèmes d'abris radiaux, ou VKRN, viendront à la rescousse, capables d'assurer le niveau de circulation d'air nécessaire en mode normal, et ayant des capacités élevées en mode secours.
La qualité du système devrait être l'une des premières places. Ceux qui apprécient la fiabilité devraient examiner de plus près les ventilateurs de toit Systemair en tant que modèle de durabilité et de fiabilité. Pas inférieur à eux dans les systèmes de qualité et d'abri, la production nationale.
De plus, lors du choix d'un système de ventilation de toit, il faut partir des caractéristiques d'installation de chaque type, ainsi que du principe d'installation. Nous en parlerons dans la section suivante.
2.1 Installation de ventilateurs de désenfumage : ce qu'il faut savoir
Selon le principe d'installation dans le système de climatisation et la cheminée, les ventilateurs de toit sont divisés en types suivants:
- Canaliser. Ce type est monté à la sortie d'un conduit de ventilation traversant un bâtiment ou au sommet d'un puits de ventilation.
- Sans canal. Ils sont installés sur les toits de grands locaux de plain-pied, tels que des ateliers de production, des gymnases, des zones de vente au détail.
- Universel. Avoir la capacité d'être installé sur n'importe lequel des systèmes. Un exemple de tels ventilateurs de toit est le système krovdu.
Ceci doit également être pris en compte lors du choix d'un système de ventilation et de cheminée. Le bon choix assurera une fonctionnalité maximale et une efficacité élevée en cas d'urgence.
Étapes d'installation pour la ventilation du toit
En choisissant le bon type de ventilation de toit, en fonction des puissances requises, des caractéristiques de montage sur le toit, ainsi que du principe de fonctionnement de l'appareil, vous pouvez installer des ventilateurs de toit.

Ventilateur de toit dans la salle de production
L'installation d'un ventilateur de toit s'effectue en plusieurs étapes:
- Préparation d'un trou dans le toit pour l'installation du système. Ce type de travaux peut être réalisé selon le principe de la découpe du toit de la cheminée ;
- Installation d'une vitre sous le ventilateur. Il est à noter que le verre doit être monté exclusivement verticalement. Vous devez également tenir compte des charges possibles sur le toit pendant le fonctionnement du système ;
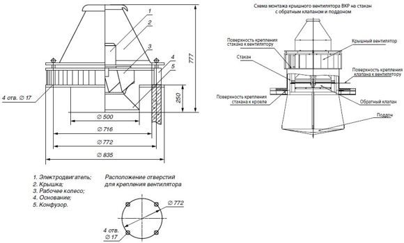
- Ensuite, un plateau de ventilateur de toit est installé. Il est attaché au verre;
- Fixation d'un clapet anti-retour. Dans cette procédure, le ventilateur est suspendu à l'aide d'un outil spécial. Afin d'éviter toute distorsion, il est strictement interdit d'abaisser le ventilateur lors de la connexion du clapet anti-retour ;
- Installation d'un ventilateur avec clapet anti-retour dans un verre;
- Fin des travaux d'installation. À ce stade, tous les espaces sont fermés avec du mastic. Pour exclure la possibilité de fuites de toit sur les sites d'installation du système, il est conseillé de réaliser une chape de ciment supplémentaire autour du verre et de poser une étanchéité.
La mise en œuvre correcte de toutes les étapes de l'installation, ainsi que le choix correct du type de ventilation du toit, vous permettront d'être sûr du fonctionnement de haute qualité du système, ainsi que du fait qu'il ne vous laissera pas tomber dans un environnement critique. situation.
1 Principaux types de ventilateurs de toit
Les types de systèmes d'échappement de toit se distinguent par le principe de fonctionnement des ventilateurs. Il existe trois types principaux :
Axial. Le type le plus courant, caractérisé par une conception simple et un prix abordable. Parmi la gamme de propositions, on peut distinguer un ventilateur de toit par le toit, fabriqué par la société Veza, comme une excellente option pour des produits de qualité à un prix relativement bas.

Flux d'air à travers le ventilateur de toit
- Diagonale. Il a une forme spécifique des pales, à la suite de quoi l'air d'admission entre parallèlement à l'axe du ventilateur et à la sortie de celui-ci - à un angle de 45 degrés. Un exemple frappant de la qualité des mécanismes de ce type peut être appelé les ventilateurs de toit systemair.
- Radiale (centrifuge). Ce type de ventilateur est équipé d'un rotor constitué de pales hélicoïdales. Le flux d'air dans ces ventilateurs pénètre dans le rotor, où les pales lui donnent un mouvement de rotation, et l'air, en raison de la force centrifuge, sort par l'ouverture du boîtier en spirale du ventilateur. Dans ce cas, le débit d'air de sortie est perpendiculaire à l'entrée. Ce type de ventilateurs de toit est largement utilisé dans les installations industrielles. Dans la gamme de produits de la société Veza, ce type de ventilateurs est également largement représenté, parmi lesquels, par exemple, la gamme de systèmes Vkrndu peut être distinguée.
La décision de choisir le type de ventilation du toit doit être prise en fonction du volume de la pièce, des caractéristiques d'installation de l'installation, ainsi que de la puissance requise du ventilateur.
Caractéristiques des appareils : performances, modes de fonctionnement, fonctionnalités de différents types
La ventilation en toiture n'a que deux modes de fonctionnement :
- Mode conditionnement.Dans ce cas, la ventilation du toit fonctionne à puissance minimale, facilitant la circulation de l'air dans la pièce.
- Mode d'urgence. Le mode dans lequel la ventilation du toit fonctionne à pleine capacité, pour le nettoyage le plus rapide de la pièce des gaz dangereux ou des produits de combustion. Selon le type, le mode d'urgence peut être activé manuellement ou automatiquement grâce aux capteurs intégrés au ventilateur. La préférence doit être donnée, bien sûr, aux systèmes de ventilateurs automatiques Vkrn fabriqués par Veza, car le facteur humain en cas d'urgence peut jouer un rôle négatif.

Conception de ventilateurs de toit axiaux et radiaux
Pour plus de clarté, considérons la différence de performance de l'un des modèles de ventilation de toit VKRH, fabriqué par Veza : en mode normal, ce système fournit une performance d'environ 2300 mètres cubes d'air par heure.
Lorsque le mode d'urgence est activé, le ventilateur de ce modèle est capable de pomper jusqu'à 130 000 mètres cubes par heure, permettant un nettoyage rapide de l'objet ou pompant de l'air hors de la pièce, ce qui laisse peu de chance d'incendie lorsque la ventilation d'entrée est fermée.
Conclusions et vidéo utile sur le sujet
Les grands fabricants de systèmes de ventilation produisent des instructions vidéo pour l'installation sur le toit et la fixation des unités d'alimentation et d'évacuation, des éléments façonnés, des aérateurs, des déflecteurs :
La disposition de la sortie par le toit jusqu'au toit du tuyau de ventilation de la maison doit être abordée avec une attention particulière. En effet, dans les systèmes de ventilation naturelle, la présence de traction dans le système dépend de l'état de ce nœud.
Ne laissez pas le tuyau s'inonder de pluie ou de glace
Par conséquent, une grande attention est accordée à l'étanchéité de l'ensemble lui-même et à l'installation de pièces de protection supplémentaires. De même, l'installation de dispositifs d'alimentation est effectuée.









































