- Comment puis-je mettre un réfrigérateur à côté d'une cuisinière à gaz
- Matériau d'isolation thermique
- Panneau de particules
- Laver à côté du poêle : les pros
- Pourquoi vous ne devriez pas les placer côte à côte
- Quelles sont les alternatives pour le placement du réfrigérateur ?
- Écran de protection en simple aggloméré
- Écran de protection avec tuiles
- Écran de protection avec film, miroir ou verre
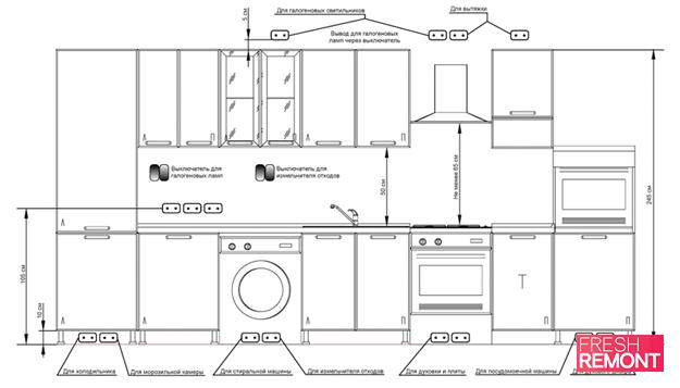
- Préparation réglementaire
- Emplacement pour l'installation d'une chaudière à gaz
- Normes d'installation selon SNiP
- Est-il possible de placer un réfrigérateur à côté d'un tuyau de gaz, que dira un spécialiste
- Le principe de fonctionnement du réfrigérateur et les facteurs de risque
- Est-il possible de placer un réfrigérateur à côté d'un tuyau de gaz - la réponse d'un spécialiste
- Pourquoi vous ne devriez pas placer votre réfrigérateur à côté de la cuisinière
- Cuisinière à gaz et réfrigérateur
- Cuisinière électrique et réfrigérateur
- Sortie
- Cuisinière à côté du réfrigérateur
- Pourquoi ne pas mettre un réfrigérateur à côté de la cuisinière ?
Comment puis-je mettre un réfrigérateur à côté d'une cuisinière à gaz
En effet, peu importe que vous ayez une cuisinière à gaz ou électrique, le chauffage de l'un ou de l'autre nuit à la technologie. Par conséquent, il est préférable de respecter la norme: la distance minimale entre la cuisinière et le réfrigérateur doit être d'environ 30 à 50 centimètres - c'est la taille d'un meuble de cuisine ordinaire.Bien sûr, plus cet écart est grand, mieux c'est, donc si possible, éloignez les équipements les uns des autres.
Si l'aménagement de la cuisine n'implique pas différentes options de placement, vous devrez réfléchir à la manière de séparer le réfrigérateur de la cuisinière à gaz. Un écran peut aider à cela - un matériau posé entre le carreau et le mur de l'appareil. L'écran résoudra le problème de la protection du réfrigérateur contre la cuisinière et les éclaboussures de graisse lors de la cuisson.
Matériau d'isolation thermique
L'une des options les plus économiques pour protéger l'unité consiste à y coller un matériau d'isolation thermique Fomisol ou Isolon PPE. Dépliez-le et placez-le soigneusement sur le mur de l'appareil. Pour vous simplifier la tâche, achetez tout de suite du matériel autocollant. Il y a un bémol : la partie supérieure chauffera encore un peu. Mais si vous avez une hotte et que vous l'utilisez constamment pour cuisiner, cet inconvénient n'est pas terrible.
Panneau de particules
Une autre option bon marché consiste à placer un panneau de particules entre les deux. Il peut être commandé dans la couleur souhaitée auprès de la même entreprise que la cuisine, de sorte que l'élément de protection ne soit pas différent du casque. Veuillez noter que l'aggloméré n'est pas un matériau très résistant, il craint l'humidité et la chaleur. Par conséquent, la durée de vie peut ne pas être très longue. Après quelques années, vous pouvez simplement en acheter un autre du même panneau, ce n'est pas si cher que ça.
Laver à côté du poêle : les pros
1. Tout est à portée de main. Plus les principaux composants de la cuisine sont proches, moins vous vous fatiguez. Lors de la préparation de quelque chose de complexe, nous prenons un grand nombre d'étapes. On peut dire qu'on va loin. Une cuisine ergonomique est une cuisine dans laquelle les propriétaires doivent faire le moins de gestes supplémentaires possible.
Il a versé de l'eau dans un récipient - et immédiatement sur la cuisinière. Il ôta la casserole de pâtes du feu et versa immédiatement l'eau bouillante dans l'évier.Plus besoin de traverser la cuisine avec des plats brûlants dans les mains.
2. Contrôle du processus de cuisson. Pendant que vous lavez et nettoyez quelque chose, le poêle est toujours en vue. Si quelque chose commence à s'enfuir ou à brûler, vous êtes là. Réduisez le feu, retirez le couvercle, remuez les aliments - tout est fait instantanément et à temps, car vous êtes à proximité.
Soit dit en passant, du point de vue de la sécurité, c'est aussi un plus. Si vous devez souvent vous tenir dos au poêle sur lequel quelque chose est en train d'être préparé, vous risquez de rater le moment de l'allumage.
3. Commodité dans la propreté. Le poêle, le mur qui le surplombe et la hotte sont les endroits les plus difficiles de la cuisine, les plus pollués. Il faut les laver souvent, en faisant parfois un effort. La proximité de l'eau, bien sûr, facilite ce processus.
Pourquoi vous ne devriez pas les placer côte à côte
Dans les instructions du fabricant, à la question de savoir s'il est possible de placer un réfrigérateur près du radiateur, une réponse claire est donnée : c'est impossible. Il y a plusieurs raisons techniques et pratiques à cela.
Les appareils ménagers de refroidissement à proximité et les appareils de chauffage des locaux peuvent entraîner des pannes d'équipement, même si la saison de chauffage dans votre région ne dure que quelques mois. Le radiateur à ce moment chauffera fortement la paroi arrière de l'appareil, qui est responsable du refroidissement. En raison d'une surcharge importante, le compresseur fonctionnera à sa limite et consommera trop d'électricité pour maintenir la température requise à l'intérieur des chambres. Et à la fin, cela contribuera à la panne.
Certains appareils n'ont pas de fonction de refroidissement constant : le moteur s'allume périodiquement et maintient la température requise. En cas de surchauffe, il devra le faire beaucoup plus souvent.D'autres appareils ne sont tout simplement pas capables de fonctionner avec une telle puissance, ils ne dureront donc pas longtemps dans de telles conditions, et pendant cette période, ils ne pourront pas stocker de nourriture dans le congélateur et les chambres communes.
Quelles sont les alternatives pour le placement du réfrigérateur ?
Vous pouvez toujours placer deux appareils de cuisine à proximité l'un de l'autre. Pour ce faire, un écran est placé entre eux. La cloison est choisie de manière à ce qu'elle ait des propriétés d'isolation thermique et soit facile à nettoyer.
Écran de protection en simple aggloméré

Le protecteur d'écran le plus simple. L'aggloméré a une conductivité thermique relativement faible et le stratifié est également facile à nettoyer.
La tâche principale sera de choisir ou couper une feuille de dimensions spécifiées. Pour éviter de tacher le matériau du panneau, il est préférable de décorer le bord latéral avec un ruban décoratif adhésif thermique.
Ceux-ci sont vendus dans les quincailleries. Afin de ne pas gâcher l'intérieur, il est préférable de choisir une finition en tôle en harmonie de couleur et de texture.
Écran de protection avec tuiles

Une variété plus avancée est la protection thermique. Les céramiques sont parfaitement lavables et collées sur des panneaux de particules, des panneaux OSB ou des cloisons sèches, elles offrent une protection supplémentaire contre la température.
Autre avantage : le carrelage a l'air organique dans la cuisine et il est plus facile de le choisir en fonction de la situation.
Après avoir collé à la feuille, il est extrêmement important de recouvrir soigneusement les joints entre les plaques individuelles, sinon l'humidité pénétrera entre elles, détruisant lentement la base.
Écran de protection avec film, miroir ou verre

Une manière luxueuse, pourrait-on dire royale, de protéger le réfrigérateur du chauffage avec une cuisinière consiste à installer un écran avec un miroir. Il fait le meilleur travail d'être une couche isolante en réfléchissant simplement toute la chaleur.Une surface excessivement éblouissante peut en outre être recouverte de verre dépoli ou ondulé.
Il existe une option moins efficace, mais beaucoup plus économique - utiliser une feuille d'aluminium au lieu d'un miroir comme isolant contre les effets thermiques. Le seul inconvénient sérieux de cette méthode est la faible esthétique de la surface résultante. Cependant, si le verre décoratif est utilisé ici aussi, en le plaçant devant la feuille, cet inconvénient est nivelé.
Préparation réglementaire
Pour faire sans problème, étudiez le document pertinent - SNiP 2.04.08-87 *. Assurez-vous de disposer dans la pièce où se trouve le poêle, une alimentation naturelle et une ventilation d'échappement (pour organiser l'échange d'air). Cela signifie qu'il est impossible d'équiper une pièce dans une pièce sans fenêtre avec des fenêtres fonctionnelles, ainsi que sans conduit de ventilation avec une évacuation satisfaisante.

Il est inacceptable de couper le tuyau du robinet d'arrêt, cela fait partie intégrante du système de gaz. Il est impossible de remplacer soi-même une tuyauterie même souple, et encore moins d'organiser le déplacement ou l'allongement des tuyauteries. Ceci est fait uniquement par un employé du service de gaz.

Mais au stade de la négociation avec des spécialistes, précisez ce que vous devez acheter pour le transfert. Un tuyau à soufflet peut être nécessaire. Les installateurs apporteront eux-mêmes les tuyaux métalliques, mais leur coût est inclus dans le devis pour le transfert de la plaque. Si vous libérez à l'avance la cuisine des meubles et des objets en excès qui interfèrent avec le processus de démontage, il sera plus facile pour les artisans de travailler. Ils annoncent généralement toutes les exigences avant de venir à la maison.

L'apparition de longues conduites de gaz flexibles a conduit au fait que le gazoduc interne est devenu beaucoup moins susceptible d'être déplacé.Mais la question est encore unique, et les représentants du service du gaz rencontrent régulièrement de telles demandes. Si vous avez besoin d'un tel service, ne pensez même pas aux actions non autorisées - au moins, cela peut entraîner une amende. Mais la situation peut conduire à la tragédie, ce qui est beaucoup plus dangereux.

Emplacement pour l'installation d'une chaudière à gaz
S'agissant spécifiquement des appartements, ils y installent des chaudières à gaz, principalement dans les cuisines. Il y a toutes les communications nécessaires : eau, gaz, il y a une fenêtre et une hotte aspirante. Il ne reste plus qu'à déterminer un endroit approprié pour la chaudière. Pour une telle installation, des chaudières murales (montées) sont utilisées. Ils sont montés sur plusieurs crochets fixés aux murs (ils sont généralement livrés avec le kit).
Quant à l'installation dans d'autres pièces d'un appartement ou d'une maison, en règle générale, aucune d'entre elles ne répond aux exigences. Par exemple, la salle de bain n'a pas de fenêtre avec lumière naturelle, le couloir ne correspond généralement pas à la taille - il n'y a pas assez de tolérances des coins ou du mur opposé, il n'y a généralement pas de ventilation du tout ou ce n'est pas suffisant. Avec les garde-manger, le même problème - il n'y a pas de ventilation et de fenêtres, il n'y a pas assez de volume.
La distance exacte par rapport aux murs et autres objets est indiquée dans le mode d'emploi de la chaudière.
S'il y a des escaliers menant au deuxième étage de la maison, les propriétaires souhaitent souvent placer la chaudière sous les escaliers ou dans cette pièce. En termes de volume, cela passe généralement, et la ventilation devra être rendue très puissante - le volume est considéré comme étant à deux niveaux et il faut assurer son triple échange. Cela nécessitera plusieurs tuyaux (trois ou plus) d'une très grande section (au moins 200 mm).
Après avoir choisi la pièce pour l'installation d'une chaudière à gaz, il reste à lui trouver une place.Il est choisi en fonction du type de chaudière (murale ou au sol) et des exigences du fabricant. La fiche technique détaille généralement les distances du mur à droite / gauche, la hauteur d'installation par rapport au sol et au plafond, ainsi que la distance entre la surface avant et le mur opposé. Ceux-ci peuvent varier d'un fabricant à l'autre, alors lisez attentivement le manuel.
Normes d'installation selon SNiP
En l'absence de telles recommandations dans le passeport de l'équipement, l'installation d'une chaudière à gaz peut être effectuée selon les recommandations du SNiP 42-101-2003 p 6.23. Ça dit:
- Les chaudières à gaz peuvent être installées sur des murs coupe-feu à une distance d'au moins 2 cm de celui-ci.
- Si le mur est à combustion lente ou combustible (bois, charpente, etc.), il doit être protégé par un matériau ignifuge. Il peut s'agir d'une feuille d'amiante de trois millimètres, au-dessus de laquelle une feuille de métal est fixée. Un enduit avec une couche d'au moins 3 cm est également considéré comme une protection. Dans ce cas, la chaudière doit être suspendue à une distance de 3 cm. Les dimensions du matériau ignifuge doivent dépasser les dimensions de la chaudière de 10 cm des côtés. et en bas, et d'en haut doit être de 70 cm de plus.
Des questions peuvent se poser concernant la feuille d'amiante : elle est aujourd'hui reconnue comme matière dangereuse pour la santé. Vous pouvez le remplacer par une couche de carton de laine minérale. Et gardez à l'esprit que les carreaux de céramique sont également considérés comme une base ignifuge, même s'ils sont posés sur des murs en bois : une couche de colle et de céramique donne juste la résistance au feu requise.
Une chaudière à gaz ne peut être accrochée sur des murs en bois que s'il y a un substrat incombustible
L'installation d'une chaudière à gaz par rapport aux parois latérales est également réglementée. Si le mur est incombustible, la distance ne peut être inférieure à 10 cm.Pour les combustibles et à combustion lente, cette distance est de 25 cm (sans protection supplémentaire).
Si une chaudière à gaz au sol est installée, la base doit être incombustible. Un stand incombustible est réalisé sur un plancher en bois. Il doit fournir une limite de résistance au feu de 0,75 heures (45 minutes). Il s'agit soit de briques posées sur une cuillère (1/4 de brique), soit de carreaux de sol en céramique épais qui sont posés sur une feuille d'amiante fixée à une tôle. Les dimensions de la base incombustible sont supérieures de 10 cm aux dimensions de la chaudière installée.
Est-il possible de placer un réfrigérateur à côté d'un tuyau de gaz, que dira un spécialiste
Il est bien connu qu'il est déconseillé de placer le réfrigérateur à côté d'objets dégageant de la chaleur : radiateurs, fours et plaques de cuisson. Il est clair que s'il y a une cuisinière à gaz dans la cuisine, le réfrigérateur doit être situé à une distance éloignée de celle-ci, mais est-il possible de mettre réfrigérateur à côté du gaz tuyau?
Pour répondre à cette question, il convient de prendre en compte les facteurs de risque qui surviennent lors du fonctionnement du réfrigérateur et de corréler leur danger lorsqu'ils sont exposés au gazoduc.
Le principe de fonctionnement du réfrigérateur et les facteurs de risque
Le réfrigérateur fonctionne grâce à la sélection de la chaleur de la chambre de réfrigération par le réfrigérant liquide froid (fréon) qui la traverse, qui s'évapore lorsque l'énergie thermique est prélevée. Suite ensuite à travers le système de condenseur du réfrigérateur sous la forme d'un mince tube serpentin sur la paroi arrière, le fréon gazeux est refroidi, dégageant de la chaleur dans l'environnement.
Le réfrigérant pénètre dans le compresseur sous forme de condensat, après quoi il est comprimé (en même temps sa température descend en dessous de zéro) et est introduit dans la chambre de réfrigération à l'état liquide.
Le compresseur lui-même est alimenté par un courant alternatif et est un moteur électrique, sur l'arbre duquel se trouve un type spécial de buse qui comprime le condensat de fréon entrant dans la chambre de travail.
Ainsi, deux facteurs présentent un certain risque lors du fonctionnement du réfrigérateur : la surface chaude du serpentin du condenseur sur la paroi arrière et l'alimentation électrique du compresseur.

Riz. 1 Réfrigérateur dans la cuisine - exemples d'emplacement
Est-il possible de placer un réfrigérateur à côté d'un tuyau de gaz - la réponse d'un spécialiste
La température à l'arrière du réfrigérateur, si elle ne peut pas être mesurée, peut être calculée de manière simple : elle se compose de la somme de la température ambiante et de la différence entre la température ambiante et l'air dans le compartiment réfrigérateur. Ainsi, avec l'air le plus chaud de la cuisine à 25 degrés, cette valeur ne dépassera pas 55 - 58 degrés (en pratique, compte tenu des pertes, 50 degrés est la valeur maximale).
Étant donné que la paroi arrière du réfrigérateur est généralement située à une distance minimale de 20 à 30 mm. du tuyau, ce facteur n'affectera en rien le système de gazoduc, même s'il est étroitement connecté au tuyau et que la température est plusieurs fois plus élevée.
Le deuxième facteur de risque est la présence dans la zone de la conduite de gaz du câble d'alimentation électrique du compresseur avec une tension alternative de 220 volts. Ici, il peut sembler à une personne ignorante que si un câble se casse ou d'autres dysfonctionnements, un courant entrera dans le tuyau, une étincelle éclatera et une explosion se produira. Cette hypothèse n'est pas fondée pour les raisons suivantes :
- Les tuyaux du gazoduc sont en métal et pénètrent dans le sol. Par conséquent, au contact de l'entraînement électrique, la phase sera mise à la terre et si la machine ne coupe pas l'électricité dans l'appartement, le tuyau de gaz sera dans tous les cas être mis hors tension en raison de la mise à la terre.
- Si le tuyau sous-marin est en caoutchouc et ne peut pas être mis à la terre et que le contact du fil électrique nu du réfrigérateur s'est produit dans la zone du poêle, dans ce cas, le courant ira au bus de terre. Le fait est que les cuisinières à gaz modernes sont connectées à une source d'alimentation via des prises à trois connecteurs avec un fil neutre de protection.
- Si la cuisinière à gaz est en bon état de fonctionnement et que les raccords des tuyaux sous-marins sont bien isolés et ne laissent pas passer le gaz, il n'y a aucun danger même en cas de rupture du fil électrique du réfrigérateur, à l'exception d'un choc électrique à les propriétaires eux-mêmes.
La réponse à la question de savoir s'il est possible de placer un réfrigérateur à côté d'un tuyau de gaz sera la déclaration suivante : le réfrigérateur peut être placé sans aucune crainte à côté du tuyau de gaz à une distance très minimale (20 - 30 mm suffisent ), la condition principale pour cela est la facilité d'accès à la vanne d'arrêt de gaz de la vanne.
Pourquoi vous ne devriez pas placer votre réfrigérateur à côté de la cuisinière
Lors de la disposition des appareils dans la cuisine, vous devez penser non seulement à l'harmonie de l'intérieur, mais également aux défauts de la proximité du réfrigérateur et des appareils de chauffage.

Cuisinière à gaz et réfrigérateur
Lorsqu'il s'agit d'organiser les appareils de cuisine, beaucoup de gens se demandent si les réfrigérateurs peuvent être placés à côté des cuisinières à gaz. Si la cuisine est petite, il peut être problématique d'y placer un grand réfrigérateur.Et le respect de toutes les exigences d'installation devient parfois une tâche presque impossible.
C'est une erreur de penser que la seule conséquence de la proximité du réfrigérateur et de la cuisinière est un mauvais refroidissement des aliments. Il semble à beaucoup que la situation puisse être corrigée en définissant le mode de refroidissement maximal dans l'appareil. En fait, plus il fait chaud, plus le moteur élimine activement l'air chauffé des compartiments. Ainsi, une unité dotée d'une puissance suffisante continuera à faire face avec succès à sa tâche. Mais la charge intensive ne se reflétera pas au mieux dans l'état de son compresseur.
Normalement, le moteur du réfrigérateur s'allume et s'éteint à intervalles réguliers. Lorsque la température dans l'environnement extérieur augmente, le moteur est obligé de travailler pour l'usure. Dans le même temps, la durée de vie de l'appareil est considérablement réduite, surtout si les membres de la famille utilisent activement le poêle.
De plus, la réponse à la question de savoir s'il est possible de placer un réfrigérateur à côté d'une cuisinière à gaz dans la cuisine deviendra évidente après l'arrivée des factures d'électricité. Après avoir augmenté l'intensité de son travail de 5 à 6 fois, le réfrigérateur commence à consommer beaucoup plus d'électricité.
Un refroidissement instable affecte négativement le microclimat dans la chambre de l'unité. Les produits placés sur les étagères commencent à être recouverts d'une fine croûte de glace. En conséquence, les aliments se gâtent ou deviennent insipides. La formation de glace est particulièrement active dans le congélateur, il devra donc être dégivré plus souvent que d'habitude.
Cuisinière électrique et réfrigérateur

Les plaques électriques et à induction chauffent moins les surfaces à proximité que les plaques à gaz. Malgré cela, ils ne doivent pas être placés à proximité du réfrigérateur.En plus de la charge sur le moteur de l'appareil, vous pouvez rencontrer les moments désagréables suivants :
- si les parois du boîtier du réfrigérateur ne sont pas métalliques, des marques jaunes apparaîtront aux points de contact avec la cuisinière ;
- le joint en caoutchouc, les poignées de l'appareil et les bordures en plastique peuvent se fissurer ou fondre ;
- le chargement et le déchargement des produits n'est pas aussi pratique que si l'équipement était partagé par une table ;
- les poignées de la vaisselle viendront s'appuyer contre la paroi du meuble ou prendre de la place dans l'allée.
Il convient également de rappeler que certains modèles disposent d'une grille de circulation d'air située sur le côté. C'est cette partie du corps qui représente l'essentiel de la chaleur. Un tel impact menace de casser le réfrigérateur.
Sortie
Si dans la cuisine le seul endroit possible est à proximité du système de chauffage, il faut veiller à protéger l'appareil et à prolonger sa durée de vie. Il y a quelques points qui doivent être suivis pour que l'instrument soit placé à côté de la batterie :
- En aucun cas la paroi arrière ne doit être placée à proximité d'une source de chaleur ;
- Il est souhaitable que la batterie n'occupe qu'une partie de la paroi latérale, pour le fonctionnement normal de l'appareil ;
- Faites une cloison ou un écran, placez le papier d'aluminium dessus et placez-le entre la batterie et le réfrigérateur. Cela aidera à isoler la chaleur. Vous pouvez utiliser du penofol autocollant sur la paroi latérale de l'appareil. La feuille sert à réfléchir les flux de chaleur, le penofol sert à absorber la chaleur.
Cuisinière à côté du réfrigérateur
La cuisinière est le voisin le plus dangereux du réfrigérateur, surtout s'il est au gaz. Idéalement, ces deux antipodes doivent être placés le plus loin possible. Pour cela, en plus de la raison principale (le mal de la chaleur), il y a quelques arguments supplémentaires "contre":
- Le réfrigérateur est intensément sale avec des éclaboussures de graisse pendant la cuisson ;
- Si la cuisinière est à côté du réfrigérateur, les casseroles avec poignées et les grandes casseroles ne tiennent pas sur les brûleurs les plus proches.
Quelle distance doit-il y avoir entre la cuisinière et le réfrigérateur ? Il est préférable d'apprendre ces normes à partir des instructions d'un modèle de réfrigérateur particulier, car les recommandations des différents fabricants sont légèrement différentes. Par exemple:
- Bosch vous permet de placer le réfrigérateur à côté d'une cuisinière à gaz à une distance de 30 cm et à côté d'une cuisinière électrique ou d'une plaque de cuisson - à une distance d'au moins 3 cm.
- Zanussi recommande de placer le réfrigérateur à côté de la cuisinière à gaz à une distance d'au moins 50 cm. Les cuisinières électriques et les plaques de cuisson peuvent être placées à une distance de 5 cm.
L'option recommandée pour la coexistence d'un réfrigérateur et d'une cuisinière est illustrée sur la photo ci-dessous.
Réfrigérateur encastrable à côté de la cuisinière à gaz à une distance de 40 cm
Mais, comme le montre la pratique, dans les très petites cuisines, par exemple à "Khrouchtchev", il est difficile, voire impossible, de maintenir les écarts corrects. Par conséquent, de nombreux propriétaires placent la cuisinière et le réfrigérateur à proximité l'un de l'autre. Voici quelques exemples de photos de telles cuisines.
Réfrigérateur à côté de la cuisinière à gaz et du four
Réfrigérateur à côté d'une cuisinière à gaz à l'intérieur d'une petite cuisine à Khrouchtchev
Réfrigérateur intégré à côté d'une mini-cuisinière à gaz à l'intérieur d'un salon-cuisine repensé à Khrouchtchev
Réfrigérateur à côté de la plaque de cuisson
Alors, que se passe-t-il si la cuisine est très petite et que créer même un espace de 3 cm semble impossible ? Nous proposons les 6 solutions suivantes qui aideront à résoudre le problème dans un complexe ou par elles-mêmes :
- Collez un matériau calorifuge sur la paroi du réfrigérateur, par exemple Fomisol ou Isolon PPE. Cette méthode est la plus simple, la plus budgétaire et en même temps efficace - le réfrigérateur peut même coexister avec une cuisinière à gaz. Tout ce que vous avez à faire est de couper le matériau et de le coller soigneusement (il est souhaitable que le matériau soit autocollant). Une nuance importante : la partie supérieure de la paroi du réfrigérateur continuera à chauffer un peu, car la chaleur a tendance à monter. Mais ce problème est également facilement résolu si vous utilisez toujours la hotte (lisez-le ci-dessous).
Un exemple d'isolation thermique d'un réfrigérateur à côté de la cuisinière
- Utilisez un extracteur puissant. Il capte la plupart des flux convectifs du poêle et réduit ainsi considérablement le chauffage du réfrigérateur.
- Installez le réfrigérateur dans la boîte. Ainsi le cadre de la box va jouer le rôle de barrière et prendre le relais du "coup de chaleur". De plus, il protégera le corps du réfrigérateur des éclaboussures de graisse et de saleté. Pour un meilleur résultat, il vaut toujours la peine de coller une couche d'isolation thermique sur le réfrigérateur.
- Placez une cloison ou un écran entre le réfrigérateur et la cuisinière. Les avantages de cette méthode sont toujours les mêmes - protection contre la saleté et création d'une barrière contre la chaleur. De quoi peut-on faire un écran ou une cloison ? Les panneaux MDF, le contreplaqué, les cloisons sèches, le verre trempé (en combinaison avec une isolation thermique) conviennent. Voici quelques exemples de photos.
- Remplacez les électroménagers et les éviers de grande taille par des versions plus petites. Cela vous permettra de gagner de précieux centimètres et de mettre réfrigérateur et cuisinière non dos à dos. Voici ce que vous pouvez faire :
Remplacez le réchaud standard par un mini-réchaud à deux brûleurs. Ainsi, vous pouvez augmenter la distance entre le réfrigérateur et la cuisinière à 15-25 centimètres. Comme le montre la pratique, deux brûleurs pour une famille moyenne de 4 personnes suffisent à 100%.
- Placez un réfrigérateur étroit (jusqu'à 55 cm de large). Même quelques centimètres libérés amélioreront la situation.
- Choisissez un petit évier. Oui, ce n'est pas très pratique, mais c'est tout à fait viable, surtout si vous avez un lave-vaisselle. Soit dit en passant, vous pouvez parfois ménager une petite distance entre la cuisinière et le réfrigérateur en déplaçant l'évier.
- En fin de compte, le réfrigérateur peut être sorti dans le couloir ou le salon adjacent.
Pourquoi ne pas mettre un réfrigérateur à côté de la cuisinière ?
Les arguments contre sont nombreux, allant de la perte habituelle de confort à la panne prématurée du réfrigérateur.
De plus, nous attirons votre attention sur le fait qu'il n'y a aucune différence entre placer un réfrigérateur à côté d'une cuisinière à gaz ou électrique. Les côtés d'entre eux sont chauffés de la même manière, surtout lorsqu'il s'agit d'un four de travail
Mais allons-y dans l'ordre.
La chaleur du poêle fait fonctionner le réfrigérateur à sa limite
Certaines personnes pensent que la proximité d'une cuisinière chaude peut entraîner le fait que le compartiment du réfrigérateur ne refroidira pas très bien, et c'est tout. Au lieu de cela, chauffez temporairement à cause de la chaleur. Autrement dit, cela vaut la peine de remonter un peu et le problème sera résolu.

Mais, tout n'est pas si simple. Tout est juste le contraire. Plus il fait chaud aux alentours, plus le compresseur rattrape le froid intense... Et la température optimale ne baissera pas dans le réfrigérateur, non. Seulement maintenant, pour la technologie elle-même, cet état de choses est complètement inutile.
Le réfrigérateur est conçu pour certains intervalles d'allumage automatique du compresseur.Mais lorsque la température monte de l'extérieur, le compresseur est obligé de fonctionner simplement par usure afin de maintenir la température souhaitée.
Naturellement, la durée de vie de l'équipement, dans ce cas, est plusieurs fois réduite. Surtout si vous avez une famille nombreuse et que le poêle fonctionne très souvent. Faites chauffer la même bouilloire cinq fois par jour, faites cuire une soupe, réchauffez un plat...
Et, même si vous venez de faire frire un œuf, la paroi latérale du poêle ne chauffe pas et ne refroidit pas aussi rapidement qu'il n'y paraît. La chaleur, en conséquence, atteint d'abord le côté adjacent du réfrigérateur et maintient la température élevée pendant une longue période.
Et le compresseur s'allume, s'allume, sans pauses pour le déjeuner et le dîner. Et même sans les pauses.
Cependant, tout cela est écrit dans les instructions du réfrigérateur. Mais, si vous ne croyez pas, vous pouvez demander à n'importe quel atelier et la réponse du spécialiste sera sans équivoque : vous ne devriez pas faire cela.
Bien que, si vous êtes si riche que vous changez de réfrigérateur comme des gants, alors pourquoi pas ? Le compresseur «volera» dans cinq ans (ou même un peu plus tôt) - achetez de nouveaux équipements, et c'est tout.













































