Brancher un sèche-serviettes électrique : instructions d'installation étape par étape

Installation d'un sèche-serviettes: comment installer et connecter de vos propres mains

Types de sèche-serviettes

Un sèche-serviettes est installé dans presque toutes les salles de bain. Son but principal est de sécher les vêtements. Dans le même temps, l'appareil peut remplir la fonction de chauffage principal et d'appoint de la pièce.

La classification des sèche-serviettes s'effectue selon le type de liquide de refroidissement :

  1. Appareils à eau. Il existe deux options pour connecter un tel sèche-linge.La première est que cet appareil est relié directement au circuit de chauffage, et qu'il est chauffé par la circulation d'un liquide caloporteur dans le système de chauffage de la maison. La seconde est l'installation d'un sèche-serviettes pour l'alimentation en eau chaude.
  2. Sèche-serviettes électriques. L'appareil ne nécessite pas de connexion au système de chauffage. Le sèche-serviettes nécessite une prise électrique dans la salle de bain.
  3. Appareils combinés. Un tel sèche-serviettes peut fonctionner simultanément à partir de l'électricité et des tours d'eau. Le produit est connecté au circuit de chauffage et un élément chauffant y est connecté.

Les séchoirs électriques et combinés peuvent être utilisés à tout moment de l'année. Les appareils connectés au système de chauffage ne fonctionnent que pendant la saison froide. Lorsque le chauffage est éteint, le processus de séchage de l'eau est arrêté. Une exception est le raccordement de l'appareil à une alimentation en eau chaude toute l'année.

Les sèche-serviettes sont produits en différentes tailles et configurations. Les modèles simples ont la forme d'un zigzag ou d'une échelle. Plus la conception du séchoir est simple, plus il est facile à installer.

Installation d'un sèche-serviette électrique

L'installation d'équipements électriques dans un environnement humide nécessite de prendre des mesures de protection pour une utilisation en toute sécurité. Il s'agit d'un RCD séparé, d'une mise à la terre et la hauteur d'installation de la prise du sèche-serviettes est d'au moins 70 cm du sol. Le raccordement se fait en installant ce dernier à l'intérieur ou à l'extérieur de la salle de bain.

La prise électrique doit être protégée par un boîtier étanche et un couvercle avec un joint en caoutchouc. Il est permis de placer l'appareil sur un mur avec une charge minimale d'humidité, mais pas en bordure de la rue.Cela est dû à la différence de températures, à cause de laquelle la possibilité de condensation dans le siège est élevée.

L'option la plus fiable est la pose de communications viabilisées dans le corps du mur.

Brancher un sèche-serviettes électrique : instructions d'installation étape par étape
Câblage caché avec prise

Pour ce faire, formez des stroboscopes et des évidements pour la sortie, à travers des trous pour faire sortir cette dernière. Remplir les vides avec du plâtre et des matériaux de finition protégera le câblage du contact avec l'humidité. Un montage extérieur avec un haut degré d'isolation est également acceptable. Le câble pour l'installation d'un sèche-serviettes est placé à une hauteur de plus de 10 cm du sol, de sorte qu'il entraîne plus tard un court-circuit.

Ordre de connexion

Le câble, la machine et la prise sont sélectionnés avec une faible marge de puissance par rapport à l'équipement connecté. Ainsi, par exemple, 1,8 kW est divisé par 220 V, ils obtiennent 8,2 A. Le câble doit être avec un noyau en cuivre d'une section d'au moins 1 mm². En ce qui concerne les meubles, ils supportent 750 mm, un angle - 300 mm, un sol - 200 mm.

Des porte-serviettes chauffants suspendus sont appliqués sur la zone autorisée pour l'installation, la position des supports est marquée. Des trous de montage sont percés et l'équipement est fixé au mur. Les modèles de sol fixes sont fixés à la base de la même manière. L'étape suivante consiste à se connecter à l'alimentation. La prise doit être à une distance de 25-35 cm du côté de l'appareil.

Brancher un sèche-serviettes électrique : instructions d'installation étape par étape
L'emplacement correct de la sortie du sèche-linge dans la salle de bain Source maxi-svet.by

Erreurs de montage du porte-serviettes

  • Il est impossible de rétrécir l'entrée et la sortie à l'aide de raccords ou d'une autre manière.
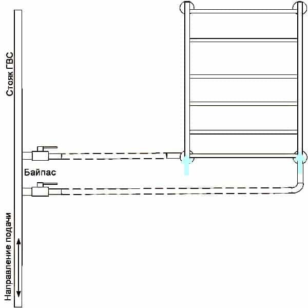
  • L'utilisation de dispositifs de verrouillage sur la colonne montante est interdite. Ils ne peuvent être insérés dans le circuit que s'il s'agit d'une branche du système HVO, et non de sa partie directe.Le problème est résolu à l'aide d'un by-pass - un tuyau de by-pass. Les grues doivent toujours être accessibles.
  • La distance aux murs ne doit pas dépasser 3,5 cm avec un diamètre de bobine allant jusqu'à 2,5 cm.La distance maximale pour les produits d'un diamètre de 2,5 cm ou plus est de 5 à 7 cm.
  • Le raccordement inférieur ne peut pas être réalisé sous le tuyau de dérivation inclus dans le corps, et le supérieur - au-dessus.
  • La pente maximale de la bobine est de 2 cm par mètre de longueur.
  • Le raccordement horizontal n'est possible qu'avec un diamètre de raccordement de 32 mm et une distance par rapport au raccordement ne dépassant pas 2 m.
  • Selon SNiP, la hauteur recommandée du radiateur au-dessus du niveau du sol est de 120 cm, ce qui n'est rien de plus qu'une recommandation.

Pour que l'appareil fonctionne correctement, le bon schéma de câblage est nécessaire. Si une partie de la batterie d'échelle est placée sous la colonne montante, la circulation dans celle-ci s'arrêtera. Le flux empruntera la « marche » située au niveau de l'entrée.

Une autre erreur est le tuyau d'admission plié vers le haut. L'air va progressivement s'accumuler dans sa partie supérieure. Tôt ou tard, cela créera un embouteillage et le système cessera de fonctionner.

Meilleures réponses

*RENARD*pas*SŒUR* :

Si vous l'avez de l'eau chaude, il devrait toujours être chaud, mais dans certaines maisons, pour une raison quelconque, le porte-serviettes chauffant provient du système de chauffage, il fera alors froid lorsque le chauffage sera éteint.

Marie :

Oui. Il reste toujours chaud.

Comment je veux donc je vis :

On a toujours chaud, chaud en hiver, mais je ne sais pas comment faire

Hélène :

non, bien sûr, c'est la même batterie - uniquement dans la salle de bain)

Youri Frolov :

Oui, il n'est pas chauffé par le chauffage, mais par l'eau chaude. C'est comme ça chez nous en tout cas.

Alexeï Koulikov :

Les sèche-serviettes sont généralement connectés à la colonne montante d'eau chaude. Très rarement - au chauffage.

Marina Sakharov :

Voyez ce qui le réchauffe.Si de l'eau chaude, alors ça devrait (si ça vient du robinet chaud). Si du chauffage ou de l'électricité, alors il ne devrait pas.

Arkadi :

Peut-être qu'il est sur l'eau chaude du robinet.

Fabul :

C'est en fait un retour d'eau chaude, vous pouvez le vérifier au dernier étage.

Chufistova Maria :

faut, quand on n'a pas d'eau chaude, le sèche-linge est froid, sinon il fait toujours chaud

Sucette:

chaud, correctement répondu, dépend de l'eau chaude, pas du chauffage.

Hélène Iskra :

Le porte-serviettes chauffant est alimenté en eau chaude et non en chauffage

Sergueï Ivanov :

S'il est alimenté en eau chaude, alors oui, mais s'il provient du chauffage (en règle générale), alors non.

Igor Shkurny :

A 90%, la serviette est accrochée à l'arrivée d'eau chaude et n'est pas reliée au chauffage !!!

Ludwig :

lisez maintenant que j'écris une serviette d'eau (colonne montante chaude) s'il y a circulation, elle est toujours chaude, mais si elle provient du chauffage, elle n'est chaude que lorsqu'elle est inondée

Scrapmaster honoré :

Nous avons une colonne montante séparée du chauffage central. Il ne chauffe pas lorsqu'il n'y a pas de pression dans les radiateurs. Si vous vous connectez à l'eau chaude, vous devez vider de l'eau réfrigérée quelque part pour que la serviette soit chaude. Le plus souvent, cela est fait par les résidents des étages supérieurs ...

Albert Belkov :

Oui, dans un immeuble coopératif en brique de neuf étages avec sa propre chaufferie - alors ...

Ancien socle :

Peut-être une serviette électrique ?

Vladimir Sokolov :

doit toujours être chaud ! le bouclage se fait indépendamment du chauffage ! Mes parents ont eu un rhume le matin, alors sur ma suggestion (je suis un soudeur-plombier de 12l d'expérience) ils ont pris un REO, ils l'ont fait, bien qu'au début ils aient refusé, comme il se doit ! cherchais depuis longtemps (enfin, type) remplacé le robinet de retour, maintenant la seule colonne montante de la maison est chaude !

Natalia Victorovna :

et pris la température... toi-même... peut-être de la chaleur, des pépins, il semblait ....ARVI marche maintenant, peut-être qu'il est tombé malade

déterminez d'abord pourquoi votre serviette est alimentée

Schéma 3

(Raccordements latéraux et diagonaux avec by-pass réduit et/ou déporté)

La grande majorité des plombiers pensent qu'il doit y avoir un rétrécissement entre les robinets du sèche-serviettes - sinon rien ne fonctionnera. D'une part, ce n'est pas le cas (voir les schémas ci-dessus), et d'autre part, dans le cas d'une arrivée d'eau plus faible dans la colonne montante, le rétrécissement empêchera le sèche-serviettes de fonctionner.

Lire aussi :  Coupe-herbe électrique - classement des meilleurs modèles + subtilités de choix

Brancher un sèche-serviettes électrique : instructions d'installation étape par étape

Connexion latérale d'une échelle, travaillant sur une combinaison de circulation forcée et naturelle, avec un rétrécissement de la rocade

Brancher un sèche-serviettes électrique : instructions d'installation étape par étape

Raccordement latéral d'une échelle, travaillant sur une combinaison de circulation forcée et naturelle, avec un déport de contournement

Brancher un sèche-serviettes électrique : instructions d'installation étape par étape

Raccordement latéral du sèche-serviettes en forme de U/M, travaillant sur une combinaison de circulation forcée et naturelle, avec by-pass déporté

Brancher un sèche-serviettes électrique : instructions d'installation étape par étape

Raccordement latéral du sèche-serviettes en forme de U/M, fonctionnant sur une combinaison de circulation forcée et naturelle, avec rétrécissement du by-pass

Brancher un sèche-serviettes électrique : instructions d'installation étape par étape

Connexion diagonale de l'échelle, travaillant sur une combinaison de circulation forcée et naturelle, avec un rétrécissement de la dérivation

Brancher un sèche-serviettes électrique : instructions d'installation étape par étape

Connexion en échelle diagonale, travaillant sur une combinaison de circulation forcée et naturelle, avec déviation de dérivation

Les options diagonales pour connecter un sèche-serviettes ne présentent aucun avantage par rapport aux options latérales.

A noter que le sens d'alimentation dans la colonne montante est désormais indiqué sans ambiguïté par le haut. Avec le bottom feed, ces options sont catégoriquement déconseillées !

Avantages du régime :

Avantages du régime :

  • Fonctionne très bien avec une alimentation supérieure dans la colonne montante.
  • Il n'est pas nécessaire de purger l'air de l'appareil après avoir coupé l'eau.
  • La distance entre le sèche-serviettes et la colonne montante peut atteindre 8 à 10 mètres.

Les inconvénients du régime :

Un fonctionnement stable est garanti uniquement pour l'alimentation par le haut.

Conditions pour que le régime fonctionne :

  • Alimentation strictement supérieure dans la colonne montante ! En général, vous devez considérer le sens de l'approvisionnement toujours inconnu (malgré les déclarations des plombiers locaux) et utiliser l'un des schémas universels qui ne dépendent pas de l'approvisionnement.
  • La sortie inférieure de la colonne montante doit être en dessous ou à égalité avec le bas de l'appareil, et la sortie supérieure de la colonne montante doit être au-dessus ou à égalité avec le haut du sèche-serviettes.

Que faut-il pour l'installation ?

Avant de commencer tout travail, il serait plutôt judicieux d'esquisser un schéma de câblage ou, dans les cas extrêmes, un petit croquis à main levée de l'emplacement de l'unité, en choisissant l'option la plus appropriée pour connecter l'appareil au réseau de canalisations.

Les schémas les plus simples raccordement correct du sèche-serviettes bricolage sur les appareils d'échelle universels:

Vous envisagez une rénovation de salle de bain ? Nous sommes prêts à répondre à certaines de vos questions : comment en choisir un bon bain. comment installer un lavabo dans la salle de bain. comment choisir un bon robinet de salle de bain.

Découvrez comment installer et connecter un chauffe-eau électrique à accumulation ici.

Outils

Pour remplacer ou installer un sèche-serviettes à eau, vous aurez besoin d'un ensemble d'outils de plomberie dont la composition dépend du type de conduites d'eau de l'appartement. Considérant que le cuivre, le polypropylène et d'autres types de canalisations modernes sont encore rares, nous décrirons la boîte à outils pour les tuyaux en acier standard ¾ ':

  • Clés. gaz n° 2 ou n° 3 ; réglable - "crocodile"; clé à molette.
  • Coupe-tube ou scie à métaux pour le métal.
  • Matrices de filetage ¾ 'avec pommeau à levier.
  • Perceuse électrique avec perforateur, perceuses à béton.
  • Meuleuse d'angle avec un disque de coupe pour le métal - "bulgare".
  • Outils de fixation : marteau, tournevis, pinces.
  • Outil de marquage : ruban à mesurer, niveau, crayon.

En plus d'un ensemble d'outils, une installation et des consommables sont également nécessaires pour le travail:

  • Virages, coudes, accouplements, éperons et éventuellement d'autres types de raccords.
  • Les vannes d'arrêt, les vannes à bille sont les meilleures.
  • Plomberie de remorquage de linge ou montage de ruban FUM.
  • Installation et fixations. supports, vis, chevilles, boulons d'ancrage, etc.

Après avoir préparé tout ce dont vous avez besoin, vous pouvez vous mettre au travail.

Tous les travaux sur la canalisation de chauffage sont mieux effectués en été, lorsque le système est éteint, il n'y a pas de pression et vous pouvez facilement vidanger l'eau de la colonne montante. Mais dans ce cas, une fois les travaux terminés, il sera impossible de tester sa qualité : il faudra attendre le début de la saison de chauffe.

Principe d'opération

Le sèche-serviettes a une conception tubulaire, selon le type de source d'énergie il peut être :

  • eau, chauffée par l'eau d'un système d'approvisionnement en eau chaude ou de chauffage ;
  • électrique, où la chaleur d'un élément chauffant électrique est utilisée.

Dans les bâtiments à plusieurs étages, les séchoirs à eau sont connectés à la canalisation centrale et sont étroitement liés au fonctionnement du système d'eau chaude ou de chauffage. Pendant l'arrêt d'été de l'eau chaude, les appareils à eau ne fonctionnent pas. Dans la construction de logements privés, il est possible de sécher les vêtements dans la salle de bain uniquement pendant la saison de chauffage, car le chauffage du liquide de refroidissement dépend directement du mode de la chaufferie.

Les sèche-serviettes électriques fonctionnent à partir d'un réseau avec une tension de 220 V.Des éléments chauffants sont intégrés aux appareils :

  • Éléments chauffants tubulaires qui transfèrent l'énergie à l'eau ou à l'huile en circulation. En raison de l'accumulation de chaleur, de telles structures maintiennent longtemps la température souhaitée.
  • Câbles chauffants, où l'énergie thermique est générée par un conducteur à haute résistance.

La commodité d'une sécheuse électrique réside dans l'autonomie - son fonctionnement ne dépend pas de la présence de chauffage ou d'alimentation en eau chaude, liée à une colonne montante.

Schémas de connexion dans l'appartement

Le fonctionnement d'un sèche-serviettes nécessite une circulation constante d'eau. Si sa forme est proche des types standards en U ou en M, une seule option de connexion est possible.

Si une conception de sous-station moderne avec plusieurs points de connexion est utilisée, vous devrez choisir la meilleure option. Cette question doit être prise au sérieux, car il sera extrêmement difficile de corriger les erreurs commises.

Options existantes

Il existe plusieurs façons de connecter une sous-station à une colonne montante d'eau chaude. Toutes ne concernent que des structures complexes à 4 points de connexion (en forme d'échelle).

Selon la configuration de la salle, la taille de la sous-station et d'autres facteurs, différents schémas peuvent être utilisés :

  • Plus haut. Les branches aller et retour sont connectées aux points supérieurs de la sous-station.
  • Plus bas. Les conduites aller et retour sont connectées aux éléments de connexion inférieurs.
  • Latéral. Pour la connexion, un élément de connexion supérieur et un élément de connexion inférieur sont utilisés, situés sur un côté de l'appareil.
  • Diagonale. Des éléments de connexion supérieurs et inférieurs sont utilisés, situés sur différents côtés de l'échelle.
  • Centre. Cette option de connexion est moins courante.L'échelle n'a que 2 points de connexion situés sur les échelons supérieur et inférieur.

Toutes les options ont leurs avantages et leurs inconvénients. nom sans ambiguïté la meilleure façon de se connecter difficile, car de nombreux facteurs qui affectent les conditions de fonctionnement de l'appareil doivent être pris en compte.

Comment choisir le bon chemin ?

Le choix de la méthode de connexion optimale est dû à la nécessité de tirer le meilleur parti du sèche-serviettes et d'éliminer la perte d'énergie thermique. Pour ce faire, il est nécessaire d'assurer la circulation de l'eau, l'absence de zones stagnantes ou aérées.

Il faut tenir compte de la taille de l'appareil, de la largeur et du nombre de barres transversales

De plus, la direction de l'alimentation (par le haut ou par le bas), la pression dans le système et la vitesse de déplacement de l'eau doivent être prises en compte.

Brancher un sèche-serviettes électrique : instructions d'installation étape par étapeLa plupart des experts considèrent que le montage latéral est la meilleure option.

Il présente des inconvénients mineurs, mais il vous permet d'obtenir un minimum de pertes d'énergie thermique et d'assurer une circulation efficace de l'eau.

Le raccordement inférieur peut être utilisé dans n'importe quel sens d'écoulement dans la colonne montante. Le type de connexion supérieur crée un risque de stagnation d'eau dans la partie inférieure de l'appareil, où tombent les couches refroidies.

Les conceptions avec un emplacement central des buses sont considérées comme les plus réussies, mais elles sont beaucoup moins courantes en vente.

Parfois, la dérivation est décalée par rapport à la colonne vertébrale commune de la colonne montante. Cela se fait uniquement dans les systèmes de maisons privées, car il existe un risque de modifier les paramètres d'écoulement.

Toutes ces options ne s'appliquent qu'aux appareils sous forme d'échelle. Les sèche-serviettes conventionnels en forme de U ou de M n'ont que deux points de connexion et sont connectés d'une seule manière.

Quels schémas faut-il éviter ?

Tout d'abord, il faut éviter l'utilisation de coudes complexes, courbes et formant des boucles verticales. Ils forment des bulles d'air qui empêchent le mouvement de l'eau. De plus, il est nécessaire de supporter la pente des virages.

Souvent, les propriétaires d'appartements, désireux de cacher les tuyaux, les posent dans une chape en béton ou sous un plafond suspendu. Cela crée de longues boucles où des zones stagnantes se forment et où l'air s'accumule.

Dans les systèmes à faible pression de travail (généralement, cela se produit dans les lignes autonomes de maisons privées), il est nécessaire de prendre en compte le sens de l'alimentation. Il arrive souvent que la circulation forcée entre en concurrence avec la circulation naturelle.

L'eau chaude pénètre dans la sous-station, s'y refroidit et commence à tomber. Dans de tels cas, soit le flux passe le long d'un chemin sans chauffer le reste du sèche-serviettes, soit il s'arrête complètement.

Brancher un sèche-serviettes électrique : instructions d'installation étape par étape

Schéma 1

(Connexion latérale ou diagonale, dérivation non biaisée sans restriction)

Ce schéma fournit l'alimentation en liquide de refroidissement à la partie supérieure et la libération du liquide de refroidissement refroidi vers la colonne montante par le bas. La circulation à travers le porte-serviettes chauffant n'est assurée que par la pression gravitationnelle de l'eau qui s'y refroidit.

Raccordement côté échelle, fonctionnant en circulation naturelle, sans étranglement et sans déplacement du by-pass

Lire aussi :  Couleurs des fils en électricité : normes et règles de marquage + façons de déterminer le conducteur

Liaison diagonale de l'échelle, travaillant sur la circulation naturelle, sans étranglement et sans déplacement du contournement

L'option diagonale pour connecter un sèche-serviettes n'a aucun avantage par rapport à l'option latérale.

Raccordement latéral du sèche-serviettes en U/M, fonctionnant en circulation naturelle, sans étranglement et sans dérivation déportée

Ce schéma de câblage est universel :

  • Fonctionne avec n'importe quel sens d'alimentation dans la colonne montante.
  • Ne dépend pas du débit de circulation dans la colonne montante.
  • Il n'est pas nécessaire de purger l'air du sèche-serviettes après avoir coupé l'eau.
  • Distance de la colonne montante - jusqu'à 4-5 mètres.

Conditions pour que le régime fonctionne :

  • La sortie inférieure de la colonne montante doit être en dessous du bas du sèche-serviettes ou à égalité avec lui, et la sortie supérieure de la colonne montante doit être au-dessus du haut de l'appareil ou à égalité avec lui.
  • Avec une alimentation plus faible, il ne devrait absolument pas y avoir de rétrécissement entre les tarauds. Cela interférera avec le fonctionnement du sèche-serviettes jusqu'à l'inopérabilité complète ! Au niveau de l'alimentation supérieure, il est permis de rétrécir la dérivation d'un pas du diamètre de la colonne montante (cette option sera discutée en détail un peu plus tard), mais cela n'est pas nécessaire pour le fonctionnement de l'appareil.

La connexion selon ce schéma avec une alimentation par le bas dans la colonne montante est très critique pour la qualité de l'installation. Tout rétrécissement entre les robinets, qui se produit par exemple lorsque la technologie de soudage du polypropylène est violée, nuit à son travail. Il s'agit d'une surchauffe de la buse, dépassant le temps de chauffage du tuyau et du raccord, poussant le tuyau dans le raccord avec une force excessive sans contrôle de profondeur. Un rétrécissement peut se produire s'il y a des soudures sur la colonne montante entre les coudes ou s'il y a des déplacements de la colonne montante par rapport à son axe entre les coudes.

Pourquoi le rétrécissement/déplacement entre les robinets à l'alimentation inférieure interfère-t-il avec le fonctionnement du sèche-serviettes ? Parce qu'il crée une perte de charge supplémentaire due au mouvement de l'eau dans la colonne montante (à la sortie inférieure - plus qu'en haut), ce qui contrecarre la circulation naturelle, qui repousse l'eau dans la colonne montante par la sortie inférieure.

Remarque importante : étant donné que la circulation naturelle est assurée par le refroidissement de l'eau dans l'appareil, avec ce raccordement, il y aura toujours une différence de température entre le haut et le bas du sèche-serviettes. Cependant, dans un appareil bien monté, il n'est que de 3-4 ° C, ce qui ne peut pas être ressenti à la main - au-dessus d'un certain seuil, la température est perçue comme «tout aussi chaude». Si la différence est plus grande, soit une erreur d'installation a été commise, soit la température du système d'alimentation en eau chaude a été surestimée.

Essayez de mesurer la température de l'eau chaude dans le système, ainsi que la température du haut et du bas du sèche-serviettes

Si la différence est plus grande, soit une erreur d'installation a été commise, soit la température du système d'alimentation en eau chaude a été surestimée. Essayez de mesurer la température de l'eau chaude dans le système, ainsi que la température du haut et du bas du sèche-serviettes.

Options autorisées pour l'exécution du schéma n ° 1

Connexion latérale (exemple correct)

L'ensemble du sèche-serviettes chauffant est placé verticalement strictement entre les sorties, les pentes correctes des tuyaux d'alimentation sont respectées et aucune condition de travail n'est violée.

Connexion latérale (exemple d'une conception conditionnellement autorisée)

Le porte-serviettes chauffant est situé au-dessus de la sortie supérieure. Vous devrez purger l'air du coin supérieur gauche de l'instrument.Un radiateur ordinaire ne permettra pas que cela se fasse sans des astuces très gênantes (par exemple, desserrer l'écrou-raccord de la sortie d'eau supérieure), l'air se tiendra au-dessus de la ligne pointillée et l'appareil ne fonctionnera pas.

Pour le fonctionnement complet de cette option, il est obligatoire d'installer une vanne d'air strictement dans le coin supérieur pour l'alimentation en eau. Seuls quelques modèles de sèche-serviettes vous permettent de le faire, notamment la marque Sunerzha de la série "+" ("Bohemia +", "Galant +", etc.).

La vanne d'air dans le coin opposé au point de raccordement d'eau ne peut pas purger tout l'air de l'appareil !

Fabriquer un porte-serviettes chauffant à l'eau à partir de tuyaux métalliques de vos propres mains

Afin de fabriquer un sèche-serviettes à eau, vous devez d'abord prendre des mesures et faire un dessin de la future unité. Dans la fabrication d'un radiateur, sa puissance doit être calculée. Pour 1 m² m.la salle de bain devrait être de 150 watts d'énergie thermique. Vous devez également considérer :

  • La taille de la pièce chauffée.
  • humidité.
  • ventilation et perte de chaleur.

Le calcul de la taille du sèche-serviettes par rapport à la pièce chauffée est donné dans le tableau :

Hauteur/largeur, cm

Volume chauffé

locaux m²

50/40 4.5 — 6
50/50 4.5 — 6
50/60 4.5 — 6
60/40 6 — 8
60/50 6 — 8
60/60 6 — 8
80/40 7.5 — 11
80/50 7.5 — 11
80/60 7.5 — 11
100/40 9.5 — 14
100/50 9.5 — 14
100/60 9.5 — 14
120/40 11 — 17
120/50 11 — 17
120/60 11 — 17

Un exemple de dessin d'un porte-serviettes chauffant d'une taille initiale de 80 / 57,7 cm, conçu pour une pièce chauffée de 7,5 à 11 mètres carrés, voir la figure ci-dessous.

Brancher un sèche-serviettes électrique : instructions d'installation étape par étape

Dimensions du sèche-serviettes à eau

Ce qui est nécessaire

matériaux

  • tuyau d'un diamètre de 32x2 mm, longueur 3 m;
  • sortie de tuyau d'angle d'un diamètre de 32x2 mm - 6 pièces;
  • douilles pour "American" - 2 pièces;
  • "Américain" - 2 pièces;
  • éléments de fixation pour sèche-serviettes - 2 pièces ;
  • rondelles décoratives - 2 pièces;
  • épingle à cheveux M8 -200 mm;
  • écrou M8 — 2 pièces.

Outils

  • Machine de soudage;
  • Électrodes (soudage à l'argon);
  • Cylindre avec argon ;
  • Bulgare;
  • Disques à découper;
  • Meules;
  • Cercles de feutre ;
  • Roulette;
  • Marqueur ou marqueur.

Demande de service

Considérez la fabrication d'un porte-serviettes chauffant à partir de tuyaux métalliques sur la base du dessin ci-dessus à titre d'exemple.

  1. Nous marquons la longueur requise des tuyaux avec un ruban à mesurer et marquons avec un marqueur.

  2. Les ébauches coupées à l'aide de meules et de meules en feutre sont immédiatement nettoyées et polies en parfait état.

  3. Nous soudons les coudes préparés aux bords des tuyaux (longueur 117,7 mm). Vous obtiendrez trois parties qui ressemblent à un récepteur téléphonique.

  4. Selon le dessin, nous soudons deux sections de tuyau (450 mm) aux pièces fabriquées et les connectons ensemble.

  5. À une extrémité de l'ébauche de tuyau d'une longueur de 700 mm, nous soudons une branche et un segment de tuyau (176 mm), l'autre extrémité est reliée à l'une des branches de la structure assemblée. Nous effectuons la même procédure avec un autre morceau de tuyau de 700 mm de long.

  6. Nous broyons les coutures à l'aide de meules jusqu'à ce que toutes les cicatrices de soudure soient égales au reste de la structure.
  7. Nous vérifions la qualité des raccordements à l'eau ou à l'air.
  8. Installez les attaches.

  9. Nous vérifions et coupons la longueur des pièces libres et les ajustons aux courbes des contremarches. Ils devraient idéalement se connecter avec l'aide de "femmes américaines".
  10. Nous rectifions et polissons les coutures, vérifions à nouveau les connexions.

Démontage de l'ancien appareil

Vous devriez commencer par démonter l'ancien porte-serviettes chauffant. Pour ça:

  1. En accord avec les voisins à l'entrée et la société de gestion, nous bloquons la colonne montante de chauffage et en vidons l'eau.
  2. Si l'ancienne structure était soudée aux tuyaux de la colonne montante, nous la coupons avec une meuleuse. Dans le cas d'une connexion amovible, dévisser les raccords de fixation.
  3. Dans de rares cas, lorsque les dimensions d'installation du nouvel appareil coïncident avec les anciennes, nous pouvons supposer que nous avons beaucoup de chance. Le plus souvent, ce n'est pas le cas et vous devez couper des tuyaux même avec une connexion pliable.
  4. La hauteur de la découpe dans la colonne montante doit être supérieure à la distance entre les tuyaux d'arrivée du nouveau sèche-serviettes par la longueur des embranchements et des raccords nécessaires à l'insertion du by-pass.
  5. Lors de la découpe, nous tenons compte non seulement des dimensions d'installation du nouvel appareil, mais également de la possibilité de couper des filetages sur des tuyaux.
  6. Nous retirons l'ancien appareil du mur en coupant ses supports avec une meuleuse ou une scie à métaux.

Caractéristiques des sèche-serviettes électriques et leur installation

Les appareils électriques peuvent fonctionner toute l'année, mais ils consomment de l'électricité supplémentaire. Il existe des modèles qui doivent être fixés au mur, et il existe des options qui vous permettent de mettre un sèche-serviettes dans la salle de bain ou dans toute autre pièce sans penser au moment de le faire - avant ou après la pose des carreaux.

Pour installer l'appareil, mieux vaut choisir l'endroit le plus éloigné des points d'eau (douches, lavabos, baignoires). Le schéma d'installation de porte-serviettes chauffants alimentés à l'électricité prévoit une distance d'au moins 60 cm des sources d'humidité, et cette exigence doit être respectée.

Vidéos connexes

Installation d'un radiateur sèche-serviettes

Cliquez sur Jouer pour voir

Une fois le lieu choisi, il est nécessaire de définir les points d'attache. Percez des trous, insérez-y des chevilles et fixez le sèche-serviettes. Il existe des modèles au sol, auquel cas vous pouvez placer l'appareil, si nécessaire, dans la cuisine ou la chambre, et pas seulement l'utiliser dans la salle de bain d'une maison à panneaux ou d'une autre habitation.

Une attention particulière est requise pour connecter l'appareil au réseau. Il est préférable de retirer le point de connexion de la salle de bain

Si cela n'est pas possible, une prise étanche doit être utilisée.

Recommandations d'installation

L'appareil de chauffage doit être installé après l'achèvement des travaux de finition - pose de carreaux, revêtement avec des panneaux en plastique ou tout autre matériau. Si l'ancien serpentin est remplacé par un nouveau sèche-serviettes, il est d'abord démonté, réparé (si nécessaire), puis installé et raccordé.

Brancher un sèche-serviettes électrique : instructions d'installation étape par étape

Nous vous donnerons quelques conseils pour bien placer le sèche-serviettes dans la salle de bain et le fixer au mur :

  1. Essayez de placer le sécheur d'eau plus près de la colonne montante si vous prévoyez de vous connecter au système ECS. Lorsqu'il est connecté au chauffage, l'emplacement de l'appareil de chauffage ne joue aucun rôle.
  2. L'installation d'un appareil électrique est obligatoire - la distance minimale entre la prise (câblage) et le bord de la baignoire (lavabo, douche) doit être de 60 cm.
  3. A quelle hauteur accrocher un sèche-serviettes. Il n'y a pas d'exigences claires ici, l'indentation optimale du sol se situe entre 900 ... 1200 mm. Choisissez la hauteur pour faciliter l'utilisation. L'exception concerne les radiateurs électriques, qui sont placés à au moins 60 cm du sol.
  4. Lisez toujours les instructions d'installation et d'utilisation du produit. Le fabricant fournira certainement un dessin avec les dimensions et indiquera tous les retraits technologiques, le cas échéant.

  5. Il est permis d'installer le sèche-linge au-dessus du lave-linge. Si ce dernier est chargé par le haut, le radiateur électrique ne doit pas gêner l'ouverture libre du couvercle.
  6. Pour accrocher le serpentin au mur, utilisez des supports décoratifs et des chevilles standard.Une exception est l'installation sur une cloison sèche ou une cloison en matériaux poreux; des fixations spéciales seront nécessaires pour supporter le poids du sèche-serviettes.
  7. Lors du marquage des trous, essayez de ne pas pénétrer dans les joints entre les carreaux, il est préférable de reculer du bord de 0,5 à 1 cm, sinon le revêtement risque de se fissurer lors du perçage.
  8. Ne placez pas de sécheuse électrique directement au-dessus de la baignoire.

Installation et connexion : instructions étape par étape

Avant de commencer l'installation, il est utile de disposer au sol à la fois l'appareil lui-même et tous ses accessoires afin de clarifier à nouveau toutes les dimensions. Pour ce faire, vous pouvez même assembler à sec toutes les connexions. Personne n'a annulé le proverbe selon lequel il faut mesurer sept fois !

  1. Nous marquons les dimensions d'installation du nouveau sèche-serviettes sur le mur.
  2. Après avoir choisi l'emplacement de la future unité sur le mur, il est nécessaire de l'examiner attentivement pour le passage des communications internes, à la fois pipeline et électrique. Des appareils spéciaux - des détecteurs de fils métalliques - peuvent aider à cela.
  3. Nous forons des trous, insérons des chevilles et accrochons l'appareil au mur, en le fixant avec des vis ou des boulons.
  4. Nous coupons les fils aux extrémités coupées du pipeline.
  5. Nous préparons le cavalier de dérivation en marquant et en installant soigneusement les sorties en té pour le sèche-serviettes et une vanne d'arrêt dessus.
  6. Pendant le fonctionnement, nous scellons toutes les connexions avec du câble sanitaire ou du ruban téflon.
  7. Nous l'installons dans la découpe de la colonne montante à l'aide d'éperons, de raccords droits et de contre-écrous, de sorte que les sorties en T soient exactement en face des entrées de notre appareil.
  8. Des épis de différentes longueurs sont utilisés pour ajuster les dimensions d'installation des sections de canalisation et simplifier leurs connexions.Ils ont des fils coupés aux extrémités : courts d'un côté et longs de l'autre.

Un contre-écrou et un raccord sont vissés sur le long. Un té, un angle ou une vanne est vissé sur le tuyau d'un côté. Ils sont vissés avec un filetage court, qui est ensuite relié à l'autre côté du tuyau par un raccord à longue extrémité filetée et fixé avec un contre-écrou.

Nous fixons des robinets à tournant sphérique d'arrêt aux robinets et y connectons les entrées de notre unité.
Nous ouvrons les vannes à bille du sèche-serviettes et fermons la vanne sur la dérivation.

Nous ouvrons la vanne générale de la colonne montante. S'il y a de la pression d'eau dans le système, vérifiez soigneusement les connexions faites pour les fuites.

Tout! Notre nouveau sèche-serviettes est prêt à l'emploi. Dans cette vidéo, vous pouvez regarder de vos propres mains le processus de démontage et d'installation d'un nouveau sèche-serviettes dans la salle de bain :

Les travaux sur le système de canalisation d'un immeuble à appartements doivent être effectués, après les avoir préalablement coordonnés avec la société de gestion, uniquement avec une expérience suffisante ou sous la direction d'un artisan qualifié.

Les porte-serviettes chauffants modernes peuvent être assez complexes dans leur conception. comme les doubles. Avant de les installer de vos propres mains, vous devez étudier toutes les spécifications techniques et les règles d'installation.

Vous devez également vous rappeler que certaines unités doivent être sélectionnées pour leur compatibilité galvanique avec les canalisations métalliques des matériaux à partir desquels elles sont fabriquées.

Branchement d'un sèche-serviette électrique

La version électrique de l'appareil se connecte le plus simplement. Parfois, il suffit littéralement d'insérer la fiche dans la prise.Mais seulement s'il existe une prise protégée de haute qualité, et la conception de l'appareil, et sa faible puissance, impliquent une telle connexion, qui est nécessairement spécifiée dans les instructions.

Brancher un sèche-serviettes électrique : instructions d'installation étape par étape

Si l'instruction jointe à l'appareil prescrit la connexion d'un sèche-serviettes électrique avec un câble solide séparé au relais de protection sur le blindage, avec l'installation d'un dispositif d'activation, cela doit être fait. On comprend ici que le dispositif est un dispositif à fonctionnement permanent, à puissance accrue.

Les contacts non fiables dans le circuit ne sont pas autorisés - avec le temps, ils chaufferont, s'enflammeront. Le câble est utilisé avec la qualité et la section de conducteurs appropriées, posés conformément aux règles.

Comment installer et sécuriser

Le porte-serviettes chauffant est installé à une certaine distance du mur, de sorte qu'il est pratique d'y accrocher des serviettes. L'appareil est accroché au mur sur des supports, qui sont généralement fournis.

Brancher un sèche-serviettes électrique : instructions d'installation étape par étape

Les modèles conçus pour une tuyauterie cachée ne sont pas rares. Avec une distance exacte fixe des fils sortant du mur.

Brancher un sèche-serviettes électrique : instructions d'installation étape par étape

Ensuite, le kit de l'appareil contient nécessairement des excentriques hydrauliques, à l'aide desquels les inexactitudes géométriques sont nivelées. Une autre connexion de raccord fileté est ajoutée.

Brancher un sèche-serviettes électrique : instructions d'installation étape par étape

Il existe des options pour un "serpent simple" lorsque vous avez besoin de supports universels - à partir de radiateurs, alors qu'au moins 4 d'entre eux sont installés. - sous le coude supérieur du tuyau et sous celui du bas, afin que la structure soit fiable et ne chancelle pas si les tuyaux d'alimentation sont mous.

Brancher un sèche-serviettes électrique : instructions d'installation étape par étape

Dans le cas d'une installation sur une connexion en acier, un sertissage de sécurité est généralement installé sur le côté opposé de la connexion.

La hauteur du sol peut varier, mais en règle générale, le porte-serviettes chauffant est installé dans la partie médiane du mur, la hauteur entre le coude inférieur du tuyau et le sol est d'environ 100 cm.

Séquence d'installation

Les instructions d'installation sont étudiées, toutes les actions prescrites sont effectuées pour le modèle spécifique du sèche-serviettes.

Des points de connexion sont en cours de préparation - des tuyaux sont connectés, des vannes d'arrêt y sont installées, puis elles sont fournies (en règle générale) avec des femmes américaines pour la possibilité d'une installation / démontage rapide de l'appareil. La distance entre les entrées doit correspondre au modèle de l'appareil.

La position des supports, les points de fixation sont marqués, des trous pour les chevilles du diamètre approprié sont percés à l'aide d'un perforateur.

Des adaptateurs d'angle, des excentriques (le cas échéant), puis des américains sont vissés sur les sorties du sèche-serviettes.

Brancher un sèche-serviettes électrique : instructions d'installation étape par étape

En option pour les modèles individuels, les adaptateurs sont d'abord vissés sur un diamètre de tuyau plus petit correspondant au câblage, par exemple 1/2 pouce, ce qui réduit le coût de l'ensemble de la structure dans son ensemble.

Lors de l'installation, un joint est utilisé - linge et graisse spéciale, les raccords filetés sur les raccords métalliques sont serrés uniquement sur le linge (fil de plomberie) à l'aide de clés.

Le sèche-serviettes est accroché aux supports, les américains (excentriques) sont connectés. Le système est rempli de liquide de refroidissement.

Branchement d'un sèche-serviette électrique

Une sécheuse électrique est un appareil de chauffage domestique qui ne nécessite pas de raccordement à l'alimentation en eau. L'installation de l'équipement est beaucoup plus facile, mais il est impératif d'assurer une isolation complète de l'électricité, car dans la salle de bain, toute fuite de courant peut mettre la vie en danger.Il est nécessaire d'effectuer une mise à la terre et de connecter un différentiel pour se protéger contre les surtensions.

Sortie principalement recommandée prises à l'extérieur de la salle de bain, mais l'appareil sans thermostat peut être branché sur une prise de la salle de bain. Si nécessaire, il peut être débranché pour réduire la consommation d'énergie. La prise doit être dotée d'un boîtier étanche à l'humidité et d'un couvercle isolant, et les fils doivent être cachés dans un stroboscope. Il est interdit d'installer la prise sur un mur donnant sur la rue, car cela pourrait provoquer des courts-circuits dus à la condensation.

Important! Si vous ne savez pas comment travailler avec le câblage électrique, il est préférable de confier le travail de raccordement d'un appareil électrique à un électricien professionnel.

Évaluation
Site sur la plomberie

Nous vous conseillons de lire

Où remplir la poudre dans la machine à laver et combien de poudre verser