- But de l'étui de protection
- Faire un cas
- Comment poser des autoroutes
- Aération et sécurité
- Comment est la distribution des conduites de gaz à l'intérieur de la maison
- Ce qui ne peut pas être fait avec le câblage interne des conduites de gaz
- Transfert de tuyau
- Délivrance d'un permis
- Préparation du processus
- Demande de service
- tube de contrôle
- Avantages des communications de gaz en polyéthylène
- Dans quels cas n'est-il pas permis d'utiliser des tuyaux en polyéthylène?
- Comment choisir le type de gazoduc
- Règles d'assemblage des systèmes hors sol
- Normes supplémentaires
- Exigences relatives aux tuyaux
- Tuyaux et câble électrique à l'intérieur
- Règles pour l'emplacement des tuyaux sur le site
- Restrictions de pose de tuyaux
- Zone de sécurité du gazoduc
- Installation de gazoducs externes : systèmes de contrôle automatisés
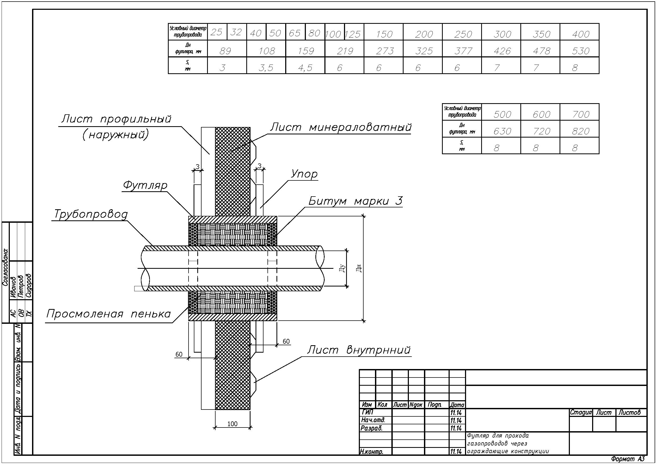
But de l'étui de protection
L'utilisation du boîtier est due non seulement à la protection du gazoduc lui-même contre les effets d'un environnement agressif et de divers dommages, mais également à la sécurité des autres. Tout le monde sait qu'une fuite de gaz est un phénomène très dangereux, donc une protection supplémentaire, dans ce cas, n'est pas un luxe, mais une condition nécessaire.
La pose de tuyaux à l'aide d'un étui de protection est strictement réglementée, conformément aux documents réglementaires - SNiP 42-01 et SNiP 32-01.Selon les exigences spécifiées dans le dernier document, non seulement le processus de pose des tuyaux lui-même est réglementé, mais également la distance à laquelle les extrémités du boîtier de protection doivent être situées.

En particulier, si nous parlons de voies ferrées, le boîtier de protection doit les traverser et avoir une longueur d'au moins 50 mètres à partir de la sortie. Une telle importance est justifiée par le fait que le gaz naturel est très explosif et que les trains ont une masse très élevée. En ce qui concerne les routes, les caisses doivent dépasser de la sortie à 3,5 mètres de celles-ci. De plus, il existe des instructions précises pour la profondeur de pose du pipeline, qui est d'environ un mètre et demi.
Faire un cas
Conformément à la même réglementation, les caisses doivent être réalisées en tubes d'acier. Le diamètre peut être différent, car tout dépend des paramètres du diamètre du gazoduc, mais, en général, le diamètre ne différera pas beaucoup, la propagation sera inférieure à 10 cm.
Comment poser des autoroutes
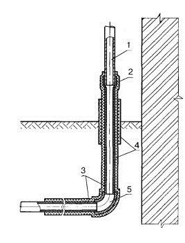
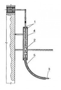
Il est permis de tirer le gazoduc par une méthode souterraine ou aérienne. Cette dernière technologie est la plus économique. La méthode de pose souterraine est considérée comme plus sûre. C'est ainsi que les gazoducs sont généralement tirés à travers les colonies. Cependant, la mise en œuvre de cette technique est plus coûteuse. En entretien, une telle autoroute est également plus coûteuse.
Certaines sections du réseau dans les grandes agglomérations peuvent être posées au-dessus du sol. Mais ils ne sont presque jamais trop longs. La pose en surface du gazoduc est également prévue sur le territoire des entreprises industrielles.
Avant de commencer l'installation du réseau, il est obligatoire d'établir son schéma.Le projet d'autoroute, selon la réglementation, doit être réalisé dans un plan topographique.

Aération et sécurité
Lors de l'installation d'un geyser, une cheminée doit être utilisée (lire: "Les nuances de l'installation de cheminées pour un geyser - conseils d'experts"). Un tuyau ondulé flexible en aluminium ne doit pas être utilisé à ces fins. Les tuyaux d'échappement pour la colonne ne peuvent être qu'en acier ou galvanisés. Un geyser, comme tout autre appareil de chauffage, est recommandé d'être équipé de fusibles : ils couperont l'alimentation en gaz en cas de panne de flamme.
Caractéristiques de l'aménagement d'un gazoduc dans la cuisine à partir de tuyaux métalliques à paroi mince:
- Les travaux commencent par la fermeture de la vanne d'alimentation en gaz.
- Si le tuyau de gaz dans la cuisine doit être déplacé, le gazoduc doit être pré-purgé pour éliminer tout gaz restant du système.
- Le tuyau de gaz sur le mur doit être très bien fixé. Pour ce faire, l'emballage du produit comprend des colliers et des supports: ils sont utilisés en tenant compte du diamètre et de la longueur du pipeline.
- Lors du passage d'un câble électrique à proximité de la canalisation de gaz, une distance de 25 cm doit être respectée entre eux.L'installation de gaz et le tableau électrique doivent être à 50 cm l'un de l'autre.
- Le système de cuisine à gaz ne doit pas être adjacent à des appareils de refroidissement tels qu'un réfrigérateur ou un congélateur. Si vous fermez les conduites de gaz avec un réfrigérateur, son radiateur surchauffera très probablement.
- Lors de l'installation de conduites de gaz à paroi mince, les radiateurs et une cuisinière à gaz doivent être retirés.
- Il est interdit de poser des conduites de gaz dans la cuisine à même le sol, sous l'évier, à proximité du lave-vaisselle.
- Lors des travaux de réparation, il est conseillé de ne pas utiliser de sources de lumière artificielle. La pièce doit être constamment ventilée.
Ces normes peuvent être suivies lors de l'exploitation des systèmes de gaz prêts à l'emploi et lors de l'installation ou du transfert de gazoducs.
Comment est la distribution des conduites de gaz à l'intérieur de la maison
Dans la documentation de conception, le tracé du gazoduc à travers le site doit être posé de manière à ce que le tuyau pénètre dans le mur des locaux non résidentiels. À cette fin, la chaufferie est parfaitement adaptée. Il est plus pratique d'effectuer une distribution de gaz interne à partir de celui-ci.
Dans les bâtiments existants, les règles autorisent la pose du tuyau à travers les pièces d'habitation. Cela s'applique aux situations où la disposition du bâtiment ne vous permet pas de choisir une autre option. Le gazoduc, appelé dans ce cas transit, ne doit pas comporter de vannes d'arrêt ni de raccords filetés. Cette exigence est tout à fait logique. Cela s'explique par la nécessité d'exclure les fuites de gaz dans les pièces à vivre.
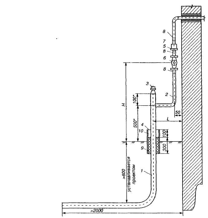
Pour faire entrer le gazoduc dans la maison, un trou est percé dans le mur principal et un manchon en acier (boîtier) y est placé. Les espaces formés entre le manchon et la paroi sont scellés avec un matériau élastique (douille en caoutchouc ou silicone). Les extrémités du manchon doivent dépasser du mur à une distance d'au moins 3 cm.Nous notons tout de suite qu'il est interdit d'insérer le tuyau à travers la fondation, ainsi que de le poser en dessous.
La principale méthode de câblage interne est ouverte. Bien sûr, l'apparence du gazoduc ne décore pas les lieux. Cependant, cela doit être accepté, car cette exigence est dictée par des considérations de sécurité.
La bonne nouvelle pour les propriétaires qui accordent beaucoup d'attention à l'esthétique de l'intérieur est que les règles permettent une installation cachée.Elle est réalisée en stroboscopes (sillons) taillés dans la surface des murs
Ils sont recouverts d'écrans facilement démontables équipés de trous de ventilation. L'amarrage du câblage de tuyau (fileté et soudé) posé à l'intérieur du stroboscope n'est pas autorisé. Toutes les conduites de gaz internes, y compris celles posées de manière cachée, doivent être peintes avec des peintures imperméables. Aux points de raccordement du tuyau à l'équipement à gaz, les règles exigent l'installation de vannes d'arrêt.
Méthode de raccordement des tuyaux La principale méthode de raccordement des segments de tuyaux à l'intérieur d'un bâtiment est le soudage électrique. Les raccords filetés et à brides ne sont autorisés que pour l'installation d'appareils de mesure et de gaz, de dispositifs d'arrêt et de régulateurs de pression. La réglementation exige que les connexions amovibles soient placées uniquement dans des endroits où l'accès est libre pour leur inspection et leur réparation.
Ce qui ne peut pas être fait avec le câblage interne des conduites de gaz
Les interdictions régissant les opérations d'installation ressemblent à ceci.
- L'installation de câbles de gaz dans les gaines de ventilation n'est pas autorisée.
- Les conduites de gaz à parois minces ne doivent pas traverser les ouvertures des portes et des fenêtres.
- Le gazoduc de la surface du sol doit être séparé d'au moins 2 mètres.
- La longueur des tronçons souples de la ligne principale ne peut être supérieure à 3 mètres, avec la fourniture obligatoire de la densité maximale des joints.
- Il est permis de poser des tuyaux dans des pièces bien ventilées, d'au moins 2,2 mètres de haut.
- Dans les endroits difficiles d'accès pour l'inspection et la réparation, le câblage est interdit. Une exception concerne les structures de revêtement mural facilement démontables.
- La ventilation de la cuisine, dans laquelle les conduites de gaz seront posées, ne peut pas être combinée avec d'autres pièces d'habitation.
- La finition du plafond et des murs situés à proximité de la conduite de gaz doit être réalisée en matériaux incombustibles.
- La fixation du gazoduc interne doit être fiable. A cet effet, des clips en acier et des colliers équipés d'un joint en caoutchouc doivent être utilisés.
Il existe un certain nombre d'exigences concernant la position relative de la distribution de gaz et des autres services publics, des appareils et équipements ménagers. Listons-les :
- Lors de la pose en parallèle, la distance entre le tuyau de gaz et le câble électrique doit être d'au moins 25 cm En cas d'intersection, l'écart doit être d'au moins 10 cm.
- Le panneau de distribution électrique doit être à au moins 50 cm de la canalisation de gaz.
- Un écart d'au moins 1 mètre doit être prévu entre le jeu de barres ouvert du câblage électrique et le tuyau de gaz.
- Il n'est pas recommandé de placer des congélateurs et des réfrigérateurs à proximité immédiate de la distribution de gaz. Le tuyau derrière le réfrigérateur nuit à la ventilation de sa calandre. En conséquence, une surchauffe et des dommages à l'appareil électroménager peuvent survenir.
- N'installez pas de conduites de gaz derrière la colonne de gaz et placez-les également à proximité d'appareils de chauffage et d'une cuisinière à gaz.
- Dans le coin cuisine, il est interdit de poser une canalisation au sol, sous les éviers et à côté des lave-vaisselle.
Transfert de tuyau
La décision de couper ou de déplacer le tuyau de gaz dans la cuisine appartiendra aux services concernés. Vous êtes seulement libre de proposer un redéveloppement du réseau et d'exprimer votre propre version. Et les professionnels vous diront si de tels changements sont réels, s'ils menaceront la vie des gens, et ils vous diront également combien vous coûtera une telle «mise à niveau». Où commencer? Où frapper ?
Tout transfert de canalisations doit être coordonné avec les services concernés.
Délivrance d'un permis
N'oubliez pas les instructions étape par étape pour les actions préparatoires et la coordination des plans de transfert des conduites de gaz :
- Contacter le service de gaz selon le lieu d'enregistrement. Il arrive que vous ayez besoin de «frapper» à une structure subsidiaire de cette organisation: tout vous sera expliqué sur place.
- Faire une demande. Vous recevrez un exemple d'appel, sur la base duquel vous devez rédiger des déclarations en votre nom sur le sujet des modifications que vous souhaitez apporter (la déclaration sert de base au maître pour vous rendre visite).
- Inspection du logement par un représentant du service gaz. Le maître vous écoutera, examinera tout, vérifiera, effectuera les calculs corrects (sous réserve du respect de toutes les normes). Ce n'est pas un fait qu'en même temps l'expert rejettera votre plan, il arrive, surtout avec une approche diligente et le propriétaire étudiant les normes, que le maître n'ait rien à corriger.
- Elaboration d'un budget. Ceci, en fait, est fait par le bureau que vous avez contacté.
- Approbation budgétaire. Lorsque le plan sera prêt, il vous sera remis afin que vous preniez connaissance des documents et que vous donniez votre consentement pour effectuer ce genre de travaux.
- Paiement. Si le devis vous convient, vous devrez payer pour ce service. Sinon, ne vous inquiétez pas, cela peut être amélioré, il vous suffit de dire au maître ce avec quoi vous n'êtes pas d'accord, et il trouvera une proposition de compromis.
Pensez à installer des robinets pour couper le gaz si vous souhaitez changer de poêle
Préparation du processus
Si le devis est accepté par vous, dans un délai de 5 jours (en règle générale), une équipe se rendra chez vous, prête à déplacer les tuyaux selon vos souhaits. Faut-il se préparer à l'arrivée des maîtres ? Si vous souhaitez que les travaux soient exécutés rapidement, efficacement et que votre maison ne soit pas endommagée par la visite des ouvriers, vous devez procéder comme suit :
- contacter les artisans et savoir si vous avez besoin de fournir des consommables (pour ne pas leur courir après pendant le travail de l'équipe, en cherchant frénétiquement quelqu'un à vous qui s'occupera de l'appartement, car des étrangers travaillent encore);
- libérer de l'espace où il est prévu de démonter et d'installer de nouvelles canalisations - les travailleurs doivent avoir un accès sans entrave au réseau ;
- couvrir toutes les surfaces de la cuisine, les appareils électroménagers et autres objets de valeur, car les artisans vont couper, cuisiner, épousseter et jeter (il est préférable d'utiliser des revêtements non combustibles comme matériau, par exemple une bâche, une toile de jute);
- fermez la vanne pour arrêter l'alimentation en carburant bleu des tuyaux.
La connexion du siphon simplifie le processus de connexion des éléments
Demande de service
Bien sûr, il sera intéressant pour vous de savoir comment couper le tuyau de gaz dans la cuisine et l'installer, car vous voudrez certainement contrôler le processus, voire risquer de faire tout le bloc de travail vous-même (c'est à vous de décider decider).
Alors, familiarisez-vous avec le processus par étapes:
- Après avoir coupé le gaz, soufflez dans les tuyaux afin d'enlever toutes sortes de débris.
- Coupez le fragment supplémentaire du système.
- Bouchez le trou qui apparaît.
- Faites un trou à un autre endroit - où vous prévoyez de connecter un nouveau segment de réseau (une perceuse est acceptable).
- Soudez la nouvelle structure à l'écart.
- Souder les autres pièces, si prévu par le projet.
- Installez un robinet.
- Sceller les joints avec du câble.
- Connectez l'appareil (poêle, colonne).
- Vérifier la qualité des travaux (si le transfert sera effectué par le service gaz, demander au capitaine une attestation d'achèvement).
Une dernière chose : s'il n'est pas possible de déplacer les tuyaux, imaginez un dessin pour les cacher.Maintenant, il existe de nombreux documents sur ce sujet, alors la chance vous sourira certainement.
Et la dernière chose: les conduites de gaz dans la cuisine ne sont pas un jouet, traitez tous les travaux liés au carburant bleu avec sérieux et responsabilité.
tube de contrôle
Tubes de contrôle l'extrémité libre est descendue dans la cuve à différentes profondeurs et se termine à des niveaux correspondant aux volumes contrôlés. Des vannes à pointeau d'arrêt sont vissées sur les extrémités extérieures des tubes, en ouvrant ce qui est déterminé par le flux de gaz sortant, ce qui se passe - gaz ou liquide, déchets. Lors de l'ouverture des vannes pour vérifier le niveau de gaz liquéfié, le personnel de service doit toujours mettre des gants sur ses mains et se trouver du côté du raccord de sortie de la vanne afin d'éviter que le jet de gaz sortant n'atteigne l'opérateur, en particulier sur des parties ouvertes non protégées de son corps. Dans les cas où la capacité d'évaporation des réservoirs est insuffisante pour alimenter les consommateurs en gaz, la tuyauterie des réservoirs avec des installations d'évaporation est utilisée.
| Soupape de sécurité de décharge. |
Tubes de contrôle l'extrémité libre est descendue dans la cuve à différentes profondeurs jusqu'aux niveaux de milieux contrôlés.
Tubes de contrôle sont plus efficaces sur un gazoduc situé au-dessus du niveau de la nappe phréatique. Dans certains cas, des dispositifs sont installés qui bloquent le chemin du gaz vers la zone dangereuse en cas de fuites et facilitent la possibilité de sa détection. La bande de terre ameublie assure la sortie du gaz vers l'extérieur lorsqu'il se propage du lieu de fuite vers les sous-sols et les bâtiments.Pour contrôler les fuites et évacuer les gaz dans la direction souhaitée, dans certains cas, des drains ouverts en permanence sont disposés, similaires à des tubes de contrôle.
tube de contrôle est un tube en forme de U rempli de chaux sodée et de chlorure de calcium en quantités approximativement égales. Les couches de chlorure de calcium et de chaux sodée doivent être séparées en bas avec un petit morceau de coton (Fig. 45) et en haut, elles ne doivent pas atteindre 6 mm des tubes de décharge latéraux; d'en haut, ils sont recouverts de morceaux de coton; le tube est fermé avec des bouchons et rempli de mastic Mendeleïev. Des tubes en caoutchouc sont également placés sur les tubes latéraux, fermés avec des restes d'une tige de verre.
| Principales caractéristiques des soupapes de sûreté. |
tube de contrôle (Fig. VI-33) est constitué d'un tube en acier de diamètre 2, dont l'extrémité inférieure est soudée à une enveloppe en tôle d'acier de 2 à 3 mm d'épaisseur et de 350 mm de largeur, pliée en forme de demi-cercle et généralement placé au-dessus du joint du gazoduc. L'espace entre le tubage et le gazoduc est rempli d'une couche de pierre concassée ou de gravier. L'extrémité supérieure du tube de contrôle est munie d'un bouchon, ramené à la surface de la terre et protégé par un kb-ver.
| dispositif de tube de contrôle. |
Tubes de contrôle sont d'une grande importance pour une supervision opérationnelle appropriée ; ils sont le principal dispositif permettant de vérifier la densité du gazoduc à partir de la surface de la terre.
Tubes de contrôle ne peut être attribuée que conditionnellement aux dispositifs qui protègent les réseaux de gaz souterrains contre les dommages.Leur tâche principale n'est pas de protéger, mais de créer des conditions permettant la détection rapide d'une fuite de gaz d'un tuyau, en prenant des mesures urgentes pour protéger le gazoduc contre d'autres dommages, ainsi que pour éliminer les conséquences possibles d'une fuite.
Tubes de contrôle sont installés le long du tracé du gazoduc à certaines distances, ainsi qu'aux points du gazoduc, pour lesquels il est souhaitable d'effectuer une surveillance opérationnelle systématique.
| Dispositif de contrôle Installation pour tubulure d'aspiration des gaz du sol. |
Tubes de contrôle sont d'une grande importance pour une supervision opérationnelle appropriée ; ils sont le principal dispositif permettant de vérifier la densité du gazoduc à partir de la surface de la terre.
Tubes de contrôle sont amenés à la surface de la terre sous le tapis conformément aux prescriptions du 2 - 1 - 5 du présent Règlement.
| Tête de réservoir. |
Avantages des communications de gaz en polyéthylène

Les tuyaux en polymère présentent un avantage indéniable par rapport aux produits en acier similaires, car :
- Ils ne sont absolument pas sujets à la corrosion sous l'influence d'un environnement agressif. Cela permet d'obtenir une estimation des coûts moindre pour la construction, l'entretien et la réparation du gazoduc.
- Le polymère est très facile à traiter (couper et souder) si nécessaire pour s'adapter au tuyau.
- La technologie de fabrication des tuyaux en polyéthylène permet de rendre leurs parois intérieures absolument lisses, ce qui augmente considérablement le débit du gazoduc.
- Pendant le fonctionnement de tels tuyaux, leur débit ne diminue pas en raison du colmatage des parois avec diverses substances, car ils sont très lisses et élastiques.
- Le polymère à partir duquel les tuyaux sont fabriqués ne peut pas entrer en réaction chimique avec d'autres produits chimiques. Par conséquent, le pipeline ne nécessite pas de protection supplémentaire.
- Le polyéthylène n'est pas conducteur d'électricité. C'est pourquoi les tuyaux fabriqués à partir de celui-ci ne craignent pas l'apparition de courants vagabonds, ce qui pourrait entraîner un accident à la suite d'une explosion de gaz. Autrement dit, lors de l'utilisation de tuyaux en polyéthylène pour la pose de communications de gaz souterraines, il n'est pas nécessaire de les placer dans un boîtier en acier coûteux, ce qui nécessiterait une augmentation du coût de construction.
- Les tuyaux en polyéthylène ont une excellente flexibilité, ce qui est très bon lors de la pose de gazoducs en utilisant la méthode de forage directionnel horizontal, lorsque le puits a des virages suffisamment serrés pour contourner divers obstacles. Par exemple, le rayon de courbure maximal d'un tel tuyau peut atteindre une valeur égale à 10 fois son diamètre extérieur. Cela vous permet de réduire considérablement le coût d'achat des éléments de connexion.
- Le polymère a un poids nettement inférieur (7 fois !) au poids d'un tuyau similaire en acier. Cette propriété facilite grandement la pose du gazoduc, ce qui réduit considérablement le coût de sa construction.
- Les tuyaux en polyéthylène ont une excellente résistance aux températures extrêmes, ce qui augmente la fiabilité des communications de gaz. Les fabricants garantissent qu'un gazoduc composé de tuyaux en polyéthylène durera 50 ans ou plus sans dégrader ses performances d'origine (c'est presque trois fois plus longtemps que la période de garantie des tuyaux de gaz en acier).
Cependant, malgré tous les avantages des tuyaux en polymère, il existe un certain nombre de restrictions qui ne permettent pas la construction de gazoducs les utilisant.
Dans quels cas n'est-il pas permis d'utiliser des tuyaux en polyéthylène?
Il existe un certain nombre de conditions qui limitent l'utilisation de tuyaux en polymère dans la construction de gazoducs souterrains. Il est interdit d'utiliser des tuyaux en polyéthylène :
- Si le gel du sol est possible dans les conditions de la zone donnée, à la suite de quoi la température de la paroi du tuyau peut descendre en dessous de -15 ° C (ceci est possible à une température ambiante inférieure à -45 ° C).
- Si le flux de gaz de pétrole liquéfié à travers eux est fourni.
- Dans la zone où des tremblements de terre sont observés, dont la magnitude dépasse 7 points, s'il est impossible de fournir une inspection par ultrasons de l'intégrité des soudures.
- Lors de l'aménagement de gazoducs de type terrestre (aérien), externe et interne, ainsi que lors de la pose de tuyaux à l'intérieur de tunnels, de canaux et de collecteurs.
- Lorsque le gazoduc franchit divers obstacles, naturels et artificiels (par exemple, sur des routes ou des voies ferrées).
Maintenant, ayant quelques connaissances sur le choix du type de gazoduc et les règles de pose, vous pouvez commencer à parcourir toutes les étapes de la construction des communications gazières dans votre région.
Comment choisir le type de gazoduc
Il existe deux types de gazoducs individuels : les parcours aériens et souterrains. Dans chaque option, le gazoduc est connecté à sa manière, la distribution du gaz dans toute la maison, les locaux et les étages s'effectue de la même manière: il suffit de se conformer aux exigences et aux normes de snip.Le coût des travaux dépend du raccordement au gaz choisi: les conduites de gaz souterraines dans une maison privée, dont les normes d'installation sont décrites dans les cisailles ci-dessus, sont beaucoup plus chères à poser en raison du grand volume de terrassement - d'environ 50-60 %. Cependant, cette solution est considérée comme plus fiable en raison des points suivants :
- La voie souterraine du gaz est mieux protégée de l'environnement - températures extrêmes, humidité et vent, et il est presque impossible d'endommager mécaniquement un tel pipeline, ce qui, en raison de la combinaison de conditions, rend la durée de vie des conduites de gaz beaucoup plus longue qu'avec le sol installation.
Gazoduc souterrain
- L'avantage d'un gazoduc terrestre est son faible coût. De plus, la composition du sol sur le site du gazoduc peut être telle que le métal dans le sol rouillera et s'effondrera rapidement, ce qui ne se produira pas lorsque les tuyaux seront posés à la surface. Et le dernier avantage: avec une grande longueur de conduites de gaz, il est moins coûteux de les étirer dans les airs plutôt que de creuser des tranchées pour elles, de les isoler et de les protéger des influences agressives.
Transport aérien de gaz par conduites
Règles d'assemblage des systèmes hors sol
Les exigences pour la pose de gazoducs de ce type sont les suivantes:
- au-dessus du sol, le gazoduc doit être situé à au moins 2,2 m aux endroits où les gens passent, 5 m - au-dessus des routes, 7,1 m - au-dessus des voies de tramway, 7,3 m - aux endroits où circulent les trolleybus;
- la distance entre les supports fixes de la ligne doit être égale à un maximum de 100 m avec un diamètre de tuyau jusqu'à 30 cm, 200 m - jusqu'à 60 cm, 300 m - plus de 60 cm;
- les conduites de gaz en acier destinées à être posées au-dessus du sol doivent avoir une épaisseur de paroi d'au moins 2 mm.
Les conduites de distribution de gaz dans les petites agglomérations sont souvent posées sur des supports.La distance entre ces derniers dépend directement du diamètre des tuyaux. Ainsi, pour Du-20, ce chiffre sera de 2,5 m, Du-50 - 3,5 m, Du-100 - 7 m, etc.
Normes supplémentaires
Les résolutions adoptées prenaient soin de toutes les normes de distances du gazoduc aux communications. Il existe des tableaux de référence dans les normes PUE et la distance minimale prévue pour les conduites de gaz dans les canalisations principales, les bâtiments résidentiels et industriels.
Câble d'alimentation
Tout ce qui concerne des cas spécifiques pouvant constituer un danger accru - d'un énorme viaduc à une prise électrique dangereusement proche d'un mince tuyau de gaz relié à une cuisinière - dépend du type de câble et de la tension, de la pression du gaz et de son type. En cas de doute, mieux vaut toujours jouer la sécurité et vérifier ses calculs avec un spécialiste plutôt que de mettre en danger le monde qui nous entoure.
Exigences relatives aux tuyaux
Le "combustible bleu" dans les systèmes souterrains peut être fourni par des conduites en acier ou en polyéthylène. L'avantage de ce dernier est sa résistance à la corrosion et son coût relativement faible. Cependant, les normes n'autorisent pas toujours l'utilisation de canalisations en polyéthylène pour le transport du "carburant bleu". Par exemple, la pose de gazoducs souterrains utilisant un tel matériau est impossible:
- sur le territoire des colonies avec une pression de gaz supérieure à 0,3 MPa;
- en dehors du territoire des agglomérations à une pression supérieure à 0,6 MPa;
- pour la phase liquide de SGU ;
- à une température de la paroi du pipeline inférieure à 15 degrés.
Facteur de résistance des tuyaux utilisés pour pose de réseaux extérieurs de gaz, doit être au moins égal à 2.
Les conduites de gazoduc en acier peuvent être à la fois sans soudure et soudées. Pour un système souterrain, des lignes similaires avec une épaisseur de paroi d'au moins 3 mm peuvent être utilisées. Il est permis d'utiliser à la fois des tuyaux à joint droit et ceux à joint en spirale pour le transport de gaz.
Tuyaux et câble électrique à l'intérieur
Dans le PUE-7, adopté par le ministère de l'Énergie, il existe une sous-section spéciale qui détaille toutes les distances et les écarts essentiels entre les prises électriques, les interrupteurs, les câbles et les tuyaux pour les fils de gaz, dont le diamètre commence à partir d'une certaine valeur.
Normes de distance aux réseaux d'ingénierie selon SNiP
Le support de la ligne aérienne 0,4 kV peut être installé à une distance de 2 m de la clôture ou de la clôture. L'emplacement de la façade du bâtiment est prévu par le SNiP concerné, et à l'intérieur de l'espace attenant, chaque centimètre peut être important.
Les conditions auxquelles les fils et les câbles sont limités dépendent de plusieurs facteurs :
- le milieu destiné à la pose (zones sèches, humides, locaux de toute nature ou installations montées à l'extérieur) ;
- différents types de fils électriques : unipolaires ou bipolaires, protégés et non protégés, câbles sous gaine métallique ou sous couche isolante d'un autre type ;
- la tension à laquelle ce type de câblage est orienté est de 220 ou 380 V ou ses autres valeurs ;
- pose sous forme de ligne aérienne verticalement ou horizontalement;
- dans un bâtiment privé ou un bâtiment public, dans des bâtiments industriels ;
- sous forme de fils spéciaux avec un câble porteur, pour lesquels des câbles avec différents nombres d'âmes et des types variables de gaine isolante peuvent également être utilisés.
Tableau des distances aux structures selon la réglementation
Tout cela est indiqué dans le PUE comme critère essentiel pour la sécurité des personnes, des bâtiments et des ouvrages. Par conséquent, lors de l'installation, un placement variable est utilisé - dans des niches ou dans des stroboscopes spéciaux, et comme mesure de protection supplémentaire, une couche isolante de matériaux de construction courants classés comme ignifuges dans le PUE est utilisée.
Lors de la construction d'une maison, lorsqu'ils conduisent simplement de la lumière, il existe des normes d'isolation particulières, mais elles sont conçues pour les cas où il y a des matériaux franchement combustibles à proximité du fil ou du câble d'alimentation. Ensuite, la couche d'isolation ne peut pas être inférieure à 10 cm.
Tableau des distances des réseaux d'ingénierie conformément aux normes du SNiP (SP)
Dans le PUE-6, la distance entre les conduites de gaz et tout type de câble dépend du type de combustible. Si le gaz est explosif et présente une menace accrue, la distance habituelle à la lumière de 50 mm est doublée - jusqu'à 100 mm. Des deux côtés du câblage électrique, il doit y avoir une protection contre les influences mécaniques sur le câble, elle est réalisée des deux côtés du tuyau pour le passage du gaz.
Lors de la pose d'un parallèle industriel de tuyaux avec un gaz relativement neutre et un câble électrique, un jeu de 100 mm peut être laissé. Mais la ligne électrique et le tuyau du gazoduc ne peuvent approcher plus de 40 mm.
Gazoduc haute pression
Ce n'est pas tout, mais seulement les conditions les plus générales. Lors de la pose d'un câble dans une construction privée, il est préférable de calculer immédiatement la disposition et de consulter un électricien professionnel. Cela est particulièrement vrai dans les pièces où des conduites d'eau chaude sont fournies en même temps, passant avec des conduites de gaz ou d'électricité à l'intersection.
Le métal et l'acier ne conviennent pas à cet usage, en particulier dans les pièces humides et exiguës ou dans les installations extérieures.
Gazoduc près de la ville
Règles pour l'emplacement des tuyaux sur le site
La pose de systèmes de gaz sur le terrain peut être effectuée:
- dans le sol. Le gazoduc interne vous permet d'économiser l'espace utilisable du site et de "masquer" les principales communications;
- le long de la surface. La tuyauterie extérieure coûtera moins cher, mais les tuyaux qui traversent le site limitent l'espace.
Lors de la construction de tout type de canalisation, il est nécessaire de suivre les règles de pose des canalisations, qui sont établies par le SNIP 42-01-2002.
Restrictions de pose de tuyaux
À quelle distance de la conduite de gaz les fondations de la maison doivent-elles être situées? La distance entre la maison et le pipeline dépend des paramètres du système de communication, en particulier de la pression :
- une conduite à basse pression (pas plus de 0,05 kgf / cm²), typique des conduites alimentant en carburant des consommateurs privés, doit être située à au moins 2 m;
- une canalisation avec des indicateurs de pression moyenne (de 0,05 kgf / cm² à 3,0 kgf / cm²) utilisée pour la pose de systèmes centraux peut être située à une distance de 4 m;
- un système de canalisation à haute pression (jusqu'à 6,0 kgf/cm²), qui fournit du gaz aux entreprises et aux complexes économiques, ne peut passer qu'à une distance de 7 m ou plus.
Variétés de gazoducs par pression
La tuyauterie extérieure ne doit pas passer :
- à une distance inférieure à 50 cm des ouvertures des fenêtres et des portes ;
- à une distance inférieure à 20 cm du toit du local ;
Les distances aux autres communications (approvisionnement en eau, égouts, etc.) sont présentées dans le tableau suivant.
L'emplacement des conduites simples par rapport aux autres communications
Zone de sécurité du gazoduc
Outre les règles d'emplacement des conduites, lors de la pose d'un gazoduc, la présence d'une zone de sécurité doit également être prise en compte.
Sous la zone de sécurité du système de gazoduc, on entend la distance entre le tuyau de communication et deux lignes conditionnelles parallèles d'un côté et de l'autre.
En fonction de la pression dans la conduite d'alimentation en gaz, la taille de la zone de sécurité est de :
- pour les canalisations basse pression - 2 m;
- pour les lignes avec une valeur de pression moyenne - 4 m;
- pour tuyaux à haute pression - 7 m.
La zone spéciale du système d'alimentation en gaz peut être augmentée :
- pour les canalisations en tuyaux en polyéthylène (jusqu'à 3 m);
- pour les autoroutes posées dans des conditions de pergélisol (jusqu'à 10 m);
- pour les systèmes posés sous l'eau (jusqu'à 100 m);
- pour les voies tracées en ceinture forestière (jusqu'à 3 m).
La taille de la zone tampon est indiquée sur la plaque signalétique installée sur la canalisation.
Présence et taille de la zone tampon
Dans la zone de sécurité, il est interdit :
- construction de toutes structures;
- disposition des puisards;
- disposition des lieux de stockage des composés toxiques et chimiquement actifs;
- installation de clôtures et autres barrières. La distance minimale de la clôture est déterminée par la taille de la zone protégée ;
- allumer un feu;
- cultiver le sol à plus de 30 cm de profondeur (pour les réseaux souterrains).
Installation de gazoducs externes : systèmes de contrôle automatisés
Ces équipements sont conçus pour assurer les meilleures performances des autoroutes. Les systèmes de contrôle automatisés (APCS RG) ont une structure centralisée. Leurs principaux éléments sont :
- points contrôlés (CP) installés sur les autoroutes extérieures ;
- salle de contrôle centrale (niveau supérieur).
- systèmes de distribution de gaz (niveau inférieur).

La salle de contrôle centrale comprend plusieurs postes de travail, unis à l'aide de réseaux informatiques. Les systèmes de contrôle automatisé des gazoducs sont utilisés :
- aux fins du contrôle opérationnel de la distribution ;
- surveiller l'état de l'équipement;
- comptabilisation du débit et du débit de gaz.






































