- charpente
- Pose de bidet suspendu
- Mise en place mise en place
- Fixation du bidet à l'installation
- Lien
- Caractéristiques de conception
- Mise en place mise en place
- Choisir un endroit pour installer un WC suspendu
- Préparation salle de bain
- Installation d'une cuvette de WC sans pose sur un socle en béton
- L'appareil et le schéma de l'installation
- Châssis porteur en acier
- Réservoir à déchets en plastique
- Types de cuvettes de toilettes
- Comment installer une toilette conventionnelle
- Se préparer à installer
- Préparation de niche
- Conseils d'installation de bricolage
- Comment installer un WC suspendu avec installation
- Installation d'auto-installation de la cuvette des toilettes
- Conception de réservoir suspendu avec installation
- Le choix de l'emplacement et du schéma d'installation des toilettes
- Outils d'installation
- Instructions d'installation
- Raccordement des conduites d'eau et des égouts
- Bardage en faux panneaux
- Fixation des toilettes suspendues
- Sur quoi se concentrer ?
charpente
Vous devez d'abord choisir un endroit où la structure sera installée. Lors du choix d'une installation appropriée, tenez compte de l'épaisseur de la cloison ou du mur
Il faudra également faire attention aux caractéristiques de l'assainissement
Les travaux d'installation doivent être effectués dans un certain ordre.
- Assemblez le cadre. Il sera nécessaire de fabriquer un cadre en métal, où se trouvent les attaches mobiles.Le bac de vidange sera fixé dessus. Étant donné que les supports sont flottants, vous pouvez définir une hauteur appropriée à laquelle les appareils sanitaires seront fixés. Le châssis peut supporter un poids très important (jusqu'à 500 kg).
- Ensuite, vous devez installer le réservoir. Une petite distance doit être laissée entre le mur et le réservoir (environ 15 mm). Positionner le bouton de vidange à une distance de 100 cm du sol.


- Fixez la structure assemblée au mur. Pour ce faire, vous devez utiliser le niveau du bâtiment. Apportez d'abord le cadre au mur et marquez l'endroit où vous ferez les trous de montage.
- Dirigez le pipeline vers le réservoir. La direction est latérale ou supérieure. Il est préférable de ne pas choisir de flexibles pour le raccordement du réservoir, sinon il est tout à fait possible que ces éléments tombent en panne dans les plus brefs délais. Il est recommandé d'opter pour des tuyaux en plastique.
- Ensuite, le système doit être raccordé à l'égout. Pour cela, l'ondulation est utilisée.


- Vérifiez le fonctionnement de l'installation. Inspectez tous les éléments de connexion : il ne doit y avoir aucune fuite. Si tout est en ordre, vous pouvez fermer le cadre.
- Procéder à l'installation de boîtes à gypse. Le cadre de la boîte doit être en profilé métallique. Il est recommandé d'opter pour des cloisons sèches, très résistantes à l'humidité (surtout dans les cas où il y a à la fois une baignoire et des toilettes dans la même pièce). Il est préférable de choisir des feuilles d'une épaisseur de 10 mm. Vous pouvez poser des cloisons sèches en deux couches. Il est nécessaire de pré-découper tous les trous nécessaires dans les feuilles.
- Installer une toilette. L'installation peut être effectuée une dizaine de jours après l'installation du coffret. Les sanitaires doivent être installés sur des broches. Vous pouvez revêtir la boîte avant ou après l'installation des toilettes.


Pose de bidet suspendu
L'installation d'un bidet suspendu consiste dans le passage systématique des étapes suivantes :
- mise en place mise en place ;
- réparer un appareil de plomberie;
- raccordement à l'égout et à l'adduction d'eau.
Mise en place mise en place
L'installation de l'installation de bidet s'effectue selon le schéma suivant:
- un évidement est pratiqué dans le mur pour le montage de l'installation. Les dimensions de l'évidement doivent être légèrement supérieures aux dimensions globales de l'appareil ;
- des conduites d'eau et une entrée d'égout sont reliées à l'endroit de la fixation proposée du bidet;
- va être installé. Des instructions de montage détaillées sont jointes à chaque appareil, donc cette étape, en règle générale, ne pose pas de problèmes;
- des marquages sont faits sur le sol et le mur arrière pour le montage de l'appareil;
- les trous pour les boulons de montage sont préparés ;
- l'installation est fixe ;
- l'espace ouvert peut être cousu avec des cloisons sèches ou d'autres matériaux sélectionnés.
Assemblage et fixation de l'installation pour le montage d'un bidet suspendu
Lors de l'installation de l'installation, il est important de respecter strictement la géométrie de l'appareil et le parallélisme des principaux éléments de la surface du sol
Fixation du bidet à l'installation
Comment installer un bidet à l'installation? Pour ce faire, plusieurs étapes sont suivies :
- des goujons sont insérés dans des trous spéciaux pour fixer le bidet. Pour plus de solidité, des poteaux métalliques sont fixés au mur arrière de la salle de bain;
Boulons pour fixer le bidet à l'installation
- un joint spécial est installé sur l'installation pour protéger les sanitaires. Si le joint n'est pas fourni avec l'installation, il peut être remplacé par un mastic silicone ordinaire. La composition d'étanchéité est appliquée sur la zone de fixation de l'appareil de plomberie et attend qu'elle sèche complètement ;
Installation d'un joint pour protéger l'appareil de plomberie
- le bidet est fixé sur des goujons avec des boulons.
L'installation du bidet avec l'installation est terminée. Il reste à connecter l'appareil de plomberie à l'alimentation en eau et aux égouts.
Lien
Raccordement d'un bidet : les instructions doivent être fournies avec l'appareil de plomberie. Dans la plupart des cas, la connexion se fait de la manière suivante :
- un mélangeur intégré est installé à l'endroit où les conduites d'eau sont connectées;
- des tuyaux flexibles relient l'appareil aux tuyaux de bidet de l'alimentation en eau centrale.
Lors du raccordement des flexibles, il est important de veiller à une étanchéité maximale. Dans certaines situations, les joints réguliers installés aux extrémités de l'eye-liner ne suffisent pas
Pour sceller le raccord fileté, il est recommandé d'utiliser du lin ou du ruban FUM.
Alimentation en eau du bidet
L'appareil de plomberie est relié à l'égout par un siphon. Cet appareil est indispensable :
- le siphon est relié au trou de vidange du bidet. Entre l'appareil sanitaire et le siphon, des anneaux en caoutchouc sont nécessaires pour sceller le drain;
- le tuyau ondulé du siphon est inséré dans l'entrée d'égout, qui était auparavant connectée à l'installation. Cette méthode de connexion est considérée comme la plus optimale et permet d'effectuer des réparations en peu de temps, même si un élément doit être remplacé.
Raccordement de la vidange du bidet au tuyau d'égout
Ainsi, connaissant les instructions les plus simples et disposant de l'ensemble d'outils nécessaire, vous pouvez installer et connecter un bidet de tout type de vos propres mains.
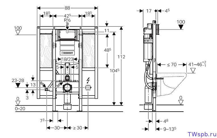
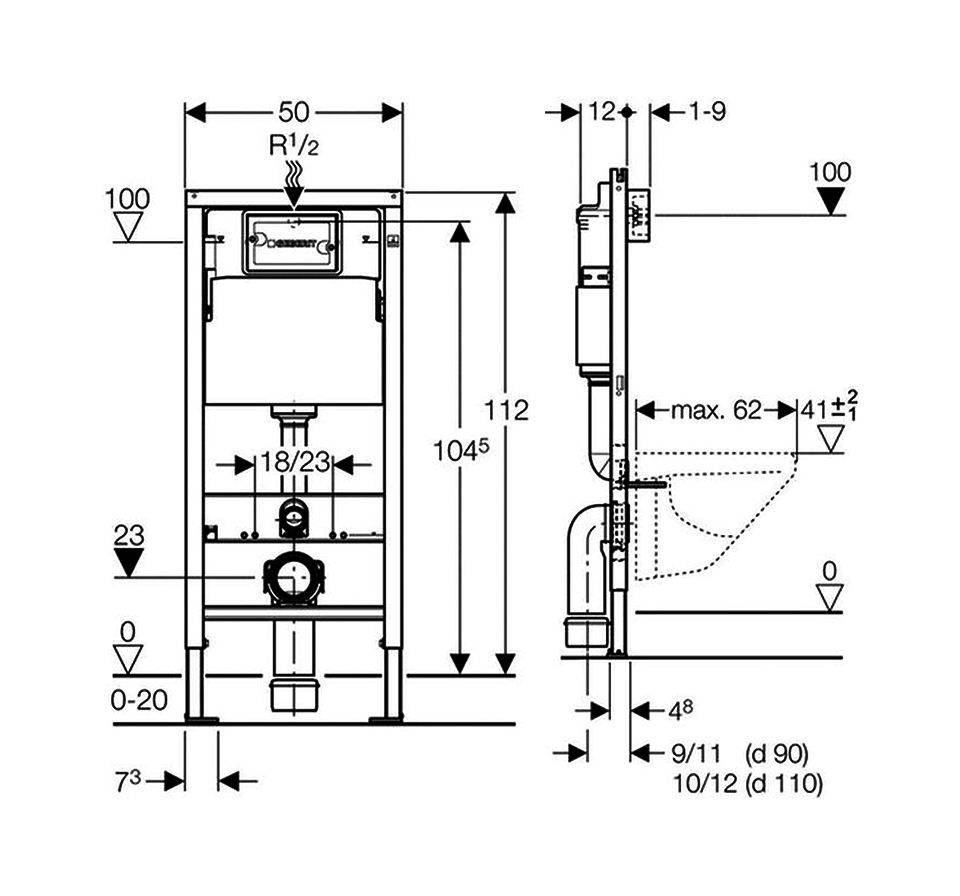
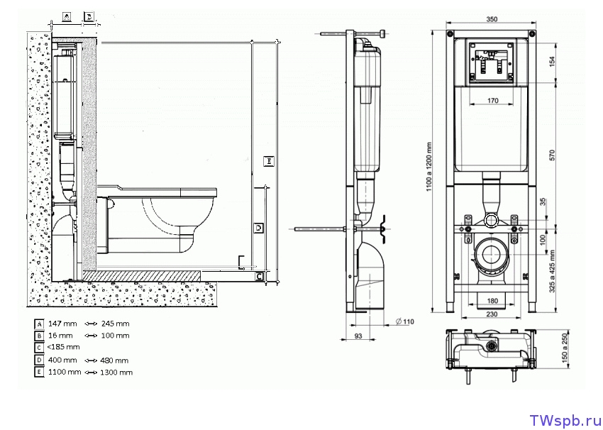
Caractéristiques de conception
Avant de procéder directement à l'installation, vous devez comprendre la conception.L'installation d'une cuvette de toilettes murale deviendra beaucoup plus facile lorsque sa structure et son principe de fonctionnement seront connus. Il deviendra immédiatement clair comment agir correctement et ce qui est nécessaire.

La principale caractéristique du produit est que seul le bol reste en vue.
La base de toute la structure est un cadre métallique solide. La partie visible lui est directement fixée. C'est à partir de cet élément que tous les travaux d'installation commencent. Le cadre doit être solidement fixé au mur et être stable au sol. De ce fait, il devrait facilement supporter un adulte. Sur cette base, nous pouvons dire que la fixation du cadre à un mur faible ne fonctionnera pas.
Le cadre comporte un élément qui vous permet de modifier la hauteur du bol, qui est fixé à l'aide de broches spéciales. Ce sont les principales attaches lors de l'installation de l'installation des toilettes.
Une option courante pour attacher deux installations à la fois est une toilette et un bidet.
Le deuxième élément est un réservoir de vidange en plastique. Il se cache aussi dans le mur. Il a une forme spécifique, parce que. doit tenir dans un espace limité. Le réservoir est également installé dans un cadre métallique et est isolé avec un matériau spécial qui empêche la formation de condensat. Sur la paroi avant du réservoir, il y a une découpe pour le montage d'un bouton de vidange. Les modèles modernes, y compris ceux au sol, ont un débit d'eau dosé - 3 ou 6 litres.
L'élément suivant est la cuvette des toilettes. La seule partie qui est visible et en utilisation active. Il a une forme traditionnelle, mais certains modèles design ont des configurations originales.
Le paquet contient toutes les pièces et accessoires nécessaires.Les instructions ci-jointes peuvent également montrer la séquence d'installation complète de l'installation des toilettes.
Mise en place mise en place
L'installation d'une installation de toilettes à faire soi-même sur un cadre spécial fixé au mur est un processus plus coûteux, mais plus rapide et plus fiable. L'installation sera fixée au sol et à un mur solide.
La séquence technologique est la suivante :
1. Fixation du cadre métallique. Il a des trous correspondants avec lesquels il est fixé aux surfaces avec des chevilles. Deux points de fixation au sol et deux au mur. Les conduites d'égout et d'eau sont raccordées au site d'installation. La planéité du cadre installé doit être vérifiée à l'aide d'un niveau à bulle. Il est nécessaire de maintenir un parallélisme exact avec le mur en cours d'installation, car même de légères distorsions peuvent entraîner des interruptions de fonctionnement et même des pannes. Le réglage horizontal est effectué à l'aide de supports muraux qui changent de position.
Cette étape consiste également à régler la hauteur des toilettes suspendues. Cela dépendra de la taille des résidents, généralement de 0,4 m. La hauteur du bol peut être ajustée à l'avenir.
2. Menant au réservoir de vidange d'eau. Vous pouvez utiliser un système souple ou rigide. Les professionnels utilisent souvent dur, parce que. elle peut durer plus longtemps. Des tuyaux flexibles peuvent également être utilisés, mais s'ils échouent, il ne sera pas possible d'y accéder et de les remplacer rapidement. Lors de l'installation de la doublure, la vanne du réservoir, ainsi que la vidange de celui-ci, doivent être fermées.
Après connexion, vérifiez la fiabilité des connexions. Pour ce faire, ouvrez l'arrivée d'eau et commencez à remplir le réservoir. S'il y a des fuites, elles sont réparées. De l'eau peut rester dans le réservoir.
3. Raccordement à l'égout. Le trou de vidange des toilettes doit être inséré dans la sortie du tuyau d'égout à l'aide de l'ondulation appropriée, mais certains modèles peuvent être connectés sans l'utiliser. A la fin du raccordement, vérifier l'étanchéité du système par des drains d'essai. Pour ce faire, vous devrez visser temporairement le bol au cadre. Après cela, supprimez-le à nouveau, il sera installé dans l'installation finale.
Le raccordement correct du tuyau d'égout doit être effectué avant même le début de l'installation. Diamètre du tuyau - 100 mm. Il doit être posé avec une pente appropriée. Vous pouvez lire à ce sujet dans l'article correspondant.
4. Fermeture avec plaques de plâtre. L'installation d'un WC suspendu doit s'accompagner d'une finition décorative d'éléments fonctionnels. Pour finir les salles de bains, vous devez acheter une double cloison sèche étanche. Il est plus durable que la normale. Les feuilles doivent être montées sur des profilés métalliques et directement sur le cadre des toilettes. Les instructions d'installation doivent contenir les informations nécessaires sur la méthode de découpe, en indiquant les points de découpe des trous.
Le revêtement peut être réalisé de deux manières: sur toute la surface du mur ou uniquement le long du plan d'installation. La deuxième méthode implique la formation d'une petite étagère au-dessus du bol, qui peut être utilisée pour placer les objets nécessaires.
Par la suite, la barrière installée est finie avec des carreaux ou des panneaux avec le reste de la surface de la pièce.
5.En conclusion, il faut installer les toilettes sur l'installation, à savoir la cuvette. Il doit être accroché à l'endroit approprié à l'aide de deux attaches.
6. La dernière étape, la plus simple, consiste à installer le bouton de chasse. Ils sont pneumatiques et mécaniques. Le processus n'est pas difficile, parce que. tout doit déjà être connecté à l'ouverture requise dans le mur. Le bouton mécanique est installé à l'aide de broches spéciales avec leur réglage ultérieur. Pour le pneumatique, il vous suffit de connecter les tubes appropriés, tout est prêt.
En cours d'activité, il est nécessaire de contrôler en particulier le processus de montage du cadre d'installation,
car le déroulement de l'installation ultérieure dépendra de l'exactitude. Comprendre comment installer une installation de toilettes n'est en fait pas difficile. Il suffit de suivre les recommandations des instructions d'installation, et en plus de regarder la vidéo correspondante sur le processus, et vous réussirez.
Les appareils de plomberie suspendus gagnent progressivement en popularité, en particulier chez les propriétaires de petites salles de bains. Cependant, tout le monde n'aime pas les toilettes suspendues - à l'extérieur, elles semblent instables et peu fiables. Cette impression est trompeuse, car elle est réalisée à l'aide du système d'installation, qui est caché derrière le matériau de finition du mur. Examinons plus en détail les avantages des objets de plomberie suspendus et familiarisons-nous avec les instructions pour leur installation.
Choisir un endroit pour installer un WC suspendu
Toute cuvette de WC, même posée au sol, même suspendue, doit être installée le plus près possible de la colonne montante d'égout. Ce serait une grave erreur d'installer ce sanitaire à quelques mètres de la canalisation précitée ou même dans une autre pièce.Ce n'est que dans les films que vous pouvez voir comment les tuyaux d'égout se promènent au hasard dans toutes les pièces de l'appartement sans aucun système, négligeant le niveau de pente, que connaissaient les anciens Romains, qui ont construit les aqueducs.
Par exemple, dans le film français "Pas un moment de paix" avec Christian Clavier dans le rôle-titre, on voit comment les tuyaux d'évacuation ont été détruits lors du démantèlement du bureau, et l'eau de la baignoire a inondé non seulement le bureau, mais aussi les voisins. Je ne vais pas décrire ici toutes les bourdes de plomberie du film. C'est drôle, mais les vannes d'arrêt qui coupent l'eau dans les colonnes montantes étaient également dans le bureau.
Dans les films, ils enseignent, après avoir entendu un coup alarmant à la porte la nuit, à se débarrasser de la drogue et de l'argent en les jetant dans les toilettes. Si vous n'excluez pas la possibilité que vous ayez besoin de rincer quelque chose comme ça, installez les toilettes plus près de la colonne montante, mon conseil pour vous.
L'eau dans le réservoir de stockage ne suffit pas à donner l'énergie nécessaire et à laver toute la «richesse» que vous avez accumulée à quelques mètres de la colonne montante, et vous serez pris en flagrant délit.
Même Aristote a soutenu qu'"un corps en mouvement s'arrête si la force qui le pousse arrête son action". Nous n'avons aucune raison de ne pas faire confiance à Aristote à ce sujet, c'est pourquoi les toilettes suspendues se sont vu attribuer une place dans une niche située à côté de la colonne montante d'égout, comme si elle avait été spécialement créée pour son installation.
Préparation salle de bain
L'installation de l'installation est effectuée avant de terminer les travaux dans la salle de bain. De plus, "avant" signifie que les carreaux n'ont pas encore été posés au sol, et dans certains cas il n'y a même pas de chape, les murs n'ont pas été enduits.
Avant d'installer une toilette murale ou sur pied en même temps que l'installation, choisissez un emplacement approprié.L'endroit le moins accessible ou le plus éloigné de la porte est optimal pour l'installation : l'appareil sanitaire ne doit pas être situé dans l'allée. Dans des conditions limitées, il est nécessaire de monter l'installation dans un angle. Dans les cas généraux, les plombiers ne recommandent pas de déplacer l'emplacement du nœud, mais conseillent de placer les toilettes au même endroit où se trouvait l'ancien. Cela simplifiera grandement le travail. Une niche avec des contremarches convient à l'installation, mais les contremarches devront être écartées.
Si la chape n'a pas encore été remplie, calculez sa hauteur. Les conduites d'égout et d'eau sont amenées sur le site d'installation. Tous les tuyaux doivent être sécurisés afin qu'ils ne bougent pas avant le coulage de la chape.
Parfois, la conception de la pièce nécessite:
- installation d'une cuvette de toilette sous la fenêtre;
- installation d'un appareil sanitaire sur une cloison séparant l'espace salle de bain.
Dans le premier cas, il faut acheter une installation basse (inférieure à 82 cm), dans le second cas, il est conseillé d'utiliser une structure à double châssis, plus stable.
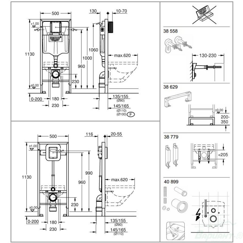
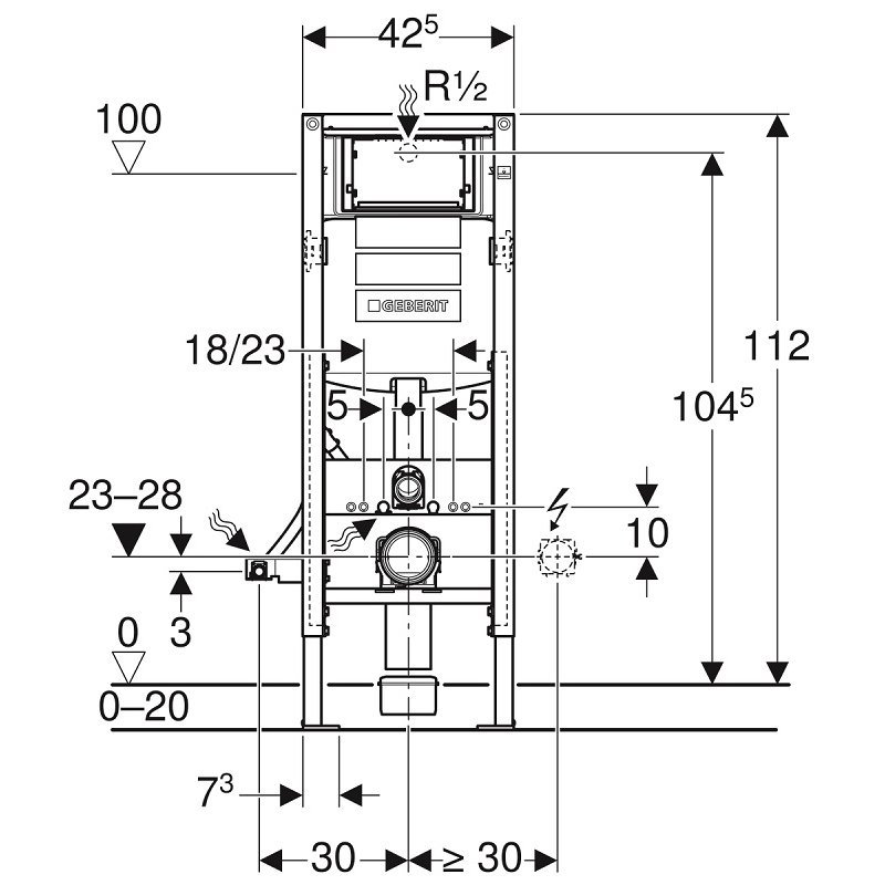
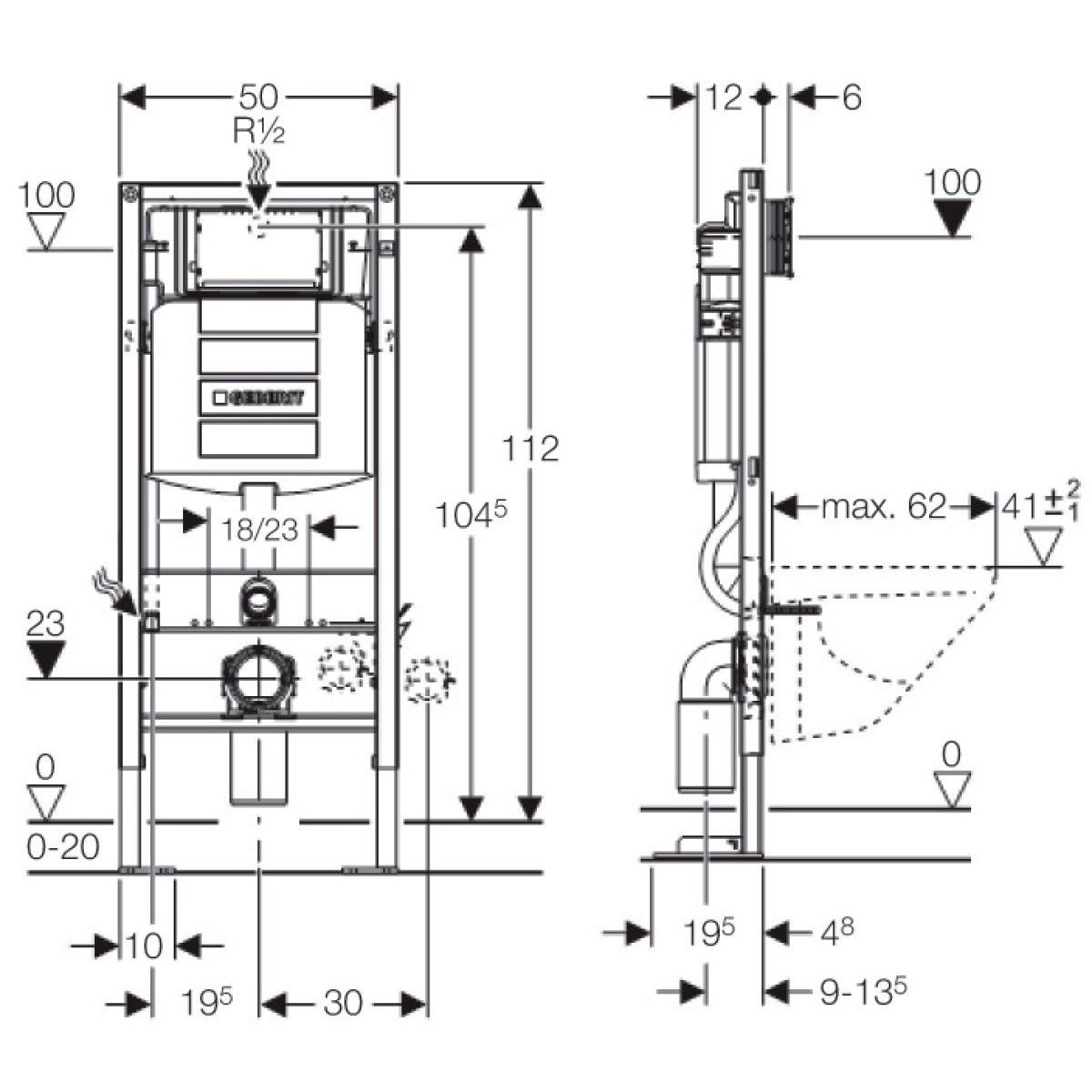
L'axe central, les contours de l'installation, l'emplacement du réservoir, les trous pour les fixations, y compris au sol, sont marqués sur le mur, en respectant la distance requise par rapport au mur (au moins 13,5 cm).
Dimensions recommandées à guider par: siège depuis le sol - 43 cm, bouton depuis le sol - 100 cm, cadre depuis le mur - 15 cm, réservoir depuis le mur - 2 cm.
Installation d'une cuvette de WC sans pose sur un socle en béton
Il existe une autre option pour installer une toilette suspendue qui ne nécessite pas d'installation. Dans ce cas, la fixation est réalisée sur une base en béton. Cette méthode est une option plus budgétaire, mais nécessite des travaux supplémentaires pour équiper les fondations nécessaires.
Étape 1

Le coffrage en bois est en cours de montage.Sur la partie avant, il est nécessaire de marquer à l'avance et de percer les points de fixation du bol, à travers lesquels une marque est appliquée au mur à travers le coffrage. De plus, des trous sont percés dans le mur dans lesquels une ancre chimique est coulée. Cette action permettra aux goupilles métalliques d'être fixées au béton et à la brique par la force de cohésion et d'adhérence.
Étape 2

Des goupilles de la longueur requise sont insérées à travers le coffrage dans le mur avec une ancre chimique et pressées contre le coffrage en bois avec des écrous. Sur la face avant, il est nécessaire de coller un petit morceau de mousse, qui sera ensuite retiré, et l'évidement restant après servira de lieu de couplage.
Étape 3

Le mortier de béton (environ 40 litres) est versé dans la cavité du coffrage et laissé sécher complètement (environ une semaine). Après durcissement, les boucliers en bois sont retirés, laissant une base monolithique avec des aiguilles à tricoter pour suspendre la cuvette des toilettes. La mousse est retirée, un raccord est installé dans le renfoncement, reliant le tuyau et l'égout.

Le baril de vidange est en cours d'installation, le mur est décoré de garnitures décoratives et le système est vérifié pour son fonctionnement.
L'appareil et le schéma de l'installation
L'auto-installation de la cuvette des toilettes pour l'installation deviendra plus facile si vous comprenez l'appareil de sa conception et les principes de fonctionnement. Considérez plus en détail les éléments de la salle de bain à ossature.
Châssis porteur en acier
L'ossature métallique est l'élément porteur principal de l'installation, qui compte non seulement pour le poids de l'équipement, mais aussi pour le poids de la personne assise sur la cuvette.
Le cadre est fixé au mur porteur et au sol en même temps, mais il existe également des conceptions à double cadre pour une installation dans de grandes cloisons de salle de bain.
Le double cadre est installé dans la cloison des grandes salles de bains et est fixé uniquement au sol avec quatre pieds à l'aide de fixations spéciales (+)
En partie basse, le châssis est équipé de pieds escamotables permettant de régler la hauteur de l'installation. La hauteur standard du bord supérieur du siège des toilettes à partir du sol est de 40 à 48 cm, cela dépend de la taille des propriétaires de l'appartement. Des goupilles en acier sont vissées dans le cadre à l'avant, sur lequel le bol est ensuite suspendu.
Réservoir à déchets en plastique
La forme de la cuve en plastique est différente pour chaque constructeur, car il faut assurer une bonne contenance en eau dans le cadre étroit de la charpente métallique. La surface en plastique est recouverte d'un isolant thermique pour éviter la condensation.

Choisissez une citerne avec un revêtement spécial qui empêche la formation de condensation. En présence d'humidité dans l'espace clos de l'installation, les éléments métalliques peuvent rapidement pourrir
Sur la face avant du réservoir, il y a une petite zone où les fabricants essaient d'installer tout l'équipement : un tuyau pour connecter un tuyau d'eau et un dispositif pour monter le bouton de déverrouillage. C'est ce rectangle d'installation limité qui sera accessible pour réparation après l'installation définitive de l'équipement.
Le dosage de l'évacuation est déjà devenu la norme, chaque citerne dispose donc d'un contrôle du volume d'eau évacuée.
Types de cuvettes de toilettes
La vasque est le plus bel élément de l'installation, sur lequel les designers travaillent plus que les ingénieurs.La forme ovale traditionnelle du siège reste la plus vendue, mais les bols rectangulaires, ronds et en forme sont également en demande.

Lors de la détermination de la hauteur requise de la cuvette des toilettes, tenez compte de la taille des enfants. Réduire le niveau de 2 à 3 centimètres aidera à apprendre à un enfant à aller aux toilettes tout seul 1 à 2 ans plus tôt
Les petits composants de l'installation (supports, raccords, bouton de vidange, etc.) varient selon le fabricant, il est donc préférable de se familiariser avec les caractéristiques de leur installation dans les instructions d'installation.
Comment installer une toilette conventionnelle
Installation d'une cuvette WC sur pied Compact ou Monobloc
En règle générale, lors de la vente, la cuvette des toilettes et le réservoir sont déconnectés. Les aménagements intérieurs du canon sont le plus souvent déjà assemblés, ce qui simplifie grandement le processus d'installation.
Premier pas. Nous mettons la cuvette des toilettes à sa place et faisons des marques aux points de fixation.
MarquageMarquages au sol pour fixations
Deuxième étape. Nous retirons la cuvette des toilettes et perçons des trous de montage aux endroits marqués.
Percer des trous dans les carreaux pour les chevilles
Troisième étape. Nous enfonçons les chevilles dans les trous de montage.
Quatrième étape. Installation du bol. Nous insérons les fixations à travers des joints d'étanchéité spéciaux. Serrer les attaches. Vous ne devez pas tirer trop fort - vous pouvez endommager les attaches ou même les toilettes elles-mêmes. Nous tirons jusqu'à ce que les appareils sanitaires soient fermement fixés à la surface. D'en haut, nous fermons les attaches avec des bouchons.
Serrez les écrous Fermez le bouchonAssurez-vous que les toilettes sont de niveau
Cinquième étape. Nous montons la couverture et le siège. Le manuel pour leur assemblage est généralement fourni avec les toilettes, nous ne nous attarderons donc pas sur cet événement séparément.
Sixième étape. Nous raccordons les toilettes à l'égout.La procédure dépend de la manière dont la sortie des toilettes est connectée.
Nous mettons l'ondulation. Nous enduisons la connexion de l'ondulation avec le tuyau d'égout avec du mastic. Nous tirons l'ondulation sur la sortie de la cuvette des toilettes sans joints supplémentaires
Prix des accessoires pour toilettes et urinoirs
Accessoires pour cuvettes et urinoirs
Si le dégagement se fait dans le mur, on travaille comme ceci :
- nous vérifions si la sortie de la cuvette des toilettes coïncide avec le tuyau d'égout. Si tout est en ordre, nous nous connectons à l'aide d'un joint de manchette. En présence de déplacements, on utilise l'ondulation ;
- nous traitons les extrémités de l'élément de raccordement avec du mastic silicone et connectons les toilettes à l'égout;
- fixer l'appareil de plomberie au sol.
Si la libération au sol est organisée, nous procédons comme suit :
- nous installons au sol, à la sortie du tuyau d'évacuation, une bride à vis avec un verrou;
- on voit un trou au centre de la bride. Le tuyau d'égout doit y entrer;
- installer des toilettes. Le collier de la bride à vis doit s'insérer dans la tubulure de sortie de la cuvette des toilettes. Nous tournons le brassard en assurant une fixation complète;
- sceller la connexion avec un composé de silicone spécial.
Septième étape. Nous effectuons l'installation du réservoir. Les mécanismes de vidange, en règle générale, sont vendus déjà assemblés. Si le mécanisme est démonté, assemblez-le conformément aux instructions du fabricant (l'ordre de montage des différents modèles peut varier légèrement).
Lubrifiez la bague du réservoir avec du mastic Raccordez le réservoir de vidange Fixez le réservoir Serrez les boulons du réservoir Fermez le couvercle
Nous prenons le joint du kit et l'installons dans le trou d'eau de nos toilettes. Installez le réservoir sur le joint et serrez les boulons.
Les attaches sont plus commodément installées comme ceci :
- nous tordons le premier boulon de sorte que le réservoir se déforme dans sa direction d'environ 1,5 à 2 cm;
- nous appuyons sur le bord surélevé du réservoir avec notre main et serrons le deuxième boulon.
Huitième étape. Nous connectons le réservoir à l'alimentation en eau à l'aide d'un tuyau flexible. Nous ouvrons l'alimentation en eau et vérifions la qualité du système. S'il creuse quelque part, serrez un peu les écrous. Le niveau de remplissage du réservoir en eau est réglable en déplaçant le flotteur vers le bas ou vers le haut.
Raccordement du tuyau d'arrivée d'eau
Nous laissons le réservoir se remplir plusieurs fois et vidons l'eau. Si tout va bien, nous mettons les toilettes en fonctionnement permanent.
Se préparer à installer
La base pour l'installation de la toilette doit être de niveau. Il existe plusieurs options pour le développement d'événements, à savoir:
- si le sol est carrelé et ne présente pas de différences de niveau, nous n'effectuons aucune mesure préalable pour niveler la base ;
- si le sol est carrelé et non égal, installez les toilettes avec des baguettes. Pour ce faire, des trous sont percés dans le sol, des baguettes y sont enfoncées en fonction du niveau, puis la cuvette des toilettes est fixée aux baguettes avec des vis;
- si un remplacement de carrelage est prévu, nous démontons l'ancien bardage et remplissons une nouvelle chape, si l'ancienne présente des différences de niveau ;
- si les toilettes sont installées dans une maison ou un appartement neuf sans aucune finition, nous remplissons la chape et posons les carreaux.
Nous prêtons attention aux tuyaux. Nous nettoyons l'égout des débris et divers dépôts, installons un robinet sur l'alimentation en eau (s'il était absent auparavant) pour couper l'alimentation en eau du réservoir
Préparation de niche
L'installation d'un WC suspendu consiste à utiliser une niche pour accueillir le cadre. Comme déjà mentionné, une certaine résistance des murs est nécessaire pour la fixation.La conception de l'installation peut supporter un poids allant jusqu'à 400 kg, dont une partie de la charge est transférée au mur. Cette question doit être abordée avec une attention particulière.
Afin de placer l'installation, il est nécessaire de préparer une niche. Il devrait être le suivant :
- Hauteur - 1 m;
- Largeur - 0,6 m;
- Profondeur - jusqu'à 0,2 m.
Dans certains cas, il est problématique de créer une telle profondeur. Dans de tels cas, il est nécessaire d'approfondir la valeur possible et de masquer les éléments restants avec des panneaux de plaques de plâtre.

En cachant la partie principale de l'appareil, certaines opportunités s'ouvrent pour décorer et améliorer l'intérieur. Cela ne vaut pas la peine de placer l'installation près du mur et de la recouvrir de GKL, car. placer une toilette conventionnelle sera moins cher et plus facile. De plus, il prendra moins de place.
Conseils d'installation de bricolage
Il existe un certain nombre de recommandations qui vous indiqueront comment choisir la bonne plomberie et la monter :
le choix des toilettes peut être fait en fonction des préférences personnelles et vous pouvez déterminer visuellement leur qualité lors de l'achat;
beaucoup plus d'attention doit être accordée à la qualité de l'installation, donc ici, vous devez faire attention au fabricant (les entreprises d'Europe occidentale sont considérées comme les meilleures);
la création d'une trappe technologique sous la clé de vidange peut grandement faciliter la mise en œuvre de travaux de réparation à l'avenir;
il faut poser les dalles de façon symétrique, et il est préférable de partir du bouton affleurant : cela permettra de positionner au mieux l'habillage ;
il est conseillé d'utiliser un système avec une descente d'eau dosée, ce qui permettra d'économiser de l'argent et sera beaucoup plus pratique.
L'installation de l'installation de cuvettes de toilettes n'est pas le processus le plus difficile, si vous suivez toutes les recommandations décrites.En dernier recours, vous pouvez toujours regarder la photo, qui montre en détail toutes les nuances associées aux toilettes suspendues.
Comment installer un WC suspendu avec installation
Pour installer des toilettes suspendues, la sortie du tuyau d'égout doit être située près du mur. La distance spécifique du mur est indiquée par le fabricant, mais elle doit être petite - du bord le plus éloigné de l'ordre de 13-15 cm.Si la sortie du sol, il existe une solution - un revêtement spécial avec lequel le drain est transféré plus près du mur.
L'installation d'une cuvette de toilettes suspendue commence par la fixation des butées au mur sur le cadre d'installation. Ils sont attachés deux en haut et en bas. Avec leur aide, la distance au mur est ajustée, le cadre se lève et démarre.

Installer les butées supérieures
Les butées supérieures se présentent sous forme de tiges, réglables avec une clé à douille et un tournevis. Les butées inférieures ressemblent plus à des plaques, elles se règlent également avec une clé à douille mais avec une tête latérale.

Butées inférieures et réglage de la hauteur
Le cadre assemblé est fixé au mur, son centre est exposé au-dessus du milieu de la sortie d'égout. La marque sur le cadre monte ou descend à la hauteur requise par le fabricant (il y a une marque sur le cadre, également indiquée dans le passeport, généralement 1 mètre).

Aligner la hauteur et loin du mur
À l'aide d'un niveau à bulle, l'installation horizontale et verticale de l'installation de toilettes suspendues est vérifiée.

Vérification de l'horizontale
En ajustant la hauteur des butées, une distance égale du mur, définie par le fabricant, est définie. Comme il est pratique de le faire, regardez la photo.

La distance spécifiée par rapport au mur est définie
Le cadre apparent doit être fixé au mur.Aux endroits appropriés, mettez des marques avec un crayon ou un marqueur, percez des trous. Ils sont équipés de chevilles de logement en plastique. La plupart des toilettes suspendues sont importées et elles recommandent de planter les corps de cheville sur le mastic. Une partie du mastic est pressée dans le trou percé, une cheville est insérée. Ensuite, avant d'installer la fixation elle-même, le mastic est appliqué sur le boîtier en plastique.
Dans une installation fixe, vous pouvez placer des éléments de raccordement - tuyaux de dérivation, raccords. Ils sont tous inclus et s'enclenchent simplement en place.

Les tuyaux et les connecteurs sont installés

Les tuyaux du réservoir et des égouts sont installés
Ensuite, des tiges métalliques sont installées sur lesquelles la cuvette des toilettes sera maintenue. Ils sont vissés dans les douilles correspondantes, des joints en silicone sont posés sur le dessus (sur la photo du bas, ce sont deux tiges au-dessus de la sortie d'égout).

Les supports de toilette sont installés, le tuyau d'égout est fixé
Le tuyau d'égout s'étend à la distance souhaitée, est fixé dans une position prédéterminée avec un support. Il recouvre le tuyau par le haut, est inséré dans la rainure jusqu'à ce qu'il s'enclenche.
Ensuite, l'eau est connectée au réservoir. Ouvrez le couvercle du réservoir (il est verrouillé), le bouchon sur la surface latérale est retiré. Droite ou gauche - dépend de l'endroit où vous avez de l'eau. Un tuyau ondulé est inséré dans le trou ouvert, la contrepartie est insérée de l'intérieur, tout est relié par un écrou-raccord. Il faut serrer sans appliquer de force excessive - c'est du plastique.

Raccordement de l'installation à l'alimentation en eau
Un té est installé à l'intérieur du réservoir, un tuyau (généralement en plastique) est connecté à la sortie souhaitée.Ils le font avec l'aide d'un adaptateur et d'un américain.

Connexion de conduite d'eau
Un tuyau du réservoir est connecté à une entrée en T spéciale. Il est souple, dans une tresse métallique. Serré avec un écrou borgne.

Connecter le tuyau du réservoir
Installez le couvercle en place. En principe, l'installation pour les toilettes est installée. Maintenant, nous devons le fermer. Pour ce faire, faites un faux mur de plaques de plâtre résistant à l'humidité. Il est recommandé de mettre deux feuilles, mais vous pouvez en utiliser une. Les cloisons sèches sont fixées au cadre d'installation et aux profilés montés.

La fixation du faux mur au cadre d'installation est obligatoire
Ensuite, le mur est terminé, après quoi la cuvette des toilettes est suspendue et un panneau décoratif du dispositif de vidange avec boutons est installé.

Couper les bouchons
La cuvette des toilettes est posée sur les broches, sa sortie va dans la douille en plastique. La connexion est étanche, aucune mesure supplémentaire n'est nécessaire. Ceci termine l'installation de la toilette avec l'installation.

Le résultat du travail
Installation d'auto-installation de la cuvette des toilettes
Conception de réservoir suspendu avec installation
Avant d'envisager comment installer une toilette suspendue avec une installation, vous devez la choisir (lire les règles ici), ainsi que déterminer les principaux composants du mécanisme de fixation.

La durée de vie de l'appareil de plomberie dépendra de la qualité de la conception choisie. En général, la cuvette de toilette suspendue se compose des parties suivantes :
châssis en acier;

Le cadre robuste est fixé à la fois au sol et au mur avec des goujons spéciaux. Il a des tiges pour ajuster la hauteur du produit. Le réservoir de vidange de la structure est en plastique, recouvert d'un revêtement de condensat. À l'avant du réservoir, il y a une découpe spéciale dans laquelle le système de vidange est installé.
Le choix de l'emplacement et du schéma d'installation des toilettes
Un bon emplacement pour l'appareil est considéré comme un endroit impénétrable loin de la porte, vous pouvez donc choisir le mur du fond. Mais en même temps, il convient de garder à l'esprit que toutes les communications doivent être proches des toilettes afin qu'elles n'aient pas à traverser toute la pièce.

Les principaux paramètres de fixation de la structure sont:
la hauteur de la cuvette des toilettes - la taille moyenne est de 430 mm;
Il est préférable d'installer les toilettes dans une niche dans laquelle tous les égouts sont cachés et où se trouve la colonne montante du drain. Sinon, vous pouvez construire une boîte de cloison sèche.
Outils d'installation
Pour effectuer tous les travaux d'installation de l'installation des toilettes, vous devez disposer des outils suivants:
niveau laser ou régulier;
Instructions d'installation
Avant d'effectuer les travaux d'installation, vous devez d'abord apporter un tuyau d'égout d'un diamètre de 110 mm, puis - des conduites d'eau.
- Préparation de la fixation. Des trous sont faits dans le mur à des endroits préalablement marqués à l'aide d'un perforateur. Des chevilles y sont insérées. Dans ce cas, les fixations peuvent être effectuées à la fois en diagonale et verticalement. Le cadre d'installation comporte 4 fixations obligatoires : 2 au mur et 2 au sol.

Après avoir installé le cadre, il est nécessaire de vérifier la fiabilité de la structure, d'exclure ses vibrations sur les côtés, sinon elle risque de s'incliner sous de lourdes charges. Après ces étapes, l'installation du cadre à faire soi-même est terminée.
Comment installer une toilette et un bidet de vos propres mains: instructions détaillées pour les débutants.
Raccordement des conduites d'eau et des égouts
C'est la partie la plus critique de l'aménagement d'une nouvelle cuvette de toilettes, car si une fuite apparaît dans l'un des tuyaux, alors toute la structure et le revêtement mural sur lesquels se trouve la cuvette de toilettes suspendue devront être démontés.
Bardage en faux panneaux
Il est effectué après tous les travaux de plomberie avant l'installation des toilettes. Étant donné que la structure est située dans une sorte de niche, peu importe le matériau avec lequel elle sera gainée. Habituellement, les cloisons sèches sont utilisées à ces fins et résistent à l'humidité.
Fixation des toilettes suspendues
L'installation à faire soi-même d'une cuvette de toilette doit être effectuée en tenant compte de la règle suivante: un support en caoutchouc doit être posé entre le carrelage et la cuvette des toilettes, ce qui protégera non seulement le matériau de revêtement contre les fissures, mais également le bidet lui-même. Si, pour une raison quelconque, le substrat d'usine est perdu, il peut être remplacé par une épaisse couche de mastic. Une fois solidifié, il jouera le rôle d'un coussin de coussin.
Toilettes suspendues - elles sont esthétiques, élégantes et fiables
Tous les travaux d'installation peuvent être effectués à la main, en tenant compte des conseils et instructions d'installation ci-dessus.
Sur quoi se concentrer ?
Lors de l'achat d'un WC suspendu, vous devez avant tout faire attention à son matériau et à sa forme. Les matériaux utilisés sont très différents, mais la grande majorité des appareils sont traditionnellement constitués de deux types de céramiques :
Les matériaux utilisés sont très différents, mais la grande majorité des appareils sont traditionnellement constitués de deux types de céramiques :
- Faïence: le matériau est peu coûteux, mais en raison de la structure poreuse, des taches jaunes indélébiles apparaissent rapidement dessus.
- Porcelaine : il n'y a pas de pores dans ce matériau, donc l'apparence du produit reste attrayante plus longtemps. Mais cela coûte aussi un peu plus cher.
Les autres matériaux présentent les avantages suivants :
- acier inoxydable : ne craint pas les chocs, donc adapté aux espaces publics ;
- acrylique et autres types de plastique : une option économique ;
- pierre naturelle : cuvettes de toilette d'élite, pour ainsi dire, d'une classe représentative.
Les plus appréciés sont les bols ronds ou ovales. Des rectangulaires sont également fabriqués, mais, comme l'a montré la pratique, ils sont moins pratiques à utiliser.
N'oubliez pas de vous assurer que le modèle choisi s'adapte bien à l'intérieur : pour une utilisation pratique, il doit y avoir au moins 60 cm d'espace libre devant les toilettes.












































