- Les causes de l'humidité
- Types d'organisation de l'échange d'air du sous-plancher de la maison
- Caractéristiques de la circulation naturelle de l'air
- Système d'échange d'air forcé
- Ventilation forcée : éléments de base et règles de l'appareil
- Le besoin d'échange d'air dans la maison
- Réduction supplémentaire de l'humidité
- Ventilation forcée dans la cave de vos propres mains
- Principe d'opération
- Équipement
- Installation du système à faire soi-même
- Caractéristiques de conception du système de ventilation
- Dispositif de ventilation de sous-sol à faire soi-même dans une maison privée
- Types de trous de ventilation au sous-sol
- Approvisionnement naturel
- Échappement naturel
- Forcé
- Alimentation et évacuation avec récupération de chaleur
Les causes de l'humidité
Le problème de la destruction des parquets est connu des constructeurs depuis des temps immémoriaux. Afin de comprendre l'état des lames de parquet et la présence d'humidité sous les lames, deux méthodes ont été utilisées :
- On a demandé à un homme obèse et lourd avec une charge dans les mains de marcher le long des bords du plancher de la pièce, le plus éloigné de la fenêtre et des portes. Si la déflexion des planches ne s'accompagnait pas d'un craquement, les planchers pourraient être considérés comme malades ;
- Le deuxième signe était considéré comme la présence d'une forte « odeur de la terre » ou d'une odeur de marais, indiquant une humidité élevée et la présence de produits de décomposition du bois dans l'air.Même la ventilation et la ventilation internes n'ont pas aidé à éliminer l'humidité;
- En l'absence de ventilation, les pans de murs adjacents au sol au-dessus des plinthes semblaient terreux, le lait de chaux ou le papier peint changeaient de couleur, prenant souvent une teinte rougeâtre.
Aujourd'hui, on sait que même l'absence de ces signes n'est pas une garantie d'un niveau normal d'humidité dans le sous-terrain. Les raisons pour lesquelles l'humidité s'accumule sous les lames de plancher peuvent être très différentes. De la ventilation mal agencée de l'imperméabilisation du sous-plancher, au manque d'évents par lesquels l'air pénètre sous les planches, aux fuites de conduites d'eau ou, pire encore, aux sorties d'égout.

Noter! Une ventilation au sol incorrecte peut également se produire dans les appartements des immeubles à plusieurs étages, en particulier s'il s'agit de pièces situées au premier ou au dernier étage de l'immeuble.
Ne sauve pas une pièce avec une mauvaise ventilation, même si les murs et les plafonds du bâtiment sont en bois traité. Le sol d'une maison en bois en l'absence de ventilation s'effondre de la même manière que dans les bâtiments ordinaires en pierre ou à ossature. L'imprégnation ou le revêtement protecteur ne pénètre que quelques millimètres de profondeur dans le bois. Si des fissures se forment à la surface de bûches, de poutres ou de planches de bois, même imprégnées, le champignon infecte facilement le bois.
Il n'y a qu'une seule issue - ventiler correctement le sol. De cette façon, vous pouvez protéger votre maison de nombreux problèmes de santé, dont nous ne savons rien sur l'origine.
Types d'organisation de l'échange d'air du sous-plancher de la maison

De ce qui précède, nous pouvons conclure: en raison des caractéristiques décrites, l'échange d'air dans le sous-sol d'une maison en bois doit être ajusté en conséquence.
De plus, la ventilation au sol dans une maison privée sera utile. Pour cela, la structure du plancher est généralement choisie flottante.
Plus chère, mais aussi plus efficace, la ventilation forcée. Sa caractéristique distinctive peut être considérée comme l'utilisation d'appareils électriques spéciaux pour augmenter la vitesse du flux d'air dans le sous-sol.
Généralement, un système de ventilation forcée fonctionne en conjonction avec une ventilation naturelle.
Le choix du schéma de ventilation est effectué au stade de la conception d'une maison en bois. Son installation et son installation doivent être effectuées simultanément à sa construction.
Cela réduit considérablement les coûts de main-d'œuvre, car pendant la construction, les tuyaux peuvent être immédiatement posés pour le nombre requis de canaux d'alimentation et d'échappement.
Ensuite, une fois la pose terminée, percer des trous de grand diamètre dans la fondation en béton est une tâche extrêmement ingrate.
Caractéristiques de la circulation naturelle de l'air

Il est souhaitable de réfléchir au système de ventilation naturelle du sous-plancher au stade de la construction
Une fois le futur schéma de ventilation du sous-plancher d'une maison en bois choisi au stade de la conception, vous pouvez commencer à mettre en œuvre la solution de conception. Dans tous les cas, il est nécessaire de faire des hypothèques pour la ventilation naturelle.
Ce sont généralement des coupes de tuyaux d'égout en plastique d'une section de 120 mm ou plus, ou ils peuvent être carrés. La longueur de ces éléments est égale à l'épaisseur des murs de la fondation.
Les maisons en bois sont construites le plus souvent :
- sur une fondation en bande : ses murs sont situés sous tous les murs de la maison. Lors du coulage, les éléments mentionnés ci-dessus sont insérés dans le corps de la fondation pour organiser les passages d'air dans la fondation ;
- sur une fondation en colonnes: des pieux ou des piliers, par exemple en briques, sont interconnectés le long du périmètre de la maison. Le projet de plancher repose de la même manière sur des piliers individuels. Dans le même temps, des espaces sont laissés entre le projet et les sols de finition et entre le sol et les murs, qui servent à la ventilation naturelle. Dans la ceinture extérieure du sous-sol, des hypothèques sont faites pour les canaux d'approvisionnement;
- sur dalle béton pleine : dans ce cas, les conduits de ventilation du sous-plancher sont disposés dans les plinthes des structures murales.
À proprement parler, les canaux qui servent à faire passer l'air, et constituent l'essentiel du système de ventilation naturelle de l'espace souterrain. À partir du matériel présenté ci-dessus, il devient clair comment ventiler le sous-sol.
Vous pouvez faire le travail par vous-même. La façon la plus simple de le faire est au stade du coulage des fondations et de la construction.
Système d'échange d'air forcé
Il arrive que la puissance de la ventilation naturelle ne soit pas suffisante pour éliminer qualitativement l'excès d'humidité du sous-sol. Ceci est le plus souvent typique des maisons qui ont de grands sous-sols.
Et il n'y a aucun moyen de se passer de l'installation d'une ventilation forcée.
Pour son bon fonctionnement, il est nécessaire de disposer de conduits de ventilation d'alimentation, situés dans le corps de la fondation ou du sous-sol. De plus, des conduits d'évacuation verticaux doivent être installés pour évacuer l'air du sous-plancher.
Ils sont également constitués de tuyaux ou de boîtes en plastique et doivent sortir par le toit. Un tel système de canaux améliorera le flux naturel d'air en raison de la différence de température dans la rue et au sous-sol.L'extraction de l'air d'échappement se produira en continu.
Il est possible de renforcer l'évacuation de l'air évacué du sous-sol à l'aide de ventilateurs installés dans les conduits d'alimentation ou dans les collecteurs d'évacuation. L'utilisation de tels dispositifs rend le système de ventilation forcé.
Il reste à ajouter qu'il existe de nombreuses variétés de ventilation forcée. Mais ces systèmes sont rarement utilisés dans les petites maisons privées en raison de leur coût élevé. Le plus souvent, dans ce cas, quelques ventilateurs au sous-sol font très bien le travail.
Ventilation forcée : éléments de base et règles de l'appareil
Contrairement à la ventilation naturelle, où l'air se déplace en raison des différences de pression, les appareils électriques créent un mouvement de gaz forcé. Ce sont des fans de différents types, parmi lesquels il y en a de très technologiques. Ils maintiennent un régime de température et d'humidité prédéterminé, purifient l'air entrant et effectuent également une récupération - le transfert de chaleur des masses d'air chauffées vers les masses froides.
Dans les sous-sols des maisons, tous ces appareils complexes ne sont pas nécessaires. En règle générale, les appareils les plus simples à commande manuelle sont utilisés. Des installations plus avancées avec des capteurs de contrôle sont pertinentes pour les grands magasins de légumes, les caves à vin et d'autres installations où il est nécessaire de maintenir certaines conditions. Pour une cave privée, l'essentiel est l'efficacité et la sécurité.
La ventilation forcée peut être organisée de différentes manières :
- installer un ventilateur dans le conduit d'évacuation ;
- installez 2 ventilateurs à la fois dans deux tuyaux ;
- utiliser une girouette-diffuseur rotative, fixée au sommet du tuyau d'échappement et alimentée par la pression du vent ;
- placez une lampe à incandescence à l'intérieur de la hotte, lorsqu'elle est chauffée, l'air montera plus vite, stimulant ainsi l'évacuation des gaz pollués de la cave.
Le sous-sol étant une pièce très humide, lors de l'installation et de l'utilisation d'appareils électriques, vous devez surveiller attentivement la mise en œuvre des règles de sécurité électrique. Il est interdit d'utiliser des prises 220 V. Un transformateur abaisseur doit être installé afin que la tension d'alimentation ne dépasse pas 12 ou 36 V. En conséquence, les équipements électriques doivent être conçus pour ces charges.
Le besoin d'échange d'air dans la maison
Un système de ventilation bien pensé et correctement mis en œuvre dans la maison sert de garant et de base pour la formation de conditions de vie confortables.

La ventilation des locaux, assurée par divers systèmes et dispositifs ou dispositifs supplémentaires, est un processus obligatoire en raison de tels facteurs:
- la capacité de réguler le régime de température et de créer des conditions confortables;
- réglage des paramètres d'humidité nécessaires à la vie normale;
- saturation de toutes les pièces en oxygène et élimination du mélange gaz-air pollué;
- élimination des odeurs désagréables et spécifiques ou de la vapeur des locaux cibles;
- empêchant le dépôt de condensat, qui provoque le développement de champignons et de moisissures.

Un processus d'échange d'air de haute qualité et bien organisé dans un bâtiment résidentiel joue un rôle important et nécessite une planification minutieuse.






Réduction supplémentaire de l'humidité
Afin que le système de ventilation ne doive pas être renforcé en augmentant la section totale ou en installant des ventilateurs, les travaux suivants doivent être effectués :
- Le dispositif d'un système de drainage efficace est le détournement de l'eau de la fondation.
- Imperméabilisation de la base de la maison et du sous-sol. Il existe de nombreux types d'étanchéité : elle peut être roulée, soudée, enduite, etc.
- Mise en place de l'isolation. Le meilleur matériau en termes d'économie et d'efficacité est le XPS. C'est un bon isolant thermique qui ne laisse pas passer l'eau. Il n'intéresse pas les rongeurs et ne pourrit pas. EPPS peut également être isolé avec une zone aveugle.
Les mesures énumérées n'annulent pas, mais complètent seulement la ventilation. Ce n'est que dans un complexe qu'il est possible d'obtenir un drainage idéal de l'espace dans les compartiments du sous-sol.
Si la maison est construite sur une base de sol qui ne draine pas bien l'eau, en plus du système de ventilation, un drainage et des eaux pluviales sont nécessaires. Le système de drainage collectera l'eau du sol et des couches supérieures du sol, le collecteur d'eaux pluviales collectera et éliminera les précipitations
Lorsque le système est agencé selon un schéma forcé, les coûts d'installation, de maintenance et de service seront plus élevés que lors de l'organisation d'un type naturel. Il convient de garder à l'esprit qu'en hiver, de la condensation peut se former sur les parois des tuyaux de ventilation eux-mêmes et, par temps froid, la section transversale peut obstruer complètement la veste.
Pour éviter cela, les tuyaux peuvent être isolés thermiquement avec du penofol. Au tour inférieur du tuyau, vous pouvez créer un piège à condensat - par exemple, percer un trou ou mettre un té au lieu d'un coin.
Ventilation forcée dans la cave de vos propres mains
En fait, la ventilation forcée ne diffère de la ventilation naturelle que par le fait que des ventilateurs sont installés à l'intérieur des tuyaux (conduits de ventilation), ce qui assure une alimentation et une évacuation d'air plus intensives (Figure 4).
Principe d'opération
Le principe de fonctionnement de la ventilation forcée est assez simple.Dans la version la plus simple, le ventilateur est installé uniquement sur le tuyau d'échappement. Cela crée un mouvement d'air plus actif à travers l'ouverture d'alimentation.
Dans les grandes pièces, il est logique d'installer des ventilateurs à la fois pour l'extraction et l'alimentation. Dans ce cas, il sera difficile d'y faire face vous-même et il est préférable de contacter un spécialiste qui vous aidera à déterminer le diamètre de tuyau et la puissance du ventilateur appropriés.
Équipement
La ventilation forcée étant considérée comme plus fiable et moderne, des équipements supplémentaires seront nécessaires pour l'équiper. Bien sûr, tout d'abord, vous devez préparer le nombre requis de canaux d'un diamètre approprié. Après cela, vous devriez acheter des ventilateurs d'une taille et d'une puissance appropriées.
Figure 4. Principaux éléments de la ventilation forcée
Il est également nécessaire de prévoir une étanchéité des appareils contre l'humidité, qui peut pénétrer dans la pièce de l'extérieur ou s'infiltrer à travers les murs.
Installation du système à faire soi-même
La ventilation forcée est un peu plus difficile à installer que la naturelle. Pour vous aider à l'installer vous-même, nous vous recommandons d'utiliser nos instructions étape par étape.
L'évacuation forcée dans la cave est réglée comme suit :
- Des trous sont percés dans les murs ou le plafond pour les conduits, ou des vides sont utilisés qui étaient auparavant laissés à cet effet pendant la phase de construction.
- Des tuyaux sont posés dans les trous. Vous pouvez utiliser des produits en métal, en plastique ou en ciment.
- Les tuyaux d'alimentation et d'évacuation sont installés dans des coins opposés de la pièce et à des niveaux différents, comme dans le cas d'une ventilation naturelle.
- Un ventilateur est monté à l'intérieur de chaque tuyau et des registres sont installés afin que l'intensité de la ventilation puisse être ajustée si nécessaire.
Les parties supérieures des tuyaux dépassant de la surface doivent être recouvertes de visières. Dans le cas de la ventilation naturelle, cette exigence est plutôt une recommandation, alors que pour le type forcé, elle doit être respectée, car l'eau de pluie peut endommager les ventilateurs et l'ensemble du système sera perturbé.
La vidéo montre comment équiper au mieux la ventilation naturelle au sous-sol.
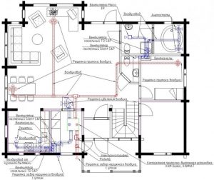
Caractéristiques de conception du système de ventilation
Pour comprendre comment faire de la ventilation dans une maison, il est nécessaire d'étudier attentivement les projets types et de veiller à prendre en compte un ensemble de facteurs importants :
- le volume intérieur de l'ensemble des locaux et le nombre de personnes vivant dans la maison ;
- la nécessité d'équiper la ventilation du sous-sol, du grenier et d'autres pièces;
- libre circulation des processus d'échange d'air dans toutes les pièces du logement ;
- l'utilisation de filtres pour assainir l'air frais provenant de la rue ;
- l'utilisation d'équipements de chauffage ou de refroidissement supplémentaires ;
- installation d'un clapet anti-retour pour empêcher le retour de la masse de déchets.





Des dispositifs supplémentaires pour optimiser l'échange d'air sont utilisés assez souvent et peuvent améliorer l'efficacité du dispositif de ventilation dans une maison privée.

Dispositif de ventilation de sous-sol à faire soi-même dans une maison privée
Le sous-sol d'une maison privée est souvent utilisé pour les besoins du ménage. Pour éviter l'humidité et la condensation sur les murs, il est nécessaire d'avoir une ventilation au sous-sol d'une maison privée. De vos propres mains, vous pouvez organiser une ventilation simple en perçant des trous sur les côtés opposés du socle.Couvrez-les de barreaux pour que les rongeurs ne puissent pas entrer dans le sous-sol.
Le dispositif et le principe de fonctionnement de l'unité de ventilation d'alimentation et d'extraction.
Une ventilation plus efficace du sous-sol peut être effectuée à l'aide de tuyaux. Pour l'installation, vous aurez besoin de deux tuyaux (diamètre 8-15 cm), de grilles, de visières qui protègent contre les précipitations, d'une isolation thermique. Une extrémité du tuyau d'alimentation est installée dans le trou du mur à une distance de 25 à 35 cm du sous-sol. L'extrémité supérieure du tuyau est sortie à travers la base et placée le long du mur. La longueur de la partie extérieure du tuyau doit être de 50 à 60 cm.Pour un aspect plus esthétique, le tuyau peut être rendu invisible.
Le tuyau d'alimentation doit être installé dans un trou sous le plafond du sous-sol. Si le sous-sol est utilisé pour le stockage des aliments, il est recommandé de placer le tuyau à proximité. Le tuyau du sous-sol traverse tous les plafonds et se termine à une hauteur de 40 à 60 cm du toit. Il convient de noter que dans les maisons privées, le condensat dans la ventilation, qui se forme dans le tuyau d'évacuation, s'écoulera dans le sous-sol. Par conséquent, un conteneur est placé au sous-sol dans lequel le condensat est collecté. Les tuyaux de ventilation peuvent être utilisés en plastique ou en amiante-ciment.
Schéma de ventilation dans une maison privée, que vous pouvez créer vous-même.
Sur Internet, vous pouvez trouver différents systèmes de ventilation dans une maison privée. Il est beaucoup plus facile de faire l'installation selon le schéma de vos propres mains. La vidéo expliquera les options d'installation de systèmes de ventilation dans le sous-sol d'une maison privée.
Types de trous de ventilation au sous-sol
La classification de la ventilation par type dépend de l'objectif, de la méthode d'agencement.Le principe de leur fonctionnement est basé sur la loi de la physique, selon laquelle le flux d'air chaud a tendance à monter et l'air froid à tomber.
Approvisionnement naturel
Créé lors de la construction de la maison, il s'agit d'une petite ouverture dans la partie supérieure du sous-sol. Désigne le moyen le plus simple d'assurer un renouvellement d'air dans la cave.
Pour réaliser une hotte d'évacuation dans un sous-sol sous le niveau du sol, les ouvertures dans le mur sont équipées de tuyaux en amiante-ciment ou en plastique d'une section de 10 à 15 cm, qui sortent du sol du côté sous le vent, à un distance de 30 cm de la surface. Les produits sont recouverts de l'extérieur de barreaux pour protéger la pièce des rongeurs et des corps étrangers.
Attention
Le système d'alimentation naturelle est utilisé pour la ventilation des sous-sols non résidentiels, des garages ou pour un échange d'air supplémentaire.
Échappement naturel
Le bon fonctionnement de la ventilation par aspiration naturelle est dû à l'installation de deux tuyaux :
- Le premier sert à évacuer l'air chaud, est situé dans la partie supérieure du sous-sol. Pour éviter l'exposition à des conditions environnementales défavorables (précipitations, gel, etc.), la partie extérieure du tuyau est isolée, une visière est installée.
- Le deuxième tuyau est conçu pour apporter de l'air frais à la cave. Il est placé à une distance de 30 à 40 cm du sol, amenant l'autre extrémité du tuyau dans la rue, en le recouvrant d'une grille. Pour le fonctionnement le plus efficace de la ventilation naturelle, deux ou plusieurs tuyaux d'alimentation sont équipés (selon la superficie de la cave) sur les côtés opposés de la pièce. En raison de la différence de température au sous-sol et à l'extérieur, la circulation de l'air est assurée.
ici
Nous vous proposons une vidéo sur la façon de faire une ventilation naturelle au sous-sol:
Forcé
Il s'agit d'un système de ventilateurs et de conduits d'alimentation et d'extraction qui fonctionnent de manière synchrone et pompent l'air, assurant la convection. Utilisé dans les cas suivants :
- le sous-sol se compose de plusieurs pièces isolées les unes des autres;
- le sous-sol occupe plus de 40 pi2. m zone;
- humidité élevée au sous-sol, lorsque le conduit d'évacuation gèle en hiver, perturbant le mouvement des masses d'air;
- l'impossibilité d'installer des tuyaux de ventilation élevés;
- au sous-sol il est prévu de placer un café, un hammam, un atelier, un garage, une salle de sport ;
- la ventilation naturelle ne peut pas être utilisée.
publication séparée
Alimentation et évacuation avec récupération de chaleur
Il est installé dans les sous-sols pour la résidence permanente, où la chaleur et l'imperméabilisation sont réalisées, les sols et les murs sont isolés. Dans de telles conditions, le système de ventilation forcée n'est pas suffisant, par conséquent, une ventilation d'alimentation et d'extraction avec récupération de chaleur est installée.
L'appareil est un tuyau d'échappement qui effectue l'admission et l'alimentation d'air déjà chauffé, passé à travers un échangeur de chaleur en céramique. De plus, des filtres d'humidité, de température et de poussière sont installés. L'installation est compliquée, elle est donc réalisée par des professionnels.













































