Le système d'approvisionnement en eau d'une maison privée à partir d'un puits: la procédure d'exécution des travaux

Comment organiser l'entrée d'eau dans la maison: schémas de plomberie + instructions d'aménagement

Equipement pour l'aménagement du système d'alimentation en eau

La technologie pour organiser l'approvisionnement en eau d'un puits de vos propres mains dépend de la profondeur de la source et de ses caractéristiques.

Comment conduire l'eau d'un puits à une maison: établir des communications et organiser un système d'approvisionnement en eau d'une maison à partir d'un puits

Un système d'approvisionnement en eau autonome peut être développé en utilisant les services de spécialistes, ou vous pouvez prendre une option prête à l'emploi appropriée du réseau

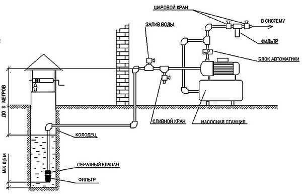
L'un des éléments clés de l'aménagement du système d'alimentation en eau sur le site est une pompe qui assurera un levage et une alimentation en eau ininterrompus de la maison à partir du puits. Pour équiper un puits autonome, il suffit d'installer une unité d'un diamètre de 3 ou 4", équipée d'une protection supplémentaire contre le "marche à sec". Cela évitera une surchauffe et des dommages à la pompe si le niveau d'eau minimum dans la source est atteint.

La technologie d'approvisionnement en eau à partir d'un puits prévoit également l'installation d'un réservoir en plastique ou en métal - un caisson, qui est placé de manière à y avoir libre accès, mais en même temps empêche la pénétration de saleté ou d'eau de l'extérieur environnement. Il est nécessaire de connecter la pompe dans le puits et de la contrôler davantage pendant le fonctionnement.

Lors de l'aménagement d'un système d'alimentation en eau d'un puits à une maison, on utilise le plus souvent des tuyaux d'un diamètre de 25 à 32 mm en métal-plastique - un matériau polymère qui se plie facilement et est très résistant à la corrosion.

Comment conduire l'eau d'un puits à une maison: établir des communications et organiser un système d'approvisionnement en eau d'une maison à partir d'un puits

Les conduites d'eau sont posées de la source à la maison, s'approfondissant sous le niveau de gel du sol (au moins 30-50 cm)

L'aménagement de l'approvisionnement en eau est impossible sans un système d'égouts, qui prévoit l'installation d'une fosse septique avec des chambres de réception et un système de traitement des eaux usées. La technologie d'aménagement du système d'égouts est décrite en détail dans un article séparé.

de nouvelles entrées
Variétés de roses anglaises à forte résistance à l'oïdium et à la tache noireDe Gagarine à Jackie Chan : Variétés de fleurs de jardin nommées d'après des personnages célèbres7 variétés d'épine-vinette sans prétention qui peuvent être plantées dans n'importe quel sol

Approvisionnement en eau d'une maison privée à partir d'un puits et d'un puits: pose de canalisations

Tous les systèmes d'approvisionnement en eau décrits pour une maison privée sont mis en œuvre à l'aide d'une pompe qui alimente en eau la maison. Dans ce cas, une canalisation doit être construite reliant le puits ou le puits à une station de pompage ou à un réservoir de stockage. Il existe deux options pour la pose de tuyaux - uniquement pour une utilisation en été ou pour tous les temps (hiver).

Le système d'approvisionnement en eau d'une maison privée à partir d'un puits: la procédure d'exécution des travaux

Une section d'un tuyau horizontal peut être située sous la profondeur de congélation du sol ou doit être isolée

Lors de l'installation d'un système d'alimentation en eau d'été (pour les chalets d'été), les tuyaux peuvent être posés sur le dessus ou dans des fossés peu profonds. Dans le même temps, vous ne devez pas oublier de faire un robinet au point le plus bas - vidangez l'eau avant l'hiver afin que l'eau gelée ne brise pas le système par le gel. Ou rendez le système pliable - à partir de tuyaux qui peuvent être enroulés sur des raccords filetés - et ce sont des tuyaux en PEHD. Ensuite, à l'automne, tout peut être démonté, tordu et rangé. Retournez le tout au printemps.

La pose de conduites d'eau autour du site pour une utilisation hivernale nécessite beaucoup de temps, d'efforts et d'argent. Même dans les gelées les plus sévères, ils ne doivent pas geler. Et il y a deux solutions :

  • déposez-les sous la profondeur de congélation du sol;
  • enterrez peu profondément, mais assurez-vous de chauffer ou d'isoler (ou vous pouvez faire les deux).

pose profonde

Il est logique d'enterrer profondément les conduites d'eau s'il ne gèle pas plus de 1,8 m, soit une couche de sol de près de deux mètres. Auparavant, les tuyaux en amiante servaient d'enveloppe de protection. Aujourd'hui, il existe également un manchon en plastique ondulé. Il est moins cher et plus léger, il est plus facile d'y poser des tuyaux et de lui donner la forme souhaitée.

Le système d'approvisionnement en eau d'une maison privée à partir d'un puits: la procédure d'exécution des travaux

Lors de la pose du pipeline sous la profondeur de congélation, il est nécessaire de creuser une tranchée profonde longue sur tout le parcours. Mais l'approvisionnement en eau d'une maison privée à partir d'un puits et d'un puits ne gèlera pas en hiver

Bien que cette méthode nécessite beaucoup de travail, elle est utilisée car elle est fiable. Dans tous les cas, ils essaient de poser la section du système d'alimentation en eau entre le puits ou le puits et la maison exactement en dessous de la profondeur de congélation. Le tuyau est conduit à travers le mur du puits sous la profondeur de gel du sol et est conduit dans la tranchée sous la maison, où il est surélevé. L'endroit le plus problématique est la sortie du sol dans la maison, vous pouvez en plus la chauffer avec un câble chauffant électrique. Il fonctionne en mode automatique en maintenant la température de chauffage définie - il ne fonctionne que si la température est inférieure à celle définie.

Lors de l'utilisation d'un puits et d'une station de pompage comme source d'eau, un caisson est installé. Il est enterré sous la profondeur de congélation du sol et un équipement y est placé - une station de pompage. Le tube de tubage est coupé de sorte qu'il se trouve au-dessus du fond du caisson, et le pipeline est conduit à travers la paroi du caisson, également en dessous de la profondeur de congélation.

Le système d'approvisionnement en eau d'une maison privée à partir d'un puits: la procédure d'exécution des travaux

Pose de conduites d'eau dans une maison privée à partir d'un puits lors de la construction d'un caisson

Une conduite d'eau enterrée dans le sol est difficile à réparer : il faut creuser. Par conséquent, essayez de poser un tuyau solide sans joints ni soudures : ce sont eux qui posent le plus de problèmes.

près de la surface

Avec une fondation peu profonde, il y a moins de terrassement, mais dans ce cas, il est logique de faire un itinéraire à part entière : tracez une tranchée avec des briques, des dalles de béton minces, etc. Au stade de la construction, les coûts sont importants, mais l'opération est pratique, la réparation et la modernisation ne posent aucun problème.

Dans ce cas, les conduites d'alimentation en eau d'une maison privée du puits et du puits montent au niveau de la tranchée et y sont amenées. Ils sont placés dans une isolation thermique pour les empêcher de geler. Pour l'assurance, ils peuvent également être chauffés - utilisez des câbles chauffants.

Un conseil pratique : s'il existe un câble d'alimentation entre une pompe submersible ou de forage et la maison, il peut être caché dans une gaine de protection en PVC ou autre matériau, puis fixé au tuyau. Fixez chaque mètre avec un morceau de ruban adhésif. Ainsi, vous serez sûr que la partie électrique est sans danger pour vous, le câble ne s'effilochera pas et ne se cassera pas : lorsque le sol bougera, la charge sera sur le tuyau, et non sur le câble.

Sceller l'entrée du puits

Lors de l'organisation de l'approvisionnement en eau d'une maison privée à partir d'un puits de vos propres mains, faites attention à la terminaison du point de sortie de la conduite d'eau de la mine. C'est à partir d'ici que le plus souvent l'eau sale du dessus pénètre à l'intérieur

Le système d'approvisionnement en eau d'une maison privée à partir d'un puits: la procédure d'exécution des travaux

Il est important que la sortie de la conduite d'eau de leur puits soit bien scellée

Si le trou dans la paroi de l'arbre n'est pas beaucoup plus grand que le diamètre du tuyau, l'espace peut être scellé avec du mastic. Si l'écart est important, il est recouvert d'une solution et après séchage, il est enduit d'un composé d'étanchéité (imprégnation bitumineuse par exemple ou composé à base de ciment). Lubrifier de préférence à l'extérieur et à l'intérieur.

Alimentation en eau d'un puits - automatisation sans problème

Un puits dans une cour privée est nécessaire, même s'il y a un raccordement à l'alimentation en eau centrale ou à un puits privé. Tout d'abord, obtenez eau de puits c'est possible même avec l'électricité coupée, à l'aide d'un seau et d'une corde ordinaires - c'est impossible avec un puits.Et deuxièmement, même si la maison est raccordée à l'alimentation en eau, le puits permettra d'économiser sur les factures d'eau - vous pouvez en pomper l'eau pour l'irrigation, pour les animaux domestiques.

Pour choisir un emplacement pour un puits, vous n'avez pas besoin d'avoir des capacités psychiques

Il suffit d'être observateur - de faire attention à l'endroit où il y a le plus de rosée sur le site, où le brouillard tourbillonne sur le sol le matin, où poussent les plantes qui aiment l'humidité. S'il n'y a pas de temps pour des observations à long terme, utilisez la méthode la plus précise - le forage exploratoire

Lire aussi :  Vase d'expansion pour l'alimentation en eau: sélection, appareil, installation et raccordement

N'oubliez pas de prendre en compte les exigences sanitaires - il ne doit pas y avoir de tas de compost, de puisards et de toilettes autour du puits à une distance de 50 mètres.

Le système d'approvisionnement en eau d'une maison privée à partir d'un puits: la procédure d'exécution des travaux

Choisir un emplacement pour un puits

Le système d'approvisionnement en eau d'une maison privée à partir d'un puits: la procédure d'exécution des travaux

Installation d'anneaux de puits en béton armé

Nous installons le premier anneau lorsque la fosse atteint un mètre de profondeur. Ensuite, nous creusons à nouveau, approfondissant et approfondissant progressivement l'anneau, jusqu'à ce qu'il y ait de la place dans la fosse pour un autre anneau, et ainsi de suite. Un point important - si vous envisagez de faire une alimentation en eau autonome d'une maison de campagne à partir d'un puits, alors dans le deuxième anneau d'en haut pour le tuyau, vous devrez percer ou percer un trou d'un diamètre approprié.

Habituellement, à une profondeur de 6 à 9 mètres, l'eau commence à couler très intensément. Pompez-le et continuez à creuser jusqu'à ce que vous remarquiez au moins trois sources de réapprovisionnement en eau. Idéalement, l'eau du puits devrait couvrir au moins un anneau et demi - cela suffira déjà pour une utilisation régulière. Pour connaître le niveau d'eau exact, laissez le shah pendant une journée - l'eau atteindra son maximum et deviendra transparente, ce qui vous permettra d'évaluer la profondeur même visuellement.Si le niveau d'eau vous satisfait, videz à nouveau le puits avec une pompe et posez plus de pierres moyennes sur le fond, qui doivent être recouvertes de gravats d'en haut avec une couche de 30 voir - ça va filtre à sable et à limon.

Source d'eau

Types de puits

Tout système d'approvisionnement en eau d'une maison à partir d'un puits est construit sur la base d'un élément clé - la source d'eau elle-même.

À ce jour, tous les puits, en fonction des caractéristiques du substrat, sont conditionnellement divisés en trois groupes:

  • Sandy - le plus simple et le moins cher de l'arrangement. L'inconvénient est une durée de vie relativement courte (jusqu'à dix ans) et un envasement assez rapide. Convient pour l'installation de jardin.
  • Les argileux demandent un peu plus de responsabilité lors du forage d'un puits, mais sinon ils ont les mêmes avantages et inconvénients que les sableux. Doit être utilisé régulièrement, car après environ un an sans opération, il sera très difficile et coûteux de restaurer un puits ensablé.
  • Les puits calcaires (artésiens) sont considérés comme les meilleurs. Le schéma de forage d'un puits d'eau dans le calcaire implique un approfondissement à un niveau de 50 à 150 mètres. Cela fournit une marge de fiabilité et de durabilité de la source d'eau et, en outre, améliore la qualité de la filtration naturelle.

Le système d'approvisionnement en eau d'une maison privée à partir d'un puits: la procédure d'exécution des travaux

Principales variétés

Lors du choix du type de puits, il ne faut pas prêter toute l'attention à un paramètre tel que le prix. Le fait est que l'aménagement d'une alimentation en eau autonome est une tâche très coûteuse en soi, et il vaut mieux investir une fois dans ce projet (en choisissant un équipement de haute qualité et en invitant des artisans professionnels) que de récolter les douteux «fruits de l'épargne » en quelques années sous la forme de factures impressionnantes de réparation et de reprise de source

Sélection de la pompe

La prochaine étape dans la construction d'un système d'approvisionnement en eau est la sélection de l'équipement de pompage.

Ici, l'instruction recommande de prêter attention à ces points:

  • En règle générale, les modèles performants ne sont pas nécessaires pour les petits chalets. Sachant qu'il faut environ 0,5 à 0,6 m3 d'eau pour faire fonctionner un robinet pendant une heure, on installe généralement une pompe pouvant fournir un débit de 2,5 à 3,5 m3 / h.
  • Les points les plus élevés de prélèvement d'eau doivent également être pris en compte. Dans certains cas, pour fournir la pression nécessaire aux étages supérieurs, l'installation d'une pompe supplémentaire est nécessaire, car le dispositif de remontée d'eau de fond ne peut pas faire face.

Le système d'approvisionnement en eau d'une maison privée à partir d'un puits: la procédure d'exécution des travaux

Pompe de petit diamètre pour remonter l'eau à grande profondeur

Presque tous les modèles de pompes de forage se caractérisent par une consommation d'énergie assez élevée.

Compte tenu de ce fait, il convient de prendre soin du stabilisateur de puissance à l'avance. Et si l'électricité de votre village est souvent coupée, alors le groupe électrogène ne sera pas superflu

Équipement de puits

Le processus d'équipement lui-même est généralement effectué par la même entreprise qui a effectué le forage.

Cependant, vous devez également l'étudier - au moins pour assurer un contrôle de la qualité de l'exécution des opérations de travail :

  • Nous abaissons la pompe sélectionnée à la profondeur de conception et l'accrochons à un câble ou à un cordon solide.
  • À travers le col du puits avec la tête installée (une pièce d'étanchéité spéciale), nous sortons le tuyau d'alimentation en eau et le câble qui alimente la pompe.

Le système d'approvisionnement en eau d'une maison privée à partir d'un puits: la procédure d'exécution des travaux

Tête montée

  • Certains experts conseillent de connecter le tuyau au câble. C'est assez pratique, mais vous devez vous rappeler qu'en aucun cas le tuyau ne doit être pincé aux points de connexion!
  • En outre, un dispositif de levage est monté près du cou - un treuil manuel ou électrique. Vous ne pouvez vous en passer qu'à de très faibles profondeurs, car plus le poids de la pompe elle-même, mais aussi le poids du tuyau avec le câble d'alimentation et le poids du câble, seront ressentis plus fort.

Le système d'approvisionnement en eau d'une maison privée à partir d'un puits: la procédure d'exécution des travaux

Photo de la fosse principale

C'est la vue du schéma du dispositif de puits pour l'eau. Cependant, ce n'est même pas la moitié de la bataille : nous devons assembler tout un système sur cette base.

Types de systèmes de drainage

Lorsqu'on puise de l'eau à une source directe, il ne faut pas oublier que l'eau utilisée doit être détournée quelque part. Aujourd'hui, il existe trois types de système de drainage:

  1. Réseau d'égouts municipal ou local;
  2. Installations de traitement individuelles ou locales avec rejet ultérieur sur le terrain ou dans un réservoir ;
  3. Réservoirs de stockage avec évacuation ultérieure par camions-citernes.

Dans l'aménagement direct des colonies de chalets, il est souvent nécessaire de traiter avec des installations de traitement locales, une certaine zone leur est allouée et un rejet est convenu. Sous forme d'installations de traitement, on utilise dans ce cas des stations de nettoyage en profondeur qui permettent de purifier l'eau avec des bactéries aérobies (boues actives).

Les boues activées sont utilisées comme agent oxydant pour les composés organiques. L'essence du nettoyage en profondeur est l'élimination des particules en suspension des eaux usées, l'oxydation des composés organiques, l'élimination de l'azote et du phosphore. La désinfection est effectuée au moment de l'évacuation de l'eau sur le relief et dans le réservoir. Les performances de la station déterminent l'apport journalier d'effluents. Il convient de noter qu'à partir d'un chalet, il est possible de rejeter 1 à 1,5 m³ d'eaux usées.

La mise en œuvre de la réception des installations de traitement des eaux usées est impossible sans un réseau d'égouts, qui est divisé en intra-quartier (collecteur), local (zone de chalet).

Il est souhaitable que l'ensemble du réseau d'égouts soit conçu par gravité, de la maison à la station de pompage des eaux usées de la station d'épuration. Des puits sont installés aux virages, aux jonctions et à des fins de contrôle sur le réseau d'égouts. S'il n'est pas possible de prévoir une pente pour le drainage gravitaire dans certaines zones, une dérivation sous pression peut être utilisée. Afin de collecter et de pomper les eaux usées, un puits de pompage est installé au tout début de la branche sous pression.

L'eau d'un immeuble résidentiel peut être acheminée vers un puits d'égout par une branche sous pression. Pour assurer l'évacuation sous pression de chaque maison individuelle, des stations de pompage compactes sont utilisées, qui sont installées directement au sous-sol, ou une station de pompage est fournie. bien à la sortie d'une maison ou d'une autre.

Ainsi, l'approvisionnement en eau et l'assainissement sont des services indispensables. Le système de drainage contribue au maintien des normes sanitaires nécessaires dans une colonie particulière. Après tout, l'évacuation de l'eau est un gage de propreté et un élément important de notre vie moderne, aussi bien en ville qu'à la campagne.

Approvisionnement en eau décentralisé

Si vous envisagez de passer à un approvisionnement en eau décentralisé, tenez compte des propriétés du sol, de la profondeur et de l'état des eaux intérieures. Soyez également prêt installer du matériel de pompage et filtres à eau.

IMPORTANT! Vous n'avez pas besoin de payer pour utiliser un système autonome, cependant, l'équipement de pompage et l'aménagement d'un puits ou d'un puits coûtent cher.Conseils pour choisir un emplacement pour les installations de prise d'eau:

Conseils pour choisir un emplacement pour les installations de prise d'eau:

  1. Il doit être installé à une distance de 20 à 30 mètres des systèmes de traitement des eaux usées, des fosses à compost et d'autres sources potentielles de pollution.
  2. Le site doit être non inondable.
  3. Il devrait y avoir une zone aveugle spéciale autour du puits ou du puits (pas plus de 2 mètres). La partie de surface doit être à une distance de 80 cm du sol, recouverte d'un couvercle par le haut.
Lire aussi :  Raccordement d'un accumulateur hydraulique à un système d'alimentation en eau: options et schémas typiques

Caractéristiques de l'approvisionnement en eau d'un puits

Le système d'approvisionnement en eau d'une maison privée à partir d'un puits: la procédure d'exécution des travaux
Eau de puits

Il existe deux types de puits pour l'approvisionnement en eau domestique:

  1. Eh bien "sur le sable".
  • Profondeur de 15 à 40-50 m, durée de vie - de 8 à 20 ans.
  • Si le porteur d'eau n'est pas profond, vous pouvez le forer manuellement.
  • Pour fournir de l'eau, vous devrez installer du matériel de pompage et des filtres.
  1. Puits artésien.
  • Profondeur jusqu'à 150 m, durée de vie - jusqu'à 50 ans.
  • Seuls les exercices d'équipement spécial.
  • L'eau monte d'elle-même, du fait de sa propre pression.
  • Les pompes ne sont utilisées que pour le transport.
  • Un tel puits est enregistré et un passeport lui est délivré.

Bien avantages :

  • volume d'eau stable;
  • haute qualité de l'eau;
  • n'ont pas besoin d'être réparés régulièrement.

Eh bien les inconvénients :

  • le forage est une procédure coûteuse;
  • la durée de vie est inférieure à celle d'un puits ;
  • besoin d'utiliser des pompes supplémentaires coûteuses.

Le plus souvent, les puits sont constitués d'une embouchure et d'une partie hors sol. La bouche est construite dans une chambre souterraine - un caisson. De plus, le dispositif de prise d'eau a un baril. Ses parois sont renforcées par des tubes de tubage en acier. et la partie prise d'eau (constituée d'un puisard et d'un filtre).

Puits pour l'approvisionnement en eau

C'est la solution la plus simple pour l'approvisionnement en eau autonome si l'aquifère est puissant et situé à un niveau de 4-15 m.

Le système d'approvisionnement en eau d'une maison privée à partir d'un puits: la procédure d'exécution des travaux
Approvisionnement en eau d'un puits

Le plus souvent, un puits est construit à partir d'anneaux de béton ou de briques. Il se compose d'une partie hors-sol avec un tuyau de ventilation, un puits, une prise d'eau et une partie contenant de l'eau.

L'eau pénètre dans le puits par le fond ou les parois. Dans le premier cas, un filtre à fond de gravier est placé au fond pour une purification supplémentaire de l'eau.

Si de l'eau pénètre à travers les murs, des «fenêtres» spéciales sont créées et du gravier y est versé, qui sert également de filtre.

Bien avantages :

  • facile à construire;
  • vous pouvez augmenter manuellement l'eau si l'électricité est coupée;
  • faible coût des pompes ;
  • longue durée de vie - plus de 50 ans.

Eh bien les inconvénients :

  • Qualité de l'eau : les eaux souterraines contenant des particules de terre et de limon peuvent y pénétrer.
  • Pour éviter que l'eau ne déborde, le puits doit être nettoyé régulièrement.
  • Le niveau d'eau varie selon la saison, donc par temps chaud, les sources peu profondes peuvent s'assécher.

Vous pouvez construire un puits de vos propres mains, pour cela vous aurez besoin d'anneaux en béton armé, d'un trépied avec un treuil, de seaux et de pelles. Le puits est sans prétention d'entretien, l'accès à la source d'eau est pratique.

L'option avec puits convient dans les cas suivants :

  • si le niveau de consommation d'eau des habitants de la maison est faible ;
  • il y a une puissante source protégée avec une bonne eau;
  • s'il n'y a pas d'autres options.

Séquence dans l'organisation du système d'approvisionnement en eau

Lors du processus d'approvisionnement en eau à la maison, une certaine séquence doit être suivie. Une fois la source d'eau prête, montez :

  • pipeline externe et interne ;
  • pompage et équipement supplémentaire ;
  • filtres pour la purification de l'eau;
  • collecteur de distribution ;
  • dispositif de chauffage de l'eau.

À la fin, les appareils de plomberie sont connectés.

Types de puits pour une alimentation en eau privée

En fonction de la variété des eaux souterraines, les méthodes d'extraction diffèrent. L'aménagement d'un puits pour l'eau dans une maison privée en dépend, il en existe plusieurs types:

Le système d'approvisionnement en eau d'une maison privée à partir d'un puits: la procédure d'exécution des travaux

  • Aiguille - enfoncée dans le sol sur plusieurs mètres pour l'extraction de l'eau de surface. Un tuyau d'un diamètre de 25 à 40 mm est utilisé. Le premier lien a une pointe et un filtre grossier, qui est équipé dans les parois du tuyau. C'est le moyen saisonnier le plus simple de fournir une prise d'eau technique pour l'arrosage des plantes dans un chalet d'été.
  • L'option suivante est le puits dans le sable, qui peut assurer l'approvisionnement en eau technique et potable. Cela dépend beaucoup de l'état du sol, de ses types, de la présence d'entreprises à proximité qui déversent des déchets dangereux dans le sol. S'il n'y a pas d'impact humain négatif à proximité et que le sol est capable de fournir une filtration de haute qualité, cette conception est en mesure de répondre aux exigences de la prise d'eau potable. Pour un travail à part entière, son filtre doit pénétrer dans tout l'aquifère et dépasser ses limites par le bas et par le haut de 50 cm.
  • Artésien - implique une profondeur suffisante et une filtration naturelle de haute qualité. Il est installé selon le principe télescopique, chaque étage inférieur a un diamètre inférieur de 50 mm. Lors du passage de roches avec des eaux souterraines, un filtre est installé, qui doit couvrir toute l'épaisseur du réservoir d'eau.

Comme vous pouvez le voir, la disposition de l'approvisionnement en eau dans une maison privée à partir d'un puits est différente, dans chaque cas son propre schéma est fourni.

Disposition standard du système d'alimentation en eau

Le système d'approvisionnement en eau d'une maison privée à partir d'un puits: la procédure d'exécution des travaux

La pose du système d'alimentation en eau d'une maison privée à partir d'un puits a ses propres caractéristiques. Examinons de plus près les étapes de ce processus.

Le bon choix d'emplacement

Tout d'abord, il est nécessaire de déterminer le lieu de forage. Sur la base des coûts financiers, il doit être aussi proche que possible du point de consommation.

Emplacement du puits :

  • pas à moins de 5 mètres des édifices capitaux;
  • à la distance maximale du puisard et de la fosse septique, la distance minimale est de 20 mètres;
  • l'emplacement doit être pratique pour le forage et l'entretien.

Avec le bon choix d'emplacement, l'eau du puits à la maison répondra aux exigences de l'approvisionnement en eau potable.

Définition de schéma générique

L'approvisionnement en eau d'une maison privée à partir d'un puits avec un accumulateur hydraulique a ses propres caractéristiques.

Le système d'approvisionnement en eau d'une maison privée à partir d'un puits: la procédure d'exécution des travaux

Examinons plus en détail les éléments utilisés et le schéma de leur connexion:

  • L'élément principal qui crée le mouvement de l'eau vers la surface est la pompe. Il peut être en surface et situé à l'intérieur, ou submersible et être dans l'eau. La première option est utilisée avec une petite profondeur de levage jusqu'à 8 mètres. Le deuxième type de pompe est plus populaire et est utilisé pour des profondeurs de 100 mètres ou plus.
  • Installation d'un accumulateur hydraulique, qui est un réservoir constitué d'un boîtier rigide, dans lequel se trouve un récipient en caoutchouc pour le remplissage en air. La pression constante dans le système dépend de cet élément.
  • L'automatisation est responsable du bon fonctionnement du système et allume et éteint indépendamment la pompe si nécessaire. La puissance de la pompe et le volume du réservoir de stockage sont calculés avec une marge, en fonction de tous les points de consommation d'eau.
  • Des filtres grossiers sont situés sur le site de prise d'eau, ce qui empêche les gros fragments de pénétrer dans le système d'approvisionnement en eau. Ensuite, un filtre fin est installé devant la pompe, qui est sélectionné en fonction de la composition de l'eau.

Disposition et emplacement des équipements

Un point important reste l'emplacement correct des équipements utilisés dans l'alimentation en eau du puits. L'option la plus acceptable est la disposition d'un puits à caisson, qui est situé au-dessus du puits et vous permet de fournir des conditions confortables pour le fonctionnement de l'équipement utilisé.

Le système d'approvisionnement en eau d'une maison privée à partir d'un puits: la procédure d'exécution des travaux

La rationalité est la suivante :

  • l'équipement est situé à proximité immédiate de la prise d'eau, ce qui contribue à l'efficacité maximale de son utilisation ;
  • des matériaux d'insonorisation sont utilisés dans le puits pour assurer le silence de la pompe ;
  • l'équipement est situé au même endroit et protégé des dommages mécaniques ;
  • une isolation thermique de haute qualité permet une utilisation ininterrompue de l'approvisionnement en eau tout au long de l'année.

Bien sûr, cet équipement peut être placé dans la salle de bain ou dans une autre pièce, mais la présence d'un caisson est certainement un gros avantage.

Caractéristiques de pose de tuyaux

Les plus appropriés sont les tuyaux en polyéthylène basse densité. Ils se distinguent par leur durabilité et leur simplicité, ainsi que par leur facilité de construction et leur facilité d'installation :

il est possible de les poser directement dans le sol, mais il est recommandé de creuser une tranchée à une profondeur qui exclut le gel; un tuyau technique y est installé, dans lequel se trouve le pipeline lui-même; il est important d'utiliser des matériaux calorifuges, il est souhaitable d'avoir un câble chauffant; dans les endroits inaccessibles, les connexions inutiles doivent être évitées, ce qui est facilité par le tuyau en PEHD. À l'intérieur, le pipeline peut être construit à partir d'autres matériaux : cuivre et acier

À l'intérieur, le pipeline peut être construit à partir d'autres matériaux : cuivre et acier.

Quel équipement est nécessaire pour organiser la structure

Pour équiper un puits artésien de vos propres mains, vous aurez besoin de:

  • équipement de levage d'eau;
  • casquette;
  • réservoir hydraulique ;
  • équipement supplémentaire pour le contrôle de la pression, du niveau et du débit d'eau;
  • hors gel : fosse, caisson ou adaptateur.

Lors de l'achat d'une pompe submersible, il est important de calculer correctement la puissance requise. Le modèle est sélectionné en fonction des performances et du diamètre. Vous ne pouvez pas économiser sur cet équipement, car

la performance de l'ensemble du système d'alimentation en eau du site en dépend

Vous ne pouvez pas économiser sur cet équipement, car. la performance de l'ensemble du système d'alimentation en eau du site en dépend.

Lire aussi :  Comment conduire l'eau dans une maison privée: disposition d'une source d'approvisionnement en eau + alimentation en eau de la maison

La meilleure option est un modèle dans un boîtier hermétique à haute résistance, équipé de capteurs, d'unités de filtrage et d'automatisation. En ce qui concerne les marques, les équipements de relevage d'eau Grundfos méritent une attention particulière.

En règle générale, une pompe submersible est installée à une hauteur d'environ 1 à 1,5 m du bas de la structure hydraulique, cependant, dans un puits artésien, elle peut être située beaucoup plus haut, car.les eaux sous pression s'élèvent au-dessus de l'horizon.

La profondeur d'immersion d'une source artésienne doit être calculée sur la base des indicateurs de niveaux d'eau statiques et dynamiques.

Pour garder l'eau artésienne limpide, le tuyau de production doit être protégé des débris, des eaux de surface et d'autres facteurs environnementaux défavorables. Cet élément structurel est utilisé pour fixer solidement le câble de la pompe submersible.

La tête se compose d'un couvercle, de pinces, d'un mousqueton, d'une bride et d'un joint. Les modèles de production industrielle n'ont pas besoin d'être soudés au tubage, ils sont fixés avec des boulons qui pressent le couvercle contre le joint, assurant ainsi une étanchéité complète de la tête de puits. Les caractéristiques de montage des têtes maison dépendent de la conception des appareils.

L'accumulateur hydraulique est une unité importante d'un système d'approvisionnement en eau autonome. Il est nécessaire d'assurer le fonctionnement normal de l'alimentation en eau, de protéger la pompe des marches-arrêts constants et d'éviter les coups de bélier. La batterie est un réservoir d'eau, équipé en outre de capteurs de pression et d'automatisation.

Lorsque la pompe est allumée, l'eau pénètre d'abord dans le réservoir et est acheminée vers les points de puisage. Les niveaux d'eau auxquels la pompe s'allume et s'éteint peuvent être ajustés à l'aide de capteurs de pression. En vente, il existe des réservoirs hydrauliques d'une capacité de 10 à 1000 litres. Chaque propriétaire de puits peut choisir le modèle qui convient le mieux à son système.

Le puits doit être protégé du gel. À ces fins, vous pouvez faire une fosse, installer un caisson, un adaptateur. L'option traditionnelle est une fosse. C'est une petite fosse dont les murs sont renforcés de béton ou de briques.D'en haut, la structure est fermée par un couvercle lourd avec une trappe. Il n'est pas souhaitable d'installer un équipement dans la fosse, car même avec une bonne étanchéité, les murs laissent encore passer l'humidité, la conception n'est pas étanche.

Un analogue plus moderne et technologique de la fosse est le caisson. Cette conception est mieux achetée dans un magasin spécialisé. Les caissons de production industrielle sont conçus à l'avance pour accueillir tous les équipements nécessaires. Les modèles en plastique sont bien isolés et hermétiques. Les caissons métalliques nécessitent souvent une isolation supplémentaire.

Pour un puits artésien monotube, un agencement utilisant un adaptateur sans fosse convient. Dans ce cas, la fonction de structure de protection est assurée par le tubage lui-même. L'adaptateur ne peut être installé que si la colonne est en métal. Le fonctionnement d'un tuyau en plastique pose de sérieuses difficultés et la durée de vie de la structure peut être de courte durée.

Approvisionnement en eau centralisé: avantages et inconvénients

S'il y a une alimentation en eau centralisée près de la maison, le moyen le plus simple d'amener de l'eau dans la maison est de s'y connecter.

Le système d'approvisionnement en eau d'une maison privée à partir d'un puits: la procédure d'exécution des travaux
Raccordement à l'alimentation en eau centrale

Avec des documents confirmant que le terrain appartient, vous devez vous adresser au service des eaux local. Ils émettront un document avec les spécifications techniques. Les spécifications indiquent le point de raccordement, la section du tuyau et d'autres nuances. Sur la base des spécifications techniques, une organisation disposant d'une licence spéciale élaborera un projet. Celui-ci, accompagné du devis, doit être certifié par la Station sanitaire et épidémiologique. Le raccordement à l'approvisionnement central en eau sera effectué par une entreprise titulaire d'une licence pour l'installation de l'approvisionnement en eau.

Après le raccordement et la connexion de la canalisation avec les communications internes, les employés du service des eaux acte de mise en service. Le consommateur conclut un accord avec le service des eaux pour payer les services.

La conception et l'installation prendront du temps, mais le résultat plaira au propriétaire de la maison. Le système d'approvisionnement en eau centralisé a ses inconvénients:

  • S'il y a une rafale, la maison sera laissée sans eau.
  • Pression d'eau pas toujours uniforme.
  • Facture d'eau mensuelle.
  • La qualité de l'eau doit encore être purifiée.

Un avantage évident de la connexion à l'approvisionnement en eau central est le coût. Cela coûte toujours beaucoup moins cher que d'organiser un approvisionnement en eau autonome.

Choisissez une source

Un puits ou une alimentation en eau centrale peut être choisi comme source, mais un approvisionnement à partir d'un puits peut également être effectué et cela ne coûtera pas cher. Cela doit être considéré au cas par cas.

C'est bien s'il y a un puits ou un puits de haute qualité sur le territoire du chalet d'été que vous avez acheté. Mais s'il n'existe pas, il faut le créer.

Bien

Un puits est la source artificielle la plus ancienne qui fournit de l'eau à une personne.

Ce qui est bien et ce qui est mal

Avant d'équiper un puits, assurez-vous que le volume d'eau est suffisant pour votre famille :

  • Cette option est moins chère que la création d'un puits.
  • Il n'est pas nécessaire de recourir aux services de spécialistes, vous pouvez acheter le matériel nécessaire et effectuer vous-même tout le travail. Cela vous fera économiser beaucoup d'argent. Le prix de l'ensemble de la structure sera nettement inférieur;
  • Un puits dure plus longtemps qu'un puits. La durée maximale de son exploitation est de 50 ans. De plus, le puits est indépendant de l'électricité, contrairement au puits.
  • Mais il y a un inconvénient : il peut contenir de l'eau perchée, ce qui réduit considérablement la qualité de l'eau.Mais cela ne se produit que si l'imperméabilisation est effectuée de manière incorrecte (voir Imperméabilisation du puits: méthodes et méthodes de travail).

Dans certaines régions, le forage de puits est préféré. Les raisons peuvent être très différentes.
Peut-être y a-t-il une source ou une rivière souterraine avec de l'eau de haute qualité à proximité, ou peut-être que l'eau souterraine est à une profondeur de plus de 15 m.

Eh bien "sur le sable"

Lors de sa création, l'eau est prélevée dans les couches supérieures du sol. la première est atteinte Dans cette variante, il suffit d'atteindre la première couche d'eau propre à la consommation. Au-dessus se trouve un limon dense, qui filtre la pluie, la fonte et les eaux souterraines.

Le système d'approvisionnement en eau d'une maison privée à partir d'un puits: la procédure d'exécution des travaux

Schème puits de sable

Alors:

  • Dans chaque région, l'aquifère se trouve à différentes profondeurs, de sorte que la profondeur du puits "sur le sable" peut être de 10 à 50 mètres.
  • Ce type de puits contient 500 litres d'eau. Étant donné que les filtres de puits se bouchent avec le limon et le sable avec le temps, une telle source peut être utilisée pendant environ 5 ans.
  • La zone sur laquelle se trouve le puits est d'une grande importance. La source peut s'avérer inépuisable, car même avec une faible présence d'eau souterraine (plus de 15 m de profondeur), vous pouvez tomber sur une rivière souterraine. Dans cette situation, les filtres ne se boucheront pas et le puits durera plus de 20 ans.

3 id="artezianskaya-skvazhina">Puits artésien

Dans ce cas, il est nécessaire de forer dans la roche calcaire, qui se trouve à une profondeur de 35 à 1 000 mètres ou plus. Un puits artésien est une source fiable et durable d'un volume minimum de 1500 litres.

Le système d'approvisionnement en eau d'une maison privée à partir d'un puits: la procédure d'exécution des travaux

Schéma d'un puits artésien

Alors:

L'eau de la couche calcaire du sol est de haute qualité.Habituellement, les puits «pour le calcaire» ne sont pas créés pour des besoins personnels, et s'ils sont créés, la profondeur ne dépasse pas 135 m.

  • Son aménagement prend de plusieurs jours à un mois. Dans le même temps, on dépense beaucoup plus d'argent que lors de la création d'un puits "sur du sable".
  • L'eau souterraine et l'eau perchée ne peuvent pas entrer dans un puits de type artésien. Sa durée de vie est approximativement la même que celle d'un puits.

Si on le désire construire une source d'eau comment bien, demandez un calcul de débit. De cette façon, vous pouvez choisir la bonne pompe pour vous. Et si vous le faites ensemble, alors une station de pompage. Et ce sont des coûts qui peuvent être évités.

Découvrez la productivité du puits

Pour connaître les performances d'une source d'eau, il vous faut :

  • Pomper l'eau à l'aide d'une pompe de surface ou d'une motopompe ;
  • Ensuite, vous devez mesurer son montant. Attachez une ficelle à l'écrou et abaissez-le dans une source d'eau, puis mesurez la longueur.

Ainsi, vous reconnaîtrez le miroir de l'eau. Après avoir reçu les données nécessaires, vous pouvez procéder à l'achat de la station de pompage elle-même.

Pour vous familiariser avec les paramètres, utilisez le passeport système

Portez une attention particulière à la présence d'un filtre d'entrée et d'un clapet anti-retour

Évaluation
Site sur la plomberie

Nous vous conseillons de lire

Où remplir la poudre dans la machine à laver et combien de poudre verser