- Type de système de ventilation du cabinet dentaire
- Le principe de fonctionnement du système de ventilation d'alimentation
- Exigences d'admission/d'échappement d'air
- Filtres
- Placement de l'équipement
- L'importance du microclimat pour les institutions médicales
- Caractéristiques de la ventilation en dentisterie
- Ventilation dans les hôpitaux pour maladies infectieuses et autres établissements médicaux
- Les subtilités de l'organisation de la ventilation au bloc opératoire
- Exigences relatives aux conduits d'air
- La section transversale du conduit est calculée par la formule : S= L/(3600∙w)
- Puissance de chauffe
- Puissance du ventilateur
- Calcul acoustique
- Caractéristiques de la ventilation dans les établissements médicaux
- Comment éliminer correctement les déchets
- RÉALISATION DU NETTOYAGE GÉNÉRAL EN DENTISTERIE PAR ÉTAPES
- Ventilation dentaire
- Paramètres de ventilation pour les salles de radiographie dentaire
- Équipement de ventilation à rayons X en dentisterie
- Exigences Gosopzhnadzora
- Règlements
- Exigences pour les locaux et sa décoration
- Exigences en matière de documentation
- Exigences de câblage
- Exigences relatives au matériel de lutte contre l'incendie
- Besoins en personnel
- Conclusions et vidéo utile sur le sujet
Type de système de ventilation du cabinet dentaire
Le plus souvent, dans les cabinets dentaires, il est nécessaire d'utiliser un système de ventilation par aspiration (assure l'évacuation de l'air extrait), qui fonctionne en conjonction avec un système d'alimentation en air (responsable de l'apport d'air pur). Dans un certain nombre de pièces, la ventilation est autorisée en raison de la ventilation. Le système de ventilation d'alimentation est une combinaison de filtres de nettoyage, d'un ventilateur, d'un radiateur (chauffage), de communications de raccordement (conduits d'air), de silencieux, etc.
Le principe de fonctionnement du système de ventilation d'alimentation
L'air prélevé dans la rue, passant à travers le filtre, est nettoyé de diverses impuretés et odeurs nocives. Ensuite, il entre dans le radiateur où, si nécessaire, il chauffe jusqu'à la température requise (un capteur est installé devant le radiateur pour contrôler la température de l'air provenant de la rue). Dans la pièce, de l'air frais et déjà purifié est fourni à l'aide d'un ventilateur soufflant. Un silencieux est généralement installé après le ventilateur dans ce système.
Exigences d'admission/d'échappement d'air
Parallèlement, l'air extérieur est prélevé dans une zone propre située à une distance d'au moins 2 mètres du sol. L'apport d'air pur est effectué dans la zone supérieure de la pièce, l'admission des gaz d'échappement (à quelques exceptions près) à partir de là.
*IMPORTANT! Dans les salles d'anesthésie, les salles d'opération et les salles de radiologie, l'air évacué doit être prélevé à la fois dans la partie supérieure et dans la partie inférieure de la salle.
L'air vicié est rejeté à 70 cm au-dessus du toit. La ventilation des cabinets dentaires qui ne sont pas équipés d'un système de ventilation autonome peut être réalisée en évacuant l'air "sale" vers mur extérieur du bâtiment.
Filtres
Afin d'éviter de polluer l'air ambiant avec des substances nocives, la présence de filtres de nettoyage à haute efficacité est une condition préalable. On utilise principalement des filtres photocatalytiques et des filtres HEPA.
Les filtres HEPA offrent une rétention de particules très efficace. L'efficacité des filtres HEPA est mesurée par le nombre de particules jusqu'à 0,06 microns par litre d'air qui sont rejetées dans l'environnement après avoir traversé le filtre (indiqué entre parenthèses). Classes de filtre : HEPA 10 (50000), HEPA 11 (5000), HEPA 12 (500), HEPA 13 (50), HEPA 14 (5). (plus à propos aération des salles blanches)
Le principal avantage des filtres photocatalytiques est qu'ils n'accumulent pas de substances nocives. Sous l'influence d'une lampe ultraviolette et d'un catalyseur (dioxyde de titane), les impuretés nocives contenues dans l'air évacué subissent des transformations chimiques et se décomposent.
Placement de l'équipement
Sous l'équipement du système de ventilation, des pièces séparées doivent être attribuées sans séjour permanent de personnes.
Un système de ventilation à air autonome doit avoir :
- salles d'opération;
- préopératoire;
- salles de stérilisation;
- salles de radiologie;
- salles de bains;
- installations de production des laboratoires.
Dans chaque bureau (à l'exception du bloc opératoire), la possibilité d'une ventilation naturelle doit être prévue - ventilation due aux impostes. Si cela n'est pas possible, il est nécessaire d'installer des climatiseurs dans la pièce, équipés de filtres pour traiter et purifier l'air. Les filtres fins doivent être remplacés au moins une fois tous les six mois.
Il faut également prévoir :
- hottes d'extraction sur les appareils de chauffage dans la salle de polymérisation ;
- évacuation forcée pour salles thérapeutiques, de soudure, de stérilisation, orthopédiques ;
- équipement local d'aspiration à proximité de chaque polisseuse.
*IMPORTANT! Lors de la conception de locaux pour cliniques dentaires, il convient également de tenir compte du fait que la ventilation d'un cabinet dentaire situé dans une partie d'un bâtiment résidentiel ou administratif doit disposer de conduits d'air indépendants et ne peut être raccordée au système de ventilation d'une zone résidentielle.
L'importance du microclimat pour les institutions médicales
Étant donné que ceux qui ont besoin de soins médicaux sont admis dans les hôpitaux et que ceux qui les reçoivent se trouvent dans les services, il convient de surveiller attentivement le respect du microclimat.
Il ne s'agit pas seulement de maintenir la pureté de l'air, mais aussi de maintenir le régime de température. Les indicateurs de microclimat affectent directement la condition humaine, la température corporelle, etc.
Les catégories de patients particulièrement sensibles au microclimat comprennent les enfants, les personnes âgées, ainsi que ceux qui souffrent de maladies neurologiques et cardiovasculaires.
Lors de la planification des indicateurs de microclimat, l'emplacement de l'établissement médical, son nombre d'étages, ainsi que les types de patients qui seront gardés à l'hôpital sont pris en compte.
Par exemple, dans les services opératoires et postopératoires, ainsi que dans les services post-partum, la température optimale de l'air est de 21 à 24 degrés Celsius. Et pour les pièces où sont effectuées des manipulations avec des nouveau-nés, un indicateur de 24 degrés est considéré comme idéal.
Caractéristiques de la ventilation en dentisterie
Comme mentionné ci-dessus, les systèmes de ventilation dans les cabinets dentaires affectent l'obtention d'une licence pour fournir des services médicaux.Parallèlement, la ventilation elle-même subit une procédure de certification.
Cette procédure est effectuée après l'achèvement de l'installation du système. Passeport du système de ventilation mis à jour annuellement et valable un an seulement.
Pour obtenir un nouveau passeport pour l'année suivante, les travaux suivants doivent être complétés:
- Désinfection du système.
- Nettoyage du filtre.
- Vérification des performances.
- Élimination de tous les problèmes identifiés.
Simplifier la procédure de certification de la ventilation permet la conclusion d'un contrat de service avec l'entreprise qui a effectué les travaux.
Lors de l'exécution d'un entretien de routine pour vérifier le système de ventilation d'alimentation et d'évacuation, il est interdit d'effectuer tout travail médical. Le cabinet dentaire doit être préparé pour les tests, le matériel est recouvert de housses spéciales. Après avoir nettoyé et travaillé avec des appareils, la désinfection de la pièce est obligatoire.
Une autre caractéristique des systèmes de ventilation dentaire est la nécessité de chauffer l'air fourni à la pièce. Cette mesure est essentielle dans les endroits au climat rigoureux et est assurée par des dispositifs spéciaux intégrés au système de ventilation.
Dans les endroits au climat plus chaud, un chauffage supplémentaire de l'air entrant dans la pièce n'est pas nécessaire. Pour les endroits à climat chaud, des refroidisseurs de conduits sont intégrés aux systèmes de ventilation.
La grille de ventilation doit être située dans la zone supérieure de la pièce. Dans les cabinets dentaires équipés de radiographies, il est conseillé d'opter pour une ventilation d'alimentation et d'extraction.
Le nettoyage des grilles de ventilation doit être effectué quotidiennement lors du nettoyage de la pièce. La détection d'une grande quantité de poussière lors du nettoyage peut indiquer un colmatage prématuré du système de ventilation. De plus, une inspection quotidienne de la grille empêchera l'apparition de moisissures en cas d'augmentation de l'humidité dans la pièce.
Pour accueillir l'équipement impliqué dans le système de ventilation, il est nécessaire d'allouer des locaux techniques, dont l'accès doit être limité, et leur emplacement ne doit pas être adjacent à la pièce où le travail médical des dentistes est effectué.
Tous les conduits de ventilation doivent être situés sous le plafond dans les couloirs et les zones de travail. Ils doivent être cachés, c'est-à-dire recouverts d'un faux plafond.
Ventilation dans les hôpitaux pour maladies infectieuses et autres établissements médicaux
Dans le cas des hôpitaux hospitaliers pour maladies infectieuses, pratiquement les mêmes exigences et normes sont imposées que pour les autres installations sanitaires et médicales.
Dans tous les conduits de ventilation, s'il s'agit d'un hôpital pour maladies infectieuses, des filtres à plusieurs niveaux doivent être installés qui peuvent non seulement purifier l'air entrant et sortant, mais aussi le désinfecter en tuant les bactéries pathogènes. Les filtres doivent être remplacés régulièrement.
Le système de ventilation de l'unité d'exploitation doit également maintenir la température et l'humidité de l'air réglées, respecter les normes: le taux de renouvellement d'air est d'au moins 7, et également filtrer soigneusement les flux d'air et ne pas créer de courants d'air.
La comptabilité du système de ventilation dans un établissement médical budgétaire est incluse dans la comptabilité du système de communication général, c'est-à-dire les égouts, l'éclairage et bien plus encore
Selon cette comptabilité, la ventilation joue un rôle très important dans un bâtiment budgétaire.
Les subtilités de l'organisation de la ventilation au bloc opératoire
Pour le bloc opératoire, un certain nombre d'exigences de ventilation diffèrent des exigences pour les autres types de locaux :
- le taux de renouvellement d'air minimum doit être de 10 ;
- les filtres doivent être au moins de classe H14 ;
- la température moyenne est de 22 degrés Celsius.

Le système de ventilation des unités d'exploitation doit respecter un certain nombre de règles spécifiques
Pour garantir le niveau requis de stérilité de la pièce, des rideaux d'air sont souvent utilisés. Cette méthode est assez bon marché et compacte et implique l'utilisation de panneaux d'échappement laminaires, dont les flux d'air se croisent, créant ainsi une barrière à l'air.
Le rideau d'air pour la salle d'opération fonctionne mieux lorsque la hotte fait le tour du périmètre de la pièce. L'avantage du système de rideau d'air est qu'il n'est pas nécessaire d'installer un système de ventilation encombrant, et les flux d'air, lorsque l'équipement est correctement placé, couvrent la table chirurgicale et le personnel médical qui y travaille.
Avec le calcul correct de la vitesse de déplacement des flux d'air, il est possible d'atteindre un niveau élevé de désinfection de l'unité d'exploitation en utilisant un système de rideau d'air.
Exigences relatives aux conduits d'air
Un autre indicateur de l'efficacité de la ventilation est la section transversale du conduit. Les conduits d'air peuvent être de différentes formes, tailles et configurations. Ces paramètres du conduit d'air sont directement liés aux performances requises du système de ventilation. De plus, dans le calcul technique, il est nécessaire de prendre en compte la vitesse de l'air autorisée.
Le conduit d'air doit être étanche, non endommagé mécaniquement, sa surface intérieure doit être en matériau non absorbant. La possibilité que des particules du matériau de la surface intérieure du conduit d'air pénètrent dans l'air ambiant doit également être exclue. Dans la plupart des cas, les conduits d'air sont en acier inoxydable : il répond aux normes d'hygiène et a une longue durée de vie en raison de sa haute résistance, de sa résistance à l'usure et de sa résistance à la corrosion.
La section transversale du conduit est calculée par la formule : S= L/(3600∙w)
L est la capacité du système de ventilation, m3/h ; w est la vitesse de l'air dans le canal, m/s.
Connaissant la surface, vous pouvez calculer le diamètre du conduit : D=√(4S/π)
Pour les conduits d'air à section rectangulaire, les valeurs de hauteur et de largeur sont sélectionnées en fonction de la valeur de surface calculée.
Puissance de chauffe
Dans les locaux des cliniques dentaires, un certain régime de température doit être respecté. Pendant la saison froide, l'air pur prélevé dans la rue doit être chauffé à l'aide d'un radiateur. La puissance électrique dépensée pour chauffer l'air soufflé froid est calculée par la formule : Q=L∙ρ∙Cp∙(t2-t1)
ρ est la densité de l'air ;
DER est la capacité calorifique de l'air;
t2, t1 - température de l'air après et avant le réchauffeur ;
L est la performance du système de ventilation.
Puissance du ventilateur
Selon la valeur connue des performances du système de ventilation, il est possible de déterminer quelle puissance de ventilateur est nécessaire dans une situation donnée.Cependant, le ventilateur doit être choisi avec une certaine marge de puissance : le système de conduits d'air résiste au flux d'air en mouvement, il est donc nécessaire de prendre en compte les pertes par frottement sur la longueur du conduit, ainsi que les pertes causées par un changement de la la forme ou la taille du conduit.
Calcul acoustique
Une dernière étape obligatoire dans la conception et le calcul de la ventilation est un calcul acoustique ou un calcul du niveau de bruit produit lors du fonctionnement de l'équipement et du mouvement de l'air. Parallèlement, ce calcul est effectué à la fois pour les locaux directement desservis par le système de ventilation, et pour les locaux dans lesquels passe le conduit d'air en transit.
Pour effectuer avec précision des tests acoustiques, il est nécessaire de connaître les paramètres géométriques de la pièce, le spectre de bruit de la source d'étude, la distance de la source de bruit au point de fonctionnement, les caractéristiques de la pièce et les caractéristiques de l'obstacle. Le niveau de bruit calculé en certains points de la pièce est comparé à la valeur admissible de ce paramètre. Si la pression acoustique calculée ne répond pas aux normes établies, le calcul acoustique comprend également le développement de mesures qui contribuent à la réduction du bruit ou à sa protection. Les niveaux de pression acoustique admissibles dans les pièces sont indiqués dans GOST.
Ventilation d'alimentation et d'extraction dans une clinique dentaire
Le système de ventilation de la clinique dentaire doit être réalisé strictement selon les règles spécifiées dans les documents réglementaires (SaNPiN, SNiP). Sur la base des calculs techniques effectués par des spécialistes, un projet de systèmes de ventilation est en cours d'élaboration. Cela prend en compte le nombre de pièces et calcule également la charge électrique requise du réseau.Sur cette base, l'équipement de ventilation nécessaire est sélectionné, des schémas et des dessins sont établis. Avant de procéder à la mise en œuvre du projet, celui-ci doit être approuvé dans le SES (parfois dans le logement et les services communaux).
Obtenez une consultation gratuite avec un ingénieur en ventilation de clinique dentaire
Obtenir!
Caractéristiques de la ventilation dans les établissements médicaux
Pour tout établissement médical, qu'il s'agisse d'hôpitaux ordinaires, de cliniques ou d'autres types d'établissements, il existe des conditions et des actes spéciaux pour le système de ventilation. Cela peut inclure certaines nuances.
- La salle d'opération est équipée d'une ventilation qui vous permet à tout moment de maintenir certains indicateurs d'humidité et de température. Ces indicateurs sont fournis dans SanPiN.
- Dans les organisations médicales, les capteurs verticaux ne peuvent pas être installés comme système de ventilation, car ils ne peuvent pas fournir un niveau suffisant de purification de l'air.
- Dans les salles d'opération, dans la salle de radiologie, la maternité, l'unité de soins intensifs et d'autres unités importantes, la ventilation par aspiration doit être organisée de manière à ce que l'air extrait soit évacué à la fois dans les parties supérieure et inférieure de la pièce.
- Les salles d'hôpital doivent être ventilées naturellement et la ventilation forcée ne doit être activée que pendant la saison froide. De telles conditions sont mieux adaptées au rétablissement des patients.
- La ventilation et la climatisation des chambres d'hôpital ne doivent pas être réalisées en recirculation d'air, car cela est interdit par la réglementation médicale.
- Le système de ventilation de chaque pièce individuelle doit maintenir le microclimat établi par les normes SNIP.
- La ventilation naturelle n'est autorisée que dans les cabinets dentaires. Il est permis d'installer uniquement des systèmes de ventilation pour l'échange d'air forcé dans les salles d'opération et de radiologie. Les systèmes d'alimentation et d'évacuation doivent être séparés.

La présence de ventilation naturelle est autorisée uniquement dans les cabinets dentaires
Pendant le fonctionnement de la ventilation, l'indicateur de niveau sonore, un multiple de 35 dB, ne doit pas être dépassé.
Comme déjà mentionné, la ventilation naturelle ne peut être installée que dans des conditions particulières :
- dans les locaux à usage préventif et domestique, les aires de loisirs, les halls et les salles d'attente ;
- dans les toilettes et les douches ;
- dans les salles d'hydrothérapie, les points de feldsher, les pharmacies.
Dans les salles d'opération, les salles de physiothérapie et autres locaux importants, l'installation d'un système de climatisation forcée et l'utilisation d'équipements de ventilation spécialisés sont indispensables.
Comment éliminer correctement les déchets
Seule une personne qui a reçu le certificat approprié peut éliminer les déchets dans un établissement médical. Chaque établissement médical devrait avoir sa propre "Instruction sur la procédure de collecte, de stockage et d'élimination des déchets".
Important! Tous les déchets qui apparaissent à la suite des activités d'un établissement médical, y compris les tissus humains, les sécrétions et fluides, le matériel médical (embouts de seringues, pansements, vêtements, etc.), s'ils peuvent être contaminés, présentent un danger pour la santé humaine. Pour cette raison, ils doivent être éliminés. La procédure d'élimination des déchets dépend du type de déchets :
La procédure d'élimination des déchets dépend du type de déchets :
- les déchets alimentaires et les ordures ménagères solides doivent être traités thermiquement ou enfouis dans la décharge après désinfection ;
- les matières biologiques et les produits en plastique doivent être traités par des méthodes thermiques ;
- les déchets pharmaceutiques et les substances radioactives (y compris le mercure) ne peuvent être détruits que dans des installations spéciales.
Dans ce dernier cas, la clinique n'est responsable que de l'emballage et du transport des déchets.
RÉALISATION DU NETTOYAGE GÉNÉRAL EN DENTISTERIE PAR ÉTAPES
Au fil des années de développement de la médecine, la procédure la plus pratique et la plus efficace pour la mise en œuvre des travaux de nettoyage et de désinfection a été développée. Il est décrit dans la documentation réglementaire comme un algorithme pour effectuer un nettoyage général, et il est fortement déconseillé de s'en écarter. En dentisterie, ils fonctionnent comme ceci :
- nettoyer les surfaces particulièrement contaminées de la poussière et des taches à l'aide d'un détergent conventionnel;
- serviettes abondamment humidifiées avec une solution de DS, essuyez toutes les surfaces;
- désinfecter la pièce à la lumière ultraviolette (il faut allumer la lampe bactéricide pendant une heure);
- après irradiation UV, la solution désinfectante est lavée des surfaces avec des lingettes stériles ou jetables et de l'eau propre ;
- rallumer la lampe bactéricide (pendant une demi-heure ou une heure).
Ventilation dentaire
SanPiN pour une institution telle que la dentisterie prévoit le respect d'un certain nombre d'exigences particulières. Par exemple, si l'emplacement d'une organisation de soins dentaires coïncide avec un immeuble résidentiel, leurs systèmes de ventilation doivent être séparés. La prise d'air de la rue doit être effectuée à partir d'une zone propre, qui ne doit pas être inférieure à deux mètres du sol.

SanPiN impose un certain nombre de règles spéciales sur le système de ventilation du cabinet dentaire.
L'évacuation de l'air évacué doit être effectuée au-dessus du niveau du toit de 0,7 mètre et, après nettoyage avec des filtres, il peut être projeté sur la façade du bâtiment. L'air est fourni et prélevé dans le service et les autres pièces nécessairement dans la zone supérieure. Les exceptions sont les salles d'opération et les salles de radiologie, dans lesquelles l'entrée et la sortie d'air doivent être effectuées à partir des zones supérieure et inférieure.
La climatisation de la salle de radiologie, des salles d'opération et des autres locaux doit être effectuée à l'aide d'équipements spécialisés qui non seulement fourniront et prélèveront de l'air, mais également le filtreront.
Avant d'installer un équipement de ventilation dans une organisation médicale, les exigences suivantes doivent être prises en compte :
- SanPiN 2.6.1.1192-03.
- SanPiN 2.1.3.2630-10.
En outre, un certain nombre d'exigences d'hygiène sont imposées aux organisations médicales concernant le fonctionnement et l'installation des salles de radiologie, ainsi que des exigences sanitaires et épidémiologiques pour les organisations engagées dans des activités médicales opérationnelles et autres.
Paramètres de ventilation pour les salles de radiographie dentaire
Toute ventilation médicale en dentisterie doit répondre à certains paramètres techniques.
- Le taux de renouvellement d'air requis doit être d'au moins 7 pour la ventilation d'alimentation et d'au moins 9 pour la ventilation d'extraction.
- L'alimentation en air par les systèmes d'alimentation doit être effectuée dans la zone supérieure de la pièce et l'admission par les systèmes d'échappement - à la fois par le haut et par le bas.
- Le système doit maintenir le taux de circulation de la masse d'air requis, qui est de 0,2 à 0,5 m/s.
- Les systèmes de contrôle du chauffage et de la climatisation doivent maintenir des températures comprises entre 18 et 23 degrés Celsius en hiver et entre 21 et 25 degrés Celsius en été.
- Le taux d'humidité requis dans une chambre d'hôpital ne doit pas dépasser 60 % pour une salle de radiologie, des laboratoires et des salles d'orthopédie, ainsi qu'une salle thérapeutique, et pas plus de 75 % pour les autres pièces, dont le bloc opératoire. .
- Dans le cas de pièces dans lesquelles sont effectués des travaux avec des implants dentaires et des prothèses, des zones d'évacuation doivent être organisées au-dessus des appareils de chauffage. Dans ces zones, des hottes d'extraction doivent être installées, qui doivent fonctionner en mode d'évacuation forcée de l'air pollué de la pièce.
- Dans le cas des salles de thérapie, une aspiration séparée doit être prévue près de chaque fauteuil dentaire.
Équipement de ventilation à rayons X en dentisterie
Les organisations médicales fournissant des services dentaires ont des exigences particulières concernant la sélection et l'installation de l'équipement de ventilation. Il doit non seulement répondre à des exigences techniques, mais également à des normes sanitaires et hygiéniques.
Lors du choix d'un équipement de ventilation économique ou coûteux utilisé par une organisation dentaire, les points suivants doivent être pris en compte :
- le niveau d'humidité requis pour chaque pièce individuelle;
- classe de purification de l'air ambiant ;
- exigences en matière de bruit et de vibrations ;
- température ambiante requise.
De plus, un cabinet médical dentaire situé dans un immeuble résidentiel doit obligatoirement disposer d'un système de ventilation distinct de la ventilation de la maison. Ce n'est qu'en respectant cette condition que l'acte de vérification donnera un résultat positif.
Tout équipement de ventilation hospitalière pour un cabinet dentaire doit assurer une circulation d'air : le taux de renouvellement d'air doit être d'au moins 7, la vitesse de l'air doit être d'au moins 0,2 mètre par seconde. De plus, à tout moment, l'humidité relative dans les locaux doit être maintenue entre 40 et 60% et la température dans la salle de travail ne doit pas être inférieure à 18 degrés Celsius en hiver et 21 degrés en été.
Les buanderies ou les salles de bains des hôpitaux dentaires sont soumises à des exigences distinctes en matière d'équipement de ventilation :
- l'humidité de l'air ne dépasse pas 75%;
- vitesse de l'air 0,3 mètre par seconde;
- température 17-28 degrés.
Exigences Gosopzhnadzora
Les exigences de cet organisme dépendront de si vous équipez ou non une salle de radiologie. Habituellement, dans les petites salles dentaires, un tel équipement n'est pas disponible. Cette structure impose des exigences tant sur les locaux et l'organisation des mesures de PB (sécurité incendie), que sur la documentation (disponibilité des ordres, consignes de sécurité, magazines, panneaux et mémos).
Règlements
- N° 123-FZ de la Fédération de Russie (Règlement technique, y compris l'art. 82).
- SNiP 31-01-2003 / SNiP 31-02 (pour les bâtiments bloqués, sauf pour les mobiles).
- RD 78.145-93 (installation d'alarmes incendie et de sécurité).
- CNLC 110-03.
- PPB 01-03.
- SNiP 21-01-97 (mise à jour SP112.13330.2011).
Exigences pour les locaux et sa décoration
Conformément aux exigences de la sécurité incendie, la décoration des locaux est réalisée avec des matériaux incombustibles :
- peintures à base d'eau;
- tuile.
Si votre bureau est situé au 2e étage d'un immeuble résidentiel, la volée d'escalier doit avoir une largeur d'au moins 1,2 mètre. Il est souhaitable que la porte de votre chambre s'ouvre vers l'extérieur. Il est interdit de bloquer la sortie avec des objets.
Exigences en matière de documentation
Pour l'organisation de toute forme de propriété, il est obligatoire d'avoir:
- Consignes de télévision.
- Arrêté portant nomination d'une personne responsable de la sécurité et de la sûreté de la personne, portant inspection des locaux en fin de journée de travail et avant la mise en service des installations.
- Journal des briefings sur le BP.
- Journal de contrôle des connaissances du personnel.
- Journal d'enregistrement des inspections par les autorités réglementaires.
- Journal de comptabilité des équipements primaires d'extinction d'incendie et d'entretien des extincteurs.
- Plaques avec une marque de risque d'incendie pour les équipements électriques.
- Plaques avec le nom de la personne responsable du respect du régime incendie et le numéro d'appel des pompiers.
- Plan d'évacuation en couleur au format A3.
Exigences de câblage
Le câblage et la boucle de terre sont effectués par un organisme agréé. Le contrôle du système de mise à la terre est également effectué par un organisme spécialisé ou par un employé habilité à effectuer des travaux spéciaux de ce type. Ces tests sont obligatoires (conformément au PP n° 291 du 16.04.12). Des vérifications périodiques de mise à la terre sont également obligatoires.
Lors du calcul du nombre de prises, gardez à l'esprit que le bureau doit être équipé de lampes de désinfection de l'air (bactéricides), si possible, d'installations de recirculation.
Exigences relatives au matériel de lutte contre l'incendie
Dans le cabinet dentaire, il doit y avoir des moyens d'extinction primaire d'incendie. Tout d'abord, des extincteurs, au moins deux. Leur nombre dépend de la superficie de la pièce. Les extincteurs doivent être enregistrés dans le registre, vérifiés, doivent avoir une étiquette avec la date de vérification et les instructions pour leur utilisation. Ils doivent être situés dans un endroit facilement accessible.
Le cabinet dentaire doit disposer d'un système d'alarme incendie. Les systèmes conventionnels sont généralement utilisés, leurs exigences sont minimes et ils desservent avec succès de petites zones. Un tel système doit être installé et entretenu par un organisme agréé.
Pour les petites cliniques dentaires (pour 3-4 salles), il suffit d'utiliser le système modèle Signal-10 + SOUE, pour les grandes cliniques, il est préférable d'utiliser PPK-2 avec des sirènes de type 3 avec le système connecté via TRV-1x2x0. 5 (fils), SVV-2x0,5 / SVV-6x0,5 (câbles).
Besoins en personnel
Le personnel doit être alphabétisé par rapport aux règles de sécurité, connaître les règles de déconnexion / connexion des équipements, ne pas utiliser d'installations défectueuses ou de prises cassées.
Tout le personnel doit :
- suivre une séance d'information sur le PB (introduction, primaire, régulière) avec une note dans un journal et un test de connaissances ;
- être capable d'utiliser des équipements d'extinction d'incendie, savoir où ils se trouvent ;
- connaître leurs gestes en cas d'incendie, être en mesure d'aider les clients à évacuer.
Avant d'ouvrir un organisme, vérifiez la pertinence des exigences auprès de vos instances locales de contrôle.
Conclusions et vidéo utile sur le sujet
Les caractéristiques et quelques astuces pour installer la ventilation en dentisterie sont présentées dans cette vidéo :
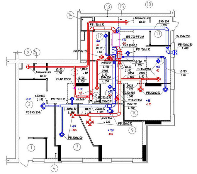
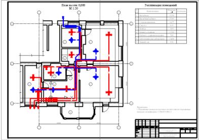
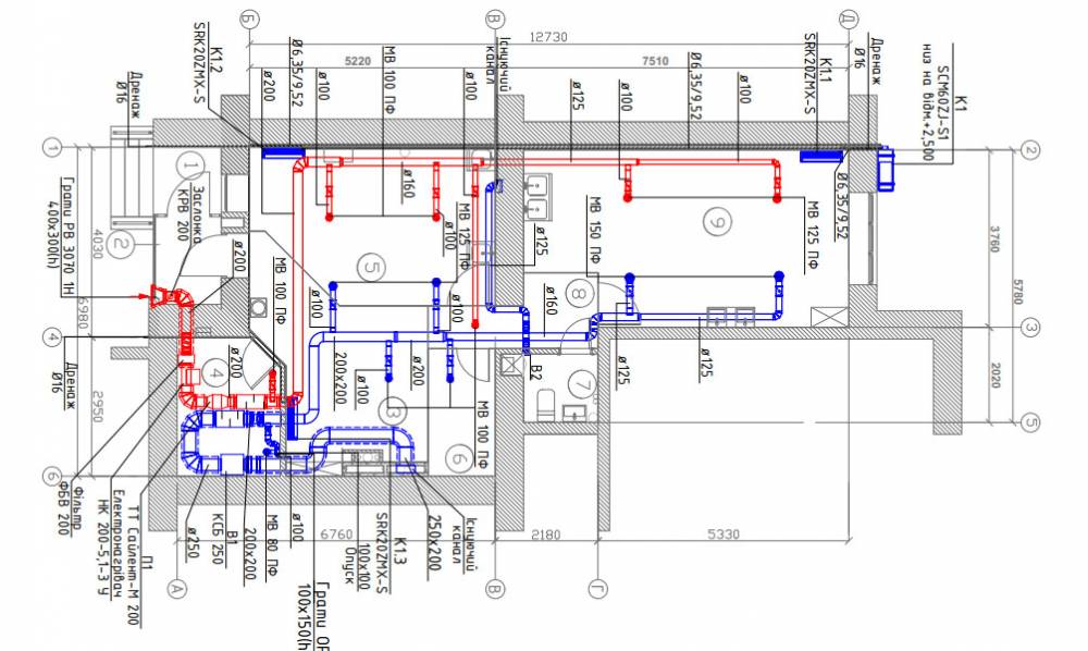
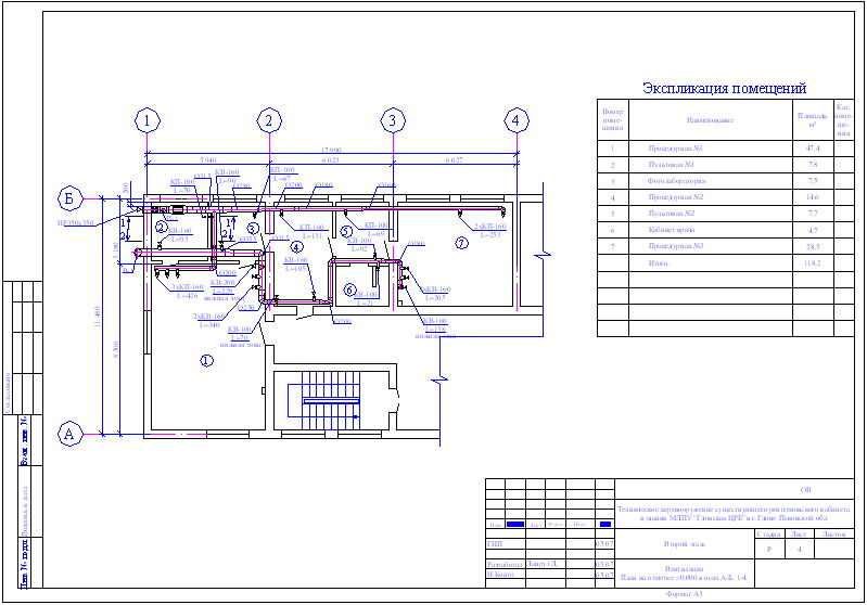
Vous pouvez voir le dessin technique de la disposition structurelle de la ventilation en dentisterie dans cette vidéo :
Le système de ventilation joue un rôle majeur dans le maintien du bon microclimat dans le cabinet dentaire. Le bon fonctionnement de la ventilation élimine l'apparition de bactéries indésirables et contribue au maintien de la santé du personnel médical travaillant en dentisterie et de ceux qui suivent un traitement.
C'est pourquoi une attention particulière est portée à son installation, son installation et son fonctionnement, et les autorités réglementaires vérifient systématiquement la conformité de la ventilation aux normes établies par la loi. Si vous pouvez compléter notre matériel avec des informations intéressantes sur le sujet de l'article ou si vous souhaitez poser une question
Veuillez laisser vos commentaires dans la case ci-dessous.
Si vous pouvez compléter notre matériel avec des informations intéressantes sur le sujet de l'article ou si vous souhaitez poser une question. Veuillez laisser vos commentaires dans la case ci-dessous.










































