Dessin de toilettes de campagne: schémas de construction populaires pour un projet indépendant

Toilettes à faire soi-même à la campagne: instructions étape par étape pour fabriquer correctement une toilette simple et belle dans la cour

Avec ou sans fosse - choisissez le type de projet

Pour concevoir un dessin, vous devez décider du type de toilettes. Il peut s'agir de toilettes avec ou sans puisard. De plus, un puisard peut être utilisé au profit de l'économie et y produire du compost. Un bâtiment avec un conteneur étanche au lieu d'un puisard serait approprié dans un site où les eaux souterraines sont trop proches de la surface de la terre.

Toilettes de campagne classiques avec un cloaque

La conception la plus courante et la plus familière d'une toilette simple pour une résidence d'été est un modèle avec un puisard. Le principe de cette conception est élémentaire : tous les déchets tombent dans une fosse profonde, située directement sous la cabine des toilettes.Si le puisard est plein, un égout est appelé, qui pompe toutes les eaux usées, et les toilettes peuvent être utilisées davantage.

Dessin de toilettes de campagne: schémas de construction populaires pour un projet indépendant

Ce schéma de toilettes de campagne a fait ses preuves. Son principal avantage est que la fosse n'a pas besoin d'être entretenue pendant une longue période. Si les toilettes ne sont utilisées que pendant la saison estivale, vous n'aurez peut-être même pas besoin d'appeler un égout

Puisque la douche dans le pays est aussi nécessaire que les toilettes, certains essaient de combiner ces deux projets en un seul. Si vous construisez une douche extérieure dans une partie du site et une maison de toilette dans l'autre, vous devrez travailler assez dur avec une pelle, car une fosse est nécessaire dans les deux cas.

En combinant commodité, vous pouvez réduire considérablement les coûts de main-d'œuvre pour les travaux de terrassement et la quantité de matériaux nécessaires.

Salle d'eau ou toilettes de campagne sans fosse

Un moyen simple de dessiner les toilettes d'un chalet d'été consiste à les concevoir selon le principe du placard à poudre. Ce type de toilettes n'implique pas la présence d'un puisard, tous les déchets pénètrent dans le réservoir directement sous le siège des toilettes. Il peut s'agir d'un réservoir ou d'un seau en plastique ou en métal.

Étant donné que le principal problème de ces toilettes est une odeur désagréable, les eaux usées sont saupoudrées (en poudre) de substances absorbantes qui protègent les toilettes de l'apparition d'un "ambre" spécifique.

Dessin de toilettes de campagne: schémas de construction populaires pour un projet indépendant

Dans les toilettes de ce type, il y a toujours deux conteneurs : pour la collecte des déchets et pour le stockage de la poudre. Les conteneurs doivent être nettoyés régulièrement

La cendre de bois, la tourbe, la sciure de bois, le sable sont utilisés comme adsorbant. Dans l'ensemble, le placard à poudre avec de la tourbe est une variante artisanale des placards secs prêts à l'emploi de la production industrielle, qui utilisent la même tourbe comme charge.

Dépendance au profit des entreprises - nous produisons des engrais

Une autre option, idéale pour un chalet d'été, est une toilette qui produit du compost. Comme vous le savez, le compost est un excellent engrais organique pour les plantes. L'engrais naturel ne sera jamais superflu, et une technologie spéciale vous permet de le produire à un rythme accéléré à partir de presque rien.

Dessin de toilettes de campagne: schémas de construction populaires pour un projet indépendant

Pour que le compost soit saturé en oxygène, il faut le desserrer régulièrement. Pour cela, un levier spécial pour le mélange manuel est fourni.

Les toilettes sont équipées d'une fosse à compost. C'est mieux s'il y en a deux, il sera donc possible d'utiliser chacun d'eux à tour de rôle pendant que le compost mûrit. Les fosses sont conçues de manière à ce que l'engrais prêt à l'emploi puisse être facilement retiré. Une telle fonctionnalité supplémentaire plaira à ceux qui se soucient de l'environnement.

Caractéristiques de la construction d'un dessin

Une toilette de campagne n'est pas une conception aussi simple que de nombreux constructeurs novices ont tendance à le penser.

Un certain nombre de fonctionnalités sont importantes à prendre en compte lors du développement d'un projet et de la construction de dessins.

Selon les normes sanitaires, une toilette de campagne ne doit pas être située à moins de 12 m d'un bâtiment résidentiel et à 8 m d'un puits ou d'un puits

Règles de toilette :

Dimensions. Considérez les dimensions de l'intérieur des toilettes. La surface minimale autorisée est de 1 x 1 m. Si vous économisez de l'argent et réduisez la taille du stand, il ne sera pas pratique de l'utiliser

De plus, une attention particulière doit être portée au choix d'une cuvette de toilette de campagne.

Hauteur. Il y a aussi une restriction de hauteur.

Il n'est pas souhaitable de construire des toilettes de moins de 2 m de hauteur. Y entrer, penché, on s'ennuie très vite.

Pente du toit. Lors de la construction d'un toit en appentis, le mur arrière est conçu légèrement plus bas que l'avant. Ceci est fait pour former une pente de toit et le ruissellement des eaux pluviales derrière le bâtiment.

Éclairage.Si vous ne prévoyez pas d'installer d'éclairage électrique, assurez-vous que la lumière du jour pénètre dans vos toilettes même lorsque la porte est fermée. Si vous ne voulez pas vous embêter avec les fenêtres, coupez au moins un petit trou dans le haut de la porte.

Ventilation. Toilettes de campagne - le bâtiment est mal ventilé. Pour résoudre ce problème, un tuyau de ventilation est installé le long du mur du fond.

Ombre. Pour qu'il ne soit pas étouffant dans les toilettes de campagne en été, placez-le dans un endroit ombragé.

Localisation sur place. Autre astuce pour choisir un chantier : éviter la proximité d'une fosse septique ou d'un puisard avec des prises d'eau, des puits, des puits. Ceci est fait pour des raisons sanitaires et hygiéniques.

Si vous tenez compte de toutes ces recommandations, il sera beaucoup plus facile d'élaborer vous-même un projet de toilettes de campagne. Galerie d'images

Galerie d'images

Photo de

Selon le type d'élimination des déchets, les toilettes autoportantes sont divisées en accumulatif et à distance. Les options cumulatives impliquent le rejet des déchets dans un puisard, une fosse septique ou un réservoir de stockage

Les latrines à fosse sont disposées loin des maisons, des sources d'eau et des limites des parcelles voisines

Placards secs à distance - les appareils de plomberie avec une petite capacité de stockage ne nécessitent pas de dispositif d'assainissement. Les déchets sont accumulés et compostés dans un petit conteneur situé directement dans la plomberie, qui doit être vidé régulièrement. Le pavillon pour un placard sec peut être situé dans n'importe quel endroit pratique

Il est conseillé de connecter un bâtiment qui combine une toilette et une cabine de douche à un réservoir de stockage. Dans ce cas, un pompage régulier des eaux usées sera nécessaire au fur et à mesure que le réservoir s'accumule.

Un réservoir de stockage étanche, dont les vidanges sont régulièrement vidangées, peut être situé à moins de 5 m de l'habitation. Cette méthode de collecte des déchets ne menace pas l'environnement et les eaux souterraines

Une toilette dans une maison de campagne, visitée périodiquement uniquement en été, serait plus sage de construire au-dessus d'un cloaque sans pomper. Ces fosses sont creusées au fur et à mesure qu'elles sont remplies et des arbres sont plantés dessus. La maison érigée au-dessus est simplement transférée vers un nouvel emplacement.

Le volume du puisard, ainsi que le volume du réservoir de stockage, est choisi en fonction du nombre d'habitants et de l'intensité de la visite

Si une toilette avec un réservoir de stockage ou une fosse qui implique le pompage est aménagée dans une zone suburbaine, alors en plus de s'éloigner de la maison et des sources d'eau, il est nécessaire de prendre en compte la possibilité d'accès pour les équipements d'égout

Lire aussi :  Où vit désormais Mikhaïl Gorbatchev : un palais à l'étranger ou une modeste maison en Russie ?

Toilette à la campagne

Construction avec un cloaque

Maison pour placard sec portable

Bloc douche-wc avec capacité de rangement commune

Installation d'un réservoir de stockage pour les égouts de campagne

Puisard sans pompage

Cesspool pour une grande maison privée

Réservoir de stockage en béton

C'est intéressant: Calculatrice pour calculer la fondation sur pieux - nous comprenons en détail

Conception simple avec un cloaque

Selon le même principe, une cabane est construite pour une toilette de campagne avec un puisard, mais cette conception a ses propres nuances. La première nuance est la construction d'un cloaque. La deuxième nuance est que le lecteur doit être rendu étanche (normes SanPiN). Le dessin dans ce cas est également différent, car en plus de la conception de la cabane, il contient également la conception de la fosse.

Un dessin commun du schéma classique d'une toilette de cabane de campagne, complété par un cloaque.La conception n'est pas particulièrement populaire auprès des résidents d'été, car son fonctionnement est associé au problème de pompage et d'élimination des matières fécales

Tout d'abord, creusez un trou sous le récipient. Pour un chalet d'été, un volume de 2-3 m3 (maximum 5 m3) suffit amplement. La taille de la largeur de la fosse, en règle générale, est égale à la taille de la largeur de la structure de la cabane. Le fond est fait avec une certaine pente en retrait des toilettes.

Les murs et le fond de la fosse sont imperméabilisés, aménagés avec des briques et des coffrages en plâtre ou en béton sont coulés sur tout le périmètre

Cela garantit l'étanchéité de l'entraînement, ce qui est important dans la plupart des cas de construction de telles installations.

Outre les schémas hermétiques, les puisards sont également pratiqués avec des fonctions de drainage dans la zone de terrain dégagée. Il est permis de construire des puisards selon de tels dessins, mais uniquement dans des endroits où les eaux souterraines sont basses.

Un exemple simple de fabrication d'un puisard pour une toilette de campagne avec une fonction de drainage. De telles solutions permettent de pomper moins fréquemment les matières fécales. Mais ce schéma de drains peut devenir dangereux pour les résidents d'été eux-mêmes.

Cependant, la meilleure option reste un système scellé, nous envisageons donc de construire une option directement isolée.

La partie arrière (environ 2/3) de la zone supérieure du variateur est recouverte d'une dalle (métal, bois ou béton). Le poêle est équipé d'une trappe à travers laquelle les matières fécales sont pompées. La trappe, selon le dessin standard, est située sur le mur arrière du bâtiment.

Le reste de la zone supérieure sera fermé par la conception de la cabine de toilette, qui sera située au-dessus du puisard. Avec cette option de construction, le sol des toilettes est posé et fixé au coffrage, comme la structure principale.

Il faut plusieurs heures pour construire la charpente et le sol.Mais avec un puisard, il faut bricoler.

Si le bouclier avec une trappe est en métal, il est nécessaire de prévoir une protection contre la corrosion. Pour ce faire, les surfaces métalliques sont recouvertes de peinture, d'autres revêtements de protection sont utilisés. Le produit en bois doit être traité avec un antiseptique, verni, peint. En fait, la méthode de protection de la structure du bâtiment doit être appliquée à l'ensemble de la structure dans son ensemble.

Une version économique d'une fosse de compostage peut être construite à partir de vieux pneus :

Beaucoup plus cher, plus compliqué, mais certainement plus fiable et plus sûr d'un point de vue environnemental, un réservoir de stockage est fabriqué à partir d'un réservoir en plastique fabriqué en usine :

Exigences modernes

L'époque où il n'y avait pas d'alternative à une telle fosse dans le pays est révolue depuis longtemps. L'attitude du législateur, de l'exécutif vis-à-vis du volet environnemental se durcit.

Niveau de la nappe phréatique, emplacement, odeurs désagréables : tout cela est étroitement surveillé.

eau souterraine

S'ils sont à moins de 2,5 m de profondeur, le puisard devra être abandonné. Voici les données pour la région de Moscou.

Riz. une

Comme vous pouvez le voir, il n'y a pas de place pour un puisard même avec un fond et des murs étanches dans la région de Moscou. Parce que lors de la crue printanière, l'eau peut déborder de la fosse, son contenu flottera autour du site. Vérifiez, cette situation n'est pas seulement dans ce domaine. Les cartes régionales sont accessibles au public.

La place des toilettes sur le plan de construction de la zone suburbaine

Documents d'orientation : SNiP 30-02-97 tel que modifié en 2018 (confirme notre droit de construire des toilettes et une fosse à compost sur le site), SP 53.13330.2011. Réglez les distances entre les objets. Illustrons cela avec un schéma.

Riz. 2

Les toilettes doivent être localisées.

  • De la maison, bains - au moins 12 mètres.
  • Du puits au moins 8 mètres.
  • De la clôture (entre la rue ou un voisin) à au moins un mètre.

Le non-respect des règles entraîne une amende dont la formulation est la suivante : atteinte au terrain, destruction de sols fertiles.

Odeurs désagréables

Si les toilettes sont construites à un mètre de la clôture du voisin, mais qu'il a un belvédère à proximité, un procès est possible. Par conséquent, il est nécessaire de prendre en compte les intérêts des voisins.

base de cadre

Vous pouvez construire un cadre de toilette avec ou sans fondation. Dans le premier cas, la préférence est donnée aux structures en colonnes et aux blocs de béton monolithiques. Ils sont traités avec du feutre de toiture pour les isoler de l'humidité, après quoi ils sont posés en 2-3 couches. Ensuite, un revêtement de sol est installé - des planches ou des plaques d'une largeur de 10-15 cm et d'une longueur correspondant à la taille du futur bâtiment. La construction du sol est complétée par la mise en place d'un trou technologique à l'endroit où se trouvera le mur arrière de la structure.

Dessin de toilettes de campagne: schémas de construction populaires pour un projet indépendant

Le sol prêt est traité avec des agents antiseptiques

Il est important de s'assurer que le revêtement est saturé de tous les côtés.

Caractéristiques de la construction de briques

La construction d'un tel matériau ne craint aucune catastrophe climatique. Une toilette en brique n'a pas besoin de traitement externe supplémentaire, elle est rarement réparée. La base et le toit d'un tel bâtiment doivent également être en matériaux rigides. La fondation est coulée avec du béton, de l'ardoise, des tôles sont utilisées pour le revêtement.

Dessin de toilettes de campagne: schémas de construction populaires pour un projet indépendant

Le coût de construction d'une maison chaleureuse sera d'un ordre de grandeur supérieur à celui des modèles en bois. Leur principale différence réside dans la technologie de la maçonnerie. La ventilation est réalisée à partir d'un simple tuyau en plastique. Pour l'isolation interne, de la laine minérale, des cloisons sèches sont utilisées.

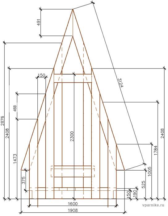
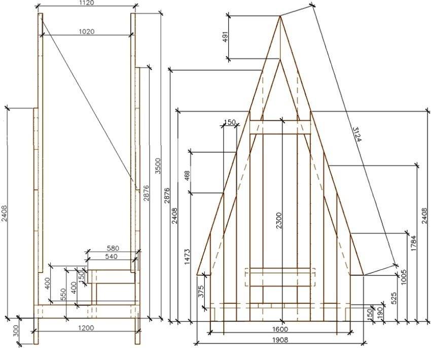
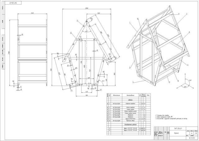
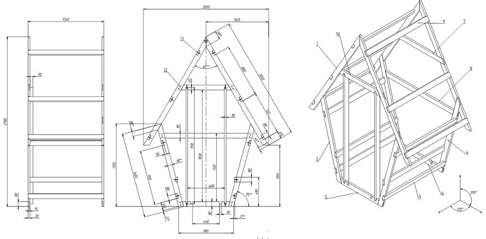
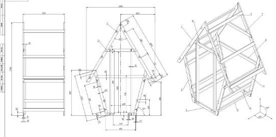
Dessin toilette "Teremok"

Cette toilette a la forme d'un diamant.Comparé au "Shalash", il prend plus de temps à construire, mais il a aussi l'air plus décoratif. Avec un design approprié, il ne gâchera pas du tout le paysage.

Dessin toilette "Teremok" avec dimensions

Une maison en forme de losange pour une toilette dans un chalet d'été a l'air bien. A l'extérieur, la charpente peut être tapissée d'un bois rond de petit diamètre scié en deux, d'un doublage de forte épaisseur, d'un blockhaus, d'une planche ordinaire. Si vous utilisez une planche, ne la clouez pas bout à bout, mais posez-la quelques centimètres sur le fond, comme une pomme de pin. Vous pouvez, bien sûr, de bout en bout, mais l'apparence ne sera pas la même...

La deuxième option: les toilettes de campagne "Teremok" sont fabriquées avec des parois latérales biseautées.

Toilettes de campagne "Teremok" - le deuxième projet avec des dimensions

Le principal problème de toute petite toilette en bois est de bien sécuriser les portes. Le cadre de porte est la partie la plus chargée, en particulier du côté où les portes sont fixées. Pour fixer les montants de la porte aux poutres du cadre, utilisez des goujons - la fixation sera donc fiable.

Illustrations photo: construire des toilettes à la campagne de ses propres mains. Les dessins sont présentés ci-dessus.

À partir de cette conception simple, en général, vous pouvez créer des toilettes dans n'importe quel style. Par exemple, en néerlandais. La finition est simple - plastique léger, sur lequel sont bourrées des poutres caractéristiques, colorées de teinture

Faites attention aux inserts en verre et au fait que le toit de cette instance est en polycarbonate. Si le polycarbonate est multicouche, il ne doit pas être chaud)))

Lire aussi :  Que faire si le réservoir de vidange ne retient pas l'eau : causes et solutions aux pannes

Toilettes de rue de campagne sous forme de maison hollandaise

Vous pouvez même transformer les toilettes Teremok en carrosse royal. Ce n'est pas une blague… confirmation sur la photo.Il suffit de changer la forme et d'ajouter quelques éléments décoratifs typiques des calèches. Ainsi, vous obtenez une toilette sous la forme d'un chariot.

Toilettes extérieures pour chariot

Voici quelques photos du processus de fabrication. L'original a un placard sec, donc la construction est simple: il n'est pas nécessaire de penser à la fosse et aux nuances qui y sont associées ... mais vous pouvez adapter une telle cabine à tout type ...

Cadre de forme caractéristique

Veuillez noter que la forme est obtenue grâce aux planches inclinées et que le fond légèrement effilé est dû aux supports taillés en conséquence. Un placard sec est installé sur le podium

Un placard sec est installé sur le podium

Le sol est cousu avec des planches courtes, puis le revêtement commence de l'extérieur. En haut, le chariot a également un virage en douceur - découpez les guides appropriés dans les planches courtes, clouez-les aux poteaux latéraux existants et vous pouvez commencer le revêtement du mur extérieur.

revêtement mural

L'intérieur est également gainé de bardeaux. L'extérieur du chariot-toilette est blanchi à la chaux, à l'intérieur le bois a une couleur naturelle. Après cela, il reste la décoration et l'ajout de détails caractéristiques - monogrammes peints à l'or, lanternes, chaînes «dorées», roues.

Peinture et décoration

Rideaux "royaux" et fleurs. Il y a même un lavabo et un petit évier.

Vue depuis l'intérieur des fenêtres

Après tous les efforts, nous avons les toilettes les plus insolites de la région. Rares sont ceux qui peuvent se vanter d'un tel...

Aussi des valises dans le coffre...

Avec puisard

Une toilette standard, facile à construire et à installer pour une résidence d'été est une maison avec une cuvette de toilette, dont les déchets tombent directement dans un puisard creusé sous la structure. Il est installé exclusivement sur la rue.Les sites dont le niveau des eaux souterraines ne dépasse pas 3,5 m conviennent à la construction, sinon les déchets humains tomberont inévitablement dans l'environnement. Il n'est pas recommandé de creuser un trou sur les roches schisteuses et dans les sols présentant des fissures naturelles.

La profondeur de l'otkhodnik doit être de 1 m sous le niveau de la nappe phréatique. La valeur doit être prise en compte sur la base d'indicateurs obtenus au printemps, lorsque la glace et la neige fondent. Les murs et le fond de la fosse sont isolés avec un matériau résistant à la pourriture - gravats, briques, béton, bois goudronné

Il est important de traiter tous les joints afin d'obtenir l'étanchéité. Une ventilation est nécessaire pour ce type de toilettes, sinon il ne sera pas possible de l'utiliser en raison de l'odeur désagréable constante.

Le cloaque est recouvert d'un couvercle amovible. Pour une vidange pratique, il est préférable de le placer sur le bord de la route - il sera ainsi plus facile pour les services concernés d'effectuer les travaux de nettoyage du conteneur des déchets.

Avantages et inconvénients de la conception combinée

Une salle de douche combinée avec des toilettes pour une résidence d'été, qu'il s'agisse d'un bloc utilitaire ou d'un projet de type modulaire, présente des avantages évidents par rapport aux structures séparées. Les avantages incluent :

Gain de place. Concevoir une toilette et une douche uniques vous permet d'économiser plus de terrain pour un jardin ou un potager (particulièrement précieux pour les petites parcelles de terrain).

Dessin de toilettes de campagne: schémas de construction populaires pour un projet indépendant
Chaque chambre a une entrée indépendante.

  • Économies budgétaires. Une toilette et une douche autoportantes nécessitent une fondation individuelle, un toit et quatre murs (dans une conception combinée, deux murs sont remplacés par une cloison commune). Tout cela nécessitera l'achat de plus de matériaux de construction et plus de financement.
  • Gagner du temps.Pour une salle de bain combinée, vous devrez équiper une fondation, un système de toiture et un puisard (installer une fosse septique). Des gains de temps (et, par conséquent, d'argent) importants sont obtenus en organisant un système commun d'évacuation, d'éclairage et de ventilation ; l'approvisionnement en eau (le cas échéant) est également fourni à un point.

Le bâtiment combiné, érigé avec la participation de constructeurs professionnels, est rapide, fonctionnel et ne présente aucun inconvénient majeur. Une salle de bain combinée construite indépendamment peut présenter certains inconvénients:

Odeur désagréable dans la douche due à une étanchéité insuffisante et une mauvaise ventilation.

Dessin de toilettes de campagne: schémas de construction populaires pour un projet indépendant
Une telle construction est bénéfique pour de nombreuses raisons.

  • Taille insuffisante (mal calculée) du cloaque et sa mauvaise organisation. Avec une telle carence, la probabilité de pollution des sols et des eaux souterraines augmente. Vous devrez également utiliser plus souvent les services de pompage, ce qui signifie une augmentation des coûts d'entretien (maintenance).
  • Une cabine de douche à faire soi-même avec toilettes pour une résidence d'été est rarement équipée d'une infrastructure complète. Pour utiliser la douche, vous devrez en prendre soin à l'avance. Vous devrez transporter de l'eau, la verser dans un récipient sur le toit et attendre qu'elle se réchauffe suffisamment. La tâche se complique par temps nuageux et en présence d'une famille nombreuse.

Et sur la conception

Le fait que le design découle de la fonctionnalité et ne doit pas se faire au détriment de celle-ci est une vérité élémentaire. Cependant, la fonctionnalité des toilettes est disgracieuse et ce n'est pas un complexe. Tous les êtres vivants sont vulnérables lorsqu'ils accomplissent des besoins naturels. La honte n'est qu'une manifestation de l'instinct d'auto-préservation. L'instinct de reproduction peut le dominer, mais la miction et la défécation ne sont pas des rapports sexuels.Par conséquent, lors de la conception des toilettes, vous devez très bien connaître et observer attentivement la mesure.

Par exemple, vous n'avez pas besoin de forcer les toilettes à répéter : "Non, je ne suis pas des toilettes !", comme dans la pos. 1-3 riz

C'est maladroitement fait ou avec une grande habileté, peu importe. Vous obtenez quelque chose comme une excuse pour un certain personnage : "Boss, je n'ai pas volé un crocodile vert avec 185 dollars et 50 cents et une photo d'une blonde de 30 ans avec un garçon d'âge scolaire !" S'en suit : "Et moi, espèce de cormoran bâclé, je t'ai dit quel portefeuille a été volé ?" Puisque la cabine est frappante, quel genre de secret de départ y a-t-il

Dessin de toilettes de campagne: schémas de construction populaires pour un projet indépendant

Exemples de conception infructueuse et réussie de toilettes de rue

Pos. 4-6 illustrent une approche généralement légitime - le déguisement. Nous garderons modestement le silence sur notre essence, et celui qui en aura besoin la montrera ou la trouvera par lui-même. Il y a de la place pour les délices du design, mais seulement avec une grande expérience, un goût et une capacité de travail. Sinon, quelque chose comme pos. 7-9, à la vue desquels le designer et le psychiatre s'accordent sur un point : ce n'est pas du design.

Lors de la conception d'une toilette, il est préférable de se rappeler : ce qui est naturel n'est pas laid, même s'il ne peut pas être affiché. Concrètement, déguisement naturel pour ce besoin : végétation, pierre, pos. 10-12. Le primitivisme rustique et le phytodesign ne sont en aucun cas antagonistes, pos. 11. Mais comme le stand est plus grand qu'une personne et que la vue est pire, il est conseillé de placer un stand de formes naturelles simples parmi les arbres, pos. 10. Ou, comme d'habitude dans les buissons, cachez-vous parmi les petites phytoformes afin qu'elles ne soient pas visibles, pos. 12. Dans ce cas, c'est la technique la plus naturelle et donc la meilleure. Et le plus hygiénique.

***

2012-2020 Question-Remont.ru

Afficher tous les matériaux avec une étiquette :

Aller à la rubrique :

Types de toilettes de campagne

Considérez trois types: jeu - placards à poudre, placards secs.

placard de jeu

Il tire son nom du conduit de ventilation, associé à la cheminée. En raison de son échauffement, une traction se forme. Naturellement, pas d'odeurs. En été, pour créer un tirage, un simple radiateur tel qu'une lampe à incandescence de 15 à 20 W est intégré dans la partie inférieure de la cheminée.

Lire aussi :  Quelle température devrait être dans le réfrigérateur et le congélateur: normes et normes

La fosse est périodiquement pompée.

Il devrait avoir un mur extérieur, une fenêtre y est aménagée.

Riz. 3. 1 - cheminée; 2 - canal de jeu ; 3 - couverture isolée; 4 - trappe d'égout standard; 5 - tuyau de ventilation; 6 - château d'argile; 7 - murs de briques.

Riz. 4. Placard de jeu intérieur avec ventilation individuelle

Une conception sanitaire assez compliquée, mais impeccable. Le calcul du volume est le suivant: lors du nettoyage une fois par an, 1 mètre cube par personne: avec quatre - 0,25 mètre cube. Pour tout calcul, la profondeur est d'au moins 1 mètre : le niveau du contenu ne doit pas être à moins de 50 cm du sol.

La fosse est étanche : un fond en béton est coulé sur le château d'argile, les parois sont également en béton ou revêtues de briques. Les surfaces internes sont isolées au bitume. L'évent doit toujours être plus haut que le bord du tuyau d'évacuation.

Bien sûr, un tel schéma ne correspond pas tout à fait au concept de maison de campagne, mais ce type de toilettes ne provoquera pas de réclamations de la part des voisins ou des autorités locales.

Il est très important!. Même conception de type de rue

La même conception du type de rue.

Riz. 5 ; 1 - conduit de ventilation; 2 - couvercle scellé; 3 - château d'argile; 4 - coque hermétique de la fosse; 5 - contenu ; 6 - panneau d'impact; 7 - fenêtre d'aération.

Il existe de nombreux modèles de siège de toilette, il est produit spécifiquement pour ces toilettes et appareils sanitaires.

Riz. 6. Cuvette de toilette pour placards de jeu.

Diamètre du trou intérieur 300 mm, couvercle non inclus.

nettoyage

Au fil du temps, du limon se forme dans la fosse, ce qui empêche le liquide de s'écouler. En conséquence, le trou se remplit rapidement.

Afin de rétablir sa filtration, les artisans conseillent de mélanger le contenu par voie chimique : chaux vive, carbure de calcium, levure. Un effet positif peut être observé dans 1 à 2 cas sur 10. Dans le reste - de gros problèmes.

Aujourd'hui, il existe une large gamme d'agents biologiques et de stimulants pour les puisards qui éliminent les boues sans bruit ni poussière, transforment le contenu en compost, adapté à la culture même de légumes.

Bien sûr, cela prend du temps : au moins 2 à 3 ans, selon la température annuelle moyenne, respect strict des instructions du fabricant, notamment en termes d'application. L'odeur peut être éliminée en quelques semaines.

Si cela n'a pas de sens pratique ou est contraire aux traditions culturelles, faire appel à un véhicule spécial résoudra tous les problèmes. Lorsque de telles visites semblent coûteuses, il est temps d'envisager une autre option, dont nous parlerons ci-dessous.

Normes sanitaires

Vous devrez construire de vos propres mains des toilettes de campagne avec un puisard, en tenant compte du fait qu'avec un débit quotidien moyen inférieur à 1 mètre cube, il peut avoir un fond ouvert, d'en haut il ne peut être fermé.

Il est libéré du contenu au moins 2 fois par an. Le signal pour cela est que le niveau du contenu est à moins de 35 cm du niveau du sol.

La désinfection des puisards des latrines de rue est réalisée avec un mélange d'une telle composition.

  • Chlorure de chaux 10%.
  • Hypochlorite de sodium 5 %.
  • Naphtalizol 10%.
  • Créoline 5%
  • Métasilicate de sodium 10 %.

L'eau de Javel sèche pure est interdite : libère du chlore mortel lorsqu'elle est mouillée.

Armoire à poudre

Ici, la fosse est remplacée par un petit récipient. Il existe des seaux avec un couvercle scellé, qui est retiré avant la procédure. A son extrémité, le contenu est « saupoudré » de matière organique. Il y a une odeur lorsque le couvercle est ouvert, surtout par temps chaud. L'utilisation de biopréparations le réduit considérablement.

Riz. 7. 1 - fenêtre de ventilation; 2 - couverture; 3 - siège de toilette; 4 - capacité ; 5 - cadre en bois; 6 - base de cadre; 7 - remblai de gravier et pierre concassée; 8 - porte.

Les avantages de cette conception sont qu'une toilette extérieure n'est pas nécessaire. Il peut s'agir d'un angle de dépendance, d'un sous-sol. La présence d'une fenêtre ou d'un tuyau de ventilation est requise.

La poudre de placard se transforme facilement en compost et vice versa. Une solution rationnelle consiste à le combiner avec une douche ou une buanderie.

Riz. 8. Structure combinée.

Les modèles modernes sont présentés par Elena Malysheva.

Les toilettes électriques laissent derrière elles une poignée de cendres, mais vous ne pouvez pas les utiliser comme engrais. Ceci s'applique également aux appareils chimiques.

Choisir le meilleur endroit pour construire des toilettes

Dessin de toilettes de campagne: schémas de construction populaires pour un projet indépendant

Pour construire un tel bâtiment en tant que toilettes, vous devez d'abord choisir un endroit approprié et choisir le type de structure. Lors du choix d'un espace pour la création d'une structure, il est conseillé de prendre en compte la commodité d'approche et les normes sanitaires.

Comme alternative, mais plus longue, il s'agit de la construction d'une fosse septique de vos propres mains.

  • Il est recommandé d'installer une telle structure à une distance de 30 mètres des puits les plus proches et des puits avec de l'eau. Mais ici, il vaut la peine de considérer à la fois votre site et les chalets voisins.
  • Le territoire de type pays est utilisé non seulement pour la culture de légumes, de fruits et d'autres cultures, mais aussi comme lieu de détente loin de l'agitation de la ville. Installer des toilettes à la vue de tous est une erreur. Il est préférable de choisir un endroit isolé qui n'est pas en vue, par exemple près de la maison.
  • Lors de l'inspection du site, il convient de prendre en compte la direction des vents, lorsqu'il fait chaud en été, une puanteur viendra des toilettes, dans ce cas, elle devrait être soufflée par un courant d'air dans la direction où les structures résidentielles ne sont pas situées . S'il n'y a pas assez d'espace sur le territoire pour le placement, il est préférable de le concevoir d'un côté de la maison, mais il ne devrait pas y avoir de fenêtres sur le mur. Mais vous ne devez pas creuser un trou d'égout près de la véranda ou du belvédère, où vous pourrez vous détendre le soir, l'arôme de la structure interférera avec le temps passé dans de tels bâtiments.
  • Le puisard équipé se remplira avec le temps et devra être vidé. Lors du choix d'un site de construction, il est souhaitable de prendre en compte ce facteur. Pour le pompage, une entrée pour un camion d'égout est nécessaire.
  • Si l'eau souterraine prédomine au sol, il est préférable de creuser un trou et d'y placer un récipient hermétique pour accumuler les matières fécales. Si les eaux souterraines sont inférieures à deux mètres, vous pouvez alors creuser et équiper un trou de drainage.
  • Selon les recommandations des experts, le territoire doit être choisi à moins de 10 mètres des bâtiments résidentiels, mais si un réservoir scellé est placé dans la fosse pour l'accumulation et l'élimination des déchets, une structure peut être construite à une distance de cinq mètres de la maison. Mais pour qu'avec une parcelle fruitière, elle se situe dans une plage de quatre mètres.

Le paysage du territoire aidera à choisir un lieu approprié pour organiser la construction.Si le site est vallonné, il est préférable de creuser un drain pour construire au point le plus bas. Ainsi, la fondation de la maison et le puits seront situés au-dessus des toilettes, et cela ne polluera pas l'eau potable et le sous-sol de la maison. La fosse d'égout, comme chacun le sait, affecte grandement la qualité de l'eau et du sol. Pour cette raison, il est recommandé d'installer des conteneurs de stockage dans les fosses qui sont étanches et ne laissent pas passer les eaux usées.

Évaluation
Site sur la plomberie

Nous vous conseillons de lire

Où remplir la poudre dans la machine à laver et combien de poudre verser