- Où placer une toilette de campagne: normes de placement sur le terrain
- Placard sec en forme de maison
- Instructions de montage du cadre
- Doublure et garniture de coque
- Instructions étape par étape pour la construction d'une toilette de campagne
- "Cabane"
- Conceptions de fosses pour les eaux usées dans les toilettes de campagne
- Choisir un lieu: normes d'hébergement dans un chalet d'été
Où placer une toilette de campagne: normes de placement sur le terrain
Lors de l'installation de toilettes sur le site, certaines normes et règles sanitaires doivent être suivies lors de la construction de toilettes dans le pays. Lors du choix de l'emplacement optimal pour la construction d'une latrine à fosse, plusieurs règles doivent être suivies. La distance entre le puits et les toilettes doit être d'au moins 25 m, sinon la qualité de l'eau de puits utilisée à des fins domestiques ne peut être garantie. Il n'est pas recommandé de construire les toilettes au centre de la zone suburbaine. Il est préférable de choisir un endroit à une certaine distance de la maison de campagne.

Lorsque le site est situé à un angle, les toilettes doivent être construites à l'endroit le plus bas. Selon les règles, le puits doit être situé sur une pente plus élevée que les toilettes. Cela est nécessaire pour éviter que les eaux usées du puisard ne pénètrent dans le puits, mais sur une partie surélevée, le puits peut parfois donner trop peu d'eau.
De plus, le puisard des toilettes situé sous la pente peut se trouver dans la zone d'occurrence des eaux souterraines.Par conséquent, avec un terrain difficile du chalet d'été, il est nécessaire de choisir des emplacements pour l'installation d'un puits et d'une toilette avec un puisard à extrême mise en garde.
Lors du choix d'un emplacement pour les toilettes à la campagne, vous devez également tenir compte de la rose des vents, qui éliminera les odeurs désagréables. Il est recommandé de construire une toilette du côté d'un mur vide du bâtiment, le cas échéant. En aucun cas, une toilette à fosse ne doit être située à côté d'une terrasse ou d'une véranda, car une forte odeur peut s'en dégager en été.
Il est nécessaire d'envisager une méthode de nettoyage du puisard. Si possible, lors de l'installation de toilettes sur un terrain, il est recommandé d'organiser une entrée pour un camion d'égout qui pompe les déchets des fosses septiques, des drains et des puisards. Cette machine est assez grande. Il convient de garder à l'esprit qu'un tuyau de 7 m de long est utilisé pour le pompage, dont 3 m sont descendus dans la fosse et 4 m de tuyau sont déroulés autour du site.
Selon les normes d'installation d'une toilette à puisard sur le site, celle-ci doit être retirée des bâtiments résidentiels à une distance d'au moins 12 m.
Le puisard doit être situé à une distance suffisante des puits d'eau potable, des zones de plantes fruitières et des endroits où sont gardés des animaux domestiques ou des oiseaux. Même une toilette de type sèche ne doit pas être à moins de 5 m d'un bâtiment résidentiel. Une toilette de type puisard doit être à au moins 1 à 1,5 m de la frontière avec un site voisin.Le drainage d'un puisard ne doit pas polluer les eaux souterraines et les plans d'eau à proximité, de sorte que ces fosses doivent être soigneusement isolées.
Placard sec en forme de maison
Pour un chalet d'été, le meilleur choix est un placard sec.Cette option de construction permettra non seulement d'équiper la vie des résidents estivaux d'un bâtiment essentiel, mais fournira également aux amateurs de culture de légumes et de fruits des engrais de bonne qualité. La construction d'un placard sec ne nécessite pas de force physique importante.
Lorsqu'ils aménagent des toilettes de campagne comme une cabane, les propriétaires fonciers choisissent souvent eux-mêmes des dessins pour des placards secs. Cette option est considérée comme la plus rationnelle pour les parcelles personnelles.
Le placard sec se caractérise par une fonctionnalité accrue - il ouvre la voie à la production d'engrais.
Instructions de montage du cadre
Si possible, il est recommandé d'utiliser du bois raboté pour la construction de la structure de la cabane elle-même et directement pour les détails du placard sec du pays. Dans les cas extrêmes, si les planches et les barres ont une surface rugueuse, vous devez les traiter avec une raboteuse. En pratique, il a été observé que le bois raboté est beaucoup moins susceptible d'être attaqué par divers types d'insectes.
Séquence d'étapes du constructeur :
- Le long du périmètre de la base (1,2 x 1,0 m), faites une petite pénétration (100-150 mm) dans le sol.
- Couvrir le fond de la niche avec de la pierre concassée (hauteur de remblai 50-70 mm), bien tasser.
- Couvrir la surface compactée avec un matériau de toiture (imperméabilisation).
- Couler une couche de sable (20-30 mm), répartir uniformément sur la surface.
- Mettez une deuxième couche de matériau de toiture avec une certaine marge le long du périmètre.
- Aux limites du périmètre, posez une barre (150 x 150 mm) sur le matériau de couverture.
Après avoir terminé ces travaux, la fondation est prête pour la construction d'une cabane pour une toilette de campagne selon le dessin.Ensuite, vous devez assembler le sol des toilettes à partir de planches rainurées et le fixer sur les bords avec des barres situées autour du périmètre. Cela peut être fait, par exemple, en utilisant des coins métalliques coupés sur mesure.
La construction d'une toilette de cabane commence généralement par la construction d'un cadre et d'un plancher communs. Bien sûr, une autre séquence de production du travail n'est pas exclue.
La tâche principale est de construire une structure fiable et durable, en particulier lorsqu'un bâtiment permanent est en cours de construction.
L'étape suivante consiste à assembler le cadre de la cabane des toilettes de campagne, comme indiqué sur le dessin. Prenez deux barres 50 x 50 mm, installez-les verticalement et perpendiculairement à la base. Les extrémités inférieures des petites barres sont attachées aux barres de base, et leurs extrémités supérieures sont combinées avec des coupes les unes avec les autres et également fixées.
Ainsi, plusieurs éléments de ferme sont formés tous les 200 mm. La partie faîtière est en outre renforcée en insérant une poutre passée par le bas. Ils ont également mis des cavaliers de renfort entre les chevrons à différents endroits, à la fois le long du côté court et le long du côté. La charpente du futur chalet d'été est prête.
Doublure et garniture de coque
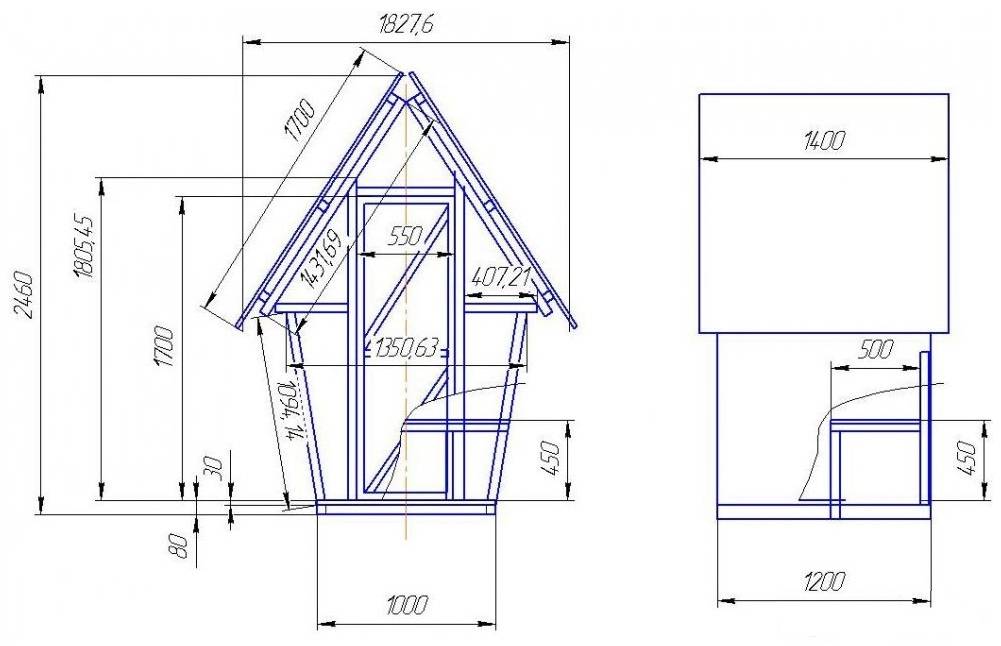
Après avoir terminé l'assemblage du cadre de la cabane, procédez à l'assemblage de la base du placard sec. Au niveau de 350-400 mm du sol, un cavalier est fixé entre les deux chevrons arrière de la cabane. Après avoir fait un retrait de 400-450 mm à la partie avant, un deuxième cavalier est attaché au même niveau. Sous le deuxième cavalier, au niveau du sol, placez le troisième cavalier. Ce seront les poutres de base du placard sec, sur lesquelles reposera la peau.
De plus, les cavaliers supérieurs sont renforcés avec des montants-arrêts et gainent tous les vides avec des planches, en les coupant à la taille. Ils font des sections pour le réservoir des toilettes et pour le stockage de la tourbe.Ils sont équipés de housses (pour la partie WC + un abattant troué). Le matériau de toiture est posé sur le toit en pente de la cabane. Faire une porte dans le plan du mur avant. Sur cet assemblage peut être considéré comme complet.
Options pour les portes de l'appareil d'une cabane de type toilette de campagne. Vue de l'extérieur comme de l'intérieur. La technologie d'assemblage des toiles est simple - un ensemble de planches à rainure et languette fixées avec une latte de type Z. Les charnières de porte sont généralement placées au-dessus
Ceci, approximativement, semble être la conception la plus simple d'une toilette pour une résidence d'été, faite comme une cabane. Il est de petite taille, quelque peu gênant en raison de l'espace limité à l'intérieur. Mais, en même temps, il occupe une petite partie du territoire du chalet d'été, où chaque mètre carré est généralement enregistré.
Pour une meilleure stabilité et fiabilité de la structure, aux angles de la base en bois (150 x 150), à proximité, des tuyaux métalliques sont enfoncés dans le sol et la partie portante du bâtiment y est fixée. Des gouttières sont disposées sous les pentes du toit pour recueillir et évacuer l'eau. Il est également conseillé de mettre une zone aveugle autour du périmètre extérieur.
Instructions étape par étape pour la construction d'une toilette de campagne
Les méthodes suivantes sont utilisées pour construire un puisard de latrine :
- installation d'anneaux en béton armé;
- pose de murs en briques;
- installation de réservoirs spéciaux en polymère;
- bétonnage à l'aide de lattis.
Construction progressive des toilettes :
- Après avoir préparé le projet, vous devez décider du lieu de construction des toilettes, qui ne doit pas gêner les voisins, il devra donc être installé avec un retrait de la clôture d'un à un mètre et demi. Si vous décidez de faire un puisard, prévoyez une entrée pour un camion d'égout. Ne construisez pas de toilettes dans les basses terres, qui peuvent être inondées par les crues printanières.
-
La construction d'un placard à jeu commence par creuser un trou, qui peut être drainé ou scellé. La première option prend moins de temps et la seconde est indispensable avec un niveau élevé d'eau souterraine, répandant les eaux usées sur tout le site.
- La fosse est creusée conformément aux dimensions du dessin, compactée, recouverte de sable et cimentée. Après cela, les murs sont bloqués avec une caisse et remplis de mortier ou revêtus de briques (en option : anneaux en béton). Ensuite, la surface est enduite et traitée avec le fond avec du mastic bitumineux. N'oubliez pas que les murs doivent s'élever au-dessus du sol d'au moins seize centimètres.
-
Une fosse capitale peut être construite avec un fond filtrant, en la remplissant de briques cassées ou de gravats. Ainsi, les déchets liquides iront dans le sol, vous devrez donc nettoyer la fosse beaucoup moins fréquemment. L'installation d'un conteneur en plastique peut être effectuée sur n'importe quel site, en respectant les normes sanitaires et hygiéniques, car dans ce cas, les matières fécales ne tombent pas dans le sol.
-
L'étape suivante consiste à poser les fondations. Pour une toilette, il suffit de creuser des piliers ou des blocs de béton autour du périmètre. Le cadre, qui prévoit quatre bases verticales, est construit à partir d'une poutre en bois ou de tuyaux métalliques façonnés. Les chevrons longitudinaux de la garniture de toit doivent dépasser d'au moins trente centimètres du périmètre du bâtiment.
-
La base est fixée par quatre planches au niveau du siège des toilettes, correspondant à la hauteur pour une facilité d'utilisation (généralement quarante centimètres suffisent à partir du sol de finition). Après cela, les entretoises des parois latérales et arrière sont montées en diagonale et les supports verticaux de la porte, fixés avec un cavalier en haut, ne dépassant pas cent quatre-vingt-dix centimètres de hauteur.
-
Le cadre fini est gainé de bardeaux, planches, OSB, etc.
-
Une porte est faite sur le mur du fond pour une élimination pratique des déchets. Il est préférable de sceller la couverture avec du feutre de toiture ou un autre matériau résistant à l'humidité. Il est souhaitable d'installer un tuyau de ventilation dans les fentes du siège des toilettes et du toit.
-
Ensuite, une porte avec une fenêtre pour l'éclairage est suspendue, équipée d'un crochet et d'un loquet.
-
Au stade final, le toit est fixé.
Il est préférable de fabriquer un cadre pour une structure parallélépipédique à partir de poutres en mélèze, et le pin convient mieux aux sols, murs, plafonds et portes. Pour rendre les toilettes propres, il est nécessaire de prendre des mesures minutieuses conformément au dessin.
Le modèle Hut se construit très rapidement. Les travaux commencent par l'installation des murs avant et arrière de planches de pin bordées d'une épaisseur d'au moins trente millimètres. Le matériau peut être fixé à la fois sur des clous et sur des vis autotaraudeuses. Ensuite, les poutres longitudinales et transversales sont installées conformément au dessin et la base du socle est montée sur le mur arrière et l'entretoise.
Après assemblage du cadre, la plate-forme et le sol sont gainés. Pour ce dernier, mieux vaut prendre une planche de bois dur mesurant 20x100 millimètres. La ventilation dans la "cabane" est montée sur la paroi arrière. La porte, comme toujours, est attachée à l'étape finale.
"Cabane"
Lorsque l'eau souterraine se rapproche de la surface, la seule option pour équiper une latrine est un cabinet de toilette. Il n'y a pas de puisard dans de telles toilettes et un récipient (réservoir) est caché sous le siège des toilettes, qui doit être vidé périodiquement. Pour que les odeurs des toilettes ne se propagent pas sur tout le site, un réservoir contenant de la sciure de bois, de la cendre ou de la tourbe est placé à côté du siège des toilettes.Après avoir visité les toilettes, les matières fécales sont « réduites en poudre » et, au fur et à mesure que le récipient est rempli, elles sont évacuées vers le tas de compost.
Pour les armoires à poudre, des cabines en forme de cabane sont souvent placées. Vous pouvez créer une conception de toilette similaire de vos propres mains en quelques jours et, franchement, le coût des matériaux est inspirant.
La cabine est installée dans l'ordre suivant:
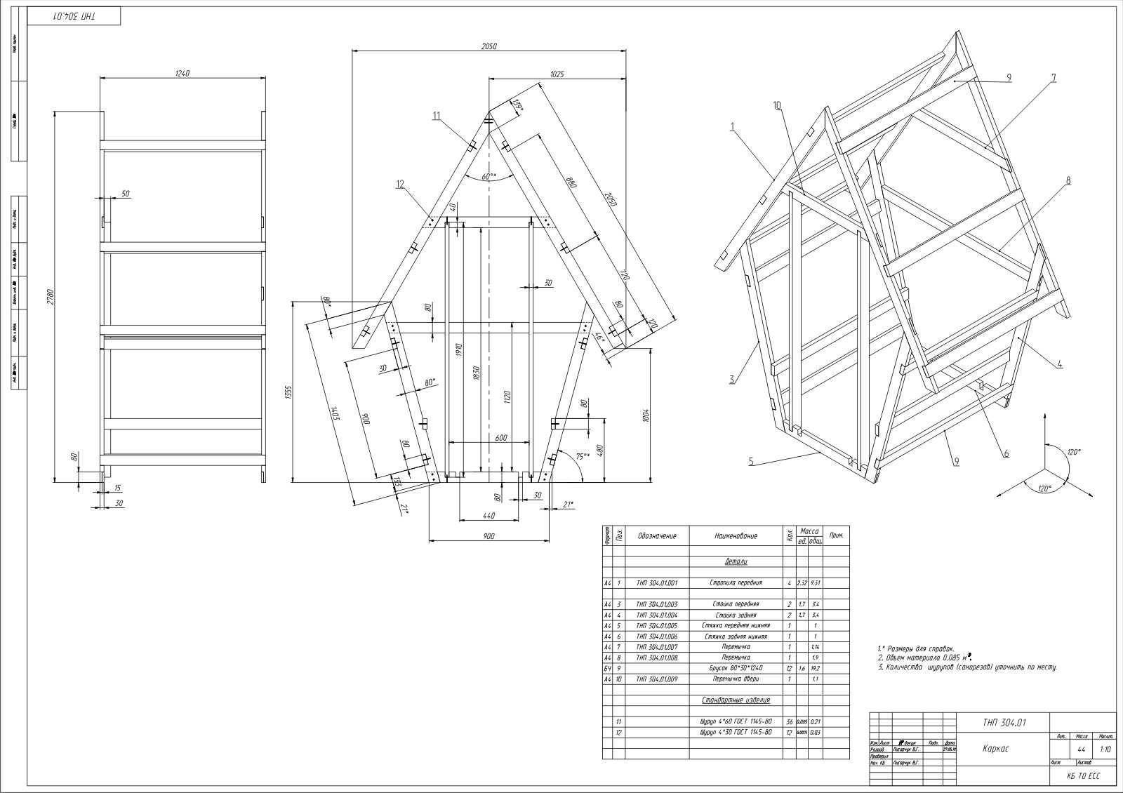
- Pour la fondation, vous pouvez utiliser des blocs de sable-ciment ou disposer une bande de brique rouge autour du périmètre de la base de la cabane. La fondation est recouverte de ruberoïde.
- Le dessin de la "cabane" des toilettes est illustré ci-dessous. Tout d'abord, les parois avant et arrière de la cabine sont réalisées. Ils sont reliés les uns aux autres par une poutre de 100 x 100 mm et une planche bordée, qui jouera le rôle d'un revêtement de toiture. Le cadre du siège de toilette est assemblé à partir du bois et fixé au mur du fond.
- Les toilettes sont gainées de l'intérieur avec des clins. Un trou «point» est découpé dans le plancher du siège des toilettes. Installez la cabine sur la fondation.
- Le toit peut être constitué de tuiles métalliques ou de carton ondulé, en le vissant avec des vis aux planches de la caisse. Le bâtiment ressemblera à une véritable cabane forestière si le toit est recouvert de planches de 2,0 à 2,1 mètres de long, qui doivent être prétraitées avec un antiseptique. Ils sont cloués à la caisse avec des clous, en partant du bord inférieur du toit, de sorte que chaque planche supérieure chevauche la moitié de la planche inférieure (chevauchement). Un toit en bardeaux est fait de la même manière.
- La crête est renforcée par une tôle galvanisée, comme indiqué sur le dessin des toilettes "teremok". Les planches du siège des toilettes sont polies, toutes les surfaces en bois sont recouvertes de teinture et de vernis.
Le toit d'une telle cabine atteint presque le sol, de sorte que les murs et le sol à l'intérieur restent secs même sous les pluies les plus fortes.
Dimensions de la toilette pour donner Cabane
Conceptions de fosses pour les eaux usées dans les toilettes de campagne
Toutes les latrines à fosse WC sont divisées en deux types : les fosses avec drainage et étanches. Le premier type est beaucoup plus simple et moins cher, mais avec une localisation élevée des nappes phréatiques, il peut les polluer et est donc interdit par la réglementation en vigueur.
Les fosses scellées n'ont aucune restriction d'installation.
Vous pouvez construire une fosse à eaux usées de l'une des manières suivantes :
- Maçonnerie.
- Cuves en polymère.
- Anneaux en béton armé.
- Béton, rempli de caisses.
Pour construire une toilette de campagne avec une fosse étanche en maçonnerie, des anneaux en béton armé ou avec des murs en béton, ils creusent une fosse aux dimensions correspondant à celles appliquées en réalisant des dessins de leurs propres mains. Après cela, le fond de la fosse est compacté et recouvert d'une couche de sable.
Ensuite, le béton est coulé, et après durcissement, selon le type de murs, ils sont posés en brique, des anneaux en béton armé sont installés ou une caisse est installée et elle est coulée avec du béton. Ensuite, les murs doivent être enduits et traités avec le fond avec du mastic bitumineux. Veuillez noter que les murs doivent s'élever au-dessus de la surface du site d'au moins 16 cm.
La même fosse avec l'un des murs principaux décrits ci-dessus peut être construite avec un fond filtrant. Pour ce faire, il n'est pas bétonné, mais recouvert d'une couche de 30 cm de moellons ou de briques brisées. Il convient de noter que les parois d'une telle fosse n'ont pas besoin d'être enduites et traitées au bitume. Cette conception contribue à l'absorption de la fraction liquide dans le sol, il sera donc nécessaire de nettoyer une telle fosse beaucoup moins fréquemment.
L'installation d'un récipient en plastique dans la fosse empêche les matières fécales de pénétrer dans le sol, il est donc autorisé par les normes sanitaires et hygiéniques pour une utilisation sur n'importe quel territoire.
Choisir un lieu: normes d'hébergement dans un chalet d'été
L'emplacement des toilettes extérieures joue un rôle important. Sa détermination repose sur de nombreux facteurs. Si pas plus de deux personnes vivent dans une maison de campagne, vous pouvez vous débrouiller avec un placard sec, un placard à contre-courant. Pour une famille à part entière visitant un chalet d'été le week-end, y vivant de façon saisonnière, on ne peut pas se passer d'un cloaque. Lors de la construction de tels bâtiments, les règles suivantes doivent être respectées:
- SNiP 30-02-97. Clause 6.8 : les latrines doivent être situées à une distance d'au moins 12 m d'un bâtiment d'habitation, d'une cave. La distance du puits doit dépasser 8 m.Dans le même temps, ces normes sont prises en compte pour les objets situés dans la zone voisine.
- SanPiN 42-128-4690-88. Le document contient les exigences pour la construction, l'aménagement d'un puisard. Son fond est situé au-dessus du niveau de la nappe phréatique, la profondeur ne doit pas dépasser 3 m, les parois du puits sont en briques, en blocs ou équipées d'anneaux en béton. L'arbre a un fond, imperméabilisant, par exemple, sous la forme d'une couche de plâtre. La partie au sol du bâtiment est en brique, bois, gaz, bloc de mousse.
- SP 42.13330.2011. La clause 7.1 stipule qu'en l'absence d'un système d'égout centralisé, la distance entre les latrines et la maison privée voisine et la source d'approvisionnement en eau est d'au moins 12 m et 25 m, respectivement.





































