Générateur de fumée à faire soi-même pour un fumoir : options de générateur de fumée et instructions de montage étape par étape

Instructions de montage pour un générateur de fumée pour le fumage à froid

Master class: comment fabriquer un simple générateur de fumée à faire soi-même

Le générateur de fumée le plus simple peut être fabriqué de vos propres mains à partir de trois boîtes de conserve. Voici une petite classe de maître avec des photos détaillées :

Une photo Descriptif des travaux
Générateur de fumée à faire soi-même pour un fumoir : options de générateur de fumée et instructions de montage étape par étape Pour un générateur de fumée, vous devrez connecter deux boîtes de conserve. L'un d'eux doit couper le fond.Pour fixer les canettes, utilisez du ruban métallique et des pinces en fer.
Générateur de fumée à faire soi-même pour un fumoir : options de générateur de fumée et instructions de montage étape par étape Dans le pot inférieur avec un fond, faites deux trous l'un en face de l'autre. Ils seront nécessaires pour enflammer les copeaux de bois et fournir de l'oxygène.
Générateur de fumée à faire soi-même pour un fumoir : options de générateur de fumée et instructions de montage étape par étape La troisième banque est sélectionnée de sorte qu'elle soit légèrement plus petite que les deux premières. Un trou d'un tel diamètre est percé dans son fond afin qu'un té puisse être installé.
Générateur de fumée à faire soi-même pour un fumoir : options de générateur de fumée et instructions de montage étape par étape Le té est fixé avec un écrou de l'intérieur. Serrez bien la fixation, l'efficacité de l'appareil dépend de son étanchéité.
Générateur de fumée à faire soi-même pour un fumoir : options de générateur de fumée et instructions de montage étape par étape Sur l'un des côtés du té, visser une raclette avec un tube de petit diamètre. Utilisez du ruban fumigène pour sceller la connexion.
Générateur de fumée à faire soi-même pour un fumoir : options de générateur de fumée et instructions de montage étape par étape L'éjecteur nécessitera un mince tube de cuivre de petit diamètre. D'un côté, un tuyau d'alimentation en air en silicone est fixé au tube.
Générateur de fumée à faire soi-même pour un fumoir : options de générateur de fumée et instructions de montage étape par étape Insérez le tube comme indiqué sur la photo. Il doit dépasser du côté opposé du tee de quelques centimètres. Sceller le point d'entrée du tube avec un joint ou un manchon.
Générateur de fumée à faire soi-même pour un fumoir : options de générateur de fumée et instructions de montage étape par étape Vissez un tube de diamètre et de longueur appropriés dans le trou libre du té, suffisant pour se connecter au récipient à fumée.
Générateur de fumée à faire soi-même pour un fumoir : options de générateur de fumée et instructions de montage étape par étape La conception résultante est un éjecteur. Il fournira de la fumée au fumoir.
Générateur de fumée à faire soi-même pour un fumoir : options de générateur de fumée et instructions de montage étape par étape Les copeaux de bois sont versés dans le conteneur principal à partir de deux bidons d'environ 2/3.
Générateur de fumée à faire soi-même pour un fumoir : options de générateur de fumée et instructions de montage étape par étape L'éjecteur est fixé sur le dessus et solidement fixé dans l'appareil.
Générateur de fumée à faire soi-même pour un fumoir : options de générateur de fumée et instructions de montage étape par étape Le tuyau en silicone est connecté au compresseur. Dans notre cas, un compresseur d'aquarium avec alimentation en air réglable est utilisé.
Générateur de fumée à faire soi-même pour un fumoir : options de générateur de fumée et instructions de montage étape par étape Les copeaux de bois sont enflammés par les ouvertures inférieures de la structure. Il est pratique d'utiliser un brûleur à gaz à cet effet.
Générateur de fumée à faire soi-même pour un fumoir : options de générateur de fumée et instructions de montage étape par étape N'oubliez pas que vous ne pouvez installer la structure que sur un support incombustible. Les cendres des copeaux de bois peuvent tomber du fond.
Générateur de fumée à faire soi-même pour un fumoir : options de générateur de fumée et instructions de montage étape par étape Avec le compresseur allumé, le générateur de fumée produira immédiatement une fumée parfumée.
Générateur de fumée à faire soi-même pour un fumoir : options de générateur de fumée et instructions de montage étape par étape Si vous n'avez pas encore de fumoir, utilisez une simple boîte en carton. Vous pouvez y accrocher des produits sur les aiguilles. N'oubliez pas de faire un petit trou dans la boîte pour laisser sortir la fumée. Ainsi, vous avez un simple fumoir fumé à froid avec un générateur de fumée, fabriqué à la main à partir de matériaux improvisés.

Un simple générateur de fumée pour fumer à froid : faites-le vous-même

Il existe également des principes généraux qui doivent être respectés, quelle que soit la technologie choisie. Ce sera la clé d'un fonctionnement fiable et sûr de l'appareil.

Matériaux et outils

Générateur de fumée à faire soi-même pour un fumoir : options de générateur de fumée et instructions de montage étape par étape

Parmi les outils, des clés de différentes tailles sont utiles pour fixer le matériel. La coupe de tuyaux et d'autres pièces est effectuée par une meuleuse. Dans certains cas, une machine à souder est nécessaire.

La chambre de combustion

Générateur de fumée à faire soi-même pour un fumoir : options de générateur de fumée et instructions de montage étape par étape

La hauteur du conteneur varie de 0,5 à 1 mètre. Le diamètre doit être d'au moins 9 cm afin d'éviter que les copeaux ne se coincent. Les magasins spécialisés vendent des tuyaux prêts à l'emploi, idéaux pour la chambre de combustion.

Générateur de fumée à faire soi-même pour un fumoir : options de générateur de fumée et instructions de montage étape par étape

Cheminée

Générateur de fumée à faire soi-même pour un fumoir : options de générateur de fumée et instructions de montage étape par étape

  1. Un tuyau ¾ est attaché.
  2. Une croix ¾ est installée.
  3. Une prise pour révision est placée à l'extrémité.
  4. Un tuyau de cheminée est fixé, qui sera relié au fumoir.

Pour un meilleur refroidissement, dans certains cas, un tuyau de grand diamètre est utilisé, de taille égale au diamètre de la chambre de combustion.

Générateur de fumée à faire soi-même pour un fumoir : options de générateur de fumée et instructions de montage étape par étape

Générateur de fumée à faire soi-même pour un fumoir : options de générateur de fumée et instructions de montage étape par étape

Installation à faire soi-même d'un générateur de fumée pour fumage à froid: vidéo et photo

Il est possible de faire une qualité générateur de fumée pour fumer à froid mains. Des dessins et des schémas vous permettront de créer la meilleure unité.

Générateur de fumée à faire soi-même pour un fumoir : options de générateur de fumée et instructions de montage étape par étape

Ce schéma montre un fumoir avec une grande cheminée et un endroit spécial pour sécher le bois de chauffage.

Afin d'économiser de l'argent, une pièce de serpentin peut être placée autour du réservoir de combustion. Il est nécessaire de créer une circulation d'air de haute qualité afin que le corps chauffé n'interfère pas avec le refroidissement de la fumée.

Générateur de fumée à faire soi-même pour un fumoir : options de générateur de fumée et instructions de montage étape par étape

Un appareil pour créer de la fumée, avec tous les éléments nécessaires, peut être assemblé en quelques jours

Pour l'auto-assemblage, vous aurez besoin des éléments suivants :

  • morceaux de tuyau métallique d'un diamètre de 25 à 40 mm pour une conduite de fumée;
  • tube rond ou carré;
  • tuyau métallique ou tuyau ondulé;
  • raccords en T ;
  • compresseurs;
  • thermomètre et fils spéciaux.

Générateur de fumée à faire soi-même pour un fumoir : options de générateur de fumée et instructions de montage étape par étape

Le diagramme montre tous les composants importants d'un bon fumoir

Vous aurez également besoin d'une unité de soudage et d'une meuleuse. Le dessin d'un générateur de fumée pour fumage à froid permet de considérer tous les composants de la structure.

L'installation de la structure présente les caractéristiques suivantes:

  • si le fond est amovible, les portes sur les surfaces latérales de l'unité ne sont pas nécessaires ;
  • le couvercle supérieur doit être sans ventilation ni cheminée. Il doit être équipé d'éléments spéciaux pour l'ouverture ;
  • une cheminée est montée sur le dessus de l'unité. Le raccord est soudé au mur dans une direction perpendiculaire;

Générateur de fumée à faire soi-même pour un fumoir : options de générateur de fumée et instructions de montage étape par étape

La cheminée peut également être montée en bas

  • le fil est coupé pour les raccords;
  • après avoir installé la partie cheminée, un élément en T et deux tuyaux sont connectés;
  • la conduite de l'élément compresseur est fixée au tuyau qui descend, un tuyau spécial est monté sur le raccord latéral, menant au réservoir de fumage;
  • au lieu d'un ventilateur, un refroidisseur d'ordinateur ou un compresseur pour aquarium est utilisé. Dans ce cas, il est nécessaire de créer une circulation constante du flux d'air.
Lire aussi :  Temps d'étalonnage des compteurs d'eau froide et chaude: intervalles d'étalonnage et règles de mise en œuvre

Générateur de fumée à faire soi-même pour un fumoir : options de générateur de fumée et instructions de montage étape par étape

Le fumoir peut être fabriqué à partir de planches

Le té est fixé au couvercle, tandis que l'intégrité des parois latérales n'est pas affectée.

Conseils utiles : comment fonctionne un appareil fait maison ?

Le générateur de fumée à faire soi-même pour fumer à froid se distingue par sa mobilité et sa compacité. La vidéo vous permet de voir toutes les étapes d'installation de cet appareil.

Générateur de fumée à faire soi-même pour un fumoir : options de générateur de fumée et instructions de montage étape par étape

Vous pouvez créer des modèles combinés, dont certains sont achetés au magasin et d'autres sont fabriqués à partir de ce qui est à portée de main.

Une telle installation peut être stockée au sous-sol, dans un garage ou dans un placard.

Générateur de fumée à faire soi-même pour un fumoir : options de générateur de fumée et instructions de montage étape par étape

Le nombre de produits pouvant être placés dans l'unité dépend du volume de la cuve

L'appareil fonctionne comme suit :

  • l'appareil est installé sur une base de matériaux résistant à la chaleur. Il peut s'agir d'une dalle de béton, d'un carreau de céramique ou d'une table en métal ;
  • cet appareil chauffe rapidement et des particules de matière brûlante en sortent;
  • environ 0,8 kg de sciure, de copeaux ou de copeaux de bois sont chargés dans le conteneur ;
  • le couvercle ferme bien;
  • le tuyau du compresseur est connecté et la cheminée est connectée à la chambre de fumage ;
  • le carburant est allumé à travers un trou latéral ;
  • le ventilateur se met en marche.

Générateur de fumée à faire soi-même pour un fumoir : options de générateur de fumée et instructions de montage étape par étape

Un appareil à fumer peut être construit en combinaison avec un poêle

La température est déterminée à l'aide d'un thermomètre. Lors de la création de cet équipement par vous-même, vous pouvez utiliser des matériaux improvisés. Les pots, canettes ou tout autre récipient en forme de cylindre conviennent au corps. La cheminée est fabriquée à partir de n'importe quel tuyau approprié. Une telle installation peut fonctionner même sans ventilateur. Dans ce cas, la traction sera plus faible et le processus de fumage sera grandement retardé.

Générateur de fumée à faire soi-même pour un fumoir : options de générateur de fumée et instructions de montage étape par étape

Les fumoirs sont même fabriqués à partir de vieilles bouteilles de gaz

Avec un certain matériel à portée de main, des outils spéciaux et certaines compétences, des générateurs de fumée durables et de haute qualité sont créés avec lesquels vous pouvez cuisiner de délicieux aliments fumés.

Une façon simple et rustique de fumer

Cette conception se compose de deux chambres reliées par une cheminée. Le fumoir est situé d'un côté, de l'autre il y a un poêle ou foyer, qui est le générateur de fumée.

Générateur de fumée à faire soi-même pour un fumoir : options de générateur de fumée et instructions de montage étape par étapeLe fumoir est fabriqué à partir de planches - il doit être complètement hermétique. Vous pouvez utiliser un tonneau. La chambre est située sur une colline, toujours au-dessus du poêle pour un bon mouvement des fumées

La cheminée doit avoir une longueur de 3 à 4 mètres pour que la fumée destinée au fumage soit refroidie à une température convenable.

Selon l'utilisation du fumoir, il existe 2 types de revêtement de cheminée :

  • Si le fumoir est fixe, la cheminée est réalisée sous la forme d'un canal en brique ou d'un tuyau métallique enterré dans le sol.
  • Si la structure est assemblée à la hâte, une tranchée creusée sous une pente est parfaite.

Connectez la cheminée au fumoir par le bas pour un plus grand remplissage de fumée. Un filtre doit être placé à la jonction afin que la suie soit bloquée et ne repose pas sur les produits fumés.

Le générateur de fumée le plus simple d'une cuisinière électrique

Si vous avez besoin de viandes fumées "tout de suite", vous pouvez utiliser une méthode très simple : il vous faut une cuisinière électrique, un fût sans fond ou un morceau de tuyau de gros diamètre, un treillis métallique avec une cellule d'au moins 10 * 10 cm , une feuille de contreplaqué ou de fer. Still - sciure de bois et "objet de fumer".

Générateur de fumée à faire soi-même pour un fumoir : options de générateur de fumée et instructions de montage étape par étape

Le générateur de fumée fumé à froid le plus simple peut être construit sur la base d'une cuisinière électrique et d'un tonneau

Un tel fumoir fumé à froid est généralement placé dans la rue, dans la cour.Il faut défricher la parcelle de végétation, installer un poêle électrique. Sur celui-ci - un récipient en métal (ce qui n'est pas dommage de jeter). La sciure de bois est versée dans le récipient.

Dans la partie supérieure du canon / tuyau, en reculant du bord supérieur de 10-5 cm, nous forons quatre trous. Ils sont situés diamétralement ou face à face. Nous y mettons des épingles. Vous pouvez utiliser des tiges métalliques, vous pouvez utiliser des bâtons. Le choix dépend du poids des produits à empiler ou de ce qui est disponible. Les tiges elles-mêmes peuvent être disposées en croix ou en deux parallèles, situées à environ 1/3 du diamètre du corps du fumoir. Au-dessus de ce support, nous posons une grille, avec des produits attachés par le bas. Nous couvrons le fumoir avec du contreplaqué ou une feuille de métal.

Générateur de fumée à faire soi-même pour un fumoir : options de générateur de fumée et instructions de montage étape par étape

Nous forons des trous dans la partie supérieure du canon, y insérons des tiges de treillis avec des produits suspendus

Allumez les tuiles. Au bout d'un moment, la sciure de bois commence à fumer. Le temps de "travail" sur un onglet dépend de la quantité de sciure de bois versée, mais il est en moyenne de 3 à 5 heures. Ensuite, il faut mettre de côté le corps, ajouter de la sciure, tout mettre en place. Difficile, inconfortable et semé d'"accidents". Mais la conception est très simple, c'est une option "camping", qui n'implique pas de commodités.

Générateur de fumée à faire soi-même pour un fumoir : options de générateur de fumée et instructions de montage étape par étape

Il s'agit d'un générateur de fumée fumé à froid assemblé.

Un autre inconvénient est de régler l'intensité de la fumée avec un régulateur mono tuile, mais le faire sous cette forme n'est pas pratique - encore une fois, vous devez déplacer le boîtier. Vous pouvez vous débarrasser de ces défauts si vous faites une porte en dessous. Avec son aide, il sera possible de réguler le débit d'air et de changer la sciure de bois.

Comment faire un fumoir fumé à chaud à partir du réfrigérateur de vos propres mains (étape par étape, instructions)

Avec la méthode à chaud, les produits sont fumés à une température d'au moins 100 degrés.En conséquence, le processus est rapide - deux heures est le maximum qui peut être nécessaire pour la préparation des produits. On pense qu'avec un tel fumoir du réfrigérateur pour le poisson, la viande et d'autres produits, certaines vitamines sont perdues. De plus, il existe un risque de formation de substances cancérigènes.

Le goût des produits avec des méthodes de fumage à froid et à chaud est différent, donc lors de la fabrication de l'unité, vous devez vous fier à vos préférences. Dans le second cas, l'armoire est plus facile à réaliser que pour le fumage à froid. Pas besoin de creuser une tranchée et d'expérimenter avec un tuyau de quatre mètres. L'instruction ne contiendra que quelques points :

  1. Installez le réfrigérateur.
  2. Posez la cuisinière électrique et placez un récipient avec des copeaux de bois dessus.

Attention! Pour une armoire fumée à chaud, il est important de comprendre dans quel mode chauffer le poêle. En aucun cas le combustible ne doit s'enflammer, il doit couver, afin d'augmenter la quantité de fumée et minimiser les risques d'inflammation, il est nécessaire d'humidifier les copeaux de bois.

Lire aussi :  Comment isoler une loggia de vos propres mains

Lors du fumage à chaud, dans tous les cas, il y aura beaucoup de gras

Par conséquent, une palette doit être placée en dessous. Une cheminée est nécessaire en haut de l'armoire

Lors du fumage à chaud, dans tous les cas, il y aura beaucoup de graisse. Par conséquent, une palette doit être placée en dessous. Une cheminée est nécessaire en haut de l'armoire.

Vous pouvez également faire un fumeur du réfrigérateur avec un générateur de fumée à faire soi-même. Cela améliorera le goût des aliments et accélérera le processus de cuisson. L'appareil est vendu prêt à l'emploi ou vous pouvez l'assembler vous-même. Pour cela vous aurez besoin d'un compresseur d'aquarium (puissance optimale 60 l/h).

Versions du générateur de fumée fumé à chaud.

Commençons par l'option la plus simple.Ce sont des charbons ardents, sur lesquels sont jetés de l'herbe crue, des aiguilles et des feuilles. Autour d'un tel feu, vous pouvez fabriquer un auvent en film plastique ou en carton et placer le poisson à l'intérieur en suspension. Un fumoir chaud sous forme de voyage est prêt. En effet, cette méthode de cuisson rapide du poisson fraîchement pêché est souvent utilisée lors des séjours de camping et des sorties de pêche.

Une cuisinière électrique ordinaire peut servir de générateur de fumée pour préparer un délicieux plat de viande ou de poisson. Il est installé à l'intérieur de la chambre de fumage, connecté au réseau. Une plaque à pâtisserie avec des copeaux de bois ou de la sciure de bois pressée est installée sur le carreau, qui commence à émettre de la fumée lorsqu'il est chauffé. Afin que notre sciure de bois ne soit pas inondée de graisse libérée lors du fumage, un bac de récupération d'humidité est prévu au-dessus du générateur de fumée.

Exactement le même principe de fonctionnement d'un élément chauffant générateur de fumée, à la seule différence que les éléments chauffants doivent être fixés dans le corps de la chambre de fumage, ce qui ajoute au casse-tête.

Instructions de montage du fumoir fumé à froid

Il existe de nombreux conseils où une chambre de conception similaire est fabriquée à partir de boîtes en carton, de barils en plastique et d'autres déchets. L'utilisation de la fumée froide vous permet de le faire, mais le fumoir durera quelques utilisations. S'il y a un désir de fumer constamment, ils assemblent une structure de capital de leurs propres mains.

Caméra

Pour toute chambre, une fondation de briques rouges ou de blocs de béton est d'abord préparée. D'un côté, un passage est prévu où le canal sera connecté.

Générateur de fumée à faire soi-même pour un fumoir : options de générateur de fumée et instructions de montage étape par étape

Sous la chambre en briques, une fondation renforcée sera nécessaire, de plus, il est plus difficile de la construire. Il est plus facile d'abattre une maison carrée jusqu'à 1,5 m de haut à partir des planches, les murs mesurent 1 m de long.Tout d'abord, le cadre est abattu du bois.Les éléments sont reliés par des vis autotaraudeuses, les coins sont renforcés par des coins métalliques de montage.

Trois côtés du cadre sont gainés étroitement avec une planche. Le plafond est également tapissé, seulement je fournis un tuyau pour la sortie des fumées. Ici, vous pouvez utiliser du galvanisé ou du plastique. Sur le quatrième côté non gainé du cadre, des portes battantes sont accrochées pour charger le produit. Au-dessus de la chambre à partir des barres, une charpente de toit à pignon est équipée, le fumoir est recouvert de tout matériau de toiture léger. Parfait pour le carton ondulé.

Foyer

Générateur de fumée à faire soi-même pour un fumoir : options de générateur de fumée et instructions de montage étape par étape

Un foyer est construit à une distance d'au moins 2 m de la chambre. Le poêle est construit en briques rouges ou réfractaires. Prévoir une porte charger les matières premières et élimination des cendres. Sous le poêle, il est souhaitable de bétonner la base. Dans le dos, un rabat est prévu. Il est fermé lors de l'allumage afin d'éviter les premières fumées âcres qui se forment avec le début de la combustion dans la chambre avec les produits.

Canaliser

Une attention particulière est portée à la conception du canal. Les substances cancérigènes contenues dans la fumée se déposeront à l'intérieur.

Le canal est généralement démarré en même temps que le foyer, car il est relié à l'arrière du four.

Générateur de fumée à faire soi-même pour un fumoir : options de générateur de fumée et instructions de montage étape par étape

Le moyen le plus simple consiste à poser un tuyau métallique à paroi mince d'un diamètre de 300 à 500 mm. Cependant, avec le temps, il s'encrasse de suie et nécessite un nettoyage. Un canal creusé dans le sol est considéré comme efficace. Ses côtés sont recouverts de briques rouges, le dessus est recouvert de tôles pour éviter les effondrements du sol. La suie et le condensat de décantation sont débogués sur le fond de terre. Les bactéries du sol traiteront les déchets cancérigènes, il n'y aura pas besoin de nettoyer le canal.

Générateur de fumée à faire soi-même pour un fumoir : options de générateur de fumée et instructions de montage étape par étape

Si le site est en pente, la caméra est placée en hauteur et le foyer est en plaine.Un chemin est aménagé à partir des pierres par étapes, pour faciliter l'approche lors du chargement des produits. Vous pouvez fumer dans un tel fumoir par tous les temps, car la chambre et le foyer sont protégés des précipitations.

Générateur de fumée fumée à froid

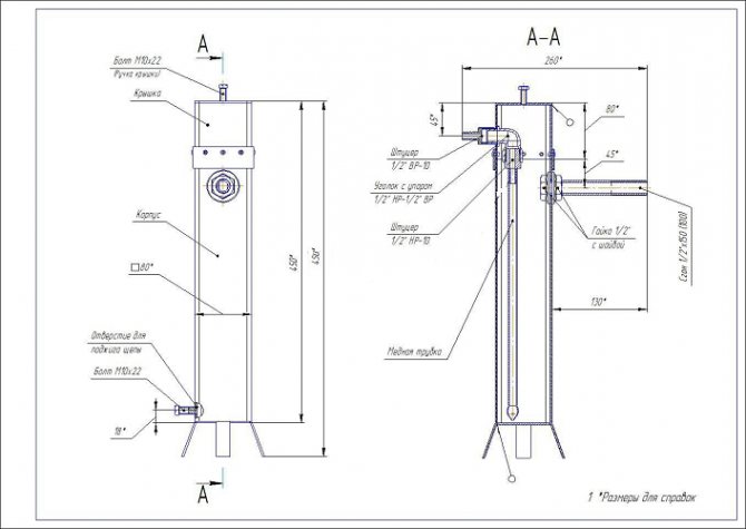
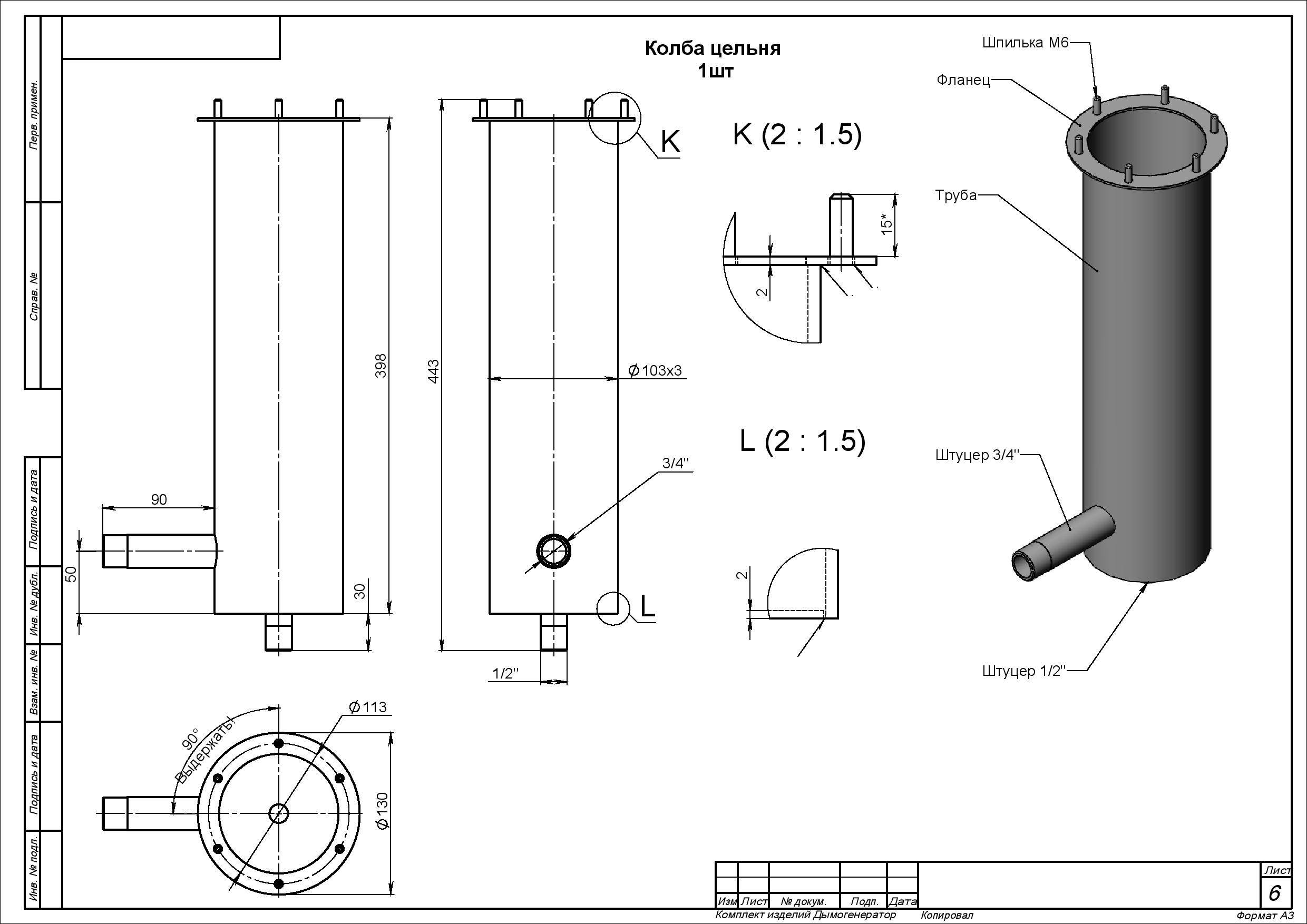
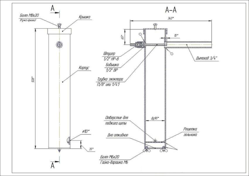
Le manque de place sur le site ne permet pas la construction d'un long canal, l'installation d'un foyer volumineux. Le moyen de sortir de la situation sera la fabrication d'un générateur de fumée. Parmi les matériaux, vous avez besoin du corps d'un ancien extincteur en métal ou d'un tuyau d'un diamètre de 100 à 150 mm. De plus, vous aurez besoin de raccords, d'un compresseur ou d'un aspirateur avec fonction de soufflage d'air, de tuyaux fins pour aménager une cheminée.

Générateur de fumée à faire soi-même pour un fumoir : options de générateur de fumée et instructions de montage étape par étape

La conception se compose de 3 nœuds principaux :

  • un corps à l'intérieur duquel la sciure couve sans oxygène ;
  • tuyau d'évacuation des fumées ;
  • unité de refroidissement.

Au bas du boîtier, des grilles pour brûler la sciure de bois sont installées, une chambre à cendres est formée et un raccord est soudé pour fournir l'air du compresseur.

Générateur de fumée à faire soi-même pour un fumoir : options de générateur de fumée et instructions de montage étape par étape

La structure est reliée à la cheminée par un tuyau de dérivation, à l'intérieur duquel un éjecteur constitué d'un tube mobile est inséré. Le mécanisme régule le flux de fumée. La sciure de bois chargée est enflammée par la vanne inférieure. La fumée émise sous la décharge du compresseur se déplace à travers les tubes dans la chambre.

Générateur de fumée à faire soi-même pour un fumoir : options de générateur de fumée et instructions de montage étape par étape

Souvent, une unité supplémentaire est installée entre le générateur de fumée et la chambre du fumoir - un filtre. Il est constitué d'un puisard à partir d'un morceau de tuyau. La fumée traversant le filtre se refroidit, les cancérigènes sous forme de condensat sont évacués par un raccord soudé dans le fond.

Manuel de l'Utilisateur

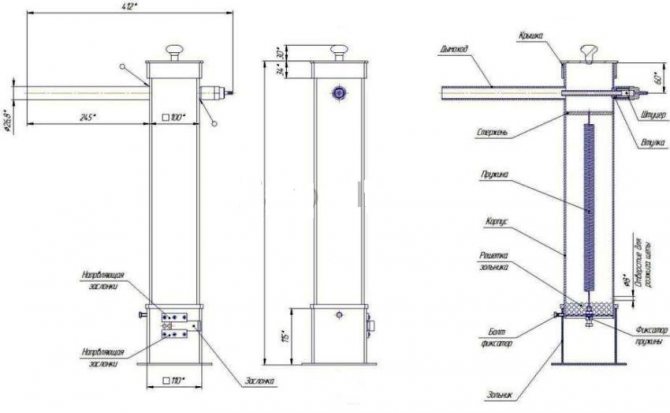
Pour que l'unité utilise le plus efficacement possible les fonctions inhérentes à la conception, vous devez suivre les règles de son fonctionnement:

  1. Avant de mettre le générateur de fumée en marche, sélectionnez la surface et installez l'unité.La surface doit être plane et protégée de manière fiable contre les incendies, car non seulement les cendres, mais aussi les charbons non brûlés (la soi-disant chaleur) se répandent souvent dans les trous du générateur.
  2. Lorsque vous placez du combustible à copeaux de bois dans le compartiment du boîtier, essayez d'abord de déposer des brindilles et des copeaux fins (10-20 mm) sur le fond, puis vous pouvez utiliser un matériau plus gros. Ne vous laissez pas emporter par la formation de "puits", ainsi que par le téléchargement de branches trop grosses.
  3. Lorsque vous utilisez de la sciure de bois comme combustible (elles seront plus denses que les copeaux, les branches ou les copeaux de bois, ce qui ralentira ou même bloquera complètement la sortie de fumée), mettez sur un tuyau situé en haut (plus fin), un ressort étroitement enroulé ( vous pouvez utiliser un tube en acier perforé). Peu importe la qualité du matériau, l'essentiel est de choisir le bon diamètre (environ 20 mm). Le ressort peut être "fermement" fixé ou rendu amovible.
  4. Après cela, nous plaçons les produits préparés pour fumer dans le fumoir.
  5. Fermez bien le couvercle. Nous connectons le compresseur avec un raccord avec une cheminée et le fumoir avec un générateur.
  6. Allumez le carburant et démarrez le compresseur.
  7. Ouvrez le volet du cendrier.
  8. Lorsque la combustion lente du bois atteint un niveau moyen, si nécessaire, nous ajustons l'apport d'air par le compresseur et le cendrier.
Lire aussi :  Pourquoi la tondeuse ne démarre pas: les causes du dysfonctionnement et comment les réparer

Générateur de fumée à faire soi-même pour un fumoir : options de générateur de fumée et instructions de montage étape par étape

Il est absolument facile de fabriquer un générateur de fumée avec un registre et un cendrier de vos propres mains lorsque vous avez des compétences en soudage. Cela ne nécessite pas de matériaux coûteux ou d'outils spéciaux (sauf pour le soudage).Si vous voulez essayer le fumage à froid, assurez-vous de fabriquer une telle unité, elle a une excellente traction et vous permet d'obtenir des produits fumés de haute qualité à la sortie.

Comment faire un fumoir à partir d'un tonneau de vos propres mains

Un baril de 200 litres est idéal pour un fumoir. Il s'agit d'un fumoir presque fini, il nécessite un minimum de travail et un petit ensemble d'outils.

N'importe quel baril fera l'affaire, peu importe ce qui y était auparavant stocké. L'essentiel est que le métal soit de haute qualité, ce qui augmentera la durée de vie de l'appareil fini

Comment préparer un tonneau

Pour éliminer toutes les substances qui se trouvaient auparavant dans le baril, il faut le brûler. Pour ce faire, du bois de chauffage est déposé dans un tonneau et un feu est allumé. Après cela, le canon est nettoyé de la suie et de la suie.

Types de fumoirs à partir d'un tonneau

Un fumoir fumé à froid à partir d'un baril a différentes options de fabrication. Tous ont leurs avantages et leurs inconvénients, avec lesquels vous devez vous familiariser avant d'assembler l'équipement pour fumeurs. Cela vous permettra de choisir l'option la plus appropriée dans chaque cas individuel.Générateur de fumée à faire soi-même pour un fumoir : options de générateur de fumée et instructions de montage étape par étape

Fumoir baril horizontal

Dans la fabrication de ce type de fumoir, le baril est situé horizontalement. Si le baril n'a pas de couvercle, une feuille de fer est soudée sur le dessus.

En reculant de chaque bord de 10 à 15 cm, une porte est découpée dans le canon. La porte découpée est soudée avec des charnières au canon. Pour plus de commodité, une poignée et une constipation sont en outre soudées. Pour que le couvercle ne tombe pas vers l'intérieur, les bords de la découpe sont soudés de l'intérieur avec des bandes de tôle.

Juste en dessous de la trappe, il faut souder les guides de la grille. Installez une lèchefrite encore plus bas.

Un trou pour la cheminée est découpé de chaque côté, un coude à 90 et un tuyau sont installés.Pour régler le débit de la maison, il est nécessaire d'installer une vanne à vanne.

Les copeaux de bois sont versés directement au fond du conteneur. La structure est complètement terminée. Vous pouvez le mettre au feu, charger de la nourriture et commencer le processus de fumage.F.

Verticale avec foyer

Un tel fumoir à partir d'un baril ne convient que pour le fumage à chaud. Une porte pour le foyer est découpée dans la partie inférieure du corps et fixée avec des charnières. Une palette est installée au-dessus du foyer, elle remplit deux rôles. Le premier sert de voûte du foyer et le second sert de palette. Ensuite, des trous pour les guides sont percés à différentes hauteurs. Une grille ou des crochets pour produits fumés sont installés sur ces guides. Le haut du canon est fermé par un couvercle avec une cheminée. Plus de détails sur la façon de faire un fumoir sont montrés dans la vidéo.

Fumoir de deux barils

Dans ce cas, le premier baril est réalisé par analogie avec l'horizontal et servira de chambre de fumage. Le deuxième baril est installé verticalement et agit comme un foyer. À la jonction des barils pendant le fumage, un filtre en toile de jute ou en tissu humide est installé.

Comment cuisiner dans un fumoir baril

Cuisiner des mets délicats dans un fumoir fait maison est très simple. Il suffit de placer les produits préparés sur des grilles ou des crochets, de fermer la structure et d'allumer le bois de chauffage.

De la sciure ou des copeaux de bois sont versés dans la partie inférieure de la structure finie. Lorsque le fond du fumoir est chauffé à la température désirée, les copeaux de bois commenceront progressivement à fumer. Le processus de fumage va commencer, vous devez maintenant surveiller la température, la quantité de fumée et noter l'heure.

Types de fumoirs

Les fumoirs à faire soi-même peuvent être de différents types et avoir leurs propres caractéristiques de conception, qui dépendent directement des besoins de l'utilisateur et de ses capacités de construction.Les plus populaires sont 3 types de fumoirs :

● mine (verticale) ; ● tunnel (horizontal) ; ● chambre.

Le fumoir à puits est le plus facile à installer et ne nécessite pas d'endroit spécifique pour l'installation. Sa structure ressemble à une hutte canonique, au sommet de laquelle sont suspendus des produits. Cependant, ce type de fumoir présente un certain nombre d'inconvénients importants, parmi lesquels l'un des plus importants est l'inaccessibilité du fumage par fumigation, ainsi que de faibles possibilités d'ajustement de la production de fumée.

Un fumoir tunnel nécessite une quantité de travail assez importante, dont la majeure partie est du terrain. Il est également nécessaire de trouver un site adapté à son installation - il faut qu'il soit en pente. Le foyer-générateur de fumée dans un tel dispositif horizontal est situé dans une chambre spéciale de type semi-fermé. Grâce à cela, le processus de fumage peut être effectué dans toutes les conditions météorologiques. Selon la longueur du canal, le fumage à chaud et à froid peut être effectué.

Le fumoir à chambre est assez primitif dans son dispositif, mais en même temps il est global: la hauteur est de 1,5 mètre et le diamètre est de 1 mètre

Lors de la construction, il est important de prévoir l'angle d'inclinaison requis, qui varie de 10 à 30 degrés.

Évaluation
Site sur la plomberie

Nous vous conseillons de lire

Où remplir la poudre dans la machine à laver et combien de poudre verser