- Utilisation des cheminées
- Caractéristiques de conception
- Calculs des principaux paramètres
- Protection contre la foudre
- Calcul de la hauteur de poussée
- Histoire
- Hauteur cheminée.
- prix cheminée
- Principes d'installation et d'installation des paratonnerres
- Mesures de sécurité nécessaires : protection contre la foudre de la chaufferie
- Calcul d'une cheminée pour une chaufferie
- Conception de structures
- Etapes de calculs
- Pourquoi les calculs sont nécessaires
- Types de construction
- Documents requis
- Types et conceptions
- Comment est la cheminée
- Hauteur au dessus du patin
- Fonctionnement des cheminées
- Entretien et nettoyage
- Exigences de cheminée
- Ce qui vaut la peine d'être connu
- Emplacement de la cheminée et direction du vent : comment éviter les turbulences
- Caractéristiques de montage
Utilisation des cheminées
Caractéristiques de conception
Outre l'équipement interne, un détail important est également la cheminée, qui est montée sur l'installation thermique. L'efficacité de l'ensemble du système dépend en grande partie de la précision avec laquelle le calcul de la cheminée de la chaufferie a été effectué et de la précision avec laquelle cette conception a été installée.
Il existe plusieurs variétés de tels tuyaux:
- Cultiver. La cheminée interne est fixée à des fermes en acier autoportantes installées au sol et fixées avec des ancrages profonds ou un panier d'ancrage dans une base monolithique en béton armé.
- Autoportant.Ils sont assemblés à partir de plusieurs cheminées entourées d'un contour calorifuge et fixées à l'intérieur d'une coque autoportante en acier. La structure extérieure supporte une charge statique et résiste également aux influences du vent.

Éléments d'une cheminée autoportante
- De face. Les plus faciles à installer, certains d'entre eux peuvent même être installés à la main. Il s'agit d'une cheminée préfabriquée ou monolithique en acier fixée soit directement au mur soit sur un système de consoles murales.
- Mât. Un tuyau en acier à paroi épaisse sans soudure est utilisé comme sortie de fumée, dont la partie inférieure est fixée avec des ancres sur la plaque de base. Pour résister aux charges de vent, la structure est fixée avec des entretoises.

Construction de façade
Il convient de noter que la plupart de ces structures ont des dimensions et un poids importants. C'est pourquoi l'installation ou le démontage du tuyau de la chaudière est effectué principalement par des organismes spécialisés. Les seules exceptions sont les petites cheminées de maisons privées, ainsi que les systèmes de façade de petite taille mentionnés ci-dessus.
Calculs des principaux paramètres
Pour la conception et la construction d'une cheminée efficace, il est nécessaire de calculer à l'avance ses principaux paramètres, parmi lesquels la hauteur de la cheminée de la chaufferie et son diamètre intérieur. Le moyen le plus simple de le faire est d'utiliser des programmes de calcul spéciaux que l'on peut trouver sur le réseau, mais même sans eux, vous pouvez trouver au moins des nombres approximatifs.
Pour les chaudières domestiques de faible puissance, les données initiales seront approximativement les mêmes :
- La température du gaz entrant est jusqu'à 200C.
- Le mouvement du gaz dans le tuyau est de 2 m/s ou plus.
- Hauteur selon SNIP - pas moins de 5 m de la grille et pas moins de 0,5 m de la crête (pour les modèles industriels - au moins 5 m plus haut que l'objet le plus haut dans un rayon de 25 m).
- Pression de gaz naturel - 4 Pa ou plus.
A titre d'exemple, on calcule le diamètre d'un tuyau isolé en acier (coefficient thermique B = 0,34) nécessaire au fonctionnement d'une chaufferie dans laquelle 10 kg de bois de chauffage avec une teneur en humidité de 25% et une température de sortie de 150C sont brûlés par heure.
Le volume de gaz nécessaire à la combustion du carburant est de 10m3/kg :
- Nous calculons le volume de gaz à l'entrée du tuyau par seconde en utilisant la formule Vr= m*V*(1+t/273)/3600, où m est la masse de carburant et V est le volume de gaz.
- On obtient Vr = (10*10*1.55)/3600 = 0.043 m3/s.
- En utilisant la formule du volume d'un cylindre, on détermine le carré du diamètre D2 = (4∙0.043)/3.14∙2 = 0.027.
- Par conséquent, le diamètre minimum de la cheminée sera de 0,165 m.
Comme vous pouvez le voir, les calculs d'un seul paramètre sont plutôt compliqués. C'est un autre argument en faveur du fait que la conception des cheminées, notamment celles destinées à supporter le fonctionnement des chaudières à forte puissance, doit être faite par des professionnels.
Protection contre la foudre
La prise en compte de toutes les caractéristiques dans la préparation du projet, une installation correcte, une inspection régulière des cheminées de la chaudière pour identifier les défauts et les éliminer en temps opportun sont des conditions préalables à un fonctionnement efficace. Cependant, des facteurs externes peuvent parfois entraîner une défaillance du système.
L'un de ces facteurs est la foudre, et donc les conduites hautes doivent être protégées de ses effets :
Sur les cheminées non métalliques, des paratonnerres en acier ou cuivrés sont montés. Leur nombre peut varier de un (structures jusqu'à 50 m) à trois (à partir de 150 m et plus).Dans certains cas, les tiges sont remplacées par des plaques annulaires en acier, qui sont fixées à l'extrémité.

Schéma de protection contre la foudre de structure non métallique
Pour les tuyaux en béton, le rôle des paratonnerres est joué par le renforcement interne. Pour augmenter l'efficacité de son fonctionnement, les bords supérieurs des tiges sont reliés par soudure.
Le tube en acier lui-même joue le rôle d'un paratonnerre
Naturellement, dans ce cas, il est important d'assurer une mise à la terre de haute qualité.
Calcul de la hauteur de poussée
Cet indicateur est très important pour les chaudières à combustible solide. Les fabricants de tels équipements indiquent généralement la hauteur minimale requise de la cheminée pour créer un tirage naturel normal dans les instructions d'installation. Cependant, si nécessaire, le calcul de la hauteur de la cheminée par tirage peut être effectué indépendamment.
Pour cela, vous devez utiliser la formule suivante :
hc \u003d H * (pv - pg).
Ici, H est la hauteur de la cheminée depuis le tuyau de dérivation de l'unité à combustible solide, pv est la densité de l'air, pg est la densité de CO.
La densité de l'air pour le calcul par cette méthode est déterminée comme suit:
pv \u003d 273 / (273 + t) * 1,2932, où
1,2932 est la densité de l'air dans les conditions standard acceptées et t est la température dans la chaufferie (généralement +20 ° C).
Le paramètre ρg de la formule est déterminé à partir de tables spéciales à l'aide de la formule suivante :
Yav = (Y1 + Y2)/2, où
Y1 - t de monoxyde de carbone à l'entrée de la cheminée, selon la documentation technologique, et Y2 - t gaz à la sortie du tuyau. Le dernier paramètre est déterminé par la formule suivante :
θ2=θ1 — НВ/√(Q/1000), où
Q est la puissance de l'unité de chauffage, et le coefficient B vaut :
- pour un tuyau galvanisé «sandwich» - 0,85;
- pour l'acier ordinaire - 0,34;
- pour la brique - 0,17.
Histoire
Cet instrument est l'un des plus anciens.La première mention de tels dispositifs remonte à environ 3600. De nombreuses civilisations utilisaient des tuyaux - et l'Égypte ancienne, la Chine ancienne et la Grèce antique, et d'autres cultures utilisaient la ressemblance des tuyaux comme instruments de signalisation. Pendant de nombreux siècles, ce fut le rôle principal de cette invention.
Au Moyen Âge, les troupes disposaient nécessairement de trompettistes capables de transmettre un ordre sonore à d'autres unités situées à une distance considérable les unes des autres. A cette époque, la trompette (instrument de musique), bien qu'elle ne remplisse pas pleinement ses fonctions, était néanmoins un art d'élite pour en jouer. Seules des personnes spécialement sélectionnées ont été formées à cette compétence. En temps calme et sans guerre, les trompettistes étaient des participants obligatoires aux vacances et aux tournois chevaleresques. Dans les grandes villes, il y avait des trompettistes de tour spéciaux, signalant l'arrivée de personnes importantes, le changement de saisons, l'avancée des troupes ennemies ou d'autres événements importants.
Peu avant l'avènement de la Renaissance, les nouvelles technologies ont permis de produire un instrument de musique plus parfait.La trompette a commencé à participer aux performances de l'orchestre. De plus, les trompettistes sont devenus beaucoup plus virtuoses en apprenant l'art du clarino. Ce mot désignait la transmission de sons diatoniques à l'aide du souffle. peut être considéré en toute sécurité comme "l'âge d'or de la pipe naturelle". Depuis l'âge classique et romantique, qui met la mélodie à la base de tout, la trompette naturelle est passée au second plan comme incapable de reproduire les lignes mélodiques. Et la trompette n'était utilisée que pour l'exécution des étapes principales de la gamme dans les orchestres.

Hauteur cheminée.
Ici, nous pouvons nous passer de calculs compliqués.
Oui, bien sûr, il existe des formules assez lourdes qui permettent de calculer avec une grande précision la hauteur optimale de la cheminée. Mais ils deviennent vraiment pertinents lors de la conception de chaufferies ou d'autres installations industrielles, où ils fonctionnent avec des niveaux de puissance, des volumes de combustible consommés, des hauteurs et des diamètres de tuyaux complètement différents. De plus, ces formules incluent également une composante environnementale pour l'émission de produits de combustion jusqu'à une certaine hauteur.
Il est inutile de donner ces formules ici. La pratique montre, et c'est d'ailleurs également stipulé dans les codes du bâtiment, que pour l'un des appareils ou structures à combustible solide théoriquement possibles dans une maison privée, un tuyau de cheminée (à tirage naturel) d'une hauteur d'au moins cinq mètres suffira. Vous pouvez trouver des recommandations pour se concentrer sur un indicateur de six mètres.
Cela fait référence à la différence de hauteur entre la sortie de l'appareil (pour les fours, il est souvent considéré - de la grille) au bord supérieur du tuyau, sans tenir compte du parapluie, de la girouette ou du déflecteur mis
Ceci est important pour les cheminées qui ont des sections horizontales ou inclinées. Nous répétons - pas la longueur totale du tuyau utilisé, mais seulement la différence de hauteur
La hauteur de la cheminée est exactement la différence de hauteur entre son entrée et sa sortie, et non la longueur totale du tuyau, qui peut avoir des sections horizontales ou inclinées. Soit dit en passant, il faut toujours s'efforcer de minimiser le nombre et la longueur de ces sections.
Ainsi, la longueur minimale est claire - cinq mètres.Moins c'est impossible ! Et plus? Bien sûr, c'est possible, et parfois même nécessaire, car des facteurs supplémentaires peuvent interférer en raison des spécificités du bâtiment (c'est courant - la hauteur de la maison) et de l'emplacement de la tête de tuyau par rapport au toit ou aux objets voisins. .
Cela est dû à la fois aux règles de sécurité incendie et au fait que la tête de tuyau ne doit pas tomber dans la zone dite de reflux éolien. Si ces règles sont négligées, la cheminée deviendra alors extrêmement dépendante de la présence, de la direction et de la vitesse du vent et, dans certains cas, le tirage naturel qui la traverse peut complètement disparaître ou changer à l'opposé ("pointe").
Ces règles ne sont pas si compliquées et, en les tenant compte, il est déjà possible de définir avec précision la hauteur de la cheminée.
prix cheminée
conduit de fumée
Règles de base pour l'emplacement des cheminées par rapport aux éléments du toit du bâtiment
Tout d'abord, quel que soit le toit traversé par la cheminée, la coupe du tuyau ne peut pas être à moins de 500 mm du toit (en pente ou plat - peu importe).
Sur les toits d'une configuration complexe, ou sur un toit adjacent à un mur ou à un autre objet (par exemple, le bord du toit d'un autre bâtiment, extension, etc.), la zone de remous de vent est déterminée par une ligne tracée à un angle de 45 degrés. La coupe de la cheminée doit être supérieure d'au moins 500 mm à cette ligne conditionnelle (dans la figure supérieure - le fragment de gauche) ..
Soit dit en passant, la même règle s'applique également lorsqu'il y a un grand bâtiment tiers à côté de la maison. objet - un bâtiment ou même un arbre
La figure ci-dessous montre comment le traçage graphique est effectué dans ce cas.
Une zone de support de vent dense peut également être créée par de grands arbres près de la maison.
Sur un toit en pente, la hauteur de la section de tuyau dépassant du toit dépend de la distance au faîtage (fragment de gauche du schéma supérieur).
- Un tuyau situé à une distance maximale de 1500 mm du faîtage doit dépasser celui-ci d'au moins 500 mm avec son bord.
- Lors du démontage de 1500 à 3000 mm, le bord supérieur du tuyau ne doit pas être inférieur au niveau du faîtage.
- Si la distance au faîte est supérieure à 3000 mm, l'emplacement minimum autorisé de la coupe du tuyau est déterminé par la ligne passant par le haut du faîte, tracée à un angle de -10 degrés par rapport à l'horizontale.
Pour réduire la dépendance de la traction au vent, des capuchons spéciaux, des déflecteurs, des girouettes sont utilisés. Dans certains cas, l'utilisation d'un pare-étincelles est également requise - cela est particulièrement vrai pour les appareils à combustible solide.
Il reste à s'asseoir sur le dessin de votre maison (existante ou en projet), à déterminer l'emplacement du tuyau puis à s'arrêter enfin à certaines de ses hauteurs - à partir de 5 mètres ou plus.
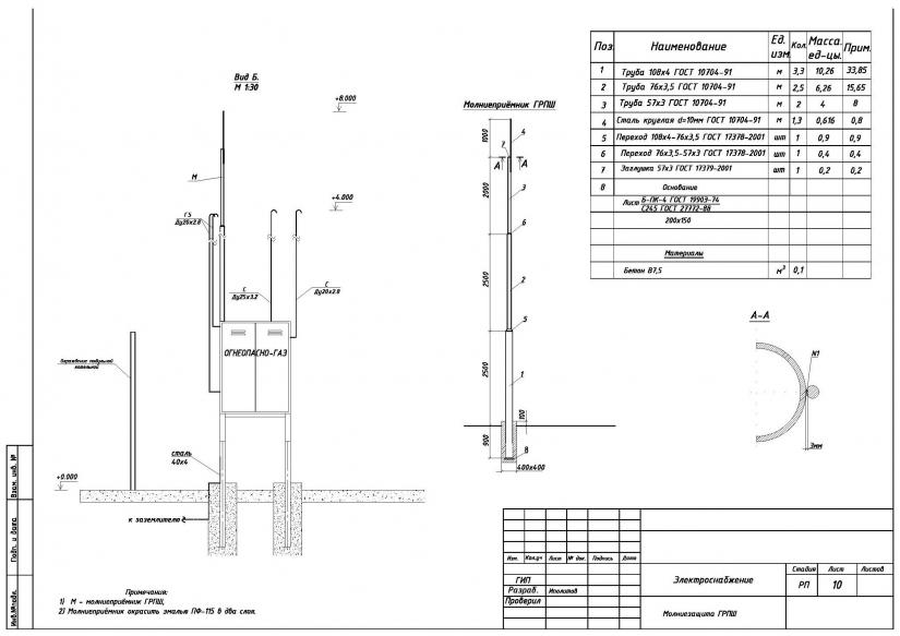
Principes d'installation et d'installation des paratonnerres
Avant de procéder à l'installation d'un paratonnerre pour une cheminée, il est nécessaire de se familiariser avec toutes les règles et recommandations. La mise à la terre ne deviendra effective que si vous suivez parfaitement toutes les recommandations de protège-cheminée. Vous devrez faire tout votre possible pour assurer le fonctionnement sécuritaire de la cheminée. Alors la foudre ne pourra pas briser son intégrité.

Pour vous en assurer, vous devez respecter les recommandations suivantes :
- Le placement des paratonnerres autour du tuyau doit être effectué dans l'ordre de symétrie. Dans ce cas, vous devrez tenir compte du fait que l'un des paratonnerres doit être dirigé vers la "rose des vents".
- Si la cheminée ne dépasse pas 30 mètres, il est nécessaire de l'équiper de trois paratonnerres. Si le tuyau dépasse cette hauteur, un autre paratonnerre doit être ajouté.
- Plusieurs paratonnerres au sommet du tuyau doivent être équipés d'un anneau de cuivre spécial. Il doit être fixé à la maçonnerie à l'aide de plaques de bronze pré-préparées. Les fixations en bronze doivent être immergées dans la maçonnerie de 15 centimètres.
- À l'aide de raccords verticaux, vous devrez créer des branches à partir du cercle de cuivre. Entre eux, il devrait y avoir une distance de 120 centimètres.
- La longueur des tiges avec la dissolution du faisceau doit être d'au moins trois mètres.
- Chaque tige doit avoir un fil aux extrémités.
- Toutes les tiges qui sont sur la cheminée doivent également être combinées.
- Tous les paratonnerres doivent être reliés à la nappe phréatique externe.
- La plaque centrale de votre conception doit être placée au centre de la piscine souterraine.
Il s'agit de l'option de mise à la terre la plus courante, qui aide à protéger de manière fiable la structure de protection contre la foudre de la cheminée. Ce type de mise à la terre est utilisé dans de nombreuses grandes entreprises. Voir également, les caractéristiques de la foudre et de la protection contre la foudre.
Mesures de sécurité nécessaires : protection contre la foudre de la chaufferie
Pour toutes les structures non métalliques, une protection contre la foudre doit être présente. Des paratonnerres métalliques sont insérés dans les tuyaux et mis à la terre avec un conducteur de descente - une barre en acier d'un diamètre de 1,2 mm, qui est fixée à la paroi du tuyau à l'aide de supports. La mise à la terre est complétée par une broche métallique enfoncée dans le sol.

Selon les instructions d'installation des paratonnerres pour les chaufferies, leur nombre dépend de la longueur de la cheminée. Pour une structure de 15 à 50 mètres, une tige suffira.Des conduites plus hautes jusqu'à 150 mètres nécessitent l'installation de paratonnerres de 2 mètres de haut. Plus de 150 mètres - au moins 3 conducteurs de descente.
La structure métallique agit comme un collecteur de courant naturel et n'a pas besoin de protection.
Calcul d'une cheminée pour une chaufferie
L'opérabilité du système dépend directement de la manière dont la conception des cheminées des chaufferies a été réalisée, qui comprend les actions suivantes:
- Analyse de construction ;
- Calcul aérodynamique de la canalisation et du viaduc gaz situés dans la chaufferie ;
- Sélection des dimensions optimales du tuyau nécessaires à son fonctionnement ;
- Calcul de la vitesse de déplacement des gaz dans le bâtiment et comparaison des résultats obtenus avec les normes ;
- Calcul du tirage naturel dans la cheminée ;
- Effectuer des calculs qui déterminent la résistance et la durabilité de la structure ;
- Calcul des caractéristiques thermiques ;
- Choix du type et de la méthode de fixation du tuyau ;
- Affichage du futur design sur le dessin;
- Elaboration d'un budget.

Le calcul des caractéristiques aérodynamiques permet de sélectionner la hauteur et le diamètre optimaux du tuyau requis pour le fonctionnement du système. De plus, au stade de la conception, il est nécessaire de prendre en compte l'équipement qui sera utilisé dans la chaufferie - cela détermine le volume et la nature du mouvement des gaz qui, si le calcul est incorrect, peuvent détruire la structure créée.

Cependant, un calcul de tirage est nécessaire dans tous les cas: l'équipement de la chaudière émet beaucoup de substances nocives dans l'atmosphère, par conséquent, avant d'installer la cheminée de la chaufferie, une justification environnementale devra être présentée.
Sur la base des données obtenues, une tâche technique est établie, selon laquelle les conduites de gaz sont connectées au tuyau et un dessin de la cheminée de la chaufferie est créé. Les termes de référence affichent également des informations sur la fondation de la structure et son ancrage. Pour les tuyaux de tailles non standard, il sera nécessaire de développer en plus un passeport individuel.
Conception de structures

Dessin de cheminée
Etapes de calculs
Les cheminées industrielles des chaufferies nécessitent une conception en plusieurs étapes.
Ce processus comprend les éléments suivants.
- Détermination du type de structure.
- Calculs aérodynamiques de la canalisation elle-même, ainsi que du trajet du gaz dans la chaufferie.
- Trouver la hauteur optimale de la structure.
- Détermination du diamètre du tuyau.
- Calcul de la vitesse des gaz dans la structure conçue et sa comparaison avec des valeurs acceptables.
- Détermination de l'auto-traction que le tuyau aura.
- Calcul de la structure pour la résistance et la stabilité, suivi de la préparation des termes de référence pour sa fondation.
- Calcul d'ingénierie thermique de la structure.
- Détermination de la méthode et du type de fixation des tuyaux.
- Création de plans de construction.
- Elaboration d'un budget.
Pourquoi les calculs sont nécessaires
Des calculs aérodynamiques sont nécessaires pour déterminer la hauteur et le diamètre que doit avoir une cheminée de chaufferie pour assurer son bon fonctionnement.
Cette partie du projet de cheminée industrielle est déterminée par la capacité des chaudières individuelles ou de l'ensemble de l'équipement de la chaudière dans son ensemble, pour le passage d'une quantité donnée de gaz de combustion des unités à une certaine température.
Dans ce dernier cas, ce paramètre est davantage nécessaire à la justification environnementale, afin de prendre en compte la dispersion des substances nocives.Après avoir calculé la section et la hauteur de la cheminée de la chaufferie, une nouvelle étape du projet de cheminée industrielle suit.
ce préparation des termes de référence pour y raccorder les conduits de gaz des équipements de chaudière et développer ses dessins.
L'ensemble de cette documentation permet de créer des termes de référence pour les projets de la fondation du tuyau, de sa protection contre la foudre et de la mise à la terre. Si une structure non standard est installée, un passeport individuel pour celle-ci, ainsi qu'un manuel d'instructions, sont développés en parallèle.
Types de construction
Tuyau autoportant sans cadre
À l'heure actuelle, les cheminées pour chaudières peuvent avoir les conceptions suivantes.
- Les colonnes de cheminée, en fait, sont des structures autonomes indépendantes.
La structure de support d'un tel tuyau est une coque en acier à haute teneur en carbone et est fixée au panier d'ancrage, coulé dans la fondation. - Les cheminées de ferme des chaufferies industrielles sont fixées sur une ferme autoportante solide et fiable. Celui-ci, à son tour, est fixé au panier d'ancrage, versé dans la fondation.
- Les structures de façade et de façade sont fixées au cadre du mur du bâtiment à l'aide de supports muraux. Une telle conception transfère les charges de vent à la façade grâce à des éléments spéciaux d'isolation des vibrations. Le tuyau près de la façade a en outre sa propre fondation inférieure, lui transférant la charge de poids.
- Un conduit de fumée autoportant sans cadre pour chaufferie est placé sur le toit du bâtiment et fixé à l'intérieur.
- Une structure de mât haubané est une structure autoportante fixée sur un panier d'ancrage, qui est coulé dans la fondation. Le conduit de fumée d'un tel tuyau est fixé avec des colliers à la colonne.
- Dans la chaufferie, la cheminée peut être à un ou plusieurs fûts.
Documents requis
Code de documentation normative et technique des cheminées
La conception, la fabrication et la construction des cheminées doivent être réalisées conformément à la documentation réglementaire et technique existante.
- Le calcul de la hauteur de la structure est effectué selon l'OND n° 86.
- Détermination des charges de vent - selon SNiP n ° 2.01.07-85.
- La résistance structurelle est calculée selon le SNiP n° II-23-81.
- La conception des fondations est réalisée conformément aux SNiP n ° 2.03.01-84 et 2.02.01-83.
- Si une cheminée est construite pour une chaudière à gaz, le SNiP n° II-35-76 "Installations de chaudière" doit être utilisé.
- Lorsqu'ils utilisent un analogue électrique, ils sont guidés par le SNiP n ° 11-01-03 "Boîtiers, coques et boîtiers pour l'installation d'équipements électriques".
- Dans la fabrication d'un tuyau en béton, le SNiP n ° 2.03.01-84 "Béton armé et structures en béton" est utilisé.
- La construction d'un analogue en acier nécessite le respect de la SP n ° 53-101-98 "Fabrication et contrôle de la qualité des structures en acier".
- De plus, GOST 23118-99 "Structures de construction en acier" est utilisé.
Il convient de rappeler que, quelle que soit la conception de la cheminée d'une chaudière à gaz, seuls des calculs précis, une fabrication compétente et une installation appropriée lui permettront de fonctionner pendant une longue période.
Types et conceptions
Comme mentionné ci-dessus, les tuyaux des cheminées de chaudière sont fabriqués à partir de différents matériaux. Tuyaux en brique ou béton armé ont une solution de conception commune. Mais l'acier - diffère en plusieurs types.

Types de conceptions de cheminée:
- Colonne, classique. Le type le plus populaire. C'est une colonne en acier avec une base coulée dans la fondation.
- Amélioré avec des fermes.Sont utilisés pour les grandes chaufferies industrielles et les centrales de production combinée de chaleur et d'électricité. Ici la ferme - une structure métallique de tiges longitudinales et transversales - est solidaire de la nacelle d'ancrage et supporte la cheminée de grand diamètre et de masse en position verticale ;
- Sans cadre (simplifié). Un exemple d'une telle conception peut être trouvé dans toute maison privée équipée d'un poêle ou d'une chaudière. Cette option est facile à assembler et peu coûteuse, elle se compose de la cheminée elle-même et de l'élément de cheminée qui la relie au foyer ou au poêle.
- Structures de type mât. Ils diffèrent par la plus grande hauteur et sont généralement installés dans la ville. Le tronc de la cheminée est fixé au cadre - une colonne renforcée de vergetures métalliques;
- Embarqué. Ils sont réalisés dans le mur de la maison, le plus souvent du côté de la façade. Le rôle de la charpente et de la fondation est assuré par le mur du bâtiment. La cheminée est fixée aux cadres avec des supports spéciaux.
Comment est la cheminée
Si la conception de la cheminée ne répond pas aux exigences techniques, la suie, les cendres, la fumée, la suie se déposent sur les parois du canal, l'obstruent et rendent difficile l'évacuation des gaz. Cette situation ne peut être évitée qu'en respectant toutes les règles et réglementations relatives à l'installation de cheminées industrielles.
Les principaux éléments d'une chaufferie avec un tuyau en brique:
- Fondation (sous-sol);
- Tronc;
- Paratonnerre;
- Garniture.

La pose du tronc s'effectue par étapes, par 5-7m. L'épaisseur de la paroi diminue de bas en haut. Son minimum est de 180 mm. Les tuyaux ont la forme d'un cône (pour donner de la stabilité). Le fond de la structure est tapissé de briques réfractaires de l'intérieur. Un espace est laissé entre le revêtement et le tuyau pour compenser la dilatation thermique du matériau.
La hauteur totale des cheminées en brique est de 30 à 70 m, diamètre - à partir de 0,6 m.
Éléments d'une chaufferie avec un tuyau métallique:
- Tronc;
- Vergetures;
- Poêle en fonte;
- Fondation.

Les canalisations en acier pour chaufferies sont réalisées en tôle d'acier, de 3 à 15 mm d'épaisseur. Des sections séparées du tuyau sont reliées par soudage. La plaque en fonte est fixée à la fondation, le canon y est monté. Pour assurer la stabilité de la structure à une hauteur égale aux 2/3 de la hauteur de la cheminée commune, des vergetures sont installées. L'étirement est une corde en acier, faite de fil d'un diamètre de 5-7 mm.
La hauteur du tuyau métallique ne dépasse pas 30 à 40 m. Diamètre - 0,4-1 m. Le principal avantage est la légèreté, la facilité d'installation et de démontage et le faible prix des éléments structurels. Le principal inconvénient de l'acier est une durée de vie très courte (généralement jusqu'à 10-25 ans).
En plus du métal et de la brique, les canaux de fumée d'une chaufferie peuvent être en béton armé. Les tuyaux en béton armé sont solides, mais ont une faible résistance à la corrosion, par conséquent, ils sont fabriqués avec la pose de la finition intérieure, qui protège les parois intérieures du canal des gaz agressifs.
Hauteur au dessus du patin
Pour que l'appareil de chauffage fonctionne sans problème, l'effet de la pression du vent doit être pris en compte lors de l'installation du tuyau de cheminée. Ce que c'est? Les vents, la structure du toit et son chauffage inégal provoquent des flux d'air turbulents sur le bâtiment. Ces turbulences d'air sont capables de « renverser » la poussée, voire de provoquer un contre-courant d'air. Pour éviter cela, la hauteur du tuyau doit être d'au moins 500 mm du faîte.

Outre l'emplacement de la crête, il faut également tenir compte des structures élevées sur le toit ou à côté du bâtiment, et des arbres poussant près de la maison.
Si la distance entre le tuyau et la crête est de trois mètres, il est permis de faire en sorte que la hauteur de la cheminée soit au ras de la crête.Si la distance est supérieure à trois mètres, la hauteur peut être déterminée à l'aide du schéma présenté sur la photo.
Évitez les virages et les sections horizontales. Lors de la conception de l'emplacement de la cheminée, vous ne devez pas faire plus de trois coudes de virages et éviter également les sections horizontales de plus d'un mètre. Si une section horizontale ne peut être évitée, le canal doit être posé avec au moins une légère pente.
Fonctionnement des cheminées
Une conception appropriée et une installation compétente des tuyaux - et la chaufferie fonctionne comme sur des roulettes. Mais choisir une cheminée et l'installer avec une haute qualité n'est que la moitié de la bataille. Que la cheminée soit en brique, en céramique ou en éléments modulaires en acier, il est nécessaire de la nettoyer régulièrement, en éliminant la suie qui s'est déposée sur les murs.
Avec une utilisation régulière de l'appareil, un nettoyage préventif doit être effectué au moins deux fois par an - au changement de saison. Les cheminées en brique sont plus sujettes à l'accumulation de suie en raison de la surface intérieure rugueuse et de la section rectangulaire du conduit. Pour le nettoyage et la réparation, il est nécessaire de prévoir des trappes de nettoyage.
Si la chaudière fonctionne sur carburant liquide ou gazeux, la température des fumées peut ne pas être assez élevée et de la condensation se forme. Pour l'enlever, il faut prévoir l'installation d'un piège à condensats dans le conduit d'évacuation des fumées.
L'appareil de la cheminée selon toutes les règles et le bon fonctionnement contribue à la chaleur dans la maison et à la sécurité incendie.
Entretien et nettoyage
Pendant le fonctionnement des chaufferies, les cheminées s'usent et nécessitent donc constamment un entretien et des réparations.Ces travaux sont effectués par des travailleurs ayant des compétences et des connaissances particulières.
La partie la plus exposée de la cheminée est la tête, car il est sous pression de l'intérieur, influencé par la température et l'environnement. En cas de destruction, il est possible d'effectuer des réparations ponctuelles de la structure en brique ou en béton. Avec de forts dégâts, vous devrez les reconstruire.
Lorsque des fissures apparaissent sur les cheminées en brique et en béton, les fissures et les crevasses sont scellées avec des mortiers spéciaux, les briques détruites sont remplacées par de nouvelles. En cas d'endommagement des sections métalliques de la cheminée, elles sont remplacées.
Le revêtement intérieur protecteur, appelé doublure, est le plus susceptible d'être détruit. Il nécessite une attention constante, des inspections périodiques et des diagnostics. Si une violation de l'intégrité est détectée, les ouvriers procèdent au jointoiement des zones endommagées. Si les réparations ponctuelles ne parviennent pas à sauver la situation, un remplacement complet du revêtement est effectué.
Une autre tâche des spécialistes est de réparer les bagues de serrage pour éviter qu'elles ne se fissurent. S'il n'est pas possible de rétablir la fonctionnalité de l'ancien élément, des anneaux supplémentaires sont installés.
L'entretien comprend la peinture de la surface des cheminées. Un tel travail implique l'utilisation de la méthode d'alpinisme industriel, tk. il est le plus efficace en termes d'utilisation de mécanismes et d'équipements supplémentaires.
Car non seulement la fumée et les gaz traversent le tuyau de cheminée, mais aussi les cendres avec de la suie, pendant le fonctionnement, ces éléments sont superposés sur les murs, en conséquence, la perméabilité sera réduite ou disparaîtra complètement. Pour éviter une telle situation, le tuyau intérieur est périodiquement nettoyé par une équipe de spécialistes.
Le nettoyage est mécanique et chimique.Dans le premier cas, la procédure est utilisée si le tuyau n'est pas trop haut et que l'équipement est capable de faire face au blocage. Cependant, le nettoyage par des moyens chimiques est le plus demandé, car. cela vous permet d'atteindre facilement n'importe quelle zone à l'intérieur de la structure et d'éviter les dommages mécaniques à la surface du tuyau.
La partie la plus difficile et la plus coûteuse de l'entretien est le démontage de la cheminée de la chaufferie en raison de la fin de sa durée de vie ou de l'impossibilité de réparer les dommages par des réparations majeures.
Exigences de cheminée
La cheminée élimine et disperse les produits de combustion nocifs du carburant dans l'atmosphère
Il est important de le concevoir et de le construire correctement. Sinon, les parois intérieures seront obstruées par de la suie, des cendres, de la suie, bloquant le canal de sortie et empêchant l'élimination des masses enfumées, rendant impossible le fonctionnement de la chaufferie.
Il existe des normes techniques qui réglementent clairement les paramètres des cheminées:
- Les structures en brique doivent être réalisées sous la forme d'un cône d'une hauteur de 30 à 70 m, d'un diamètre de 60 cm et d'une épaisseur de paroi minimale de 180 mm. Dans la partie inférieure, des conduits de gaz avec révisions pour inspection doivent être équipés.
- Les tuyaux métalliques utilisés pour l'installation des cheminées sont en tôle d'acier de 3 à 15 mm. La connexion des éléments individuels est réalisée par soudage. La hauteur de la cheminée ne doit pas dépasser 40 m, le diamètre peut aller de 40 cm à 1 m.
- Pour assurer la stabilité des structures métalliques, des supports ou des ancrages sont installés à une distance de 2/3 de la hauteur du tuyau, auquel des extensions sont fixées.
- La hauteur de la cheminée (quel que soit le matériau de fabrication) doit être de 5 m au-dessus du toit des bâtiments situés dans un rayon de 25 m.
Les dimensions de la structure sont calculées en tenant compte du volume du four et des conditions climatiques, de sorte que la traction soit assurée à n'importe quelle température de l'air.
Ce qui vaut la peine d'être connu
Les calculs ci-dessus ne seront corrects que s'il n'y a pas de très grands arbres poussant près de la maison et qu'aucun grand bâtiment n'est situé. Dans ce cas, la cheminée d'une hauteur inférieure à 10,5 m peut tomber dans la zone dite du "remous éolien".
Pour éviter que cela ne se produise, le tuyau de sortie de la chaufferie d'une maison privée située dans un tel endroit doit être augmenté. Dans le même temps, afin de choisir l'option optimale pour la hauteur du tuyau, vous devez:
- trouver le point le plus élevé d'un grand bâtiment à proximité ;
- tracez une ligne conditionnelle vers le bas à un angle de 45 ° par rapport au sol lui-même.
En définitive, le bord supérieur de la cheminée assemblée doit se situer au-dessus de la ligne ainsi trouvée. Dans tous les cas, un bâtiment de campagne doit être conçu de manière à ce que le tuyau d'évacuation des gaz d'échappement de la chaufferie ne soit pas situé à moins de deux mètres des grands arbres et des bâtiments voisins.
Ils augmentent généralement la hauteur de la cheminée même si le toit de la maison est recouvert d'un matériau combustible. Dans de tels bâtiments, le tuyau de sortie est le plus souvent augmenté d'un demi-mètre supplémentaire.
Emplacement de la cheminée et direction du vent : comment éviter les turbulences
Selon tous les codes et règlements du bâtiment, la cheminée doit s'élever au-dessus du toit à une certaine distance. Cela est nécessaire pour que l'air sur les parties saillantes du toit ne provoque pas de refoulement dû aux turbulences.
Le tirage inversé peut être vu de ses propres yeux sous forme de fumée, qui se déverse de la cheminée directement dans la pièce.Mais la hauteur supplémentaire de la cheminée n'est pas non plus nécessaire, sinon le tirage deviendra trop fort et vous n'attendrez pas la chaleur d'une telle cheminée: le bois de chauffage sera incinéré comme une allumette, n'ayant pas le temps de donner de la chaleur.
C'est pourquoi il est si important de calculer la hauteur de la cheminée le plus précisément possible, en tenant compte notamment de la direction des vents agissant sur le sol :
Si le tuyau est situé trop près d'arbres denses ou d'un mur élevé, il doit être construit avec de l'amiante-ciment ou un tuyau en acier.
Dans cette vidéo, vous trouverez également de précieux conseils sur l'appareil cheminée et résoudre les problèmes de hauteur :
Caractéristiques de montage
- L'installation du tuyau de la chaudière commence par le bas (fondation);
- Pour une chaudière à gaz, d'un point de vue économique, l'utilisation de tuyaux en acier est la plus avantageuse. Mais il convient de rappeler que la hauteur maximale d'un tuyau métallique est de 30 m ;
- Les structures hautes sont d'excellents conducteurs d'électricité. La protection contre la foudre est réalisée conformément aux exigences du RD-34.21.122-87 ;
- La conception du paratonnerre est déterminée en fonction des caractéristiques de conception du système d'évacuation des fumées. Pour une cheminée non métallique, la longueur du paratonnerre est généralement de 1m. Pour chaque 50 m de la structure, 1 paratonnerre est installé ;
- Les cheminées métalliques ne nécessitent pas de protection particulière - elles agissent elles-mêmes comme un collecteur de courant;
- Tous les éléments isolants doivent être mis à la terre.









































