- Types de navires
- Matière et volume
- usage général
- 7 conseils pour utiliser le gaz
- 3. Ne prenez pas le tuyau
- 4. Regardez autour de l'équipement
- 5. Ne laissez pas le poêle sans surveillance
- 7. Vous ne pouvez pas utiliser le gaz à d'autres fins
- EXIGENCES SANITAIRES AVANT DE COMMENCER LE TRAVAIL
- Que faire en cas de fuite de gaz ?
- Ce qu'il ne faut pas faire lors de l'utilisation du poêle
- Lié:
- Règles de sélection
- Précautions à prendre avec la bouteille d'oxygène
- Règles de placement de la chaudière
- Exigences générales
- Comment allumer un feu
- Cylindres en acier modernes
- Règles requises
- Comment allumer un feu
- Dispositif de réservoir de gaz
- Symptômes d'intoxication au monoxyde de carbone
- Ravitaillement
Types de navires
Les bouteilles de gaz peuvent être subdivisées en fonction de trois critères principaux.
Matière et volume
Les récipients métalliques sont en acier, leur capacité peut varier de 5 à 50 litres. Un récipient vide pèse de 4 à 22 kilogrammes. Les petits conteneurs sont installés à l'intérieur, tandis que les plus grands sont installés à l'extérieur. Mais ensuite, ils doivent être protégés de la lumière directe du soleil.
Ces équipements à gaz sont classés comme explosifs. Il ne doit pas être exposé à des températures élevées, à des chocs ou à des secousses.
Article connexe : Comment refroidit un réfrigérateur à gaz
Les bouteilles composites sont des réservoirs de nouvelle génération.Ils sont totalement sûrs pour le transport et le stockage des gaz liquéfiés. Ceci est possible grâce à l'équipement innovant avec une soupape de surpression spéciale et un lien fusible. Ces navires n'ont pas peur du feu et de toute autre influence extérieure. Leur poids est bien inférieur à celui de leurs homologues en acier et la vue est beaucoup plus présentable. Design moderne, corps transparent, vous pouvez facilement contrôler la quantité de gaz dans la bouteille. Le matériau polymère n'est pas exposé à la corrosion et vous servira pendant plus de 20 ans.
usage général
Selon le lieu d'installation et le but, la classification des bouteilles de gaz est divisée en plusieurs groupes :
- Poche
7 conseils pour utiliser le gaz
2. Prévoir une ventilation dans la cuisine
Ne bloquez pas les trous de ventilation. Aérez constamment la cuisine, même s'il fait moins 20 à l'extérieur, dans ce cas, sortez un peu de la pièce.
3. Ne prenez pas le tuyau
Le pipeline doit rester libre. En aucun cas, vous ne devez y attacher quelque chose, par exemple une corde, ou suspendre des vêtements mouillés à un tuyau. Dans ce cas, l'étanchéité des raccords filetés est violée et une fuite de gaz peut se produire, ce qui entraînera une explosion.
4. Regardez autour de l'équipement
L'article continuera après la publicité
Les experts recommandent également fortement de vérifier l'étanchéité des tuyaux et des filetages de tuyaux à l'aide d'eau savonneuse. Appliquez-le sur l'éponge et passez doucement sur l'équipement. Des bulles se formeront là où la fuite s'est produite.
5. Ne laissez pas le poêle sans surveillance
Ne laissez jamais une cuisinière à gaz sans surveillance. Cela devrait fonctionner pendant un maximum de quelques heures, et en même temps, il est recommandé d'allumer seulement deux brûleurs.S'il arrivait que vous cuisiniez longtemps, assurez-vous de ventiler la cuisine - au moins 15 minutes en hiver et environ une demi-heure en été.
Une autre règle obligatoire est que chaque fois que vous partez quelque part, assurez-vous de couper l'alimentation en gaz de l'appareil.
Il est important de ne pas confondre les robinets dont vous avez besoin avec les robinets sur les colonnes montantes, sinon vos voisins risquent de perdre du carburant.
7. Vous ne pouvez pas utiliser le gaz à d'autres fins
N'allumez pas la cuisinière si vous voulez vous réchauffer ou, par exemple, vous sécher les cheveux. Le feu réduit la quantité d'oxygène, ce qui est extrêmement dangereux pour la santé et la vie, surtout si vous avez installé un vieux poêle. Dans ce cas, une intoxication peut survenir, elle se traduit par des nausées et des maux de tête. De plus, dans la pièce où l'appareil à gaz est installé, il vaut mieux ne pas dormir.
EXIGENCES SANITAIRES AVANT DE COMMENCER LE TRAVAIL
2.1. Mettez des vêtements spéciaux en bon état, des chaussures, préparez l'équipement de protection individuelle (EPI) nécessaire. Vérifiez qu'il n'y a pas d'objets étrangers dans les poches. Les poignets des manches et des pantalons doivent être boutonnés, les cheveux sont enlevés sous la coiffe. Préparez les équipements de protection individuelle, assurez-vous qu'ils sont en bon état. 2.2. Retirez les alliances et autres bijoux. Les chaussures doivent être fermées. Il est interdit de porter des sandales, tongs et autres chaussures similaires. 2.3. Obtenir une tâche du superviseur immédiat, au besoin, être instruit. 2.4. Inspectez le lieu de travail, retirez tout ce qui peut interférer avec l'exécution du travail ou créer un danger supplémentaire. 2.5. Vérifier l'éclairage du poste de travail. 2.6. Inspectez et assurez-vous que les instruments de mesure des bouteilles de gaz sont en bon état, vérifiez le fonctionnement de la ventilation. 2.7. Préparez une solution savonneuse pour vérifier les fuites de gaz. 2.8.Vérifiez la stabilité des cylindres et l'exactitude de leur fixation dans les cellules. 2.9. Vérifiez l'état et l'intégralité du matériel d'extinction primaire, la composition de la trousse de secours. 2.10. Il est interdit de commencer à travailler en cas des violations suivantes: - violation de l'intégrité du cylindre (fissures, bosses), ainsi qu'en l'absence marques sur la bouteille de gaz avec la date de son essai ; - dysfonctionnement de la boîte de vitesses (l'écrou-raccord est desserré, le carter de la boîte de vitesses est endommagé) ; - dysfonctionnement du manomètre (absence de tampon sur le test annuel, bris de glace, dommages à la carrosserie, immobilité de la flèche lors de l'alimentation en gaz du détendeur) ; - éclairage insuffisant du poste de travail ; - manque de ventilation par aspiration ; la présence de matières et substances inflammables et explosives dans la zone de travail ; - dysfonctionnement des outils et des montages. 2.11. Signalez tous les dysfonctionnements détectés au maître et ne commencez à travailler qu'après leur élimination.
Que faire en cas de fuite de gaz ?
La formation d'un mélange gaz-air dans une pièce constitue un risque d'incendie et d'explosion. Et conduit souvent à de tristes conséquences. Par conséquent, lorsqu'une fuite est détectée, des mesures appropriées doivent être prises.
La présence de danger est déterminée par l'odeur caractéristique du carburant "bleu" (des substances spéciales - odorants - avec une forte odeur désagréable sont ajoutées au gaz, de sorte qu'il est plus facile pour les utilisateurs de remarquer une fuite). De plus, pour des raisons de sécurité, vous pouvez installer un dispositif spécial qui détecte les fuites de gaz - un capteur.
Il est permis d'utiliser uniquement des appareils à gaz utilisables. Quels consommateurs sont tenus de garder propres. Et cette règle s'applique aux principaux pour une raison.La raison en est que les graisses, la suie et les autres produits de combustion qui se sont déposés sur les surfaces des équipements, des cheminées et des hottes provoquent souvent des incendies.
Une procédure efficace pour prévenir les incendies et les explosions consiste à vérifier régulièrement la présence de courants d'air dans le système d'évacuation des fumées. Une telle opération doit être effectuée avant chaque mise sous tension d'un équipement à gaz, notamment lorsque les conditions climatiques sont difficiles. Puisqu'une rafale normale de vent fort peut créer une poussée inverse et des étincelles brûlantes voleront dans la pièce
Les fuites se produisent le plus souvent au niveau des raccordements de distribution de gaz, ainsi que des robinets.
Après avoir identifié l'odeur de carburant, il est nécessaire d'effectuer un certain nombre d'actions, à savoir:
Fermez les robinets des appareils à gaz (s'ils sont ouverts).
Organiser la ventilation de la pièce. Il s'agit de l'ouverture des fenêtres, des portes pour assurer l'échange d'air. Dans le même temps, il est interdit d'allumer les hottes électriques, d'utiliser d'autres appareils électriques, briquets, luminaires.
Quittez la zone où la fuite est détectée
Mais, si d'autres personnes sont présentes dans la zone de danger, il est alors nécessaire de les avertir et de les avertir de la nécessité de prendre des précautions.
Organiser l'évacuation si nécessaire. Il n'a pas besoin d'utiliser des appareils électriques (par exemple, des cloches, des téléphones)
Autrement dit, pour réveiller les locataires d'un appartement voisin, il vous suffit de frapper et non d'appuyer sur le bouton d'appel.
Prévenez les services de garde du Gorgaz en appelant le 104 (04). Mais il ne faut pas oublier que l'appel ne peut être passé que dans un endroit sûr, ce qui n'est pas le cas d'une pièce saturée de gaz.
Les employés des services spéciaux peuvent arriver pour éliminer la fuite à tout moment de la journée.Et ils sont obligés de les laisser entrer dans le bâtiment nécessaire, les locaux.
Les consommateurs de gaz essaient souvent de sécher les choses sur des brûleurs en feu. Et le réseau regorge de recommandations sur la manière de sécher rapidement les vêtements avec du gaz et des hottes, de fabriquer un sèche-linge pour la cuisinière, etc. Mais il est interdit d'utiliser des appareils à gaz à d'autres fins - c'est l'une des principales causes d'incendies
Après avoir identifié une fuite et/ou constaté un dysfonctionnement pouvant entraîner une fuite ou ayant déjà entraîné une fuite, il est impératif d'appeler le service gaz. En plus de prendre d'autres mesures nécessaires. Sinon, vous pouvez payer une amende d'un montant de 1 à 2 000 roubles (conformément à l'article 9.23 du Code des infractions administratives de la Fédération de Russie). Et c'est si tout se passait sans conséquences et qu'il n'y avait aucune menace pour la vie des citoyens, et que l'erreur était commise pour la première fois.
Les mesures nécessaires doivent être prises quel que soit l'endroit où l'odeur caractéristique du carburant est détectée - à l'intérieur, à l'extérieur, dans d'autres endroits. Autrement dit, la procédure est la même pour toutes les situations.
Lorsque vous détectez l'odeur de gaz, vous n'avez pas besoin de vous rassurer en pensant qu'il n'est pas fort. Étant donné que des explosions avec une éventuelle inflammation ultérieure se produisent, juste à une faible concentration de carburant "bleu", lorsqu'elle ne dépasse pas 5 à 15% du volume de la pièce. Et à une valeur plus élevée, le carburant brûle tout simplement.
Laisser les appareils à gaz allumés sans surveillance est extrêmement dangereux.
La raison en est qu'un appel téléphonique, une émission de télévision intéressante peut détourner l'attention, ce qui est lourd. Il ne faut que quelques minutes pour que l'eau bouillante remplisse une flamme ou prenne feu dans une poêle à frire.
En cas de mauvais fonctionnement des appareils à gaz, de problèmes de câblage menaçant la formation d'un mélange gaz-air, le propriétaire doit organiser leur réparation et, si nécessaire, leur remplacement.
Si le propriétaire des lieux, le bâtiment y sera absent pendant une longue période, il est nécessaire de contacter le Gorgas (Raygas) pour couper l'alimentation en gaz. Ce qui est l'une des mesures pour prévenir les fuites d'énergie.
Ce qu'il ne faut pas faire lors de l'utilisation du poêle
Ayant une vaste expérience des appareils électroménagers, les consommateurs oublient parfois à la fois les précautions et certaines caractéristiques d'utilisation d'une cuisinière à gaz. Pour que le processus de cuisson soit sans danger pour le propriétaire et les autres, vous devez vous rappeler ce que vous ne pouvez pas faire
- Il n'est pas recommandé d'utiliser des ustensiles de cuisine à fond large sur des brûleurs bas. Dans ce cas, l'effet d'une combustion incomplète du carburant se forme et un empoisonnement au monoxyde de carbone peut se produire.
- La flamme ne doit pas s'échapper de la zone du fond de la batterie de cuisine, car cela entraînera une augmentation inutile de la consommation de carburant et l'apparition de suie, ce qui ne fera qu'augmenter le temps de cuisson.
- Si le diamètre de la batterie de cuisine dépasse la table de cuisson et s'étend au-delà de ses bords, vous devez utiliser un brûleur supplémentaire pour augmenter la hauteur et assurer l'alimentation en air.
Lié:
Conférence sur l'information initiale des consommateurs sur les règles de sécurité ... Les règles sont portées par les propriétaires et les personnes utilisant du gaz
Par conséquent, une place importante dans le système d'utilisation sûre du gaz dans la vie quotidienne est occupée par ce ...
Règles d'utilisation du gaz au quotidien La population utilisant le gaz au quotidien est tenue pour une utilisation en toute sécurité gaz dans l'organisation d'exploitation des installations de gaz, avoir des instructions d'exploitation ...
Règles d'utilisation du gaz dans la vie quotidienne La population utilisant du gaz dans la vie quotidienne est obligée d'être instruite sur l'utilisation sûre du gaz dans l'organisation d'exploitation de l'économie du gaz, d'avoir des instructions d'utilisation ...
Recommandations (règles) pour l'utilisation du gaz dans la vie quotidienne La population utilisant du gaz dans la vie quotidienne est obligée d'être instruite sur l'utilisation sûre du gaz dans l'organisation d'exploitation de l'économie du gaz, d'avoir des instructions d'utilisation ...
Règles d'utilisation du gaz dans les cuisinières à gaz de la vie quotidienne ...
Mémo sur les règles d'utilisation du gaz dans la vie de tous les jours C'est un mélange explosif. En enfreignant les règles d'utilisation d'une cuisinière à gaz, vous exposez
Mémo sur les règles d'utilisation du gaz à la maison Responsabilité de la sécurité ... S'informer sur l'utilisation sûre du gaz dans l'organisation exploitante, avoir des instructions pour l'utilisation des appareils et observer ...
Règles pour une utilisation sûre du gaz dans la vie quotidienneResponsabilité du fonctionnement sûr des équipements utilisant du gaz dans les immeubles d'habitation et les ménages, pour leur entretien ...
Règles d'utilisation du gaz dans la vie quotidienneLes règles sont obligatoires pour les responsables des départements et organisations responsables de l'exploitation sûre des installations de gaz dans les résidences ...
Règles d'utilisation du gaz à domicile approuvées
Par ordre de Rosstroygazifikatsiya, les règles sont obligatoires pour les fonctionnaires des départements et organisations responsables du fonctionnement en toute sécurité des installations de gaz des résidences ...
Mémo sur les règles d'utilisation du gaz dans la vie de tous les jours. Responsabilité de... Citoyens, rappelez-vous ! Le gaz mélangé à l'air est un mélange explosif. En enfreignant les règles d'utilisation d'une cuisinière à gaz, vous exposez ...
Mémo sur les règles d'utilisation du gaz dans la vie de tous les jours.Responsabilité de... Citoyens, rappelez-vous ! Le gaz mélangé à l'air est un mélange explosif. En enfreignant les règles d'utilisation d'une cuisinière à gaz, vous exposez ...
Règles d'utilisation du gaz dans la vie quotidienneLa responsabilité de la qualité de l'entretien et de la réparation des équipements à gaz dans les bâtiments résidentiels incombe à l'exploitation ...
L'administration du conseil du village de Chaadaevsky du district de Gorodishchensky informe ... Bulletin du comité de l'autonomie locale du conseil du village de Chaadaevsky
Règles d'utilisation du gazLes règles sont obligatoires pour les responsables des départements et organisations responsables du fonctionnement en toute sécurité des installations de gaz des résidences ...
Chers propriétaires et locataires de locaux d'habitation, En raison de l'augmentation des cas d'incendies dans des locaux d'habitation et d'explosions de gaz domestique dans toute la Fédération de Russie, nous demandons…
Mode d'emploi, mode d'emploi
Règles de sélection
Règles de sélection de base bouteille de gaz domestique, dans lequel sera versé du propane-butane, est de vérifier son état extérieur et son étiquetage.
Si vous voyez que la bouteille de gaz a l'air "fatiguée", la peinture est fissurée et délavée, vous ne pouvez même pas regarder ses marques. Vous n'avez pas besoin de lui.
Toutes les bouteilles de gaz domestiques ont un certain «passeport technique», qui ressemble à une plaque située dans la zone des vannes. Non seulement la classification de capacité y est indiquée, mais également de nombreux autres paramètres que vous devez prendre en compte.
Les informations portées sur cette plaque doivent être en relief et bien lisibles.
Veuillez noter qu'il n'y a pas de chiffres flous ou de caractères difficiles à voir.
Ce marquage doit contenir les données suivantes : pression de travail et d'épreuve, numéro de série, date de fabrication (dans ce format mm.aa.aa., où les premiers chiffres sont le mois de fabrication, le deuxième - l'année, et le troisième - l'année de la prochaine certification).
De plus, il devrait y avoir des informations sur le poids d'une bouteille vide et pleine. La dernière ligne contient les valeurs suivantes - "R-AA"
La première lettre est le cachet de l'usine ou du point de recertification, et la seconde est l'année jusqu'à laquelle la bouteille est utilisable.
Je tiens à dire que c'est le marquage et l'apparence de la bouteille de gaz qui sont les principaux paramètres lors du choix de celle-ci. Ces éléments doivent faire l'objet d'une attention maximale.

Précautions à prendre avec la bouteille d'oxygène
L'oxygène est une substance hautement explosive
Quel que soit le domaine d'utilisation, il est important d'être extrêmement prudent pour éviter les urgences et les pertes de vie.
Les bouteilles d'oxygène sont installées dans des endroits protégés de l'exposition directe au soleil. Lors du soudage, avant de connecter le conteneur, le fonctionnement de l'écrou-raccord du réducteur et du raccord d'entrée est vérifié. Dans ce cas, en aucun cas les éléments des liaisons avec la bouteille ne doivent être contaminés, notamment par du sable, de la poussière, des huiles, des graisses et des alkylines. Dans le soudage et les travaux industriels liés à la combustion, les bouteilles d'oxygène doivent être distance de 5 mètres ou plus du feu. Il est également recommandé de garder les récipients aussi loin que possible des autres sources de chaleur.
C'est interdit:
- retirez les bouchons du cylindre avec des outils métalliques - cela peut provoquer une étincelle ;
- laisser tomber le cylindre ou permettre des coups dessus ;
- ouvrez ou fermez la vanne avec des mouvements brusques, cela peut enflammer l'oxygène de manière arbitraire ;
- porter la bouteille sur les épaules ou les bras en raison du risque de chute.
Après le soudage, le réducteur doit être retiré du cylindre, la soupape est vissée jusqu'à la butée, puis le capuchon de sécurité est utilisé.
Les bouteilles d'oxygène sont remplies à l'aide de stations de remplissage spéciales. Dans l'industrie, l'oxygène technique est utilisé, en médecine - l'oxygène médical, respectivement. Les établissements médicaux achètent parfois des machines pour faire le plein et extraire l'oxygène de l'air. Lorsque cela n'est pas possible, vous devez contacter des sociétés spécialisées, par exemple ici.
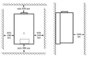
Règles de placement de la chaudière
La superficie de la pièce dans laquelle le chauffage au gaz sera installé doit être d'au moins 7,5 mètres carrés. m. La distance minimale entre le sol et le plafond ne doit pas être inférieure à 2,2 m. Une fenêtre doit être installée dans la pièce par laquelle l'air de la rue entre.
La porte de la chambre doit s'ouvrir vers la rue. Il est inacceptable d'utiliser des interrupteurs dans la chaufferie, ils doivent être installés à l'extérieur.
La pièce dans laquelle l'équipement de la chaudière à gaz sera utilisé doit être équipée d'une ventilation d'alimentation et d'évacuation. Sa performance devrait être de 15 mètres cubes. m d'air par mètre cube. m de gaz consommé.
Lors de l'installation du dispositif de chaudière, il est nécessaire de maintenir une certaine distance entre celui-ci et d'autres objets. Ainsi, les objets en matériaux combustibles doivent mesurer 250 mm ou plus. Pour les éléments en matériaux incombustibles, la distance doit être de 50 mm.
À partir des tuyaux de cheminée, ces distances doivent être respectivement de 400 et 150 mm. Avant d'installer la chaudière à gaz, il est nécessaire de mettre de l'ordre dans la pièce, en particulier, le sol doit être plat sans aucune pente.
De la cheminée aux pièces combustibles - 40 cm, à l'épreuve du feu - 15 cm L'appareil est monté sur un plan parfaitement plat, sans pentes.
Exigences générales
Que le gaz naturel soit utilisé en se connectant à un système de gaz centralisé ou qu'une bouteille soit utilisée, l'approche de fonctionnement est la même.
Il est important de se rappeler que les brûleurs à gaz dégagent non seulement de la chaleur, mais brûlent également activement de l'oxygène dans la pièce où ils sont installés. Pendant le fonctionnement, des produits de combustion sont libérés, dont le plus dangereux est le monoxyde de carbone.
Il existe également un certain nombre d'impuretés nocives (oxydes d'azote, formaldéhydes, dioxyde de soufre et autres) qui peuvent nuire au bien-être et à l'immunité. Ces composants apparaissent dans l'air en cas de combustion incomplète du mélange gazeux, ainsi qu'en cas de mauvaise ventilation de la pièce.
Par conséquent, avant d'acheter une cuisinière à gaz, il convient d'explorer la possibilité d'installer un modèle électrique ou à induction. Bien sûr, ces appareils de chauffage seront plus chers, car le coût de l'électricité dépasse souvent les paiements réguliers pour le gaz. Mais la qualité de vie dans votre propre maison ne vaut guère la peine d'être évaluée en argent.
S'il n'est pas possible de passer à une méthode de cuisson sûre et que vous devez utiliser un équipement à gaz, vous devez respecter les règles importantes suivantes.
Chaque fois après la fin du processus de cuisson, il est nécessaire de fermer le robinet sur le tuyau ou la vanne de la bouteille.
Avant de quitter la maison, vérifiez les robinets du poêle et de la conduite de gaz.En cas d'urgence, cela aidera à bloquer le flux de masse d'air gazeux dans la pièce.
Lors de l'installation dans une maison privée, allouez une pièce sous la cuisine avec une fenêtre afin que, si nécessaire, utilisez une source d'air frais à proximité immédiate du site de combustion du gaz. Dans un appartement avec un aménagement prêt à l'emploi, essayez d'installer le poêle plus près de l'ouverture de la fenêtre ou du cadre de la fenêtre.
Déterminez s'il existe un accès à un puits de ventilation ou à un endroit dans un mur extérieur dans lequel un conduit d'air peut être conduit.
Il est obligatoire d'installer une hotte sur le futur lieu de cuisson, dont la zone chevauchera le périmètre du poêle. Si possible, installez un mécanisme d'écoulement pour la sortie des résidus de combustion (lorsque l'air chaud et les gaz combustibles sont évacués à l'extérieur du boîtier). S'il n'y a pas d'accès à la ventilation et aux murs extérieurs, l'étape minimale de sécurité serait de monter le modèle de recirculation.
Elle pourra assainir l'air grâce à un système de filtre.
En cas d'expériences culinaires infructueuses, lorsque les aliments brûlent et qu'une forte odeur se dégage, simultanément à l'allumage de la hotte, toutes les fenêtres doivent être ouvertes et un courant d'air doit être prévu pour la libre sortie des particules contaminées.
Après l'installation d'un nouveau poêle, il est important de vérifier la qualité et la couleur de la flamme de chaque brûleur. La combustion maximale des impuretés nocives se produit avec une flamme bleue uniforme
Si le feu a une teinte jaune, vous devez couper l'alimentation en gaz et vérifier s'il y a des obstructions ou des blocages sur le chemin du feu. Lorsqu'il n'est pas possible de détecter un problème par vous-même, il est préférable d'appeler les travailleurs du service de gaz pour obtenir des recommandations sur le bon fonctionnement de l'équipement.
Une aide similaire de la part de spécialistes sera nécessaire si vous sentez une odeur de gaz spécifique lorsque les brûleurs ne fonctionnent pas.
Pour une utilisation plus sûre des brûleurs à gaz, il est recommandé de respecter la limite de fonctionnement continu de deux brûleurs pendant trois heures maximum. Si vous envisagez de cuisiner un grand nombre de plats, vous devez prendre au moins une heure de pause avec une ventilation complète de la pièce.
Même si un seul brûleur fonctionne, il n'est pas nécessaire de laisser d'autres casseroles sur la cuisinière. Il empêchera la libre circulation de l'air et retiendra les produits de combustion dans la cuisine.
Comment allumer un feu
Si vous n'avez jamais rencontré de cuisinières à gaz auparavant, la question de savoir comment allumer une cuisinière à gaz peut être très pertinente. Pour ce faire, vous devez suivre un certain algorithme. Tout d'abord, vous devez aérer la pièce. Ensuite, suivez ces étapes étape par étape :
- Ouvrir la vanne sur le tuyau ou la vanne si une bouteille de gaz est utilisée.
- Allumez le brûleur.

Ce processus se produit de différentes manières, selon le type de poêle et la source de feu. Le poêle peut être allumé des manières suivantes :
- d'une source de feu ouverte - allumettes;
- à l'aide d'un briquet électrique ou en silicone ;
- allumage électrique.
Les modèles modernes de cuisinières à gaz sont équipés d'un système d'allumage électrique intégré. Cette fonction peut être affichée sur un bouton séparé ou intégrée au robinet du brûleur. C'est le seul cas où le brûleur peut être allumé en même temps que le robinet du poêle est tourné. Dans d'autres modèles, vous devez d'abord fournir un feu (étincelle), puis ouvrir le robinet du brûleur. Le robinet s'ouvre dans le sens des aiguilles d'une montre avec une légère indentation. Pour plus d'informations sur la façon d'allumer un four à gaz, lisez ici.

La flamme doit être d'une couleur bleue distincte et uniformément répartie autour du brûleur. S'il glisse vers l'intérieur, fermez le robinet et rallumez le brûleur. La hauteur de flamme optimale ne doit pas dépasser 2-2,5 cm et est ajustée en tournant le bouton de la vanne. S'il y a un courant d'air dans la pièce, la flamme aura tendance à se détacher du brûleur, ce qui est dangereux pour la sécurité incendie. Avec un excès d'air, il est nécessaire de fermer la fenêtre. En cas de manque d'air, la couleur de la flamme passera clairement du bleu au jaune et du monoxyde de carbone sera libéré, ce qui est dangereux pour la santé humaine.
Cylindres en acier modernes
Désormais, des bouteilles de gaz en acier soudé de conception moderne d'un volume de 5 à 50 litres sont également produites. Cependant, ils ont presque les mêmes inconvénients que leurs homologues plus âgés.
Les inconvénients incluent les suivants :
- Susceptibilité à la corrosion
- Sensibilité aux changements de température
- Explosivité potentielle
Les bouteilles en acier de cinquante litres de grand volume ne peuvent pas être placées dans la maison. Ils doivent être installés dans des armoires spéciales à l'extérieur dans un endroit protégé de la lumière directe du soleil. Il est permis d'installer des réservoirs de petit volume dans la pièce.
Dans tous les cas, ils ne doivent pas être installés à moins de 1,5 m du poêle.

Les bouteilles en acier de grand volume peuvent être placées exclusivement à l'extérieur des locaux dans des armoires spéciales
Cependant, ils sont très demandés en raison de leur disponibilité et de leur prix relativement bas.
Si tel est votre choix, assurez-vous de suivre ces directives :
- Placez le cylindre dans une pièce à température stable, à l'écart des sources de chaleur et de la lumière directe du soleil
- Placer les cylindres de grand volume à l'extérieur
- Vérifiez régulièrement la bouteille elle-même et la conduite de gaz pour détecter les fuites.
Changez régulièrement le joint de col. Cela coûte un peu, et à cause de cela, une fuite de gaz peut se produire, ce qui non seulement entraîne une augmentation de sa consommation, mais est également dangereux.

Des idées intéressantes pour décorer votre datcha préférée de vos propres mains | 150+ astuces photo originales pour les artisans
Règles requises
La sécurité dans la maison est assurée par les règles d'utilisation du gaz dans la vie quotidienne. 86-P (la loi entrée en vigueur le 26 avril 1990) contient les règles de base qui vous permettent d'utiliser correctement l'équipement. L'inspection et la réparation des gazoducs, selon ce document, ne doivent être effectuées que par des spécialistes ayant présenté un certificat. Lors de l'installation des bouteilles, le local doit être libéré. Le feu ne doit être allumé que s'il n'y a pas d'odeur de gaz.

Il est de la responsabilité des locataires de régler ponctuellement les prestations dont le coût est fixé par le prestataire. En hiver, les têtes doivent être vérifiées régulièrement pour s'assurer qu'elles ne sont pas gelées ou bouchées. Ces règles élémentaires d'utilisation du gaz dans la vie de tous les jours préviendront de nombreuses situations néfastes.
Comment allumer un feu
Si vous n'avez jamais rencontré de cuisinières à gaz auparavant, la question de savoir comment allumer une cuisinière à gaz peut être très pertinente. Pour ce faire, vous devez suivre un certain algorithme. Tout d'abord, vous devez aérer la pièce. Ensuite, suivez ces étapes étape par étape :
- Ouvrir la vanne sur le tuyau ou la vanne si une bouteille de gaz est utilisée.
- Allumez le brûleur.

Ce processus se produit de différentes manières, selon le type de poêle et la source de feu. Le poêle peut être allumé des manières suivantes :
- d'une source de feu ouverte - allumettes;
- à l'aide d'un briquet électrique ou en silicone ;
- allumage électrique.
Les modèles modernes de cuisinières à gaz sont équipés d'un système d'allumage électrique intégré. Cette fonction peut être affichée sur un bouton séparé ou intégrée au robinet du brûleur. C'est le seul cas où le brûleur peut être allumé en même temps que le robinet du poêle est tourné. Dans d'autres modèles, vous devez d'abord fournir un feu (étincelle), puis ouvrir le robinet du brûleur. Le robinet s'ouvre dans le sens des aiguilles d'une montre avec une légère indentation. Pour plus d'informations sur la façon d'allumer un four à gaz, lisez ici.

La flamme doit être d'une couleur bleue distincte et uniformément répartie autour du brûleur. S'il glisse vers l'intérieur, fermez le robinet et rallumez le brûleur. La hauteur de flamme optimale ne doit pas dépasser 2-2,5 cm et est ajustée en tournant le bouton de la vanne. S'il y a un courant d'air dans la pièce, la flamme aura tendance à se détacher du brûleur, ce qui est dangereux pour la sécurité incendie. Avec un excès d'air, il est nécessaire de fermer la fenêtre. En cas de manque d'air, la couleur de la flamme passera clairement du bleu au jaune et du monoxyde de carbone sera libéré, ce qui est dangereux pour la santé humaine.
Dispositif de réservoir de gaz
La substance sous haute pression se trouve dans un récipient spécial. Le gaz comprimé sous n'importe quelle pression est à l'état gazeux et le gaz liquéfié avec une augmentation de ce paramètre se transforme en un état liquide.
Le réservoir en forme de cylindre est une structure entièrement soudée, l'épaisseur minimale de ses parois est de 2 mm.Il est composé de deux matériaux soit en acier soit en polymère. Se compose d'une coque, d'un col et d'un fond.
Le filetage conique sur le col du cylindre permet de fermer hermétiquement la vanne d'arrêt. Ceci est fait pour que lorsque le gaz se dilate, il puisse se rompre, puis la pression dans le récipient reviendra rapidement à la normale.
Le fond de ces conteneurs est convexe d'en haut et d'en bas. De ce fait, la pression du gaz sur les parois du réservoir est la même.
Classification des bouteilles de gaz
Symptômes d'intoxication au monoxyde de carbone
Les symptômes comprennent :
douleur dans les tempes;
bruit dans les oreilles;
inconfort dans la partie frontale de la tête;
assombrissement des yeux;
développement de faiblesse musculaire, en particulier dans les jambes;
la personne ne peut pas se lever;
les coliques dans la tête s'intensifient, des difficultés respiratoires surviennent, suivies de nausées et de vomissements;
la dernière étape peut être un état d'étourdissement et une perte de conscience.
Soyez vigilant, il y a des morts de familles entières empoisonnées à la suite de la fermeture prématurée d'une vanne sur une canalisation.
Cependant, il convient de rappeler que la gravité de la lésion est directement liée à des facteurs tels que l'activité physique au moment où la substance pénètre dans l'organisme, la durée de l'exposition, l'état de santé et les caractéristiques de la physiologie humaine.

Il y a trois étapes :
- Diplôme facile. Elle se caractérise par une faiblesse générale, une tachycardie, des nausées, des étourdissements, une vision floue. Des déchirures et une augmentation de la pression artérielle peuvent également survenir.
- Moyen. Cela commence par des hallucinations. Une personne a une respiration intermittente et des mouvements non coordonnés. La conscience est déjà dans un état de nébuleuse. En général, tous les signes de la première étape commencent à apparaître sous des formes complexes.
- La dernière étape est la plus difficile. Les pupilles se dilatent, le pouls s'accélère au maximum.Un coma ou une perte de raison à long terme est possible. Certaines personnes souffrent de paralysie, de convulsions et de selles involontaires. La cyanose apparaît sur la peau.
Connaissant tous les symptômes d'empoisonnement, vous pouvez suspecter prématurément ce qui cause certains maux.
Ravitaillement
Le gaz en bouteille est utilisé partout : dans la production pour souder, souder et couper les métaux sur le terrain, à la maison pour le chauffage et la cuisson des locaux, dans les zones éloignées des zones résidentielles pour les mêmes fins. Bien sûr, faire le plein d'un cylindre, après l'avoir acheté une fois, sera beaucoup moins cher que d'en acquérir un nouveau déjà rempli à chaque fois. Par conséquent, la question de savoir où vous pouvez remplir une bouteille vide se pose assez souvent.Station de remplissage de gaz - c'est le nom des entreprises impliquées dans le remplissage de conteneurs de différentes tailles et configurations, y compris elles peuvent remplir une petite cartouche touristique. Les principes de remplissage des récipients peuvent être de trois types :
- au moyen d'une pompe;
- combiné - la pompe est associée à un compresseur qui crée une pression accrue du produit lorsqu'il est pompé dans le réservoir;
- pompage et évaporation, où un haut niveau de pression est fourni par un élément chauffant électrique - un évaporateur.
La composition de la GNS (station de remplissage de gaz) comprend divers réservoirs pour le placement de gaz liquéfié et des dispositifs techniques permettant son transport. Et il y a aussi des unités de ventilation et de pompage, des systèmes d'instrumentation et d'extinction d'incendie.
Les stations-service semi-légales sont souvent situées dans des stations-service pour voitures, mais il est dangereux d'y acheter du gaz liquéfié pour plusieurs raisons.Le contrôle de l'état technique des cylindres et du moment de leur examen n'est pas effectué - cela n'est pas inclus dans les tâches des ravitailleurs de voitures.
Le récipient rempli n'est pas non plus vérifié pour les fuites de gaz. Oui, et il est problématique de remplir la cuve sans dépasser la norme de remplissage dans les conditions d'un ravitaillement automobile : une vanne de coupure de débordement de carburant gazeux est montée sur une bouteille automobile. Sur les conteneurs domestiques, un tel dispositif n'existe pas et le contrôle est effectué par pesée.
Le ravitaillement en carburant des navires à gaz est un type d'activité autorisé et seules les grandes entreprises disposant d'équipements spéciaux et de spécialistes hautement qualifiés peuvent se le permettre. Par exemple, le ravitaillement en carburant des bouteilles de gaz à Moscou est effectué, ce qui fonctionne avec tous les gaz techniques. De plus, les villes clientes de cette société ne sont pas seulement Moscou, mais aussi des colonies de la région de Moscou. Moscou est également le leader en termes de nombre de stations-service.




















