Comment conduire le gaz au bain depuis la maison: les subtilités de la gazéification du bain

Je demande des conseils sur l'aménagement du porche et du garage, en tenant compte de la sommation de gaz. forum de construction principal

Avantages et inconvénients de la gazéification par bain

Avant de décider de conduire le gaz vers le bain, les propriétaires des zones suburbaines essaient de prendre en compte toutes les caractéristiques de cette méthode.

Le coût de fonctionnement, le respect de l'environnement, la complexité des soins, l'efficacité sont pris en compte.

Avantages d'utiliser du carburant bleu

Outre des économies importantes, les avantages de cette méthode incluent l'hygiène du gaz - il n'y a pas d'odeurs, de suie, de suie lors de la combustion.De plus, un bain gazéifié chauffe presque deux fois plus vite.

Le bois de chauffage est inférieur au gaz à bien des égards: il doit être stocké quelque part pour surveiller la livraison et l'état en temps voulu. Cependant, ils restent le matériau de foyer le plus populaire. Et même utilisé dans les poêles combinés gaz-bois

Un gros plus est l'automatisation du processus. L'allumage demande un minimum de travail de la part du propriétaire. Avec le bon marché du gaz, cet avantage rend la gazéification des bains particulièrement attrayante.

Inconvénients remarqués par les propriétaires et les professionnels

Selon les propriétaires, le principal inconvénient est la difficulté d'obtenir l'autorisation : à la moindre imprécision, la commission interdit l'utilisation du gaz pour chauffer le bain.

Les professionnels du gaz notent un niveau de danger élevé si les règles d'installation ne sont pas respectées, il n'y a pas de dispositifs de sécurité et la vigilance des propriétaires

D'autres inconvénients incluent:

  • la nécessité de payer le travail des spécialistes de l'installation;
  • coût élevé de l'équipement;
  • restrictions sur le choix de la conception du sauna.

Une autre observation subjective concerne l'absence d'odeur. Beaucoup apprécient l'arôme qui se répand dans une pièce chauffée lorsque le bois est brûlé. L'équipement à gaz élimine cette possibilité.

C'est intéressant: Comment choisir un outil à main - nous décrivons dans l'ordre

Bain de gazéification

Comment conduire le gaz au bain depuis la maison: les subtilités de la gazéification du bain

Sauna de notre base, dans lequel les équipes de montage se lavent

Nous avons un petit bain public, qui a été amené en voiture et installé sur une dalle de fondation. Elle est portable. Il peut être déplacé d'un endroit à un autre. Mais ils ont besoin d'eau chaude et de chauffage en hiver. Parce qu'en été, vous pouvez vous laver et ainsi de suite. Et en hiver sans chauffage nulle part.

Le câblage de chauffage se fait avec des radiateurs. Une chaudière à double circuit est suspendue ici afin de chauffer et de chauffer l'eau lors du lavage dans la douche et dans le lavabo. Le sauna est gazéifié à l'aide d'un mini réservoir de gaz de 800 litres. Cela vous permet également de le rendre aussi mobile que possible. Où que vous le transportiez, où que vous l'installiez, vous transportez le conteneur avec lui. Et vous avez toujours du gaz, la chaudière fonctionne, qui chauffe l'eau et le chauffage. Le moyen de chauffage le plus pratique et le plus sûr.

Comment conduire le gaz au bain depuis la maison: les subtilités de la gazéification du bain

Chaudière à double circuit qui chauffe l'eau et le chauffage

Bain de gazéification

Comment conduire le gaz au bain depuis la maison: les subtilités de la gazéification du bain

Sauna de notre base, dans lequel les équipes de montage se lavent

Nous avons un petit bain public, qui a été amené en voiture et installé sur une dalle de fondation. Elle est portable. Il peut être déplacé d'un endroit à un autre. Mais ils ont besoin d'eau chaude et de chauffage en hiver. Parce qu'en été, vous pouvez vous laver et ainsi de suite. Et en hiver sans chauffage nulle part.

Le câblage de chauffage se fait avec des radiateurs. Une chaudière à double circuit est suspendue ici afin de chauffer et de chauffer l'eau lors du lavage dans la douche et dans le lavabo. Le sauna est gazéifié à l'aide d'un mini réservoir de gaz de 800 litres. Cela vous permet également de le rendre aussi mobile que possible. Où que vous le transportiez, où que vous l'installiez, vous transportez le conteneur avec lui. Et vous avez toujours du gaz, la chaudière fonctionne, qui chauffe l'eau et le chauffage. Le moyen de chauffage le plus pratique et le plus sûr.

Comment conduire le gaz au bain depuis la maison: les subtilités de la gazéification du bain

Chaudière à double circuit qui chauffe l'eau et le chauffage

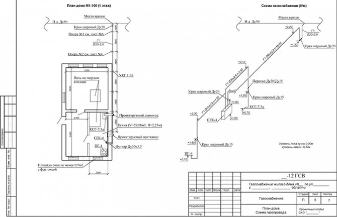
La procédure de conduite de gaz, des conseils pratiques

L'étape préparatoire est l'achat de tuyaux, de consommables et d'équipements à gaz.Afin de gazéifier le bain selon les règles, il est nécessaire de vérifier le projet et les conditions techniques reçues.

Les documents contiennent le calcul de la longueur des tuyaux, une indication de leur diamètre, ainsi que le nom et la marque de l'équipement autorisé. Il est conseillé aux utilisateurs expérimentés d'acheter des tuyaux et des consommables avec une marge de 30 %.

Étape n ° 1 - installation d'un gazoduc externe

Étant donné qu'il est recommandé de réaliser la disposition du gazoduc externe au-dessus du sol, des supports fiables seront nécessaires pour fixer les tuyaux. Ils doivent élever le gazoduc au-dessus du sol d'au moins deux mètres.

Les exigences pour les supports sont :

  • la distance entre les supports est déterminée par le projet ;
  • la résistance structurelle doit être calculée en fonction du poids mort du gazoduc et du poids de la glace éventuelle avec un facteur de 1,2 ;
  • la pièce de fixation doit correspondre aux dimensions de conception du tuyau.

Si le projet spécifie l'installation d'un gazoduc avec une pente, il est possible de monter des joints métalliques entre les semelles des supports et les structures encastrées. L'installation de tels joints entre le tuyau et le support est interdite.

Comment conduire le gaz au bain depuis la maison: les subtilités de la gazéification du bainLes règles de pose des supports s'appliquent aux distances entre eux et soudés coutures sur les conduites de gaz. Cette distance ne peut être inférieure à 5 cm

Pour se protéger contre l'exposition aux précipitations humides, le pipeline extérieur est recouvert de peintures à l'huile jaune vif. Ceci est fait par des employés de la compagnie de gaz, qui a repris l'installation.

Mais après leur départ, de nombreux jardiniers repeignent les tuyaux dans d'autres couleurs qui correspondent à la palette principale du site. Cela est interdit.

Étape numéro 2 - pose de tuyaux à l'intérieur

Le gazoduc interne doit également être constitué de tuyaux métalliques.Aux endroits de passage à travers les murs, il est nécessaire de percer des trous et d'y installer des manchons en fer encastrés. La pose de tuyaux à travers les murs n'est autorisée qu'à travers de tels manchons.

Lire aussi :  Entretien des poêles à gaz dans les appartements: ce qui est inclus dans l'entretien, les modalités et la fréquence de l'entretien

Lors de la gazéification de bâtiments en bois, cela est extrêmement important, car tout bois rétrécit avec le temps. Et cela est lourd de dommages à un gazoduc non protégé.

Comment conduire le gaz au bain depuis la maison: les subtilités de la gazéification du bainIl est interdit de faire des trous pour le gazoduc entre des bûches ou des poutres, à leur jonction. Ils doivent être situés à l'intérieur du bois massif

La fixation doit être effectuée avec les produits spécifiés dans le projet. Il est préférable d'acheter des fixations dans des magasins spécialisés, car les points de vente ordinaires proposent souvent des analogues qui ne répondent pas aux exigences.

Pour mettre en œuvre les moments de rotation, il est important d'utiliser une cintreuse à induction - un appareil qui vous permet de modifier l'angle de 90 degrés. La méthode manuelle de pliage avec chauffage n'est pas adaptée dans ce cas, car elle peut perturber la structure du métal

Aux points de raccordement des équipements à gaz, l'extrémité du tuyau est filetée. Des filtres sont montés sur ce filetage et des vannes d'arrêt sont installées. Lors de l'épreuve de pression finale, le spécialiste doit vérifier l'étanchéité de ces connexions et l'intégrité des soudures.

Comment conduire le gaz au bain depuis la maison: les subtilités de la gazéification du bainAvant d'effectuer des travaux de soudure, vous devez vous assurer qu'il y a un extincteur, couvrir les murs en bois du bain public et des bâtiments voisins avec de l'amiante ou des tôles

Il est important de s'assurer que les tuyaux de gaz à l'intérieur du bain ne se croisent pas avec le fil électrique. La distance minimale entre eux est de 10 cm

Si l'alimentation en eau ou les égouts sont connectés au bain, il est nécessaire de maintenir une distance de 2 cm entre eux et la branche du gazoduc.

Étape numéro 3 - installation de la cheminée

Nous nous sommes déjà arrêtés sur les règles d'installation d'une fournaise au gaz. Par conséquent, la prochaine étape est l'organisation de la cheminée. Les compagnies gazières ont également des exigences particulières à cet égard.

Lors de l'installation, il est recommandé de suivre les étapes suivantes :

  • l'absence de joints de tuyaux dans les plafonds - il est nécessaire de monter la cheminée de manière à ce que les raccordements soient situés au-dessus ou au-dessous du plafond;
  • l'emplacement des tuyaux par rapport aux éléments inflammables du bâtiment - la distance entre eux ne doit pas être inférieure à 1 mètre.

Au-dessus d'un toit plat, la cheminée peut dépasser de 1,2 mètre ou plus. Au-dessus du toit avec des pentes, la valeur d'élévation minimale est de 0,5 mètre.

Comment le pipeline est-il construit?

Une fois le projet de gazoduc approuvé, il est nécessaire de contacter une organisation disposant d'une licence d'État pour effectuer des travaux de cette nature.

La procédure de raccordement final sera établie après accord sur le coût estimé et signature du contrat. Ce dernier indique que le paiement intégral est effectué après l'achèvement des travaux et leur acceptation par les organismes gouvernementaux.

Raccordement gaz à la maison

Le tuyau peut passer au-dessus ou au-dessous du sol en utilisant la technologie de forage horizontal. Pour poser le tuyau, 2 puits sont réalisés - près du bâtiment et de l'autoroute, qui sont reliés par un trou horizontal. Un tuyau y est posé.

Les matériaux de raccordement du gaz principal à la maison doivent avoir des certificats de qualité. La technologie permet l'utilisation d'un tuyau en métal ou en plastique. Ce dernier présente plusieurs limites :

  • ne peut pas être élevé à l'intérieur de la maison;
  • ne convient pas à la pose hors sol;
  • non utilisé dans les régions où la température est inférieure à -45°C ;
  • ne convient pas aux zones sismiquement actives.

De plus, lors de l'installation du pipeline :

  1. Les tuyaux ne doivent pas toucher les éléments de construction sujets à la combustion.
  2. Les joints de tuyaux ne sont pas murés dans la fondation ou les murs.
  3. Les sections horizontales sont posées avec une pente vers les appareils de 2 à 5 mm. Les parties verticales sont exactement de niveau.
  4. L'axe du bouchon du robinet doit être parallèle aux murs.

Comment conduire le gaz au bain depuis la maison: les subtilités de la gazéification du bain

Entrer des communications dans la maison

Il existe des règles pour l'installation d'un système d'alimentation en gaz:

  1. Un trou pour introduire du gaz dans le bâtiment est pratiqué dans le mur extérieur dans la partie inférieure au-dessus de la fondation.
  2. Un revêtement en acier est installé dans le trou, à travers lequel le tuyau est passé. Le câblage interne et la colonne montante principale y sont connectés.
  3. Le tuyau est placé en pente vers la colonne montante, qui est placée verticalement à 15 cm du mur.
  4. À travers tous les murs, le câblage des tuyaux passe à travers des manchons qui protègent contre les dommages mécaniques.
  5. Avec une couche de bitume et de câble imprégné de résine, un espace est posé entre le manchon et la surface du tuyau, qui est préalablement recouvert de peinture à l'huile en plusieurs couches.

Pour éviter les connexions inutiles, il est permis de chauffer les coudes du tuyau avec un brûleur.

Aménagement d'une chaufferie - si un chauffage au gaz est prévu dans la maison

Pour installer une chaudière d'une puissance supérieure à 30 kW, une pièce séparée est nécessaire. Dans les maisons unifamiliales, il peut s'agir d'un sous-sol ou d'un sous-sol, dans d'autres cas, il est préférable de créer un bâtiment séparé. Plusieurs étapes sont nécessaires :

  1. Un positionnement horizontal précis de l'appareil de chauffage aidera à réduire le bruit et les vibrations.
  2. Les murs et le sol de la chaufferie sont en matériaux incombustibles, avec éventuellement une isolation thermique complémentaire à proximité de la chaudière.
  3. L'installation de l'équipement nécessite une alimentation en eau froide et un système d'égouts pour vidanger le liquide de refroidissement.
  4. Dans les systèmes volatiles, les prises électriques sont montées avec une boucle de terre.

Exigences relatives à la cheminée et à la ventilation :

  • l'exécution doit être séparée;
  • la fenêtre est calculée sur la base du rapport de 1 kW de puissance par 80 mm² avec un apport de rue ou 300 mm² si l'air provient d'une pièce adjacente ;
  • la ventilation ne se ferme jamais ;
  • la cheminée dans le mur est faite avec 2 canaux d'entrée : révision et principal ;
  • la distance entre la sortie des fumées et la chaudière doit être réduite au minimum ;
  • il est interdit de faire plus de 3 virages ou coudes dans la cheminée;
  • le matériau de la cheminée est de la tôle d'acier au carbone ou de l'acier inoxydable ;
  • à une distance de 0,5 m de la buse dans la chaudière, des matériaux en couches, par exemple du béton d'amiante, peuvent être utilisés.

Les installations de gaz sont murales et au sol. Ces derniers sont généralement plus puissants. Les appareils muraux ont une cheminée coaxiale, qui assure à la fois l'alimentation en air et l'évacuation des produits de combustion.

La puissance spécifique d'une installation de chauffage de 10 m² varie selon la région d'installation - de 0,7 kW dans le sud de la Russie à 2 kW dans le nord.

Comment conduire le gaz au bain depuis la maison: les subtilités de la gazéification du bain

Essai et activités finales

Les activités finales sont réalisées après l'introduction du gaz dans le boîtier et l'assemblage final du système.

Les propriétaires de maison sont informés des mesures de sécurité avant de procéder au démarrage et au réglage de l'équipement.

Même si l'installation a été réalisée par des organismes tiers agréés, le raccordement à l'autoroute est effectué par un service de raccordement spécial.

Un test de fonctionnement du carburant est effectué et d'éventuelles fuites sont détectées. Ce service facture des frais distincts. Un contrat pour la maintenance de l'installation est préalablement conclu. Les obligations de garantie entrent en vigueur après la mise en place du matériel.

Lire aussi :  Joint de bouteille de gaz : à quoi ça sert, dimensions typiques, instructions de remplacement

Le prix du raccordement d'une maison privée à un gazoduc

Il existe deux types de tarifs pour le raccordement au gazoduc.

  • Standard - J'opère dans la ville, si la distance à l'autoroute ne dépasse pas 10 mètres.
  • Non standard - fonctionne en dehors de la ville (25 mètres).

Plusieurs facteurs influent sur le coût des travaux. Ce:

  • éléments de relief ;
  • méthode de pose d'un gazoduc;
  • taille standard du compteur de gaz ;
  • qualité du sol;
  • forme de maison ;
  • type de terrain.

Noter! Comme vous pouvez le voir, il est impossible de nommer le coût exact des travaux, car il est déterminé individuellement pour chaque cas et dépend d'un certain nombre de conditions. Mais si nous généralisons, nous pouvons déduire des tarifs approximatifs

Ils ressembleront à ça

Mais si nous généralisons, nous pouvons en déduire des taux approximatifs. Ils ressembleront à ceci.

  • Raccordement au réseau de gaz - de 3 400 à 7 100 roubles.
  • L'interconnexion des éléments individuels - de 25 700 à 158 500 roubles.
  • Vérification et insertion dans une maison privée - de 51 000 à 158 500 roubles.

Table. Coût comparatif d'installation et de fonctionnement de différents types de combustibles pour le chauffage d'une maison de campagne (pour une superficie de 160 m2 - un exemple).

Comment conduire le gaz au bain depuis la maison: les subtilités de la gazéification du bain

Noter! Avant de puiser dans un gazoduc, il est nécessaire de savoir à qui il appartient. Dans la plupart des cas, il s'agit de GorGaz

Vous devez acquérir un accord de propriétaire pour un raccordement, puis contacter l'organisme de conception (celui-ci, comme vous pouvez le deviner d'après son nom, élaborera un projet de gazéification).

Règles de raccordement du gaz aux ménages privés

Le raccordement au système de gazéification a toujours exigé le respect d'un certain ordre. La condition principale était la présence et l'installation d'équipements à gaz dans un immeuble résidentiel conformément aux exigences établies par les textes réglementaires.

Le gaz ne sera fourni aux bâtiments résidentiels que si les exigences suivantes sont remplies :

  1. Les chaudières à gaz (pas plus de deux) ne peuvent être placées qu'au sous-sol ou au sous-sol.
  2. Des fenêtres à double vitrage doivent être installées dans la pièce où se trouvent les chaudières, à condition qu'elles puissent être facilement assommées si nécessaire.
  3. Équipement obligatoire d'un immeuble résidentiel avec des appareils de contrôle de la pression et de la température et des compteurs de gaz.
  4. L'équipement à gaz doit être acheté auprès d'un fabricant avec un certificat spécial, avec les pièces justificatives jointes.
  5. Les tuyaux de raccordement des équipements à gaz (d'une longueur maximale de 1,5 m) doivent être fabriqués dans un matériau permettant d'acheminer le gaz en toute sécurité jusqu'à la maison.
  6. La distance entre le poêle et le mur opposé doit être d'au moins 1 m. Une condition préalable est l'équipement du poêle avec le système "Gas-control" ; entre le tuyau et le robinet, un raccord diélectrique contre les courants vagabonds doit être installé.
  7. Si la cuisinière à gaz est située sous un auvent, les brûleurs doivent être protégés du vent.

Il y a aussi des exigences pour la salle de cuisine:

  1. Hauteur sous plafond d'au moins 2,2 m.
  2. Volume : au moins 8 m³ pour un poêle à deux feux, au moins 12 m³ pour un poêle à trois feux et au moins 15 m³ pour un poêle à 4 feux.
  3. Assurez-vous d'avoir dans la cuisine: une fenêtre, un espace sous la porte et un conduit de ventilation d'échappement.

Si les exigences et conditions ci-dessus ne sont pas remplies, le raccordement d'une maison privée au système d'alimentation en gaz sera refusé. Le propriétaire de la maison est responsable du respect des exigences.

Si le gazoduc est situé à plus de 200 m du ménage, le coût de la gazéification sera assez élevé

La coordination du passage du gazoduc à travers les terres d'autres propriétaires, la préparation de spécifications techniques et la résolution d'autres problèmes "gaz" sont devenus entièrement la prérogative de l'organisation de distribution de gaz (en abrégé GDO).

C'est OblGaz ou RayGaz qui sont tenus d'amener le gazoduc jusqu'aux limites du site du demandeur selon la demande remplie.

Les conditions techniques de raccordement du gaz à une maison particulière, ainsi que le prix de la gazéification font partie de l'accord avec le GDO. Auparavant, avant le décret n° 1314, le cahier des charges était un document distinct qui servait de justification à la conception et à la construction d'un gazoduc. Désormais, les conditions techniques ne sont qu'une annexe à l'accord de gazéification, c'est-à-dire pas un document autonome.

A noter que les conditions techniques fournies à la demande du propriétaire dans un délai de deux semaines sont préliminaires. En les fournissant, l'organisme de distribution de gaz informe uniquement sur l'admissibilité de la gazéification et il est impossible d'utiliser ces données pour la construction du gazoduc. Toutefois, des spécifications préalables ne sont requises que pour les consommateurs industriels dont la consommation de méthane est supérieure à 300 m³/h.

Options de gazéification par bain

Il est rare que quelqu'un refuse de construire un bain public sur son propre site - ce n'est pas seulement une salle de lavage, mais un lieu de repos associé à une masse de rituels et de traditions du peuple russe.Mais il est trop coûteux de chauffer un bain public avec du bois de chauffage, et encore plus avec de l'électricité, c'est pourquoi un désir logique se pose d'installer un foyer ou un poêle à gaz.

Comment conduire le gaz au bain depuis la maison: les subtilités de la gazéification du bainL'entretien de tous les équipements, de la maison et du bain, est effectué par le service technique du gaz à l'aide d'appareils installés en un seul endroit - par exemple, sur le mur de la maison

Mais en réalité, tout est compliqué - les bains publics ne répondent pas aux normes législatives et ne sont pas considérés comme une pièce adaptée à l'installation d'équipements à gaz.

Cependant, personne n'interdit de faire circuler du gaz dans les immeubles résidentiels, c'est pourquoi les propriétaires ingénieux ont trouvé deux options légales pour contourner les obstacles juridiques :

  • inclure la construction d'un bain dans le projet de construction d'une maison, c'est-à-dire les placer sous un même toit;
  • enregistrer un bain public en tant que maison d'hôtes résidentielle avec un équipement de chauffage au gaz séparé.

Les deux options sont activement utilisées et avec beaucoup de succès. Mais certains propriétaires de maisons de campagne ont eu encore plus de chance - ils ont simplement reçu l'autorisation de gazéifier le bain. Cela se produit également, par conséquent, afin de ne pas gaspiller d'efforts et d'argent supplémentaires, contactez d'abord les travailleurs du gaz - et si vous avez de la chance aussi ?

Hammam à l'intérieur d'un immeuble résidentiel

Il s'avère qu'aucune loi n'empêche l'appareil d'un bain public directement dans la maison, et de nombreuses personnes l'utilisent avec succès. Il s'avère que l'utilisation du gaz dans les locaux non résidentiels d'un immeuble résidentiel est possible.

Certes, il existe plusieurs conditions particulières:

  • il est nécessaire d'équiper une entrée de secours séparée;
  • utiliser uniquement des matériaux résistants à la chaleur pour la fabrication des portes;
  • il est possible d'ouvrir l'entrée de secours des deux côtés ;
  • installer un système d'alarme incendie et d'extinction d'incendie ;
  • Seuls les équipements à gaz fabriqués en usine et certifiés peuvent être utilisés.

Un ajout intéressant à la loi est que vous ne pouvez pas utiliser les bains publics à des fins commerciales.

Comment conduire le gaz au bain depuis la maison: les subtilités de la gazéification du bainL'entrée du hammam peut être aménagée directement du couloir ou hall d'entrée, et une sortie de secours sur la terrasse, qui peut facilement remplacer le dressing

Lire aussi :  Est-il nécessaire d'installer un capteur de gaz ?

Si les inspecteurs des autorités du gaz ou des incendies traitent leurs tâches de manière responsable, ils n'autoriseront pas le fonctionnement du bain sans un système d'extinction automatique et une ventilation qui fonctionne bien.

Mais tout le monde ne peut pas allouer un espace de vie pour un bain ou un sauna, alors envisagez une autre option.

Bain dans une maison séparée

Tout d'abord, vous devrez proposer un projet de maison d'hôtes ou de cuisine d'été, qui pourrait ensuite être convertie en bain public, c'est-à-dire que le bâtiment doit avoir une fondation solide et des murs à isolation minérale, doublés de matériaux incombustibles. matériaux.

Le point principal de la conception sera une chaudière à gaz installée pour le chauffage et le chauffage de l'eau. Habituellement, il n'y a pas de questions pourquoi une unité distincte est nécessaire.

Comment conduire le gaz au bain depuis la maison: les subtilités de la gazéification du bainVous aurez également besoin d'un équipement d'égout et de douche - mais ce n'est pas surprenant s'il est conçu pour une maison d'hôtes dans laquelle un hébergement saisonnier est prévu.

Le projet approuvé est mis en œuvre et une maison est construite, puis elle est enregistrée auprès du BTI, des modifications sont apportées au plan général de construction de logements et une demande de gazéification est rédigée. Si l'inspecteur, après avoir inspecté les lieux, ne révèle aucune infraction, il délivrera un permis et dressera un croquis de l'emplacement de l'équipement et de la sortie de gaz.

Après la publication des spécifications techniques, il peut être nécessaire de corriger quelque chose, par exemple, de faire une ventilation forcée ou d'isoler en plus le site d'installation de la chaudière.

Il reste à poser des tuyaux et à connecter la chaudière au système. Si un immeuble résidentiel est gazéifié, la création d'une branche ne sera pas difficile et ne prendra pas beaucoup de temps.

Comment conduire le gaz au bain depuis la maison: les subtilités de la gazéification du bainAprès les tests et la mise en service, le représentant du service de gaz donne le feu vert pour l'opération, et après son départ, vous pouvez enfin transformer la maison en bain public - par exemple, arrangez un appareil de chauffage

Par le même principe, vous pouvez conduire du gaz jusqu'au garage. Selon les critiques, les travailleurs du gaz sont parfois autorisés à conduire du gaz dans tous les bâtiments, y compris les garages, mais sous réserve d'un certain nombre d'exigences en matière de sécurité incendie et de ventilation.

Exigences légales pour le projet, l'équipement, l'installation

Les exigences de base pour la pose de conduites de gaz à l'intérieur du bain, la conception des fours et les paramètres de la pièce sont prescrites dans le SNiP 2.04.08-87.

La disposition d'un gazoduc externe et les caractéristiques de connexion sont réglementées par le SNiP 42-01-2002.

Conditions d'approbation du projet par la tutelle technique

Il est extrêmement rare que les propriétaires de bains publics s'entendent sur le câblage du gaz, car leurs bâtiments ne répondent pas aux exigences. Il est plus correct de créer d'abord un projet, puis de procéder à la construction. De plus, le bâtiment devrait être situé sur une fondation capitale.

Comment conduire le gaz au bain depuis la maison: les subtilités de la gazéification du bainLes anciens bains ont souvent des plafonds bas. Déjà par ce paramètre, ils ne conviennent pas à la gazéification. Une pièce correctement conçue a une distance entre le sol et le plafond de plus de 2 mètres

Les principaux critères sont la présence d'une issue de secours, d'une imposte pour la ventilation ou d'un conduit d'évacuation d'air, et d'une surface suffisante. Le volume de la pièce où se trouve la fournaise doit être supérieur à 8 mètres cubes. Et le passage à côté ne peut pas avoir moins d'un mètre de large.

Une attention particulière est également portée aux portes - chacune d'entre elles doit s'ouvrir vers l'extérieur, avoir des poignées fonctionnelles des deux côtés. Les portes elles-mêmes ne peuvent être constituées que de matériaux incombustibles.

Tout cela est pris en compte lors de l'accord.

Critères de sélection des équipements

Tous les types de poêles ne conviennent pas à une installation dans des bains gazéifiés. Seuls sont autorisés les produits métalliques fabriqués en usine dont la conception permet l'évacuation des produits de combustion dans la cheminée. Les fours à pierre et à brique sont interdits. Les points importants sont la présence d'un fusible qui bloque l'alimentation en combustible lorsque le feu est éteint et l'étanchéité de la chambre à gaz.

Il convient de noter que les principaux fabricants russes, tels qu'Ermak, Termofor, Teplodar, produisent des modèles approuvés avec une excellente automatisation et des composants de haute qualité. Alors que les produits des usines européennes ne sont pas toujours testés avec succès.

Comment conduire le gaz au bain depuis la maison: les subtilités de la gazéification du bainLors de l'achat, vérifiez les certificats de qualité et de sécurité, vérifiez le passeport produit rempli par le fabricant. Il doit contenir des notes sur la réussite du contrôle technique.

L'entretien du four ne doit pas être effectué dans le hammam, mais dans le dressing. Par conséquent, un canal de carburant externe doit être présent dans la conception.

Une attention particulière est portée au type de jets: lors de l'utilisation de l'alimentation en gaz principale, des buses élargies sont nécessaires, lors de l'utilisation d'un mélange de propane à partir d'une bouteille, des buses rétrécies sont nécessaires.

Règles pour l'installation d'un gazoduc, fournaise, cheminée

Les règles d'installation incluent des exigences non seulement pour la pose d'un gazoduc, mais également pour l'installation d'une alarme incendie. Ce rôle peut être joué par des capteurs de monoxyde de carbone très sensibles.

La sortie du tuyau de la maison doit s'élever à 2 mètres au-dessus du sol et entrer dans le dressing à la même hauteur. La pose sous la fondation et à l'intérieur est interdite.

Une vanne est installée à l'extrémité du tuyau qui, lorsque l'équipement est dépressurisé, assurera instantanément l'arrêt complet du gazoduc.

Lors du choix de l'équipement pour un bain, vous devez toujours faire attention au régime de température de fonctionnement autorisé. Par exemple, de nombreux capteurs de CO chinois sont conçus pour des températures allant jusqu'à 55 degrés. Une attention particulière est portée au placement des fours

Les murs en bois adjacents doivent être isolés avec des matériaux incombustibles. Option autorisée - revêtement avec isolation thermique et tôle d'acier

Une attention particulière est portée au placement des fours. Les murs en bois adjacents doivent être isolés avec des matériaux incombustibles.

Une option valable est le revêtement avec isolation thermique et tôle d'acier.

La distance ignifuge entre le mur isolé et le corps du produit est de 60 cm.Tous les autres objets, plafonds, étagères murales doivent être à au moins 110 cm des parois du poêle.

La base de support du four doit également être en matériau réfractaire, dépassant les limites du produit de 10 cm ou plus. Il est uniquement autorisé de raccorder le poêle à la cheminée avec des tuyaux en acier.

Comment conduire le gaz au bain depuis la maison: les subtilités de la gazéification du bainSelon le paragraphe 5.1.4 du SNiP 42-01-2002, les joints des tuyaux métalliques doivent être d'une seule pièce, soudés. Les connexions amovibles sont autorisées aux points de connexion des éléments d'équipement à gaz

L'installation de la cheminée elle-même est également réglementée. Aux endroits de passage à travers les plafonds et les murs du bain, il est nécessaire de poser des coupes anti-incendie.

Très souvent, de l'argile expansée est utilisée à cette fin. Le matériau en vrac remplit facilement l'espace, a des caractéristiques réfractaires élevées.

Évaluation
Site sur la plomberie

Nous vous conseillons de lire

Où remplir la poudre dans la machine à laver et combien de poudre verser