- A quoi servent les anneaux en béton ?
- Production et application d'anneaux en béton
- Types de drainage
- En montagne ! ou travaux de surface
- Comment économiser sur la construction ?
- Calcul de la capacité et choix de la conception de la fosse septique
- Procédure de fabrication
- Technologie et étapes de construction d'un puits à partir d'anneaux en béton
- Construction d'un puits avec pose alternée d'anneaux
- Installation des bagues dans l'arbre fini
- Étanchéité intérieure
- Étanchéité extérieure du puits
- Recommandations supplémentaires
- Approfondir un puits en creusant
- Réalisation de travaux préparatoires
- Travaux d'approfondissement
- Travail final dans le puits
- Travaux préliminaires
- Sélection de l'emplacement
- Calcul des volumes
- Sélection des matériaux
A quoi servent les anneaux en béton ?
Le plus souvent, des anneaux en béton sont nécessaires pour la construction d'un puits, mais ils sont également utilisés dans la construction d'un système d'égout autonome - ils fabriquent des fosses septiques ou des puits de filtration. Un autre domaine d'application est celui des regards dans la construction d'un système d'orage et de drainage. S'embrasser anneaux en béton même caves. Et il existe différentes options - verticales, horizontales. En général, le champ d'application est large.

Les anneaux en béton sont utilisés pour la construction de diverses structures
Il existe des anneaux de différentes tailles pour différents besoins, ils ont également des épaisseurs de paroi différentes, ils peuvent être avec ou sans renfort.Malgré une telle abondance de choix, beaucoup pensent à fabriquer eux-mêmes des anneaux en béton armé. Le fait est que lors de l'organisation d'un site, vous aurez peut-être besoin de plus d'un anneau, voire de dix. Pour certains, il en faut plus d'une douzaine pour faire un puits. Le coût de fabrication des produits en béton armé est bien inférieur à leur prix de vente au détail. Même en tenant compte du fait que vous devez fabriquer des moules pour les anneaux en béton. Et si vous tenez également compte du coût de livraison, les économies sont très solides.
Production et application d'anneaux en béton
Dans la construction des installations de Kaluga, les anneaux en béton sont le matériau le plus couramment utilisé. Des exigences plus élevées sont imposées à la qualité de ces éléments de construction.
La plus grande attention est portée à la haute résistance des anneaux, qui doit être assurée par une disposition compétente de la cage d'armature. Le choix de la marque du béton et sa qualité sont également déterminants dans la réalisation des anneaux en béton armé.

Actuellement, les entreprises de Kaluga produisent des anneaux en béton en utilisant une méthode de centrifugation simple et optimale. Initialement, un formulaire est créé qui sera un conteneur pour le futur produit, il est donc soumis à une exigence stricte pour correspondre clairement aux dimensions souhaitées. Il est nécessaire de se souvenir de la qualité du produit fabriqué, en particulier de l'indicateur de résistance. Par conséquent, après la création du moule, un cadre en armature de fer y est monté. Le but principal des anneaux est de renforcer la structure, leur installation est un processus assez laborieux. Par conséquent, le cadre d'armature en fer, qui renforce les anneaux en béton, est réalisé avec le plus grand soin pour donner au produit une résistance maximale.Vient ensuite le tour du processus de centrifugation, basé sur l'imposition de deux formes. La production moderne d'anneaux en béton armé à Kaluga garantit une qualité de produit fiable.
Le processus de fabrication à Kalouga consiste en deux formes superposées une sur une. Ceci est suivi par le processus d'application du béton de la qualité souhaitée. Une fois le matériau placé, la centrifugation commence, au cours de laquelle la force centrifuge répartit uniformément le béton. Le processus n'est pas terminé après une seule entrée, car le produit peut ne pas être de qualité suffisante. Par conséquent, à ce stade, la vitesse est modifiée périodiquement et le mouvement dans la centrifugeuse est reproduit. Un anneau en béton armé de la qualité requise est formé, il est envoyé au four pour sécher.
Une caractéristique clé du processus de fabrication de l'anneau est la centrifugation. Ce n'est pas simple, donc il est utilisé assez rarement. Au cours de cette étape de production, vous devez être extrêmement prudent et précis, en observant toutes les subtilités de la production. Sous réserve de ces conditions, la production d'anneaux en béton armé à Kaluga garantit la production de produits de haute qualité et certifiés conformes aux normes nationales.
Types de drainage
Bien que le terme "puits de drainage pour l'assainissement" soit souvent utilisé, il existe en fait plusieurs variétés de telles structures. Ils diffèrent les uns des autres, tout d'abord, par leur objectif. De plus, les réservoirs peuvent être fabriqués à partir de différents matériaux et avoir différentes tailles. Mais le dispositif du puits de drainage en termes généraux sera le même dans tous les cas. Tous les types de telles structures sont un puits ou un conteneur spécialement équipé et, dans la plupart des cas, son fond est isolé.Les tuyaux d'égout de drainage sont amenés dans ce conteneur. Le dessus du puits est fermé par une trappe.

Tout d'abord, il faut souligner le visionnage puits de drainage. Ils sont nécessaires pour effectuer régulièrement des inspections programmées de l'égout, pour surveiller l'état du pipeline, effectuer des réparations (si nécessaire) et nettoyer les tuyaux. Un puits de révision (c'est son deuxième nom) est aménagé là où il y a un risque d'envasement du système. La taille de la structure doit correspondre aux paramètres du système d'égouts dans son ensemble. Si le pipeline est petit, le diamètre du trou d'homme doit être de 340 à 460 mm.
Pour un grand réseau d'égouts, le puits de révision doit être plus grand. Il peut mesurer jusqu'à un mètre et demi de diamètre. Souvent, il est équipé de marches le long desquelles vous pouvez descendre à l'intérieur - pour des travaux de réparation. Le nettoyage de ces réservoirs est effectué uniquement en rinçant les tuyaux avec une forte pression d'eau (jet haute pression).

Une autre variété est un puits de stockage, également appelé collecteur ou prise d'eau. Comme son nom l'indique, il est nécessaire pour recueillir l'eau puis pomper tout son volume dans la gouttière. Le puits de stockage est un conteneur de grand diamètre et volume. Chaque tuyau du système de drainage y est connecté. Un tel réservoir doit être équipé là où il ne sera pas possible d'aménager un puits filtrant ou d'assurer autrement l'évacuation des eaux collectées par les égouts. Habituellement, ils essaient de placer des puits de stockage à l'extérieur du site.

Dans de tels cas, le réservoir de réception est équipé d'une pompe électrique, avec laquelle l'eau accumulée est pompée, afin d'arroser ensuite le jardin avec elle ou de la déverser dans un réservoir.
Un autre type est les puits filtrants. Il est conseillé de les disposer là où le sol n'est pas trop humide. Habituellement, ces sites sont situés assez loin des réservoirs naturels. Le type de filtre convient aux cas où le volume d'eau à pomper par jour ne dépasse pas 1 mètre cube.
En montagne ! ou travaux de surface
Après la question comment creuser un puits des anneaux de béton s'est un peu éclairci, il vaut la peine de se demander si comment isoler un puits à partir d'anneaux en béton.
La fonction principale d'isolation et de protection du tronc contre le gel est assurée par lyada. Cependant, avant de procéder à sa construction, il est nécessaire de procéder à la mise en place d'un élément tel qu'une zone aveugle en béton autour du puits.
La bordure en béton du col du puits doit être réalisée avec un chevauchement d'environ 50% de sa section, comme sur la photo présentée
Comme mentionné ci-dessus, la zone aveugle fixe l'embouchure du tronc et sert de base à la future Lyada. Cependant, avant d'équiper la zone aveugle, comme mentionné ci-dessus, les murs autour de l'embouchure du tronc doivent être recouverts d'argile propre et soigneusement assis, bien enfoncés en plusieurs passes.
La préparation du béton du puits ainsi réalisée permettra d'obtenir une fondation fiable avec un bon verrouillage hydraulique autour de la jonction de la structure de surface et de la partie souterraine, et d'obtenir une zone de travail confortable autour du puits.
Coupe transversale montrant les principaux éléments structurels
La dalle en béton est coulée selon la technologie classique avec renforcement par des éléments métalliques du corps de la dalle.
Liada est construite en bois, en brique, en pierre sauvage et artificielle.Il existe de nombreuses options pour une solution constructive, et leur mise en œuvre dépend directement d'un certain nombre de raisons objectives spécifiques, y compris les capacités financières.
A l'intérieur est placée soit une vanne manuelle pour le relevage de l'eau, soit une station de pompage. Lors de la pose d'une conduite d'eau avec alimentation par pompe, il est nécessaire de prévoir soit la possibilité d'évacuer l'eau du système, soit de prévoir des mesures contre le gel de la pompe et des communications pendant la saison froide.
Comme le montre la pratique à long terme, faire soi-même un puits en béton est encore la moitié de la bataille, il est nécessaire d'assurer la réparation d'un puits en béton.
La réparation de puits de ce type peut être courante et capitale. La réparation actuelle élimine toutes les lacunes mineures qui surviennent lors de son fonctionnement, y compris la désinfection périodique du puits de puits avec de l'eau de Javel et des réactifs spéciaux.
Avant la désinfection, il est souhaitable de réaliser un échantillon témoin sur un petit volume.
Une révision majeure est plus étendue et est nécessaire lorsque :
- Le niveau de la colonne d'eau s'est élevé radicalement sous l'effet des alluvions de sable dans la partie inférieure du tronc.
- Déplacement et séparation des anneaux avec destruction des serrures et coutures en argile.
- Baisse du niveau de l'eau et détérioration de sa qualité due à l'envasement du bassin versant.
- Percée d'un coussin d'argile à l'endroit de l'imperméabilisation dans le col du tronc.
Certains de ces travaux doivent être faits manuellement, avec le pompage maximum possible d'une colonne d'eau du tronc. Il ne sera pas superflu de rappeler le respect des consignes de sécurité lors de tels travaux.
Parfois, il serait plus rationnel d'impliquer des spécialistes d'organisations spécialisées et spécialisées dans la réalisation de ces travaux.
Effectuer des travaux de nettoyage manuel du puits est associé non seulement à des inconvénients, mais également à un certain risque.
Une partie des travaux, comme l'infiltration de sable et de limon, peut être effectuée à distance. Dans ce cas, vous aurez besoin d'une pompe de drainage puissante et d'une alimentation en eau propre pour l'alimenter au puits.
En fournissant de l'eau et en éliminant les dépôts sous pression, puis en pompant l'excédent, il est possible dans certains cas de rétablir l'écoulement normal de l'eau sans même se mouiller les pieds.
Le nettoyage à distance est beaucoup plus sûr, bien qu'il nécessite certaines compétences et un équipement de flux de travail supplémentaire.
Vous pouvez en savoir plus sur les opérations pendant les travaux de réparation à partir de la vidéo de cet article.
Comment économiser sur la construction ?
S'il n'est pas possible d'utiliser un équipement spécial lors de l'installation et que les finances ne vous permettent pas d'attirer une équipe de travailleurs, essayez d'utiliser ces méthodes.
Au lieu du creusement traditionnel d'une fosse avec immersion ultérieure des anneaux, utilisez une technologie dans laquelle le sol est progressivement retiré au fur et à mesure que l'anneau s'approfondit. Il est basé sur le fait que l'anneau tombe sous l'influence de son poids. La tâche du maître est de creuser le sol à l'intérieur de l'anneau et sous son mur.
La technologie de "creuser" les anneaux posés au sol n'est utilisée que lors de l'installation de produits sans fond
Le fond en béton dans ce cas devra être coulé plus tard. Et il sera situé exclusivement à l'intérieur du ring.
Un inconvénient important de la méthode décrite est l'impossibilité d'effectuer de la chaleur et de l'imperméabilisation sur les parois extérieures de la structure. De plus, du fait que le fond est situé à l'intérieur de l'anneau, la fiabilité de la structure est réduite.
Dans un effort pour réduire le coût de la structure elle-même, les maîtres proposent une variante de la construction de la structure, qui ressemble à un triangle.

Les réservoirs de stockage sont la base d'un triangle isocèle, et leur col commun est son sommet.
En choisissant cette option d'agencement, vous économiserez de l'espace pour placer des anneaux et pourrez réduire considérablement la quantité de travail au sol.
Mais lors de l'installation, tenez compte du fait que l'entrée de révision dans cette conception sera une pour trois anneaux. Par conséquent, tous les débordements doivent être placés en dehors de la zone de son accessibilité.
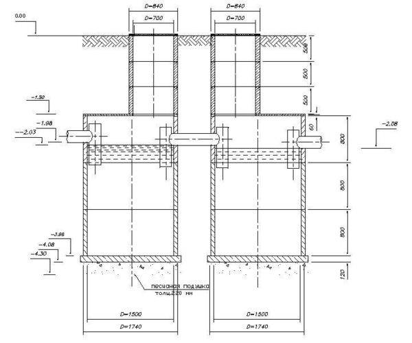
Calcul de la capacité et choix de la conception de la fosse septique
Le volume des eaux usées est la valeur de base prise en compte lors de la conception de toute station d'épuration. Les normes sanitaires le fixent à hauteur de 200 l/jour et par personne. De plus, la capacité de la fosse septique doit être égale à 3 volumes quotidiens d'eaux usées. Sur la base de ces deux conditions, la capacité de la structure peut être calculée. Ainsi, par exemple, une famille de 4 personnes aura besoin d'une fosse septique d'un volume de : 4 x 200 l / personne x 3 = 2 400 litres. (2.4m3).

Le deuxième problème à résoudre est le nombre de chambres de nettoyage : une, deux ou trois. Si pas plus de 3 personnes vivent en permanence dans la maison de campagne, vous pouvez vous limiter à une seule caméra.
Avec un plus grand nombre d'habitants (4-6 personnes), l'assainissement dans la maison de campagne des anneaux en béton est à deux chambres. Il résiste mieux à un grand débit d'eaux usées. Trois cuves de nettoyage sont utilisées dans les maisons où vivent plusieurs familles.
Chaque chambre de la fosse septique effectue certaines tâches:
- Dans le premier, la sédimentation des effluents et la décomposition anaérobie (sans oxygène) de la matière organique ont lieu. Les particules lourdes coulent ici vers le bas, tandis que les particules légères flottent vers le haut.L'eau clarifiée s'écoule à travers le tuyau dans la deuxième chambre;
- Dans la deuxième cuve, les effluents subissent un traitement bactérien complémentaire et sont évacués dans une tranchée ou un puits filtrant. La décomposition de l'oxygène (aérobie) de la matière organique a lieu ici.
Le choix de la méthode de filtration dépend du niveau de la nappe phréatique et du type de sol. Dans le puits absorbant, l'eau pénètre dans le sol par des parois perforées et un fond recouvert de gravillons fins.
Fosse septique à deux chambres en anneaux de béton armé avec puits filtrant
Avec un niveau élevé d'eau du sol et un sol qui n'absorbe pas bien l'humidité (argile, limon), une tranchée résorbable est réalisée (champ de filtration). Un tuyau perforé enveloppé de géotextile y est posé et recouvert de matériau de drainage (pierre concassée, gravier + sable). En raison de la grande longueur du tuyau et de la présence d'un lit filtrant, le processus de nettoyage final est normal même dans les sols lourds et humides.
Fosse septique à trois chambres avec une tranchée filtrante
Après avoir déterminé la capacité, le nombre de chambres et le type de structure de filtration, vous pouvez procéder au choix d'un emplacement sur le site. Un schéma vous y aidera. Il indique les distances minimales autorisées entre la station d'épuration et les sources d'eau, les arbres et la route.
Interruptions sanitaires entre la fosse septique, la source d'eau et les autres installations
D'après ce diagramme, on peut voir que la plus grande distance de l'installation d'égout doit être de la source d'eau potable (50 mètres). Sur un chalet d'été d'une superficie de 5 acres, cette exigence n'est pas réalisable. Ici, vous devrez installer un appareil pour désinfecter l'eau potable avec une lampe ultraviolette ou utiliser une bouteille importée.
En plus d'observer les pauses sanitaires, la fosse septique doit être placée de manière à ce que ses chambres soient accessibles par le tuyau du camion d'égout.
Procédure de fabrication
Vous devez d'abord trouver la zone la plus plate. Une tôle de fer est posée dessus. Ensuite, vous devez installer le coffrage extérieur. S'il est nécessaire de réaliser un anneau à rainure et languette, il est nécessaire de poser le façonneur de rainure par le bas. Après cela, l'installation du treillis d'armature est effectuée.

Procédez ensuite à la pose du coffrage intérieur. Il doit être fixé à l'extérieur. La solution est versée dans le formulaire résultant pour les anneaux en béton. À cette fin, une pelle ou un autre appareil est utilisé. Dès que l'anneau est complètement rempli, une vibration doit être effectuée. Si nécessaire, un anneau de crête est posé sur le dessus.
À l'usine, le décapage est effectué presque immédiatement après le compactage du béton. Une solution dure durcit assez rapidement. Le kit de coffrage est utilisé pour le produit suivant. Pour retirer le coffrage, il est nécessaire de retirer les doigts fixant les parties intérieure et extérieure. Le videur placé sous l'anneau est laissé en place jusqu'à la solidification complète du produit.
Technologie et étapes de construction d'un puits à partir d'anneaux en béton
Il est peu probable que quiconque coule des anneaux de béton par lui-même, car il s'agit non seulement d'un processus complexe et long, mais également dénué de sens. Il est beaucoup plus facile d'acheter des produits prêts à l'emploi dans la bonne quantité, ce qui est facile à calculer, connaissant la profondeur des eaux souterraines.
Construction d'un puits avec pose alternée d'anneaux
La mine est toujours creusée avec une pelle à manche court à la main, avec un tel outil ce sera beaucoup plus facile à gérer dans un espace limité.Lorsque le trou du diamètre correspondant atteint environ un demi-mètre de profondeur, vérifiez la planéité du fond et installez le premier anneau
Il est important qu'il soit exactement au milieu du puits et qu'il ne repose pas contre l'un des murs. Après cela, ils continuent à creuser le sol, mais déjà à l'intérieur du produit en béton armé. Au fur et à mesure que le sol est excavé, l'anneau s'approfondit progressivement sous son propre poids, et lorsqu'il atteint le bord supérieur du niveau du sol, l'anneau suivant est placé dessus et fixé avec des supports
Au fur et à mesure que le sol est excavé, l'anneau s'approfondit progressivement sous son propre poids, et lorsqu'il atteint le bord supérieur du niveau du sol, l'anneau suivant est placé dessus et fixé avec des supports.

Il arrive que le trou soit creusé, mais l'anneau ne tombe pas. Cela signifie qu'il est situé à une pente par rapport à l'axe vertical. Vous pouvez corriger la position, mettre un bouclier sur le dessus et jeter des pierres ou des ours du sol du côté qui doit être assiégé. Lorsque l'anneau commence à s'affaisser, le surpoids est supprimé. Ils continuent de descendre. Et ainsi de suite jusqu'à ce que l'eau commence à s'infiltrer au fond de la mine. Ils continuent à creuser encore un peu, pompant l'eau arrivée avec une pompe. Arrêter les travaux lorsque la mine atteint le premier aquifère. L'eau commencera à couler très rapidement. Mais ils continuent toujours à le pomper afin qu'il soit possible de niveler le fond et de poser le filtre inférieur, si cela est nécessaire dans un cas particulier.
Installation des bagues dans l'arbre fini
Il existe une autre méthode de construction, lorsque les anneaux sont abaissés à leur tour dans une mine complètement creusée jusqu'à l'aquifère. Mais cette méthode est moins populaire et n'est pas possible sur tous les types de sol. Il est également dangereux qu'à tout moment, même avant la pose, la terre puisse s'effondrer.Les anneaux en béton sont descendus dans la fosse à l'aide d'une grue, placés les uns sur les autres et fixés avec des supports en acier autour de la circonférence de la connexion.

Étanchéité intérieure
Toutes les coutures entre les anneaux sont scellées avec une solution ou une composition spéciale prête à l'emploi. Lors de leur lubrification, n'oubliez pas les fissures et les fosses qui, sous l'influence de l'humidité, s'effondreront rapidement et provoqueront une dépressurisation de la mine. Il est fortement déconseillé d'utiliser des solutions contenant du bitume, car elles peuvent altérer considérablement le goût de l'eau.

Étanchéité extérieure du puits
L'imperméabilisation du puits par l'extérieur empêchera l'eau de surface d'entrer dans la mine.Pour ce faire, ils fabriquent ce que l'on appelle le château d'argile. Une tranchée d'environ 0,5 m de large et de 1,5 à 2 m de profondeur est creusée autour des derniers anneaux, de l'argile y est coulée et bien compactée. En conséquence, il doit se situer légèrement au-dessus du niveau du sol plus près du puits et garantir que les sédiments quittent la pente de la mine.

Le site est en cours de bétonnage. Au cours des 2-3 prochaines semaines, l'eau doit être pompée plusieurs fois. Vous pouvez l'utiliser pour les besoins domestiques, mais pour boire, il est préférable qu'après une conclusion du laboratoire.
Recommandations supplémentaires
Lors de l'exécution de travaux, les conseils suivants seront utiles:
- pour savoir combien de produits en béton armé sont nécessaires pour construire un puits, vous devez connaître la profondeur de l'aquifère;
- en été, en utilisant un ensemble de coffrages en bois, vous pouvez créer environ 10 anneaux, puis vous en avez besoin d'un nouveau;
- il est recommandé de connecter les composants du bloc avec des supports en acier, sous lesquels les trous correspondants doivent être préparés ;
- les joints sont mieux scellés avec une corde goudronnée, 20 mm.Il est posé dans une rainure, préalablement préparée en anneaux. La haute densité du joint sera fournie sous le poids des anneaux eux-mêmes.
L'ensemble des travaux est disponible pour l'auto-apprentissage et peut être mis en œuvre avec succès dans la pratique.
La fabrication d'anneaux de puits en béton de vos propres mains à l'aide de coffrages en acier est illustrée dans la vidéo:
Approfondir un puits en creusant
Cette méthode diffère de celle décrite ci-dessus en ce que le puits est construit avec des anneaux de réparation par le haut. De plus, leur diamètre ne diffère pas de ceux qui ont déjà été installés.
En fait, il s'agit d'une continuation des travaux commencés il y a de nombreuses années avec le creusement initial du puits. Le principal danger lié à l'utilisation de cette méthode est la possibilité que l'ancienne colonne reste coincée dans le sol, surtout si le puits est situé sur des roches argileuses.
Réalisation de travaux préparatoires
On commence par fixer les anneaux. À chaque joint, nous fixons au moins 4 agrafes. Nous forons des trous pour eux, mettons des plaques métalliques de 0,4x4x30 cm et les fixons avec des boulons d'ancrage de 12 mm.
Ainsi, la colonne de tubage pourra résister à d'éventuels mouvements de terrain. Nous pompons l'eau du puits et retirons complètement le filtre inférieur, s'il était présent dans la structure.
Travaux d'approfondissement
Un ouvrier descend sur le relais et commence à creuser. D'abord, il sélectionne le sol du milieu du bas de la structure, puis de la périphérie. Après cela, il commence à creuser sous deux points opposés à partir des bords de l'anneau inférieur avec une profondeur de 20-25 cm.
Ce n'est plus nécessaire, sinon il y a un risque de descente incontrôlée de l'élément.Ensuite, le tunnel est progressivement élargi jusqu'à la zone annulaire.
Pendant le fonctionnement, la colonne doit se tasser sous son propre poids. De nouveaux anneaux sont placés sur l'espace libéré en haut. Le sapement est effectué jusqu'à ce que l'eau commence à arriver très rapidement.
Il convient de noter que l'affaissement de la colonne ne se produit pas toujours, surtout si le puits est « plus ancien » que 1 à 2 ans. Dans les cas difficiles, la méthode de creusement latéral peut être utilisée pour abaisser un anneau coincé.

Cela ressemble à une spatule, qui est utilisée pour creuser latéralement des anneaux. Le manche, plus long que 40 cm, doit être courbé pour plus de confort et de précision
Considérez-le sur l'exemple avec l'anneau inférieur. Nous effectuons le creusement comme déjà décrit. Ensuite, nous prenons trois supports en chanvre ou solides d'une barre et les plaçons sous l'anneau de sorte qu'il y ait une distance d'environ 5 cm entre eux et le bord inférieur.
Ces appuis reprendront ensuite tout le poids de la structure installée. Ensuite, en deux sections opposées, nous retirons la solution d'étanchéité de l'espace annulaire.
Nous insérons des arrache-clou dans les interstices résultants, et deux personnes, agissant simultanément comme un levier, peuvent essayer d'abaisser l'anneau. Si tout le reste échoue, nous prenons une spatule spéciale pour saper les parois latérales.
Pour son manche, on utilise des raccords de 10 cm de long et 14 mm de diamètre. La partie coupante de 60x100 mm est en tôle de 2 mm. Nous insérons la spatule à 2-3 cm de la paroi extérieure de l'anneau et procédons à l'évidement de l'argile.
Pour ce faire, frappez la poignée avec une masse de bas en haut. Ainsi, on passe tout l'anneau à l'exception des sections sous lesquelles il y a des supports. Nous avons réussi à retirer l'argile à une hauteur de 10-15 cm du bord inférieur de l'anneau.
Vous pouvez maintenant réessayer la tentative d'abaissement avec les arrache-clou ou tout autre levier. Sinon, prenez la lame suivante. La longueur de son manche doit être supérieure de 10 cm.Nous effectuons des étapes similaires.

À la fin des travaux de réparation, vous devez à nouveau inspecter toutes les coutures et les sceller soigneusement, puis les recouvrir de mastic
Une petite remarque : lorsque la longueur du manche de la pelle atteint 40 cm ou plus, il faudra le plier un peu. Il sera donc plus pratique de travailler. Avec un creusement latéral approprié, la paroi extérieure de l'anneau est progressivement libérée et elle s'installe. De même, des travaux sont menés sur d'autres anneaux.
Travail final dans le puits
À la fin travaux d'approfondissement toute l'eau contaminée est retirée de l'installation. Toutes les coutures entre les anneaux sont solidement scellées et scellées. Si des dommages aux anciennes coutures sont constatés, ils sont également éliminés.
Au bas de la structure, nous posons un nouveau filtre inférieur de la conception souhaitée. Ensuite, nous désinfectons les murs de la mine avec une solution de chlore ou de manganèse. Le puits est prêt à être utilisé.
N'oubliez pas que le fonctionnement normal de l'exploitation minière de la prise d'eau et la préservation de son abondance en eau sont directement liés à un arrangement compétent, dont les règles de mise en œuvre seront introduites par l'article que nous avons proposé.
Travaux préliminaires
Sélection de l'emplacement
L'installation de fosses septiques à partir d'anneaux en béton commence par le choix d'un emplacement pour cette station d'épuration. Bien sûr, de nombreuses personnes souhaitent réduire les coûts de main-d'œuvre pour la pose des tranchées de la maison au réservoir, mais néanmoins, certaines restrictions dues à la nécessité de maintenir un état sanitaire doivent être prises en compte sans faute.

Schéma montrant les principaux revers de la station d'épuration
Donc, nous avons une fosse septique :
- pas à moins de 5 m d'un bâtiment résidentiel;
- pas à moins de 50 m du point de prise d'eau (puits, puits);
- pas à moins de 5 m de la route;
- à moins de 3 m des arbres fruitiers et des arbustes à baies.
De plus, lors du choix d'un lieu, je conseillerais de rechercher une petite colline (sinon la fonte et l'eau de pluie s'écouleront dans la fosse septique à partir d'une grande surface).

Ne fais pas ça, c'est trop près de chez toi
Il sera également utile d'aménager une entrée pratique: même la fosse septique la plus efficace doit être pompée en cas de débordement, nous quittons donc le chemin des équipements d'égout sans faute.
Calcul des volumes
La prochaine étape est le calcul du volume requis des chambres de notre station d'épuration. Comprendre comment calculer une fosse septique est assez simple :

Deux anneaux, comme sur le schéma, peuvent ne pas suffire
Le volume est calculé par la formule :
V \u003d n x 3 x 0,2, où :
- V est la capacité requise de la fosse septique en mètres cubes;
- n - le nombre de personnes vivant dans une maison reliée à une fosse septique ;
- 3 - le nombre moyen de jours pendant lesquels une partie des déchets est complètement traitée ;
- 0,2 - le volume quotidien moyen d'eaux usées (en mètres cubes) par personne.
A titre d'exemple, on calcule le volume d'une fosse septique pour 3 personnes :
V \u003d 3 x 3 x 0,2 \u003d 1,8 m3. C'est le minimum à partir duquel vous pouvez commencer. Il s'avérera que vous en ferez plus - faites plus, moins souvent vous devrez pomper.
Calculons maintenant combien d'anneaux en béton de taille standard (1 m de haut et 1 m de diamètre) sont nécessaires pour équiper les alvéoles :
- Le volume d'un anneau est de 0,785 m3 ;
- On ne peut utiliser la bague supérieure que pour 1/3 du volume, c'est-à-dire sa capacité sera d'environ 0,26 m3 ;
- Par conséquent, pour un conteneur, nous avons besoin d'un minimum de 0,785 + 0,785 + 0,26 = 1,83 m3, c'est-à-dire trois anneaux.

Variantes avec différentes formes de puits, mais avec le même volume effectif
Enfin, nous décidons du nombre de caméras. En règle générale, une conception à deux chambres est suffisante pour une zone suburbaine - avec un puisard et un puits de filtration. Si nous construisons une fosse septique pour une grande maison qui utilise des volumes d'eau importants, il est conseillé d'installer une troisième chambre ou de fixer en plus un tuyau à la fosse septique pour la sortie vers le champ de filtration.
Sélection des matériaux
La technologie des fosses septiques n'implique pas l'utilisation de matériaux coûteux, cependant, compte tenu de la quantité de travail, je dois noter que le prix sera de toute façon très, très important.

C'est l'élément principal de la conception
Pour la construction d'une station d'épuration, nous aurons besoin de :
- anneaux en béton pour puits d'égout (taille standard);
- couvercles pour puits d'égout;
- regards d'égout avec couvercles (fonte ou polymère);
- gravier pour le drainage;
- sable pour le remblayage;
- ciment pour sceller les joints entre éléments et pour réaliser les semelles des fondations;
- matériaux d'étanchéité (matériau de toiture, mastic, verre liquide);
- tuyaux d'égout extérieurs.

Nous faisons des communications à partir de tuyaux pour les travaux extérieurs
De plus, pour le fonctionnement efficace de la fosse septique, il est souhaitable d'acheter une culture bactérienne spéciale contenant un complexe de micro-organismes pour une utilisation efficace de la matière organique.
Produit biologique pour la décomposition de la matière organique














































