- Types de siphon
- Conseils de designers professionnels
- Comment installer un siphon d'évier
- Utilisation de supports de montage
- Erreurs d'installation, leurs causes et solutions
- Installation du produit mural
- Outils requis
- Phase préparatoire
- Technique d'assemblage de robinetterie et de lavabo
- Fixation du lavabo au mur
- Raccordement aux réseaux d'aqueduc et d'égout
- Démantèlement de l'ancienne plomberie
- Sélection d'évier
- Comment installer un lavabo sur colonne
- Vidéo - Comment installer un évier avec colonne
- Caractéristiques du montage d'un évier intégré
- Marquage du site d'installation
- Sciage et délignage
- Installation du bol et équipement de raccordement
- Lavabos au sol avec colonne
Types de siphon
Siphon - un mécanisme situé directement sous l'évier, semblable à la lettre S, relie la cuvette du lavabo et l'égout.
Types de siphon :
- 1. Sous forme de bouteille. Équipé d'un système de verrouillage de l'eau, il peut également être connecté à une vidange d'eau d'une machine à laver, la possibilité d'effectuer un auto-nettoyage. Souvent, un siphon sera utilisé avec un système de trop-plein.
- 2. Le modèle tubulaire du siphon est réalisé sous la forme d'un tuyau avec des coudes. Le coude du tuyau fournit un obturateur des odeurs d'égout.
- 3. Le siphon ondulé est similaire au type tubulaire, mais a une structure en plastique, peut changer de forme et réduire sa taille.
- 4. Siphons avec système de trop-plein.Tout type de siphon peut être équipé d'un système de trop-plein qui protège l'évier du débordement. Le siphon a un tube supplémentaire qui se connecte au trou sur le côté de l'évier.
Conseils de designers professionnels
De nombreux experts recommandent de tels types d'éviers qui répondraient aux normes d'hygiène. Dans ce cas, une excellente solution serait d'acheter des produits en porcelaine. Ils répondent pleinement aux normes de qualité, ont une résistance élevée à l'usure. De plus, la porcelaine est un matériau du segment de prix moyen, ce qui signifie qu'elle est accessible à tous.
Utilisez les conseils d'un personnel qualifié dans la sélection d'un évier suspendu et d'autres appareils de plomberie, vous n'aurez donc pas à changer ou à réparer souvent les appareils de plomberie.
Faites attention au style de la salle de bain. Si vous êtes dominé par les couleurs pastel délicates, alors la meilleure option serait un modèle en verre ou en faïence / porcelaine blanche
Au lieu d'un brillant brillant, vous pouvez choisir du verre dépoli, qui ne se salit pas si facilement et masque partiellement les éclaboussures volant dans toutes les directions.
De plus, faites attention au fabricant. Par exemple, les modèles italiens de la marque Kerasan sont de grande qualité.
L'entreprise est depuis longtemps engagée dans la fabrication d'accessoires et de meubles élégants pour salles de bains.
Lors de l'achat d'un évier suspendu, n'oubliez pas le matériau de fabrication et la taille. Pour les salles de bains spacieuses - grands modèles, pour les petites salles de bains - compactes.
Si vous êtes perdu, choisissez des produits de taille standard. Ceux-ci conviennent à une installation dans n'importe quelle salle de bain, et vous n'avez pas à dépenser d'efforts et d'argent pour les connecter.
Mais n'oubliez pas que la chose la plus importante dans le choix d'un évier suspendu est de le rendre aussi pratique que possible à utiliser, durable, fiable et sûr pour tous les membres de la famille. Après avoir choisi le modèle que vous aimez, familiarisez-vous avec les règles d'installation et d'installation à domicile.
Comment installer un siphon d'évier
Un siphon est un tuyau coudé installé entre l'évier et le tuyau d'évacuation. Le siphon est conçu pour éviter les odeurs désagréables dans la salle de bain. De plus, les débris sont retenus dans le siphon et peuvent être retirés afin qu'ils ne pénètrent pas plus loin dans la canalisation d'égout.

Pour installer un siphon de vos propres mains, vous avez besoin de:
- Installez un puisard au bas du siphon, en scellant la connexion avec un joint.
- Installez un écrou d'accouplement en plastique sur le tuyau de sortie, puis un joint en forme de cône. Ce joint doit être situé à quelques centimètres du bord de la buse.
- Connectez le tuyau de sortie au flacon. L'écrou doit être serré uniquement avec vos mains, et non avec un outil, afin qu'il n'éclate pas.
- Raccordez le siphon au tuyau de sortie avec un écrou d'accouplement. La connexion doit être scellée avec un joint.
- Connectez le tuyau de sortie à la sortie d'égout à l'aide d'un joint conique.
- Installez un treillis dans le trou de vidange de l'évier et fixez-le avec une longue vis.
- Vérifier le serrage des connexions. Pour ce faire, ouvrez le robinet et fournissez de l'eau.
Utilisation de supports de montage
L'installation d'un évier suspendu nécessite un peu moins de temps et peut également être réalisée à l'aide de coins métalliques spéciaux. Ils viennent généralement avec. Au total, au moins 4 plaques de montage sont nécessaires, qui seront fixées à l'extérieur de l'armoire avec des vis autotaraudeuses.Étant donné que la paroi du meuble-support dépasse rarement une épaisseur de 18 mm, les vis de l'ensemble mesurent 16 mm de long.
Le processus étape par étape ressemble à ceci :
- Nous vissons les vis de 5-6 mm.
- Nous y accrochons un coin de montage (avec la partie d'angle intérieure à l'armoire).
- Nous serrons les vis, mais pas complètement, laissant place au réglage.
- Nous posons l'évier sur le support de manière à ce que la puissante vis de fixation principale soit fixée au plus profond du coin métallique.
- Nous serrons les vis jusqu'à ce qu'elles s'arrêtent et nous nous assurons que la fixation est sécurisée
Erreurs d'installation, leurs causes et solutions
Parfois, une fois l'installation terminée ou quelque temps après l'installation, il s'avère que l'évier avec le piédestal a été mal installé.
Plusieurs symptômes qui l'indiquent :
- l'évier est bancal;
- le piédestal vacille ;
- il y a un espace entre le bol et le piédestal ;
- il y a un espace entre le bol et le mur.
La plupart de ces problèmes peuvent être résolus sans démonter le produit. Si votre lavabo sur le piédestal a commencé à marcher et à trembler d'un simple toucher, le problème est au niveau. Lors du montage, bien sûr, vous avez utilisé le niveau à bulle, mais peut-être pas assez fort.
Utilisez le niveau littéralement à chaque étape. Pour ne pas mesurer cent fois la même chose, faites vous-même des repères au crayon pour vous orienter
S'il s'avère que les fixations ne sont pas au même niveau, cela doit être corrigé. Une grande différence de hauteur n'est corrigée qu'avec de nouvelles fixations, et une petite peut être corrigée en tordant légèrement la goupille de montage.
Pour corriger légèrement la position du lavabo, vous pouvez mettre un tampon en caoutchouc plus épais sous le support ou, si le diamètre du trou dans le lavabo le permet, déplacer un peu le lavabo et appuyer dessus avec un boulon
Si le lavabo lui-même est maintenu uniformément et que seul le piédestal vacille, le problème se situe dans la base. Un sol parfaitement plat est une rareté. Peut-être que votre plot a heurté la jonction des dalles de sol ou que le problème vient de la chape elle-même, mais si vous ne souhaitez pas niveler le sol, utilisez du silicone.
En séchant, il crée une couche assez dense qui compense la déformation. Marchez le silicone le long de la jonction des "jambes" et du sol. La même solution convient pour éliminer l'espace près du mur ou entre la vasque et le socle. Le mastic silicone est un élément indispensable dans l'arsenal de plomberie.
Installation du produit mural
Outils requis
Fixez l'évier au mur aidera ces outils:
- tournevis puissant;
- clé à gaz;
- perceuse électrique avec forets de 6, 8, 10 mm;
- une perceuse conçue pour le travail du béton, équipée d'une pointe pobedit;
- plusieurs clés;
- le niveau qui détermine l'horizontale ;
- marqueur avec une fine tige;
- un marteau.
Pour serrer les connexions filetées, vous devez acheter à l'avance du ruban FUM dans le magasin, mais vous pouvez vous en tirer avec un câble ordinaire. Faites le plein d'attaches.
Phase préparatoire
Avant de fixer le lavabo au mur, il est nécessaire d'amener les communications sur le site d'installation, à savoir les tuyaux d'eau chaude et froide. Ils peuvent être en métal-plastique, en métal et en PVC, assurez-vous de vérifier l'état des tuyaux pour détecter les fuites. Installez une vanne à la sortie de chaque tuyau, ce qui, si nécessaire, aidera à arrêter l'écoulement de l'eau. Le meilleur choix est une valve en chrome.
L'évier doit être fixé à un niveau de 80 cm, à compter du haut du lavabo jusqu'au sol.
Avant d'accrocher l'évier au mur, faites une marque sur le mur avec un marqueur où exactement l'appareil sera placé. A travers 2 points, tracez une ligne située horizontalement par rapport à la surface du sol. C'est le principal point de référence pour le montage de l'unité.
Chaque évier a des trous à travers lesquels le lavabo est fixé. Fixez une règle et mesurez la distance entre les trous, mesurez la valeur résultante sur le mur. Ainsi, vous devriez avoir 4 marques : une ligne horizontale, un point de fixation central pour le produit et une paire de marques calculées pour les boulons.
Vous devez commencer le processus en perçant un trou dans les panneaux de carreaux. Ensuite, remplacez la perceuse par une plus grande et faites des trous pour les fixations dans le mur. Insérez les chevilles dans les trous, notez qu'elles doivent entrer avec beaucoup d'effort.
Technique d'assemblage de robinetterie et de lavabo
Dans la plupart des cas, les spécimens muraux sont déjà mis en vente par le fabricant avec un trou dans l'étagère pour le montage du robinet sur le lavabo.
Fixez le robinet au trou de l'évier, retournez ce dernier et serrez fermement le robinet avec l'écrou
Faites attention à la manière dont le bec du mitigeur est placé symétriquement par rapport au lavabo
Fixation du lavabo au mur
Il ne sera pas possible d'accrocher l'évier au mur sans le kit de fixation approprié, y compris les goujons et les joints.
Installez les goujons sur les chevilles. Tout d'abord, "mettez" une paire d'écrous sur le goujon, puis utilisez la clé et vissez chaque goujon.
Il est maintenant temps d'appliquer du mastic silicone à l'extrémité du lavabo, c'est-à-dire à la zone où il entre en contact avec la structure du mur.Placez le lavabo sur les goujons, installez les joints et serrez bien les fixations. "Secouez" légèrement l'appareil d'un côté à l'autre, s'il n'y a pas de vibrations ni de mouvements - le travail de fixation du lavabo au mur peut être considéré comme terminé.
Raccordement aux réseaux d'aqueduc et d'égout
Enroulez le linge autour du filetage de la valve en le lubrifiant avec une pâte spéciale, par exemple "Unipak". Connectez les tuyaux du mélangeur aux tuyaux et serrez-les avec une clé à molette. N'en faites pas trop - cela peut provoquer une ruée vers le matériau de rembourrage. L'évier est maintenant relié à la plomberie. Il reste à travailler avec l'égout.
Assurez-vous que toutes les connexions sont sécurisées
Placez le siphon sur le lavabo. Avant d'assembler le siphon, lisez les instructions d'installation en détail. Vérifiez que tous les joints sont bien alignés avec l'évier. Positionnez le tuyau du siphon au drain d'égout. Allumez une petite quantité d'eau et voyez si le mur est mouillé. Si tout est en ordre - vous pouvez être félicité, l'évier mural est installé !
Démantèlement de l'ancienne plomberie
Notez que le kit de plomberie que vous avez acheté comprend en règle générale non seulement des fixations, mais également des joints élastiques spéciaux pour l'évier et le piédestal. Avant de monter les éléments structurels dans le mur, à l'aide d'un perforateur, des trous sont percés pour les fixations, dans lesquels des chevilles en plastique sont fixées à la colle.
Ensuite, à l'aide de tuyaux flexibles, les robinets du réseau d'alimentation en eau sont connectés au mélangeur installé sur l'évier. Après cela, il sera possible de procéder au raccordement du drain de l'évier, qui est monté conformément aux règles connues (avec l'installation d'un système de trop-plein et d'un siphon raccordé à l'égout).
Nous vous suggérons de vous familiariser avec le Raptor sauve des puces rapidement et pour toujours
Après avoir installé le piédestal en place, il ne reste plus qu'à serrer enfin les boulons de fixation, tout en nivelant l'évier. Après avoir terminé ces procédures, il sera possible d'ouvrir l'alimentation en eau et de s'assurer qu'il n'y a pas de fuites. Nous vous conseillons de regarder en plus une vidéo qui montre le processus d'installation d'un évier avec un piédestal.
Assurez-vous que l'ensemble de plomberie que vous avez acheté comprend, dans la plupart des cas, non seulement des fixations, mais également des joints élastiques spéciaux pour le piédestal et l'évier. Avant de monter les éléments structurels dans le mur, à l'aide d'un perforateur, des trous sont percés pour les fixations, dans lesquels des chevilles en plastique sont fixées à la colle.
Tout d'abord, un évier est fixé au mur à l'aide de boulons spéciaux avec joints, qui sont pré-alignés avec la ligne d'horizon. Lors de l'installation de la plomberie, les boulons sont d'abord «pris» dans les chevilles, puis soigneusement (sans durcissement excessif) sont tirés jusqu'à un état qui assure un ajustement parfait de l'évier au mur.
A la fin de l'installation du plot en place, il ne reste plus qu'à serrer complètement les boulons de fixation, en lissant à un moment l'évier au niveau. Après avoir terminé ces procédures, il sera possible d'ouvrir l'alimentation en eau et de s'assurer qu'il n'y a pas de fuites. Nous vous recommandons de regarder en plus une vidéo qui montre le processus d'installation d'un évier avec un piédestal.
Dans le cas de l'installation d'un nouvel évier à la place d'anciens équipements, il est important de connaître la séquence d'actions pour retirer l'ancienne plomberie. Lors du démontage de l'ancien évier, les travaux sont effectués dans l'ordre suivant:
Lors du démontage de l'ancien évier, les travaux sont effectués dans l'ordre suivant:
L'eau est coupée et les vannes du robinet sont fermées.
Supprimé s'il y a un piédestal.
Le support du robinet est dévissé au fond de l'évier et le robinet est retiré.
Le siphon est dévissé du col de l'évier, l'eau en est soigneusement évacuée.
Le tuyau de siphon est retiré du trou d'égout, qui est fermé avec un bouchon spécial ou un sac en plastique pour bloquer les odeurs désagréables.
Les écrous qui fixent l'évier sont dévissés et retirés.
Lors de l'installation d'une nouvelle plomberie, il est conseillé de ne pas utiliser d'anciens tuyaux d'eau flexibles et un siphon, qui peuvent fuir lors de la réinstallation en raison de joints en caoutchouc usés.

Avant d'installer un nouvel évier, vous devez retirer l'ancien. La procédure de démontage de l'ancien évier est la suivante :
- Dévisser les raccords du mélangeur.
- Débranchez la conduite d'alimentation en eau.
- Retirer le mélangeur.
- Dévissez les fixations du siphon et retirez-le. Si le siphon doit être remplacé, il doit être déconnecté du tuyau de vidange.
- Fermez toutes les ouvertures avec un bouchon. Si vous envisagez d'installer un nouvel évier avec un piédestal, ce n'est pas nécessaire.
- Retirez l'ancien évier.
Sélection d'évier
L'équipement de la salle de bain moderne est très beau et high-tech. Il existe une vaste sélection d'appareils sanitaires, ce qui vous permet de réaliser une variété de projets de conception. Dans la poursuite de l'apparence de la salle de bain, n'oubliez pas la commodité. L'équipement doit être aussi confortable que possible pour la personne effectuant les procédures d'hygiène. Les dimensions de l'équipement sont importantes lors du choix.

Avant d'acheter un évier avec un piédestal, la première étape consiste à prendre toutes les mesures à l'endroit où il se trouvera, puis à choisir un évier aux dimensions appropriées.
Un lavabo encombrant peut occuper la majeure partie de l'espace dans une salle de bain, tandis que l'installation d'un lavabo trop petit peut causer des désagréments. Dans les magasins spécialisés, il existe un grand nombre d'options de plomberie qui remplissent toutes ces conditions et remplissent leurs fonctions. Cependant, l'installation d'un évier traditionnel avec un piédestal reste la plus préférée. Un tel lavabo a un aspect esthétique, est assez compact et pratique, tandis que le piédestal vous permet de couvrir des tuyaux de plomberie pas trop esthétiques
Comment installer un évier avec un piédestal sera décrit ci-dessous, mais vous devez maintenant faire attention au choix de l'équipement
Avant d'aller au magasin de plomberie, vous devez mesurer l'endroit où il est supposé. Cela vous permettra de déterminer la taille de l'équipement de plomberie. Comme le montre la pratique, la taille optimale de l'évier est de 55 à 65 cm.Si vous souhaitez installer un bol plus petit, ce ne sera pas pratique, car l'eau pendant les procédures tombera certainement sur le sol et les murs. Un grand lavabo prendra trop de place, ce qui n'est pas toujours acceptable même dans des pièces spacieuses. Quant à la hauteur du socle, elle doit être suffisante pour que la personne n'ait pas à trop se pencher lors du lavage.

Schéma de la structure d'une coque avec un piédestal.
L'apparence de la cuvette de l'évier peut être très différente. Les concepteurs conseillent de choisir un piédestal de forme similaire à la forme d'un bol.Si la vasque est carrée ou rectangulaire, il est alors recommandé d'installer un socle cubique, alors qu'un lavabo arrondi par exemple nécessitera le même socle arrondi. Les mêmes recommandations s'appliquent au matériau à partir duquel l'équipement de plomberie est fabriqué. Le matériau doit être le même. Pour augmenter la fonctionnalité, vous pouvez choisir un piédestal sous l'évier, qui comporte diverses étagères où les articles nécessaires dans la salle de bain s'adapteront.
Il convient également de prêter attention au type d'évier: il peut être sourd ou avoir. Les deux options sont acceptables, cependant, il convient de garder à l'esprit que la deuxième option nécessitera l'installation d'une prise supplémentaire. C'est bien qu'il y ait un trou de trop-plein dans l'évier, puis en cas de problème avec le drain, l'eau n'ira pas au sol, mais à l'égout
Avant d'acheter, vous devez à nouveau inspecter soigneusement l'équipement que vous aimez et vous assurer qu'il n'y a pas de rayures, d'éclats ou d'autres défauts dessus. Il vaut la peine d'essayer de placer l'évier sur le piédestal sélectionné. Il doit correspondre parfaitement en couleur et avec suffisamment de précision pour entrer dans l'endroit qui lui est destiné.
C'est bien qu'il y ait un trou de trop-plein dans l'évier, puis en cas de problème avec le drain, l'eau n'ira pas au sol, mais à l'égout. Avant d'acheter, vous devez à nouveau inspecter soigneusement l'équipement que vous aimez et vous assurer qu'il n'y a pas de rayures, d'éclats ou d'autres défauts dessus. Il vaut la peine d'essayer de placer l'évier sur le piédestal sélectionné. Il doit correspondre parfaitement en couleur et avec suffisamment de précision pour entrer dans l'endroit qui lui est destiné.
Maintenant que le choix du lavabo sur colonne est fait, l'installation peut commencer.
Comment installer un lavabo sur colonne
Avant l'installation, l'ensemble évier + colonne ressemble exactement à ceci
Lorsque la salle de bain est complètement prête pour l'installation de la nouvelle plomberie, vous pouvez prendre un nouvel évier et un piédestal et les mettre en place pour une installation future. Avec l'aide de la construction, l'horizontalité du lavabo et la verticalité des «pieds» doivent être atteintes, après quoi, avec un crayon sur le mur, faites des marques aux endroits des trous de montage.
À l'aide d'un outil de construction, vous devez réaliser l'horizontalité du lavabo et la verticalité des «pieds», après quoi, avec un crayon sur le mur, faites des marques aux endroits des trous de montage
Il est nécessaire de vérifier l'exactitude du balisage en mesurant la distance entre les trous de montage sur l'évier et entre les marques de crayon avec un ruban à mesurer. L'évier et le piédestal pour cela doivent être mis de côté pendant un certain temps pour plus de commodité.
Il est nécessaire de vérifier l'exactitude du balisage en mesurant la distance entre les trous de montage sur l'évier et entre les marques de crayon avec un ruban à mesurer.
Si votre évier va avoir un robinet, c'est une bonne idée de commencer à l'installer avant que l'évier ne soit fixé au mur. Cela vous permettra de faire une installation efficace et pratique. Le mélangeur est installé dans le trou technologique sur un joint en caoutchouc, il est fixé par le bas avec un ou deux écrous de fixation, qui sont fixés au kit.
La prochaine étape des travaux est la plus bruyante. À l'aide d'un perforateur (diamètre du foret 7 mm), vous devez creuser soigneusement les trous pour les supports exactement selon le marquage (les trous dans les carreaux de céramique sont percés avec une perceuse).
À l'aide d'un perforateur (diamètre du foret 7 mm), vous devez marquer avec précision les trous pour les supports exactement selon le marquage
Des goujons en plastique pré-préparés sont insérés dans les trous (vous pouvez utiliser une petite quantité de colle pour la résistance de l'installation des goujons), dans lesquels des supports métalliques sont vissés avec une clé à molette. Ensuite, des écrous à expansion en plastique (excentriques) sont vissés sur la partie filetée des supports. Les attaches sont vérifiées pour l'horizontalité et ajustées par des excentriques.
Des goujons en plastique pré-préparés sont insérés dans les trous (vous pouvez utiliser une petite quantité de colle pour la résistance de l'installation des goujons), dans lesquels des supports métalliques sont vissés avec une clé à molette
Maintenant, le piédestal et l'évier sont réinstallés, la structure horizontale et verticale de la structure est vérifiée. Si tout est parfait, vous pouvez serrer les écrous - pinces sur les supports (n'oubliez pas d'installer des joints en caoutchouc), puis procéder au raccordement de l'alimentation en eau et du siphon.
Si tout est parfait, vous pouvez serrer les écrous - pinces sur les supports
Par le bas, nous connectons des tuyaux d'eau flexibles au mélangeur et aux canalisations d'eau chaude / froide
Il est important de ne pas endommager les joints en caoutchouc. Si vous ne prévoyez pas d'installer un robinet et qu'un trou technologique est prévu dans le lavabo, il peut être fermé avec un bouchon décoratif spécial
Par le bas, nous connectons des tuyaux d'eau flexibles au mélangeur et aux canalisations d'eau chaude / froide
L'installation d'un siphon d'évier est décrite en détail dans l'un des articles du site. Après avoir lu les instructions étape par étape, vous pouvez facilement assembler cet élément de drainage.
Vidéo - Comment installer un évier avec colonne
Si, après l'installation, vous remarquez que l'évier est chancelant, les raisons suivantes peuvent en être la cause :
- sol inégal sous l'évier (remède - démontage soigneux du kit de plomberie et mise à niveau du sol);
- écrous de fixation insuffisamment serrés (le moyen de résoudre le problème consiste à serrer les écrous avec une clé à molette).
Lavabo sur colonne CEZARES
Les lavabos avec piédestal peuvent être installés non seulement à l'avant, mais également dans le coin de la salle de bain pour économiser de l'espace libre. La technologie d'installation est complètement identique, cependant, pour l'option d'angle, des travaux supplémentaires peuvent être nécessaires pour connecter les conduites d'alimentation en eau et d'égout.
Lavabo d'angle avec colonne
Caractéristiques du montage d'un évier intégré
Les modèles intégrés sont découpés dans le comptoir par le bas ou par le haut.
Chaque méthode d'installation a ses propres nuances:
- Lorsque le bol est placé sur le dessus, il dépasse de un à trois centimètres au-dessus de la surface.
- La méthode de raccordement inférieur est préférable car pendant le fonctionnement, il est pratique de collecter les éclaboussures en un seul mouvement.
Que l'évier soit complètement encastré dans l'armoire ou qu'il s'élève partiellement au-dessus de la surface, les raccords de vidange seront toujours situés à l'intérieur de l'armoire.

Si vous envisagez de monter un évier intégré, préparez-vous au fait que vous devrez effectuer le traitement parfait de tous les joints
Pour mettre en œuvre l'insert par le bas, des attaches en forme de L sont utilisées et la fixation est effectuée à la base du support.
Marquage du site d'installation
Pour simplifier le marquage du comptoir pour l'installation d'un évier encastré, l'utilisation d'un gabarit vous aidera. De nombreux fabricants leaders l'incluent dans le kit avec la plupart des modèles intégrés.
Lors de la détermination d'un lieu d'installation d'un lavabo, deux conditions sont guidées:
- L'évier ne doit pas être sur le bord ou juste contre le mur.
- Il devrait offrir un accès gratuit et une facilité d'utilisation.
L'intérêt de créer le balisage correct est que le lavabo soit fermement fixé dans le plan de travail, mais en même temps ne tombe pas à travers le trou de celui-ci.
Faute de gabarit, la coque est retournée et appliquée sur la surface. Dessinez un contour avec un simple crayon.

La ligne du contour intérieur recule traditionnellement au centre de 1,5 à 2 cm par rapport à la ligne extérieure; il sert de guide lors de la découpe d'un trou pour le bol
Afin de calculer correctement la distance entre les bords de la plomberie et les œillets des fixations, des mesures sont prises et transférées au contour encerclé. La taille résultante détermine la distance qui doit être retirée de la ligne afin de créer un contour interne qui agit comme un support pour les côtés du bol.
Sciage et délignage
Le trou pour l'installation du bol est réalisé à l'aide d'une scie sauteuse. Si vous devez travailler avec une scie à métaux, préparez-vous au fait que vous devez couper les bords.
Lorsque vous travaillez avec une scie à métaux, afin d'obtenir une coupe nette, un trou est d'abord percé dans la région de la ligne de marquage à l'intérieur du contour tracé. Son diamètre doit être tel que la lame de scie à métaux s'adapte librement.
Important! Pour minimiser le risque d'éclats sur la surface décorative du comptoir, le sciage doit être effectué lentement et sans effort excessif. Les surfaces d'extrémité du trou créé sont traitées avec du papier de verre à grain fin ou polies avec une lime.
Les surfaces d'extrémité du trou créé sont traitées avec du papier de verre à grain fin ou polies avec une lime.

Pour éviter les problèmes de fuite pendant le fonctionnement de l'équipement, les bords nettoyés du plateau coupé en 2-3 couches sont recouverts d'un composé d'étanchéité.
Lors du choix d'un scellant, il est important de se concentrer sur le type de matériau utilisé dans la fabrication des comptoirs. Ainsi, pour les revêtements en plastique et en bois, des imprégnations d'étanchéité à base d'alcool sont utilisées.
Installation du bol et équipement de raccordement
Le bol est installé dans le comptoir et approfondi. Pour assurer un ajustement serré, le produit est légèrement tourné d'avant en arrière. Après cela, il ne reste plus qu'à serrer les attaches installées et à retirer le silicone avec une serviette, qui est pressée lorsque le bol est en place. La structure assemblée et fixée est laissée pendant une journée jusqu'à ce que la composition adhésive sèche complètement.
Pour connecter l'équipement, un mélangeur est installé dans le trou, connecté aux tuyaux et fixé avec des attaches. La sortie du siphon est amenée dans l'évier, un tuyau y est attaché, qui est conduit dans la prise d'égout.
En général, la technologie de connexion du robinet et du siphon de l'évier encastré est presque identique à celle décrite lors de l'installation du modèle de console.
Les spécificités de l'assemblage d'un complexe à partir d'un comptoir et d'un évier à poser sont données ici, nous vous recommandons de vous familiariser avec un matériau très utile.
Lavabos au sol avec colonne
En plus des lavabos de type tulipe qui nous sont familiers, des modèles monolithiques posés au sol sont apparus dans l'assortiment des fabricants d'appareils sanitaires. Ils ont l'air très attrayants et esthétiques, transformant l'intérieur de la salle de bain. Vous pouvez installer des lavabos sur pied non seulement près des murs ou dans le coin, mais aussi au centre de la salle de bain, si la zone le permet.La principale difficulté lors de l'installation loin des murs est le raccordement des tuyaux de plomberie et d'égout. Cependant, des maîtres plombiers qualifiés s'acquittent de cette tâche, complétant souvent le lavabo avec un mitigeur de sol moderne.
Lavabo tulipe au sol monolithique avec robinetterie au sol
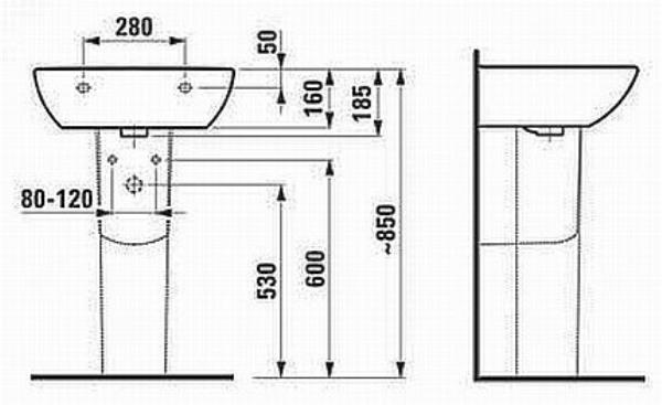
Lavabo sur colonne, dessin
Lavabo d'angle avec colonne
Évier avec piédestal, matériau - verre trempé, acier
Lavabos sur colonne (matériau - pierre naturelle)
Lavabo sur pied Sanitan Victorien
Par le bas, nous connectons des tuyaux d'eau flexibles au mélangeur et aux canalisations d'eau chaude / froide
Avant l'installation, l'ensemble évier + colonne ressemble exactement à ceci
Lavabo tulipe au sol monolithique avec robinetterie au sol
Lavabo sur colonne avec étagères
Comment installer un lavabo sur colonne
Lavabo sur colonne CEZARES
Si tout est parfait, vous pouvez serrer les écrous - pinces sur les supports
Des goujons en plastique pré-préparés sont insérés dans les trous (vous pouvez utiliser une petite quantité de colle pour la résistance de l'installation des goujons), dans lesquels des supports métalliques sont vissés avec une clé à molette
À l'aide d'un perforateur (diamètre du foret 7 mm), vous devez marquer avec précision les trous pour les supports exactement selon le marquage
Il est nécessaire de vérifier l'exactitude du balisage en mesurant la distance entre les trous de montage sur l'évier et entre les marques de crayon avec un ruban à mesurer.
À l'aide d'un outil de construction, vous devez réaliser l'horizontalité du lavabo et la verticalité des «pieds», après quoi, avec un crayon sur le mur, faites des marques aux endroits des trous de montage
C'est intéressant : comment éliminer le blocage dans toilettes sans piston - des moyens faciles













































