- Réparation plomberie vanne
- Types de vannes à pointeau
- Qu'est-ce qu'un robinet-vanne
- Types et avantages
- Robinets-vannes de gros diamètres
- Montage
- Comment régler la température dans l'appartement
- matériau de la soupape
- A quoi sert une vanne à bille ?
- Inconvénients des robinets à tournant sphérique
- De quoi sont faits les dispositifs de verrouillage ?
- Comment fonctionne une valve de roue - de quels éléments se compose-t-elle
- Cadre
- bobine
- Casquette
- Façons de régler le système de chauffage
- Vannes et robinets à tournant sphérique pour le raccordement de la plomberie VALTEC
- Comment choisir un robinet à tournant sphérique
- Appareil et principe de fonctionnement
- Quels types de robinets/mitigeurs existe-t-il ?
- soupape
- Levier unique
- avec thermostat
- Sans contact
- Conception et application du robinet à tournant sphérique
Réparation plomberie vanne
Si l'élément d'arrêt de la vanne est endommagé, il est remplacé par un ensemble similaire, non usé ou neuf. Pour ce faire, la section de canalisation est libérée du liquide, la bloquant des deux côtés. Ensuite, l'élément d'arrêt de type vanne est démonté. Le robinet à tournant sphérique est retiré complètement ouvert ou Sur les brides, les écrous sont torsadés en parallèle et progressivement - 3-4 tours chacun.
Tout d'abord, vous devez vérifier l'état des joints, qui sont remplacés lorsqu'ils sont usés. La plupart des fuites sont causées par la déformation des joints et des filetages dénudés en raison d'une mauvaise installation. Ensuite, le corps et le siège sont inspectés.En l'absence de fissures, l'ensemble est remonté. Le boîtier ne peut pas être réparé si des dommages mécaniques apparaissent dessus. La croissance du pipeline nécessite sa coupe et la nécessité d'un soudage supplémentaire.

Dans ce cas, vous devrez installer une vanne d'eau neuve ou réparée. Une personne non préparée ne doit pas entreprendre de réparations complexes en raison de l'ignorance de ses caractéristiques.
Les vannes d'arrêt créent une résistance supplémentaire, de sorte que des blocages peuvent se former au niveau des joints. Il n'est pas toujours nécessaire de retirer les soupapes. Parfois, il suffit de rincer les canalisations en ouvrant tous les robinets.
Le remplacement du joint d'huile peut être effectué avec précaution de vos propres mains. Pour ce faire, coupez l'alimentation en eau de la colonne montante, démontez le mécanisme de verrouillage, remplacez les joints et lubrifiez les pièces mobiles.
Types de vannes à pointeau
Les vannes à pointeau d'arrêt selon le principe de fonctionnement sont des types suivants:
- arrêt, bloquant complètement le flux;
- régulation, assurant un réglage précis du passage de la substance de travail;
- équilibrage, utilisé pour rediriger les flux entre les branches de tuyauterie connectées, vous permettant de modifier la pression hydraulique.
Le type de verrouillage des structures est capable de résister à des conditions de fonctionnement extrêmes, mais leur durée de vie est minimale. En raison de facteurs négatifs, des processus de corrosion peuvent s'y produire. Ils sont utilisés sur les canaux principaux.
Les produits de régulation sont installés sur les communications avec des pressions de fonctionnement faibles ou moyennes. Différence dans la fiabilité accrue, la maintenabilité.
Les vannes d'équilibrage sont utilisées dans des communications complexes avec un réseau ramifié complexe, où il est nécessaire de maintenir un équilibre en termes de pression, de volume, de débit et de température. Utilisé dans les systèmes de chauffage.
Type d'étanchéité :
les soufflets, dans lesquels le vide est utilisé comme scellant, se distinguent par leur fiabilité et leur durabilité;
presse-étoupe, un joint spécial est utilisé, tandis que l'emplacement de la tige à l'intérieur de la vanne n'a pas d'importance.
Intentionnellement:
- passage traversant, installé sur une section droite de tuyaux;
- angulaire, utilisé pour connecter les communications sous un certain angle;
- clapet, pour systèmes avec liquide transporté sous pression jusqu'à 340 bar, température jusqu'à +600C;
- à passage direct, pour le transport de fluides visqueux avec une résistance hydraulique minimale.
Matériau du corps :
- acier au carbone - conçu pour une pression de 160 à 400 bar, température de départ de -400C à +2000C ;
- acier inoxydable - utilisé pour les fluides gazeux et liquides avec des températures allant jusqu'à + 4000C;
- acier à haute teneur en carbone - moyenne pression de 16 à 40 MPa, températures de -600C à +2000C.

Vanne à pointeau d'arrêt
Qu'est-ce qu'un robinet-vanne
Un robinet-vanne est l'un des types de vannes qui bloque, dirige ou régule le flux à l'intérieur de la canalisation, empêchant le mouvement en partie ou en totalité, selon le type d'appareil et ses tâches ; tandis que l'élément de verrouillage se déplace dans un plan perpendiculaire à l'écoulement.
Selon le matériau utilisé (corps entier ou seul), les vannes sont divisées en cinq types :
1. Fonte ;
2. Acier (leur sous-type est les vannes en acier inoxydable);
3. Aluminium ;
4.Bronze;
5. Titane.
C'est intéressant: Comment dévisser le robinet du tuyau métal-plastique
Types et avantages
Ces produits sont classés selon plusieurs critères.
Selon la méthode d'installation dans le système, les vannes d'arrêt sont divisées en:
Couplage. Conçu exclusivement pour un montage fileté. Par conséquent, les extrémités de la vanne d'arrêt sont conçues pour des filetages internes ou externes. Ce type de vanne est en laiton ou en acier. Dans le premier cas, il n'est utilisé que dans les pipelines domestiques. De plus, des vannes en laiton et en acier sont installées dans des conduites à faible pression de l'environnement de travail - jusqu'à 15.792 atmosphères (1.6 MPa). Il existe une autre conception de tels équipements sanitaires. Ainsi, aujourd'hui, vous pouvez acheter une vanne de couplage d'arrêt en laiton pour l'installation sur des raccords à compression filetés ;
À bride. Le corps de la bride est en acier ou en fonte. Son installation est réalisée selon un schéma complètement différent. Les extrémités principales du corps de cette vanne se terminent par des brides. Cette conception est plus durable. Par conséquent, les communications techniques avec un niveau de pression moyen de 10 MPa sont un domaine prioritaire pour l'application d'une vanne d'arrêt à bride. Cette caractéristique permet l'utilisation de ces dispositifs dans les canalisations principales industrielles et municipales. Le montage à bride se pratique sur des canalisations de diamètre 10 ≤ D ≤ 1600 mm.
La conception des extrémités n'est pas la seule différence entre les types de vannes ci-dessus. Une vanne à bride est beaucoup plus grande que son homologue en boîte. En chiffres, cela ressemble à ceci : la taille d'une vanne à bride peut atteindre 300 mm, tandis que la gamme de tailles des produits de couplage se termine à 63 mm.

Les vannes diffèrent par le mode de connexion - fileté, accouplement, à bride
En plus de ces deux groupes de pièces de verrouillage, il existe également un troisième type - les vannes, dont la conception est conçue pour une installation soudée. Leurs extrémités principales sont conçues sous la forme de tuyaux de dérivation lisses. Le domaine d'application de la vanne d'arrêt soudée est les canalisations industrielles fonctionnant sous une pression supérieure à 10 MPa.
Selon la conception du corps, les soupapes sont :
Coin. Connectez deux tuyaux perpendiculaires l'un à l'autre. La vanne d'arrêt d'angle présente les avantages suivants :
- l'efficacité et la simplicité de la conception facilitent l'utilisation et la réparation du produit.
- par rapport à la vanne - une petite hauteur de bâtiment;
- le blocage du flux de fluide de travail est assuré par une course lente de la vanne.
Points de contrôle. De tels produits sont montés sur un ensemble pipeline horizontal ou vertical. La conception de la vanne d'arrêt est de deux types: soufflet (avec un haut degré d'étanchéité) et presse-étoupe. Parmi les lacunes d'un tel détail, les experts distinguent:
- haute résistance hydraulique;
- beaucoup de poids;
- la complexité de la conception de la coque. Ceci conduit au fait que, pour faciliter la manipulation, la vanne traversante est souvent équipée d'un entraînement électrique ;
- grandes dimensions du bâtiment;
- la présence d'une zone de stagnation. Des particules de rouille peuvent s'y accumuler, ce qui entraîne généralement de la corrosion.

La conception de la vanne à soufflet offre un degré d'étanchéité supérieur à celui des boîtes à garniture
Le corps de la vanne à manchon d'arrêt comporte 2 raccords sur lesquels un filetage interne ou externe est coupé.Dans ce dernier cas, le raccord est vissé sur le corps, et son extrémité libre est montée dans le tronçon de canalisation. S'il y a un filetage interne sur les vannes d'arrêt, le raccordement au tuyau est réalisé en vissant l'éperon dans le corps d'une vanne d'arrêt à passage direct en acier ou en laiton.
Flux direct. En apparence, un dispositif de ce type s'apparente à une valve traversante, mais plus long et beaucoup plus volumineux. Sa conception se caractérise par le fait que les buses sont opposées les unes aux autres. Le contrôle du débit dans cette vanne d'arrêt est réalisé grâce au mouvement transversal de l'élément de passage, lorsque le siège du dispositif est aligné avec les bords de l'ouverture de passage. L'avantage incontestable de telles vannes est l'absence de zones de stagnation et une faible résistance hydraulique.
Robinets-vannes de gros diamètres

Traditionnellement, les tuyaux de 200 mm à 2000 mm sont considérés comme des tuyaux de grand diamètre, et des vannes appropriées sont nécessaires pour ceux-ci. Ceux-ci sont utilisés lors de grands événements où les débits sont très forts, ou dans les grandes villes et les zones métropolitaines pour le même système d'approvisionnement en eau ou d'égout. De tels dispositifs de verrouillage sont nécessairement équipés d'un entraînement électrique ou au moins d'une boîte de vitesses. Contrairement aux petites vannes, vous ne pourrez pas simplement fermer ou ouvrir un tel boulon avec vos mains, c'est pourquoi un système de déplacement mécanique de la vanne est fourni. C'est la longueur des tuyaux larges, de grand diamètre, que de telles vannes s'adaptent parfaitement et seront tout à fait appropriées que dans les petites.
Quel que soit le diamètre de la valve, ils ont tous leurs propres symboles, grâce auxquels vous pouvez trouver toutes les informations sous une forme compressée. Par exemple, le diamètre est désigné par Du et la version climatique par HL ou U.
Il n'y a que deux types de modification du climat. Oui, le choix est restreint, mais c'est largement suffisant. "HL" est utilisé à basse température (inférieure à -50 degrés Celsius). Les robinets-vannes de ce type ne sont pas largement utilisés, le plus souvent dans les zones de pergélisol ou à de grandes profondeurs de mers froides. Le type "U" a une application plus large, car il est conçu pour des températures modérées (de -30 à +30 degrés Celsius). Ce sont ces vannes que l'on peut voir dans les industries et les entreprises de tout notre pays.
Vannes à vanne bon marché - la possibilité d'un fonctionnement instable de l'équipement
Certains des prix des vannes dans les bonnes entreprises peuvent être vraiment surprenants, mais vous ne devriez pas chercher une option beaucoup moins chère. Les prix dépendent directement du matériau à partir duquel ils sont fabriqués, du pays d'origine, du diamètre et d'autres paramètres. Le proverbe circule parmi les gens depuis longtemps : "Cher, mais mignon, pas cher, mais pourri", alors ici, si vous achetez un dispositif de verrouillage pour un prix bien inférieur à celui des autres vendeurs, alors ne soyez pas surpris que cet équipement ne durera pas longtemps et peut apporter beaucoup de problèmes. De plus, il y a eu de nombreux cas où des vannes d'un matériau différent ou d'une conception climatique inappropriée ont été vendues et elles ont échoué après quelques semaines, car elles étaient utilisées à d'autres fins, la faute étant à la fois des acheteurs inattentifs et des vendeurs trompeurs.
La chose la plus importante lors du choix et de l'achat de vannes d'arrêt, ainsi que, en fait, de tout produit, est de faire attention à la qualité et au fabricant, de vérifier toutes les données et tous les documents. Le critère principal lors du choix d'une vanne doit être le diamètre du tuyau sur lequel elle sera installée, sinon le dispositif de verrouillage risque tout simplement de ne pas vous convenir et vous dépenserez une somme d'argent décente et beaucoup d'efforts
Soyez juste prudent lorsque vous choisissez ou contactez des spécialistes qui connaissent ce domaine et vous aideront à faire le bon choix.
Montage
L'installation d'une vanne à manchon d'arrêt s'effectue comme suit :
- choisir un lieu, de préférence accessible de tous les côtés ;
- couper l'alimentation en eau dans la canalisation. Si le raccordement est effectué dans une conduite d'eau, le réseau peut être arrêté à l'aide d'une vanne sur la colonne montante du bâtiment. Pour l'installation de l'appareil dans le système de chauffage, l'interruption temporaire de l'alimentation en chaleur et de l'évacuation de l'eau doit être convenue avec la société de gestion ;
- découper à l'endroit prévu une section du tuyau de taille égale à la longueur de la vanne;
- des filets sont coupés aux extrémités des tuyaux, avec un diamètre et un pas correspondant aux mêmes paramètres des buses de vannes ;
- enlever les restes de jetons;
- compacter les sections préparées du fil avec du fil de lin;
- visser la valve sur le filetage. Lors du montage, tenez compte du sens indiqué sur le boîtier de l'appareil ;
- vérifier les performances des raccords et le serrage des connexions.
Comment régler la température dans l'appartement
- Si l'appartement est souvent assez chaud pour vous donner envie d'éteindre les radiateurs, pensez à installer des contrôleurs de température sur les radiateurs.Si la batterie a un by-pass, vous pouvez mettre un thermostat à l'entrée de la batterie qui contrôlera la température dans la pièce.
- S'il n'y a pas de dérivation, il est interdit d'installer des dispositifs de contrôle, car avec de tels dispositifs, vous réglerez la température non seulement dans votre appartement, mais également pour tous les voisins de la colonne montante. Dans ce cas, vous pouvez remplacer la batterie de chauffage et installer un by-pass.
Pour arrêter le chauffage, des vannes à bille sont nécessaires
Pour ceux qui vivent dans des maisons avec chauffage central, les questions sur la façon d'éteindre le radiateur se posent généralement dans deux cas :
- si le temps chaud s'est installé dans la rue et que le chauffage central n'a pas encore été éteint, la saison de chauffage n'étant pas officiellement terminée;
- si nécessaire, remplacer, réparer ou peindre le radiateur, réparer le mur derrière la batterie.
Dans ce cas, le point suivant est à prendre en compte : un liquide de refroidissement se trouve en permanence à l'intérieur de la batterie. Il n'est vidangé qu'en cas de travaux de réparation dans le système. Cela est dû au fait que la majeure partie des appareils de chauffage installés dans les maisons anciennes, ainsi que le câblage de la maison, sont en acier.
Cela est dû au fait que la majeure partie des appareils de chauffage installés dans les maisons anciennes, ainsi que le câblage de la maison, sont en acier.
Le liquide à l'intérieur du radiateur contient une certaine quantité d'oxygène sous forme dissoute, qui finit par réagir complètement avec le métal, à la suite de quoi la corrosion s'arrête.
Il est impossible de laisser le système ou un appareil de chauffage séparé vide pendant une longue période - l'humidité reste sur la surface intérieure d'une batterie en acier ou en fonte, qui ne s'évapore pas longtemps dans un espace confiné, ce qui accélère considérablement le processus de corrosion . Ainsi, le liquide de refroidissement n'est vidangé que dans des cas exceptionnels.
matériau de la soupape
Ici, il est nécessaire de diviser les vannes en celles qui seront utilisées dans les réseaux d'alimentation en eau internes et celles installées à l'extérieur.
Pour les réseaux internes, les appareils sont en bronze, laiton, inox et plastique. Pour une utilisation à l'extérieur des modèles de tous les matériaux ci-dessus, ainsi que de l'acier et de la fonte.
- Les appareils en laiton et en bronze sont les plus chers, mais en même temps les plus durables. Ils ont une faible densité, de petites dimensions, ils peuvent être installés aussi bien sur un système d'alimentation en eau froide qu'en eau chaude. Plus récemment, seuls ils étaient utilisés dans le système de chauffage, car le tartre ne se dépose pas sur les surfaces des appareils en laiton et en bronze.
- Les vannes en acier inoxydable ont également une longue durée de vie. Mais ils sont beaucoup moins chers que les deux premiers modèles.
- Les vannes en plastique sont les moins chères avec de bonnes caractéristiques techniques. Il est aujourd'hui utilisé dans tous les types de réseaux de plomberie et de chauffage.
A quoi sert une vanne à bille ?
Cette vanne peut non seulement bloquer le débit du fluide interne, mais également réguler ses paramètres - débit, pression, vitesse et même mélanger divers fluides dans les proportions requises. Cependant, il existe un avis selon lequel un tel dispositif ne peut pas être utilisé avec une rotation partielle de la bille en raison de son usure abrasive accrue.Les plombiers conseillent aux propriétaires de leurs propres appartements de tourner plus souvent la poignée de cet élément de verrouillage pour éviter l'acidification de ses parties internes.
Les robinets à boisseau sphérique pour la plomberie avec une poignée en porte-à-faux ont une zone dite "morte", mais cet inconvénient est facilement compensé par un robinet avec une poignée en agneau. Chez les gens, on l'appelle aussi "papillon" ou "arc". Cependant, cela ne réduit en rien la popularité de tels équipements de plomberie dans la vie de tous les jours. Un robinet à tournant sphérique est facilement acheté et installé sur les radiateurs de chauffage, les séchoirs, les systèmes de chauffage par le sol, etc.
Inconvénients des robinets à tournant sphérique
- En raison des spécificités de la conception, les vannes à boisseau sphérique présentent des limites importantes d'installation et d'utilisation - de tels mécanismes peuvent fonctionner efficacement et en toute sécurité dans un environnement de travail dont la température ne dépasse pas 200˚С ;
- Les vannes à poignée de fermeture en porte-à-faux présentent une "zone morte" lors de la rotation, ce qui n'est pas toujours pratique lors de l'installation d'équipements dans un espace limité. L'utilisation d'un appareil à poignée papillon permettra d'éviter ce désagrément ;
- L'eau dans la conduite d'alimentation en eau froide ou chaude ne peut pas être parfaitement propre et contient toutes sortes d'impuretés. Il s'agit le plus souvent de sels minéraux, de rouille et de tartre de soudure. Ces débris et dépôts commencent à s'accumuler dans la chambre du mécanisme si la valve n'a pas été utilisée pendant une longue période. Par conséquent, lorsque vous essayez d'ouvrir ou de fermer l'appareil, la poignée peut se casser, car la plaque à l'intérieur du robinet ne permettra pas à la boule de tourner autour de son axe. Il est facile d'éviter ce problème - tournez la poignée une fois tous les 2-3 mois pour qu'elle ne devienne pas scorifiée ;
- Le phénomène le plus courant après un certain temps de fonctionnement est que l'eau fuit même lorsque le mécanisme est fermé. Cela signifie que la surface de la balle était recouverte de sels ou de rouille pénétrant dans la chambre. Dans ce cas, l'appareil est démonté, nettoyé, les joints et joints sont changés;
- Les garanties du fabricant ne sont pas toujours une garantie de qualité, mais vous ne pouvez pas vérifier le produit lui-même dans le magasin dans des conditions de travail. L'apparition précoce d'une fuite dans les nouveaux raccords apparaît souvent en raison de la mauvaise qualité du matériau du presse-étoupe. Le remplacement du presse-étoupe résout le problème, mais il est préférable de faire fonctionner les mécanismes à billes à des températures positives, en les empêchant de trop refroidir afin que le presse-étoupe ne se déforme pas des changements de température. De plus, lorsque le corps gèle, il peut tout simplement se casser.
De quoi sont faits les dispositifs de verrouillage ?
Avant de savoir de quoi sont faites les vannes, vous devez les diviser en deux types :
- installé dans les réseaux d'approvisionnement en eau internes;
- monté sur des canalisations d'alimentation en eau et de gaz externes.
Si le produit est destiné aux réseaux d'alimentation en eau internes, des dispositifs en laiton, bronze, acier inoxydable et plastique sont utilisés. Si les produits sont utilisés pour des travaux extérieurs, les matériaux ci-dessus sont utilisés à cet effet, ainsi que l'acier et la fonte.
- Les appareils de plomberie en laiton et en bronze sont des options coûteuses. Cependant, leur coût est justifié par la qualité et la durabilité. De tels dispositifs sont légers, de petite taille et peuvent également être installés non seulement sur un système d'alimentation en eau pour fournir de l'eau froide, mais également chaude. Ces produits sont également utilisés dans les systèmes de chauffage, car le tartre ne se dépose pas sur leurs surfaces.
- Soupapes en acier inoxydable.Une autre bonne option qui a une longue durée de vie. Ils sont plusieurs fois moins chers que les appareils en laiton et en bronze.
- Les produits en plastique sont parmi les moins chers, mais leur qualité n'est en aucun cas inférieure aux modèles ci-dessus. Leur inconvénient est la possibilité d'installation uniquement dans des canalisations en plastique.
Les vannes en fonte et en acier sont populaires pour les installations extérieures. Pour la fabrication de tels produits, on utilise de la fonte et de l'acier, ce qui réduira considérablement le prix de l'appareil. Après tout, des produits similaires en laiton et en bronze coûteront dix fois plus cher.
Comment fonctionne une valve de roue - de quels éléments se compose-t-elle
Cadre
Les vannes peuvent être produites dans plusieurs types de boîtiers. Au total, il y a trois options à vendre :
- caoutchouc;
- pliant;
- caché.
Analysons plus en détail les types de vannes.
Les "mamelons" en caoutchouc les plus courants. Ils peuvent être installés à la fois sur les jantes en alliage et sur les jantes en alliage. Résiste généralement jusqu'à 4,5 atm. Il existe des modèles de différentes longueurs. Pas peur des changements de température.
Pliable se compose de plusieurs composants qui sont assemblés lors de l'installation. Les joints sont fournis avec le kit. Fabriqué en acier et chromé. Pratiquement pas peur de l'exposition aux réactifs, aux changements de température, à l'eau. Comme ils sont en métal, ils peuvent parfaitement supporter de lourdes charges.
La valve cachée est en métal. Techniquement similaire à pliable. Diffère en l'absence d'une tige pour le pompage. La bobine est placée à l'intérieur de l'élément qui fixe le "mamelon" à la jante. Ils sont utilisés sur les voitures à grande vitesse, recommandés pour une installation sur des jantes en alliage.
bobine
Le dispositif de verrouillage de la vanne est le tiroir.Il vaut la peine de comprendre comment cet élément constructif est agencé. Techniquement, il permet de connecter des cavités avec des pressions différentes, tout en ne laissant pas passer l'air d'un côté à l'autre. L'écrou de roue d'une voiture particulière est quelque peu différent d'un dispositif similaire pour vélos, bien qu'il ait un principe général de fonctionnement.
Le tiroir fonctionne grâce au déplacement de l'élément mobile par rapport à la partie principale. En conséquence, il peut laisser entrer de l'air dans le pneu lorsqu'il est gonflé, mais ne le laisse pas du tout revenir une fois le gonflage arrêté. Si nécessaire, en appuyant sur la bobine, vous pouvez purger une partie de l'air.
Il existe les types de bobine suivants.
- pour pneus à chambre;
- standard pour les pneus sans chambre à air ;
- renforcé, recommandé pour une utilisation sur les voitures de sport.
Casquette
Le capuchon est souvent considéré comme un élément décoratif, bien qu'il ait une fonction importante. Le capuchon protège la tétine de la saleté. La propreté permet à la vanne de fonctionner beaucoup plus longtemps. Par conséquent, assurez-vous de rechercher la présence de capuchons sur les roues. Ils se fixent par simple vissage sur la barre « mamelon ».
Maintenant en vente, vous pouvez trouver des bouchons en plastique et en métal. Souvent, les conducteurs préfèrent acheter des bouchons en métal, surtout si la jante est chromée. En fait, il vaut mieux choisir l'option plastique. Le métal peut geler jusqu'à la valve en hiver ou simplement bouillir sous l'influence de réactifs. Cela nécessitera un remplacement complet du mamelon.
Façons de régler le système de chauffage
Système de chauffage avec vannes de régulation
Il existe plusieurs façons de modifier les caractéristiques de l'apport de chaleur.Un réglage hydraulique rapide du système de chauffage est nécessaire pour stabiliser la pression dans certaines zones et dans l'ensemble du système. La correction de température sert d'outil pour modifier le degré de chauffage de l'air dans une pièce particulière. Le plus souvent, une grue est utilisée pour cela. pour régler la température de chauffage.
Toutes les caractéristiques ci-dessus dépendent en grande partie du fonctionnement de la chaudière. Cependant, pour normaliser les paramètres du système, il est nécessaire d'installer des composants supplémentaires. Selon la fonction, ils sont divisés en types suivants :
- Température. Sert au blocage partiel ou complet du flux de liquide de refroidissement dans les radiateurs ou dans un circuit séparé. À l'aide de robinets, d'un thermostat ou de mélangeurs, les batteries de chauffage de l'appartement sont ajustées;
- Pression. Les différences de température entre le départ et le retour peuvent provoquer des coups de bélier. Cela déséquilibrera le système, ce qui détériorera ses performances. Pour éliminer ce problème, des flèches hydrauliques sont montées, tout comme la tuyauterie du collecteur.
En pratique, le réglage en temps opportun des robinets sur les radiateurs de chauffage réduit les coûts énergétiques. De plus, à l'aide de vannes de régulation, vous pouvez modifier le degré de chauffage de l'air dans la pièce.
Les performances réelles du système de chauffage doivent correspondre à celles calculées. De cette manière, le nombre d'éléments de réglage peut être réduit.
Vannes et robinets à tournant sphérique pour le raccordement de la plomberie VALTEC
Sur le marché de la plomberie moderne, la marque VALTEC se distingue par son service bien établi d'information et d'assistance technique sur ses produits et la plus large gamme de vannes pour les systèmes d'alimentation en eau et de chauffage.Les vannes et les robinets à tournant sphérique VALTEC sont particulièrement populaires, ce qui aidera à résoudre une vaste gamme de problèmes de connexion et d'utilisation confortable des appareils de plomberie, fournira les conditions nécessaires à une interruption urgente du débit d'eau.
Le laiton, résistant à la dézincification, est utilisé comme matériau de structure, qui offre une excellente résistance aux processus abrasifs et corrosifs, même en présence d'un environnement de travail de mauvaise qualité. Le nickelage et le chromage confèrent aux vannes et robinets à tournant sphérique pour le raccordement des appareils sanitaires VALTEC un aspect attrayant, des performances élevées et une protection supplémentaire contre l'influence des facteurs agressifs de l'environnement externe et interne.
Les vannes et robinets à tournant sphérique VALTEC sont équipés de raccords filetés pratiques de différents types ½", ¾" ou 1". Pour résoudre des problèmes d'ingénierie particuliers, il existe des modèles avec un écrou-raccord et des mini-tarauds avec une poignée en drapeau pour les filetages internes ou externes. Les vannes en T domestiques créeront une connexion hermétique fiable avec tout appareil de plomberie, aideront à fermer ou à réguler le débit d'eau, assureront le raccordement d'appareils ménagers et de chauffage (machines à laver, lave-vaisselle, chauffe-eau instantanés, etc.). Un avantage non négligeable de ces produits est leur bonne maintenabilité. VALTEC propose également une large gamme de tés domestiques basés sur un mécanisme de verrouillage à bille.
La conception du robinet à tournant sphérique facilite la fermeture ou l'ouverture complète du débit d'eau d'un simple tour de poignée à 90 degrés.Pour une étanchéité fiable et une longue durée de vie du robinet, la bille est recouverte d'une couche de chrome durable et polie en plus pour donner à la surface une forme et une douceur idéales. L'installation d'appareils de plomberie sur un réseau d'alimentation en eau froide ou chaude est réalisée de manière pratique à l'aide de tuyaux flexibles et de robinets ménagers d'angle VALTEC avec crépine intégrée. La vanne d'angle esthétique et ergonomique vous permettra d'installer facilement le robinet sur un évier ouvert, d'organiser la direction nécessaire de l'écoulement de l'eau vers le réservoir de vidange et, si nécessaire, de l'interrompre de manière fiable.
Comment choisir un robinet à tournant sphérique
Lors du démarrage de la construction d'un système d'alimentation en eau ou de chauffage, vous devez connaître exactement la taille des tuyaux et des raccords, quel robinet à tournant sphérique est le meilleur. Vous devez commencer par créer une disposition de pipeline. Selon cela, vous devez calculer le nombre de soupapes. Achetez ensuite des vannes ou des vannes à bille.
Aux endroits où le débit est bloqué, au début des branches du système de chauffage, des vannes sont utilisées. Ils bloquent simplement le flux au bon moment. Aux extrémités des tuyaux, à la sortie de l'eau, il est préférable d'installer des vannes à bille.
Le choix commence par le diamètre. Les raccords pour la maison sont filetés. Ensuite, vous devez choisir le matériau du boîtier et la couleur de la poignée :
- jaune, noir - gaz;
- bleu, bleu - eau froide;
- rouge - eau chaude.
Les robinets ont généralement des poignées en acier brillant ou décoratives.

Grand choix de robinets à tournant sphérique
Appareil et principe de fonctionnement
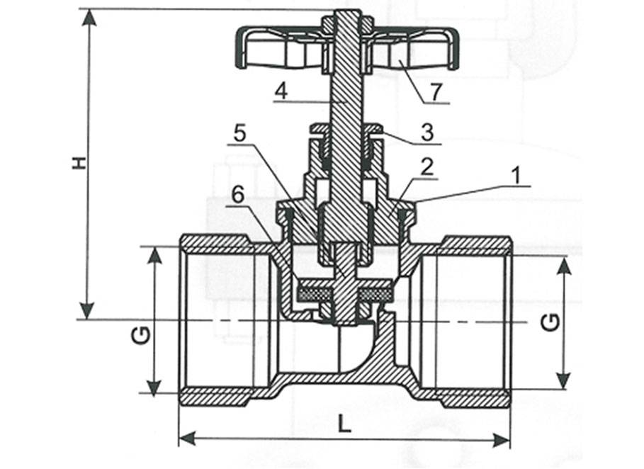
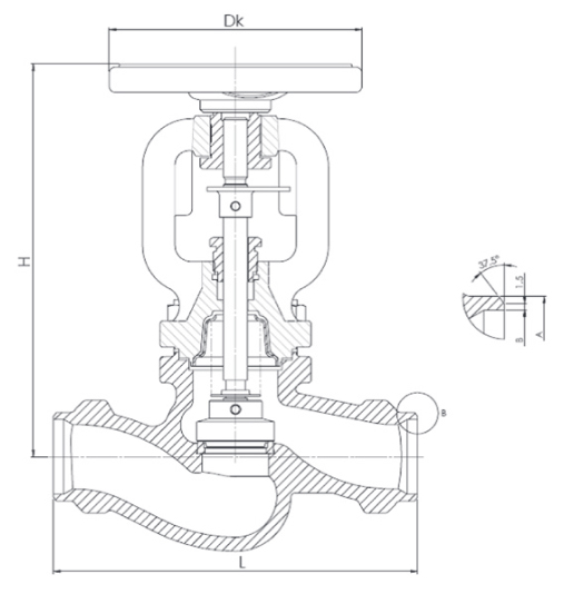
La vanne à pointeau se compose structurellement des parties suivantes :
- corps en fonte ;
- tige avec une pointe en forme de cône;
- poignée fixée sur la tige avec un écrou;
- bouchon à vis sur le boîtier;
- scellés;
- vis de réglage.
Dispositif et principe de fonctionnement: lorsque la poignée est tournée dans le sens antihoraire, la tige se déplace le long de son axe le long du filetage coupé à l'intérieur du corps, vers le haut, ouvrant le trou traversant. En rotation inverse, le flux est bloqué. En raison de l'extrémité conique de la tige, une grande surface de contact avec le siège est fournie, le débit est régulé en douceur et avec précision.
À l'intérieur du canal en zigzag à l'intérieur du corps se trouve une selle, qui comprend l'extrémité de la tige lorsque la broche est tournée dans le sens des aiguilles d'une montre. Un robinet à aiguille peut avoir non seulement une pointe dure, mais aussi une pointe souple.
Pour augmenter la durée de vie du filetage de la tige, un revêtement spécial en chrome est appliqué sur sa surface.
La commande de la grue peut être manuelle ou mécanique. Pour automatiser la commande, il suffit de connecter la tige à l'entraînement électrique.
Quels types de robinets/mitigeurs existe-t-il ?
Selon l'usage, il existe 4 principaux types de robinets d'eau : à vanne, à levier unique, thermostatique et sensoriel.
soupape
Ces mélangeurs sont considérés comme les appareils les plus courants.

Ils sont de deux types :
- avec une soupape. Ces robinets ne peuvent fournir qu'un seul type d'eau - froide ou chaude. Il est principalement utilisé pour une installation dans la cuisine ou le lavabo. Le corps d'un robinet monovalve est constitué d'un alliage de cuivre ou de laiton. Le mécanisme de verrouillage - sous la forme d'une soupape en céramique ou à vis sans fin - de la boîte d'essieu est entraîné par une soupape;
- avec deux soupapes. Leur appareil comprend un corps en laiton chromé, deux vannes qui contrôlent les cartouches (robinet - douille).
Du fait du fonctionnement des cartouches, la pression et la température de l'eau sont régulées.Le bec, en fonction de la modification du mitigeur, peut être solidaire du corps (non pivotant) ou tourner librement dans différentes directions. Les mitigeurs à deux vannes sont conçus pour mélanger l'eau chaude et l'eau froide ;
Levier unique
Dans un mitigeur à levier unique, il n'y a qu'une seule poignée (levier), avec laquelle l'intensité de l'alimentation en eau froide et chaude est régulée. La pression peut être augmentée en soulevant la poignée.
avec thermostat
Il s'agit d'un type d'appareil innovant. Le réglage de la température et de l'intensité de l'afflux d'eau se produit lorsqu'un certain indicateur est réglé sur une échelle de thermostat spéciale.
Sans contact
Le dispositif de tels mélangeurs comprend des capteurs spéciaux, dont le principe de fonctionnement est basé sur la réaction des rayons infrarouges à la chaleur et au mouvement.

Par conséquent, dès que les mains sont rapprochées de ce mélangeur, cela fonctionne immédiatement. Le plus souvent, ils peuvent être vus dans des lieux publics : toilettes d'aéroports, de gares, de centres de divertissement, d'établissements de santé, etc.
Conception et application du robinet à tournant sphérique

Après avoir traité les caractéristiques de conception, vous pouvez comprendre le principe de son fonctionnement, qui détermine les caractéristiques opérationnelles. Le robinet à tournant sphérique se compose des éléments suivants :
- Partie du corps. Le mécanisme de verrouillage est une continuation du système de canalisation d'alimentation en gaz, il doit donc avoir un boîtier étanche. Le plus souvent, le corps est en acier ou en laiton.
- La structure a une section de tuyau de raccordement. Cet élément peut être fileté ou soudé à la canalisation.
- La partie gorge de la structure est destinée à faire passer la tige.
- La biellette est destinée à assurer la liaison entre la poignée et l'élément mobile de verrouillage, représenté par une bille.
- Contre-indications des rondelles.
- L'élément principal est la bille de verrouillage. C'est cet élément qui coupe directement l'alimentation en gaz.
- Selle. Pour que la bille de verrouillage ne bouge pas, une selle est installée. Il est maintenu en place par un anneau d'arrêt.
- Il y a un joint torique et un ressort, une bride et un anneau. Tous ces éléments structurels sont responsables de l'étanchéité.
- Le mécanisme de verrouillage est contrôlé à l'aide d'une poignée spéciale. Il peut avoir une variété de tailles, en règle générale, il est peint en rouge.
- La poignée est fixée avec un écrou spécial.
- Pour que la boule soit réglée avec une grande précision dans deux positions, fermée et ouverte, une butée est installée, représentée par un limiteur de course de la poignée.
Conception assez simple facile à utiliser. Le mécanisme de verrouillage est représenté par une bille creuse en acier. Cet élément structurel présente un trou traversant, qui a un diamètre égal au diamètre du segment de liaison des deux parties du mécanisme de verrouillage. Le principe de fonctionnement est le suivant :
- L'élément structurel mobile est représenté par une poignée qui peut être tournée autour d'un axe.
- La poignée transmet le mouvement à la balle.
- La balle a un trou traversant ; lorsqu'elle est tournée de 90 degrés, la paroi solide est remplacée par un trou.
Il convient de garder à l'esprit que les fabricants ne recommandent pas de mettre la poignée en position semi-ouverte. L'état semi-ouvert provoque une usure accélérée de l'élément principal de verrouillage de la structure.































