- Étapes de travail
- Types de raccords de tuyaux en PE
- Particularités
- Nous contrôlons la qualité de la soudure
- Paramètres de soudage et séquence des opérations
- Plus d'informations sur ce sujet sur notre site Web :
- Instructions de soudage
- Règles de base
- Connexion électrosoudable
- Soudage bout à bout
- Technologie Bell
- Méthode de diffusion pour souder des tuyaux en PE
- Comment plier ou redresser un produit
- Vue d'ensemble des méthodes de cintrage de tuyaux
- Méthodes efficaces pour plier la pièce
- Soudage bout à bout
- Points forts de l'utilisation de l'électrofusion
Étapes de travail
Le soudage à faire soi-même des lignes en polyéthylène est possible en utilisant la méthode d'électrofusion.
La consigne peut être présentée comme suit :
- préparation;
- fixation avec un centreur et mise en place d'un accouplement;
- connexion de la soudeuse au couplage;
- soudage;
- retrait de l'appareil sous la connexion.

Malgré le fait que le soudage soit censé être fait à la maison, les extrémités doivent toujours être coupées avec un outil spécial - un coupe-tube. Cela vous permettra d'obtenir un meilleur alignement lors de la connexion. Il est plus pratique d'enlever les dépôts d'oxyde de la jonction avec un grattoir à main ou à l'aide d'une tige. La couche à enlever doit être à environ 200 mm du bord des tuyaux. Les copeaux résultants doivent être enlevés avec le même grattoir. Les pièces jointes doivent être dégraissées à l'alcool. À ce stade, vous pouvez utiliser des serviettes spéciales.Pour un placement plus précis dans le centreur, la ligne peut être marquée conformément aux dimensions de l'accouplement. Selon ces valeurs, il sera plus pratique de fixer les tuyaux et le raccord.

La structure assemblée doit être fixée conformément aux règles de sécurité. Les bornes de la machine à souder doivent être connectées aux connecteurs de l'accouplement. L'appareil s'allume et le code-barres est reconnu, qui se trouve sur la surface du raccord. Le mode de la plupart des soudeurs est automatique. La période de chauffage et de refroidissement du couplage est fixée juste au moment de la reconnaissance du chiffrement. Le processus de soudage commencera après la lecture du code et se terminera par un signal sonore. Pour refroidir le tuyau, il faut le laisser seul pendant sept minutes. Ce n'est qu'alors que les pinces peuvent être libérées du centreur et que l'équipement peut être retiré sous le point de soudure.

Types de raccords de tuyaux en PE

Les tuyaux en polyéthylène peuvent être connectés en une seule ligne en utilisant différentes méthodes. De plus, chacun d'eux est adapté à des conditions spécifiques.
- Ainsi, l'assemblage de tubes en PEHD avec des raccords et des raccords (soudage par emboîtement) est principalement utilisé pour aménager l'intérieur du système de plomberie de la maison.
- Installation de canalisations à faire soi-même par soudage bout à bout. Cette méthode est utilisée pour l'installation d'une section étendue de communication à des fins extérieures. Dans ce cas, les tuyaux peuvent être posés à la fois à la surface du sol et dans une tranchée, puis recouverts de terre.
- Soudage par électrofusion. Cette méthode de connexion des tubes en PEHD est réalisée à l'aide de raccords en plastique spéciaux avec des éléments en spirale intégrés, qui s'échauffent sous l'effet du courant qui leur est appliqué.
Examinons de plus près chacune des méthodes.
Particularités
La principale difficulté est que les qualités opérationnelles et technologiques des tuyaux en polyéthylène sont à bien des égards similaires aux caractéristiques de qualité des tuyaux en polypropylène. Ils ne sont pas non plus sujets à la corrosion. La surface intérieure des tuyaux n'est pas revêtue. Les tuyaux ont une résistance chimique élevée. Le matériau est respectueux de l'environnement, a une longue durée de vie.


Parmi les différences, les professionnels notent une faible résistance à la chaleur. Par conséquent, les tuyaux en PEHD ne sont utilisés que pour les systèmes d'alimentation en eau froide et de ventilation. Parfois, ils sont utilisés pour l'installation de gazoducs. L'utilisation de tuyaux en polyéthylène est possible lors du transport dans un environnement supérieur à 40-50 degrés. Une exception est le polyéthylène réticulé, qui est autorisé à fonctionner à des températures allant jusqu'à +95 degrés. Les tuyaux en polyéthylène ont une excellente résistance au gel, ce qui leur permet d'être utilisés à des températures allant jusqu'à -70 degrés.

Les PEHD sont disponibles dans le commerce avec un diamètre de 20 à 1200 mm. En raison de la variété des options, ils sont largement utilisés dans divers domaines. En plus des conduites d'eau, des conduites de grand diamètre sont également achetées pour les eaux usées, tant internes qu'externes.


Les caractéristiques techniques des tuyaux en PEHD sont déterminées par les propriétés de la base - polyéthylène basse pression. Il est léger, ce qui facilite l'installation du pipeline, résistant à la pression de dizaines d'atmosphères. Parmi les qualités négatives du matériau, il convient de noter la possibilité limitée de l'utiliser à des températures inférieures à zéro (le PEHD devient vitreux) et à des températures élevées (plus de 40 degrés), le PEHD perd sa rigidité. Lorsqu'elle est chauffée à 70 degrés, la base en polyéthylène augmente de taille, mais pas beaucoup.
La gamme de PEHD est réglementée par GOST, qui a été publié en 2001.Tous les marquages appliqués sur l'une des surfaces des autoroutes sont conformes aux normes. Le marquage permet de choisir très facilement les bonnes options. Les premières lettres incluent le nom du fournisseur, puis l'assortiment PE, par exemple 1000 mm. Le tableau contient également la désignation de l'épaisseur des lignes, la pression de travail et maximale possible, la date de fabrication et le numéro de lot.

La carte technologique des marquages contient également des désignations de couleur sous forme de rayures. Si la prise est peinte en jaune, les tuyaux peuvent être utilisés pour les gazoducs, si la bande est bleue, seule l'alimentation en eau peut être posée à partir des tuyaux. Le schéma de raccordement des tuyaux est établi en tenant compte des segments standard disponibles dans le commerce - de 5 à 25 mètres. Les conduites d'eau principales sont généralement fabriquées sur commande, ont une longueur allant jusqu'à 0,5 kilomètre et contiennent donc un nombre minimum de connexions.

Nous contrôlons la qualité de la soudure
Lors de l'installation de joints soudés par l'une des méthodes décrites ci-dessus, il est très important d'évaluer correctement la qualité de la soudure. Cela dépend si cette section du pipeline peut être utilisée ou s'il faudra tout refaire.

Pièce avec deux soudures régulières
Il n'y a en fait pas tellement de critères d'évaluation, et les retenir est assez simple :
- Le signe de qualité le plus important est la présence d'un rouleau en polyéthylène uniforme sur toute la circonférence du tuyau. Si le rouleau est courbé, ou s'il y a une dépression au lieu d'un rouleau, la connexion ne peut pas être utilisée ;
- Le prochain facteur important est la cohérence. Un léger déplacement des pièces jointes est autorisé, mais il ne doit pas dépasser 10% de l'épaisseur de la paroi du tuyau ;

Photo de la zone défectueuse en cas de désalignement
- La hauteur du rouleau de polyéthylène fondu est également limitée. Pour les tuyaux avec des parois de 5 à 10 mm, cette valeur est de 2,5 à 3 mm, pour les tuyaux avec des parois jusqu'à 20 mm - 5 mm ou moins.
Bien sûr, si vous installez un pipeline basse pression ou des communications sans pression, un petit écart peut être négligé, mais vous ne devez toujours pas le faire. Il est beaucoup plus facile de réaliser un nouveau joint soudé que de réparer ultérieurement un tuyau existant.
Paramètres de soudage et séquence des opérations
Les options de soudage bout à bout comprennent :
- Le degré de pression sur les extrémités.
- La température à laquelle le matériau fond. Dépend de la marque.
- La force avec laquelle les extrémités sont pressées contre l'élément chauffant.
- Durée du processus.

Séquence d'opérations :
- La première étape du soudage des tuyaux en polyéthylène consiste à nettoyer les extrémités des tuyaux à assembler.
- Fixation des tuyaux dans le centralisateur de l'appareil où le polyéthylène sera soudé. Traitement des extrémités des tuyaux avec un cutter pour assurer la perpendicularité de l'axe. En même temps, les pièces finies sont contrôlées afin qu'il n'y ait pas d'espace.
- Chauffer les extrémités des tuyaux avec un miroir de soudage jusqu'au point de fusion, qui est d'environ 220 °C.
- En appuyant sur les extrémités des tuyaux avec la force nécessaire.
- Retrait du tuyau fini de l'appareil.
Afin de comprendre comment les tuyaux en plastique sont soudés, la vidéo sur notre site Web donnera des informations plus détaillées. Ainsi, vous pourrez faire les travaux vous-même si vous disposez du matériel nécessaire.
Plus d'informations sur ce sujet sur notre site Web :
- Soudage de tuyaux en polypropylène - vidéo de processus En raison de leur faible coût et de leur facilité de raccordement, les tuyaux en plastique occupent une place de choix dans l'installation de systèmes thermiques et de plomberie. Par rapport aux structures métalliques, les tuyaux en polypropylène ...
- Types d'électrodes pour le soudage - soudage avec électrodes en vidéo Une électrode de soudage est une tige métallique de différentes longueurs utilisée dans le processus de soudage de pièces à partir d'une grande variété de matériaux. Leur objectif principal est de fournir du courant électrique à ...
- Soudage pour débutants - leçons vidéo Sous le mot soudage, il est généralement admis de comprendre un processus technologique où, à la suite d'un échauffement, des liaisons intermoléculaires et interatomiques s'établissent entre des pièces. Ainsi, les matériaux directs sont connectés. La plupart…
- Tutoriels vidéo de soudage - regardez des cours de soudage avec un onduleur pour les soudeurs débutants Les débutants devraient regarder des tutoriels vidéo de soudage afin d'éviter les erreurs courantes et de rendre leur travail de qualité et sûr. Vous devez toujours vous rappeler que…
Partagez avec vos amis sur les réseaux sociaux un lien vers ce matériel (cliquez sur les icônes) :
Instructions de soudage
Si vous avez choisi des tuyaux en polyéthylène, vous avez agi avec sagesse, mais maintenant, ils doivent encore être installés correctement. Apprenons
Règles de base
Quelle que soit la technologie que vous choisissez - électrofusion ou soudage bout à bout de tuyaux en polyéthylène, vous devez respecter ces principes importants :
- Les éléments à assembler doivent être compatibles (tant en composition qu'en paramètres physiques).
- Le soudage bout à bout des tuyaux en polyéthylène ne peut être effectué que si les pièces ont le même diamètre et la même épaisseur de paroi.
- Les bords doivent être soigneusement nettoyés et dégraissés.
- Les extrémités des structures qui ne sont pas impliquées dans le processus de connexion doivent être fermées avec des bouchons afin d'éviter l'exposition à l'air froid, ce qui affecte négativement le processus.
- Lors des travaux, il est nécessaire de minimiser l'impact de l'environnement extérieur, à savoir :
- dans la chaleur, ne laissez pas la lumière du soleil atteindre la zone de connexion ;
- par temps venteux, créer une barrière aux rafales d'air;
- par temps froid, il est recommandé de chauffer la pièce pour le travail.
- Pendant le soudage et le refroidissement de la structure, exclure tout impact mécanique sur le système.
Et maintenant, examinons en détail ce que la technologie de soudage des tuyaux en polyéthylène est le soudage bout à bout et l'utilisation de la méthode d'électrofusion.
Photofragment de la technique d'électrofusion : réchauffeurs connectés
Connexion électrosoudable
Ce type de soudage, également appelé soudage par thermistance, est utilisé pour fixer des éléments de différentes épaisseurs et diamètres de paroi, ainsi que pour installer des canalisations sans pression - installations de drainage, égouts gravitaires, etc.
Pour vous connecter à l'aide de cette technologie, vous aurez besoin de raccords spéciaux à électrofusion. Rappelez-vous maintenant l'ordre du travail.
- Concevoir le système.
- Calculez le nombre requis de tuyaux et d'autres pièces.
- Faire un achat.
- Couper la structure en morceaux de la longueur suggérée par le plan. Assurez-vous que la coupe est droite, évitez l'écoulement de matériau fondu dans le système.
- Préparer et nettoyer les pièces, y compris les accouplements. Il ne sera pas superflu de dégraisser la surface des éléments avec de l'alcool, en l'appliquant sur un morceau de chiffon.
- Si la surface des éléments est oxydée, enlever l'excédent avec un grattoir spécial.
- Fixer les éléments dans le positionneur en faisant attention à l'alignement.
- Enveloppez le joint avec du ruban adhésif pour empêcher la poussière de pénétrer.
- Fermez les extrémités ouvertes des structures avec des bouchons.
- Appliquer une tension aux bornes de l'embrayage.
- Attendez que les éléments, après s'être réchauffés, soient maintenus ensemble.
Le soudage par thermistance des tuyaux en polyéthylène ne doit être effectué que si les éléments connectés sont fixes. Dans la même position, la structure doit rester jusqu'à ce que la couture soit complètement refroidie.
Voici à quoi ressemble une configuration d'épissure
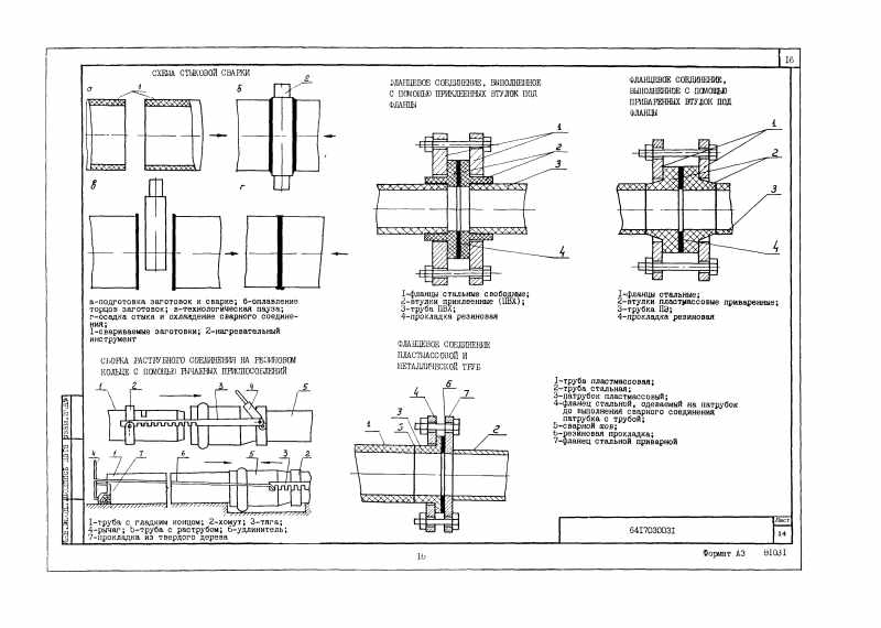
Soudage bout à bout
La technologie et les paramètres de soudage bout à bout des tuyaux en polyéthylène sont plus intéressants, car les éléments sont connectés au niveau moléculaire, formant une couture plus solide. Cette méthode est utilisée pour le montage d'éléments ayant un diamètre de 50 mm et une épaisseur de paroi de 5 mm.
Avec cette méthode, les bords des produits sont chauffés avec un dispositif de chauffage spécial, puis fondus et dans cet état sont assemblés, formant un tout et une couture parfaite.
La procédure pour ce type de soudure jusqu'au point n° 7 est identique à l'option de connexion précédente (sauf que les raccords ne sont pas nécessaires pour le travail).
Tableau de détermination du temps de chauffage et de refroidissement des éléments à souder
Et puis ça diffère et ça marche selon ce « scénario » :
- insérez les extrémités des éléments dans l'appareil de manière à ce que la plaque chauffante soit entre eux;
- presser les bords contre la plaque et ne pas modifier la pression de pressage jusqu'au processus de fusion ;
- chauffer les éléments en respectant les normes (le tableau ci-dessous pour le soudage des tuyaux en polyéthylène vous y aidera);
- retirez la plaque et amarrez les extrémités en exerçant une pression uniforme sur celles-ci;
- tenant le nœud, attendez que le polyéthylène refroidisse.
Technologie Bell
Le soudage des tuyaux en PEHD peut se faire de plusieurs manières. Il n'y a rien de particulièrement compliqué dans ces procédés, mais le soudeur doit décider quelle méthode lui convient le mieux.
Il existe une technologie de connexion par socket. Il est aussi parfois appelé "couplage". Son essence réside dans la connexion d'éléments à l'aide de dispositifs spéciaux - raccords. En plus d'eux, vous aurez besoin d'équipement pour le travail, à savoir une machine à souder. Vous pouvez choisir un modèle manuel pour les petits produits (jusqu'à 50 mm) ou mécanique pour les tuyaux en polyéthylène de grand diamètre (à partir de 40 mm et plus).
Vous devez également vous rappeler de préparer des adaptateurs ou des buses de soudage pour le travail et divers outils pour couper les produits.
Lors de l'exécution d'un tel soudage, il est nécessaire de connecter la partie extérieure du tuyau à l'intérieur du raccord. Ces deux surfaces sont chauffées par une buse de soudage : un tuyau est chauffé par un manchon et un raccord est chauffé par un mandrin.
Le dispositif de soudage des tuyaux en polyéthylène est assez coûteux
Le processus réel de soudage par emboîtement ressemble à ceci :
- La machine à souder est chauffée à la température requise ;
- Le raccord est étiré au maximum sur le mandrin, et en même temps, l'extrémité du tuyau est enfilée sur le manchon jusqu'à ce qu'il s'arrête (tout cela doit être fait très rapidement) ;
- En raison de la différence de taille des pièces, une couche supplémentaire apparaît qui, lorsqu'elle est chauffée, fond et rampe sous la forme d'un petit rouleau, appelé bavure;
- Le bourrelet réduit le diamètre des tuyaux et leur permet ainsi de pénétrer dans la buse de soudage et d'être aligné avec le mandrin avec le raccord ;
- Toutes les pièces doivent se déplacer dans la buse de chauffage jusqu'à ce qu'elles s'arrêtent, et une fois ce moment atteint, toute pression sur elles doit être arrêtée ;
- De plus, tous les fragments sont maintenus dans cette position pendant le temps requis ;
- Après la fin du temps, le raccord est retiré, le tuyau est retiré de la buse et ces pièces sont combinées autant que possible ;
- Une fois le fragment de soudure refroidi, un deuxième produit doit être soudé à l'autre extrémité du raccord.
Méthode de diffusion pour souder des tuyaux en PE
À ce jour, le polyéthylène n'a toujours pas une telle autorité que le métal ou le métal-plastique, mais en fait, ses caractéristiques de résistance et de performance ne sont pas pires. Les technologies modernes au stade de la production permettent de fabriquer des tuyaux en PE de haute qualité et fiabilité. La manière la plus intéressante de les souder est la diffusion, qui ne nécessite pas l'utilisation d'équipements spéciaux. Même un débutant pourra effectuer des travaux de soudage de cette manière.

Le polyéthylène haute et basse pression (LDPE et HDPE) est l'un des thermoplastiques polymères les plus populaires, qui sont les plus demandés pour organiser une grande variété de systèmes d'approvisionnement en eau, d'assainissement, etc. Une caractéristique distinctive du matériau polymère est que lorsqu'il est chauffé, il se ramollit, car l'interconnexion de la chaîne de molécules les unes avec les autres est perdue. Au fur et à mesure qu'il gèle, il retrouve son ancienne force, comme si la transformation n'avait jamais eu lieu. C'est cette caractéristique qui fait du polyéthylène un matériau idéal pour le soudage. Lors du ramollissement des deux produits, ils peuvent être connectés, ce qui, après solidification, conduira à la liaison la plus durable. Une soudure solide sera créée entre les deux pièces.

Les tuyaux en PE sont soudés à une température relativement basse de 270 degrés Celsius, ce qui simplifie grandement la tâche par choix d'équipement et l'utilisation ultérieure.Le temps de fonctionnement est extrêmement court (quelques secondes pour chaque étage) et ne peut être ajusté qu'en modifiant l'épaisseur des canalisations.
Comment plier ou redresser un produit
Les tuyaux en polyéthylène sont disponibles à la vente en longueurs droites de 12 mètres ou sous forme de produits solides enroulés sur de grandes bobines. Étant dans un état tordu, les produits prennent la forme d'anneaux et se déforment. Avant de redresser ou de plier un tuyau en PEHD déformé, il doit être chauffé.

Lors de l'assemblage d'une canalisation, il devient souvent nécessaire de redresser un tuyau en polyéthylène tordu ou, à l'inverse, de plier un tuyau en polyéthylène déformé
Le polyéthylène basse densité est réputé pour sa bonne élasticité. Mais il perd cette propriété à une température de chauffe supérieure à + 80°C. Ce moment est mis à profit si nécessaire pour modifier la configuration du produit.
Mais il convient de rappeler que pour redresser ou plier, la température ne peut être augmentée que pendant une courte période. Après tout, un tuyau en polyéthylène appartient à la catégorie des matériaux de construction qui, si le régime de température est violé, peuvent être endommagés.
Vue d'ensemble des méthodes de cintrage de tuyaux
Il est plus facile de redresser le tuyau, en éliminant les plis apparus lors de son stockage et de son transport, après que le produit a été légèrement chauffé. Si le remplacement ou la réparation du pipeline est effectué en été, lorsque les rayons du soleil sont aussi chauds que possible, vous pouvez les utiliser pour accomplir la tâche.

Pour redresser le tuyau en PEHD, il vous suffit de le laisser en plein soleil pendant quelques heures, en fixant fermement les extrémités du segment
Les rayons UV n'aggravent pas les paramètres de fonctionnement du polyéthylène, mais en même temps, ils pourront adoucir les parois du produit pendant un certain temps. Il suffit de fixer le tuyau ramolli le long d'un support rigide ou d'un mur, ou de le poser dans une tranchée pré-creusée. Avant de redresser le tuyau plié en PEHD sur le sol, vous devez nettoyer la zone.
Si les travaux doivent être effectués en hiver, utiliser de l'eau chaude pour chauffer le produit. Mais cette méthode est efficace pour les tuyaux dont la taille ne dépasse pas 50 mm. Comme aides au redressement, vous pouvez utiliser des garde-corps métalliques et de la maçonnerie. Dans tous les cas : plus la longueur du produit est courte, plus il sera facile à travailler.
Méthodes efficaces pour plier la pièce
Si la situation inverse se produit lorsqu'il est nécessaire de plier le tuyau en PEHD, le même traitement thermique est utilisé. Pour l'échauffement, les méthodes suivantes sont utilisées:
- soufflé avec de l'air chaud directionnel d'un sèche-cheveux de bâtiment ;
- réchauffer les parois du produit avec un brûleur à gaz ;
- arroser la surface avec de l'eau bouillante.
Pour simplifier la procédure de pliage, il est préférable de construire un cadre de moulage. Le cadre, dont la taille correspond au diamètre du tuyau coudé, peut être fabriqué à partir de feuilles de panneaux de fibres ordinaires. Pour rendre la surface du cadre lisse, poncez-la avec un morceau de papier de verre.
Pour plier le tuyau en PEHD avec un sèche-cheveux, le travail est effectué dans l'ordre suivant:
- La zone à traiter est chauffée avec un sèche-cheveux d'immeuble.
- La pièce ramollie est approfondie dans le cadre de moulage.
- Pliez soigneusement le tuyau, sans appliquer de force excessive afin de ne pas casser le produit au niveau du coude.
Après avoir créé l'angle de pliage requis, vous devez laisser le produit jusqu'à ce qu'il soit complètement refroidi, puis le retirer du cadre.

Pour assurer un chauffage uniforme de la surface d'un produit en polyéthylène, le tuyau doit être constamment tourné autour de son axe, en remplaçant différentes sections sous les rayons.
Un point important: lors du chauffage du tuyau, il est nécessaire de respecter le "juste milieu". Si la surface n'est pas suffisamment chauffée au moment du cintrage, le tuyau peut casser. Si, au moment du chauffage, l'élément chauffant est trop rapproché du produit, le polymère peut s'enflammer.
Soudage bout à bout

Vous pouvez souder bout à bout des tuyaux en PEHD de vos propres mains. Le soudage bout à bout est effectué à l'aide d'un équipement spécial à entraînement mécanique ou hydraulique. Une telle machine à souder permettra d'assembler deux éléments de tubes jusqu'à une connexion complète et étanche. Les appareils les plus populaires sont ceux qui ont un contrôle logiciel. Un tel équipement se caractérise par une automatisation complète et la capacité de contrôler le processus de soudage sans intervention de l'opérateur en termes d'effort physique.
Avant de travailler de vos propres mains, des tuyaux en PEHD aux caractéristiques techniques uniformes doivent être sélectionnés. Il est conseillé de souder des tubes même du même lot. Puisqu'ici le polymère est joint au niveau moléculaire, cette approche rendra le cordon de soudure plus étanche et plus fiable.
Le principe du soudage bout à bout consiste à chauffer les extrémités du tuyau sur une plaque spéciale. Après fusion, la plaque de PE entre les extrémités des deux tuyaux à souder est retirée et les éléments sont comprimés mécaniquement jusqu'à ce que le polymère soit complètement mélangé et soudé. Après cela, les tuyaux doivent pouvoir refroidir complètement.
Description des méthodes de soudage des tuyaux en PVC
- Ainsi, pour les tuyaux d'une section de 20 mm, la longueur de fusion (profondeur de soudage) sera de 14,5 mm;
- Eléments 25 mm - 16 mm ;
- Pour tubes d'un diamètre de 32 mm - 18 mm;
- Pour tubes de section 40 mm - 20 mm ;
- Tuyaux d'un diamètre de 50 mm à 23 mm.
Points forts de l'utilisation de l'électrofusion
En règle générale, les raccords électriques sont utilisés dans les cas où il n'est pas commode ou pratique de souder bout à bout des tuyaux en polyéthylène. Le plus souvent, cela se produit dans les puits d'égout, les canaux étroits et peu pratiques, les fosses d'installation dans la base et les murs des maisons. À proprement parler, les raccords électriques viennent à la rescousse dans les cas où le soudage bout à bout ne peut pas être utilisé.
Un autre avantage de cette méthode d'assemblage des tuyaux en polyéthylène est sa commodité en cas d'accident ou de dommage à la canalisation. En règle générale, de telles situations nécessitent un dépannage très rapide. Le soudage de tuyaux en PEHD avec raccords électriques se caractérise par une grande facilité de mise en œuvre - dans ce cas, aucune connaissance particulière n'est nécessaire.

La facilité d'installation de l'appareil est assurée par la présence de trous spéciaux sur celui-ci. Pour déterminer le régime de température optimal pour l'amarrage sur les machines à souder modernes, la fonction de lecture des informations requises directement à partir du code-barres, qui est équipé de couplages électriques, est fournie. La procédure de connexion est mise en œuvre avec les outils les plus simples - un dispositif pour dénuder les extrémités du tuyau, un couplage électrique et une machine à souder.




































