- Installer une cheminée sandwich
- Comment appliquer avec précision et correctement le mastic
- Caractéristiques des cheminées sandwich d'étanchéité
- Exigences réglementaires pour l'installation de cheminées
- Normes pour l'installation d'un système d'évacuation des fumées
- Cheminée en céramique
- Options de tuyaux en acier inoxydable
- Cheminées en céramique
- Que considérer lors du choix d'un matériau pour une cheminée?
- Essais de cheminée
- Vidéo - Vérification de l'acier sur les cheminées
- Vidéo - Test de cheminée UMK
- Règles de fonctionnement
- Cheminées en brique - avantages et inconvénients
- Types et différences
- résistant à la chaleur
- Joints en silicone
- Résistant à la chaleur
- Compositions de revêtement adhésif
- Quelle vue est la meilleure
- Popularité
- Structure amiante-ciment
- Système en acier inoxydable
- Recommandations d'installation
- cheminée en brique
- tuyau en fonte
- Types de cheminées
- Brique
- tuyau galvanisé
- cheminée coaxiale
- Céramique
- Acier inoxydable
Installer une cheminée sandwich
Nous avons déjà dit que la cheminée peut être connectée indépendamment. Pour ce faire, vous devez amener le tuyau à travers le toit ou directement dans le mur, puis le soulever à travers le canal rotatif. Afin d'améliorer la combustion dans la fournaise, installez d'abord un tuyau régulier, puis une cheminée sandwich. D'un tuyau ordinaire, il y a un fort rayonnement de chaleur. La température du tuyau n'est pas inférieure à la température de combustion. Pour réduire la chaleur, le tuyau est équipé d'un treillis en brique.Ainsi, après la fin de la combustion, le tuyau chauffe longtemps la pièce et la température initiale est tout à fait acceptable.
Dans certains cas, l'eau est chauffée par la cheminée. Ensuite, un réservoir spécial est utilisé, qui est installé près du premier tuyau provenant du four.
Assemblez les panneaux sandwich dans le sens de la fumée. Si vous regardez attentivement, chaque panneau a une extrémité plus épaisse d'un côté et plus fine de l'autre - pour la connexion. Ainsi, l'extrémité épaisse est toujours installée sur le dessus afin que la fumée ne pénètre pas dans la maison. Les joints doivent être scellés. Pour cela, un scellant est utilisé. Si cela n'est pas fait, l'oxygène peut pénétrer dans la cheminée, ce qui enflammera la suie.
Pour installer la cheminée, vous devez faire un trou dans le mur ou le plafond - selon la méthode d'installation de la cheminée. Il est interdit d'installer immédiatement un panneau sandwich sur le tuyau de dérivation du four. Un tuyau en acier est utilisé comme raccord
Sinon, la cheminée sandwich s'éteindra rapidement.
Il est très important de faire passer correctement la cheminée à travers le plafond. Après tout, le plus souvent en raison d'une installation incorrecte à cet endroit, des incendies se produisent dans les bains.
Distance minimale de la cheminée à le plafond doit être d'au moins 13 centimètres. Si les murs sont en bois - alors 38 centimètres. Ensuite, vous devez fixer le tuyau dans la zone du plafond. Parfois, ils utilisent un coin de profil et des vis autotaraudeuses. Pour empêcher l'eau de pénétrer dans la pièce par le toit, une tôle galvanisée est utilisée, qui est ensuite scellée avec du silicone.
Comment appliquer avec précision et correctement le mastic
Lorsque vous travaillez avec les deux types de polymères, il est nécessaire de préparer la surface de la cheminée: nettoyer, enlever la poussière et la saleté et dégraisser.Il est souhaitable de poncer l'acier avec du papier de verre fin pour améliorer l'adhérence du polymère.
La surface sous le mastic résistant à la chaleur doit être complètement sèche. Le tube est rempli dans le pistolet et une petite quantité de silicone est pressée sur le joint scellé. Laisser durcir (le temps approximatif est indiqué sur l'emballage).
La base du polymère de silicate résistant à la chaleur est préparée et légèrement humidifiée. Appliquez du mastic et laissez sécher. L'excès de masse résistant à la chaleur est éliminé jusqu'à ce que le mastic ait durci. Vous pouvez pré-coller le masking tape le long du joint, et le retirer après application.
Il est souhaitable d'effectuer des travaux par temps chaud.
Caractéristiques des cheminées sandwich d'étanchéité
Les tuyaux sandwich ont une surface métallique. Des polymères de silicate et de silicone sont utilisés pour leur étanchéité.
Une caractéristique de l'étanchéité des tuyaux sandwich est la nécessité d'étanchéifier à la fois les tuyaux intérieurs et extérieurs. En plus des considérations générales de sécurité qui ont été données au début de l'article, il est très dangereux pour un sandwich d'obtenir l'humidité atmosphérique de l'extérieur ou de se condenser de l'intérieur dans l'isolant.
La couche externe doit être recouverte de silicone - elle possède d'excellentes propriétés hydrophobes. Pour un joint intérieur, un mastic résistant à la chaleur est choisi en fonction du type d'appareil de chauffage et de la température des fumées.
Le processus d'étanchéité lui-même n'est pas particulièrement difficile - un cordon de mastic est appliqué sur les surfaces jointes des couches extérieure et intérieure et doucement enduit d'une couche de 1-2 mm à l'aide d'une spatule ou d'une plaque plate en acier, puis les modules de cheminée sont réunis.
Exigences réglementaires pour l'installation de cheminées
Le but principal et unique de la cheminée est d'évacuer les déchets gaz de la chaudière de chauffage à l'atmosphère à l'extérieur du bâtiment où est installé le poêle, la chaudière ou la cheminée. Dans le même temps, l'efficacité de l'équipement générateur de chaleur dépend directement de sa bonne installation.
Vous pouvez installer une chaudière dans la maison avec un excellent rendement, mais faites des erreurs de calcul lors de l'installation de la cheminée. Le résultat est une consommation excessive de carburant et un manque de température de l'air confortable dans les pièces. La cheminée doit avoir la section, l'emplacement, la configuration et la hauteur corrects.
Si la maison a deux chaudières ou un poêle et une cheminée dans différentes pièces, il est préférable de faire des tuyaux d'évacuation des fumées séparés pour chacune d'elles. L'option avec une cheminée est autorisée par SNiPs, mais seul un fabricant de poêles professionnel peut la calculer correctement.
Le diamètre de la cheminée est choisi en fonction de l'équipement de chauffage utilisé. Lors de l'installation de la chaudière, celle-ci est déjà réglée par le fabricant avec un tuyau de vidange. Il est interdit d'y connecter des tuyaux d'une section plus petite, et il n'est tout simplement pas nécessaire d'en connecter un plus grand. Dans le second cas, pour augmenter la traction, vous devrez monter une boîte de vitesses, ce qui coûte très cher.
En cas de cheminée ou poêle russe de la brique, tout est un peu plus compliqué. Ici, vous devez faire de l'ingénierie calculs tenant compte du carburant utilisé et la taille des fours. Il est beaucoup plus facile de prendre un projet de four à briques prêt à l'emploi qui a été testé par le temps. Heureusement, il existe de nombreuses options avec un ordre de maçonnerie bien défini.
La hauteur du tuyau de cheminée au-dessus du toit est déterminée par sa distance par rapport au faîte du toit
Plus la cheminée est haute et longue, plus le tirage est fort. Cependant, cela peut entraîner une surchauffe et la destruction de ses parois. De plus, une forte augmentation du tirage est une condition préalable à l'apparition de turbulences dans la cheminée, qui s'accompagnent d'un bourdonnement et d'un bruit à basse fréquence.
Si le tuyau est trop bas, la crête peut se transformer en un obstacle insurmontable à la fumée qui en sort. En conséquence, un effet de tirage inversé se produira avec les gaz de combustion retournant dans le four. Comment le normaliser sera discuté dans ce document.
Pendant le fonctionnement normal de la cheminée, le flux de vent horizontal, circulant autour de la section du tuyau au-dessus du toit, augmente. En conséquence, de l'air raréfié se forme au-dessus de celui-ci, qui «aspire» littéralement la fumée de l'échappement. Cependant, la crête d'un toit en pente et même un grand arbre à proximité immédiate de la maison peuvent interférer avec ce processus.
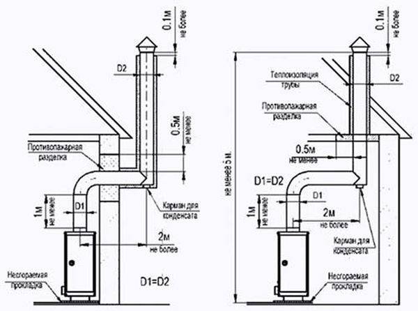
Normes pour l'installation d'un système d'évacuation des fumées
Les codes du bâtiment prescrivent que la cheminée soit réalisée comme suit :
- Sa longueur de la grille au point le plus haut doit être de 5 mètres (une exception n'est possible que pour les bâtiments sans grenier et uniquement dans des conditions de tirage forcé stable).
- La hauteur optimale, compte tenu de tous les virages possibles, est de 5 à 6 m.
- La distance entre une cheminée en métal et des structures en matériaux de construction combustibles doit être d'un mètre.
- La sortie horizontale immédiatement derrière la chaudière ne doit pas dépasser 1 m.
- Lors du passage à travers la toiture, les murs et les plafonds à l'intérieur de la maison, un canal en matériaux incombustibles doit être équipé.
- Pour connecter les éléments métalliques du tuyau, le mastic doit être utilisé exclusivement résistant à la chaleur avec une température de travail de 1000 ° C.
- La cheminée doit s'élever d'au moins 50 cm au-dessus du toit plat.
- Si une cheminée sans brique est construite à 1,5 mètre ou plus au-dessus du niveau du toit, elle doit être renforcée sans faute avec des vergetures et des supports.
Toutes les pentes et les sections horizontales réduiront inévitablement le tirage dans le tuyau de cheminée.S'il est impossible de le rendre droit, il est préférable d'effectuer les virages et les déplacements à partir de plusieurs segments inclinés à un angle total allant jusqu'à 45 degrés.
En plus d'observer des règles purement constructives qui garantissent le haut rendement de la cheminée et du poêle, il est également nécessaire de veiller à la sécurité incendie, pour laquelle des empreintes et des écrans spéciaux sont fabriqués.
Lors de la disposition des conduits de ventilation et de cheminée en parallèle dans une structure au-dessus du toit, ils ne doivent en aucun cas être recouverts d'un capuchon commun. La sortie du poêle doit nécessairement s'élever au-dessus du tuyau de ventilation, sinon le tirage diminuera et la fumée commencera à être aspirée dans la maison. Il en va de même pour les hottes et les cheminées individuelles mais adjacentes.
Cheminée en céramique
Récemment, les maîtres de poêles ont activement introduit des choses qui diffèrent des briques classiques. Ce sont des tuyaux en céramique jusqu'à 3 m de long, des blocs légers avec un trou, dont le diamètre correspond à leur taille, sont fournis en combinaison avec eux. Par rapport à d'autres matériaux, la céramique présente les avantages suivants :
- Résistance aux hautes températures. Les tuyaux en céramique "verrouillent" la chaleur provenant du mélange de fumée avec les produits de combustion à l'intérieur, empêchant les unités extérieures de s'échauffer. Par conséquent, ils sont considérés comme les plus sûrs et les plus fiables. Une cheminée en céramique ne nécessite pas d'isolation thermique supplémentaire en raison de la forte absorption de chaleur du matériau.
- Résistant à l'humidité, à la corrosion et aux composés chimiques agressifs. Ils ont commencé à utiliser la céramique pour la construction de la cheminée, remarquant à quel point le matériau est inerte. Les tuyaux de celui-ci servent au moins 50 ans sans nécessiter de soins particuliers.
- Assemblage facile.Vous pouvez installer vous-même une cheminée à partir de tuyaux en céramique, contrairement à la brique. L'essentiel est de choisir le bon diamètre des éléments supplémentaires que vous allez utiliser. Des barres d'armature et du mortier de ciment sont nécessaires pour l'installation.
- Polyvalence. Grâce à la variété des produits céramiques, il est facile de choisir le diamètre approprié pour le raccordement au tuyau d'entrée du réchauffeur. Par conséquent, les cheminées faites de ce matériau sont utilisées pour tous les types de poêles, cheminées, chaudières à gaz et chaudières.
- Facilité d'entretien. La surface intérieure du tuyau en céramique a une structure dense et lisse, de sorte que la suie ne s'y accumule pas. La cheminée de leur céramique est facile à entretenir, car elle ne nécessite pas de nettoyage fréquent.
Schéma du canal d'évacuation des fumées des tuyaux en céramique
Externe conduit d'évacuation des fumées tuyaux en céramique
Options de tuyaux en acier inoxydable
À ce jour, vous pouvez trouver jusqu'à trois options pour ce type de cheminée.
- Simple paroi (épaisseur - 0,6-20 millimètres).
- Ondulé.
- Sandwichs à trois couches (deux tuyaux + isolation).
Examinons chacune des options leurs avantages et inconvénients sous forme de tableau.
| Type de tuyau | Avantages | Défauts |
|---|---|---|
| une seule couche | Faible coût, surface intérieure lisse. | Des taux de transfert de chaleur élevés, de la condensation peut se former, la nécessité d'installer une isolation thermique. |
| Ondulé | Élasticité, une certaine flexibilité. | Faible résistance aux températures élevées, usure rapide, surface intérieure ondulée, sur laquelle le condensat peut s'accumuler, ne convient pas aux sections horizontales de la cheminée, il est nécessaire de fixer et d'installer une isolation thermique. |
| Trois couches | Faible dissipation thermique, polyvalence, montage facile, joints étanches. | Le coût de ce type de tuyau est assez élevé par rapport aux autres. |
Chaque type de tuyau a ses propres caractéristiques qui entravent ou aident au choix
Cheminées en céramique
L'un des matériaux les plus durables, en raison de la résistance aux environnements agressifs, aux températures élevées, à l'absence de corrosion. En raison de la surface intérieure lisse, la suie et la suie ne s'accumulent pas dans le tuyau, ce qui simplifie l'entretien du système de chauffage.
Une structure en céramique est le plus souvent dissimulée dans un caisson en béton d'argile expansée. Cette solution élimine la surchauffe du tuyau, ce qui indique la sécurité incendie de la cheminée.
Les principaux avantages du tuyau en céramique:
• faible conductivité thermique ;
• résistance aux changements de température ;
• manque de rugosité en surface ;
• mode d'installation simple ;
• longue période d'exploitation.
Défauts:
• poids élevé, augmentant l'exigence pour la fondation;
• les méthodes d'installation sont limitées à la position verticale du tuyau.

Que considérer lors du choix d'un matériau pour une cheminée?
Une cheminée est une structure complexe, composée d'un tuyau vertical, d'un parapluie de protection contre les précipitations, d'une fenêtre de visualisation pour l'entretien, plateau de collecte condensats et autres éléments. Le tuyau vertical est considéré comme la partie principale de la cheminée, et la sécurité et l'efficacité de la fournaise ou de la chaudière en dépendent.
Pour choisir le bon matériau de cheminée, vous devez bien comprendre quel combustible sera utilisé : gaz naturel, diesel, charbon, bois de chauffage, tourbe ou sciure de bois. Chacun d'eux a une température de combustion, une température et une composition des gaz d'échappement différentes.Par conséquent, lors du choix d'un matériau pour une cheminée, les paramètres suivants sont pris en compte:
-
température des fumées. Naturellement, le matériau doit supporter des températures un peu plus élevées que celles qui sont caractéristiques des gaz sortants ;
- résistance à la corrosion. Lors de la combustion de certains types de combustibles, des vapeurs d'acide sulfurique et chlorhydrique se forment, auxquelles tous les matériaux ne peuvent pas résister. Plus il y a de soufre dans la composition du carburant, plus le matériau doit être résistant aux effets des composés soufrés. Selon ce paramètre, les cheminées sont divisées en trois classes: la première - pour l'élimination des produits de combustion de gaz, la seconde - le bois de chauffage et le combustible liquide avec une teneur en soufre allant jusqu'à 0,2%, la troisième - pour le charbon, la tourbe, le carburant diesel ;
- la présence de condensat dans la cheminée ;
- pression des gaz de combustion. Il existe des modèles conçus pour fonctionner avec un tirage naturel et d'autres conçus pour fonctionner avec des chaudières sous pression.
-
résistance au feu de suie. La température dans la cheminée lors de l'inflammation de la suie, si elle est présente, peut atteindre brièvement 1000 ° C - tous les matériaux ne peuvent pas supporter cela.
De tout cela il résulte que :
- pour les poêles à bois, les chaudières à combustible solide, les poêles de sauna et les cheminées, il est nécessaire de choisir un matériau pouvant supporter une température de fonctionnement d'environ 700C et une augmentation à court terme jusqu'à 1000C. Ce sont des cheminées en brique et moins souvent en céramique;
- les chaudières à gaz nécessitent une cheminée pouvant supporter des températures de 200C avec des montées à court terme à 400C. Habituellement, des tuyaux métalliques sont utilisés à cette fin;
- pour les chaudières à combustible liquide et à sciure de bois, un tel matériau pour le tuyau de cheminée est requis, qui résisterait calmement à des températures allant jusqu'à 250C avec une augmentation à 400C, et si nous parlons de carburant diesel, alors également résistant à l'environnement agressif des gaz d'échappement des gaz.
Examinons maintenant les propriétés des matériaux les plus populaires utilisés pour équiper le tuyau de cheminée.
Essais de cheminée
Si vous choisissez une cheminée, vous devez savoir si elle est vraiment de haute qualité et répond aux paramètres indiqués par le fabricant. Pour ce faire, certains constructeurs font des tests et c'est super s'ils les publient sur Internet, cela fidélise. Pour évaluer ce critère, nous allons fouiller les réseaux sociaux des constructeurs à la recherche de vidéos avec des tests de cheminées.
Produits TiS
Nous avons trouvé la société Ferrum sur YouTube, où ils publient périodiquement des avis sur n'importe quel élément de la cheminée sur la chaîne. Il y a une vidéo où ils vérifient l'acier sur les cheminées de différentes marques.
Vidéo - Vérification de l'acier sur les cheminées
Le fabricant UMK possède également sa propre chaîne YouTube, où sont publiées des critiques vidéo de cheminées, y compris leurs tests. Par exemple, le fabricant a mené une série de tests, où il a soumis 3 cheminées à des températures élevées, de 3 fabricants différents dans le même segment de prix.
Vidéo - Test de cheminée UMK
La société TiS ne fait pas exception avec sa chaîne YouTube, mais malheureusement, il n'y a pas eu de tests de cheminée, bien qu'ils soient "plus", car ils maintiennent activement leur chaîne YouTube et téléchargent constamment de nouvelles vidéos.
Quel fabricant de cheminées sandwich est le meilleur dans la catégorie tests :
- Ferrum - 2 points;
- CEM - 2 points ;
- TiS - 1 point.
Règles de fonctionnement
Pour qu'une cheminée construite sur la base de l'un ou l'autre type de matériau serve fidèlement pendant de nombreuses années, il faut:
- assurer une installation étanche ;
- contrôler la température;
- ajuster la traction ;
- équiper un canal de ventilation;
- isoler;
- protéger les têtes des effets des facteurs environnementaux;
- nettoyer de la suie;
- privilégier le carburant sans impuretés étrangères;
- brûler correctement le carburant ;
- éviter une combustion trop intense;
- ne pas trop refroidir;
- inspecter périodiquement.
Ces recommandations simples vous permettront de profiter à la fois de la durabilité et de l'efficacité de la conception, quel que soit le matériau.
Mais gardez à l'esprit que le choix des matières premières est un événement très important. Au vu de ce qu'il n'est pas recommandé de saisir le premier tuyau qui se présente, sinon vous pouvez être très désolé plus tard
Fais attention!
Chaleur et confort dans votre maison, chers amis. À la prochaine.
Citations Sagesse: Rien n'est plus ennuyeux qu'un bon exemple (Mark Twain).
Cheminées en brique - avantages et inconvénients
Ces tuyaux sont disposés en brique rouge solide, généralement à l'intérieur des bâtiments, les options attachées externes sont moins courantes. Le mortier de maçonnerie est composé d'argile, de sable et de ciment.
Les propriétaires doivent faire face à des conduits en brique dans 2 cas :
- le projet prévoit l'emplacement du canal de fumée à l'intérieur de la maison - à côté des conduits d'évacuation de l'unité de ventilation ;
- lors de l'érection d'un poêle fixe ou d'une cheminée classique.

Maison classique (à gauche) et cheminée attenante (à droite)
Auparavant, la brique rouge était considérée comme un matériau idéal pour la construction d'une cheminée, mais avec l'avènement de nouveaux produits, elle a perdu sa position de leader.Avantages des conduits de gaz en brique :
- Aspect présentable, qui reste longtemps - pendant toute la période de fonctionnement.
- La gaine passant à l'intérieur du mur transfère une partie de la chaleur des fumées au local.
- Les pierres et la solution de liant sont des matériaux incombustibles.
- Un tuyau correctement plié résiste avec succès au chauffage jusqu'à 1000+ degrés pendant la combustion de la suie (un exemple est montré sur la photo). Mais avec une exposition répétée ou prolongée à des températures élevées, la structure commencera à s'effondrer et deviendra un risque d'incendie.

Les inconvénients des tuyaux en briques sont bien plus:
- La surface intérieure inégale du canal contribue au dépôt et à l'accumulation de suie, qui s'enflamme en cas de débordement.
- La forme rectangulaire (ou carrée) du puits ainsi que la rugosité des parois augmentent la résistance aérodynamique du tuyau et réduisent le tirage naturel.
- La construction est assez lourde et volumineuse, nécessitant des fondations. Construire une cheminée ou un poêle entièrement de vos propres mains n'est pas une tâche facile, embaucher des artistes interprètes ou exécutants coûte cher.
- En raison des particularités de la maçonnerie, les dimensions du canal sont liées aux dimensions des briques, par exemple 14 x 14, 14 x 21 ou 21 x 27 cm.Les sections de puits standard sont présentées dans le tableau.
- Travaillant en tandem avec une chaudière à gaz, une cheminée en brique s'effondre sous l'influence du condensat.
La condensation est le principal fléau des canalisations en pierre. La vapeur d'eau contenue dans les produits de combustion pénètre dans les pores de la brique, se condense et est saisie par le givre. De plus, il est clair - le matériau se décolle, la cheminée est détruite. La physique du processus sera expliquée par un spécialiste dans la vidéo :
Comment faire face aux inconvénients des mines de briques:
- faire une isolation thermique externe de la section de rue du tuyau;
- posez un manchon en acier inoxydable à l'intérieur du canal - créez un conduit de gaz combiné;
- faire fonctionner la cheminée avec une chaudière ou un poêle à combustible solide - les gaz réchauffent rapidement les parois de la mine, le condensat ne tombe pratiquement pas;
- aménager des murs en briques doubles, la rangée intérieure est en pierre industrielle de type ShB-8.

Les irrégularités dans les pores de la maçonnerie et de la brique peuvent être protégées par la dorure
Types et différences
Tous les types de mastics à utiliser à haute température sont divisés en deux grands groupes - résistant à la chaleur (silicone) et résistant à la chaleur (silicate). Ils diffèrent par leur composition chimique et leurs paramètres de fonctionnement admissibles.
résistant à la chaleur
résistant à la chaleur les mastics sont fabriqués à base de silicones – les composés organosiliciés contenant de l'oxygène. Ils résistent à des températures jusqu'à 300°C, à 100°C et plus, les silicones résistants à la chaleur surpassent tous les matériaux élastiques traditionnels.
Les silicones sont durables, élastiques, chimiquement inertes, imperméables, résistants aux influences biologiques, aux rayons UV. Peut fonctionner avec des changements de température rapides, non toxique, respectueux de l'environnement.

Les silicones résistants à la chaleur sont disponibles sous forme de pâte brun rougeâtre. La couleur du mastic est donnée par les oxydes de fer. Les températures de fonctionnement peuvent varier de 170 à 300°C, cette information est indiquée sur l'emballage.
Portée du silicone: sceller les surfaces extérieures de la cheminée, la jonction du tuyau et du toit, sceller les fissures non traversantes sur les surfaces en brique des cheminées et des poêles, sceller les tuyaux chaudières à gaz à haut rendement et léger échauffement des fumées.
Joints en silicone
Pour la commodité des consommateurs, l'industrie produit une vaste gamme de joints en silicone - joints, membranes, cordons, tubes, joints de différentes configurations.Ils sont utilisés pour sceller les fenêtres et les portes, dans les appareils électroménagers, dans les voitures, l'électrotechnique.
Le silicone est utilisé pour fabriquer un maître flash - un joint élastique pour passage de tuyau à travers le toit. Ils produisent des rubans thermorétractables spéciaux - ils sont enroulés autour des joints des modules de cheminée, lorsqu'ils sont chauffés, ils fondent et remplissent étroitement le joint scellé.

Résistant à la chaleur
Pour sceller et réparer les surfaces internes des cheminées, des chambres de combustion, des trous pleins dans les tuyaux en briques, des joints d'éléments en fonte et en acier avec la maçonnerie du poêle, l'assemblage de cheminées en sandwich, on utilise des polymères de silicate réfractaires pouvant résister à des températures allant jusqu'à 1200 ° C ( pendant une courte période - même jusqu'à 1500 ° C ).
Les mastics au silicate sont de couleur noire ou gris-noir et ont une consistance visqueuse qui durcit dans les 15 minutes suivant l'application. L'épaisseur de la couture peut atteindre 15 mm. Les silicates résistants à la chaleur forment une couture inélastique. Les travaux sont effectués à des températures de 1 à 40 °C.

Compositions de revêtement adhésif
L'industrie produit des composés spéciaux résistants à la chaleur pour le garnissage des fours, cheminées et cheminées avec carrelage (ordinaire, argile réfractaire, clinker, grès cérame), pierre naturelle ou artificielle. Ils sont généralement fabriqués à base de silicates, contiennent du verre liquide, du kaolin, du ciment, des plastifiants, des polymères.
De tels mélanges résistent à des températures de -30 à +170 ° C et même plus. Dans l'industrie, d'autres adhésifs à haute température sont également utilisés, qui nécessitent un fort chauffage pour le séchage, mais ils n'ont pas été distribués dans la vie quotidienne.

Quelle vue est la meilleure
Chaque type de mastic est conçu pour certaines conditions de fonctionnement et la performance de certaines fonctions.Les silicones sont utilisés sur les surfaces extérieures des cheminées, des poêles et des cheminées, des éléments d'étanchéité des tuyaux de chaudière à gaz. Des polymères de silicate résistants à la chaleur sont utilisés dans tous les cas, si le lieu d'application du mastic est chauffé à plus de 300 °C. Ils peuvent également être utilisés pour sceller les fuites dans les appareils de chauffage, même pour le métal.
Popularité
Nous vérifierons la popularité des cheminées à l'aide du service Yandex.wordstat. Grâce à ce service, vous pouvez suivre le nombre de requêtes dans le moteur de recherche par mois. Nous déterminerons par trois phrases - cheminées *fabricant*, acheter des cheminées *fabricant*, tuyaux *fabricant*
| Phrase/fabricant | Ferrum | WMC | If |
|---|---|---|---|
| cheminées *fabricant* | 2 786 impressions par mois | 854 impressions par mois | 1 099 impressions par mois |
| acheter des cheminées *fabricant* | 450 impressions par mois | 155 impressions par mois | 125 impressions par mois |
| tuyaux *fabricant* | 545 impressions par mois | 339 impressions par mois | 131 impressions par mois |
Le fabricant Ferrum se détache clairement du tableau ci-dessus, il est recherché plus souvent sur Internet - 3 points.
La société Teplov et Sukhov a 1099 impressions, elle obtient donc 2 points.
Et UMK - 1 point.
De toute évidence, les spécialistes du marketing de Ferrum investissent activement dans la publicité, et peut-être à cause de cela, Ferrum est un peu plus cher.
Structure amiante-ciment
Ils sont fabriqués à base d'amiante, un minéral silicaté incombustible à fibres fines. Ils se distinguent par une résistance élevée à la corrosion et un faible coût. Un tuyau en amiante coûtera deux fois moins cher qu'un tuyau en brique. C'est là que s'arrêtent les avantages de la conception, mais elle présente de nombreux inconvénients :
-
- Une réduction significative de la poussée, puisqu'il n'y a pas de capacité calorifique qui la supporte.
- Augmentation de la formation et de l'absorption de condensat.
- Incapacité à faire fonctionner la structure à des températures élevées. Lorsque la barre des 300° est dépassée, l'amiante-ciment peut éclater et parfois exploser.
- L'impossibilité d'aménager des trappes d'inspection et d'enlever la suie de l'appareil.
- Méthode de montage exclusivement verticale.
Effets nocifs de l'amiante sur le corps humain.

Lorsque la température dépasse 300 degrés, le tuyau en amiante-ciment peut éclater et même exploser. Les conséquences d'une telle explosion sont visibles sur la photo.
L'amiante-ciment est une solution plutôt économique mais éphémère pour les appareils de chauffage de faible puissance, les segments supérieurs des conduits de fumée destinés au passage des gaz presque refroidis, etc.
Système en acier inoxydable
Fabriqué en acier allié spécial, il résiste à la corrosion dans l'atmosphère et dans presque tous les environnements agressifs. Présente de nombreux avantages :
- Léger, ne nécessite pas la disposition de la fondation.
- Facilité d'installation, qui peut se faire de l'intérieur ou de l'extérieur. Dans ce dernier cas, la structure est fixée au mur avec des supports spéciaux.
- Longue durée de vie grâce à une résistance élevée à la corrosion.
- Surface intérieure lisse qui empêche l'accumulation de suie.
- La structure peut être installée pendant la construction ou montée dans un bâtiment fini.
Coût acceptable.

Si une cheminée en acier inoxydable est montée à l'extérieur, elle nécessite une isolation supplémentaire. Sinon, en raison d'une importante perte de chaleur pendant la saison froide, une grande quantité de condensat se formera.
Les inconvénients incluent la nécessité d'isoler le tuyau, à condition qu'il soit monté à l'extérieur de la maison. Sinon, des pertes de chaleur se produisent, entraînant la formation d'une grande quantité de condensat, ce qui peut endommager le système de chauffage. De plus, certains n'aiment pas l'apparence de telles cheminées. Si vous le souhaitez, vous pouvez acheter un boîtier spécial qui recouvre le tuyau, qui imite n'importe quel matériau traditionnel : tuiles, briques, etc.
Recommandations d'installation
Les recommandations ci-dessous vous aideront à installer correctement la cheminée afin qu'elle fonctionne sans aucune difficulté.
- Si vous installez un tuyau d'une hauteur de cinq mètres ou plus, vous pouvez obtenir une bonne traction.
- La longueur des sections horizontales doit aller jusqu'à un mètre, pas plus.
- L'installation d'une cheminée dans la rue ou dans une pièce non chauffée implique l'installation d'un matériau d'isolation thermique.
- Si la cheminée traverse un toit construit avec des matériaux combustibles, un pare-étincelles doit être installé.
Si vous suivez strictement les recommandations suggérées, vous pouvez installer une cheminée sans aucun problème.
cheminée en brique
La méthode traditionnelle peut être érigée au moment de la construction de la maison et avoir une forme très différente, même ronde, à condition que les murs intérieurs soient correctement traités.
Cheminée en brique
Le nombre de dignité peut être reconstitué:
- fiabilité;
- durabilité;
- bonne dissipation thermique;
- résistance au feu;
- belle vue.
Mais, il y a aussi des inconvénients :
- L'accumulation de suie est beaucoup plus rapide, en raison des murs rugueux et inégaux à l'intérieur.
- Poids énorme, qui nécessite donc de remplir le "coussin".
- Sous l'influence des acides, du condensat, la brique est progressivement détruite.
- Prix élevé.
N'oubliez pas que le tirage dans de tels canaux peut être perturbé en raison des écoulements tourbillonnaires.Pour minimiser toutes les lacunes, mais en même temps obtenir une structure monumentale et fiable, un tuyau métallique peut être inséré à l'intérieur de la maçonnerie. Il fournira une séparation de fumée fiable et n'affectera pas le cadre de protection. Le choix appartient donc au propriétaire, quel tuyau dans une maison privée est monté de manière optimale. Si vous utilisez deux configurations à la fois, réfléchissez à la faisabilité d'une structure aussi massive. Le prix est assez énorme, et pour de tels fonds, vous pouvez installer une configuration plus appropriée, telle qu'un panneau sandwich.
tuyau en fonte

Il est utilisé comme alternative aux bâtiments classiques en briques, car les coûts de construction peuvent varier de plus de 70 %. Cependant, malgré le faible coût, il existe très peu d'avantages significatifs pour de tels tuyaux. De plus en plus d'inconvénients
- Fragilité, due au matériau non résistant à un environnement agressif.
- La combustion rapide des murs fait que la fumée peut d'abord pénétrer dans la pièce de manière imperceptible, par de petits trous.
- Poids extrêmement élevé. Quel "coussin" supplémentaire est nécessaire.
De plus, n'oubliez pas qu'une cheminée en fonte émet beaucoup plus de condensat que toute autre et, par conséquent, une base en fonte ne supporte pas aussi bien les acides. Comme vous pouvez le voir, dans de telles conceptions, il y a de plus en plus de lacunes que de véritables aspects positifs pour une personne. Par conséquent, ils sont souvent utilisés pour économiser de l'argent, mais vous devez comprendre que plus tard, vous aurez besoin d'un entretien et de réparations fréquents.
Types de cheminées
Les tuyaux sont fabriqués à partir de différents matériaux, que nous examinerons plus en détail.
Brique
Les cheminées en briques classiques pour une chaudière à gaz sont toujours en demande, quels que soient leurs nombreux inconvénients et leurs mauvaises performances thermiques.Dans le même temps, ils respectent les normes et règles sanitaires, qui stipulent :
-
Le tuyau est fait de briques d'argile réfractaire.
-
Pour la construction des murs, une solution d'argile ou de colle spéciale est utilisée.
-
Pour améliorer le tirage, la cheminée s'élève au-dessus du niveau du faîte du toit.
Les normes réglementent la hauteur du tuyau par rapport au faîte du toit, en fonction de la distance entre eux
-
La maçonnerie assure l'étanchéité.
-
Au trou intérieur, la déviation n'est pas supérieure à 3 mm par 1 m.
-
Pour protéger contre les précipitations, un déflecteur est installé sur la tête du tuyau.
De plus, la cheminée peut avoir une conception mono qui, en raison de faibles caractéristiques thermiques, est réparée tous les 5 à 7 ans.
tuyau galvanisé
Un dispositif sandwich est aujourd'hui l'option de conception de cheminée la plus efficace. L'avantage incontestable de ces cheminées est leur résistance aux environnements agressifs et aux diverses influences mécaniques.
Le produit se compose de deux tuyaux de tailles différentes, l'un inséré dans l'autre. La laine de basalte est généralement utilisée comme charge entre eux.
cheminée coaxiale
Actuellement, les chaudières à gaz utilisent des chambres de combustion de type fermé. Ici, l'admission d'air et le désenfumage sont réalisés par un tuyau coaxial. Il s'agit d'un appareil original, introduit relativement récemment, mais déjà très populaire parmi les utilisateurs.
La solution non standard réside dans l'admission d'air par un tuyau qui évacue les produits de combustion. Il s'avère qu'un tuyau remplit deux fonctions en raison des caractéristiques de conception.
Une cheminée coaxiale est un tuyau dans un tuyau
Et sa différence caractéristique par rapport aux tuyaux ordinaires est la suivante ... Un tuyau plus petit (60-110 mm) est situé dans un tuyau de plus grand diamètre (100-160 mm) de manière à ce qu'ils ne se touchent pas.
Dans le même temps, la structure est un tout en raison des cavaliers sur toute la longueur et est un élément rigide. Le tuyau intérieur sert de cheminée et le tuyau extérieur sert d'air frais.
L'échange d'air à différentes températures crée une traction et définit la masse d'air dans un mouvement dirigé. L'air de la pièce n'est pas utilisé pendant le fonctionnement de la chaudière, maintenant ainsi le microclimat dans la pièce.
Céramique
Une telle cheminée est une structure composite, comprenant :
-
Conduit de fumée en matériau céramique.
-
Couche isolante ou lame d'air.
-
Surface extérieure en béton Claydite.
Cette conception complexe est due à plusieurs raisons. Premièrement, le tuyau de cheminée est trop fragile pour être laissé sans protection.
Un tuyau en céramique est toujours situé à l'intérieur d'un bloc solide.
Deuxièmement, la céramique a une conductivité thermique élevée et nécessite donc une isolation fiable. Le tube intérieur de section circulaire a une surface lisse, tandis que sur le tube extérieur, des rugosités sont autorisées qui n'affectent pas l'intégrité du produit.
En règle générale, ces cheminées sont disponibles dans des longueurs de 0,35 à 1 m, selon le fabricant. La connexion des tuyaux intérieur et extérieur se fait au moyen d'un verrou, qui est un amincissement de la taille externe d'une extrémité et une expansion du tuyau intérieur de l'autre côté.
La surface extérieure en béton d'argile expansée est de forme carrée avec un trou rond à l'intérieur.De plus, ce produit offre une place pour un radiateur, qui est maintenu par des cavaliers métalliques. En même temps, ils sont fixés sur la surface extérieure et constituent une fixation fiable pour ce tuyau.
Acier inoxydable
Une cheminée à gaz en acier semble être plus fiable qu'une cheminée en brique. Ils sont résistants à la corrosion, insensibles aux fluctuations de température, ils ne sont pas affectés par l'augmentation de l'humidité de l'air et les environnements agressifs.
Cheminée en acier inoxydable
De plus, ces tuyaux en acier inoxydable présentent un certain nombre d'avantages:
-
Longue période de fonctionnement.
-
Multifonctionnalité.
-
Coût relativement faible.
-
Grande force.
-
Réalisation probable d'un produit de toute complexité.
Pour les cheminées constituées de ce matériau, un assemblage de modules est caractéristique, ce qui permet le remplacement d'un segment endommagé si nécessaire. L'installation des cheminées se fait à l'aide de coudes spéciaux qui leur permettent de s'intégrer harmonieusement dans certains éléments du toit.












































