- Critères de choix
- Types et catégories
- type d'installation
- Emplacement
- Gestion des équipements
- La nature des eaux usées
- Type d'équipement de pompage
- Pompe hydraulique dans un réseau d'égouts forcés
- informations générales
- Principe de fonctionnement
- La station a des modes de fonctionnement
- Instructions d'installation pour KNS
- Règles pour l'installation d'installations d'égout
- Pompe fécale: conception, types, objectif
- Le principe de fonctionnement de la pompe fécale avec un mécanisme de broyage
- Types de pompes
- Méthodes d'installation
- Installation
- Comment fonctionne la gare
- Comment calculer le volume de réception
- Installation, démarrage et mise en service - comment ça se passe
- Service KNS
- Erreurs d'installation typiques
- Service KNS
- Types et types de KNS
Critères de choix
Un grand nombre de types de stations domestiques sont présentés sur le marché des équipements de pompage, qui diffèrent par leurs caractéristiques techniques.
Il est important de prêter attention aux éléments suivants :
- puissance - il existe des modèles de 500 à 2000 W;
- la productivité dépend de la puissance - plus elle est élevée, plus la station est capable de pomper d'eau par unité de temps ; pour une maison privée, vous devez acheter un appareil d'une capacité d'environ 2000 l / h;
- le volume de l'accumulateur - peut aller de 15 à 60 litres; plus la capacité est grande, moins la pompe s'allumera souvent;
- la présence d'une protection contre le fonctionnement à sec et la surchauffe - de telles fonctions sauvent parfois les appareils de la combustion;
- matériaux pour la fabrication du corps et des pièces internes - fonte, acier ou plastique; dans les modèles plus chers, le corps et la roue sont en acier.
Si vous devez placer l'appareil à proximité d'espaces de vie, car il n'y a pas d'autres options, il est recommandé de choisir un boîtier en fonte - il atténue mieux le son qu'un boîtier en acier inoxydable, bien que les produits en acier soient plus attrayants à l'extérieur. A l'intérieur la fonte est recouverte d'une couche protectrice contre la corrosion. Le matériau est moins sujet aux vibrations, il dure donc plus longtemps que le technoplastique. De plus, il n'a pas peur des dommages mécaniques.
Types et catégories
Les stations d'égout sont classées selon plusieurs critères.
type d'installation
KNS peut avoir exécution verticale et horizontale. Ces derniers sont souvent équipés d'une pompe auto-amorçante, qui pompe de force les masses contaminées dans le boîtier KNS et les élimine après le nettoyage. Parfois, un réservoir peut avoir un compartiment horizontal supplémentaire sur le fond. Cette conception contribue à la répartition uniforme du limon dépôts au fond réservoir et augmente le temps de son remplissage.
Ceci, à son tour, vous permet de nettoyer le réservoir moins souvent, ce qui permet d'économiser beaucoup de temps et d'argent.


Emplacement
Selon leur emplacement par rapport à la surface terrestre, les SPS peuvent être enterrés, partiellement enterrés et avoir un emplacement au sol. Les stations au sol sont représentées par des mini-ensembles situés dans les cuisines, les salles de bain et les toilettes.Les enterrés sont des modèles traditionnels avec un réservoir de stockage creusé dans le sol, et pour les réservoirs partiellement enterrés, un réservoir équipé de capteurs, d'une pompe et de vannes est situé dans le sol le long du col. Système de surveillance et de contrôle automatique tout en étant ramené à la surface.


Gestion des équipements
Les KNS sont équipés d'un contrôle manuel, à distance et automatique.
- Avec la méthode manuelle, la mise en marche de l'équipement modulaire est effectuée manuellement par les travailleurs des stations, qui vérifient indépendamment le niveau des eaux usées dans le réservoir.
- Avec la télécommande, les données sur l'état du système et la hauteur du niveau de liquide sont envoyées au panneau de commande. Il est très pratique de contrôler la station radiocommandée: l'équipement ne nécessite pas la présence constante d'une personne et, en cas de dysfonctionnement, il le signale rapidement.
- Le système de contrôle automatique est le plus courant et consiste à contrôler la station à l'aide de relais et de capteurs, qui peuvent être situés à la fois sur le corps de la station et à proximité sur le bouclier.
La nature des eaux usées
Les eaux usées sont divisées en domestiques, industrielles, pluviales et sédimentaires.
- Pour les déchets industriels, les réservoirs et les pompes doivent être constitués de matériaux présentant une résistance accrue aux substances chimiques agressives et aux températures élevées.
- Les stations d'évacuation des eaux pluviales dans les égouts sont équipées de systèmes supplémentaires de nettoyage du sable et des débris mécaniques que les écoulements de pluie peuvent apporter.
- Le SPS pour eaux sédimentaires est utilisé dans les usines de traitement des eaux usées et est équipé d'appareils spécialisés qui traitent les dépôts sédimentaires.
Type d'équipement de pompage
Trois types de pompes sont installés sur la station de pompage des eaux usées.
Les pompes submersibles avec fonction de pression nécessitent une immersion complète dans l'eau. Les appareils ont un boîtier scellé, qui est fait de matériaux à haute résistance et non corrosifs. Les pompes fécales sont efficaces et assez faciles à utiliser, elles n'ont pas besoin d'être en plus fixées ou équipées d'une plate-forme pour elles. L'appareil est capable de fonctionner à basse température, et le refroidissement de son moteur se fait naturellement à partir du liquide environnant.



Pompe hydraulique dans un réseau d'égouts forcés
Pour choisir la bonne pompe, vous devez comprendre toutes ses modifications et prendre en compte de nombreux facteurs.
Le plus souvent, les égouts sont conçus de manière à ce que les drains se déplacent par gravité. Mais pas toujours une fosse septique locale ou une entrée d'un système d'égout centralisé est située sous la canalisation d'égout et tous les appareils de plomberie de la maison.
Les eaux usées ne peuvent pas monter d'elles-mêmes, il faut les « forcer » avec une pompe.
Un équipement de pompage est installé lorsque, en raison du relief ou d'autres caractéristiques de la zone locale, les conduites d'égout externes ne peuvent pas être posées à la pente souhaitée.
C'est également possible avec l'achèvement ou le réaménagement du bâtiment. La configuration des canalisations internes et le volume des effluents évoluent, ces derniers ne peuvent plus être évacués seuls du bâtiment d'habitation.
La version la plus populaire du dispositif d'assainissement avec pompage forcé des eaux usées prévoit un dispositif de stockage intermédiaire au sous-sol du chalet. Au fur et à mesure qu'elle se remplit à ras bord, la pompe s'allume, pompant le liquide dans la rue pour un nettoyage ou un enlèvement plus poussé.
Mais vous pouvez également installer une unité de pompage compacte, qui ne s'allume que lorsque les drains sont vidangés.Cependant, s'il tombe en panne, la maison restera en fait sans égouts.
La pompe à eau forcée a pour tâche de pomper les eaux usées domestiques et de stimuler leur mouvement vers le collecteur de rue, situé au-dessus de la station de stockage ou de traitement (+)
Par rapport à un système gravitaire, l'utilisation de pompes à pression offre de nombreux avantages :
- Facilité d'entretien. La fréquence de nettoyage des canalisations est réduite, car le mouvement intensif des eaux usées contribue à leur auto-nettoyage.
- Variabilité de l'emplacement de l'équipement. Les appareils sanitaires et électroménagers avec raccordement à l'égout peuvent déjà être placés n'importe où sans tenir compte de la nécessité de former une pente vers la sortie de l'égout, puis le lecteur ou la fosse septique.
Selon le règlement technique (SNiP numéro 2.04.03-85), le plus petit diamètre des tuyaux de la conduite principale externe du réseau d'égouts sous pression est considéré comme étant de 150 mm si un drain combiné est aménagé.
Ce sont des réseaux qui transportent des collecteurs d'eaux pluviales avec des réseaux domestiques noirs et gris. Les systèmes de gravité domestiques sont disposés à partir de tuyaux de taille similaire.
Si les eaux usées fécales sont évacuées séparément, le diamètre du pipeline est supposé être rempli à 0,7 de sa hauteur maximale. Cette distance est nécessaire pour la ventilation et la possibilité d'éliminer les gaz désagréables et explosifs.
La taille de la canalisation d'égout doit être prise en compte lors du choix d'une pompe afin de sélectionner avec précision l'unité pour la charge à venir.
Un système forcé est volatil et coûte plus cher qu'un système gravitaire.Si la famille est petite, le réservoir de stockage ne se remplit pas immédiatement, il suffira d'allumer la pompe d'égout de temps en temps.
Cependant, avec de grands volumes d'eaux usées, l'équipement de pompage doit fonctionner presque constamment. Dans ce cas, une panne de courant peut causer de sérieux problèmes.
La plupart des frais de pompe d'égout parvient à lutter grâce à l'utilisation de tuyaux moins chers et plus minces, ainsi qu'à réduire le coût de leur installation. Mais après l'installation, cet équipement nécessite un entretien constant, ce qui nécessite un peu d'argent.
Si une alimentation sans coupure est ajoutée au circuit en cas de panne de courant, alors le bénéfice est nul.

Pour l'installation d'un système d'égout forcé d'une petite maison privée ou d'un chalet, qui draine un mélange de drains noirs et gris, une pompe fécale convient. Il fera face au pompage de l'eau d'égout unitaire
S'il est possible de se débrouiller avec une option d'égout gravitaire, cela vaut la peine de le faire. Un système sous pression avec une pompe d'eaux usées pour les liquides visqueux et contaminés ne doit être sélectionné qu'en dernier recours
Et une attention particulière doit être portée aux compétences choix du matériel de pompage
informations générales
Attention! En hiver, les drains stagnants dans les tuyaux peuvent provoquer des embâcles. S'il y a de grosses inclusions dans les eaux usées, alors la faible vitesse de l'eau ne peut les faire bouger, ce qui entraîne leur accumulation dans les canalisations, suite à la formation de bouchons
Les sections avec des virages ou avec une modification du diamètre des tuyaux sont particulièrement sensibles à cela. Si le terrain a des nuances, il est difficile de poser le pipeline droit, vous devez contourner les bâtiments, etc.
S'il y a de grosses inclusions dans les eaux usées, alors la faible vitesse de l'eau ne peut les faire bouger, ce qui entraîne leur accumulation dans les canalisations, suite à la formation de bouchons. Les sections avec des virages ou avec une modification du diamètre des tuyaux sont particulièrement sensibles à cela. Si le terrain a des nuances, il est difficile de poser le pipeline droit, vous devez contourner les bâtiments, etc.
Principe de fonctionnement
Les stations de pompage des eaux usées peuvent être domestiques, industrielles. Les appareils destinés aux installations industrielles sont représentés par des équipements d'ingénierie complexes, il n'est pas recommandé de les installer dans une maison de campagne. Les volumes d'eaux usées dans une maison individuelle sont très faibles pour le niveau de performance de ce type de station.
Pour une maison de campagne, des appareils de complexité moyenne conviennent. Les appareils sont de petite taille. Pour l'installation, le type de déchets doit être pris en compte. Dans les égouts domestiques, il y a des drains des toilettes, qui comprennent de gros articles, des drains ménagers de la cuisine, de l'eau après le lavage dans une machine à écrire.
À principe de fonctionnement il existe de tels mécanismes: à partir de la plomberie, les drains pénètrent dans le réservoir de stockage. Lorsque les drains atteignent le niveau maximum, la pompe est activée pour détourner les drains dans les tuyaux du réseau d'égouts. La station a un mode de fonctionnement automatique, vous n'avez donc pas à surveiller en permanence le processus.
Le pipeline est équipé d'un inverseur soupape. Il protège le système de la pénétration de liquide dans la direction opposée. Les particules de débris s'accumulent dans la corbeille à papier. Il est périodiquement nécessaire d'en retirer les débris lors du nettoyage et de l'entretien de routine.
La station a des modes de fonctionnement
D'eux:
1. en mode normal, lorsque les effluents ne dépassent pas le volume standard, alors un équipement de pompage est en fonctionnement.
mode 2.peak, lorsque tous les résidents utilisent l'eau en même temps. Ensuite, toutes les pompes installées dans le réservoir de stockage sont activées.
3. en mode d'urgence, lorsque beaucoup de liquide est fourni ou si deux pompes tombent en panne, un signal est reçu indiquant que la station ne peut pas faire face aux charges.
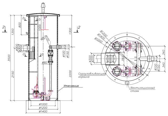
Unités de station de pompage
La station de pompage a certains nœuds. Ceux-ci incluent les éléments suivants :
1. pompe, ou unités de ce type.
2. réservoir de stockage.
L'équipement de pompage peut être placé derrière les toilettes ou près de la sortie de la pièce. Les modèles compacts ont un beau design de corps, ne gâchent pas l'intérieur de la salle de bain. Le réservoir d'accumulation peut également être de petite taille, ou inversement desservir une maison à plusieurs étages.
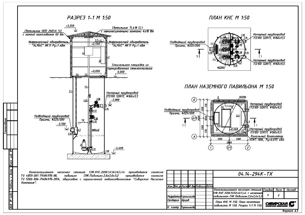
Instructions d'installation pour KNS
L'installation des stations de pompage des eaux usées domestiques est effectuée exclusivement par des travailleurs qualifiés, en raison des exigences élevées en matière de précision du travail et de respect de la séquence des actions. La violation des règles peut entraîner des dommages au réservoir ou aux tuyaux qui lui sont adaptés. Ensuite, nous examinerons les instructions étape par étape pour l'installation de KNS pour les personnes qui souhaitent fais le toi-même.
La première étape consiste à sélectionner l'emplacement du SPS. Les SNiP exigent qu'un réservoir soit creusé à au moins 20 mètres des murs d'un immeuble résidentiel. Si les niveaux géodésiques le permettent, il est alors conseillé de choisir un site plus haut afin que beaucoup d'eau souterraine ne s'accumule pas sous la station.
KNS ne doit pas être installé à l'avant de la maison, à proximité des aires de jeux pour enfants et à proximité des aires de pique-nique
La deuxième chose est de creuser un trou, en tenant compte du diamètre du récipient et de l'endroit idéal pour travaux d'installation. Si le sol est extrait par une excavatrice, les travaux doivent être arrêtés à 20-30 cm au-dessus du niveau de conception.De plus, il est nécessaire d'extraire la terre manuellement avec une pelle pour maintenir l'intégrité du sol.
Lorsque vous creusez un trou pour un réservoir d'égout, vous n'avez pas besoin de le rendre énorme. Il suffira d'avoir un diamètre de 1,5 à 2 mètres supérieur à la taille du conteneur lui-même
La troisième étape consiste à sélectionner le type de fondation pour l'installation du SPS et son installation. Pour ce faire, après avoir creusé un trou, une évaluation de la teneur en eau du sol est effectuée. Si le sol est sec, un coffrage peut être réalisé et coulé avec une couche de béton de 30 centimètres. Et si les eaux souterraines s'infiltrent constamment dans la fosse, seule une dalle en béton armé finie d'une épaisseur d'au moins 30 cm convient à la fondation.
La base en béton doit être strictement horizontale, donc lors de la pose de la dalle de béton finie, vous devez en prendre soin à l'avance.
Les réservoirs SPS ont une jupe ou des pattes pour se fixer à la fondation. Les boulons d'ancrage sont utilisés comme attaches, bien que lors du coulage du béton sur le sol, des tiges métalliques puissent également être noyées dans le mélange, sur lesquelles le support de conteneur peut ensuite être monté.
N'économisez pas sur la taille des boulons d'ancrage. Leur longueur optimale est de 200 mm et leur diamètre de 20 mm. Et les tiges métalliques avant la pose dans le béton liquide doivent être pliées avec un crochet ou la lettre G
La quatrième étape consiste à installer le réservoir SPS sur les fondations, à le fixer et à le connecter au tuyau de vidange des égouts internes de la maison. Avec une station de type vertical et une grande quantité d'eau souterraine, il est nécessaire de charger le réservoir avec du béton. Pour ce faire, du béton est coulé autour de la cuve à 20 cm au-dessus du niveau du premier raidisseur de la station.
Il convient de garder à l'esprit qu'après avoir coulé du béton, il sera impossible de changer le réservoir, il est donc nécessaire de calculer son volume, en tenant compte de l'agrandissement de la maison et de l'augmentation du nombre de ses habitants
La cinquième étape consiste à remplir la station de terre fine dont la granulométrie maximale est de 32 mm. Chaque couche de terre ne doit pas dépasser 50 cm.Après avoir rempli la ceinture suivante, elle est remplie d'eau pour se contracter et se compacter.
Ceci termine l'installation externe du KNS. Après avoir été fixés au sol, des pompes, des capteurs, des clapets anti-retour et d'autres équipements auxiliaires sont installés à l'intérieur de la station.
Pour des raisons de sécurité, il est recommandé de fermer les trappes des réservoirs d'égout avec des serrures, car pendant le jeu, les enfants peuvent s'y cacher et perdre connaissance
Il ne serait pas superflu de réaliser un système d'alarme de niveau critique dans la maison eaux usées domestiques dans le réservoir, qui avertira des dysfonctionnements dans le fonctionnement de la station.
Règles pour l'installation d'installations d'égout
Les exigences peuvent varier pour chaque modèle spécifique. Par conséquent, avant de commencer les travaux, nous vous recommandons vivement de lire attentivement la documentation.
Une courte liste de recommandations ressemble à ceci :
- Si une section verticale de la conduite sous pression est requise, elle doit être située directement à côté de la pompe. Sinon, il y a un risque de blocage.
- La conduite de pression doit être rigide avec des raccords monoblocs. Par exemple, un tuyau en polypropylène PN10 avec un diamètre extérieur de 32 ou 40 mm.
- La section de pression horizontale est réalisée avec une pente vers la colonne montante.
- Tous les branchements inclus dans l'appareil doivent être posés avec une pente de 3° vers l'appareil.
- Évitez d'utiliser des coudes à 90°. Les coudes doivent être lisses et exécutés avec des coudes à 45°.
- Si vous avez plusieurs pompes, chacune d'elles doit avoir sa propre entrée dans la colonne montante.
- La pompe doit être accessible pour l'entretien.
Ce sont les exigences les plus universelles pour l'installation de tels équipements. Cependant, chaque modèle individuel peut avoir ses propres nuances d'installation. Par conséquent, vous devez lire attentivement le passeport et penser à tout.
Nous attendons vos commandes !
Pompe fécale: conception, types, objectif
La pompe fécale est fabriquée dans un boîtier résistant à la corrosion, sa principale caractéristique est l'installation d'un mécanisme de broyage sur l'arbre d'entraînement. Il peut s'agir d'un couteau ou d'un tranchant. Des pompes à eaux usées avec broyeur fonctionnant à partir de 220 V sont installées dans des appartements, des maisons privées et des institutions où il existe un risque de colmatage des canalisations. Leurs canaux d'écoulement ont un grand diamètre et sont capables de recevoir des effluents avec des fractions jusqu'à 10 cm Le démarrage et l'arrêt de l'équipement sont contrôlés par automatisation.
Le principe de fonctionnement de la pompe fécale avec un mécanisme de broyage
L'équipement est installé près des toilettes, après vidange, l'eau pénètre dans la chambre de stockage. Un capteur spécial détecte l'augmentation de la pression atmosphérique et envoie un signal au relais qui démarre le moteur électrique. En même temps, les couteaux sont allumés, ce qui broie les ordures. Le liquide sous pression est envoyé au tuyau de sortie et transporté à travers celui-ci jusqu'à la colonne montante. Après le pompage, le capteur détecte une baisse de pression et coupe le relais moteur.
Pompe fécale avec broyeur
Types de pompes
Les stations équipées d'une telle pompe sont compactes, polyvalentes, silencieuses et faciles à entretenir. Les unités sont produites en tenant compte des conditions dans lesquelles elles devront pomper les eaux usées. Les pompes à eaux usées pour la maison sont divisées en quatre groupes :
- Un appareil avec un broyeur pour pomper les eaux usées domestiques à basse température. L'unité est conçue pour les drains avec de grandes fractions, par exemple, des toilettes. Il est installé dans les toilettes au sous-sol, lorsque la colonne montante est située loin et que le niveau global du système d'égout est supérieur à celui des appareils placés ici. Lorsque le réservoir de stockage est rempli de drains, le pompage et le fonctionnement des couteaux sont activés. Le liquide est envoyé de force au système général.
- Une unité sans couteaux, conçue pour les drains chauds d'un bain ou d'un sauna, ainsi que d'une douche et d'une machine à laver. Température de l'eau estimée jusqu'à 90 degrés.
- Pompe sans pièces coupantes pour le pompage des eaux usées d'une piscine ou d'un sous-sol inondé. Le modèle a le prix le plus abordable.
- Equipement avec broyeur pour le transport des drains chauds. Une unité universelle qui peut être utilisée dans une maison privée ou un bain s'il y a des toilettes.
Méthodes d'installation
- Pompe d'égout submersible - installée dans une fosse ou un réservoir d'eaux usées, complètement immergée dans un liquide. L'option la plus populaire pour un usage domestique.
- Semi-submersible - la partie pompage de l'unité est abaissée dans l'eau et le moteur reste à la surface. Ce modèle peut être utilisé pour pomper de l'eau à des températures élevées.
- Extérieur - l'appareil est installé près du puits d'égout, dans lequel les tuyaux d'admission sont abaissés. Un tel équipement peut être déplacé au bon endroit.
Pose de pompe submersible
Installation
L'installation de la station de pompage des eaux usées commence par le creusement d'une fosse. Avec les bons outils et au moins un assistant, creusez un trou pour le réservoir peut le faire vous-même. Le calcul de la profondeur est effectué individuellement et dépend du type d'installation et de la taille du réservoir. La position optimale du réservoir est lorsque le couvercle du réservoir dépasse du sol de 80 à 100 cm.
Un coussin de sable est formé au fond de la fosse et un réservoir est installé au-dessus. Une fois le réservoir installé et nivelé, ils commencent à connecter les tuyaux et à remblayer la fosse. Il est nécessaire de compacter très soigneusement la terre autour du réservoir, en tassant tour à tour chaque couche. La densité de remblai doit être de 90 % de la densité naturelle du sol environnant.


Une fois le réservoir bien en place, l'installation des pompes commence et les flotteurs sont ajustés. A titre d'exemple, les flotteurs du premier niveau sont généralement situés à une distance de 15 à 30 cm du fond du réservoir. Cependant, il s'agit d'une hauteur recommandée et peut être sujette à changement en fonction du nombre prévu de drains et de la taille du réservoir. Le prochain flotteur est installé un mètre - un an et demi plus haut que le précédent, après quoi ils commencent à installer le câble électrique, à effectuer la mise à la terre, à équiper la ventilation et à connecter l'alimentation.
Une fois tous les travaux terminés, un essai de fonctionnement du système est effectué avec de l'eau du robinet propre. En cas de test réussi, vous pouvez procéder à la construction d'un pavillon de protection et, en l'absence de nécessité de construction, vous pouvez immédiatement mettre la station en service. Le pavillon peut être construit à partir de métal ou brique.

Comment fonctionne la gare
Le fonctionnement de la station de pompage des eaux usées commence à partir du moment où le compartiment inférieur est rempli d'effluents au-dessus d'un niveau prédéterminé.Dans ce cas, la station démarre. Dans le même temps, les pompes sont allumées pour pomper les déchets dans un réservoir de distribution, puis elles pénètrent dans le pipeline et dans les égouts - c'est le principe de fonctionnement de tout SPS.
Regardez la vidéo, comment ça marche :
Si deux ou trois personnes vivent dans la maison et que la quantité de déchets est faible, une pompe suffit. Lorsque le volume augmente, une deuxième unité peut être connectée. Dans ce cas, la station passe en mode de charge maximale, ce qui doit être pris en compte lors de la conception du système de nettoyage. La possibilité d'utiliser une ou deux pompes à la fois permet d'économiser de l'énergie, prolongeant la durée de vie de la station.
Si le SPS n'est pas en mesure de faire face au volume d'eau, un signal est envoyé à la console de l'opérateur, nécessitant une décision spécifique sur la maintenance du SPS.
Comment calculer le volume de réception
La conception d'une station de pompage des eaux usées avec des pompes submersibles implique un certain nombre de calculs et la sélection des équipements. Un calcul du volume d'aspiration doit être effectué pour garantir le bon fonctionnement de la pompe. Pour ce faire, utilisez les formules du fabricant. Bien sûr, il est préférable que ce travail soit effectué par des professionnels. Après tout, un projet typique station de pompage des eaux usées nécessite des calculs complexes tels que :
- Consommation d'eau
- Établir un calendrier des recettes au cours de la journée
- Connaissant la quantité de liquide autorisée utilisée, le volume de déchets est obtenu
- Trouver les affluents minimum et moyen
- Déterminer la pression
Et seulement après avoir terminé le calcul du KNS, vous pouvez procéder au choix du modèle de pompe, en tenant compte du volume d'entrée le plus élevé et de la valeur de la pression.
Ensuite, un programme de fonctionnement de la pompe et de la canalisation est construit pour déterminer le point de pression maximal et une analyse du fonctionnement de l'équipement dans les situations d'urgence est effectuée.
La dernière étape de la préparation d'une conception typique de la station de pompage des eaux usées consiste à trouver le volume du réservoir. Pour ce faire, construisez un graphique qui affiche l'entrée et la sortie d'eau par une pompe, de plus, en termes de temps écoulé entre l'entrée la plus grande et la plus petite.
Installation, démarrage et mise en service - comment ça se passe
L'installation d'une station de pompage des eaux usées ne peut pas être qualifiée de simple, car les stations sont des équipements assez complexes, il est donc préférable de confier ces travaux à des employés d'entreprises spécialisées.
L'installation de la station de pompage des eaux usées doit être effectuée dans une fosse dont les dimensions correspondent à celles indiquées dans les instructions ci-jointes. Dans le même temps, son fond est renforcé avec des dalles en béton armé ou coulé avec une solution de béton. A cette base, l'installation du SPS est réalisée avec des boulons d'ancrage.
La prochaine étape est la connexion des pipelines: entrée et sortie. Et ils terminent les travaux d'installation en connectant le câble d'alimentation, conformément à la documentation de conception du SPS.
L'installation des pompes est effectuée conformément aux instructions ci-jointes et, une fois terminée, la mise en service est effectuée. Ils consistent en l'installation et la configuration de capteurs, qui sont également effectuées lors de la maintenance de la station de pompage des eaux usées. De plus, le plus bas doit être situé à une distance de 500 mm du fond, et les troisième et quatrième de manière à ce qu'ils soient inclus dans les travaux lorsque les drains atteignent la coupe du plateau dans la canalisation d'alimentation, ce qui devrait être pris en compte lors de la conception de la station de pompage des eaux usées.
Regardez la vidéo, l'installation et l'installation :
De plus, pendant le processus de réglage, le temps de fonctionnement de la deuxième pompe est régulé ; il ne peut pas dépasser 10 minutes.Le travail de réglage est effectué par deux personnes - un ajusteur contrôle les lectures des capteurs sur la console et le second est engagé dans leur réglage.
Une fois le réglage terminé, les performances des pompes sont vérifiées de manière empirique. Pour cela, ils produisent pomper l'eau de Char.
Service KNS
Beaucoup s'intéressent à la question de savoir s'il est possible d'effectuer vous-même des travaux préventifs dans les stations d'égout? Les experts ne recommandent pas d'effectuer eux-mêmes la maintenance du KNS. Le fonctionnement de la station étant entièrement automatisé, sa maintenance consiste à effectuer des inspections préventives programmées et une maintenance de routine, qui doivent être effectuées par des professionnels du processus de maintenance afin d'éviter les pannes. Ils effectuent également la réparation actuelle de la station de pompage des eaux usées.
Erreurs d'installation typiques
Des dommages aux parois du réservoir, aux buses ou aux tuyaux appropriés peuvent survenir en raison d'une installation incorrecte du réservoir, d'un basculement ou d'un remblayage incorrect. De tels problèmes menacent l'excavation manuelle du conteneur et des coûts financiers considérables.
Par conséquent, les erreurs typiques doivent être analysées à l'avance afin de ne pas les répéter lors de l'installation de votre propre SPS.
- Remblayage incorrect du sol. Erreurs possibles : remplissage avec de la terre gelée ou de gros cailloux, absence de tassement couche par couche. La conséquence peut être un affaissement du sol avec endommagement ou déplacement de la canalisation interne.
- Différents types de remblai de différents côtés. Si, d'une part, une machine à sable a été versée dans la fosse et, d'autre part, la terre, le conteneur peut se déformer avec le temps et endommager les tuyaux extérieurs ou le réservoir lui-même.
- Évaluation incorrecte de la quantité d'eau souterraine, en raison de laquelle il y a un fort affaissement de l'ensemble de la station de pompage des eaux usées avec rupture des tuyaux et endommagement du réservoir.
- Utiliser des cales pour niveler les dalles de fondation. La conséquence peut être un déplacement progressif du réservoir sur le côté avec une rupture des canalisations.
Seules les personnes ayant une formation géodésique et une expérience dans l'installation de telles structures peuvent évaluer l'exactitude de l'installation du SPS. Par conséquent, vous ne devez pas confier l'installation de cet équipement coûteux à des organisations non spécialisées.
Service KNS
Dans le cadre de la station de pompage des eaux usées à grande capacité, il existe un système de filtration, qui est représenté par un réservoir de prétraitement. Il accumule des fractions lourdes, ainsi que des objets de grande taille. Ils sont là avant d'entrer dans la chambre de transfert. Dans de telles conceptions, une trappe est généralement prévue à travers laquelle des personnes, à l'aide d'une pelle, assurent un nettoyage efficace du récepteur. Pour la raison qu'en la station de pompage peut ne pas être seulement les ordures ménagères, mais aussi les eaux usées, pour le bon fonctionnement de l'équipement, il est nécessaire de nettoyer le récepteur une fois par mois.
Types et types de KNS

La partie principale de tout système d'égout est l'équipement de pompage, qui peut être des types suivants :
- Auto-amorçante ;
- submersible;
- Console.
Et la station de pompage elle-même, compte tenu de son emplacement, se produit :
- Partiellement enterré;
- Enterré;
- Terrain.
De plus, toutes les stations d'égout sont de deux types : principales et de district. Quant aux principales stations de pompage des eaux usées, elles sont utilisées pour pomper les déchets directement d'une colonie ou d'une entreprise. Mais les régionaux sont destinés pour l'élimination des déchets à un égout ou à une station d'épuration.
En outre, les KNS sont divisés en commandes à distance, automatiques et manuelles.
Travail à distance de manière à pouvoir contrôler et réguler leur travail depuis une salle de contrôle équipée. Automatique entièrement contrôlé par des capteurs et des dispositifs. Et comme pour les manuels, tout le travail incombe aux préposés.
Les stations de pompage diffèrent également par le type d'effluent pompé en quatre groupes :
- Le premier groupe est destiné aux eaux usées domestiques. Il est utilisé pour détourner les eaux usées des bâtiments publics et des ménages résidentiels.
- Le deuxième groupe concerne les eaux usées industrielles.
- Le troisième groupe concerne les réseaux de tempête.
- Le quatrième groupe concerne les précipitations.
Selon la puissance du KNS, il existe des mini, des moyens et des grands. Les mini-stations sont principalement appliquées directement dans la salle de bain chambre ou toilette. Il s'agit d'un petit récipient scellé qui est attaché aux toilettes. le plus populaire sont des stations de pompage moyennesIls sont utilisés à la fois à des fins domestiques et industrielles. Les ménages diffèrent des industriels en ce qu'une seule pompe peut y être installée. Mais les stations industrielles doivent être équipées de deux pompes. Les grandes stations de pompage des eaux usées sont utilisées exclusivement dans les systèmes urbains. Ils sont équipés des pompes les plus puissantes en termes de paramètres.








































