- Conseils de sélection
- Les principaux facteurs influençant le choix du système de ventilation
- Volumes d'air
- Humidité dans la chambre
- Température
- Effet onduleur sur le niveau sonore et la consommation électrique
- Appareil et principe de fonctionnement
- Climatiseur qui prend l'air de l'extérieur
- Installation de canalisations de fréon
- Variété de systèmes de climatisation
- Dispositif de climatisation
- Types de climatiseurs
- Dispositif de climatisation
- Mise en place et fonctionnement
- Modèles modernes
- Comparaison des climatiseurs conventionnels et de soufflage
- Quelle est la caractéristique des systèmes multi-split
- Sélection d'un climatiseur gainable avec un apport d'air frais
- Par pression
- Par débit (volume d'alimentation en air refroidi)
- Conseils pour choisir les climatiseurs
Conseils de sélection
Mais il est extrêmement difficile de choisir le bon appareil de ventilation par gaine pour un appartement ou pour une maison, simplement en se familiarisant avec les informations fournies par les fabricants.
Au contraire, vous pouvez faire un choix, mais il est peu probable qu'il soit le bon.Il est impératif de prêter attention aux avis des autres consommateurs. C'est leur avis qui vous permet d'identifier les forces et les faiblesses de chaque option.
Pour des raisons évidentes, il est préférable de faire appel à des ingénieurs et des concepteurs indépendants, plutôt qu'à ceux proposés par le fabricant, le revendeur ou l'organisation commerciale.
Les professionnels prendront en compte :
- caractéristiques du vitrage ;
- la superficie de l'espace vitré;
- superficie totale desservie ;
- destination des locaux ;
- paramètres sanitaires nécessaires;
- la présence d'un système de ventilation et ses paramètres;
- méthode de chauffage et propriétés techniques de l'équipement;
- le niveau de perte de chaleur.
Le calcul correct de tous ces paramètres n'est possible qu'après avoir étudié les caractéristiques de l'objet lui-même et un certain nombre de mesures. Parfois, vous devez utiliser un logiciel spécial pour concevoir des conduits d'air et sélectionner un bon équipement de conduit. Ce n'est que lorsque les propriétés nécessaires des canaux, les exigences en matière d'admission d'air et les emplacements d'installation optimaux ont été déterminés qu'il est possible de choisir le climatiseur lui-même. Cela n'a aucun sens de faire ce choix sans projet - il est plus facile de jeter de l'argent par les fenêtres au sens littéral
Vous devez également faire attention à :
- Fonctionnalité;
- consommation de courant;
- Energie thermique;
- possibilité de séchage à l'air;
- contenu de la livraison ;
- avoir une minuterie.
Les principaux facteurs influençant le choix du système de ventilation
L'équipement des systèmes de climatisation et de ventilation doit être sélectionné en fonction des conditions de la pièce ou du bâtiment. Cette section énumère les principaux paramètres à prendre en compte lors de l'élaboration d'un plan de système de ventilation.
Volumes d'air
Les appareils de ventilation pendant le fonctionnement doivent traverser complètement tout l'air de la pièce. En fonction du volume de masses qui traversent l'appareil par heure de fonctionnement, ses performances et sa puissance sont calculées.
Ainsi, afin de sélectionner les bons composants, il est nécessaire de connaître les performances du système de ventilation. Pour ce faire, calculez le volume de la pièce : la surface doit être multipliée par sa hauteur.Nous multiplions la valeur obtenue par un facteur de 10 - dans ce cas, nous obtenons une valeur correspondant à la productivité moyenne (m³/h).
Humidité dans la chambre
Un autre facteur environnemental régulé par le système de ventilation est l'humidité de l'air. Pour une personne, un indicateur confortable de la teneur en humidité de l'air est de 40 à 60%. Si cette marque est relevée ou abaissée, il convient de choisir des appareils de ventilation capables de normaliser le niveau d'eau en oxygène. Il convient également de noter qu'il est préférable de mesurer le taux d'humidité en hiver - à cette époque, les radiateurs de chauffage assèchent considérablement l'air de l'appartement.
Température
Les systèmes de ventilation sont capables de modifier la température de l'air et les climatiseurs sont entièrement destinés à effectuer cette tâche. Par conséquent, il convient de prendre en compte cet indicateur lors du choix d'un équipement de ventilation. Comme déjà mentionné, la différence de température dans le bâtiment et à l'extérieur est à la base du fonctionnement de la ventilation naturelle. Et les systèmes forcés peuvent aider à réguler avec succès cet indicateur, qui est particulièrement important pendant la saison chaude.
Effet onduleur sur le niveau sonore et la consommation électrique
Dans les systèmes split à onduleur, beaucoup de choses sont arrangées différemment des climatiseurs standard. Le compresseur est alimenté par un moteur à courant continu. Le module de contrôle dans les systèmes divisés convertit le courant continu en courant alternatif d'une fréquence donnée. Ce processus est appelé inversion.
Une telle transformation permet de modifier la vitesse de rotation du moteur du compresseur dans une large plage et, par conséquent, de créer de la fraîcheur et de la chaleur. La puissance du moteur est régulée par un simple changement de tension : plus de tension - la rotation de l'arbre du moteur augmente.
En conséquence, le mouvement du réfrigérant depuis le compresseur est accéléré. Et vice versa, la tension diminue - le régime moteur diminue et la vitesse du fréon dans les tubes diminue. Dans un appareil standard, un compresseur avec un moteur à courant alternatif est utilisé et sa puissance n'est régulée qu'en allumant ou en éteignant le moteur.

Il s'avère que le dispositif onduleur est conçu pour modifier la fréquence standard du réseau électrique. Une carte de commande intégrée est montée dans l'appareil, grâce à laquelle le fonctionnement de l'appareil est régulé. Il est situé dans le module extérieur et régule le nombre d'allumages de l'appareil.
Par conséquent, pour les climatiseurs avec onduleurs, le compresseur déplace toujours le réfrigérant lorsque le système split est activé en mode refroidissement (en même temps, sa vitesse est soit supérieure soit inférieure). Cela présente trois avantages importants :
- Il n'y a pas de couples de démarrage pour le moteur.
- Possibilité de régulation en douceur du mouvement de l'air frais.
- Le climatiseur inverseur de l'appartement fonctionne dans le mode créé.
En raison du premier avantage, un système split consomme environ 20 à 25 % d'électricité en moins qu'un appareil de climatisation classique. Le deuxième point indique que le compresseur du climatiseur à onduleur fonctionne dans la plage de 0,5 à 1˚С degrés (et pour les systèmes split standard, la plage est de 1 à 5˚С).
Le troisième avantage indique un fonctionnement plus silencieux du climatiseur. Grâce à ce mode, le climatiseur fonctionne en silence et est souvent utilisé dans les chambres la nuit. En même temps, il passe en mode économique avec une rotation lente de la roue du ventilateur. Les climatiseurs muraux Inverter d'Hitachi sont particulièrement adaptés à ce cadre.
Appareil et principe de fonctionnement
La première étape consiste à comprendre le fonctionnement d'un climatiseur gainable. L'essence de son action est que les masses d'air sont transmises à l'aide d'arbres et de conduits d'air spéciaux. La partie matérielle est montée en tant qu'élément intégral du complexe de conduits d'air, et pas seulement attachée à ceux-ci. D'où la conclusion: la planification et la mise en œuvre des travaux d'installation doivent être effectuées au stade de la construction. Dans les cas extrêmes, il est permis d'effectuer ces travaux simultanément avec une révision majeure.

La partie extérieure de l'unité de conditionnement d'air prend l'air de la rue, puis il est pompé vers l'unité intérieure à l'aide du conduit d'air. En cours de route, un refroidissement ou un chauffage des masses d'air peut être effectué. Le schéma standard tient compte du fait que la distribution de l'air le long des autoroutes ne peut pas être créée par gravité. L'efficacité suffisante de ce système est assurée par l'utilisation de ventilateurs de grande puissance. Le refroidissement de l'air est réalisé par la partie d'échange de chaleur de l'évaporateur.

Mais la chaleur extraite de l'air doit être évacuée quelque part. Ce problème est résolu avec succès à l'aide d'un échangeur de chaleur connecté au condenseur de l'unité externe. Les climatiseurs gainables sont en demande dans les centres commerciaux et les magasins. Avec une installation correcte, un niveau minimum de bruit parasite est assuré. Une partie de la technologie des canaux est conçue pour utiliser de l'eau pour évacuer la chaleur. Ce sont des solutions plus puissantes et leur coût est assez élevé, ce qui limite leur application pratique.

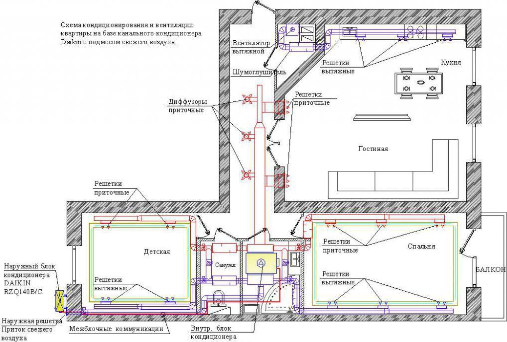
Climatiseur qui prend l'air de l'extérieur
Le système de répartition des canaux utilise les schémas d'approvisionnement de la manière la plus compétente.Ce climatiseur prélève-t-il de l'air extérieur ? Une unité déportée est située à l'extérieur du circuit, les évaporateurs y sont reliés par des canalisations, montées en faux plafond ou faux mur. Une unité de préparation d'air extérieur est utilisée, qui est fournie au système à plusieurs endroits. Condition - une place derrière le mur ou sous le sol, suffisante pour accueillir l'équipement. Le système est programmable, la régulation est effectuée par une centrale électronique. L'installation de préparation de l'alimentation en air de la rue et le climatiseur gainable ont des panneaux de commande différents. L'apport d'air frais peut être de 30 %. À la suite du renouvellement, l'équilibre de la teneur en dioxyde de carbone et en oxygène change.
Installation de canalisations de fréon
Cette opération comprend les manipulations suivantes :
- Une paire de tuyaux en cuivre est coupée avec un coupe-tube. Leur longueur doit être supérieure de 1000 millimètres à la distance entre les raccords, ce qui garantira des virages en douceur.
- Sur les parties extérieures, les pièces sont pliées au moyen d'une cintreuse. Sans cet appareil, le métal peut se déformer et se fissurer.
- Les tubes sont équipés de buses calorifuges en polyuréthane.
- Des brides filetées sont fixées aux bords des éléments.
- Le laminage des extrémités des pièces est effectué. Serrer les écrous de préférence avec une clé dynamométrique. Une force excessive peut endommager l'appareil.
- Les extrémités des tubes sont vissées au moyen de brides filetées, qui doivent être bien serrées.
Variété de systèmes de climatisation
La climatisation multizone est un moyen d'organiser la circulation des masses d'air dans plusieurs pièces.A l'élément externe, qui est situé sur le toit, au sous-sol ou dans le compartiment technique, plusieurs unités intérieures sont connectées à l'aide d'un seul système. Cette conception permet de placer les unités intérieures et extérieures à une grande distance les unes des autres, ce qui est pratique pour respecter les exigences de conception, puisque l'unité extérieure peut être placée sur le toit ou à d'autres endroits. Il peut y avoir de un à trois blocs externes, et bien d'autres internes.

Le système assure la circulation du fréon à certaines doses entre les unités intérieure et extérieure, ce qui vous permet d'ajuster plus précisément la température.
Cette organisation réduit les coûts de refroidissement et de chauffage. La puissance est réglée en fonction des préférences du client. Par conséquent, les pièces avec une telle climatisation reçoivent un microclimat individuel, spécialement sélectionné.
Le conditionnement de masse d'air est l'installation et le maintien constant d'un certain niveau d'humidité, de température, de nettoyage et de vitesse dans des espaces clos. L'objectif est de réguler l'environnement et le microclimat optimaux favorables au bien-être humain ou nécessaires au processus de production. Les solutions de conception modernes sont diverses et leurs différences sont notées de plusieurs façons.
Dispositif de climatisation
Un climatiseur ayant une partie externe et une partie interne est le plus complexe du dispositif.
Unité extérieure:
- Compresseur de fréon.
- Une vanne à quatre voies qui change la direction du mouvement du fréon.
- Frais de contrôle.
- Ventilateur.
- Condenseur, fréon de refroidissement ou de condensation.
- Filtre du système fréon qui protège contre les débris.
- Liens syndicaux.
- Couvercle de protection.
Unité intérieure:
- Panneau avant.
- Filtre grossier protégeant contre les gros débris.
- Évaporateur.
- Volets horizontaux et verticaux qui contrôlent la direction du flux d'air.
- Panneau d'affichage.
- Filtre fin.
- Ventilateur.
- Bac à condensat.
- Frais de contrôle.
- Liens syndicaux.
Types de climatiseurs
Dans des conditions domestiques, des appareils sont utilisés, conditionnellement divisés en trois grands groupes:
Un climatiseur mobile (portable) est une bonne alternative à l'équipement de climatisation installé en permanence. L'appareil peut être déplacé, déplacé d'une pièce à l'autre ou transporté à un autre endroit sans installation. Poids à partir de 20 kg. En plus de la ventilation et du refroidissement, il est capable de réduire le niveau d'humidité dans la pièce. Un climatiseur mobile recycle l'air de la pièce : l'un des ventilateurs intégrés aspire la masse d'air à travers un système de trous, puis transmet le flux à l'évaporateur du circuit frigorifique. Pendant le fonctionnement, le ventilateur élimine les masses d'air chauffées à travers le conduit d'air vers la rue et à travers un système de trous oblongs éjecte un flux refroidi dans la pièce. Le corps de l'appareil portable est équipé d'un bac de récupération des condensats, qui est évacué manuellement.

Monobloc monté dans une ouverture de fenêtre
Le climatiseur de fenêtre est un dispositif de refroidissement organisé par un seul corps. Il est installé dans une ouverture de fenêtre, une fenêtre ou un mur dont la largeur ne dépasse pas 30 cm.L'appareil est attrayant pour sa simplicité d'installation, son fonctionnement et son coût inférieur de 30 à 40% à celui des autres représentants du groupe de produits. Le monobloc de fenêtre prélève une partie de l'air ambiant (jusqu'à 10 %) et le laisse s'échapper dans la rue, assurant une ventilation par aspiration forcée.Lorsque l'oxygène est prélevé dans la rue, le système commence à faire plus de bruit et refroidit davantage le flux d'air. En fait, le climatiseur commence à fonctionner comme un ventilateur d'extraction.
Le système split maintient les paramètres de température et de vitesse de débit d'air réglés dans la pièce. Se compose de blocs externes et internes. Le système split prend l'air dans la pièce climatisée pour le refroidir et le transfère dans la rue.
Dispositif de climatisation
Les modèles de base et de fonctionnement des climatiseurs sont disposés selon le principe du travail coordonné des unités principales suivantes :
- Le compresseur comprime le réfrigérant (fréon) et le maintient en mouvement le long du circuit de réfrigération. Un réfrigérant est une substance de travail des machines de réfrigération qui évacue la chaleur d'un objet refroidi pendant l'ébullition.
- L'échangeur de chaleur à air de l'unité extérieure assure le processus de conversion du réfrigérant en liquide (condensation), ainsi que son refroidissement.
- L'échangeur de chaleur à air du bloc interne favorise le processus d'évaporation du fréon.
- Le tube capillaire est responsable de l'augmentation/diminution opportune de la pression du réfrigérant dans les échangeurs de chaleur à air des unités extérieure et intérieure.
- Le ventilateur fournit un flux d'air continu au condenseur.
Mise en place et fonctionnement
Lorsque l'équipement est sélectionné, vous devez savoir comment l'installer correctement. Bien sûr, le travail lui-même est effectué par des professionnels, mais il est absolument nécessaire de contrôler leurs actions. Lors du choix d'un endroit pour installer un climatiseur, vous devez vous concentrer sur des exigences telles que:
- le niveau maximal d'isolation acoustique des locaux résidentiels et industriels ;
- maintien d'une température d'au moins +10 degrés (ou isolation thermique renforcée de l'unité intérieure) ;
- environ la même longueur de tous les conduits de ventilation (sinon, des chutes de température plus ou moins fortes se produiront le long du conduit).

Ensuite, vous devez déterminer quel conduit d'air est le meilleur. Si les considérations de perte d'air minimale sont en premier lieu, les tuyaux ronds doivent être préférés. Mais ils absorbent l'espace excédentaire. Dans des conditions domestiques, les conduits rectangulaires sont donc le meilleur choix. Le plus souvent, ils sont posés dans l'intervalle entre le tirage et le plafond avant, et cela doit être fait avant d'installer le climatiseur lui-même.

Lorsqu'il est prévu de ne refroidir l'air qu'en été, les canalisations en matériaux polymères deviennent le meilleur choix. Si le consommateur doit également réchauffer les pièces en hiver, la préférence doit être donnée à l'acier. Dans ce cas, vous devez également vous assurer que la taille du tuyau correspond à la taille des tuyaux installés à l'intérieur du climatiseur. Vous devez penser à l'endroit où placer les grilles murales. Ils doivent contenir efficacement toute saleté et, en même temps, il ne doit y avoir aucune obstruction au mouvement de l'air provenant d'objets dans la pièce.

Tous les conduits d'air doivent être fabriqués uniquement à partir de matériaux complètement ignifuges. La tuyauterie ondulée flexible n'est pas la meilleure solution. Il s'affaissera dans les zones libres et partout où des attaches apparaîtront, une forte compression apparaîtra. En conséquence, il est impossible de fournir une résistance aérodynamique normale. Les diffuseurs et les grilles doivent être conçus pour un mouvement d'air en mode limite à une vitesse ne dépassant pas 2 m / s.

Si le flux commence à se déplacer plus rapidement, beaucoup de bruit est inévitable.Lorsque, en raison de la section ou de la géométrie du tuyau, il n'est pas possible d'utiliser un diffuseur approprié, la situation doit être corrigée avec un adaptateur. Là où les lignes d'alimentation en air se ramifient, les zones à résistance interne réduite sont équipées de diaphragmes. Cela limitera le mouvement des flux d'air au besoin et fournira l'équilibre requis. Sinon, trop d'air sera dirigé vers des endroits à faible résistance. Les conduits d'air très longs nécessitent l'installation de trappes de visite. Ce n'est qu'avec leur aide qu'un nettoyage périodique de la poussière et de la saleté peut être effectué. Lorsque des canaux sont posés dans des plafonds ou des cloisons, des éléments facilement rétractables sont immédiatement montés, offrant un accès rapide et facile.

Servir signifie :
- nettoyage des palettes où s'écoule le condensat ;
- nettoyage (si nécessaire) du tube traversé par ce condensat ;
- désinfection de tous les composants en contact avec le liquide ;
- mesure de la pression dans la ligne de réfrigération ;
- nettoyage du filtre ;
- dépoussiérage des conduits d'air;
- nettoyage des façades décoratives;
- nettoyage des échangeurs de chaleur;
- vérifier les performances des moteurs et des tableaux de commande ;
- rechercher d'éventuelles fuites de réfrigérant ;
- nettoyer les pales du ventilateur
- élimination de la saleté des coques ;
- vérifier la santé des contacts électriques et du câblage.

Pour plus d'informations sur l'entretien approprié d'un climatiseur gainable, voir la vidéo suivante.
Modèles modernes
Lors du choix d'un climatiseur, vous devez tout d'abord faire attention à la puissance de la pression. Il doit dépasser la résistance des conduits d'air
Il est également important de prendre en compte la quantité d'alimentation en air refroidi.
En ce qui concerne les fabricants, les entreprises japonaises et suédoises sont considérées comme les meilleures, mais vous pouvez également trouver de bonnes options parmi les appareils chinois à petit budget.
Il est également important de tenir compte de la quantité d'air refroidi fourni. En ce qui concerne les fabricants, les entreprises japonaises et suédoises sont considérées comme les meilleures, mais vous pouvez également trouver de bonnes options parmi les appareils chinois à petit budget. A titre de comparaison, vous pouvez envisager plusieurs modèles modernes de différents fabricants:
A titre de comparaison, vous pouvez envisager plusieurs modèles modernes de différents fabricants:
- Energolux est une firme chinoise qui propose le SAD18D1-A. Cet appareil est conçu pour desservir 50 mètres carrés. Le coût est de 47 mille roubles. Il dispose également d'un mode nuit pour réduire les niveaux de bruit.
- Le célèbre fabricant Electrolux propose un modèle EACD-09 H / Eu pour 44 000 roubles. Il est conçu pour desservir 25 mètres carrés, cet appareil n'a pas de fonctions supplémentaires.
- Toshiba lance le RAV-SM140, conçu pour une grande zone de service - 125 mètres carrés. Si nécessaire, un tel climatiseur peut fournir un microclimat optimal dans toute la maison ou un grand appartement. Son prix est de 236 mille roubles.
Si nécessaire, vous pouvez trouver un climatiseur pour toute demande - pour refroidir une petite pièce ou toute une maison, avec et sans fonctions supplémentaires. Il existe également des modèles budgétaires, ce segment de prix sur le marché est représenté de manière assez diverse.
Comparaison des climatiseurs conventionnels et de soufflage
Une erreur courante chez les utilisateurs est qu'ils considèrent que tout système de climatisation est ventilé.En effet, seuls certains types d'équipements peuvent fonctionner avec des masses d'air extérieures en mode échange d'air actif. Pour que ce soit plus clair, considérons d'abord le dispositif d'un système split classique.
Les climatiseurs domestiques, communément appelés systèmes split, sont un ensemble de deux modules distincts qui ont une structure différente l'un de l'autre et sont situés à des endroits différents. Le premier module est l'unité d'évaporation, qui est installée au sol, accrochée au mur ou partiellement masquée par un revêtement de plafond. Le deuxième module est un dispositif de compresseur et de condenseur à distance, généralement monté sur la façade d'un bâtiment.
Représentation schématique de l'appareil avec le module intérieur monté au mur. Les deux modules sont reliés l'un à l'autre par de fins tubes de cuivre dans lesquels circule le fréon. Les tubes sont cachés dans des stroboscopes derrière des garnitures décoratives ou dans des boîtes en plastique (+)
Le principe de fonctionnement du climatiseur est simple. Par les grilles d'admission, l'air ambiant pénètre dans l'unité, où il est refroidi, puis évacué par les conduits d'air vers l'extérieur. Le changement de température de l'air ne repose pas sur la production de froid, mais sur le transfert d'énergie thermique.
Le vecteur est le fréon, qui entre dans le module distant à l'état gazeux et revient à l'état liquide. Pour passer en phase gazeuse, le fréon prélève une partie de la chaleur de l'air évacué dans l'évaporateur.
En effet, il n'y a pas de renouvellement de masses d'air et le refroidissement (ainsi que le chauffage et la filtration) s'effectue par recirculation. L'équipement d'approvisionnement est organisé différemment.Un exemple de système split avec apport d'air frais est un appareil de type gainable.
Le schéma de conception d'un climatiseur à gaine, qui remplit les fonctions de ventilation et de contrôle de la température à l'intérieur de la pièce. Un élément structurel obligatoire est un réchauffeur intégré dans le tuyau (+)
Bien sûr, les systèmes split ordinaires sont faciles à installer, ont de nombreuses fonctions supplémentaires, ont un beau design moderne, mais contrairement aux entrées, ils ne rafraîchissent pas l'air de la pièce - et c'est leur principal inconvénient.
Quelle est la caractéristique des systèmes multi-split
En parlant de climatiseurs au sens général, il faut mentionner les systèmes multi-split, qui sont également utilisés pour équiper des appartements multi-pièces, des maisons privées, des bureaux et des bâtiments industriels.
Ils diffèrent des blocs ordinaires en ce qu'ils n'ont qu'un seul bloc distant, alors qu'il peut y en avoir plusieurs internes. Le nombre minimum est de deux modules, le maximum est limité à quatre. Si vous utilisez plus d'unités intérieures, le système perdra ses performances et ne fonctionnera pas à pleine capacité.
Le nombre de pipelines augmente, respectivement, le coût des équipements augmente et l'installation de certaines parties de la structure devient plus compliquée.
Il est important de créer des conditions pour la pose de tous les éléments de connexion (+). Un système multi-split n'est pas toujours utilisé, mais seulement dans certains cas lorsque l'installation d'un grand nombre d'unités extérieures n'est pas possible pour un certain nombre de raisons :
Un système multi-split n'est pas toujours utilisé, mais seulement dans certains cas lorsque l'installation d'un grand nombre d'unités extérieures n'est pas possible pour un certain nombre de raisons :
- le bâtiment est un monument historique ou architectural ;
- il est interdit d'installer des unités à distance sur la façade;
- pour l'accrochage du matériel, l'architecture du bâtiment prévoit certains emplacements limités en surface.
Parfois, le montage d'un grand nombre de modules déportés est abandonné pour des raisons esthétiques : la belle façade du bâtiment, tendue de boîtiers encombrants, paraît inprésentable.
Des modifications sont périodiquement apportées aux règles d'amélioration des grandes villes, interdisant le placement de climatiseurs sur les façades donnant sur les rues centrales. Sortie - installation du bloc sur le mur de la cour de l'immeuble
L'avantage d'un système multiple est l'installation d'un module distant, les inconvénients sont un travail complexe sur l'installation de pipelines, une diminution de la productivité et de la fiabilité. De plus, tous les modules intérieurs doivent fonctionner dans des modes identiques : soit chauffage, soit refroidissement.
Sélection d'un climatiseur gainable avec un apport d'air frais
Tout d'abord, l'appareil doit être sélectionné en fonction des caractéristiques principales.
Par pression
La pression développée par le ventilateur de l'unité intérieure doit être supérieure ou au moins égale à la résistance des conduits d'air.
Conseils
Ceux qui doutent de l'exactitude du calcul des conduits d'air doivent faire attention aux modèles de "conduits", dans lesquels la pression peut être ajustée sur une large plage
Par débit (volume d'alimentation en air refroidi)
Les caractéristiques du climatiseur gainable indiquent l'apport maximal d'air froid, mais vous devez comprendre que l'appareil ne peut lui fournir qu'une résistance nulle du côté refoulement, c'est-à-dire sans se connecter aux conduits d'air. S'ils sont connectés, l'alimentation et, par conséquent, la puissance de réfrigération seront d'autant plus faibles que la résistance aérodynamique du système sera élevée.
Il est important de faire attention à la marque du climatiseur.La meilleure réputation est celle des produits des entreprises :
- Daikin, Mitsubishi Heavy, Mitsubishi Electric, Toshiba, Fujitsu General (Japon) ;
- Samsung Electronics, Lg Electronics (Corée du Sud), Electrolux (Suède) ;
- Dantex (Grande-Bretagne).
Parmi les Chinois, les plus fiables sont les climatiseurs des marques Midea, Gree, Ballu.
Certains modèles sont équipés d'une pompe de vidange intégrée. Habituellement, il est de faible puissance - il ne peut élever l'eau que de 40 à 50 cm, mais s'il tombe en panne, le climatiseur effectuera un arrêt d'urgence afin que l'utilisateur ne soit pas confronté à une fuite de condensat. Une autre chose est une pompe installée séparément: le climatiseur ne réagira pas à sa panne. Mais parmi ces pompes, il est facile d'en trouver des assez puissantes - capables de soulever de l'eau de 8 m ou de la pomper à travers une canalisation horizontale de 20 mètres.

Climatiseur gainable haute pression avec pompe de vidange : schéma
Si votre climatiseur est équipé d'une fonction de mélange d'air frais et que vous souhaitez le faire fonctionner toute l'année, achetez un radiateur électrique pour chauffer l'air extérieur en hiver. L'air glacial doit être chauffé même si l'appareil ne fonctionne que pour le refroidissement, sinon le flux entrant dans la pièce sera d'un froid inacceptable.
Conseils pour choisir les climatiseurs
Avant d'acheter un système split pour un usage domestique ou pour un usage au bureau, vous devez d'abord décider si une ventilation est nécessaire. Peut-être que la pièce est équipée d'un système de ventilation efficace et n'a pas besoin d'appareils supplémentaires de ce type.
Si l'échange d'air est faible, faites attention aux modèles de climatiseurs de soufflage. Pour les pièces avec de hauts plafonds, tous les modèles intégrés conviennent - canal, cassette
Mais n'oubliez pas que pour masquer les éléments de travail, vous devrez construire une structure suspendue.
Pour les pièces avec de hauts plafonds, tous les modèles intégrés conviennent - canal, cassette. Mais n'oubliez pas que pour masquer les éléments de travail, vous devrez construire une structure suspendue.
Si les plafonds sont bas (par exemple, 2,5 m), l'idée de modèles de plafond ne fonctionnera pas. Peut-être, selon les caractéristiques techniques, il est possible de choisir un appareil avec un module mural, qui effectue simultanément la prise d'air de la rue. Pour les pièces plus grandes, un modèle plus productif sera nécessaire, par exemple, avec une installation du sol au plafond.
Les halls d'hôtel, les foyers et les vestibules sont grands. En plus des systèmes de canaux, des modèles de colonnes y sont installés, qui se distinguent par leur productivité et leur taux de renouvellement d'air élevé.
Quel que soit le type d'appareil, il est nécessaire d'analyser ses caractéristiques techniques et ses performances: pour clarifier dans quel domaine le modèle est conçu, quelle est sa puissance, s'il est possible de connecter des modules supplémentaires. Les derniers climatiseurs programmables avec une grande liste d'options supplémentaires sont beaucoup plus chers, mais certaines fonctionnalités sont vraiment importantes.


































