- 4. Les moyens les plus simples d'organiser une douche d'été
- Sélection du site
- Installation et équipement
- Dans la rue
- Dans la chambre
- 1. Par où commencer ?
- Comment faire une douche d'été avec des toilettes: les nuances de la construction
- Fabrication de palettes
- Éclairage et ventilation de douche de campagne
- Douche en métal
- Fabrication d'une charpente métallique
- Gainage du cadre avec du carton ondulé
- Cadre de revêtement en polycarbonate
- Installation de réservoir d'eau
- Installation d'alimentation en eau de douche de jardin
- Type de douche
- Nous construisons une douche d'été
- Matériaux pour réchauffer la douche à la campagne
- Érection du cadre
- Douche extérieure portative
- L'intérieur de la cabane d'été
- Aménagement d'un drain pour une douche d'été
4. Les moyens les plus simples d'organiser une douche d'été
Il arrive que le chalet d'été soit très rarement visité, et non pas pour le travail, mais plutôt pour les loisirs. Dans ce cas, la douche peut être la conception la plus simple que vous puissiez même emporter avec vous.
- Douche portative. Cette conception ressemble à un grand coussin chauffant et est faite du même matériau. Après avoir rempli le récipient d'eau, il est tordu avec une buse spéciale, au bout de laquelle se trouve un mini-arrosoir. À l'extrémité opposée, il y a une boucle pour laquelle il est pratique d'accrocher le conteneur à un arbre ou à un crochet. En plaçant le récipient dans un endroit bien éclairé, l'eau va chauffer très rapidement. Le volume d'une telle "douche" est de 10-15 litres.Cela implique des restrictions sur la durée de la réception des procédures d'eau et le nombre de personnes qui peuvent l'utiliser. Mais c'est une option très pratique et peu coûteuse pour une personne.
- Support de douche - est un tuyau en fer sur pieds, qui est équipé d'une pomme de douche et d'un trou pour connecter un tuyau. Un tel rack est pratique en ce qu'il peut être placé dans n'importe quel endroit pratique et, si nécessaire, amené dans une buanderie pour le stockage. Son inconvénient est l'absence de réservoir d'eau. Autrement dit, s'il n'y a pas d'eau chaude et de pression normale dans le système sur le site, vous devrez alors prendre une douche froide.
- Utilisation du système de douche. Le support de douche est une barre métallique à laquelle sont fixés la douche de tête et le robinet. Afin de ne pas se soucier de l'aménagement d'une pièce spéciale pour son placement, beaucoup fixent le système de douche directement au mur de la maison ou de la dépendance. Pour cela, l'eau est extraite du mur. Le mur du bâtiment est protégé de l'humidité. Vous pouvez le recouvrir de carreaux, de parements ou d'autres matériaux disponibles. Pour plus de commodité, vous pouvez séparer l'espace avec un rideau et placer une palette en bois ou un tapis en caoutchouc sur le sol.
Gardez à l'esprit qu'il s'agit d'une option pour une utilisation rare. Au moment où vous ne serez pas dans le pays, le système peut être retiré et la prise fermée avec une prise spéciale.
Tous les types de douches ci-dessus sont bons car ils ne nécessitent pas la disposition d'une fondation et d'un drain. Mais l'inconvénient est évident - la possibilité de leur utilisation dépend entièrement des conditions météorologiques.
Sélection du site
La conception de la douche d'été suppose que l'eau sera chauffée par la chaleur solaire. Par conséquent, il est préférable d'allouer une zone bien éclairée à l'installation d'une cabine de douche, où les rayons du soleil réchaufferont activement le réservoir d'eau tout au long de la journée.
Le meilleur endroit pour construire une douche est un endroit ensoleillé.
Lors du choix d'un lieu, il convient de prendre en compte la commodité de l'approvisionnement en eau, en prévoyant, si possible, le remplissage automatique du réservoir. Il serait judicieux de veiller à l'avance à l'écoulement de l'eau en plaçant la structure sur une élévation naturelle, ou en faisant un petit talus pour cela afin qu'après le lavage, elle pénètre dans la fosse septique ou le puisard.
Installation et équipement
Lors de l'aménagement d'une cabine de douche de vos propres mains, vous devez tenir compte de nombreux facteurs. Même le non-respect d'au moins l'un d'entre eux peut rendre la cabine de douche inutilisable.

Dans la rue
Comme déjà mentionné, une douche extérieure peut être construite à partir de divers matériaux : profilés en bois, en métal ou en plastique.
En plus du matériel de base, vous devrez préparer les éléments suivants :
- conduites d'eau et raccords pour l'alimentation et l'évacuation de l'eau;
- réservoir d'eau;
- robinets et arrosoir;
- palette.




Pré-déterminez l'emplacement de la future douche, faites un croquis de la cabine et calculez la quantité de matériaux nécessaires.


La première étape de l'aménagement d'une cabane dans un chalet d'été est l'approvisionnement en eau. Un simple tuyau d'arrosage fera l'affaire, et vous pouvez le brancher à n'importe quel robinet sur place, ce qui vous permet d'économiser de l'argent et le tuyau ne prendra pas beaucoup de place.

Procédez ensuite à l'addition des conduites d'eau.Il est nécessaire de creuser des trous sur toute la longueur de tout le futur système, dont la profondeur doit être supérieure à la profondeur de gel du sol, ce qui vous permettra d'utiliser la douche même pendant la saison froide. Lors de l'assemblage du pipeline, l'élément final doit être un robinet. Il est conseillé d'isoler l'alimentation en eau avec n'importe quel matériau, par exemple de la laine minérale.


Après la pose des tuyaux, vous pouvez procéder à l'installation de l'élément chauffant et ensuite seulement remblayer le sol.

La prochaine étape est l'équipement de drainage. Il existe plusieurs voies : drainage dans le sol et dérivation vers un site d'élimination. Le premier cas convient à un site avec un sol léger et bien perméable à l'eau. La seconde est considérée comme plus pratique et implique l'évacuation des eaux usées dans un puisard.


La dernière étape est l'assemblage proprement dit de la cabine elle-même. Vous devez d'abord assembler le cadre par boulonnage ou soudage (selon le matériau utilisé). Le cadre fini doit être solidement fixé à l'endroit préparé.


Ensuite, vous devez installer le réservoir. S'il est prévu d'installer des éléments chauffants, ils sont installés avant que le réservoir ne soit érigé
Il est très important de positionner correctement les éléments chauffants à l'intérieur du réservoir - ils ne doivent pas se toucher ni toucher la surface du réservoir, et leur emplacement doit être aussi proche que possible du fond du réservoir.

La cabine de douche à faire soi-même est presque prête. Il ne reste plus qu'à installer un arrosoir, des crochets pour les vêtements et des poches pour les accessoires de bain. Si vous le souhaitez, une douche extérieure peut être décorée avec divers éléments.

Dans la chambre
Après avoir installé la cabine de douche dans la pièce, vous devez vous préparer à une augmentation de l'humidité de l'air après le début de son fonctionnement. Par conséquent, vous devez tout d'abord prendre soin de l'isolation et de la protection des murs intérieurs.Vous pouvez les fermer avec un film et les recouvrir avec des feuilles de fibre de gypse sur le dessus. Les murs sont généralement carrelés, mais des panneaux en PVC peuvent également être utilisés dans le pays, dont le coût est bien inférieur à celui de la céramique.


La prochaine étape importante est la disposition du sol. L'imperméabilisation joue également un rôle important ici. La chape en ciment est une excellente solution à ce problème. Il est souhaitable de rendre le sol de la salle de douche multicouche: d'abord - un sous-plancher, puis - un film anti-vapeur. Ensuite, vous devez poser une isolation ecowool, une feuille OSB, une feuille GVL, un film polyéthylène, une chape en ciment, une imperméabilisation élastique et, enfin, des carreaux de céramique. Pour réduire le poids de la chape, il est bon d'utiliser un enduit léger - argile expansée.


Une condition préalable à l'aménagement du sol dans la salle de douche est une pente pour l'évacuation. Ainsi, toute eau qui touche le sol s'écoulera dans les égouts.
Habituellement, les cabines de douche prêtes à l'emploi sont installées à l'intérieur.
Lors du démarrage de l'installation, il est important de lire attentivement les instructions et de suivre exactement les étapes indiquées.

1. Par où commencer ?
Si vous envisagez de construire une douche d'été dans votre maison de campagne, vous avez déjà une idée de son apparence et de ce que vous devez acheter. En plus de la conception elle-même, des paramètres très importants sont :
- Choix de l'emplacement ;
- Taille de la douche ;
- Volume du réservoir d'eau ;
- La nature du bâtiment - temporaire ou capital.
Beaucoup essaient de choisir le coin le plus isolé derrière la maison ou à l'ombre des arbres afin de cacher une structure aussi intime aux regards indiscrets.C'est précisément la principale erreur ! En construisant une douche au milieu des arbres, vous serez constamment attaqué par des insectes qui aiment tant l'humidité et la fraîcheur, et vous priverez de la possibilité de chauffer naturellement l'eau du réservoir. Par conséquent, l'emplacement du futur bâtiment doit être dans une zone dégagée et bien éclairée et en aucun cas dans une fosse ou dans une plaine. Même si vous prévoyez d'utiliser un réservoir chauffé, il est plus sage de ne pas utiliser d'électricité afin d'économiser de l'argent lors des journées chaudes. Le bâtiment lui-même ne doit pas être situé à une petite distance de la maison. En prenant une douche tard le soir, vous devez rentrer chez vous le plus tôt possible pour ne pas tomber malade.
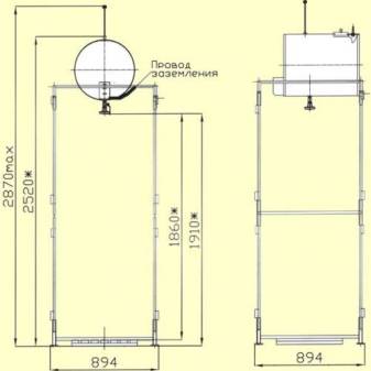
Quant à la taille du futur bâtiment et au volume du réservoir d'eau. La hauteur recommandée des futurs murs est de 200 à 300 cm.Il est nécessaire de s'appuyer sur la croissance du membre le plus grand de la famille, qui ne doit pas reposer sa tête sur la pomme de douche. La largeur et la longueur de l'espace douche sont calculées selon que le bâtiment disposera d'un dressing sec ou se limitera à une seule zone humide. L'option avec dressing est bien sûr plus pratique, les vêtements seront protégés de l'humidité et vous aurez la possibilité de vous changer confortablement. Ainsi, votre douche sera composée de deux sections, séparées par une cloison. Une surface de 220 × 120 cm est largement suffisante pour ces deux zones, même en tenant compte de la peau.
Lors du choix d'un réservoir d'eau, il est nécessaire de prendre en compte le nombre de personnes qui utiliseront la douche et l'intensité de son utilisation.Si vous venez à la maison de campagne uniquement le week-end et que vous utilisez la douche après une dure journée de travail, un récipient contenant une quantité d'eau de 40 litres par personne suffit amplement. Cela permettra à chaque utilisateur de verser de l'eau en continu pendant environ 10 minutes. Si un nombre beaucoup plus important de personnes suivent des procédures d'eau d'affilée, vous devriez penser à un réservoir plus grand. Mais gardez à l'esprit que les bâtiments temporaires ne résisteront pas aux conteneurs d'un volume supérieur à 200 litres. En tant que réservoir lui-même, vous pouvez utiliser des barils en fer ou en plastique, ou acheter des modèles de pays prêts à l'emploi avec un arrosoir intégré. Un petit conseil - si vous peignez la surface du réservoir avec de la peinture noire, l'eau qu'il contient chauffera beaucoup plus rapidement en raison de la capacité du noir à attirer la chaleur.

Alors, soulignons les points principaux:
- Emplacement - dans une zone ouverte, surélevée et lumineuse, à une distance maximale de 2 à 4 mètres du bâtiment principal ;
- La taille de la pièce - la hauteur est choisie en tenant compte de la croissance du membre le plus grand de la famille, le périmètre confortable minimum est de 100 × 100 cm;
- La taille de la capacité du réservoir d'eau est de 40 litres par utilisateur, multiplié par le nombre de personnes qui recevront des traitements d'eau en séquence.
La nature de la future construction - temporaire ou capitale, doit être choisie en fonction des paramètres suivants :
- Intensité d'utilisation de la douche. Si, pendant la saison des plantations, vous déménagez dans la datcha, en l'utilisant comme un logement à part entière, vous devriez alors penser à un bâtiment capital en briques ou au moins en éléments en bois. Les murs doivent être bien protégés du vent.
- Le budget que vous prévoyez d'allouer à la construction de la structure.
- Matériaux et outils dont vous disposez. Par exemple, dans votre maison de campagne, il y a des briques provenant du démantèlement d'un ancien bâtiment de ferme. Dans ce cas, il sera beaucoup plus économique de les utiliser que d'acheter de nouveaux matériaux pour le cadre. Ou vous avez beaucoup de barres de bois ou de vieux carton ondulé, de tôle ou de doublure en bois. Utilisez les ressources dont vous disposez déjà. En ce qui concerne les outils - si vous avez de vieux tuyaux en fer que vous aimeriez utiliser comme cadre, mais que vous ne disposez pas d'une machine à souder et d'un outil pour les couper, l'acquisition de ces outils se traduira par une somme ronde. Même si vous les empruntez à des amis pour la durée de la construction, n'ayant aucune expérience dans leur utilisation, vous pouvez perdre votre temps. Par conséquent, il vaut la peine d'évaluer judicieusement vos compétences, les outils dont vous disposez et, afin d'économiser de l'argent, d'utiliser les matériaux disponibles. Dans de telles conditions, la construction ne demandera pas beaucoup d'efforts et d'argent.
Comment faire une douche d'été avec des toilettes: les nuances de la construction
Pour économiser de l'espace sur le site, ainsi que du temps et des matériaux, de nombreuses personnes souhaitent construire une douche extérieure avec des toilettes. Cela présente certains avantages - la construction est réalisée rapidement, elle est rentable sur le budget, les locaux sont situés de manière compacte et pratique, mais certaines nuances doivent être prises en compte.
Le premier est le réseau d'égouts. Il n'est pas recommandé de combiner une fosse septique pour une toilette avec un drain d'eau d'une douche. Le réservoir se remplira rapidement et vous devrez pomper les effluents beaucoup plus souvent. Il doit donc y avoir une séparation : une fosse septique pour un WC, une fosse d'évacuation pour une douche.
La seconde est l'odorat. Pour s'en débarrasser, les cloisons sont rendues aussi étanches que possible et chaque pièce a sa propre ventilation.Vous pouvez bloquer la douche et les toilettes avec un meuble de rangement pour l'inventaire, en le plaçant au centre du complexe.
Troisièmement, le ruissellement peut présenter un risque pour les puits d'eau potable. Par conséquent, les normes établissent une distance minimale entre les objets de 20 m et de 10 à 12 m par rapport à un bâtiment résidentiel.
Fabrication de palettes
Les travaux doivent commencer par le bas de la cabine - la palette. Si vous utilisez une base prête à l'emploi, cela réduira la complexité et le temps d'installation.
Lorsque vous fabriquez vous-même une palette, vous devez au préalable veiller à protéger la pièce de l'humidité. Pour ce faire, vous devez utiliser une imperméabilisation au rouleau.
Tout dépend de quel matériau est fait le sol. La surface traitée ne doit pas laisser passer l'humidité. Il en va de même pour le bas des murs.
Vient ensuite le coulage du béton. Dans ce cas, la surface doit être inclinée en direction du drain de 2 à 3 cm par mètre. Avant de couler, des tuyaux de drainage sont posés et une échelle de drainage est fixée.
Éclairage et ventilation de douche de campagne
L'éclairage sera utile, car vous devrez prendre une douche dans le noir. Cependant, lors de la pose et du câblage des fils, respectez les règles de sécurité :
- Travailler avec des fils sans endommager l'isolation
- Faites le câblage de manière à ce qu'il n'interfère pas avec les mouvements à l'intérieur et à l'extérieur
- Isoler soigneusement les articulations
- Fournir une étanchéité à l'humidité pour les interrupteurs et les lampes
Pour la ventilation, faites une fenêtre ou un trou spécial avec une grille ou un filet afin que les débris et les insectes ne puissent pas pénétrer à l'intérieur. La ventilation permettra d'éviter les querelles et les mauvaises odeurs sous la douche.
Pour une bonne ventilation, il est nécessaire de faire une fenêtre ouvrante
Douche en métal
La structure en acier est constituée d'un tube profilé ou d'un coin. La largeur de l'étagère est choisie en fonction de la charge. La charge principale est un réservoir avec de l'eau, doublure. Plus le réservoir d'eau est massif, la finition, plus la section transversale du coin est grande. Ils revêtent la structure avec des matériaux de leur choix, organisent l'alimentation en eau et l'évacuation de la même manière qu'une structure en bois.
Fabrication d'une charpente métallique
Pour le soudage, prenez des coins d'une épaisseur de 4-5 mm. La largeur de l'étagère dépend de la charge. Construisez également un cadre à partir d'un profilé métallique. L'épaisseur de paroi du tube profilé pour les racks est de 3 mm, pour le cerclage de 2 mm.

Ils construisent une charpente métallique sans machine à souder. La connexion se fait sur des cornières de montage épaisses avec des boulons. En conséquence, une structure pliable est obtenue, qui est retirée pour l'hiver. Schéma et dessins de l'âme dans le pays de leurs propres mains choisir en fonction des possibilités, des compétences. Il y a plusieurs éléments principaux: des crémaillères, des cerclages à profil transversal, un toit.
Gainage du cadre avec du carton ondulé

Le matériau de la feuille est sélectionné en fonction de la taille du cadre. Pour la coupe, utilisez des ciseaux à métal ou une meuleuse avec un disque denté. Le carton ondulé est fixé sur des vis autotaraudeuses galvanisées avec rondelles d'étanchéité. Pas de fixation à partir de 7 cm.
Cadre de revêtement en polycarbonate

Construire une douche avec vos propres mains chalet en polycarbonate, utilisez un matériau en feuille d'une épaisseur de 10 mm. Fixer avec des vis autotaraudeuses galvanisées avec un joint d'étanchéité. Pré-percez des trous ou fixez directement avec des vis autotaraudeuses à filetage complet.
Installation de réservoir d'eau

La dernière étape de la construction est l'installation d'un réservoir d'eau. Le réservoir est acheté prêt à l'emploi, fabriqué à partir d'un fût en acier inoxydable. Un trou est découpé dans un récipient en métal pour un drain d'une section de 15 mm.Un morceau de tuyau avec un fil aux deux extrémités y est attaché. Longueur de coupe à partir de 300 mm. Le toit de la douche est équipé d'un trou où le tuyau est inséré. Un robinet, un arrosoir sont vissés sur l'extrémité libre. Le réservoir de douche est fermement fixé sur le cadre du cadre, rempli d'eau et fermé par un couvercle.
Installation d'alimentation en eau de douche de jardin
L'étape principale de la construction d'une douche de jardin de vos propres mains est l'installation de l'alimentation en eau. Un excellent réservoir pour l'approvisionnement en eau est un baril en métal ou un réservoir en plastique peint en noir. Volume standard - de 100 à 200 litres. Un indicateur de niveau d'eau ou une vanne doit être installé dans le réservoir, ce qui coupera le débit d'eau lorsque le réservoir est plein.
L'arrosoir doit être installé au-dessus du niveau de la tête. Cela aidera à éviter les chutes de pression pendant le fonctionnement.
Pour un réservoir de douche à faire soi-même à la campagne, vous devez créer une serre à base de barres recouvertes de film PVC. Le réservoir peut être collé avec du papier d'aluminium, ce qui aidera à accélérer le processus de chauffage du liquide des rayons du soleil.
Schéma d'un réservoir d'eau pour une douche de jardin.
Le réservoir doit être monté au-dessus de la structure de la douche. Pour fournir de l'eau, une conduite d'eau doit être soudée ou un tuyau de pompe doit être installé. Le chauffage de l'eau peut être effectué à l'aide d'un élément chauffant - un réchauffeur thermoélectrique. Cette méthode s'avère la plus pratique et la plus économique.
Les éléments chauffants sont divisés en deux types - sec et humide. Les sèches fonctionnent sans contact direct avec l'eau, ce qui élimine la possibilité de formation de tartre sur elles. Par conséquent, de tels appareils peuvent durer plus longtemps. Cependant, les éléments chauffants humides sont beaucoup moins chers et donc plus courants.Lors de l'installation d'un équipement de chauffage électrique, il est nécessaire de prendre en compte les précautions de sécurité, d'assurer l'isolation de l'eau de l'électricité, de faire la mise à la terre et d'installer un ouzo de protection.
Type de douche
Selon l'emplacement de la cabine (compartiment), plusieurs options s'offrent à vous :
- angulaire - le plus courant en raison de sa compacité et de sa facilité de placement. Il peut être carré, rectangulaire, polygonal, avec un segment de cercle ;
- mural - une structure rectangulaire adjacente au mur d'un côté;
- avec un mur - est placé de sorte que les murs principaux (cloisons) de la salle de bain servent de murs sur trois côtés. Souvent une ou deux cloisons sont érigées spécifiquement pour délimiter la cabine de douche ;
- sans murs - une niche ou une zone entre les murs qui a un drain séparé dans les égouts.
Les cabines de douche industrielles ont des portes droites ou convexes (Fig. 5), celles faites maison sont le plus souvent fournies avec des portes droites, car cela simplifie grandement l'installation et l'utilisation.
Selon le type de socle, une douche à monter soi-même dans un appartement peut être :
- avec un bac plus ou moins haut (s'applique aussi bien aux cabines finies qu'aux cabines de douche encastrées) ;
- sur le podium ;
- avec un plancher au niveau du plancher commun de la salle de bain.
Dans les trois cas, l'évacuation à l'égout est assurée par un caniveau de douche et des canalisations d'égout posées soit sous le plancher commun, soit sous le podium (bac). Si le niveau du sol de la cabine de douche et de toute la salle de bain sont identiques, il est conseillé d'ajouter une échelle commune au drain de la cabine de douche (le soi-disant drain de douche) - cela aidera à éviter d'inonder l'appartement et les voisins en cas de colmatage accidentel ou d'écoulement insuffisamment rapide du drain principal.
Selon la complexité, tous les types de structures de plomberie de ce type sont divisés en fonction du nombre d'éléments finis utilisés dans l'installation.
Le moyen le plus simple de faire une douche dans l'appartement, en utilisant des kits préfabriqués prêts à l'emploi. L'installation d'un plateau et de portes achetés séparément, ainsi que d'un mélangeur, nécessite de grandes compétences en construction et en décoration. Enfin, l'option la plus complexe - et en même temps économique - : avec une palette ou un podium fait maison (ou une modification du sol), une alimentation en eau et un assainissement indépendants, une finition, etc.
Nous construisons une douche d'été
En passant aux conseils pratiques, essayons de construire une douche extérieure en bois simple, mais esthétiquement belle et confortable pour les chalets d'été, avec une consommation minimale de matériaux.
C'est agréable de se rafraîchir avec une douche fraîche un soir d'été.
La douche d'été à faire soi-même n'est pas seulement une oasis dans la chaleur chaude, mais aussi un vol de votre imagination
Cuisinons:
- planches et lattes
- ensemble de douche (robinet, tube courbé, support, adaptateur et buse)
Les plantes grimpantes peuvent être de grands murs pour une douche d'été à faire soi-même
- tuyau d'arrosage
- vis autotaraudeuses
- attaches
Douche extérieure avec baignoire
Les planches pour le sol d'une douche d'été doivent être traitées avec des moyens spéciaux
La figure montre les dimensions de chaque partie de la douche.
Riz. une
Riz. 2
L'étape suivante consiste à assembler la palette. Puisque la palette est ronde, nous avons besoin d'un dessin.
Riz. 3
Nous assemblons la structure en trois étapes :
À partir de quatre planches, nous fabriquons un carré intérieur.
Riz. quatre
Nous dessinons un cercle sur eux.
Riz. 5
Nous avons scié les parties des planches qui dépassent du cercle avec une scie sauteuse.
Douche extérieure élégante
Cabine de douche en bois - une option belle et durable
Nous imposons une deuxième couche de planches en diagonale par rapport à la première, dessinons un cercle dessus et scions les parties en excès.
Riz. 6
Nous avons mis un support pour le support de douche. Nous attachons une partie à la première couche de planches, l'autre à la seconde. Nous avons un espace où nous allons insérer le support de douche.
Riz. sept
Nous serrons les deux couches avec des vis autotaraudeuses.
Riz. huit
Installation du support.
Riz. 9
Nous complétons la finition de la palette en posant la couche supérieure de lattes. Nous répétons l'opération en dessinant un cercle et en sciant les parties en excès.
Riz. Dix
- Nous fixons le tuyau au rack avec un support.
- Nous montons les parties restantes de l'ensemble de douche sur le support. Nous fixons l'atomiseur au sommet du tube. Dans la partie inférieure, nous fixons le mélangeur et l'adaptateur. Connectez un tuyau d'arrosage à l'adaptateur.
Douche d'été avec beau carrelage et décor végétal
Douche d'été avec un chemin décoratif vers la maison
Douche d'été avec hydromassage
Pour les adhérents de constructions solides, nous vous proposons de construire une douche d'été capitale. Préparons les outils :
- scie à métaux
- un marteau
Si vous n'avez pas la possibilité de construire de vos propres mains une douche d'été pour une résidence d'été, une douche d'été portable avec alimentation en eau par le bas sera le moyen de sortir de la situation.
- niveau
- perceuse
- bulgare
Douche d'été à l'entrée de la maison
- bétonnière (réservoir pour mélanger le mortier de ciment)
- pelle
- Maître d'accord
Douche extérieure avec sol en pierre décorative
La conception d'une telle salle de douche vous permettra non seulement de vous rafraîchir lors d'une chaude journée d'été, mais apportera également un plaisir esthétique.
La construction commence par la préparation d'une fosse pour la fondation. Nous le creusons selon des tailles prédéterminées. Alignez soigneusement les murs et le fond de la fosse.
Nous exposons le coffrage avec une marge sur les murs de la cabine de douche. Mélanger et verser la solution. Nous attendons qu'il soit complètement sec et procédons à la construction des parois de la douche.
Une douche extérieure est l'un des ajouts essentiels à une zone suburbaine.
Nous marquons la maçonnerie, posons trois murs en demi-brique, à l'aide d'un niveau et d'un fil à plomb.
Lors de la pose des murs, n'oubliez pas de laisser un trou de ventilation au bas de la douche et une niche pour une petite fenêtre plus proche des plafonds.
Douche d'été près du mur de la maison avec de l'eau de l'approvisionnement public en eau
Nous posons des barres de sol le long de la rangée supérieure de briques et les immurons en toute sécurité.
Nous fermons les sols avec une couche de matériau d'étanchéité et d'ardoise, après avoir préalablement percé un trou pour le tuyau.
Douche d'été en bois dans un style moderne
Une douche extérieure est l'une des installations ménagères nécessaires pour un passe-temps confortable dans une zone suburbaine
Commençons le travail de finition. Le plafond et les murs peuvent être plâtrés et carrelés, vous pouvez utiliser une fixation en plastique sur un cadre métallique.
Nous faisons passer un tuyau de vidange le long du fond. Nous fabriquons un cadre à partir d'un profilé métallique ou de barres de bois. Nous posons le fond avec des lattes de bois ou des tuiles en plastique.
Nous insérons le cadre de la porte dans le mur ouvert de la douche, le fixons aux boulons, le remplissons de mousse de montage et accrochons la porte.
Décoration murale en pierre pour panneau de douche - une option polyvalente
Vous avez maintenant une idée précise de comment construire une douche d'été pour une résidence d'été et de ce qui est nécessaire pour cela. Vous n'êtes pas obligé de suivre nos instructions exactes, vous pouvez peindre la douche, utiliser d'autres matériaux de finition. Pour une version ouverte, vous pouvez installer un cadre avec un rideau, et dans le modèle capital, vous pouvez vous passer d'une porte, en la remplaçant par un rideau coulissant en bois ou en plastique.
Une douche d'été à faire soi-même deviendra une dépendance indispensable sur un terrain personnel
Nous vous proposons de regarder des idées intéressantes pour une douche d'été dans cette vidéo:
Matériaux pour réchauffer la douche à la campagne
Sachant construire une douche dans le pays de leurs propres mains, ils construisent des objets aussi confortables que possible pour le fonctionnement. Les systèmes sont équipés de radiateurs, une base en béton est réalisée avec une structure à ossature solide, etc. Une autre façon d'améliorer une structure légère consiste à l'isoler.
Comme matériaux isolants sont utilisés:
- Laine minérale. Les tapis de feuilles sont disposés dans un cadre, imperméabilisés avec un film, gainés de l'intérieur et de l'extérieur avec des matériaux de finition.
- Laine de verre. Utilisez strictement selon les instructions, le matériau s'effrite et obstrue les voies respiratoires. Cependant, il ne se détériore pas sous l'influence du gel et de la chaleur.
- Feuilles de mousse imperméable. Dans une douche chaude, des modules d'une épaisseur de 50 mm suffisent. Disposé dans un cadre, puis doublé avec le matériau sélectionné.
L'isolation des murs de la structure d'été assurera un lavage confortable par mauvais temps. Les propriétaires expérimentés isolent tous les avions, y compris les plafonds et les sols.
Érection du cadre
Une douche d'été faite de poutres ou de planches est l'une des options les plus populaires pour un bâtiment dont le ménage a besoin. Pour la construction de la structure, il est préférable d'utiliser des conifères, dont le principal avantage est:
- haute densité;
- résistance à l'humidité;
- Haute teneur en résine ;
- Capacité à supporter de lourdes charges.
Cadre de douche Beam
Pour la construction du cadre, des barres de 100x100 mm sont utilisées. Tout d'abord, le cadre inférieur est assemblé, en le fixant au moyen d'une connexion boulonnée aux poteaux de support ou aux pieux vissés. Lors du montage, il est préférable d'utiliser des boulons longs avec une coïncidence complète des axes.
Après avoir installé des supports en bois verticalement, effectuez la garniture supérieure. Pour donner à la structure une stabilité supplémentaire, les cadres latéraux sont fixés avec des entretoises. Le bois de conifère raboté est excellent comme revêtement. Il a un aspect présentable et s'intègre harmonieusement dans le paysage environnant.
Construire les murs d'une douche d'été en bois
Des joints spéciaux aideront à assurer un ajustement parfait de la porte. La porte de la cabine doit également être peinte ou proliférée. Pour la décoration intérieure du stand, vous pouvez utiliser des panneaux en plastique, de la toile cirée ou du linoléum. Des photos avec des options de conception intéressantes peuvent être consultées sur Internet.
Douche extérieure portative
Une option moderne très courante pour une douche d'été est une conception portable faite de tuyaux en plastique. Il est pratique de l'utiliser dans le pays non seulement pour les procédures d'eau, mais également pour divertir les enfants, arroser la pelouse ou comme élément décoratif de l'aménagement paysager. L'avantage de cette méthode est qu'il n'est pas nécessaire d'utiliser un drainage ou une fosse d'eaux usées avec une fondation, car la structure peut être régulièrement transférée à un autre endroit, ce qui élimine l'apparition d'eau stagnante.

Avant de faire une douche d'été dans le pays à partir de tuyaux en PVC, vous devez préparer:
- Tuyaux en PVC - 10 à 20 m, selon le type de construction;
- attaches (croix, coins) - 8 à 20 pièces;
- ciseaux de précision spéciaux;
- machine à souder pour tuyaux en plastique;
- pièces supplémentaires (robinet, tuyau, pompe, bidon, etc.).
Le processus de fabrication est basé sur l'algorithme suivant :
- coupez 6 morceaux de tuyau de 60 cm de long;
- à l'aide d'une machine à souder, ils relient 3 segments les uns aux autres avec des croix (2 supports identiques doivent être obtenus);
- lors de l'installation des croix, il est tenu compte du fait qu'elles sont situées perpendiculairement aux tuyaux et parallèles les unes aux autres;
- coupez 8 morceaux de tuyau de 30 cm chacun, soudez un coin sur un bord de chacun;
- coupez 8 segments de tuyau de 20 cm chacun, insérez-les dans les coins attachés aux segments de 30 cm, fermez la deuxième extrémité avec un bouchon;
- insérez 2 flans dans chaque croix, de sorte que les extrémités pliées soient tournées vers le milieu;
- en conséquence, vous devriez obtenir 2 structures-supports latéraux avec deux paires de guides d'eau courts sortants pour chacun ;
- ces supports sont fixés entre eux par des bandes transversales de 100 cm de long, à l'aide de coins ;
- deux tuyaux perpendiculaires de 100 cm de long sont pré-attachés au tuyau transversal inférieur (pour obtenir un support en forme de lettre H) pour créer une stabilité pour l'ensemble de la structure ;
- un robinet d'alimentation en eau est connecté à un tuyau inférieur;
- percer des trous dans les tuyaux par incréments de 10 cm ;
- brancher le tuyau d'eau.
Le résultat devrait être un design similaire à la douche de Charcot. Sa configuration peut être modifiée à l'aide de formulaires plus simples. Le moyen le plus simple consiste à souder des tuyaux en PVC sous la forme de la lettre P (comme une barre horizontale de sport) et à faire des trous dans la barre transversale supérieure, d'où l'eau s'écoulera.

Si vous le souhaitez, une douche en tuyaux en plastique peut être construite fermée. Pour cela, un cadre est d'abord créé, qui est recouvert d'un film opaque dense ou d'un autre matériau non tissé. L'approvisionnement en eau dans une telle conception est généralement effectué à l'aide de la pompe dite toptun. Un récipient avec de l'eau est installé à côté et une connexion est établie à l'aide d'un tuyau.L'installation du réservoir supérieur n'est pas envisagée dans ce cas, car le support de tuyau en PVC ne supportera pas son poids.
L'intérieur de la cabane d'été
Une douche conçue pour les procédures d'eau en plein air est une structure en quatre parties :
- Un trou de drainage creusé profond et large d'un demi-mètre. Si vous faites un renfoncement dans le sol de haute qualité, en comptant sur une utilisation à long terme, vous devez le meubler avec des côtés en brique. La pose doit être effectuée en damier, car cela améliorera l'absorption de l'eau qui coule dans le sol;
- Dalle de sol, reposant sur le puisard et complétée par un drain d'égout ;
- Cabine de douche, composée de murs ne dépassant pas 2,2 mètres de haut. L'essentiel est que la cabine soit faite d'un matériau solide, ne se desserre pas et puisse supporter le poids d'un baril d'eau;
- Grand récipient rempli d'eau. Son volume doit être choisi en fonction du nombre de personnes souhaitant prendre une douche en une journée. Habituellement, une personne dépense environ 25 litres pour les procédures d'eau. Deux trous doivent être prévus dans ce baril - pour le remplissage avec de l'eau provenant d'une conduite d'eau ou d'un seau et pour l'installation d'un robinet avec une buse perforée à partir d'un arrosoir.
Toutes les parties répertoriées de la douche d'été peuvent être des matériaux improvisés. Par exemple, rien ne vous empêche d'assembler un stand à partir de tôles restantes de l'aménagement d'une clôture pour la maison. Les tuyaux peuvent devenir des supports pour cela.
Dans une douche d'été fabriquée à partir de matériaux improvisés, par rapport à une cabine achetée, il convient de noter les avantages suivants:
- faible coût des matériaux de construction;
- la possibilité de créer une douche au design et à la forme uniques, adaptée au paysage local ;
- une cabine de douche faite de certains matériaux (polycarbonate ou film) est facile à déplacer ou à nettoyer;
- assembler une douche maison ne nécessite pas de dessins complexes;
- construction consciencieuse, car vous devez utiliser la cabine vous-même.
Certes, la conception artisanale d'une douche d'été présente un inconvénient important: une grande perte de temps et d'efforts pour la construction.
Aménagement d'un drain pour une douche d'été
Le problème du drainage de l'eau peut être résolu de plusieurs manières, l'essentiel n'est pas de faire un marécage de votre propre jardin. Les drains peuvent être déviés vers un puits de filtration, d'où ils s'infiltreront progressivement dans le sol. Ou équiper le champ de filtration. La manière d'organiser un tel nettoyage dans les datchas est souvent la distribution d'eau par des canaux, par exemple entre les lits.
Les eaux usées de la douche peuvent être évacuées de manière ouverte ou fermée. Un système de drainage à ciel ouvert, également appelé fossé ordinaire, peut être réalisé si le sol est suffisamment résistant à l'humidité et que le débit d'eau est faible. Parfois, les parois du canal doivent être encore renforcées.
Options de drainage pour une douche champêtre
Lors de la construction de drains de vos propres mains, il est important de s'assurer que la pente du canal est de 0,5 à 1 centimètre / 1 mètre. Une sortie fermée ne diffère que par le fait que l'eau sort par des tuyaux creusés sous terre
Habituellement, un drain de type fermé est équipé si l'eau est acheminée vers une station d'épuration autonome.

















































