- Étapes de construction
- Description de vidéo
- Comment choisir le meilleur emplacement pour une fosse septique
- Préparation de la fosse
- Installation d'anneaux et de tuyaux d'égout
- Étanchéité et imperméabilisation
- Installation et remblai de regard
- Comment démarre la fosse septique
- Quelles règles doivent être respectées lors de l'entretien d'une fosse septique
- Le dispositif d'une fosse septique à partir d'anneaux en béton
- Comment fabriquer une fosse septique à partir d'anneaux en béton: instructions d'installation étape par étape
- Les fouilles
- Installation et connexion des anneaux
- Guide étape par étape pour la construction
- La première étape - les travaux de terrassement
- Renforcement des armatures et montage des coffrages
- Bétonnage des parois d'une fosse septique monolithique
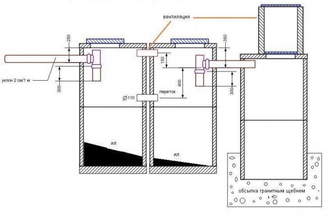
- Pose de plafond et de ventilation
- Fosse septique sans pompage (schéma de principe)
- Informations de base
- Postulat 1. Positionner correctement
- Postulat 2. Regardez le GWL
- Postulat 3. Calculer le volume de la fosse septique avec une marge
- Postulat 4. Embaucher des gens pour aménager la fosse
- Postulat 5. Commander des bagues avec livraison et installation
- Postulat 6. Utilisez uniquement des tuyaux rouges
- Postulat 7. Le champ de filtration occupe une grande surface
- Outils et matériaux nécessaires
- Cycle de travail et consommation de matière
- Nous calculons les matériaux
- Schémas d'égouts à partir d'anneaux en béton
- Nous fabriquons une fosse septique en béton de nos propres mains étape par étape
Étapes de construction
L'installation s'effectue dans l'ordre suivant :
- Un lieu est sélectionné, un schéma d'installation est construit et les paramètres de la fosse septique sont calculés.
- Un trou est creusé.
- Les anneaux sont installés, les tuyaux sont connectés.
- Des travaux d'étanchéité et d'imperméabilisation sont en cours.
- Les couvertures sont installées.
- Le remblayage est en cours.
Description de vidéo
L'ordre des travaux et l'installation d'une fosse septique à partir d'anneaux en béton sur la vidéo:
Comment choisir le meilleur emplacement pour une fosse septique
La structure est montée au-dessus du niveau de la nappe phréatique. Le meilleur emplacement est à la distance maximale de la maison (au moins 7 mètres, mais pas plus de 20, afin de ne pas augmenter le coût de construction du pipeline). Il est logique d'avoir une fosse septique en bordure du site, à côté de la route. Cela réduira les coûts d'exploitation, car le coût de sortie du camion-citerne aspirateur est affecté par l'accès au système et la longueur du tuyau. De plus, avec le bon emplacement, le camion d'égout n'a pas besoin de conduire dans la cour, mais les tuyaux ne tomberont pas dessus parterres ou allées (sinon, lorsque le tuyau est enroulé, des déchets risquent de tomber dans le jardin).
Préparation de la fosse
Le travail au sol à l'aide d'une excavatrice prend 2 à 3 heures. La taille de la fosse doit être légèrement supérieure aux dimensions des puits. Cela est nécessaire pour l'installation en douceur des anneaux et leur étanchéité. Le fond est recouvert de gravats et bétonné.
Entraînement fosse pour fosse septique à partir d'anneaux en bétonSource
Installation d'anneaux et de tuyaux d'égout
Les anneaux pour une fosse septique sont installés à l'aide d'un équipement de levage, ce qui permet de gagner beaucoup de temps (par rapport à une installation manuelle). La fixation des coutures est assurée avec du mortier de ciment, des attaches métalliques (supports, plaques) sont également placées.
Le moment crucial est le processus d'installation des anneaux
Étanchéité et imperméabilisation
Le scellement des joints de la fosse septique à partir d'anneaux en béton est effectué des deux côtés de la structure. Pour cela, des solutions de protection de ciment et de revêtement sont utilisées. À l'intérieur du puits, vous pouvez installer des cylindres en plastique prêts à l'emploi. Ces surcoûts rendront le système 100% hermétique.
Dans le processus imperméabilisation des anneaux en béton pour une fosse septique, les raccordements sont traités avec du verre liquide, du mastic à base de bitume ou polymère, mélange de béton. Pour éviter le gel (et la destruction) de la structure en hiver, il est recommandé de l'isoler avec une couche de mousse de polystyrène.
Sceller les joints et imperméabiliser une fosse septique à partir d'anneaux de béton
Installation et remblai de regard
Les puits sont recouverts de dalles de béton, avec des trous pour les regards. Dans les deux premiers puits, une ventilation est nécessaire pour éliminer le méthane (le gaz apparaît suite à l'activité vitale des bactéries anaérobies). Pour le remblayage des planchers installés, le sol excavé de la fosse est utilisé (remblai).
Remblayage des puits finis
Comment démarre la fosse septique
Pour que le système commence à fonctionner efficacement, la fosse septique érigée doit être saturée de microflore anaérobie. Le processus d'accumulation naturelle prend plusieurs mois, il est donc accéléré en saturant la fosse septique avec une microflore importée. Vous pouvez le faire de deux manières :
- Une nouvelle fosse septique est remplie d'eaux usées et défendue pendant 10 à 14 jours. Il est ensuite chargé avec les boues d'une fosse septique anaérobie existante (2 seaux par mètre cube).
- Vous pouvez acheter des bioactivateurs prêts à l'emploi (souches bactériennes) dans le magasin (l'essentiel ici est de ne pas les confondre avec des aérobies destinés à d'autres systèmes de traitement).
Fosse septique prête à fonctionner à partir des anneaux
Quelles règles doivent être respectées lors de l'entretien d'une fosse septique
Il existe des règles simples qui soutiennent la qualité du système.
- Nettoyage. Deux fois par an, en plus du nettoyage des drains, la fosse septique doit être inspectée et les canalisations nettoyées. Une fois tous les 5 ans (et de préférence tous les 2-3 ans), les graisses lourdes du fond sont nettoyées. Le volume de boues ne doit pas dépasser 25 % du volume de la cuve. Lors du nettoyage, une partie des boues est laissée pour restaurer la microflore.
- Qualité de travail. L'effluent à la sortie du système doit être épuré à 70 %. L'analyse des eaux usées en laboratoire déterminera l'indice d'acidité, ce qui vous permettra de connaître la qualité du système de drainage.
- Mesures de sécurité:
- Les travaux à l'intérieur de la fosse septique ne sont autorisés qu'après une ventilation renforcée et l'utilisation d'une ceinture de sécurité (les gaz formés à l'intérieur peuvent être dangereux pour la vie humaine).
- Des mesures de sécurité accrues sont nécessaires lors du travail avec des outils électriques (environnement humide).
Une fosse septique constituée d'anneaux en béton rend le logement privé plus autonome et, malgré ses lacunes, c'est l'une des options les plus fiables et les plus durables pour les installations de traitement de l'immobilier de banlieue.
Le dispositif d'une fosse septique à partir d'anneaux en béton
Lors de la première étape, il est nécessaire d'importer tous outil de préparation du matériel nécessaire. Pour commencer, nous avons besoin d'un récipient pour mélanger la solution. En conséquence, du sable, du grade de ciment m500 sera nécessaire. Pour la construction d'une base de drainage, il sera nécessaire d'apporter des galets et de la pierre concassée du volume requis. Vous devriez acheter de la mousse de montage, des tuyaux d'égout, des transitions et des raccords.
Une fois que tout est prêt, vous devriez commencer à marquer. Et afin de déterminer le lieu d'installation d'un puits, nous connaissons toutes les conditions nécessaires.Ainsi, après avoir décidé de l'endroit, ils font des marquages, après quoi ils appellent une excavatrice ou font le travail à la main. Cela dépend de vos capacités financières, ainsi que de votre accès au lieu de travail pour un équipement spécial.
La période de travail recommandée est la fin de l'automne, lorsque les gelées se sont déjà installées, ou une saison chaude. À ce stade, les eaux souterraines sont à leur point le plus bas. Bien sûr, il est recommandé de travailler avec un équipement spécial, car une bonne étanchéité implique non seulement de remplir les joints de l'intérieur des anneaux de puits, mais également de l'extérieur.
Auparavant, nous considérions que fosse de drainage consistera en deux réservoirs, et donc, pour que le deuxième réservoir absorbe le volume maximum, il est nécessaire de l'approfondir d'environ 50 cm
Conformément à toutes les réglementations de construction, il est important qu'il y ait au moins 50 cm d'espace entre deux réservoirs séparés. Idéalement, deux trous différents devraient être creusés séparément pour chaque réservoir. Même si vous creusez avec un équipement spécial, finissez le travail, le fond de la tranchée doit être nivelé avec une pelle, en faisant une pente d'environ 2-3 cm par mètre linéaire
Même si vous creusez avec un équipement spécial, finissez le travail, le fond de la tranchée doit être nivelé avec une pelle, en faisant une pente d'environ 2-3 cm par mètre linéaire.
Sur la base de la tranchée excavée, dans laquelle se trouvera le tuyau, fournissant les eaux usées au premier réservoir, il est nécessaire de verser du sable, qui doit également être percuté. Vous devez préparer une solution à l'avance, qui doit contenir 1 seau de ciment et 3 seaux de sable. Autrement dit, nous faisons une solution de un à trois. L'idéal serait de creuser la base pour la pose des futurs réservoirs vidangez l'eau à l'avance, puis tassez le sable et renversez-le avec de l'eau afin qu'il soit compacté au maximum.
Comment fabriquer une fosse septique à partir d'anneaux en béton: instructions d'installation étape par étape
Outre les calculs, les travaux préparatoires comprennent également le choix de l'emplacement et la prise en compte des caractéristiques naturelles.
une cascade en béton pour protéger de l'humidité atmosphérique et assurer le mouvement gravitaire des eaux usées à l'intérieur du système de traitement ne doit pas être située dans une dépression de décharge ;
il doit y avoir au moins 5 m entre le dispositif de nettoyage et la fondation ;
distance aux sources d'eau potable souterraines - 50 m, et aux réservoirs et ruisseaux - 30 m;
si la canalisation d'alimentation a une longueur supérieure à 10 m, un trou d'homme doit être installé dessus;
avec un GWL élevé et un sol peu perméable, le puits de filtration doit être remplacé par l'un des types de champs de filtration ou un réservoir de stockage ;
il est important de tenir compte de la possibilité d'un accès par camion d'égout;
les pipelines doivent fonctionner en dessous de zéro température au sol.
Après avoir choisi un site pour le montage des conteneurs, vous pouvez commencer à acheter du matériel et à préparer tous les outils :

Le dispositif d'une fosse septique à partir de deux réservoirs: schéma
- Tout d'abord, des anneaux en béton armé seront nécessaires. Pour le puisard et la cuve de traitement biologique, le premier élément peut être acheté avec un fond existant, ou le couler soi-même lors de l'installation. Des dalles de sol sont également nécessaires à partir de produits en béton armé.
- Vous devez acheter des trappes en fonte ou en plastique pour un montant égal au nombre de réservoirs.
- Tuyaux pour la ventilation et la connexion des chambres entre elles et avec les eaux usées domestiques et leurs raccords.
- Sable pour niveler les tranchées pour les tuyaux.
- Pierre concassée pour puits de filtration.
- Imperméabilisation des joints entre anneaux, par exemple bitume.
- Ruberoid pour l'étanchéité externe des réservoirs.
- Ciment, verre liquide.
- Dispositifs pour couper et raccorder des tuyaux en polyéthylène.
- Pelle.
- Truelle et pinceau.
Il est également important de s'entendre sur la location de matériel de levage et d'excavation. Vous pouvez préparer la fosse manuellement, mais cela prendra beaucoup plus de temps.
Les fouilles
Avant de creuser, le balisage est généralement effectué :
- un piquet est placé au centre de la fosse proposée ;
- une ficelle y est attachée;
- un deuxième piquet est attaché à l'extrémité libre de la corde à une distance égale au rayon extérieur de l'anneau en béton, plus 20 à 30 cm supplémentaires;
- le système résultant dessine les contours de la fosse.
Ceci est fait pour chaque réservoir. La profondeur de la fosse doit être légèrement supérieure à la hauteur totale des anneaux, car il faut tenir compte de la préparation du fond. Le fond est nivelé au niveau de la construction et percuté. Ensuite, une base en béton est coulée, si les anneaux avec un fond vide ne sont pas achetés.
Pour un puits de filtration, une base en ciment n'est pas nécessaire, à la place, un filtre en pierre concassée est coulé.
Au stade du creusement d'une fosse, des tranchées sont préparées pour la canalisation d'entrée et les tuyaux reliant les réservoirs, sans oublier une pente de 5 mm par mètre linéaire. Le fond des fossés est recouvert d'une couche de sable de 10 mm.
Vous pouvez maintenant passer directement aux travaux d'installation.
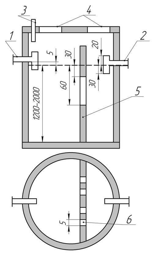
Installation et connexion des anneaux
- À l'aide d'une grue, les anneaux sont libérés strictement les uns sur les autres, en traitant les joints entre eux avec un mélange de verre liquide et de ciment.
- De l'intérieur du réservoir, les coutures sont en outre recouvertes de bitume pour l'imperméabilisation et reliées pour la résistance structurelle avec des supports métalliques.
- Résumé de la canalisation d'égout externe.
- Des trous sont pratiqués dans les parois des réservoirs de travail pour les tuyaux d'entrée et de raccordement. La jonction des réservoirs 1 et 2 doit être 0,3 m plus haute qu'entre les chambres 2 et 3.
- Les raccords sont installés dans les trous.
- Un tuyau de ventilation est monté sur le premier réservoir.
- Poser les tuyaux de raccordement.
- Amarrez les réservoirs avec tous les tuyaux. Tous les joints sont traités avec un scellant, par exemple du verre liquide.
- Couvrir l'extérieur de tous les conteneurs avec un matériau de toiture.
- Si nécessaire, un compresseur est libéré dans le deuxième réservoir et des boues activées sont chargées.
- Installez les plafonds et les trappes.
- Couvrir d'isolant et de remblai.
L'appareil est prêt à l'emploi. Les fosses septiques les plus simples peuvent entrer en mode de fonctionnement dans les six mois. Cette procédure est accélérée en ajoutant des bactéries spéciales dans les conteneurs. Son bon fonctionnement dépend d'un entretien régulier.
Guide étape par étape pour la construction
Après avoir effectué les calculs nécessaires et décidé de la taille et de l'emplacement de la structure, nous commençons à construire une fosse septique en béton de nos propres mains. Prenons un exemple de construction d'une structure à deux chambres.
La première étape - les travaux de terrassement
Un dispositif indépendant d'une fosse septique en béton commence par des travaux de terrassement. Ils sont fabriqués à la main ou à l'aide de machines. Dans la deuxième option, le processus sera plus rapide, surtout sur un terrain lourd, mais vous devrez prévoir un accès de transport.
Les parois de la fosse excavée doivent être extrêmement régulières. La solidité de la structure en dépend. A ce stade, il est nécessaire de creuser des tranchées de chez moi à fosse septique et de la fosse septique au système de drainage. Poser les tuyaux et remplir. La profondeur de leur pose doit être suffisante pour que le système ne gèle pas. Sinon, vous devrez prendre soin de l'isolation du pipeline.

La pose des tuyaux dans les tranchées doit être effectuée avant le coulage des murs
Renforcement des armatures et montage des coffrages
Pour empêcher les eaux usées non traitées de pénétrer dans le sol, les parois de l'excavation sont recouvertes d'un matériau d'étanchéité. Son bord doit dépasser des parois de la fosse.

Pour empêcher la pénétration d'eaux usées non traitées dans le sol, un matériau d'imperméabilisation est posé autour du périmètre de la fosse
Ensuite, l'armature est attachée. Pour cela, des tiges spéciales ou des produits métalliques longs de forme cylindrique sont utilisés, ayant une résistance à la flexion suffisante. Pour un conteneur étanche, le fond de la fosse est recouvert de 20 centimètres de sable, compacté et coulé avec du béton. Ensuite, vous devez le laisser sécher pendant quelques jours.

L'utilisation de renfort augmente la résistance des murs et la durabilité de la fosse septique
Le coffrage d'une fosse septique est construit à partir de matériaux improvisés. Toutes les planches en pouces ou les feuilles OSB feront l'affaire.
Avec un matériau insuffisant, des coffrages glissants peuvent être érigés. Autrement dit, installez des planches pour la construction de la moitié de la fosse septique et, une fois le béton durci, retirez-le et utilisez-le pour remplir le reste de la structure.

Pour séparer les chambres, il est nécessaire d'insérer un coffrage double face. Au même stade, un trou est découpé et le tuyau est attaché
Pour la cloison de la fosse septique, un coffrage double face est installé dans lequel le tuyau de trop-plein est inséré. Des barres longitudinales en bois massif à l'intérieur du coffrage renforceront ses parois et ne permettront pas à la structure de s'effondrer sous l'action de la masse de béton.
Bétonnage des parois d'une fosse septique monolithique
Après avoir installé et fixé le coffrage, ils commencent à mélanger le béton. Le rapport sable/ciment dans notre cas est de 1:3. La pierre concassée fine est utilisée comme charge.Si le pétrissage est effectué manuellement, la solution est préparée par portions et versée. Il est nécessaire de s'assurer que des vides ne se forment pas dans les parois de la fosse septique. Cela réduit la résistance de la structure.

Le coffrage n'est retiré qu'après le durcissement complet du béton.
Une fois le travail terminé, vous devez attendre quelques semaines jusqu'à ce que la solution se solidifie complètement. Seulement après ça le coffrage peut être enlevé. L'imperméabilisation interne d'une fosse septique en béton n'est pas réalisée du fait que sous l'action de l'humidité, la résistance du béton augmente. L'essentiel est qu'il n'y ait pas de fissures dans les murs de la structure.
Pose de plafond et de ventilation
Au-dessus de la fosse septique en béton, des coins métalliques sont posés et, au-dessus, un plafond en ardoise plate ou en planches. À ce stade, un tuyau de ventilation est inséré dans la fosse septique en béton.

L'installation de coins métalliques donnera au sol une résistance supplémentaire

Lors de la construction du plafond, n'oubliez pas d'insérer le tuyau de ventilation. Il doit s'élever au-dessus de la fosse septique d'au moins 2 mètres
Un trou est également laissé pour la possibilité de nettoyer la fosse septique. Le trou résultant est protégé par des planches montées sur le bord. Le sommet de la structure est renforcé avec un matériau improvisé et coulé avec du mortier.

Pour la résistance structurelle, assurez-vous d'utiliser un renfort lors du coulage du béton sur la fosse septique
Une fois le béton durci, une boîte de coins est installée sur la trappe de commande. Les côtés de la boîte sont recouverts de briques et le dessus est fermé par une planche.
Le chevauchement de la fosse septique est recouvert d'argile expansée et de terre, et la trappe est fermée avec un matériau de toiture.

Un cadre pour la trappe de commande est fabriqué à partir de coins métalliques

La trappe de contrôle autour du périmètre est posée avec des briques et recouverte d'une planche d'en haut

Le haut de la fosse septique est isolé avec de l'argile expansée et la trappe est fermée avec un matériau de toiture
Fosse septique sans pompage (schéma de principe)
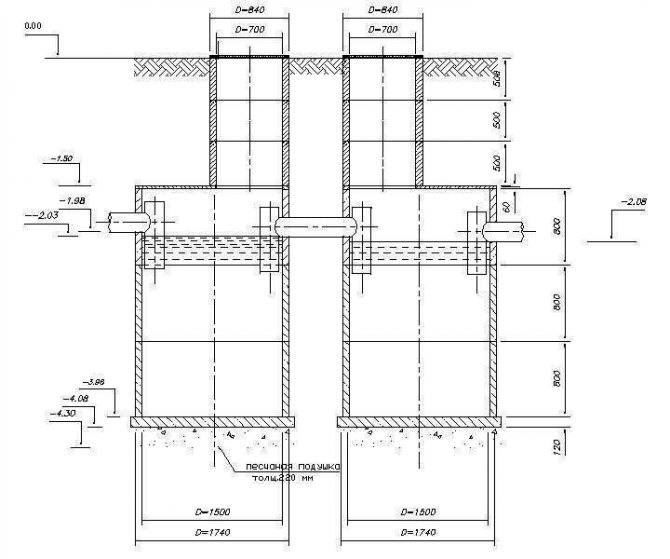
Comme tout chantier, la création d'un système d'assainissement autonome doit commencer par la préparation d'un projet. Le schéma doit afficher, en effet, la capacité de la fosse septique, faite faites-le vous-même à partir de briques ou anneaux de béton. Il peut être à deux ou trois chambres. Cette dernière option, comme le montre la pratique, est plus efficace.
Un exemple de projet compilé est présenté dans la figure.
Plan-schéma (dessin) des eaux usées autonomes
Désignations sur le projet :
- a - un tuyau auquel sont raccordés des toilettes et d'autres drains de la maison;
- b - la capacité d'une fosse septique à deux chambres;
- c - un couvercle qui ferme la trappe à travers laquelle les conteneurs sont nettoyés ;
- d - tuyau de trop-plein (fabriqué à partir de deux mètres ou plus de long);
- e est la profondeur du champ de filtration (de 1,5 à 2 m) ;
- f est l'épaisseur du tampon filtrant (biofiltre) à partir de 0,5 m ;
- g- tuyaux de ventilation ;
- h - drainer les champs de filtration (drainage superficiel) d'une longueur de 5 à 20 m ;
- j - fond avec sédiments accumulés.
Informations de base
Postulat 1. Positionner correctement
Place pour une fosse septique choisissez sur la plateforme la plus haute du site. Cela est nécessaire pour que les égouts pluviaux ne s'y déversent pas.

Pour le placement de la fosse septique, voir SP 32.13330.2012, les distances à celle-ci doivent être les suivantes :
- de la maison - 5 m;
- du réservoir - 30 m;
- de la rivière - 10 m;
- du puits - 50 m;
- de la route - 5 m;
- de la clôture - 3 m;
- du puits - 25 m;
- des arbres - 3 m
Postulat 2. Regardez le GWL
Si le niveau de la nappe phréatique (GWL) est élevé, c'est-à-dire l'eau s'accumule déjà dans la fosse à une profondeur de 1 à 1,5 m, alors c'est une raison de penser à choisir une conception différente de la fosse septique, éventuellement un puisard en plastique ou stations d'épuration biologique. Nous avons discuté en détail des options VOC prêtes à l'emploi dans cet article.
Si vous vous êtes fermement installé sur les puits, vous devez attendre que le GWL soit plus bas. Par exemple, été ou hiver. Cela simplifiera le développement de la fosse et la construction de puits: vous ne vous tiendrez pas jusqu'aux genoux dans l'eau et pourrez bétonner le fond normalement et rendre étanches les joints entre les anneaux.
Postulat 3. Calculer le volume de la fosse septique avec une marge
Calculez soigneusement le volume de la fosse septique. Veuillez noter que la règle selon SP 32.13330.2012, dans laquelle le volume doit être supérieur à 3 fois le volume d'eaux usées rejetées dans les égouts par jour, n'est valable que sur les sols sableux et à faible GWL. Les règles supposent qu'une personne par jour rejettera 200 litres d'eaux usées. Et cela signifie que dans ce cas, vous avez besoin d'une fosse septique d'un volume de 600 litres.
Dans d'autres cas, plus le sol est drainé, plus le volume de la fosse septique est important. Il existe une règle de travail: pour une famille de 4-5 personnes avec résidence permanente, selon le sol, la fosse septique sera de 30 m³ - sur argile, 25 m³ - sur limon, 20 m³ - sur limon sableux, 15 m³ - sur le sable.
| Nombre de personnes | Volume de la fosse septique, m³ (valeurs de travail) | |||
|---|---|---|---|---|
| Le sable | loam sableux | Terreau | Argile | |
| 1 | 4 | 7 | 10 | 15 |
| 2 | 7 | 12 | 17 | 22 |
| 3 | 10 | 15 | 20 | 25 |
| 4 | 15 | 20 | 25 | 30 |
| 5 | 15 | 20 | 25 | 30 |
| 6 | 17 | 23 | 27 | 35 |
| 7 | 20 | 25 | 30 | 35 |
Il faut faire varier le volume de la fosse septique non pas par la profondeur des puits, mais par le diamètre des anneaux. Ceux. si vous avez le choix entre des anneaux d'un diamètre de 1,5 m et d'une hauteur de 0,9 m, ou d'un diamètre de 1 m et d'une hauteur de 0,9 m, alors il vaut mieux prendre les premiers. Ils auront besoin d'une plus petite quantité pour obtenir le volume désiré. Cela signifie qu'une fosse moins profonde est nécessaire, il y aura moins de joints dans les puits.
Postulat 4. Embaucher des gens pour aménager la fosse
Si vous n'êtes pas un jeune homme de 20 ans et que vous n'avez pas quelques-uns des mêmes assistants prêts à travailler pour le barbecue et la bière, confiez tous les travaux de terrassement à des ouvriers embauchés ou engagez une excavatrice.

La fosse doit être plus grande que le volume de la station d'épuration, c'est-à-dire la distance entre les puits et les parois de la fosse est de 30 à 50 cm.Par la suite, ce volume doit être recouvert d'un mélange sable-gravier (SGM) ou de sable.
Postulat 5. Commander des bagues avec livraison et installation
Ne commandez les anneaux qu'une fois la fosse de fondation prête. Immédiatement avec l'installation, c'est-à-dire un camion avec une grue-manipulateur devrait arriver.
Tous les anneaux inférieurs doivent être enfoncés. Ils sont fabriqués en usine - pratiques et fiables. L'exception concerne les puits filtrants, qui sont réalisés sur des sols bien drainés. Mais sur terre battue en aucun cas NE FAIS PAS ÇA comme l'image ci-dessous!

Au bout de 1 à 2 ans, le fond du puits filtrant s'envase et ne laisse pas passer le ruissellement, il faut faire appel à un camion de vidange pour nettoyer le puits, mais cela ne donne pas d'effet à long terme.
Postulat 6. Utilisez uniquement des tuyaux rouges
Les tuyaux sont uniquement rouges, d'un diamètre de 110 mm, pour les eaux usées externes. Ils doivent être isolés uniquement s'ils sont à l'air libre dans une zone. Tout ce qui se trouve dans le sol n'a pas besoin d'être isolé.

les Rousses tuyaux spécialement conçus pour les égouts extérieurs. Ils sont multicouches, résistent à la pression du sol. Les tuyaux gris sont conçus pour le travail à l'intérieur de la maison, ils sont monocouches et le sol les écrasera simplement.
Les tuyaux sont posés dans des tranchées sur un coussin de sable compacté avec une pente de 2 cm par 1 m. Évitez les virages à 90 degrés, maximum - 45. Dessus et côtés verser une couche d'ASG ou de pierre concassée de 30 cm d'épaisseur.
Postulat 7. Le champ de filtration occupe une grande surface
Le champ de filtration est nécessaire à un GWL élevé, à un faible, vous pouvez vous débrouiller avec un puits filtrant. En moyenne, attendez-vous à ce que pour 1 personne la superficie du champ de drainage soit d'au moins 10 m².

Il convient de faire un puits de filtration sur des sols bien drainés : sable et limon sableux. Sur l'argile et le limon, des zones beaucoup plus grandes sont nécessaires à partir desquelles le drainage sera effectué. Des champs de filtration souterrains permettent de le faire.
Les tuyaux du champ de filtration doivent être posés avec une pente de 1 cm sur 1 m, afin que les drains traités aient le temps de s'infiltrer à travers les trous dans la couche de pierre concassée.
Outils et matériaux nécessaires
Pour installer une fosse septique en béton de vos propres mains, vous aurez besoin des matériaux suivants:
- PGS (2,5 tonnes).
- Ciment (18 sacs de 50 kg).
- Bitume liquide (20 kg).
- Coin en fer 40 x 40 (25 m).
- Tôle de fer 2 mm d'épaisseur 1.250 x 2.0 m (1 pc.).
- Feuilles de contreplaqué 1,5 X 1,5 m (8 feuilles).
- Ardoise plate 1500x1000x6 (6 l).
- Film de polyéthylène (deux à trois coupes d'une surface totale de 13 x 9).
- Planches 40 x 100 mm.
- Plastifiant (selon le type, pour 5,9 mètres cubes de béton).
- Fil machine d'une section de 0,6 mm (le métrage dépend de la densité de maille).
- Barres 50 x 50 mm.
- Briques (120 pièces).
- Tuyaux pour assainissement externe (individuellement, en fonction de la distance).
- Tuyaux pour les égouts internes (individuellement, selon la conception).
- Tuyaux de dérivation (individuellement, dépend de la conception).
- Raccords (selon le nombre de raccords de tuyauterie).
- Scellant (1 pièce).
- Vis (300 pièces).
- Disque à tronçonner pour le métal (1 pc.).
- Accessoire de meulage pour meuleuses d'angle (1 pc.).
Pour le montage fosse septique en béton Vous aurez besoin des outils et équipements suivants :
Galerie d'images
Photo de
Une bétonnière accélérera considérablement le processus de préparation et de versement de la solution lors de la construction d'une fosse septique monolithique. Avec son aide, tout le volume du coffrage peut être coulé en une journée
Une pelle à baïonnette est nécessaire pour niveler les parois de la fosse. Le ramasseur est utilisé pour enlever l'excès de sol
Une meuleuse d'angle sera nécessaire pour couper les coins en fer, le fer pour les trappes et le meulage. Des lunettes de protection doivent être portées lors de l'utilisation de cet outil.
Il sera nécessaire pour assembler le coffrage. Il est préférable de fixer le coffrage pour couler le béton sur des vis autotaraudeuses, car il sera plus rapide et plus facile de démonter cette structure
Le niveau du bâtiment est constamment nécessaire pour contrôler l'horizontalité et la verticalité des éléments individuels et de la structure dans son ensemble, il est nécessaire de niveler la surface des murs et le fond de la fosse. La longueur optimale pour l'excavation est de 100 à 200 cm
L'équerre est nécessaire pour marquer la fosse. Il aide également à corriger l'angle des murs. Également nécessaire lors du sciage de contreplaqué pour le coffrage
Un niveau laser est utile à toutes les étapes de l'installation d'une fosse septique en béton. En l'absence d'un appareil coûteux, il peut être remplacé par un ruban à mesurer et un fil à plomb, nécessaires pour déterminer les limites et la profondeur de la fosse, du coffrage et de l'étage supérieur
Utile pour le transport de matériaux de construction lourds tels que les briques, le ciment et les ASG. Il sert également à transporter la terre extraite de la fosse
Équipement de mélange de solution
Outils à main pour la production d'œuvres
machine de découpe de broyeur
Perceuse et tournevis pour montage de coffrage
Outil de marquage
Outil de mise à l'échelle laser
Brouette pour le transport de marchandises diverses
Tous les calculs de matériaux sont effectués pour une fosse septique en béton monolithique de dimensions : largeur - 2 m, longueur - 3 m, profondeur - 2,30 m.
C'est intéressant : Fosse septique pour une résidence d'été sans pompage ni odeur mains - travaux de construction
Cycle de travail et consommation de matière
Le tuyau d'égout partant de la datcha doit être isolé thermiquement et posé à une profondeur d'un demi-mètre (selon le degré de gel du sol). Sa pente est de 1,5 à 2 cm par mètre linéaire (de préférence 3 cm), une révision est prévue tous les 15 m. Il est isolé, généralement avec du polystyrène expansé, il est également possible de poser un câble chauffant, qui est relié au gel. Le niveau final du tuyau de sortie sera la hauteur de l'entrée dans le premier réservoir.
Le fond de la chambre est à un niveau non inférieur à 3,5 m - c'est la longueur de la pompe de la machine d'égout.
Nous calculons les matériaux
Le volume d'un anneau en béton armé de 1 m de diamètre est de 0,7 m3 ;
1,5 m - 1,59 m3 ;
2 m - 2,83 m3.
Pour une fosse septique typique en béton armé à deux chambres, deux anneaux d'un mètre et demi ou quatre anneaux d'un mètre suffiront.
Dans le cas d'une production indépendante d'un moulage pour une conception similaire, environ 400 kg de ciment Portland, 600 kg de sable tamisé, 200 litres d'eau, ainsi que des barres d'armature, des planches de coffrage et un film plastique seront nécessaires.
Schémas d'égouts à partir d'anneaux en béton
L'assainissement des anneaux de béton se fait selon différents schémas. Le type spécifique dépend de la saisonnalité de la résidence, de l'intensité de l'exploitation, des possibilités financières d'achat d'équipements supplémentaires et du paiement des frais d'exploitation.
Les options suivantes peuvent être distinguées :
- Septique de stockage. Derrière ce nom se cache un cloaque ordinaire avec un fond et des parois étanches.L'étanchéité est une exigence impérative dont le non-respect, selon le code administratif de la Fédération de Russie, est considéré comme un dommage au sol. Lorsque les drains remplissent le réservoir, ils appellent un camion d'égout.

Une fosse septique de stockage est simplement un récipient dans lequel les eaux usées sont collectées.
Plus la capacité est petite et plus l'intensité de fonctionnement des points connectés à l'égout est élevée, plus vous devez souvent appeler la voiture. C'est souvent ainsi qu'ils organisent les eaux usées du pays à partir d'anneaux en béton.
- Fosse septique anaérobie. Fosses septiques à deux chambres, moins souvent à chambre unique, dans des conteneurs scellés dont les eaux usées sont nettoyées par des bactéries anaérobies (sans oxygène). Le nombre de chambres et leur volume sont choisis de manière à ce que les drains à la sortie de la fosse septique soient nettoyés à 65-75%. Le post-traitement s'effectue dans des puits de filtration (« sans fond »), des tranchées ou des champs à bactéries aérobies (on parle alors de « traitement biologique »). Ce n'est qu'alors que l'effluent peut être rejeté dans le sol. Le schéma est très populaire parmi les propriétaires de maisons de campagne et de chalets en raison de la simplicité de l'appareil et de l'indépendance énergétique. L'inconvénient du système est qu'il est nécessaire de changer périodiquement le sable et le gravier dans les installations de filtrage, alors qu'elles doivent être ouvertes, et que le matériel utilisé doit être éliminé (bien que cela soit fait rarement).

Schéma d'une fosse septique anaérobie à partir d'anneaux en béton armé
- Fosses septiques aérobies et stations d'épuration biologique. Il existe également une phase d'accumulation primaire et de traitement partiel des matières fécales à l'aide de bactéries anaérobies. Le principe de fonctionnement consiste à clarifier les eaux usées en l'absence d'oxygène, et à les post-traiter dans la dernière chambre avec des bactéries aérobies dans des conditions d'injection d'air forcé. La pureté des eaux usées à la sortie est considérée comme étant de 95 à 98 % et elles peuvent être rejetées dans le sol ou utilisées pour l'irrigation.L'inconvénient est que les bactéries aérobies meurent si le compresseur d'alimentation en air ne fonctionne pas. Et cela se produit avec un mauvais réseau en raison de pannes de courant.

Le principe de fonctionnement des fosses septiques aérobies - l'électricité est nécessaire pour le fonctionnement
Nous fabriquons une fosse septique en béton de nos propres mains étape par étape
Considérez la séquence de fabrication d'une fosse septique en béton de vos propres mains.
À l'endroit sélectionné, une fosse du volume requis est creusée:

Si le sol est argileux, vous pouvez vous passer de coffrage extérieur autour du périmètre, mais simplement poser un film pour empêcher l'eau de sortir du béton. Si le sol est sablonneux et que les parois de la fosse s'effondrent, vous devrez alors mettre en place le coffrage extérieur à partir des planches.
Vous aurez également besoin de raccords, pour lesquels vous pouvez emporter n'importe quel déchet de fer approprié: coupes de tuyaux, angles, raccords, etc. Si rien n'a été trouvé dans la cour, il n'est pas nécessaire de dépenser de l'argent pour de nouveaux raccords, vous pouvez acheter au poids au point de collecte de la ferraille...
Nous avons donc posé un film autour du périmètre de la fosse et installé des renforts :

Nous connectons les raccords avec un fil à tricoter spécial, et non par soudage.
À partir de tous matériaux improvisés (planches, contreplaqué, OSB, aggloméré, ardoise plate, vieilles portes, etc., etc.), nous posons le coffrage :


Si la cloison décidait néanmoins de couler également du béton, nous posions immédiatement dans le coffrage de la cloison des tuyaux pour l'air et le trop-plein, et dans les parois latérales - pour l'entrée et la sortie des égouts:

Nous plaçons des entretoises entre les parois opposées du coffrage et coulons du béton dans le coffrage jusqu'au sommet.
Important! Lors du coulage du béton, il doit être baïonné - enfoncé avec un pied de biche ou un bâton en bois d'une section appropriée, par exemple un manche de pelle, une barre, etc.Il est nécessaire de bétonner à la baïonnette pour qu'il n'y ait pas de coquilles contenant de l'air, ce qui rend le mur lâche, poreux, à cause duquel il peut s'effondrer ... eh bien, ou il laissera simplement passer l'eau
Il est nécessaire de bétonner à la baïonnette pour qu'il n'y ait pas de coquilles contenant de l'air, ce qui rend le mur lâche, poreux, à cause duquel il peut s'effondrer ... eh bien, ou il laissera simplement passer l'eau.
Au moins deux semaines, votre fosse septique en béton doit tenir dans le coffrage. À ce moment, nous versons de l'eau sur les parties exposées du béton pour l'empêcher de se dessécher et, par conséquent, de se fissurer.
Au bout de deux semaines, nous retirons le coffrage en continuant à couler le béton pendant une autre semaine, vous pouvez le recouvrir d'un film:

En même temps, on bétonne le fond.
Si vous avez des murs poreux :

- c'est mauvais, comme déjà mentionné ci-dessus! Répare le! Comment? Eh bien, faites-le au moins bien. (Bien que je suppose que vous lisez cet article avant de commencer à fabriquer une fosse septique de vos propres mains, ne permettez donc pas un travail de mauvaise qualité.)
Après tout ce qui précède ci-dessus nous faisons une couverture pour une fosse septique. Nous utilisons tous les moyens improvisés. Sur la photo, le cadre est soudé depuis le coin:

Des tôles d'acier peuvent être posées sur le dessus :

Et en plus, renforcez et coulez le béton, après avoir préalablement aménagé les coffrages pour les trappes et installé un tuyau de ventilation:

Mais nous avons réussi sans soudure, en utilisant tout le fer approprié qui était disponible sur le site : tuyaux, pièces de renfort, coins et dos d'un lit de fer (mais pas de treillis - il a des cellules trop petites, la solution ne passe presque pas à travers eux, et ceux-là mêmes les pores à éviter !). Ils ont posé tout cela à travers la fosse et l'ont attaché avec du fil d'acier (pas de cuivre ni d'aluminium !).D'en bas, à la cage de renforcement résultante, nous avons attaché de vieilles portes, vous pouvez assembler des boucliers à partir de planches inutiles. Il est clair que nous avons laissé les portes en dessous pour toujours, et le bouclier de planches peut alors être démonté et les planches retirées par la trappe. Il doit y avoir des espaces entre les armatures et les panneaux de coffrage afin que le béton recouvre l'armature de tous les côtés ; les vides sont réalisés en posant des pierres, des morceaux de briques (rouges), des tuiles, etc.
La taille des écoutilles n'est réglementée par aucune norme, à l'exception de celles qui vous permettront à l'avenir, si nécessaire, d'y monter.
Les trappes s'élèvent au-dessus du niveau du sol maçonnerie de la brique rouge ou, si vous le souhaitez, le coffrage peut être fabriqué et coulé à partir de béton :

En conséquence, nous obtenons quelque chose comme ceci :

Nous faisons la hauteur des trappes en tenant compte de la probabilité d'élever le niveau du sol (peut-être voulez-vous apporter de la terre noire sur le site, ou vous bétonnerez la zone autour, ou vous voulez disposer un parterre de fleurs sur le dessus, ou simplement verser de la terre pour isoler la fosse septique ... ou tout cela ensemble).
C'est ainsi qu'il est assez facile de fabriquer une fosse septique en béton de vos propres mains.
fosse septique en béton à faire soi-même















































