- Vérification de l'état du système
- Installation d'installation de cadre
- Comment installer un bidet de vos propres mains. Vidéo
- Contenu similaire
- La gamme d'installations Geberit
- Choisir et acheter une cuvette de toilette avec installation
- Les installations sont de deux types.
- Installation d'un bidet au sol
- Fixation bidet
- Raccordement d'un bidet à l'alimentation en eau
- Raccordement d'un bidet à l'égout
- Caractéristiques de l'installation d'un dispositif de suspension
Vérification de l'état du système
Lorsque toutes les activités d'installation sont terminées et que les éléments d'installation sont connectés aux communications principales, vous devez vous assurer qu'il n'y a pas de dysfonctionnement dans le système. Pour ce faire, tournez d'abord la vanne du robinet d'eau et surveillez le débit d'eau dans le réservoir.

Dès que le réservoir est plein, appuyez sur le bouton de vidange et répétez cette action plusieurs fois. Ensuite, examinez attentivement toutes les parties du système.
Si la conception fonctionne correctement et que l'eau ne suinte pas des tuyaux et des pièces de raccordement, passez à la finition décorative. L'humidité ou les gouttelettes d'eau détectées indiquent clairement un problème qui doit être corrigé avant que le revêtement puisse commencer.
Les causes les plus fréquentes de pannes :
De l'eau fuit du réservoir - peut-être que les joints n'ont pas été installés clairement ou déplacés lors de l'installation.Il est nécessaire de couper l'alimentation en eau, de dévisser les boulons de raccordement, de vérifier l'emplacement des joints et de les corriger ou de les remplacer si nécessaire.
La cuvette des toilettes vacille - vous devez regarder les fixations des toilettes elles-mêmes et les éléments de raccordement de l'installation, puis les serrer doucement pour que la position de la plomberie soit clairement fixée
Il est conseillé d'agir avec beaucoup de prudence, sinon on risque de dénuder les filets des attaches de renfort voire de fendre la céramique.
L'eau stagne dans les toilettes - une indication claire de l'emplacement incorrect du tuyau de vidange. Pour résoudre le problème, la plomberie devra être démontée, le drain doit être installé strictement à 45 degrés, et alors seulement les toilettes devront être retournées.
Humidité sur le sol et autour de la base des toilettes - le plus souvent, ce phénomène est associé à une mauvaise étanchéité de l'ondulation de raccordement
Pour éliminer les fuites, il suffit de recouvrir les joints bout à bout d'une autre couche de mastic et de bien laisser sécher.
Tous ces problèmes ne sont pas très difficiles et peuvent être facilement résolus de vos propres mains à la maison. Si le propriétaire n'a pas le désir et le temps de faire des réparations, vous pouvez faire appel à un plombier professionnel, et il réglera rapidement les problèmes survenus.
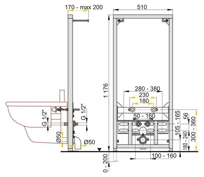
Installation d'installation de cadre
charpente
L'installation du cadre d'installation de la cuvette des toilettes s'effectue conformément aux instructions étape par étape:
- Le cadre est fixé au moins en quatre points avec des chevilles. Tout d'abord, des trous sont percés sous les attaches de diamètre légèrement inférieur à celui de la cheville elle-même, puis, en changeant de foret, ils l'agrandissent aux dimensions correspondant au diamètre de la cheville. Ensuite, le trou se révélera être le diamètre souhaité avec des bords lisses.
- Fixez la partie inférieure de la structure.Ensuite, après avoir vérifié la planéité de l'installation avec un niveau, fixez la partie supérieure. Les ancres et les supports sont utilisés comme attaches. Les écrous sont serrés avec des clés à fourche.
- Le coude à 90 degrés est fixé avec un collier de serrage en plastique. Lors de la connexion d'éléments tubulaires, un mastic silicone est utilisé.
- Connectez le tuyau d'eau au réservoir des toilettes. Le point d'alimentation en eau peut être situé sur le côté ou sur le dessus. Il vaut mieux ne pas utiliser de tuyaux flexibles - ils sont de courte durée. La préférence doit être donnée aux tuyaux en polymère ou aux connecteurs à soufflet en acier inoxydable.
- Après avoir installé les tuyaux, vérifiez l'étanchéité du système.
- Une fois l'installation du cadre terminée, les ouvertures des tuyaux, le réservoir de vidange et les goujons de montage sont fermés avec des bouchons.
- Le mur est recouvert de plaques de plâtre résistantes à l'humidité. Le profilé pour cloison sèche est fixé à l'installation et au mur.
- Installez le carreau après avoir découpé les trous nécessaires pour les tuyaux et les goujons. Suspendre les toilettes après le carrelage n'est possible qu'après le durcissement complet de la colle à carrelage - après 7 jours.
- Le tuyau inclus dans le kit est relié à l'évacuation des toilettes. Ensuite, à l'aide d'un niveau ou d'un autre objet plat, tracez une ligne coïncidant avec le plan défini par les bords de la cuvette des toilettes.
- Mesurer la profondeur du tuyau dans l'installation. À partir des marques sur le tuyau relié aux toilettes, mettez de côté cette distance et coupez-la. La même chose est faite avec le tuyau d'alimentation en eau des toilettes.
- Un mastic silicone est appliqué sur les manchettes en caoutchouc et les éléments en caoutchouc sont insérés dans les tuyaux, et les tuyaux eux-mêmes dans les toilettes. De plus, les tuyaux doivent d'abord être insérés dans les toilettes, puis l'appareil est fixé avec eux, et non l'inverse. Sinon, les élastiques laisseront passer l'eau.
- Un joint isolant est fixé sur les goujons et la plomberie est installée, après avoir préalablement lubrifié les trous réciproques des tuyaux avec un produit d'étanchéité.
- En mettant les toilettes sur les goujons, montez la gomme, la rondelle et l'écrou. La fixation est serrée, après quoi des capuchons sont posés dessus afin que les boulons et les goujons ne soient pas visibles. Ne serrez pas les attaches aussi fort que possible, en raison de la tension, le bol peut éclater.
Installer un WC suspendu produit. Maintenant, à l'aide d'un couteau de bureau, le joint isolant est coupé le long du contour de l'appareil.
Comment installer un bidet de vos propres mains. Vidéo

Riz. 8.128. Bidet carré et toilette
Un modèle de bidet simple est un croisement entre un évier bas et des toilettes (Fig. 8.128). Il se raccorde à l'égout de la même manière qu'une toilette ordinaire. Mais au lieu d'un réservoir de vidange, des robinets avec mélangeur sont fixés à son bord. L'inconvénient d'un tel bidet est qu'il est assez cool de s'asseoir dessus.
Un bidet simple est monté à peu près de la même manière qu'un évier. Tout d'abord, un mélangeur avec robinets est installé sur le bidet et vissé. Ensuite, un drain est inséré dans le bidet, auquel le siphon est connecté, ainsi que lors de l'installation de l'évier. Vous pouvez maintenant placer le bidet à l'endroit prévu, mais vous ne devez pas vous précipiter et le talonner au sol (Fig. 10.143-10.145).

Riz. 10.143. Installation du mélangeur

Riz. 10.144. Nous fixons des tuyaux flexibles pour l'eau chaude et froide

Riz. 10.145. Nous installons le bidet à l'endroit choisi
Raccordez les tuyaux du mélangeur aux tuyaux d'alimentation en eau. Dans ce cas, il est plus pratique d'utiliser un eye-liner flexible.Un tuyau de vidange est relié au tuyau de siphon à l'aide d'un raccord à compression - il est inséré dans la prise d'égout (pour un bidet, vous pouvez également faire un drain de l'égout, ce qui fournit immédiatement un raccord fileté). Fixez le bidet au sol de la même manière que les toilettes (Fig. 10.146-10.151). Il existe des bidets muraux qui ne sont pas fixés au sol, mais au cadre de montage.

Un bidet avec un débit d'eau ascendant est plus compliqué. Un jet d'eau passe à l'intérieur du bord du siège, le chauffe, puis jaillit vers le haut sous l'action d'un régulateur spécial. Le trou de la fontaine est au fond et l'eau sale coule directement dessus, donc une alimentation en eau spéciale est prévue : les eaux usées ne sont pas aspirées et ne polluent pas l'eau de l'alimentation en eau. Avant d'installer un tel bidet, vous devez assembler et connecter le mécanisme de réglage, puis connecter la grille de vidange du bidet à l'alimentation en eau et aux égouts.
Contenu similaire

Installation de tuyaux en plastique à faire soi-même. Vidéo

Découpe et filetage de tubes. Outils et recommandations

Comment et avec quoi nettoyer l'évier, les toilettes ou la baignoire des blocages

Chauffage au sol électrique à faire soi-même. Vidéo, installation, appareil

Distribution de conduites d'eau. Vidéo. Schème

Arrosez les murs chauds de vos propres mains. Vidéo, instruction, photo

Comment réparer un évier endommagé (éclat, rayure). Vidéo

Installer un sèche-serviettes de vos propres mains. Vidéo, photos, conseils

Pose de tuyaux d'égout à l'intérieur de la maison (appartement), comment le faire correctement. Dans et

Purification (filtration) de l'eau à la maison. Vidéo

Comment fabriquer et installer une boîte sous le lavabo

Comment installer une baignoire de vos propres mains. Instruction vidéo

Installation à faire soi-même d'un système de chauffage par radiateur.Vidéo, schémas, photos

Comment effectuer la plomberie dans la maison de vos propres mains. Vidéo

Comment installer un filtre pour piscine à faire soi-même. Vidéo

Comment installer et connecter le lave-vaisselle (lave-vaisselle) vous-même

Comment réparer un mélangeur et un robinet de vos propres mains. Vidéo

Comment installer un robinet dans la cuisine, dans la salle de bain. Vidéo, photo, mode d'emploi

Comment faire un podium pour la douche cabines à faire soi-même. Vidéo. Une photo

Comment restaurer un bain de vos propres mains
Charger plus...
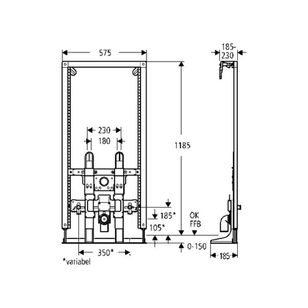
La gamme d'installations Geberit
Le système d'installation est un ensemble de profilés interconnectés de manière rigide dans une seule structure de cadre avec la possibilité d'ajuster la position spatiale des éléments individuels. L'installation est utilisée pour fixer les appareils de plomberie suspendus, la plomberie cachée aux cuvettes de toilettes, les urinoirs, les bidets, les éviers, les communications d'eau froide et d'eau chaude, les égouts et l'électricité.

Le fabricant suisse Geberit produit des installations pour la fixation des types de plomberie et d'appareils sanitaires suivants :
- toilettes et bidets;
- urinoirs, bidets;
- lavabos, drains, éviers de cuisine;
- baignoires, systèmes de douche;
- douche avec égouts dans le mur;
- supports, mains courantes pour handicapés.
La structure du cadre est séparée du mur à une certaine distance ou montée sous forme d'îlot, gainée à l'extérieur d'un matériau en feuille. Cela vous permet de cacher des tuyaux, des câbles, des tuyaux flexibles et d'autres éléments de systèmes d'ingénierie à l'intérieur.

Les utilisateurs sont souvent confondus avec le nom des installations Geberit. Le nom correct de la structure de cadre est Geberit Duofix. Cependant, le fabricant utilise dans un premier temps plusieurs options pour le compléter avec des éléments de montage pour des équipements de plomberie spécifiques.Par conséquent, d'autres noms de ses produits apparaissent dans le titre. Le marquage de la structure de trame se déchiffre comme suit :
installation Geberit Delta - un cadre pour une cuvette de toilettes murale avec un réservoir de chasse d'eau caché Delta;

installation Geberit Sigma - structure de cadre pour la plomberie avec montage vertical, réservoir Sigma 8 cm ou 12 cm d'épaisseur;
installation pour la cuvette Geberit Duofix Omega - la hauteur d'installation du réservoir Omega est de 82 cm ou 98 cm;

Installation Geberit DuoFresh - cadre avec éléments anti-odeurs ;

En d'autres termes, dans les structures à ossature des systèmes d'installation, la distance entre les montants et les barres horizontales peut varier. Le cadre peut être renforcé avec deux poteaux latéraux pour la fixation de mains courantes pour les personnes handicapées.
Dans les installations autonomes, les racks sont généralement renforcés par des éléments supplémentaires. La clé du réservoir de chasse d'eau peut aller à la surface avant de la structure ou être située sur le dessus ou à l'extrémité.
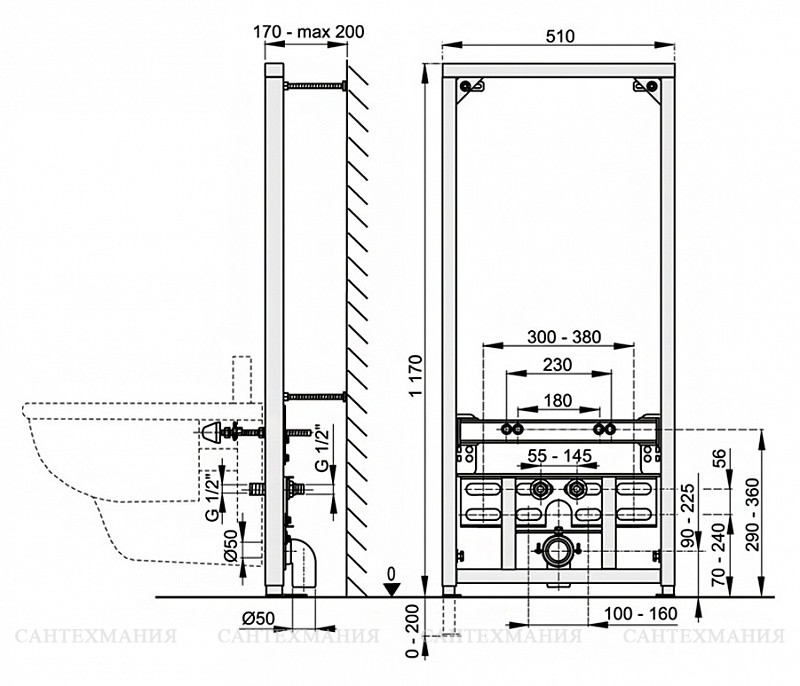
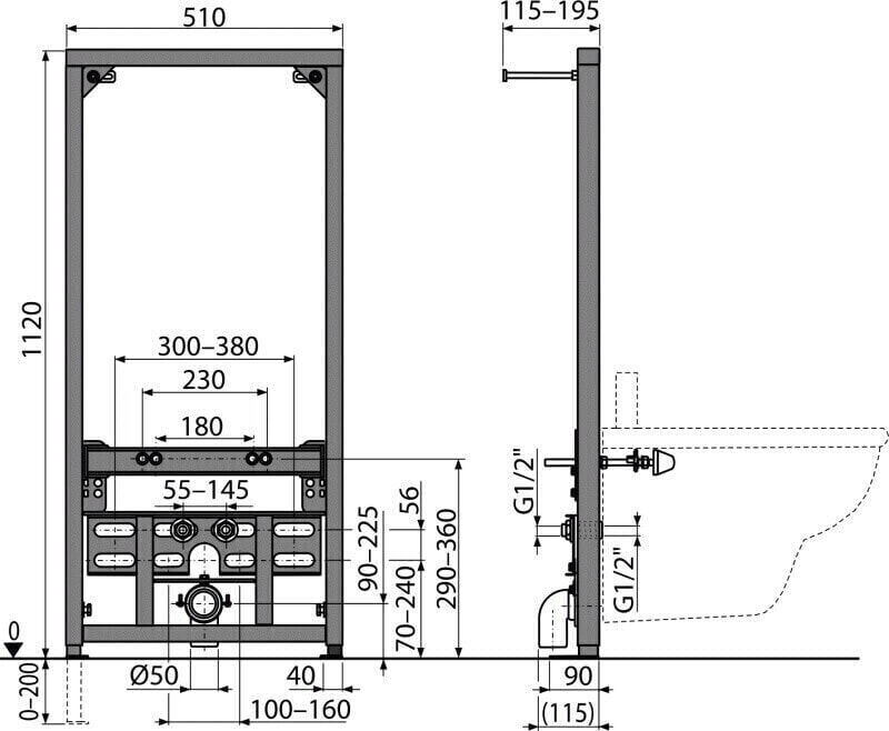
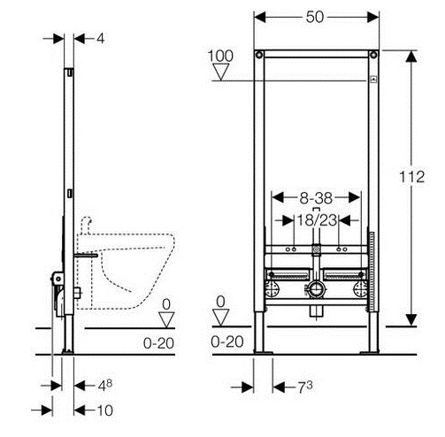
Choisir et acheter une cuvette de toilette avec installation
La principale condition d'achat d'une installation est qu'elle corresponde au modèle de cuvette que vous avez choisi. Souvent, les toilettes suspendues sont équipées d'un système d'installation dans un premier temps, il est préférable de privilégier cette option particulière.
Prendre des mesures de la niche où l'installation sera installée
L'installation doit correspondre à la taille de la niche dans laquelle elle sera placée.
Les installations sont de deux types.
bloquer - fixé au mur à l'aide de boulons d'ancrage conventionnels, qui sont le support principal de toute la structure.
Cadre - est un cadre sur pieds, grâce auquel la hauteur des toilettes est ajustée. Le cadre est fixé à quatre endroits. Il est possible que les quatre fixations soient fixées au mur - cette méthode d'installation ne peut être utilisée que dans le cas de murs solides.
Si le mur n'est pas assez stable, choisissez une installation avec deux supports au mur et deux au sol. Les deux dernières attaches supportent la charge principale.
- Prévoir une trappe technologique juste en dessous du bouton de vidange. Cela facilitera grandement si nécessaire.
- Utilisez des boutons de chasse modernes qui économisent l'eau. Il peut s'agir de deux boutons distincts, dont l'un draine tout le volume d'eau du réservoir et l'autre moitié. Une autre option est la présence des boutons "Démarrer" et "Arrêter".
- Considérez l'emplacement du bouton de vidange par rapport aux éléments de tuile. Concevez le bouton soit strictement entre deux carreaux, soit au centre de l'un d'eux.
- Le bord supérieur des toilettes ne doit pas être à plus de 45 cm du sol ni à moins de 40 cm.
- L'épaisseur du mur cachant le système d'installation ne doit pas dépasser 7 cm.
- Une distance standard de 18 ou 23 cm est maintenue entre les trous de montage de la cuvette des toilettes.
- Contrôlez la bonne installation à toutes les étapes du travail. Cela aidera à éviter les erreurs grossières lors de l'installation et les problèmes lors du fonctionnement de l'équipement de plomberie.
La cuvette des toilettes installée selon toutes les règles avec l'installation est capable de supporter une charge allant jusqu'à 400 kg ! Si vous doutez que vous puissiez effectuer tout le travail correctement et efficacement, nous vous conseillons de recourir à l'aide de spécialistes qualifiés. Eh bien, pour économiser le budget, bien sûr, l'auto-assemblage du système d'installation aidera.N'hésitez pas à utiliser le savoir-faire technologique et design pour créer un intérieur original et pratique.
Mis à jour : 21/12/2017
103583
Installation d'un bidet au sol
Pour installer un bidet au sol de vos propres mains, vous aurez besoin de l'ensemble d'outils suivant:
- perceuse avec fonction marteau;
- un ensemble de forets pour béton et céramique;
- clé à molette ou jeu de clés;
- matériau d'étanchéité (facultatif : ruban FUM, fil de lin, etc.) ;
- mastic silicone pour zones humides.

Outils d'installation de bidet
Fixation bidet
L'installation d'un bidet au sol s'effectue en plusieurs étapes:
- dessiner des marques dans la zone d'installation de l'appareil. Au sol, il est nécessaire de marquer l'emplacement des boulons de fixation;

Déterminer l'emplacement des boulons
Lors du marquage de la zone d'installation, il est recommandé de prendre en compte la distance requise pour connecter la plomberie à l'alimentation en eau et aux égouts.
- préparation des trous. Si le sol de la salle de bain est carrelé, il est recommandé d'utiliser un foret lors du perçage. Des chevilles en plastique sont insérées dans les trous percés;

Préparation des trous pour les boulons de montage
- un appareil de plomberie est installé et il est fixé avec des boulons de fixation inclus dans le kit ;

Fixation de l'appareil au sol
Afin de ne pas endommager la surface du bidet entre les boulons et la cuvette de l'appareil, il est recommandé d'installer des joints en caoutchouc.
- le joint entre le bidet et le sol est traité avec un mastic silicone.

Sceller le joint entre le bidet et le sol
Raccordement d'un bidet à l'alimentation en eau
Le bidet est raccordé à l'alimentation en eau à l'aide d'un robinet. Le mélangeur peut être :
- pendaison ordinaire. Un tel appareil s'installe sur un bidet, comme un robinet sur un évier ;
- intégré.Pour installer l'appareil intégré, une poursuite murale sera nécessaire.
Le schéma de connexion du mélangeur est généralement fourni avec l'appareil. S'il n'y a pas de tel schéma, procédez comme suit:
- le mélangeur est fixé sur la surface du bidet ou du mur. Les raccords de bidet sont inclus.

Installation du robinet sur le bidet
- des tuyaux flexibles sont amenés au mélangeur et attachés ;
- l'autre extrémité des tuyaux est reliée à un té monté sur une conduite d'eau. Toutes les connexions doivent être en outre scellées.

Raccordement du tuyau flexible et du tuyau d'eau
Avant de connecter le bidet aux conduites d'eau, il est recommandé d'installer des robinets séparés qui vous permettent de couper indépendamment l'alimentation en eau de l'appareil pour inspection ou réparation.
Raccordement d'un bidet à l'égout
Comment raccorder un bidet au tout à l'égout ? Pour établir une connexion, vous aurez besoin de :
- siphon pour bidet;
- ondulation;
- manchette en caoutchouc pour la transition d'un siphon à l'égout.
La connexion se fait de la manière suivante :
- un siphon est attaché au bidet. Des joints en caoutchouc sont installés entre la surface de la plomberie et l'appareil;
- un tuyau annelé est relié au siphon ;
- la deuxième extrémité de l'ondulation est insérée dans l'entrée d'égout. Une manchette en caoutchouc est utilisée pour l'étanchéité.

Raccordement d'un appareil de plomberie à un tuyau d'égout
Le processus d'installation d'un bidet au sol est présenté en détail dans la vidéo.
Caractéristiques de l'installation d'un dispositif de suspension
L'installation d'une petite version suspendue du bidet s'effectue comme suit. Tout d'abord, l'installation est montée et le bol est déjà fixé dessus.La masse du produit est répartie le long du mur et du cadre. Souvent, les cloisons entre la salle de bain et les toilettes sont faites de matériaux légers (par exemple, des cloisons sèches).
Lors du choix d'un point de montage d'un bidet, vous devez vous assurer qu'il y a suffisamment d'espace à proximité pour qu'il soit pratique pour une personne d'utiliser le produit.

Il est préférable de ne pas monter l'installation sur des parois minces afin d'éviter la possibilité d'effondrement de la structure. En règle générale, le cadre est placé dans le mur, pour cela, une niche compacte est formée. Il doit être fait un peu plus haut et plus profond que les dimensions de la structure elle-même. Si la salle de bain contient déjà une niche similaire de dimensions proportionnées, vous pouvez l'utiliser.
Il arrive que pour un certain nombre de raisons, il est impossible d'équiper une niche. Ensuite, l'installation d'un bidet suspendu est fixée au mur, puis masquée par un panneau de matériaux légers (en particulier des cloisons sèches). Cela permet au produit d'avoir un aspect esthétique et holistique. Avant de monter l'équipement, veillez à l'alimentation en eau et à l'évacuation. Ces sorties doivent être disponibles pour que le produit puisse être connecté sans problème.

Initialement, le cadre du kit est démonté, il doit donc être assemblé conformément aux instructions du fabricant. En règle générale, à ce stade, la hauteur de la cuvette sur le mur est ajustée pour que le bidet soit confortable à utiliser.
Ensuite, l'installation est montée avec des fixations au mur et au sol. Tout d'abord, le balisage est fait, des trous sont faits, puis le cadre est fixé dans la position souhaitée. Lors de son assemblage et de son installation, un niveau est périodiquement utilisé.

Avant de fixer l'installation pour la version suspendue du produit, il est nécessaire de prendre soin de l'alimentation en eau et de la sortie à l'égout. La suspension elle-même se fait à l'aide de goujons spéciaux.
Si les détails d'installation sont faussés, le bidet ne sera pas installé correctement, ce qui, avec le temps, entraînera un mauvais fonctionnement de l'appareil et le cassera. Après tout, si une réparation est nécessaire, l'installation devra être retirée et le coût de l'élimination du problème peut être très élevé.
Si le cadre est correctement monté sur les deux axes, la niche peut être fermée avec un panneau décoratif. Il est clair que les détails responsables de la suspension du bidet doivent être laissés à l'extérieur de la niche. Presque toujours, il s'agit de montants allongés spéciaux situés dans certains trous du cadre et fixés au mur.
Lors de la suspension de tels goujons, des joints en caoutchouc sont utilisés - ils protègent le produit en céramique contre les dommages. Une alternative à un tel joint est un produit d'étanchéité. Il est appliqué sur les attaches, puis ils attendent le séchage, après quoi ils accrochent et fixent la cuvette du bidet. Néanmoins, l'utilisation de joints en caoutchouc est préférable et plus pratique.

Après la fixation de l'installation, le mur doit être masqué, mais les éléments d'alimentation en eau et d'assainissement doivent rester à l'extérieur.
Le bol, qui est monté avec des goujons, est fixé avec des écrous spéciaux, ces derniers étant soigneusement serrés pour éviter d'endommager physiquement la céramique. L'installation ultérieure se fait par analogie avec le montage de la version au sol. D'abord, ils mettent le mitigeur, puis connectent l'eau à l'aide d'un raccord flexible.
Il est nécessaire d'assurer l'étanchéité de toutes les connexions dans lesquelles des éléments filetés sont présents. Un matériau d'étanchéité sera nécessaire même lorsque seuls des joints en caoutchouc sont normalement utilisés.
Le système d'installation d'un bidet mural est raccordé à l'égout uniquement avec un siphon.Un brassard en caoutchouc est inséré entre celui-ci et le trou dans l'égout. Ensuite, vous devez ouvrir l'eau et vérifier le fonctionnement de tous les éléments, ainsi que vous assurer qu'il n'y a aucune fuite nulle part. Si tout fonctionne correctement, il est temps de procéder aux travaux de finition.








































