- Chape
- Caractéristiques de conception
- Nous calculons la pompe de circulation
- Schémas de raccordement plancher chauffant
- Directement de la chaudière
- D'une vanne à trois voies
- De l'unité de pompage et de mélange
- Du radiateur
- Pourquoi est-il préférable d'utiliser un tuyau d'un diamètre extérieur de 16 mm ?
- Ce qui affecte le fonctionnement d'un plancher d'eau chaude
- Raccordement à une chaudière de chauffage individuelle
- Répartition de la chaleur : caractéristiques
- Technologie de pose du système de chauffage au sol électrique
- Préparation de surface
- balisage
- Montage. Procédure pas à pas
- Les points importants!
- Types de câbles électriques
Chape
IMPORTANT : la couche supérieure de la chape est coulée uniquement lorsque le contour est rempli. Mais avant cela, les tuyaux métalliques sont mis à la terre et recouverts d'un film plastique épais.
C'est une condition importante pour empêcher la corrosion due aux interactions électrochimiques des matériaux.
Le problème du renforcement peut être résolu de deux manières. La première consiste à mettre un treillis de maçonnerie sur le dessus du tuyau. Mais avec cette option, des fissures peuvent apparaître en raison du retrait.
Un autre moyen est le renforcement de fibres dispersées. Lors de la coulée de sols chauffés à l'eau, la fibre d'acier est la mieux adaptée. Ajouté à raison de 1 kg/m3 de solution, il sera uniformément réparti dans tout le volume et augmentera qualitativement la résistance du béton durci.La fibre de polypropylène est beaucoup moins adaptée à la couche supérieure de la chape, car les caractéristiques de résistance de l'acier et du polypropylène ne se font même pas concurrence.
Des balises sont installées et la solution est pétrie selon la recette ci-dessus. L'épaisseur de la chape doit être d'au moins 4 cm au-dessus de la surface du tuyau. Considérant que le ø du tuyau est de 16 mm, l'épaisseur totale atteindra 6 cm.Le temps de maturation d'une telle couche de chape de ciment est de 1,5 mois
IMPORTANT : Il est inacceptable d'accélérer le processus y compris le chauffage au sol ! Il s'agit d'une réaction chimique complexe de formation de "pierre de ciment", qui se produit en présence d'eau. La chaleur le fera s'évaporer
Vous pouvez accélérer la maturation de la chape en incluant des additifs spéciaux dans la recette. Certains d'entre eux provoquent une hydratation complète du ciment après 7 jours. Et en plus de cela, le rétrécissement est considérablement réduit.
Vous pouvez déterminer l'état de préparation de la chape en plaçant un rouleau de papier toilette sur la surface et en le recouvrant d'une casserole. Si le processus de maturation est terminé, le matin, le papier sera sec.
Caractéristiques de conception
Tous les calculs de planchers chauffants à l'eau doivent être effectués avec le plus grand soin. Tout défaut de conception ne peut être corrigé qu'à la suite du démontage complet ou partiel de la chape, ce qui peut non seulement endommager la décoration intérieure de la pièce, mais également entraîner des dépenses importantes en temps, en efforts et en argent.
Les indicateurs de température recommandés pour la surface du sol, selon le type de pièce, sont :
- locaux d'habitation - 29 ° C;
- zones proches des murs extérieurs - 35 ° C;
- salles de bains et zones à forte humidité - 33 ° C;
- sous parquet - 27 °C.
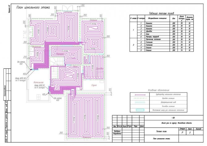
Les tuyaux courts nécessitent l'utilisation d'une pompe de circulation plus faible, ce qui rend le système rentable. Un circuit d'un diamètre de 1,6 cm ne doit pas dépasser 100 mètres, et pour les tuyaux d'un diamètre de 2 cm, la longueur maximale est de 120 mètres.
Tableau de décision pour le choix d'un système de plancher chauffant à eau
Nous calculons la pompe de circulation
Pour rendre le système économique, vous devez choisir une pompe de circulation qui fournit la pression nécessaire et un débit d'eau optimal dans les circuits. Les passeports des pompes indiquent généralement la pression dans le circuit le plus long et le débit total du liquide de refroidissement dans toutes les boucles.
La pression est affectée par les pertes hydrauliques :
∆h = L*Q²/k1, où
- L est la longueur du contour ;
- Q - débit d'eau l / s;
- k1 est un coefficient caractérisant les pertes dans le système, l'indicateur peut être tiré des tableaux de référence pour l'hydraulique ou du passeport pour l'équipement.
Connaissant l'amplitude de la pression, calculez le débit dans le système :
Q = k*√H, où
k est le débit. Les professionnels prennent le débit pour chaque 10 m² de la maison dans la plage de 0,3 à 0,4 l / s.

Parmi les composants d'un plancher d'eau chaude, un rôle particulier est accordé à la pompe de circulation. Seule une unité dont la puissance est supérieure de 20% au débit réel du liquide de refroidissement pourra vaincre la résistance dans les canalisations
Les chiffres relatifs à l'amplitude de la pression et du débit indiqués dans le passeport ne peuvent pas être pris au pied de la lettre - c'est le maximum, mais en fait ils sont influencés par la longueur et la géométrie du réseau. Si la pression est trop élevée, réduire la longueur du circuit ou augmenter le diamètre des tuyaux.
Schémas de raccordement plancher chauffant
Le plus souvent, 4 schémas de connexion sont utilisés. Chacun d'eux est utilisé dans des cas individuels.Tout dépend du type de système de chauffage, du nombre de pièces, des matériaux utilisés et d'autres facteurs.
Directement de la chaudière
Un tel schéma suppose la présence d'une chaudière, à partir de laquelle le liquide de refroidissement est distribué au sol chaud et à d'autres systèmes de chauffage (par exemple, un radiateur supplémentaire). En refroidissant, le liquide retourne dans la chaudière, où il est réchauffé. Le système utilise également une pompe qui régule le mouvement du liquide de refroidissement.

Dans cette vidéo, le spécialiste montre le système fini installé directement à partir de la chaudière. Donne des commentaires utiles sur son travail :
D'une vanne à trois voies
Ce type de connexion est généralement utilisé dans un système de chauffage combiné. Considérant que de l'eau à une température de 70 à 80 degrés provient de la chaudière et qu'un sol chaud accélère le liquide de refroidissement à une température pouvant atteindre 45 degrés, le système doit en quelque sorte refroidir le flux chaud. Pour cela, une vanne à trois voies est installée.
Comment ça fonctionne? Attention au schéma :
- L'eau chaude provient de la chaudière.
- En même temps, l'eau refroidie pénètre dans la vanne de l'autre côté (qui a traversé le sol chaud, l'a chauffé, s'est refroidi et est revenu).
- Au centre de la vanne, l'eau chaude et le retour refroidi sont mélangés.
- La tête thermique de la vanne régule la température requise. Lorsqu'elle atteint les 40-45 degrés requis, l'eau circule à nouveau dans les tuyaux du chauffage au sol, chauffant la pièce.
Le point négatif est l'impossibilité de répartir avec précision le dosage d'eau froide et d'eau chaude. Dans certains cas, à l'entrée du sol chaud, un liquide trop froid ou légèrement surchauffé peut pénétrer.
Mais, étant donné que l'installation d'un tel système est très simple et ne «frappe pas le portefeuille», beaucoup acceptent cette option de connexion. Par exemple, une excellente option serait un choix où le client n'a pas d'exigences élevées et souhaite économiser de l'argent.
Un exemple de circuit réel :

Dans cette vidéo, un installateur spécialisé parle en détail du remplissage d'une vanne à trois voies, dans quels cas il est préférable de l'installer et de quelles variétés il s'agit. L'ingénieur exprime les erreurs possibles et donne des recommandations sur la façon de les éviter :
De l'unité de pompage et de mélange
Le régime est mixte. Il dispose d'une zone de chauffage par radiateurs, d'un chauffage au sol, d'une unité de pompage et de mélange. Le mélange passe de l'eau refroidie du plancher chaud, qui provenait du "retour", à la chaufferie chauffée.

Une vanne d'équilibrage est installée dans chaque unité de mélange. Il dose avec précision les volumes de liquide refroidi (retour) à mélanger à l'eau chaude. Cela permet d'obtenir des données précises sur la température de l'entrée du liquide de refroidissement vers le sol chaud pour le chauffer.
Du radiateur
Dans de nombreuses chambres et appartements, il est interdit d'utiliser un tel schéma pour connecter un sol chaud. Mais là où c'est permis (l'autorisation est prise auprès du logement et des services communaux ou de la société de gestion de votre maison), alors le circuit est effectué directement à travers le radiateur (batterie).

L'eau chauffée s'écoule directement du radiateur vers le chauffage au sol. L'eau refroidie entre dans le limiteur de température de la cassette et retourne au radiateur (sortie de liquide de refroidissement).
L'installation est la plus simple et la moins chère. Mais il y a quelques inconvénients - l'eau du radiateur est trop chaude pour un sol chaud. D'où les conséquences - la fragilité du système et du matériau, le sol est trop chaud. En été, lorsque le chauffage est éteint, le sol sera froid.
L'endroit idéal pour utiliser le chauffage au sol d'un radiateur est une salle de bain, une loggia.
La vidéo montre l'installation d'un sol chaud directement à partir d'un radiateur de chauffage commun. Le programme d'installation montre en détail comment procéder avec un minimum de pertes. Installation de 3 circuits : cuisine, salle de bain, séjour. L'appartement est petit
Pourquoi est-il préférable d'utiliser un tuyau d'un diamètre extérieur de 16 mm ?
Pour commencer, pourquoi un tuyau de 16 mm est-il envisagé ?
Tout est très simple - la pratique montre que pour des "sols chauds" dans une maison ou un appartement de ce diamètre, c'est suffisant. Autrement dit, il est difficile d'imaginer une situation où le circuit ne fait pas face à sa tâche. Cela signifie qu'il n'y a aucune raison vraiment justifiée d'en utiliser un plus grand, de 20 millimètres.
Le plus souvent, dans les conditions d'un immeuble résidentiel ordinaire, des tuyaux d'un diamètre de 16 mm sont plus que suffisants pour les "sols chauds"
Et, en même temps, l'utilisation d'un tuyau de 16 mm offre de nombreux avantages :
- Tout d'abord, il est environ un quart moins cher que son homologue de 20 mm. Il en va de même pour tous les raccords nécessaires - les mêmes raccords.
- De tels tuyaux sont plus faciles à poser, avec eux il est possible, si nécessaire, d'effectuer une étape compacte de pose du contour, jusqu'à 100 mm. Avec un tube de 20 mm, il y a beaucoup plus de tracas, et un petit pas est tout simplement impossible.
Un tuyau d'un diamètre de 16 mm est plus facile à installer et permet de maintenir un pas minimum entre les boucles adjacentes
- Le volume de liquide de refroidissement dans le circuit est considérablement réduit. Un calcul simple montre que dans un mètre linéaire d'un tuyau de 16 mm (avec une épaisseur de paroi de 2 mm, le canal intérieur est de 12 mm) contient 113 ml d'eau. Et en 20 mm (diamètre intérieur 16 mm) - 201 ml. C'est-à-dire que la différence est de plus de 80 ml pour un seul mètre de tuyau.Et à l'échelle du système de chauffage de toute la maison - cela se traduit littéralement par une quantité très décente ! Et après tout, il faut assurer le chauffage de ce volume, ce qui entraîne, en principe, des coûts énergétiques injustifiés.
- Enfin, un tuyau de plus grand diamètre nécessitera également une augmentation de l'épaisseur de la chape en béton. Qu'on le veuille ou non, mais au moins 30 mm au-dessus de la surface de tout tuyau devra être prévu. Que ces "malheureux" 4–5 mm ne semblent pas ridicules. Quiconque a participé au coulage de la chape sait que ces millimètres se transforment en dizaines et centaines de kilogrammes de mortier de béton supplémentaire - tout dépend de la zone. De plus, pour un tuyau de 20 mm, il est recommandé de rendre la couche de chape encore plus épaisse - environ 70 mm au-dessus du contour, c'est-à-dire qu'elle s'avère presque deux fois plus épaisse.
De plus, dans les locaux d'habitation, il y a très souvent une «lutte» pour chaque millimètre de hauteur de sol - simplement pour des raisons d'«espace» insuffisant pour augmenter l'épaisseur de la «tarte» globale du système de chauffage.
Une augmentation du diamètre du tuyau entraîne invariablement un épaississement de la chape. Et ce n'est pas toujours possible, et dans la plupart des cas, ce n'est absolument pas rentable.
Un tuyau de 20 mm est justifié lorsqu'il est nécessaire de mettre en place un système de chauffage par le sol dans des pièces à forte charge, à forte intensité de circulation de personnes, dans des salles de sport, etc. Là, simplement pour des raisons d'augmentation de la résistance de la base, il est nécessaire d'utiliser des chapes épaisses plus massives, pour le chauffage desquelles une grande surface d'échange thermique est également nécessaire, ce qui est exactement ce qu'est un tuyau de 20, et parfois même de 25 mm, fournit. Dans les zones résidentielles, il n'est pas nécessaire de recourir à de tels extrêmes.
On peut objecter que pour "pousser" le liquide de refroidissement à travers un tuyau plus fin, il faudra augmenter les indicateurs de puissance de la pompe de circulation. Théoriquement, comme c'est le cas - la résistance hydraulique avec une diminution de diamètre, bien sûr, augmente. Mais comme le montre la pratique, la plupart des pompes de circulation sont tout à fait capables de cette tâche.
Ci-dessous, une attention particulière sera portée à ce paramètre - il est également lié à la longueur du contour. C'est ce que les calculs sont effectués afin d'obtenir des performances optimales, ou du moins acceptables, entièrement fonctionnelles du système.
Alors, concentrons-nous sur le tuyau exactement 16 mm. Nous ne parlerons pas des tuyaux eux-mêmes dans cette publication - c'est un article séparé de notre portail.
Ce qui affecte le fonctionnement d'un plancher d'eau chaude
Comment s'assurer que le sol chaud est vraiment tel et crée une température confortable du revêtement de sol. Souvent, en raison de la grande longueur du circuit, une valeur élevée de résistance hydraulique est observée.
Pour le bon fonctionnement du système dans une maison à plusieurs étages, une pompe séparée à faible puissance est installée à chaque niveau ou une pompe à haute puissance est connectée au collecteur.

Groupe pompe
Lors du choix d'une pompe, tenez compte des données calculées, du volume du liquide de refroidissement et de la pression. Cependant, il convient de rappeler que pour déterminer le niveau de résistance hydraulique, il ne suffit pas de connaître la longueur du tuyau. Vous devrez tenir compte du diamètre des tuyaux, des vannes, des séparateurs, du schéma de pose et des coudes principaux. Des calculs plus précis sont obtenus à l'aide d'un programme informatique spécial dans lequel les principaux indicateurs sont saisis.
Comme alternative, il est possible d'utiliser un équipement standard avec des caractéristiques techniques déjà connues.L'hydraulique du système, en manœuvrant ses paramètres, est ajustée aux caractéristiques de la pompe.

Collecteur avec pompe installée
Raccordement à une chaudière de chauffage individuelle
La présence dans un appartement ou une maison particulière d'une chaudière individuelle pour le chauffage supprime tous les problèmes d'organisation pour permettre l'installation de planchers chauffants à eau. Dans ce cas, le raccordement d'un plancher d'eau chaude ne nécessite aucune autorisation. Selon les conditions d'implantation et de fonctionnement de l'installation, les chaudières peuvent être de différents types :
- au gaz combustible;
- sur combustible liquide (pétrole solaire, fioul);
- combustible solide : bois de chauffage, granulés, charbon ;
- électrique;
- combiné.
Dans les appartements des immeubles à plusieurs étages, les chaudières à gaz ou électriques sont le plus souvent utilisées, le raccordement au système de chauffage central du circuit de chauffage par le sol n'est pas nécessaire. Dans ce cas, le schéma diffère légèrement et le but fonctionnel des principaux éléments reste le même.
Schéma du système de chauffage par le sol à eau dans une maison privée avec une chaudière autonome
Principaux éléments :
- Chaudière;
- vase d'expansion;
- manomètre;
- pompe de circulation ;
- collecteur pour chauffage au sol;
Contrairement au cas du chauffage central, le raccordement du chauffage au sol à la chaudière ne nécessite pas l'installation d'une vanne à trois voies pour réguler la température du caloporteur. Son installation n'est pas obligatoire, le changement de température se fait depuis le tableau de commande de la chaudière. Des capteurs de contrôle de la température sont également situés sur le panneau de commande externe.
Le vase d'expansion sert à maintenir une pression stable dans le système ; lorsqu'il est chauffé, le volume de liquide augmente.Afin de ne pas effondrer le collecteur du sol chaud, la pompe et d'autres éléments coûteux du système de canalisation, le réservoir compense l'expansion du volume du liquide de refroidissement. Le manomètre indique la pression dans les tuyaux. L'essentiel est qu'avant de verser un sol chaud avec une solution, vous devez vérifier les performances de tous les nœuds.
Panneau de commande sur le corps de la chaudière
Indépendamment de la modification de l'appareil et de son fabricant, tous les panneaux ont des options de base et quelques fonctions de programmation supplémentaires :
- boutons ou régulateurs pour augmenter et diminuer la température du liquide de refroidissement à l'alimentation ;
- bouton pour le réglage automatique d'un régime de température confortable et économique, température ambiante - 20-22 ̊С;
- le contrôle du programme est possible, en réglant les modes "hiver", "été", "vacances", "fonction de protection du système contre le gel des liquides".
La manière d'effectuer des réglages spécifiques pour les chaudières avec différents panneaux de commande est décrite dans le mode d'emploi. Le remplissage d'un plancher chauffé à l'eau avec une solution pour une chaudière séparée se fait de la même manière que pour le chauffage central.
Panneau de contrôle à distance
Répartition de la chaleur : caractéristiques
Étant donné que la superficie des locaux dans la maison varie, les contours ont également des longueurs différentes, il est donc nécessaire d'assurer la même pression hydraulique dans toutes les parties du système. Il faut tenir compte du fait que la pompe est une valeur constante.

Répartition de la chaleur de différentes sources
La fourniture du même volume d'eau aux circuits de chaque longueur conduit au fait que dans un circuit plus long, le liquide de refroidissement se refroidit plus rapidement et à la sortie sa température sera différente de celle du liquide de refroidissement d'un profil plus court.En conséquence, la surface du sol se réchauffera de manière inégale - une surchauffe sera observée quelque part, et quelque part au contraire, le revêtement se révélera froid.

Avantages de l'utilisation du chauffage au sol
En raison de la grande résistance hydraulique, le liquide de refroidissement peut ne pas s'écouler du tout dans un long circuit, car il se déplacera vers des circuits plus courts avec moins de résistance. Pour éviter que cela ne se produise, le système est équipé d'un collecteur de distribution, qui vous permet de maintenir un équilibre d'alimentation et un chauffage uniforme du liquide de refroidissement dans chaque boucle.
Technologie de pose du système de chauffage au sol électrique
Montage du thermostat et formation d'une rainure pour les extrémités de montage des sections de chauffage
Ici, il est important de prendre en compte le diamètre du câble du capteur de température et les dimensions des canaux de câble pour le fil d'alimentation principal. Le thermostat doit être situé à une hauteur de 30 à 50 cm
Montage du thermostat et formation d'une rainure pour les extrémités de montage des sections de chauffage
Préparation de surface
Le sol est débarrassé des débris de construction, une couche d'imperméabilisation est posée et un ruban amortisseur est fixé le long des bords - cela ne permettra pas une perte de chaleur inutile des murs. Nous posons ces sols avec une approche de 10 cm du mur, de sorte qu'ils soient alors au-dessus du sol chaud fini - l'excédent sera soigneusement coupé à la toute fin de l'installation.
Afin de ne pas "donner" de la chaleur aux voisins du dessous ou du sous-sol, nous réalisons une isolation thermique. Traditionnellement, il s'agit de polystyrène expansé ou de mousse de polystyrène extrudé. Pour des pièces suffisamment chaudes, une couche de mousse de 4 mm suffit. L'isolation est posée sur toute la surface sans exception.

isolation thermique

isolation thermique
balisage
Les endroits où se trouveront les meubles, les cloisons, la plomberie et les équipements d'ingénierie sont séparés par du ruban adhésif - ces zones ne sont pas soumises au chauffage. Après cela, un dessin est nécessairement réalisé en fonction de la technologie de pose d'un type particulier de chauffage au sol (câble chauffant ou tapis).
Montage. Procédure pas à pas
- Apportez les extrémités du câblage de la section de montage au thermostat. Fixez le début du câble et le raccord.
- Commencez à poser la section en évitant les intersections et les contacts de câbles. La distance optimale entre les tours est de 8 cm L'étape de pose est strictement observée sur tout le périmètre. Les virages sont rendus lisses, sans fractures ni tensions aiguës.
Les virages sont rendus lisses, sans fractures ni tensions aiguës
Les boucles de câble sont très pratiques à fixer avec des languettes saillantes fournies sur le ruban de montage
Installez le capteur de température.
L'extrémité du tube en plastique, près de laquelle se trouve le capteur, est recouverte d'un bouchon, le second est connecté au thermostat et inséré dans la rainure qui lui est réservée. Il est d'usage de respecter le rayon de courbure du tube - 5 cm et la distance entre le mur et l'emplacement même du capteur - 50-60 cm.Ainsi, l'appareil pourra déterminer correctement la température, et dans le en cas de panne, vous n'aurez pas à ouvrir le plancher.
- Fixez le tube avec la solution. Gardez à l'esprit que les bobines doivent être situées à égale distance de la rainure avec le tube.
- Connectez le capteur et la section de montage au thermostat, vérifiez les connexions.
- Tester les performances du système. Pour ce faire, appliquez une tension pendant 1 minute. Si tout est correctement posé et connecté, le capteur du contrôleur s'allumera et le sol commencera à chauffer.
- Éteindre.
- Dessinez un schéma de mise en page. Vous pouvez même prendre une photo.Ceci est très utile si vous devez effectuer des réparations ou installer des communications d'ingénierie supplémentaires. Sur le schéma, assurez-vous d'indiquer les emplacements de tous les raccords et du capteur.
-
Faire une chape ou un sol autonivelant. La solution, qui doit contenir des plastifiants, est versée à une hauteur de 3 à 5 cm et les poches d'air ne sont pas autorisées, car elles entraîneraient une surchauffe locale.
Après environ un mois, la chape sera complètement sèche et il sera possible de faire un revêtement décoratif dessus. Il est préférable d'utiliser des matériaux à haute conductivité thermique - carreaux, grès cérame, etc. L'essentiel est que l'efficacité du système de chauffage ne soit pas perdue en raison du revêtement de sol supérieur.
| Retrait des murs | |
| Distance des autres éléments chauffants | |
| Paramètres de rainure pour le montage du capteur de température |
|
| Formule de calcul du pas de pose |
|
| Écart maximal par rapport à l'espacement de pavage calculé |
Les points importants!
- Pendant le processus d'installation, il est préférable de ne pas marcher du tout sur le câble. Au cas où, utilisez des chaussures à semelles souples. Pour vous déplacer dans la pièce sans nuire au futur sol chaud, vous pouvez couvrir les zones avec le câble posé avec des feuilles de contreplaqué.
- Un travail précis avec un outil de construction est une condition préalable. Tout dommage mécanique au câble rend le système de chauffage inutilisable ou dangereux.
- Vous ne devez en aucun cas allumer le système alors que la solution est encore humide (temps de séchage - 28-30 jours) !
Types de câbles électriques
Les types de câbles suivants sont sur le marché :
- Monoconducteur résistif.Cette option se caractérise par une simplicité maximale et un faible coût. Un courant traverse l'âme du câble et l'énergie électrique est convertie en chaleur. Une caractéristique clé des câbles unipolaires est la nécessité de les connecter des deux côtés - et cela est parfois difficile.
- Bifilaire résistif. Dans ce mode de réalisation, il n'y a pas seulement un chauffage, mais également un noyau conducteur. Grâce au deuxième noyau, un tel câble ne peut être connecté que d'un côté - cela simplifie l'installation et réduit le niveau de rayonnement électromagnétique généré par la structure.
- Auto-ajustable. Dans ce type de câble, l'élément principal est constitué de manchons en polymère qui convertissent l'électricité en chaleur. Les câbles autorégulants sont considérés comme les plus efficaces et les plus faciles à utiliser, mais ils sont également plus chers que leurs homologues.
En réfléchissant au plan d'aménagement du chauffage par le sol, vous devez tenir compte de la règle principale - les câbles résistifs ne doivent pas être placés sous les meubles et autres objets de la pièce. Le fait est qu'avec cet arrangement, le câble surchauffera définitivement et le sol chaud deviendra tout simplement inutilisable. Lors du choix de l'étape de pose des virages, vous devez vous appuyer sur la puissance requise du chauffage au sol et sur les performances du câble lui-même.

Lorsque le câble est installé, il est nécessaire d'installer un capteur de température dans le tube annelé. Pour installer le capteur, un endroit est généralement choisi entre les spires du câble, éloigné du mur à une distance d'environ 0,5 à 1 mètre. La partie du fil qui assure la connexion entre le thermostat et le capteur de température est posée dans un stroboscope vertical.
































