- Règles de fonctionnement et de maintenance en temps opportun
- Méthodes d'autodiagnostic des pannes
- Diagnostique
- Élimination de certains problèmes dans le fonctionnement de la chaudière
- Erreur 01e
- 02e
- 03e
- 05e
- 10e
- 11ème
- Bruit et bourdonnement
- Pas d'eau chaude
- Classification des dysfonctionnements des chaudières à gaz
- Une série de chaudières à gaz Daewoo
- Comment est le système de chauffage
- Problèmes de fonctionnement des chaudières Kiturami
- Erreur 2E (les trois premiers voyants clignotent)
- Séries et modèles
- Est-ce que ça vaut le coup de faire la réparation soi-même ?
- Que peut-on réparer de ses propres mains
- Le principe de fonctionnement de l'extracteur de fumée d'une chaudière à gaz
- Lorsque la chaudière est allumée, la vanne goutte
- La pompe ne fonctionne pas bien
- Une installation correcte est une garantie de fonctionnement à long terme
- Les principales raisons du fonctionnement instable de la chaudière
- Mesures préventives
Règles de fonctionnement et de maintenance en temps opportun
Les experts recommandent aux propriétaires de chaudières Navien, à la veille de l'exploitation, de se familiariser non seulement avec l'appareil et les paramètres technologiques, mais également avec la matrice des codes du système d'autodiagnostic, que le fabricant est tenu de fournir dans la documentation technique.
Trucs et astuces pour l'entretien des chaudières Navien :
L'algorithme de réglage des performances thermiques de la chaudière dépend directement du modèle de brûleur.Les unités à commande numérique selon le mode thermique défini comprennent un thermostat fonctionnant dans une unité avec une sonde de température ambiante.
Le réglage est automatique, le thermomètre surveille la température intérieure
Après un certain temps, lorsqu'il tombe en dessous d'une certaine limite, le thermostat envoie un signal pour allumer le brûleur ou, à l'aide d'une vanne de régulation, augmente la consommation de gaz.
En règle générale, le thermostat contrôle la température dans une pièce, mais dans le cas où des dispositifs d'arrêt et de contrôle sont installés devant chaque radiateur, la température peut être contrôlée dans toutes les pièces.
Le dispositif de brûleur peut être réglé en tournant la vanne de gaz, ce qui est particulièrement important pour les appareils de type atmosphérique à chambres de combustion ouvertes.
Le changement de mode s'effectue dans le menu de la télécommande.
Algorithme de réglage du mode de fonctionnement de la chaudière via le menu de service :
- Ouvrir les vannes des appareils de chauffage.
- Réglez la valeur souhaitée sur le thermostat de chauffage de la pièce.
- Le brûleur s'arrêtera lorsque la température augmentera de 5 C par rapport au mode défini.
- Appuyez sur "Mode" sur l'écran LCD. Si "0" apparaît à l'écran, saisissez le chiffre "35" à l'aide des touches "+" et "-".
- Lorsqu'il est présenté à l'écran "d. 0", composez le numéro de la ligne avec "+" et "-". Le paramètre acquerra la négociation automatique.
- Retournez au menu de service à l'aide de "Mode".
- Procéder au contrôle de la flamme dans la chambre de combustion et de la montée en température.
Dans le même temps, les radiateurs n'ont pas le temps de chauffer et les unités fonctionnelles de la chaudière tombent rapidement en panne.De plus, dans ce mode, une consommation excessive de gaz se produit, en raison de laquelle l'efficacité énergétique de la chaudière et l'efficacité globale du système thermique diminuent.
Supprimer la cyclicité avec 2 options :
- Réduire le chalumeau du brûleur.
- Ils augmentent la charge du système de chauffage en incluant une charge supplémentaire sous la forme de l'installation de radiateurs ou d'un réservoir externe pour le chauffage indirect de l'eau chaude.
Le fabricant de chaudières Navien a étudié toutes les variantes possibles de la défaillance de l'unité et a publié des instructions d'usine pour la réparation et le réglage de l'équipement. Système de diagnostic de pointe identifier les erreurs de travail périphérique et offrir à l'utilisateur des moyens de résoudre les problèmes.
Le système est individuel et dépend du modèle de l'unité et de l'option d'installation - montée ou au sol, ainsi que de la modification de l'unité de contrôle.
C'est une assistante éprouvée même pour un utilisateur inexpérimenté peu versé dans la technologie. C'est grâce aux programmes de diagnostic d'erreurs qu'il est aujourd'hui possible de surmonter rapidement l'urgence et de rétablir le régime de température dans la maison.
Méthodes d'autodiagnostic des pannes
Souvent, l'utilisateur se trouve dans une situation où il ne sait pas exactement ce qui s'est cassé dans la chaudière à gaz. Dans de tels cas, il n'est pas nécessaire de se précipiter pour retirer et réparer quelque chose. C'est risqué et dangereux. Avant le travail, il est nécessaire de diagnostiquer l'équipement et d'identifier les causes exactes des dysfonctionnements.

Si la chaudière fume, la cause de ce phénomène est généralement la consommation de gaz de mauvaise qualité ou le manque d'air. Vous pouvez vérifier vous-même la cause du dysfonctionnement
Les chaudières à gaz modernes sont équipées de divers capteurs qui reflètent un certain nombre d'indicateurs fonctionnels importants de l'unité. Ils suivent les changements de température, de pression et d'autres paramètres.En cas de dysfonctionnement, les modèles modernes de chaudières prévoient l'arrêt automatique de l'appareil.
La source de la panne est identifiée par les conséquences engendrées par celle-ci. Par exemple, visuellement, vous pouvez voir des brûlures, des taches, des étincelles. Par l'odeur, vous pouvez sentir une fuite de gaz ou un court-circuit. Par le son modifié de la chaudière à gaz, il devient clair que l'unité est en panne.
Les instructions fournies avec l'achat de l'appareil décrivent les dysfonctionnements les plus courants du modèle de chaudière acheté et expliquent comment les détecter, les diagnostiquer et les éliminer. Il indique également ce que signifie un code d'erreur spécifique et des voyants clignotants sur le tableau de bord.
Ainsi, la lumière peut clignoter dans différents modes : rapide ou lent. Ou brûler tout le temps. La couleur de l'ampoule peut être rouge, verte ou jaune.

Les instructions du fabricant indiquent tous les codes d'erreur possibles pouvant apparaître à l'écran. Il explique également comment résoudre les problèmes.
Ne jetez pas les instructions de l'appareil, car elles peuvent être utiles au gazier que vous avez appelé pour réparer la panne. Il indique les caractéristiques du modèle de chaudière à gaz, les dimensions et l'emplacement des composants et des pièces.
Diagnostique
Une mise en œuvre compétente de la réparation implique le respect d'une certaine séquence d'actions:

- Dépannage. Il y a des pannes évidentes et implicites. Avec une chaudière qui a cessé de fonctionner, tout est clair, mais il peut y avoir des défauts difficiles à remarquer immédiatement ou qui n'affectent pas beaucoup le fonctionnement de la chaufferie.
- Diagnostic : recherche des causes ayant conduit à la panne. Cela peut être un filtre bouché, une violation de l'intégrité des fils, la défaillance de nœuds individuels.
- Élimination des causes.Vous devez d'abord déterminer s'il sera possible de réparer vous-même la chaudière, dans certains cas, vous pouvez économiser beaucoup en effectuant des manipulations simples, et parfois il y a un risque d'aggraver la situation si de mauvaises actions sont prises.
Référence! Ne démontez pas et ne réparez pas la chaudière tant que la période de garantie de son fonctionnement n'a pas encore expiré. Si le matériel ne peut être réparé par lui-même, les réparateurs refuseront de réparer gratuitement les défauts.
Fonctionnement instable du brûleur, qui s'estompe souvent. Pour maintenir le processus de combustion, la présence d'oxygène est nécessaire, sa carence (pendant le fonctionnement de la chaudière) peut être facilement détectée si, par exemple, les fenêtres de la chaufferie sont ouvertes. La stabilisation de la combustion indique la nécessité d'améliorer la ventilation dans la salle de travail.
Vous devrez peut-être installer des entrées d'air ou une porte avec un évent.

Un débit de gaz insuffisant dans la conduite est déterminé lorsque le tuyau est débranché de la chaudière. Lorsque la vanne est ouverte, un sifflement doit être entendu et l'odeur des additifs dans le mélange gazeux doit être ressentie.
La pression peut chuter suite au colmatage du filtre, pour le nettoyer, il faut retirer et rincer la maille à l'intérieur. Si un blocage se produit dans le compteur de gaz, vous devrez appeler les travailleurs du service de gaz.
Une surchauffe du liquide de refroidissement peut provoquer un arrêt d'urgence de l'équipement. Cela se produit souvent en raison d'un dysfonctionnement de la pompe qui accélère le fluide de travail dans la maison.
Si de l'air est entré dans la chambre de travail de la pompe, pour l'enlever, vous devez y ajouter du liquide de refroidissement.
Parfois, le rotor - un élément de la pompe - se coince et s'arrête de tourner, vous pouvez résoudre le problème en démontant le boîtier, le rotor défile à la main, en éliminant les débris dans la chambre si possible.
Et vous devez également vérifier le vase d'expansion qui, dans les modèles de chaudières modernes, est intégré à l'unité elle-même. La pression à l'intérieur est vérifiée avec un manomètre automobile standard, sa valeur doit être inférieure de 0,2 atm à la pression de travail dans la canalisation.
Si nécessaire, l'air est pompé par une pompe manuelle ou électrique.
Élimination de certains problèmes dans le fonctionnement de la chaudière
Comme toute technique, même la plus fiable, certains problèmes peuvent survenir dans les chaudières Navien, dont certains que le propriétaire de l'appareil peut résoudre lui-même.
Tout d'abord, il est important de reconnaître la cause de la panne. Pour que le propriétaire puisse rapidement découvrir le problème et réagir avec compétence, le système d'autodiagnostic affiche les données avec un code d'erreur
Pour que le propriétaire puisse rapidement découvrir le problème et réagir avec compétence, le système d'autodiagnostic affiche les données avec un code d'erreur.
Voici les codes de panne de la chaudière Navien :
- 01e - l'équipement a surchauffé.
- 02e - il y a peu d'eau dans le chauffage / le circuit du capteur de débit est cassé.
- 03e - il n'y a pas de signal concernant la flamme : il se peut qu'elle n'existe pas vraiment ou qu'il y ait des problèmes avec le capteur correspondant.
- 04e - fausses données sur la présence d'une flamme / court-circuit dans le capteur de flamme.
- 05e - problèmes avec le capteur t d'eau de chauffage.
- 06e - court-circuit dans le capteur d'eau de chauffage t.
- 07e - problèmes avec le capteur t d'alimentation en eau chaude.
- 08e - court-circuit dans le capteur t d'alimentation en eau chaude.
- 09e - un problème avec le ventilateur.
- 10e - problème de désenfumage.
- 12 - la flamme s'est éteinte pendant le travail.
- 13e - court-circuit dans le capteur de départ de chauffage.
- 14e - pas d'alimentation en gaz.
- 15e - un problème avec la carte de contrôle.
- 16 - la chaudière est en surchauffe.
- 17e - erreur avec le commutateur DIP.
- 18e - le capteur de désenfumage est en surchauffe.
- 27e - un problème avec le capteur de pression d'air (circuit ouvert ou court-circuit).
Erreur 01e
Une surchauffe de l'équipement peut se produire en raison du rétrécissement des conduits à la suite d'un blocage ou de la panne de la pompe de circulation.
Ce que vous pouvez faire vous-même :
- Examinez la roue de la pompe de circulation pour des dommages à la roue.
- Vérifiez s'il y a une résistance dans la bobine de la pompe, s'il y a un court-circuit.
- Vérifiez le système de chauffage pour l'air. S'il y en a, il faut le saigner.
02e
Une erreur indiquant qu'il y a peu de liquide de refroidissement peut être générée par la chaudière s'il y a de l'air dans le système, peu d'eau, la roue de la pompe de circulation est endommagée, la vanne de distribution est fermée ou le capteur de débit est cassé.
Ce qui peut être fait:
- Purger l'air.
- Ajuster la pression.
- Vérifiez s'il y a une résistance dans la bobine de la pompe, s'il y a un court-circuit.
- Ouvrez la vanne de distribution.
- Vérifiez le capteur de débit - y a-t-il un court-circuit, y a-t-il une résistance.
- Ouvrez le boîtier du capteur, nettoyez le drapeau (mécanisme de déplacement avec un aimant).
Le plus souvent, le problème est la présence d'air dans le système d'eau chaude.
03e
Pas de signal de flamme. Les raisons peuvent être :
- Endommagement du capteur d'ionisation.
- Pas de gaz.
- Pas d'allumage.
- Le robinet est fermé.
- Mise à la terre de la chaudière défectueuse.
L'obstruction du capteur de flamme doit être nettoyée. Le revêtement gris sur l'électrode est nettoyé avec du papier de verre fin.
05e
Ce qui peut être fait:
- Vérifiez la résistance sur l'ensemble du circuit du contrôleur au capteur. Après avoir trouvé un dysfonctionnement, remplacez le capteur.
- Débranchez les connecteurs du contrôleur et du capteur et reconnectez-les.
10e
Des problèmes d'évacuation de la fumée peuvent survenir en raison d'une panne du ventilateur, d'un vrillage ou d'une connexion incorrecte des tubes du capteur au ventilateur. De plus, la cheminée peut être bouchée ou il y a simplement eu une rafale de vent forte et forte.
Ce qui peut être fait:
- Réparez le ventilateur ou remplacez-le.
- Vérifier le bon raccordement des tubes capteurs.
- Nettoyez la cheminée des blocages.
11ème
Un problème avec le capteur de remplissage d'eau - cette erreur n'est fournie que pour les chaudières de fabrication européenne équipées des capteurs appropriés.
Bruit et bourdonnement
Il peut arriver que l'erreur n'apparaisse pas sur l'écran, mais un bourdonnement ou un bruit anormal apparaît dans l'appareil. Cela se produit lorsque l'eau passe à peine dans les tuyaux en raison du tartre, de la surchauffe et de l'ébullition. La raison peut être un mauvais liquide de refroidissement.
Liquide de refroidissement
Procédure de dépannage :
- Vous pouvez résoudre le problème en démontant l'appareil et en nettoyant l'échangeur de chaleur. En cas d'échec, la pièce doit être remplacée.
- De plus, vous devez vérifier les robinets - s'ils sont ouverts au maximum.
- Baissez la température de l'eau. Il est possible que la capacité de la chaudière soit excessive pour la canalisation à laquelle elle est raccordée.
Pas d'eau chaude
Il arrive que la chaudière de chauffage chauffe comme il se doit, mais l'eau pour l'alimentation en eau chaude a cessé de chauffer. C'est un problème avec la vanne à trois voies. Le nettoyage et les réparations n'économiseront pas - vous devez changer la pièce ! Le problème n'est pas rare, les vannes fonctionnent normalement pendant environ 4 ans.
Alors. Les chaudières Navien sont des équipements fiables et économiques. Avec un bon fonctionnement et une approche compétente des difficultés rencontrées, les problèmes peuvent être éliminés même sans l'intervention de spécialistes du service.
Classification des dysfonctionnements des chaudières à gaz
Le premier type comprend les signes intermittents.Ce sont les plus désagréables, car ils sont très difficiles à diagnostiquer. Des dysfonctionnements de ce type se produisent lorsqu'un paramètre est violé, par exemple, la tension chute en dessous d'un niveau acceptable. Dans ce cas, la plupart des chaudières à gaz ne démarreront tout simplement pas. Si un dysfonctionnement s'est déjà produit, cela entraînera d'autres pannes. Par conséquent, ces signes sont appelés primaires et secondaires.
Les dysfonctionnements peuvent être évidents, ou évidents et non évidents. Les premiers incluent de tels dysfonctionnements faciles à détecter, par exemple un défaut dans l'échangeur de chaleur. Mais il existe aussi de tels dysfonctionnements que seuls les professionnels peuvent détecter.

Installation de chaudière à gaz.
Les pannes peuvent survenir soudainement, alors que rien ne laisse présager ce type de soucis. Il s'arrête inopinément sans aucune raison. Les pannes peuvent également être progressives, dues à la longue durée de vie de la chaudière à gaz, ce qui conduit progressivement à une "fatigue" de l'équipement ou des matériaux à partir desquels ses pièces sont fabriquées.
Le diagnostic exact des pannes ne peut être déterminé que par un spécialiste, car il possède non seulement des connaissances professionnelles, mais également l'équipement approprié pour le diagnostic.
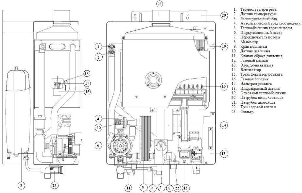
Le système de chauffage est un organisme unique. Toutes ses parties sont interconnectées. La défaillance d'un composant du système entraînera inévitablement un dysfonctionnement de l'ensemble de la structure. Tous les éléments peuvent être divisés en ceux qui sont sujets à réparation et ceux qui ne peuvent pas être réparés. Si une pièce ne peut pas être réparée, elle est immédiatement remplacée par une autre pièce après qu'elle soit cassée.
Une série de chaudières à gaz Daewoo
Daewoo est l'un des conglomérats coréens les plus célèbres, qui a cessé d'exister en 1999.De nombreuses divisions de l'entreprise ont obtenu leur indépendance ou ont fusionné dans la structure d'autres sociétés.
Aujourd'hui, en Corée du Sud, il existe deux sociétés qui étaient auparavant liées à la société et qui produisent des chaudières à gaz :
- Altoen Daewoo Co., Ltd (jusqu'en 2017 - Daewoo Gasboiler Co., Ltd). Désormais, les installations de production sont situées à Dongtan.
- Daewoo Electronics Co., qui produit des équipements à gaz dans les usines de KD Navien.
Les composants des chaudières des deux sociétés sont fabriqués en Corée du Sud et au Japon, et l'assemblage est effectué de manière automatisée.

Altoen Daewoo Co., Ltd n'a pas transféré d'installations de production vers des clusters industriels chinois afin de ne pas perdre la possibilité d'un contrôle qualité constant des produits
Les gammes suivantes de chaudières à gaz d'Altoen Daewoo Co. sont présentées en Russie. Ltd :
- DGBMCF. Chaudières à chambre de combustion ouverte.
- DGBMSC. Chaudières à chambre de combustion fermée.
- DGBMES. Chaudières à condensation à chambre de combustion fermée. Les modèles de cette ligne disposent d'un programmateur de travail hebdomadaire, d'un panneau de commande autonome et le raccordement de la cheminée est également simplifié.
Tous les modèles des lignes répertoriées sont muraux, à double circuit, c'est-à-dire qu'ils sont conçus pour le chauffage et l'alimentation en eau chaude.

Les modèles de la série DGB sont équipés d'un écran informatif qui affiche un code d'erreur en cas de dysfonctionnement ou de déclenchement du système de diagnostic automatique intégré.
Daewoo Electronics Co. Il existe deux gammes de chaudières à gaz: murale "DWB" et au sol - "KDB".Ils ont leurs propres caractéristiques, notamment des codes d'erreur qui diffèrent des modèles concurrents. Cependant, ces chaudières en Russie ne sont pas largement utilisées.
Par conséquent, l'article ne fournira que des codes d'erreur pour les chaudières à gaz d'Altoen Daewoo Co., Ltd.
Comment est le système de chauffage
Comme déjà mentionné, les systèmes de chauffage modernes sont des systèmes technologiquement complexes. Et l'utilisateur, avant d'entreprendre lui-même les réparations, doit avoir une idée sur son appareil.
Habituellement, l'ensemble du processus de surveillance du fonctionnement d'une installation qui chauffe une maison est effectué à l'aide d'un équipement automatique intégré. Tous les systèmes de chaudières interagissent dans un complexe, et il vaut la peine de se familiariser avec eux en détail
Dans le groupe responsable de la sécurité, les principaux éléments comprennent les dispositifs suivants :
- un capteur responsable du réglage de la poussée. Il peut supporter jusqu'à 750 C. À l'aide d'un tel élément, il est possible de surveiller l'état général de la cheminée. Si des pannes surviennent pendant le fonctionnement normal, la température commence immédiatement à augmenter et le capteur émet un signal. S'il n'est pas inclus dans le kit, il vaut également la peine d'acheter un autre capteur indiquant la teneur en gaz de la pièce.
- un élément tel qu'un monostat permet de protéger une installation à gaz suralimentée d'une nuisance telle qu'une évacuation insuffisante des produits restant après combustion. Cela se produit si la grille de l'échangeur de chaleur est fortement obstruée ou s'il y a des problèmes dans la cheminée ;
- le thermostat "limite" est monté afin de pouvoir contrôler les fluctuations de température du liquide de refroidissement lui-même ;
- à l'aide de l'électrode, le fonctionnement de la flamme est contrôlé ; si l'eau commence à bouillir, toute l'installation arrête son travail;
- le contrôle de la pression à l'intérieur du système est effectué par une soupape de décharge. Si la pression dépasse le repère maximum, l'excès de liquide de refroidissement est évacué par parties.

Problèmes de fonctionnement des chaudières Kiturami
Tous les problèmes n'ont pas leur propre code, nous les considérerons donc séparément.
Le voyant "Réseau" n'est pas allumé - vérifiez l'alimentation dans la prise et le fusible sur le transformateur d'allumage. S'il n'y a pas de tension dans le secteur, appelez un électricien, s'il y en a, appelez le service après-vente.
L'indicateur de manque d'eau sur l'unité de commande est allumé - il n'y a pas d'eau dans l'appareil ou le niveau est trop bas. Des dommages au fil noir de la chaudière et au câble rouge du capteur entraînent également un dysfonctionnement.
Le capteur de température ambiante fonctionne bien, mais les radiateurs sont froids - la pompe de circulation n'accélère pas le liquide de refroidissement à travers les tuyaux ou le fait trop faiblement. Inspectez les pièces de verrouillage sur les tuyaux de chauffage. Vérifiez la pompe elle-même.
Le voyant "Surchauffe" s'est allumé - le système de chauffage ne fonctionne pas correctement. Verifie-la.
Si le problème persiste, procédez comme suit :
- Régler les vannes d'arrêt sur les tuyaux de chauffage.
- Le filtre à mailles doit peut-être être nettoyé. Examinez-le.
- Vérifier la pompe de circulation, réparer ou remplacer si nécessaire.
La diode "Sécurité" est allumée - le gaz pénètre dans le brûleur de la chaudière en petite quantité ou n'entre pas du tout. Inspectez les vannes et ouvrez-les si nécessaire. Le problème demeure - appelez les gaziers.
Représentation schématique d'un thermostat d'ambiance à distance : 5 modes principaux y sont définis, y compris la présence, l'absence, la douche, le sommeil, le contrôle du chauffage de l'eau
La pompe fonctionne trop longtemps. L'indicateur de température de l'eau sur l'unité de commande est constamment allumé - le système de chauffage ne fonctionne pas correctement ou il y a des poches d'air à l'intérieur. Relâchez l'air.
La chaudière a commencé à chauffer plus longtemps - recherchez un problème de pression de gaz et l'état des filtres.
Le brûleur vibre lorsqu'il est allumé - la taille de la cheminée n'est pas suffisante pour l'élimination normale des gaz.
L'efficacité de l'appareil en termes d'alimentation en eau chaude et de chauffage a diminué - de la mauvaise eau ou de la saleté provenant du système de chauffage pénètre dans la chaudière. Le traitement chimique des circuits et de l'échangeur de chaleur aidera.
Erreur 2E (les trois premiers voyants clignotent)
La logique de l'erreur est que la température de départ augmente trop rapidement, c'est-à-dire le liquide de refroidissement en sortie de l'échangeur s'échauffe trop vite et pour éviter une surchauffe d'urgence, le fonctionnement de la chaudière est bloqué pendant deux minutes. La principale raison de ce comportement de la chaudière peut être une mauvaise circulation du liquide de refroidissement. Les causes les plus fréquentes de mauvaise circulation sont :
-
dysfonctionnement de la pompe de circulation ou performances insuffisantes
-
échangeur de chaleur obstrué par de la saleté ou du tartre
-
air dans le système de chauffage
Dans cet article, nous avons examiné les dysfonctionnements les plus courants des chaudières à gaz Buderus. Une liste complète des erreurs est contenue dans le manuel de l'équipement. Les systèmes de gaz modernes sont conçus de manière à ce que les éléments soient aussi accessibles que possible pour faciliter l'entretien. Certaines erreurs peuvent être corrigées par l'utilisateur lui-même, par exemple, constituer la chaudière ou inspecter la cheminée pour les blocages.
Toute action d'autodiagnostic ne doit être effectuée qu'en cas de besoin urgent, conformément aux mesures de précaution et de sécurité. Si vous n'avez pas d'idée sur les principes de fonctionnement et l'appareil d'une chaudière à gaz, il est préférable de faire appel à un spécialiste qualifié
La société Buderus publie des vidéos informatives dans lesquelles le spécialiste parle, notamment des erreurs de chaudière qui se produisent.
Séries et modèles
Daewoo produit les séries suivantes de chaudières à gaz :
- Chaudière à gaz Daewoo DGB. Se compose des modèles DGB-100, 130, 160, 200, 250, 300 et 350. Leur puissance est de 10, 13, 16, 20, 25, 30 et 35 kW. Chaudières atmosphériques à double circuit capables de chauffer des pièces de 100 à 350 m2. Équipé d'un échangeur de chaleur primaire en cuivre à haut rendement et longue durée de vie. L'échangeur de chaleur secondaire est de type à plaques, en acier inoxydable.
- Daewoo MCF. Chaudières murales à chambre de combustion ouverte. Équipé d'un échangeur de chaleur séparé, il a la capacité de fonctionner jusqu'à 3 jours en mode d'urgence. La puissance des chaudières est comprise entre 10,5 et 29 kW.
- Daewoo MSc. Appareils à double circuit avec brûleur fermé. La gamme de modèles étendue se compose de chaudières d'une capacité de 7 à 45 kW. Équipé d'un échangeur de chaleur séparé. Ils peuvent être contrôlés à partir d'une télécommande, qui a une portée allant jusqu'à 50 m.Il existe un programmateur hebdomadaire, qui permet de planifier le fonctionnement de la chaudière avec une grande précision.
- Daewoo MES. Série de chaudières à condensation. La puissance des modèles varie de 19,8 à 40,6 kW. Pour un fonctionnement normal, il est nécessaire de fournir aux unités des conditions appropriées, ce qui n'est possible que dans certaines conditions climatiques.
Toutes les chaudières sont fabriquées selon les méthodes de production les plus efficaces et les plus avancées, ont un ensemble équilibré.
Daewoo incarne constamment le principe de la simplicité, des produits à faible coût et de haute qualité.

Est-ce que ça vaut le coup de faire la réparation soi-même ?
Dans une chaudière à gaz typique, tous les éléments structurels sont conditionnellement combinés en trois groupes :
- brûleur;
- les blocs responsables de la sécurité ;
- une unité d'échange de chaleur équipée d'un ventilateur, d'une pompe de circulation et de nombreux autres éléments.
Lors des réparations, le principal risque de sécurité provient d'une éventuelle fuite de gaz. Cela peut être dû à une réparation, un démontage ou une installation inappropriés d'équipements dotés de fonctions d'alimentation en carburant.
De ce fait, il est préférable de faire réparer ces pièces structurelles par un spécialiste. De plus, l'auto-dépannage dans l'équipement électronique de la chaudière à gaz n'est pas autorisé. Le système automatique est assez spécifique, et si vous n'avez pas les qualifications appropriées, il est impossible de restaurer correctement ce type d'équipement dans la pratique.
Et pourtant, si vous n'avez pas assez d'expérience, mieux vaut confier l'entretien des chaudières de chauffage et la réparation des chauffe-eau à gaz à des professionnels.
Que peut-on réparer de ses propres mains
Tous les autres éléments peuvent être réparés indépendamment, par exemple :
- L'échangeur de chaleur est rincé manuellement (pour cela, l'unité est démontée, après quoi elle doit être correctement mise en place). Vous pouvez effectuer ces travaux sans démontage - en utilisant des pompes.
- Le ramonage de la cheminée sera nécessaire dans les cas où il y a un problème de tirage (un débouchage mécanique ou chimique est effectué).
- Réparation du ventilateur de suralimentation en graissant ses roulements avec de l'huile technique.
En effet, il est possible de réparer soi-même une chaudière à gaz uniquement dans les cas où l'on parle de dommages mécaniques ou de blocages faciles à identifier visuellement (ou par l'odorat).
Les pannes restantes sont considérées comme plus graves, elles sont donc éliminées avec l'aide d'un spécialiste, et non de leurs propres mains.
Le principe de fonctionnement de l'extracteur de fumée d'une chaudière à gaz
Le ventilateur se compose de nœuds :
- Un moteur qui fait tourner la turbine.
- Turbine créant une dépression dans la chambre de combustion.
- Ailettes pour mélanger l'air soufflé.
- Tubes Venturi, qui créent une chute de pression pour le fonctionnement efficace du pressostat.

Dispositif de ventilateur de chaudière à gaz.
La turbine de l'extracteur de fumée est logée dans un carter en tôle galvanisée ou en aluminium. Le moteur est fixé au corps avec des boulons de montage, à travers des coussinets anti-vibrations.
Lorsque 220 volts apparaissent sur l'inductance du stator, l'induit commence à faire tourner la turbine et les pales. L'air d'alimentation est mélangé et les gaz de combustion sont évacués par un tuyau coaxial ou un conduit d'air et une cheminée séparés.
La puissance électrique du ventilateur dépend de la puissance thermique de la chaudière, pour les modèles domestiques, 35 - 80 watts.
Lorsque la chaudière est allumée, la vanne goutte
La situation est simulée lorsque le chauffe-eau est allumé sans prise d'eau.
La raison de l'évacuation de l'eau sera une défaillance de la vanne.
Cela s'explique simplement : avec le chauffage initial du liquide, son volume augmente de 3 %. Ce surplus est rejeté à l'égout. Mais après le dispositif de chauffage maintient simplement l'eau à une température constante.La vanne ne doit pas goutter.
L'apparition de gouttes indique un dysfonctionnement de l'appareil ou son colmatage par des particules de débris.
La seconde, situation considérée, dresse un tableau du bon fonctionnement du mécanisme.
Le chauffe-eau fonctionne avec un apport d'eau accru (prendre une douche). Le volume d'eau chaude sort, le liquide froid entre à sa place. La nouvelle alimentation commence à chauffer - un «nouveau» excès d'eau apparaît, qui est continuellement rejeté dans les égouts.
La troisième situation se présente lorsque la prise d'eau est étirée dans le temps. L'évacuation de l'eau n'a pas à être permanente. Gouttes de la soupape de sécurité par intermittence. Ceci indique le bon fonctionnement de l'appareil.
Par exemple, faire la vaisselle. Le processus de prélèvement d'eau est prolongé. L'eau ne doit pas non plus couler constamment.
La pompe ne fonctionne pas bien
Les utilisateurs de chaudières à gaz sont parfois confrontés à divers problèmes de fonctionnement de l'unité de pompage. Un tel équipement arrête de pomper l'eau si le rotor tombe en panne ou si une quantité importante d'air s'est accumulée à l'intérieur. Pour exclure une telle panne, il est nécessaire de dévisser l'écrou de l'unité et de vidanger l'eau, après quoi l'axe défile de force avec un tournevis plat.

Pompe dans une chaudière à gaz
L'équipement séparé nécessite le respect des règles d'installation. Il est conseillé d'installer la pompe avant la chaudière à gaz, ce qui prolongera la durée de vie du système de chauffage. Cette règle est associée à la présence d'un régime de température élevée à la sortie de la chaudière, ce qui peut endommager l'appareil. Bien entendu, les caractéristiques de conception de la pompe de circulation doivent également être prises en compte, ainsi que la nécessité de monter un filtre ou un puisard directement devant la pompe.
Une installation correcte est une garantie de fonctionnement à long terme
Le processus d'installation et de maintenance des équipements à gaz est réglementé par :
- SNiP 2.04.08-87 (alimentation en gaz).
- SNiP II-35-76 (chaufferies).
- Décret gouvernemental n° 549 de 2008 (règles de fourniture de gaz aux citoyens de la Fédération de Russie).
Ainsi, l'installation, le remplacement et l'entretien des chaudières ne doivent être effectués qu'avec la participation et le contrôle des autorités compétentes, car les appareils à gaz sont des équipements présentant un danger accru.
Pour l'installation et le remplacement non autorisés de chaudières, une amende est prévue. Services d'utilité peut même couper l'alimentation en gaz.
L'installation d'équipements à gaz, réalisée au mépris des règles de base, conduira, au mieux, à son fonctionnement inefficace, et au pire, à une défaillance de la chaudière.
La destruction du boîtier peut se produire si l'appareil est mal attaché, dont la puissance est supérieure à 50 kW (à basse température, il peut se fissurer).
L'installation d'un stabilisateur de tension résoudra le problème des pannes dans la partie électrique de l'équipement de la chaudière. Dans ce cas, il convient de prendre en compte la puissance totale des appareils connectés, les courants de démarrage, dont la valeur est environ 3 fois supérieure à ceux en fonctionnement (ceci est vrai pour les pompes qui distribuent le liquide de refroidissement dans toute la maison).
La prévention de l'équipement de la chaudière aidera à assurer son fonctionnement ininterrompu pendant la saison. Il est recommandé de le réaliser deux fois par an: avant le début de la saison de chauffage et après son achèvement.
Les travaux préventifs comprennent l'inspection des chaudières, des canalisations, la lubrification des roulements, la vérification de l'étanchéité des joints des tuyaux et des tuyaux, le nettoyage de la cheminée.
Les principales raisons du fonctionnement instable de la chaudière
Même la technologie la plus moderne tombe en panne de temps en temps.Dans une telle situation, le propriétaire doit identifier la cause du dysfonctionnement et effectuer une réparation de qualité. C'est impossible si vous utilisez des pièces de rechange bon marché pour chauffer des chaudières.
Le plus souvent, l'équipement cesse de fonctionner pour les raisons suivantes :
- Violation des règles de fonctionnement. Avant d'utiliser l'appareil, les utilisateurs ne lisent souvent même pas les instructions d'utilisation. En conséquence, cela conduit au fait que très vite l'installation commence à exiger de l'attention. Souvent, l'installation de l'appareil est effectuée de manière indépendante, même s'il n'y a aucune expérience en la matière. Ceci est fait pour économiser de l'argent et ne pas payer les services d'un spécialiste. Pour éviter les dysfonctionnements de l'appareil, la meilleure solution serait d'investir dans les services d'un maître capable d'installer correctement la chaudière.
- Tension instable. Dans le secteur privé, c'est l'une des principales causes de défaillance des équipements. Cela peut se produire en raison d'une usure importante du réseau électrique. En outre, la cause des indicateurs de tension de saut peut également être une construction intensive en cours dans des zones adjacentes, utilisant plusieurs machines à souder et l'utilisation d'appareils de chauffage faits maison.
- Épuration des gaz insuffisante. Lors de l'utilisation d'une chaudière fonctionnant sur un tel vecteur énergétique, la contamination du combustible "bleu" peut entraîner des perturbations dans le fonctionnement de l'installation. Lorsque le gaz est sale, il contient de petites fractions solides, ainsi que des gouttelettes d'eau. Ceci provoque une situation de combustion incomplète du carburant. En conséquence, des dépôts sous forme de suie se forment dans le brûleur de la chaudière.
- Faible qualité de l'eau. Si un système de chauffage basé sur une chaudière utilise de l'eau de mauvaise qualité comme moyen de chauffage, l'efficacité de l'installation diminuera avec le temps.De plus, cela a un effet néfaste sur la durée de vie de l'échangeur de chaleur et de l'appareil dans son ensemble.

Mesures préventives
Pour éviter la casse de toutes les pièces de la chaudière, des mesures préventives spéciales sont prises. Avant le début de la saison de chauffage et après celle-ci, l'unité doit être entretenue d'une manière spéciale. Si possible, il est démonté et tous les composants de la pièce de rechange sont soigneusement inspectés pour détecter tout dommage. Tous les dysfonctionnements doivent être éliminés, les pièces cassées remplacées par des neuves ou réparées.

En raison du danger des chaudières à gaz, vous ne devez pas résoudre vous-même les problèmes si vous n'avez aucune expérience dans la réparation d'unités. Il est préférable de confier la réparation de l'appareil à un maître qui, sans erreur, identifiera les pièces cassées et les réparera ou les remplacera par de nouvelles. Lors de l'utilisation et de la maintenance, les instructions du fabricant doivent être respectées.




































