- Types de ventilateurs d'extraction
- Exigences de ventilation dans l'appartement. Taux de change aérien
- Dans le garage
- Caractéristiques du travail
- Erreurs courantes lors de l'installation de la ventilation
- système naturel
- L'importance des calculs préliminaires
- Quand la ventilation forcée est-elle nécessaire ?
- Quelle devrait être la ventilation dans un immeuble
- Quelle devrait être la bonne ventilation dans un appartement et une maison privée
- Types de systèmes de ventilation
- Locaux à équiper de gaines de ventilation
- Locaux supplémentaires
- CARACTÉRISTIQUES DU DISPOSITIF DES SYSTÈMES D'ÉVENT LOCAUX
- Avantages d'un système de ventilation mécanique
- Rédaction d'un projet
- Tâche technique
- Choisir le schéma optimal
Types de ventilateurs d'extraction
Les hottes modernes conçues pour être installées dans la salle de bain sont classiquement divisées en 2 types: simples et automatiques. Ils diffèrent les uns des autres par leur conception, la disponibilité d'options supplémentaires et leur coût. La hotte doit fournir à partir de 25 m3/h d'air frais pour une pièce séparée, à partir de 50 m3 dans le cas d'une salle de bain combinée.
Un équipement simple est un ventilateur électrique, qui est situé dans un boîtier en plastique tubulaire. Il peut être de deux types - intégré ou autonome.

Les dispositifs d'évacuation automatique sont plus faciles à utiliser et nécessitent une participation minimale du propriétaire des lieux dans le processus de contrôle de l'échange d'air.
Une façon populaire d'allumer l'appareil consiste à appuyer sur l'interrupteur qui fournit l'éclairage dans la salle de bain. Cette option permet l'évacuation de l'air pollué de la salle de bain lorsqu'une personne s'y trouve.
L'équipement automatique est équipé d'une électronique qui contrôle efficacement le fonctionnement de l'appareil.

Pendant une courte période, l'humidité n'a pas le temps de s'évaporer complètement de la pièce, il est donc préférable d'installer un interrupteur séparé
Les hottes sont équipées de fonctions supplémentaires :
- minuterie d'arrêt ;
- capteurs d'humidité;
- rétroéclairage coloré.
Le ventilateur s'allume lorsque la valeur d'humidité autorisée est dépassée. Dès que ce paramètre revient à la normale, l'appareil s'éteint.

Les modèles automatiques sont des appareils pratiques et faciles à utiliser qui ne nécessitent pas l'intervention du propriétaire de l'appartement pour contrôler le fonctionnement du système de ventilation.
Les produits automatiques peuvent être équipés d'autres fonctions. Dans les maisons privées, le système de ventilation communique directement avec la rue, de sorte que leurs propriétaires ne seront pas lésés par un ventilateur sur le tuyau d'alimentation avec un diffuseur réglable.
Certains modèles sont équipés d'un clapet anti-retour qui empêche l'air de se déplacer dans la direction opposée. Cette option est utile pour les résidents d'appartements dans des immeubles de grande hauteur pour se protéger des arômes de la salle de bain d'un voisin.

Malgré la simplicité de la conception du système d'échappement pour la salle de bain, il fonctionne parfaitement et fait face à ses tâches.
La hotte moderne, conçue pour être installée dans la salle de bain, a un principe de fonctionnement forcé.L'appareil se compose d'un ventilateur et d'un conduit d'air relié au conduit de ventilation du bâtiment.

Le ventilateur d'extraction axial a une conception relativement simple, qui n'affecte pas la fonctionnalité de l'appareil. En termes de performances, il peut rivaliser avec les climatiseurs.
Pour choisir la hotte optimale, vous devez tenir compte des caractéristiques de la salle de bain et des variétés de systèmes de ventilation existants. Les appareils peuvent différer par leur conception, leur principe de fonctionnement, leur puissance et la disponibilité de fonctions supplémentaires.
Exigences de ventilation dans l'appartement. Taux de change aérien
Les taux de change aérien sont réglementés par des réglementations sanitaires, des actes législatifs. Un projet de ventilation bien préparé dans l'appartement prévoit un remplacement complet de l'oxygène dans le salon toutes les 30 minutes. La valeur finale est facile à déterminer par vous-même, en vous référant aux données tabulaires présentées ci-dessous.
Tableau des normes d'air pur pour différentes pièces
Si nous traduisons les données en valeurs numériques, alors 1 personne vivant dans la maison devrait avoir au moins 30 m3 d'air pur toutes les heures. La conception puis l'installation de la ventilation dans l'appartement ne commencent qu'après des calculs préliminaires, en tenant compte du nombre d'habitants, de la superficie de l'objet.
Dans le garage
Le garage est souvent considéré à tort comme une zone non résidentielle, qui ne nécessite pas de système de ventilation séparé. Même avec une utilisation assez rare de la pièce, il est nécessaire d'y créer un échange d'air mécanique. Le séjour confortable du propriétaire dans le garage, qui est considéré comme un local non résidentiel, n'est pas la principale raison pour laquelle les locaux nécessitent une extraction d'air de haute qualité.
Un bon échange d'air forcé dans le garage vous permet de résoudre un certain nombre de problèmes familiers à de nombreux propriétaires de tels biens immobiliers:
- Empêcher le développement de moisissures et de champignons sur les murs.
- Assurez une élimination de haute qualité des gaz d'échappement et des mélanges volatils nocifs.
- Enlevez l'excès d'humidité introduit dans la pièce avec la voiture.
- Gardez les murs, la fosse d'inspection, les outils, etc. aussi secs que possible.
- Protégez votre véhicule de la corrosion causée par la condensation.
La ventilation forcée de haute qualité du garage vous permet de maintenir les performances de tout ce qui y est stocké. Et économiser sur la ventilation peut entraîner des coûts plus élevés pour les réparations automobiles, l'achat d'un nouvel outil ou le remplacement d'autres articles endommagés qui ont été stockés ici.

Caractéristiques du travail
Pour comprendre la nécessité d'un dispositif de circulation d'air, considérons le fonctionnement de la ventilation dans une pièce fermée dans les immeubles d'habitation :
- Il se compose de tuyaux interconnectés situés à l'intérieur du bâtiment et se terminant sur son toit.
- Les lois physiques de la nature contribuent au mouvement des masses d'air. Ainsi, en raison de la différence de température entre l'intérieur et l'extérieur, une certaine pression se crée dans les canalisations, ce qui provoque le déplacement des masses d'air. C'est ainsi que fonctionne le dispositif de traction naturelle.
-
Le temps venteux affecte la vitesse du flux d'air à l'intérieur des tuyaux de ventilation.
- Pour protéger le pipeline de la poussière et de la saleté, il est recommandé d'installer des grilles de protection aux extrémités des tuyaux.
Erreurs courantes lors de l'installation de la ventilation
Il arrive que le fonctionnement d'un système de ventilation flambant neuf s'avère subitement insatisfaisant ou soit initialement inefficace.
Cela peut être dû à une ou plusieurs erreurs commises lors de son installation. Lorsque vous déterminez comment ventiler correctement la salle de bain, vous devez immédiatement prendre en compte ces points.
Voici quelques-unes des erreurs les plus courantes :
- Le conduit de ventilation est mal conçu, ce qui rend difficile le mouvement des masses d'air.
- L'étanchéité des raccordements des conduits de ventilation est rompue.
- Les ventilateurs sont mal installés et font trop de bruit.
- Le canal traverse les pièces d'habitation de telle manière que le bruit de la ventilation interfère avec la vie normale de la famille.
Vous devez d'abord trouver la cause du problème, puis le résoudre
Un certain nombre de problèmes peuvent être évités en prêtant attention à ces points lors de la conception du système de ventilation.
Si cela n'a pas été fait et que des problèmes sont déjà apparus lors de l'exploitation de la structure, une modification sérieuse de l'ensemble du système de ventilation peut être nécessaire.
Une autre option de dépannage consiste à utiliser différents types d'absorbeurs de bruit pour réduire les effets sonores désagréables.
Pour améliorer le processus de déplacement des masses d'air, vous devrez peut-être installer un ventilateur plus puissant.
Parfois, un bruit excessif pendant le fonctionnement du ventilateur indique une installation incorrecte, dans laquelle le soi-disant «alignement» a été violé. Dans ce cas, il suffit de retirer l'appareil et de le réinstaller en respectant strictement la technologie d'installation.
Habituellement, après cela, la quantité de bruit provenant du fonctionnement du ventilateur est considérablement réduite.
Le type de ventilation d'alimentation dans les salles de bains est extrêmement rarement utilisé, mais si une telle décision est néanmoins prise, vous devez penser à la température de l'air entrant de l'extérieur.
En hiver, le flux d'air froid peut être extrêmement inconfortable pour les visiteurs des toilettes.
Pour résoudre ce type de problème, l'air entrant dans la pièce est chauffé à l'aide d'appareils électriques spéciaux.
Pour assurer une entrée d'air frais suffisante dans la salle de bain, une belle grille est installée au bas de la porte, ce qui rend la pièce moins étanche.
Il existe plusieurs idées fausses courantes qui peuvent affecter négativement le travail de ventilation. Lors de la conception et de l'installation du système, n'oubliez pas que :
- un ventilateur d'extraction ne suffit pas si un apport normal d'air frais n'est pas fourni à la pièce ;
- un système de ventilation à conduits volumineux et volumineux n'est pas toujours plus efficace que les méthodes de ventilation à petit budget, s'ils sont choisis correctement ;
- la présence d'un climatiseur dans la maison, ainsi que d'un purificateur, d'un ioniseur, d'un humidificateur et d'autres appareils similaires n'assure pas une ventilation normale des locaux, car avec leur aide, l'air frais ne pénètre pas dans les pièces.
Habituellement, la conception du système de ventilation de la salle de bain est très simple, vous pouvez le faire vous-même.
Mais si certains calculs ou la mise en place d'un conduit de ventilation de forme complexe sont nécessaires et que le maître novice n'a pas d'expérience dans de tels travaux, il est préférable de consulter des professionnels ou de leur confier entièrement tous les travaux.
La qualité de la ventilation ne peut être négligée, car la santé des habitants de la maison dépend de son état.
système naturel

Ventilation de la pièce
Son travail est basé sur les lois fondamentales de la physique : en raison de la différence de température dans la pièce, une certaine pression est créée. Il pousse les courants d'air à se déplacer. Cela crée une circulation naturelle des masses d'air.
Il y a 2 façons de le faire :
- prévu
- Naturel
Depuis des temps immémoriaux, le naturel est considéré comme un moyen naturel et efficace. En raison de la présence de fissures et d'ouvertures dans les murs, les portes, un échange d'air naturel a été effectué. Cela a permis d'effectuer des travaux même avec des fenêtres et des portes fermées, même pendant la saison froide. Cette méthode est assez efficace. Mais avec les courants d'air à travers les fissures, toute la chaleur de la maison est également partie. Par conséquent, en période hivernale, cette méthode de ventilation était inacceptable.
Désormais, la méthode naturelle est réalisée via un système de traction spécialement équipé dans les maisons. C'est une cavité verticale conçue pour le mouvement des courants d'air. Cette méthode est dite planifiée.
Pour sa mise en place, une hotte est installée dans la maison. Habituellement, il n'est pas situé dans toutes les pièces, mais dans la salle de bain. nœud, dans la cuisine et dans le garde-manger.
Le fonctionnement du schéma de régulation naturelle n'est pas affecté par des facteurs tels que la présence d'électricité ou de chauffage. Son fonctionnement dépend de la température ambiante extérieure. Plus il est bas, plus le travail est efficace. Elle est également affectée par les précipitations et la vitesse du vent.
L'importance des calculs préliminaires
Une ventilation de douche est nécessaire si elle est installée dans un bâtiment en béton ou dans une maison en bois. Il prévient l'impact négatif d'une humidité élevée sur l'intégrité des équipements sanitaires et des matériaux de construction.
Il est nécessaire de suivre les normes SNiP, qui serviront au fonctionnement sûr de la salle à l'avenir. Avant d'équiper la pièce d'une ventilation de vos propres mains, vous devez disposer d'un dessin de la cabine de douche, ainsi que des vestiaires disponibles dans la pièce.
L'élimination de l'excès d'humidité contribue à augmenter la durée de vie de tous les appareils de plomberie en métal et de certains matériaux de construction. Pour la santé normale d'une personne, l'humidité ne doit pas dépasser 65%. Si cet indicateur est surestimé, séjourner dans une cabine de douche peut nuire à la santé de son visiteur.
Dans les normes de SNiP, le concept de "taux de change de l'air" est introduit. C'est le rapport entre le volume d'air entrant ou sortant de la pièce et le volume de la pièce elle-même. L'indicateur minimum selon SNiP est de 50 m3 / heure. Pour les douches publiques - 75 m3 / heure.

L'indicateur minimum de "taux de renouvellement d'air" selon SNiP dans une salle de douche publique est de 75 m3 / h
Quand la ventilation forcée est-elle nécessaire ?
Les documents d'orientation pertinents indiquent que l'échange d'air dans les locaux résidentiels et autres peut être effectué de différentes manières. A savoir, à l'aide d'une ventilation naturelle, forcée ou mixte.
Et le type d'échange d'air à choisir dépend des conditions d'une pièce particulière. Ainsi, le fait qu'un ventilateur soit nécessaire ou non dans une salle de bain particulière dépend des performances et de la stabilité de la ventilation naturelle. Plus précisément, s'il peut fournir un échange d'air suffisant pour maintenir des conditions optimales ou au moins acceptables.
Les ventilateurs modernes sont des produits compacts et économiques conçus pour rendre tout système de ventilation efficace et stable.
Une ventilation adéquate doit évacuer au moins 25 m³ d'air de la salle de bain toutes les heures et au moins 90 m³ d'air des pièces d'habitation et de la salle de bain. Cet indicateur est pertinent s'il y a une hotte aspirante dans la salle de bain qui assure la ventilation des pièces dans lesquelles les résidents séjournent et se détendent régulièrement.
De plus, ces valeurs sont considérées comme le minimum possible et, en réalité, l'échange d'air devrait souvent être plus efficace et productif. La raison en est la qualité insuffisante de l'air extérieur fourni. Par exemple, en raison de la quantité importante de dioxyde de carbone, dont la quantité dans les grandes villes peut bien atteindre 400 cm³, et dans les petites villes - 375 cm³ pour chaque mètre cube d'air.
Par conséquent, afin de réduire le CO2 à des valeurs optimales, une quantité beaucoup plus importante d'air extérieur peut souvent être nécessaire. Par exemple, pour maintenir des conditions optimales dans la salle de bain, vous n'aurez peut-être pas besoin d'un minimum de 25 m³ d'air par heure, mais jusqu'à 150 m³.
Mais la plus grande difficulté est que le système de ventilation naturelle n'est pas stable. Et si à l'extérieur de la fenêtre l'air se réchauffe jusqu'à 15 ° C, alors avec les fenêtres fermées, son effet deviendra presque nul.
L'efficacité du ventilateur dépend du placement correct du ventilateur. Par exemple, ce produit ne doit pas bloquer le canal du système de ventilation naturelle, sinon la situation d'échange d'air ne fera qu'empirer. Par conséquent, un siège séparé doit être préparé pour les fans, comme indiqué sur la photo.
De plus, il est assez difficile de déterminer l'efficacité de la ventilation naturelle - pour cela, vous devrez prendre des mesures à l'intérieur, et au moment où la température de l'air extérieur est de 5 ° C. De plus, cela nécessite un équipement spécial.Par conséquent, dans la plupart des cas, les indicateurs qu'il est temps d'acheter un ventilateur sont des champignons ou de la moisissure dans la salle de bain (par exemple, dans les joints entre les carreaux, d'autres endroits isolés) ou une odeur désagréable. Après tout, la plupart des processus négatifs se produisent sans signes visibles et ne deviennent apparents qu'à des stades avancés.
Un autre inconvénient important de l'échange d'air naturel est l'incapacité de réguler efficacement ses performances.
De plus, l'utilisation de fenêtres et de portes éconergétiques affecte considérablement les performances du système traditionnel. Dont l'étanchéité est violée par les processus naturels d'échange d'air.
En conséquence, on peut souligner que la ventilation naturelle est structurellement fiable, peu coûteuse et capable de faire face aux fonctions qui lui sont assignées. Mais à l'exception des moments critiques causés par l'instabilité de l'échange d'air naturel et des charges importantes lors de l'utilisation de la salle de bain.
Le schéma montre un ventilateur, ainsi qu'un capteur d'humidité (MP590), un relais temporisé (MP8037ADC). Qui sont conçus pour contrôler une alimentation à découpage (PW1245), qui automatisera le système de ventilation et le rendra efficace et économique
Compte tenu de tous ces points, la solution alternative est l'utilisation d'un système de ventilation mixte. Il éliminera de manière permanente l'air pollué, l'humidité de manière naturelle et sous des charges importantes - de force, c'est-à-dire à l'aide d'un ventilateur
Ce qui est plus susceptible de rendre les conditions de vie confortables et sans danger pour la santé, et à un coût modéré.
Dans le même temps, vous ne devez pas utiliser le ventilateur de manière continue. Comme cela augmente considérablement les coûts d'exploitation, réduit la sécurité incendie.
Quelle devrait être la ventilation dans un immeuble
A la question "Quelle devrait être la ventilation dans un immeuble ?" assez facile à répondre - réparable. Il est très facile de vérifier la qualité de son travail. Cela peut être fait en utilisant une feuille de papier ordinaire. Le journal va bien.
Un petit morceau doit être amené à une courte distance de la grille de ventilation et faire attention au comportement du papier. Si le système fonctionne de manière stable, les bords de la feuille s'écarteront vers le trou dans le mur
Important : n'utilisez en aucun cas des allumettes, des briquets et d'autres dispositifs combustibles pour tester
Le fait est que des gaz combustibles facilement inflammables peuvent être présents dans les canaux.
Important : n'utilisez en aucun cas des allumettes, des briquets et d'autres dispositifs combustibles pour tester. Le fait est que des gaz combustibles facilement inflammables peuvent être présents dans les canaux. Cela arrive très rarement, mais peut conduire à des urgences.
Ceci est extrêmement rare, mais peut conduire à des urgences.
Si le morceau de papier ne réagit en aucune façon, cela indique qu'il y a des dysfonctionnements dans le système de ventilation. Afin de vérifier cela, vous devez fournir un courant d'air dans l'appartement en ouvrant les fenêtres et répéter la procédure décrite. Si le papier a commencé à se déplacer sensiblement vers la grille, les canaux du système sont en ordre, sinon le système de ventilation est bouché.
Quelle devrait être la bonne ventilation dans un appartement et une maison privée
Il est important de se rappeler que dans une maison privée, il est nécessaire de concevoir de manière à ce qu'il y ait un afflux d'air frais dans toutes les pièces, qu'elles soient résidentielles ou techniques. Dans le même temps, tenez compte de la destination fonctionnelle de chaque zone et, en fonction de celle-ci, équipez-vous d'une ventilation naturelle ou forcée.
Il est nécessaire de fournir un apport d'air frais d'une quantité de 6 à 7 m3 / h pour chaque mètre cube de la salle de bain et d'environ 8 à 10 m3 / h pour une toilette ou une salle de bain combinée.
En général, il est nécessaire de prendre en compte les caractéristiques suivantes dans une maison privée :
L'espace organisé sous le plancher (caves, placards, réserves) doit être ventilé. Cela évitera l'humidité en l'absence de soleil. Il n'y aura pas non plus d'odeur de moisi et de croissance de moisissures. Lors de l'aménagement de ces zones, il est nécessaire d'organiser des ouvertures pour la ventilation - le diamètre doit être d'au moins 12 cm. Dans le cas d'un trou rectangulaire, les dimensions des deux côtés ne doivent pas être inférieures à 10 cm. De plus, ils doivent être situé au-dessus du niveau du sol d'au moins 30 cm.
Dans les maisons privées de deux étages ou plus, la zone problématique est l'escalier, qui sert de conduit de ventilation naturelle. Mais si l'air s'y déplace librement, il tombera des étages inférieurs vers les étages supérieurs, ce qui contribuera à une forte chute de température à différents étages de la maison. Pour ce faire, il est recommandé de munir chaque pièce du deuxième étage et des étages suivants d'une porte qui ferme hermétiquement. Mais dans le grenier, ils ont mis une ventilation forcée.Cela doit être fait car la faible hauteur du conduit de ventilation ne fournira pas la poussée souhaitée.
Pour la cuisine, il est impératif de réaliser des conduits de ventilation séparés avec un tuyau de sortie situé suffisamment haut au-dessus du niveau du toit
Cela fournira une intensité de tirage suffisante pour débarrasser la pièce de toutes les vapeurs accumulées, des produits de décomposition des gaz et d'autres substances nocives accumulées ici.
Il est à noter que la cuisine est équipée d'une hotte en tube d'acier. De plus, la surface intérieure doit être extrêmement lisse.
Cela contribuera à moins de suie, suie et autres vapeurs grasses.
Pour nettoyer la cuisine, le plus efficacement possible, de toutes les odeurs désagréables, vapeurs et autres particules en suspension, une ventilation forcée est organisée sous la forme d'une hotte aspirante. Son efficacité, notamment au moment de la cuisson, est indéniable.
Les experts recommandent d'organiser une ventilation dont les performances sont supérieures de 20% au volume requis en m3 / h.
Caractéristiques des équipements de ventilation, à la fois dans une maison privée et dans des appartements:
- La cuisine est l'endroit où l'équipement de ventilation doit être abordé de manière très responsable. De plus, en plus du conduit de ventilation, il faut tenir compte des équipements de cuisine. La cuisine d'un volume total de 8 m3 permet l'installation d'un poêle à 2 feux.
- Avec une cylindrée de 12 m3, 3 brûleurs peuvent déjà être utilisés.
- Et ce n'est qu'avec un excès de 15 m3 qu'un poêle à part entière avec quatre brûleurs peut être autorisé.
- Il convient de noter qu'il n'y a pas de conduits de ventilation spéciaux dans les pièces à vivre de l'appartement.C'est pour cette raison qu'il est souhaitable d'installer des fenêtres en plastique avec une valve spéciale qui permet un flux d'air supplémentaire.
- Dans la cuisine, avec une bonne planification, au stade de la construction, il y aura toujours deux ouvertures - une pour la ventilation naturelle de la pièce, la seconde pour la sortie du tuyau de la chaudière ou de la colonne à gaz.
- Le plus souvent, une salle de bain, des toilettes ou une salle de bain combinée est équipée d'un ventilateur spécial de puissance appropriée. Sans cela, l'humidité s'accumulera ici, des champignons se formeront et une odeur de moisi apparaîtra.
L'organisation de la ventilation forcée implique l'installation d'un ventilateur d'extraction.
Types de systèmes de ventilation
Le dispositif de ventilation dans le bain varie en fonction de la conception de la pièce et de son volume total. La ventilation naturelle est basée sur la différence de température et de pression à l'intérieur et à l'extérieur. Pour qu'il fonctionne efficacement, l'entrée d'air est organisée près du poêle, à un niveau de 25-35 cm du sol. La sortie est faite sur des murs opposés à environ 15-25 cm sous le plafond
Mais il est important de considérer qu'un tel schéma n'est pas assez bon pour les hammams, car il fait relativement froid là-bas, et toujours chaud à l'étage.
Le mouvement naturel de l'air dans une telle situation est trop difficile à organiser, vous devrez disposer très soigneusement et avec précision les composants du système de ventilation. Un circuit forcé ne nécessite pas toujours l'utilisation de systèmes de contrôle électroniques, avec des panneaux complexes, etc. Il existe des options plus simples lorsque les fenêtres de ventilation, placées de manière spéciale, sont complétées par un ventilateur d'extraction.La combinaison de tels composants est particulièrement efficace lorsque le bain est situé à l'intérieur de la maison, les fenêtres ne sont pas placées à l'intérieur du mur extérieur, mais sont reliées aux sorties par une longue boîte de ventilation. Les ventilateurs de conduit doivent être sélectionnés avec beaucoup de soin, car les conditions de leur fonctionnement dans les bains diffèrent des paramètres habituels.
La particularité de tels dispositifs réside dans l'imperméabilisation accrue des circuits électriques et des principales pièces mécaniques, dans l'adaptation au travail à des températures élevées sans conséquences pour la technologie. L'état de la ventilation d'alimentation et sa disposition dans chaque pièce sont adaptés aux caractéristiques individuelles et au type de bain. Il s'ensuit que le temps consacré aux calculs et à la réflexion sur le projet n'est pas perdu - cela permettra d'économiser beaucoup d'argent et de temps, d'obtenir le meilleur résultat plus tôt.
Comme on le sait déjà, la majeure partie des projets implique l'emplacement des fenêtres d'introduction à proximité des fours, à 0,25-0,35 m du sol. Avec cette conception, le poêle transfère la chaleur à l'air provenant de l'extérieur et un flux se produit qui se déplace en direction de la hotte. Après avoir surmonté toute la distance, les flux chauds et de rue couvrent finalement tout le volume du hammam, et la zone où se trouve l'étagère supérieure est la plus chauffée.
Dans la deuxième option, en installant un ventilateur d'extraction, il est possible de monter les ouvertures d'entrée et de sortie sur le même mur. Le flux d'air est d'abord dirigé en direction de l'appareil de chauffage. Ayant reçu une impulsion thermique, il commence à monter vers le plafond et se déplace dans un large arc qui couvre toute la pièce. Cette approche sera efficace si le bain est intégré à la maison et n'a qu'un seul mur extérieur, alors qu'il n'est pas nécessaire d'aménager un conduit de ventilation.
Si une baignoire avec un sol qui fuit est créée, la fenêtre d'introduction est placée au même endroit que dans le premier cas, directement à côté du poêle. Lorsque l'air chauffé dégage de la chaleur dans le lobe supérieur du hammam, il se refroidit et descend au sol en sortant par les trous du sol. Cette technique améliore l'évaporation de l'eau accumulée en dessous et permet de retarder la rupture du parquet. La hotte est placée soit dans la pièce voisine, soit dans des canaux isolés qui ne permettent pas à l'air de retourner dans le hammam. La complexité du circuit d'écoulement rend obligatoire l'utilisation d'un ventilateur. Cette option est très rarement utilisée, car il n'est pas facile de tout calculer exactement, il n'est pas facile de prévoir correctement les détails.
Un autre type prévoit un four à fonctionnement continu dont le trou de soufflage remplace la hotte. Pour l'afflux, une fenêtre est pratiquée sous l'étagère en face du four lui-même et au même niveau. L'air froid déplace la masse chauffée vers le haut et, lorsque les parties dégageant de la chaleur du flux descendent, elles pénètrent dans le canal de la soufflante. Il existe des systèmes encore plus complexes lorsqu'une paire de fenêtres d'alimentation et une paire de fenêtres de ventilation de sortie sont placées (toujours avec un type de circulation forcée). Il est assez difficile d'ajuster des complexes compliqués, mais leur efficacité est plus élevée que dans les cas les plus simples.
Le système Bastu consiste à placer des ouvertures d'alimentation (avec des vannes réglables) derrière ou sous le four. L'organisation d'évents sous le poêle n'est pas nécessaire, bien qu'elle soit hautement souhaitable. Par ces ouvertures, l'air de la partie souterraine du bain pénètre dans la pièce, qui est reliée à l'atmosphère extérieure par les évents de fondation.Lorsqu'un bain est fait dans une pièce déjà finie, vous devez choisir une pièce avec une paire de murs extérieurs; lors de la préparation du sous-sol, choisissez un angle qui répond aux mêmes exigences. Les dimensions de l'entrée et de la sortie sont calculées selon les règles générales.
Locaux à équiper de gaines de ventilation
Il est très important d'organiser des conduits de ventilation dans les pièces où l'air est sujet à la pollution. Pour une maison individuelle, il s'agit principalement d'une cuisine, de salles de bains, de celliers, ainsi que d'un point de chauffage individuel (ITP), d'un garage
Dans la salle de bain, l'air est généralement gorgé d'eau et il faut constamment ventiler la pièce pour éviter l'apparition de condensation et de champignons. Dans la cuisine, pendant la cuisson, des particules de graisse, d'humidité et de suie pénètrent dans l'air, qui doivent également être éliminées.
Dans les locaux d'habitation - chambres à coucher, chambres d'enfants, salons - la ventilation est également nécessaire. Cependant, ici, il peut être organisé de manière naturelle. Ceci est réalisé grâce à des cadres de porte lâches (avec des espaces entre le sol et la porte) et des vannes spéciales sur les fenêtres, qui fournissent de l'air de la rue sans ouvrir les fenêtres.
Schémas de ventilation : 1) à l'aide de déflecteurs, 2) à l'aide de vannes
Locaux supplémentaires
aération de la chaufferie
- ITP (point de chauffage individuel) - est généralement situé au sous-sol. Pour assurer l'échange d'air, il est nécessaire de connaître la modernisation de la chaudière:
- Combustible solide (bois, charbon).
- Carburant liquide (carburant diesel).
- Gaz (gaz naturel, réservoir de gaz).
Dans tous les cas, il existe des exigences générales pour la conception de l'ITP:
- Les gaz d'échappement doivent sortir par un système de conduits en acier inoxydable séparé (sandwich).
- Une ouverture de fenêtre est un must.
- Garage - situé, en règle générale, dans l'annexe ou le sous-sol.
Une condition préalable est la présence d'une évacuation locale à partir de l'évacuation et d'une alimentation forcée et d'une ventilation par évacuation.
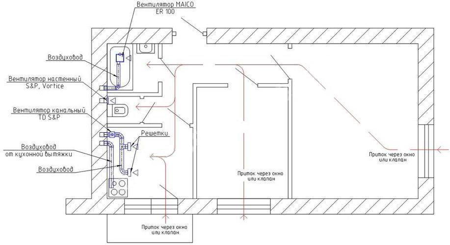
CARACTÉRISTIQUES DU DISPOSITIF DES SYSTÈMES D'ÉVENT LOCAUX
Le système de ventilation local ne dessert qu'une certaine zone de la maison ou une pièce - une salle de bain, une salle de bain, une cuisine, un dressing, un garde-manger.
Règles d'organisation des échanges d'air les salles de bains sont réglementées par le SNiP41-01-2003. La ventilation forcée dans la salle de bain doit fournir 6 ou 8 changements d'air par heure pour s'assurer que la pièce est complètement sèche de l'humidité. Si la superficie de la salle de bain est d'environ 5 mètres carrés. m, alors un ventilateur d'une capacité de 80 à 100 mètres cubes par heure fera face à cette tâche.
Le choix de l'appareil pour l'alimentation dépend de la superficie de la pièce et du nombre de personnes qui utilisent constamment la salle de bain. Dans les salles de bains, les toilettes, les salles de douche, des ventilateurs électriques avec un niveau de protection accru contre l'humidité - IP44 ou IP45 doivent être installés. Il est préférable qu'il s'agisse d'appareils basse tension avec une tension allant jusqu'à 24 V.
Le principal type de ventilation forcée dans la cuisine est l'extraction. La hotte est nécessaire pour éliminer définitivement les produits de combustion, les odeurs, la fumée, la suie de la pièce et les amener à l'extérieur. Selon la méthode d'utilisation de l'air évacué, la hotte de cuisine peut être à circulation et à recirculation.
Le premier élimine simplement les produits de combustion dans la rue, le second les traite et renvoie l'air chaud purifié dans la pièce. Les types les plus courants sont les hottes à flux - elles sont moins chères et fonctionnent plus efficacement.
Selon la configuration et le mode d'installation, les hottes de cuisine sont de différents types :
- suspendu;
- bombé;
- coin;
- île;
- embarqué.
Lors de la construction de systèmes de ventilation, il convient de garder à l'esprit que les hottes de cuisine doivent toujours avoir un clapet anti-retour et un conduit de ventilation séparé pour éliminer le dioxyde de carbone directement dans la rue.
Le raccordement des hottes de cuisine à un système de ventilation commun est interdit.
La direction du conduit de ventilation au-dessus du poêle doit être verticale vers le haut. La hotte de cuisine n'utilise ni plastique ni aluminium - uniquement de l'acier inoxydable ou galvanisé, résistant à la corrosion et aux températures élevées.
L'installation de la ventilation forcée est la partie la plus importante des travaux de construction et de réparation, sans laquelle il est impossible d'assurer des conditions de vie saines et le confort dans la maison. Le bon choix d'équipements et de solutions technologiques permettra au propriétaire de résoudre efficacement le problème d'échange d'air dans une maison ou un appartement et d'économiser de l'argent.
2012-2020 Tous droits réservés.
Les matériaux présentés sur le site sont à titre informatif uniquement et ne peuvent pas être utilisés comme lignes directrices et documents normatifs.
Avantages d'un système de ventilation mécanique
Les conditions modernes du logement urbain sont de plus en plus obligées d'installer une ventilation forcée de la salle de bain. Il a une liste de pros :
- élimination rapide de l'excès d'humidité, de la chaleur et de l'air évacué;
- la possibilité de contrôler le temps, les cycles de ventilation à l'aide d'options supplémentaires pour les équipements mécaniques;
- changement des masses d'air indépendamment de la température de l'air et de la saison ;
- le coût budgétaire de nombreux moyens d'incitation coercitive ;
- la possibilité de régler l'échange d'air non seulement dans la salle de bain, mais dans la cuisine;
- dans la salle de bain, l'équilibre température-humidité est normalisé, la moisissure ne réapparaît pas après son retrait;
- conservation des meubles, des pièces métalliques pendant une longue période;
- la condensation ne reste pas sur les murs, plafonds et autres surfaces.
Rédaction d'un projet
Dans ce cas, on ne peut pas dire qu'un projet de qualité est facile à créer de vos propres mains. Les schémas standard n'existent pas non plus, la raison est simple, il s'agit d'une grande variété de bâtiments, les particularités de l'emplacement des locaux qu'ils contiennent. La conception se compose de 2 étapes: la première est l'élaboration des spécifications techniques, la seconde est la sélection du schéma de ventilation optimal.
Tâche technique
A ce stade, les exigences en matière d'échange d'air sont déterminées: son volume et son type. De plus, pour chaque pièce de la maison (appartement), il existe certains paramètres. Ils doivent toujours être pris en compte.
- Logements, salles transformées en gymnases. Ils ont besoin d'un apport constant d'air frais. Son volume dépend entièrement du nombre de résidents dans les locaux. Souvent, il est nécessaire de prendre en compte non seulement le volume d'échange d'air, mais également la température et l'humidité de l'air soufflé.
- Pièces toujours « humides » : salle de bain, toilettes, toilettes, buanderie. La meilleure option serait un "tandem" - capot naturel et forcé. Le premier fonctionnera tout le temps et l'équipement auxiliaire uniquement en cas de besoin. Par exemple, lorsque vous allumez les lumières.
- La cuisine est une pièce où l'humidité, la suie et la graisse s'accumulent régulièrement. Elle a également besoin d'une combinaison de ventilation naturelle et forcée. Une hotte aspirante installée au-dessus de la table de cuisson doit être allumée pendant le fonctionnement de l'appareil, lorsqu'une quantité importante de vapeur est générée pendant la cuisson.
- Chaudière, four. Dans ce cas, prévoir la construction d'une cheminée.
- Couloir, placard. Ils impliquent une sorte de ventilation naturelle.
- Garage, atelier. Ils ont besoin d'un système autonome.
L'élaboration de spécifications techniques peut être effectuée de manière indépendante ou inviter des spécialistes expérimentés. Ils respecteront eux-mêmes toutes les normes concernant la vitesse et la fréquence des échanges d'air, ce qui signifie que les propriétaires n'auront pas à faire face à des calculs obligatoires.
Choisir le schéma optimal
Quel devrait être le système idéal ? Confortable, fonctionnel, aussi efficace que possible. Une ventilation de qualité doit répondre à plusieurs exigences.
- Un bon système est un système compréhensible et qui permet aux propriétaires qui n'ont pas de connaissances particulières de réguler facilement et simplement le microclimat.
- L'entretien prescrit des équipements de ventilation ne peut créer des difficultés insurmontables auxquelles les résidents eux-mêmes ne peuvent faire face.
- Le nombre minimum d'éléments complexes est le bienvenu. Dans ce cas, les propriétaires n'ont pas à attendre la défaillance d'une partie du système.
- La présence d'une assurance. En cas de défaillance d'un nœud, une solution de secours pourra garantir la poursuite du fonctionnement de la ventilation.
- Furtivité. Cette exigence est l'une des conditions les plus importantes, car tout système ne doit pas gâcher l'intérieur des pièces.
- Le principal doit avoir une longueur minimale, ce qui signifie qu'il n'y a pas trop de conduits, de coudes.
Le choix du schéma de ventilation dépend d'autres facteurs. Elles sont:
- superficie des locaux;
- matériaux des murs, plafonds :
- propreté ou pollution de l'air extérieur;
- possibilités financières des futurs propriétaires de ventilation.
Il est préférable que les propriétaires prennent immédiatement en compte tous les fonds: à la fois un investissement ponctuel pour l'achat de tous les éléments du système et le montant qui sera nécessaire pour l'entretien de la ventilation. Cette liste comprend également le coût de l'électricité dépensée pour maintenir un microclimat optimal.












































