- Désignation des interrupteurs
- Désignations des lettres
- Symboles graphiques et littéraux dans les circuits électriques
- Image des équipements électriques sur les plans
- Matériel électrique, appareils électriques et récepteurs électriques
- Lignes de câblage et conducteurs
- Pneus et jeu de barres
- Boîtes, armoires, boucliers et consoles
- Interrupteurs, interrupteurs et prises
- Lampes et spots
- Dispositifs de contrôle et de gestion
- Les principaux types de prises
- Désignation des prises et interrupteurs sur dessins et schémas
- Pointeurs sur les diagrammes
- Pointeurs sur les dessins de montage en surface
- Panneaux directionnels pour installation cachée
- Symboles pour prises étanches
- Pointeurs du bloc de prises et de l'interrupteur
- Pointeurs d'interrupteurs à une et deux touches
- schéma de câblage
- Désignation des prises sur les schémas de câblage
- Désignation des interrupteurs sur les schémas
- Désignation du bloc d'interrupteurs avec une prise
- Symboles pour d'autres appareils
- Symbole de prise sur le schéma
- Documents d'orientation
- Désignations des éléments de l'installation ouverte
- Prises pour câblage caché
- Appareils avec une protection accrue contre la poussière et l'humidité
- commutateurs
- Blocs de prises
Désignation des interrupteurs
L'interrupteur est un dispositif de commutation conçu pour contrôler les appareils d'éclairage de la maison.Lors de son marche-arrêt, le circuit électrique se ferme ou s'ouvre. En conséquence, lorsque l'interrupteur est allumé, une tension est fournie à la lampe via un circuit fermé et elle s'allume. A l'inverse, si l'interrupteur est éteint, le circuit électrique est coupé, la tension n'atteint pas l'ampoule, et celle-ci ne s'allume pas.
La désignation des commutateurs dans les dessins est effectuée dans un cercle avec un tiret en haut:
Comme vous pouvez le voir, le tiret à la fin a toujours un petit crochet. Cela signifie que le dispositif de commutation est à touche unique. La désignation d'un interrupteur à deux et à trois gangs, respectivement, aura deux et trois crochets :
Semblables aux prises, les commutateurs sont externes et internes. Toutes les désignations ci-dessus se réfèrent à des appareils d'installation ouverte (ou extérieure), c'est-à-dire lorsqu'ils sont montés sur une surface murale.
L'interrupteur d'installation caché (ou interne) sur le schéma est indiqué exactement de la même manière, uniquement avec des crochets pointant dans les deux sens :
Les interrupteurs destinés à être installés à l'extérieur ou dans des pièces très humides ont un certain degré de protection, qui est marqué de la même manière que pour les prises - IP 44-55. Dans les schémas, ces commutateurs sont représentés avec un cercle peint en noir à l'intérieur :
Parfois, vous pouvez voir sur le schéma une image d'un interrupteur, dans laquelle, à partir du cercle, des tirets avec des crochets sont dirigés dans deux directions opposées, comme dans une image miroir. Ainsi, un commutateur est désigné, ou, comme on l'appelle d'une autre manière, un commutateur de passage.
Ils existent également en deux ou trois clés :
Désignations des lettres
Dans les circuits électriques, en plus des symboles graphiques, des symboles alphabétiques sont également utilisés, car sans ces derniers, la lecture des dessins sera assez problématique. Le marquage alphanumérique, ainsi que l'UGO, sont réglementés par des documents réglementaires, pour l'électricité, il s'agit de GOST 7624 55. Vous trouverez ci-dessous un tableau avec BO pour les principaux composants des circuits électriques.
Désignation des lettres des principaux éléments
Malheureusement, la taille de cet article ne nous permet pas de donner toutes les désignations graphiques et alphabétiques correctes, mais nous avons indiqué des documents réglementaires à partir desquels vous pouvez obtenir toutes les informations manquantes. Il convient de tenir compte du fait que les normes actuelles peuvent changer en fonction de la modernisation de la base technique, par conséquent, nous vous recommandons de surveiller la publication de nouveaux ajouts à la réglementation.
Symboles graphiques et littéraux dans les circuits électriques
Tout comme il est impossible de lire un livre sans connaître les lettres, il est impossible de comprendre un dessin électrique sans connaître les symboles.
Dans cet article, nous examinerons les symboles dans les schémas électriques: que se passe-t-il, où trouver le décodage, s'il n'est pas indiqué dans le projet, comment tel ou tel élément du schéma doit être correctement étiqueté et signé.
Mais commençons un peu de loin. Tout jeune spécialiste qui se lance dans le design commence soit par plier des dessins, soit par lire de la documentation normative, soit dessiner « ceci » d'après cet exemple. En général, la littérature normative est étudiée dans le cadre du travail, du design.
Il est impossible de lire toute la littérature normative liée à votre spécialité ou même à une spécialisation plus étroite. De plus, GOST, SNiP et d'autres normes sont périodiquement mises à jour.Et chaque concepteur doit suivre les évolutions et les nouvelles exigences des documents réglementaires, les évolutions des gammes des équipementiers électriques, et maintenir en permanence ses qualifications au bon niveau.
Vous vous souvenez de Lewis Carroll dans Alice au pays des merveilles ?
"Il faut courir aussi vite juste pour rester en place, et pour aller quelque part, il faut courir au moins deux fois plus vite !"
Je ne suis pas ici pour me plaindre de "la dureté de la vie d'un designer" ou pour me vanter de "regardez quel travail intéressant nous avons". Il ne s'agit pas de ça maintenant. Dans de telles circonstances, les concepteurs apprennent de collègues plus expérimentés, beaucoup de choses savent juste comment le faire correctement, mais ne savent pas pourquoi. Ils fonctionnent sur le principe du "C'est comme ça ici".
Parfois, ce sont des choses assez élémentaires. Vous savez comment le faire correctement, mais s'ils demandent "Pourquoi est-ce ?", vous ne pourrez pas répondre tout de suite, en vous référant au moins au nom du document réglementaire.
Dans cet article, j'ai décidé de structurer les informations liées aux symboles, de tout mettre en rayon, de tout rassembler au même endroit.
Image des équipements électriques sur les plans
Selon GOST 21.210-2014, un document qui réglemente les images graphiques conditionnelles des équipements électriques et du câblage sur les plans, il existe des symboles clairs pour chaque type d'appareil électrique et leurs liens de connexion : câblage, pneus, câbles. Ils sont répartis pour chaque type d'équipement et le définissent sans ambiguïté sur le schéma sous la forme d'un symbole graphique ou alphanumérique.
Le document fournit des vues pour :
- Matériel électrique, appareils électriques et récepteurs électriques ;
- Lignes de postes et conducteurs ;
- Pneus et jeux de barres ;
- Boîtes, armoires, boucliers et consoles ;
- Commutateurs, interrupteurs;
- Prises de courant ;
- Lampes et spots.
Matériel électrique, appareils électriques et récepteurs électriques
La catégorie des équipements électriques comprend: les transformateurs de puissance, les disjoncteurs à huile, les sectionneurs et séparateurs, les courts-circuits, les sectionneurs de mise à la terre, les commutateurs automatiques à grande vitesse et les réacteurs à béton.
Les appareils et récepteurs électriques comprennent : les appareils électriques les plus simples, les appareils électriques généraux avec moteurs, les appareils électriques fonctionnant sur un entraînement électrique, les appareils avec générateurs, les appareils qui sont des moteurs et des générateurs, les appareils à transformateur, les installations à condensateur et complètes, les équipements de stockage, le chauffage de type électrique éléments. Leurs désignations sont présentées dans l'image ci-dessous.
Lignes de câblage et conducteurs
Cette catégorie comprend : les lignes de câblage, les circuits de commande, les lignes de tension, les lignes de terre, les fils et câbles, ainsi que leurs types de câblage possibles (en bac, sous plinthe, vertical, en coffret, etc.). Les tableaux ci-dessous présentent les principales appellations de cette catégorie.
Les lignes de câblage sont des câbles et des fils capables de transmettre de l'électricité sur des distances suffisamment longues. Les conducteurs de courant sont le plus souvent appelés appareils électriques capables de transmettre de l'électricité sur une courte distance. Par exemple, d'un générateur de courant à un transformateur, etc.

Pneus et jeu de barres
Les jeux de barres sont des dispositifs de câble constitués d'éléments conducteurs, d'isolants et de distributeurs qui transmettent et distribuent l'électricité dans les locaux industriels. Les symboles pour les pneus et les jeux de barres sont illustrés dans l'image ci-dessous.
Boîtes, armoires, boucliers et consoles
Parmi les cases on distingue branche, initiation, brochage, bridage. Les boucliers sont des laboratoires, des éclairages conventionnels et de secours, des machines. Tous ces éléments sont nécessaires pour distribuer l'électricité entre les différentes sections du circuit et les appareils. La condition de désignation de ces éléments est indiquée sur l'image.
Interrupteurs, interrupteurs et prises
Cela inclut les prises de courant.
Tous ces éléments servent à allumer, allumer et éteindre les circuits électriques.
Il peut s'agir d'un éclairage ou d'un changement de tension. Les tableaux suivants contiennent les principales désignations pour ce type de composants électriques.
Lampes et spots
De nombreux circuits ont des luminaires, des projecteurs et d'autres éléments d'éclairage disponibles. Ils sont nécessaires non seulement pour signaler certains états du circuit, mais aussi pour éclairer certains boîtiers.
Dispositifs de contrôle et de gestion
Ces appareils comprennent des compteurs, des appareils programmés, des compteurs, des manomètres, des thermostats et des relais temporisés. Leur élément principal est constitué de capteurs sensibles à certains facteurs.
Ils ont les désignations suivantes.

L'article ne peut pas correspondre aux désignations graphiques et alphanumériques de tous les appareils et éléments électriques, mais les plus couramment utilisés ont été discutés en détail.La documentation GOST de la désignation graphique schématique des éléments électriques sur des schémas de différents types et types, ainsi que leur interprétation, a également été décrite.
Les principaux types de prises
Une prise électrique (prise de courant) est un appareil qui vous permet d'allumer et d'éteindre rapidement divers appareils du réseau.
Ses principaux éléments sont :
- contacts - assurent une connexion entre le secteur et la fiche ;
- bloc - un boîtier en céramique pour les contacts et les fixations du boîtier d'installation (boîtier de prises);
- étui - joue un rôle décoratif et protecteur.
Au sens général du terme, le produit peut remplir d'autres fonctions. Par exemple, connectez et déconnectez le téléphone, la radio, Internet et même l'approvisionnement en eau des appareils de plomberie. Par conséquent, il existe de nombreuses variétés structurelles et fonctionnelles de ce type de connexion.
Les principaux types de prises utilisées au quotidien varient :
- selon la méthode d'installation, il existe une lettre de voiture et une intégrée;
- par le nombre de nids - simples ou en bloc de deux, trois ou plus;
- par le nombre de connexions - avec et sans contact de mise à la terre ;
- sur rendez-vous - antenne, pour le téléphone et Internet, pour les appareils électroménagers, pour les équipements puissants.
Simple et polyvalent à installer est un appareil monté en surface. Il ne nécessite pas de faire des trous profonds dans le mur, ce qui est pratique pour un placement temporaire ou dans des locaux industriels. Le boîtier, avec le bloc, est fixé à la surface souhaitée et connecté à un câblage électrique ouvert.

Étant donné que l'installation n'est pas effectuée dans une boîte d'installation, les clous à cheville ordinaires conviennent à une fixation fiable sur un plan.
L'option d'installation intégrée a un aspect plus esthétique, car.la partie principale du produit est immergée dans le mur et seul le boîtier de protection reste à l'extérieur. Ainsi, rien n'interfère avec la perception de l'intérieur de la pièce.
Le câblage dans ce cas est également plutôt caché. Pour ce type de fixation, un trou cylindrique est découpé dans le mur, dans lequel le boîtier d'installation est monté. Il fixe solidement et solidement la prise dans le mur.

Selon les règles, il est recommandé d'installer un appareil avec un contact de mise à la terre à une distance d'au moins 500 mm du gazoduc
La version à deux prises est conçue pour connecter deux prises au réseau à la fois. Avec une installation cachée, le bloc est placé dans une boîte à douilles.
Pour augmenter leur nombre (plus de deux), vous devrez faire un trou supplémentaire dans le mur et combiner le boîtier avec un cadre si une installation cachée est supposée. Si le modèle est une lettre de voiture, des blocs modulaires sont ajoutés.

La norme européenne prévoit l'installation d'un point électrique à une hauteur de 30 cm du sol. Cela vous permet de le retrouver rapidement dans l'obscurité au toucher et d'utiliser confortablement une personne de taille moyenne.
Un type de prise moderne - avec un contact de mise à la terre. Il est utilisé dans les réseaux avec fil de terre, plus sûrs que les réseaux de type "phase, zéro".
Des bornes supplémentaires sont attachées à ce fil. Ils entrent tout d'abord en contact avec la fiche connectée, ce qui élimine le risque d'endommagement dangereux par tension et courant des appareils électroménagers défectueux. Il protège également l'équipement contre les interférences du réseau et les interférences électromagnétiques provenant d'autres appareils.
L'antenne n'a pas de tension. Il est utilisé pour connecter le téléviseur au câble d'antenne. La différence externe n'est que le type d'entrée dans le corps.

Il est logique de placer le bloc de prises derrière le téléviseur si le lieu de son installation est prédéterminé afin de ne pas encombrer davantage l'espace avec des câbles
Une prise informatique permet de se connecter à Internet et aux réseaux locaux. Vous pouvez également y connecter un câble téléphonique.
Les connecteurs des câbles Internet et téléphoniques ont la même forme - RJ45 et RJ11 / 12, respectivement. Le premier utilise 8 broches et le second 4 ou 6. Mais pour vous connecter à Internet via une prise téléphonique, vous devrez utiliser un modem qui utilise une connexion commutée.

Les fabricants de câbles Internet ne recommandent pas de torsader un câble à paire torsadée supérieur à 13 mm lors de la connexion pour éviter les problèmes de connexion à Internet.
De tels appareils peuvent être fabriqués dans un boîtier compact ou ressembler à un 220 V ordinaire. Pour connecter un téléphone avec un connecteur à l'ancienne, vous devrez installer une prise avec l'entrée appropriée.
Désignation des prises et interrupteurs sur dessins et schémas
La désignation des prises et autres équipements électriques est appliquée aux schémas électriques, à l'aide desquels les travaux d'installation sont effectués. Chaque élément du système d'alimentation a une désignation qui permet de l'identifier.
La procédure d'indication des signes conventionnels sur les schémas est réglementée par GOST. Cette norme a été publiée relativement récemment. Le nouveau GOST a remplacé l'ancienne norme soviétique. Selon les nouvelles règles, les pointeurs sur les diagrammes doivent correspondre à ceux réglementés.
L'inclusion d'autres équipements dans le circuit doit répondre aux exigences de GOST. Ce document établit des normes pour les panneaux à usage général.La procédure d'organisation du schéma des dispositifs de distribution d'entrée est également réglementée par GOST
Les désignations sont faites sous la forme de symboles graphiques, qui sont les objets géométriques les plus simples, y compris les carrés, les rectangles, les cercles, les lignes et les points. Dans certaines combinaisons, ces éléments graphiques indiquent certains composants d'appareils, de machines et d'appareils électriques utilisés en génie électrique. De plus, des symboles affichent les principes de commande du système.
Pointeurs sur les diagrammes
Vous trouverez ci-dessous une désignation graphique couramment utilisée sur les dessins d'exécution.
Les accessoires sont généralement classés selon plusieurs critères :
- degré de sécurité;
- méthode d'installation;
- Nombre de pôles.
En raison des différentes méthodes de classification, il existe des différences entre les symboles des connecteurs dans les dessins.
Pointeurs sur les dessins de montage en surface
Les désignations des sorties dans le dessin ci-dessous indiquent les caractéristiques suivantes.
- dualité, unipolarité et ancrage ;
- dualité, unipolarité et manque de contact avec la terre ;
- l'unicité, l'unipolarité et la présence d'un contact de protection ;
- prise de courant à trois pôles et protection.
Panneaux directionnels pour installation cachée
L'image ci-dessous montre ces points de vente :
- simple avec un pôle et mise à la terre ;
- jumelé avec un poteau;
- puissance à trois pôles;
- unipolaire et sans contact de protection.
Symboles pour prises étanches
Dans les dessins, les symboles suivants pour les prises étanches à l'humidité sont utilisés :
- simple avec un pôle ;
- simple avec un pôle et un dispositif de mise à la terre.
Pointeurs du bloc de prises et de l'interrupteur
Pour économiser de l'espace, ainsi que pour simplifier la disposition des appareils électriques, ils sont souvent placés dans une seule unité. En particulier, ce schéma vous permet d'économiser sur le déclenchement. À proximité, il peut y avoir une ou plusieurs prises, ainsi qu'un interrupteur.
L'illustration ci-dessous montre une prise et un interrupteur à bouton unique.
Pointeurs d'interrupteurs à une et deux touches
L'image ci-dessous montre ces commutateurs :
- externe;
- factures ;
- interne;
- embarqué.
Vous trouverez ci-dessous un tableau qui montre les indicateurs conditionnels des raccords.
Le tableau montre une large gamme d'appareils possibles. Cependant, l'industrie publie de plus en plus de nouveaux modèles, il arrive donc souvent que de nouveaux raccords soient déjà apparus, mais il n'y a toujours pas de signes conventionnels pour cela.
0,00 / 0
220.gourou
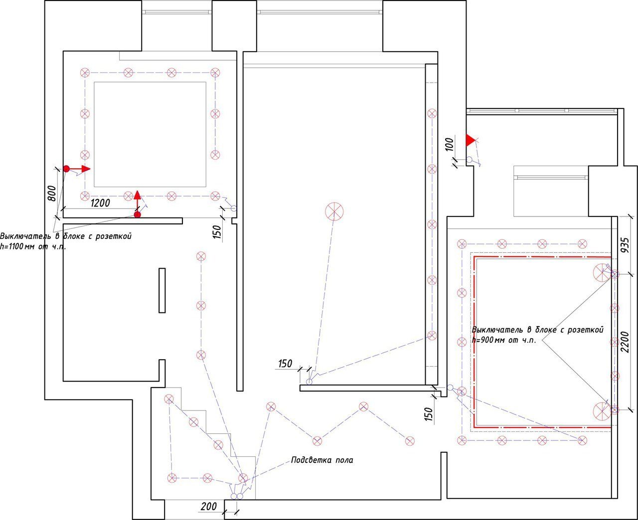
schéma de câblage
L'établissement d'un schéma de câblage est nécessaire lors de la construction ou de la rénovation d'une maison. Ce schéma est réalisé sur le plan d'étage, indiquant la hauteur de pose des câbles et les emplacements d'installation des machines, prises et interrupteurs.
Ce plan sera utilisé non seulement par la personne qui l'a compilé, mais également par les installateurs, puis par les électriciens réparant le câblage électrique. Par conséquent, les images conditionnelles des prises et des interrupteurs dans les dessins doivent être compréhensibles par tous et conformes à GOST.
Désignation des prises sur les schémas de câblage
Symbole de sortie - demi-cercle. Le nombre et la direction des lignes qui en partent montrent tous les paramètres de ces appareils :
- Pour le câblage caché, le demi-cercle est coupé par une ligne verticale. Il est absent des appareils à câblage ouvert;
- Dans une seule prise, une ligne monte. En double - un tel tiret est doublé;
- Une prise unipolaire est indiquée par une ligne, une prise tripolaire - par trois, divergentes en éventail;
- Degré de protection contre les intempéries. Les appareils avec protection IP20 sont représentés par un demi-cercle transparent et avec une protection IP44-IP55 - ce demi-cercle est peint en noir;
- La présence de mise à la terre est indiquée par une ligne horizontale. C'est la même chose dans les appareils de n'importe quelle configuration.
Symbole des prises dans le dessin
Intéressant. En plus des prises électriques, il existe des ordinateurs (pour un câble LAN), des téléviseurs (pour une antenne) et même des aspirateurs, auxquels un tuyau d'aspirateur est connecté.
Désignation des interrupteurs sur les schémas
Les interrupteurs dans tous les dessins ressemblent à un petit cercle avec un tiret incliné vers la droite en haut. Il y a des lignes supplémentaires dessus. Par le nombre et le type de ces lignes, vous pouvez déterminer les paramètres de l'appareil :
- un crochet sous la forme de la lettre «G» - un appareil pour le câblage ouvert, une ligne transversale sous la forme de la lettre «T» - pour caché;
- une caractéristique - un interrupteur à une touche, deux - un interrupteur à deux touches, trois - un interrupteur à trois touches;
- si le cercle est plein, il s'agit d'un appareil étanche IP44-IP55.
Désignation conventionnelle des interrupteurs
En plus des interrupteurs conventionnels, il existe des interrupteurs traversants et croisés qui vous permettent de contrôler la lumière à partir de plusieurs endroits. La désignation de tels dispositifs dans les circuits électriques est similaire aux habituelles, mais il y a deux barres obliques : droite vers le haut et gauche vers le bas. Les signes conventionnels sur eux sont dupliqués.
Désignation du bloc d'interrupteurs avec une prise
Pour une facilité d'utilisation et un aspect plus esthétique, ces appareils sont installés dans des boîtiers de montage adjacents et fermés par un couvercle commun. Selon GOST, ces blocs sont désignés dans un demi-cercle, dont les lignes correspondent à chaque appareil séparément.
La figure suivante montre deux exemples de boîtiers d'interrupteurs et de prises :
- conception pour câblage caché à partir d'une prise avec un contact de terre et un double interrupteur;
- conception pour le câblage affleurant à partir d'une prise avec un contact de terre et deux interrupteurs : double et simple.
Désignation du bloc d'interrupteurs avec une prise
Symboles pour d'autres appareils
En plus des prises et des interrupteurs, d'autres éléments qui ont leurs propres désignations sont également utilisés dans les schémas de câblage.
La désignation des dispositifs de protection : disjoncteurs, différentiels et relais de surveillance de tension est basée sur l'image d'un contact ouvert.
La désignation du disjoncteur selon GOST se compose du nombre requis de contacts connectés les uns aux autres et d'un carré sur le côté. Cela symbolise le fonctionnement simultané des systèmes de protection. Les automates d'introduction dans les appartements sont généralement bipolaires et les unipolaires sont utilisés pour éteindre les charges individuelles.
Disjoncteur sur schémas conventionnels et unifilaires
Il n'y a pas de désignations spéciales selon GOST pour les différentiels et les automates différentiels, ils reflètent donc les caractéristiques de conception. Ces appareils sont un transformateur de courant et un relais exécutif avec contacts. Dans difavtomatah, ils ont ajouté une protection automatique contre les surcharges et les courts-circuits.
Image du différentiel et de l'automate différentiel sur les schémas
Le relais de contrôle de tension éteint les appareils électriques lorsque la tension dépasse les limites autorisées. Un tel appareil est constitué d'une carte électronique et d'un relais à contacts. Cela peut être vu dans le schéma de tels dispositifs.Il est représenté sur le dessus du boîtier.
Circuit de relais de contrôle de tension
Les symboles graphiques des appareils d'éclairage et d'éclairage, y compris les lustres à LED, symbolisent l'apparence et le but des appareils.
Symboles des lampes
La connaissance des symboles des prises et des interrupteurs et autres équipements dans les dessins est nécessaire lors de la rédaction, de l'installation et de la réparation du câblage électrique et d'autres équipements électriques.
Symbole de prise sur le schéma
L'une des prises électriques domestiques les plus courantes est la prise électrique. Sur le schéma, cela peut ressembler à divers symboles, qui dépendent du type et de la conception de cet appareil.
L'étape la plus importante dans la disposition du câblage électrique est la préparation d'un plan pour le placement de tous ses éléments.
L'application correcte de tous les composants du réseau électrique au circuit électrique garantit la planification correcte de la quantité de matériaux requise, ainsi qu'un niveau élevé de sécurité électrique.
Conseils
Un schéma bien établi facilite grandement le choix des types d'équipements nécessaires.
Le plan de câblage électrique est établi en tenant compte de l'échelle des locaux et des caractéristiques de son aménagement.
Documents d'orientation
Afin d'unifier les désignations utilisées dans les circuits électriques, à l'époque soviétique, GOST 21.614-88 «Images graphiques conventionnelles d'équipements électriques et de câblage sur plans» a été adoptée.
Conformément à ce document, les formes géométriques les plus simples sont utilisées pour désigner tous les éléments du réseau électrique, ce qui en facilite l'application, ainsi que pour identifier l'un ou l'autre élément sur le circuit électrique.
Des exigences strictes pour la mise en œuvre de tels dessins éliminent la confusion et la double interprétation de tous les symboles imprimés sur le schéma, ce qui est extrêmement important lors de travaux d'installation dans le réseau électrique
Désignations des éléments de l'installation ouverte
La prise électrique bipolaire la plus simple d'une installation ouverte sans contact de mise à la terre est représentée sur le circuit électrique sous la forme d'un demi-cercle avec une ligne tracée perpendiculairement à sa partie convexe.
La désignation d'une prise double diffère de la précédente par la présence de deux lignes parallèles. Le symbole graphique correspondant à un produit tripolaire est un demi-cercle dont la partie convexe est reliée par trois lignes convergeant en un point et déployées.
Prises pour câblage caché
Le câblage dissimulé est le type de réseau électrique domestique le plus courant. Pour sa pose, on utilise des appareils encastrés dans le mur à l'aide de boîtiers de montage spéciaux.
La seule différence entre la désignation de ces prises et la figure ci-dessus est la perpendiculaire, qui est abaissée du milieu du segment droit au centre du cercle.
Appareils avec une protection accrue contre la poussière et l'humidité
Les prises considérées ne diffèrent pas par un haut niveau de protection contre la pénétration d'objets solides dans leur logement, ainsi que contre l'humidité. Ces produits peuvent être utilisés à l'intérieur, où les conditions de fonctionnement excluent de tels effets.
Quant aux appareils destinés à être installés à l'extérieur ou, par exemple, dans les salles de bain, selon la classification acceptée, leur degré de protection doit être inférieur à IP44 (où le premier chiffre correspond au niveau de protection contre la poussière, le second - contre l'humidité).
Ces prises sont indiquées sur le schéma sous la forme d'un demi-cercle entièrement rempli de noir. Comme dans le cas précédent, les prises étanches bipolaires et tripolaires sont indiquées par le nombre correspondant de segments adjacents à la partie convexe du demi-cercle.
commutateurs
L'interrupteur dans le schéma est indiqué sous la forme d'un cercle, sur lequel une ligne est tracée à un angle de 45 avec une inclinaison vers la droite, ayant un, deux ou trois segments perpendiculaires à la fin (selon le nombre de touches de l'interrupteur représenté).
L'image des interrupteurs encastrés est la même, seuls les segments à l'extrémité de la barre oblique sont dessinés des deux côtés de celle-ci à la même distance.
Il convient de prêter attention à l'image des interrupteurs, qui ressemble à deux interrupteurs ordinaires, reflétés depuis le centre du même cercle.
Blocs de prises
Souvent, en termes de réseau électrique domestique, il est nécessaire de prévoir l'installation de blocs comprenant un nombre différent d'éléments les plus courants - prises et interrupteurs.
Le bloc le plus simple, contenant une prise bipolaire dans sa composition, et un interrupteur encastré simple est représenté comme un demi-cercle, à partir du centre duquel une perpendiculaire est tracée, ainsi qu'une ligne à un angle de 45, correspondant à un interrupteur simple.
De même, des blocs contenant un nombre différent de prises et de commutateurs sont appliqués au diagramme. Par exemple, une unité encastrée, qui comprend une prise bipolaire, ainsi que des interrupteurs un groupe et deux groupes, porte la désignation :
























