- Invention pour dégager les blocages
- Fonction bac à graisse
- Le principe de fonctionnement de l'appareil
- Classement par matériau de fabrication
- Les principales caractéristiques du processus de nettoyage des bacs à graisse
- Marques populaires
- Comment nettoyer les bacs à graisse ?
- Conséquences de ne pas nettoyer le bac à graisse
- À quelle fréquence faut-il nettoyer une hotte de cuisine ?
- Produits prêts à l'emploi pour nettoyer la hotte de la graisse
- Méthodes populaires pour nettoyer les graisses
- Caractéristiques de l'appareil
- Maintenance et contrôle du séparateur
- Prix
- Où acheter un bac à graisse pour les égouts?
- À Moscou
- À Saint-Pétersbourg
Invention pour dégager les blocages
Un bac à graisse peut être un véritable salut pour ceux qui sont constamment confrontés à des égouts bouchés dans la cuisine. L'appareil se compose de plusieurs parties, effectue une tâche spécifique, agissant d'une manière particulière.
Fonction bac à graisse
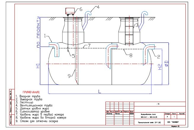
L'appareil, appelé bac à graisse, a une tâche : séparer la graisse de l'eau. L'appareil est fixé aux canalisations d'égout et empêche la formation de bouchons graisseux.
Le graisseur sous l'évier de la cuisine vous permet de toujours garder les tuyaux propres
Le bac à graisse fonctionne consciencieusement grâce aux composants spéciaux :
- tuyau d'admission ;
- septum;
- tuyau de sortie en forme de té.
Tous les éléments qui contribuent au filtrage des graisses de l'eau sont enfermés dans une boîte en plastique.Dans ce cas, les buses d'entrée et de sortie d'eau sont installées de manière à être partiellement à l'extérieur du boîtier.
Le principe de fonctionnement de l'appareil
Le bac à graisse fonctionne comme suit :
- Le tuyau d'arrivée reçoit le liquide s'écoulant de l'évier de la cuisine.
- La chambre primaire est remplie d'eau sale. Le liquide collecté est partiellement nettoyé, tandis que la graisse est transportée vers le haut, où elle restera en raison de la cloison installée. La hauteur de cette barrière est limitée, elle n'occupe que les deux tiers de la taille du caisson.
- À travers la cloison, l'eau, débarrassée de la graisse, pénètre dans le compartiment suivant du corps.
- De la deuxième chambre, le liquide s'écoule le long du fond de la boîte dans le tuyau de sortie en forme de té. De là, l'eau purifiée est envoyée au tuyau d'égout.
En raison du mouvement spécial du liquide, la graisse est bloquée dans le tiroir.
À la suite du passage de l'eau à travers des sections spéciales, la graisse est collectée à la surface du milieu de travail, dont le volume reste inchangé.
C'est intéressant : comment faire une fosse faites-le vous-même - options structures et étapes d'installation
Classement par matériau de fabrication
Les fabricants russes et étrangers de bacs à graisse sont utilisés dans la fabrication de:
- Plastique résistant, souvent utilisé pour les appareils de cuisine, bac à graisse.
- Fibre de verre.
- Acier inoxydable.
Tenez compte des propriétés des matériaux et de leur incidence sur les performances de l'équipement de dégraissage :
- Les équipements en plastique pour la capture des graisses fonctionnent depuis longtemps, plus de 30 ans.
- Le plastique résistant est respectueux de l'environnement, il ne peut pas nuire à l'environnement.
- Les dispositifs en plastique des bacs à graisse pour le lavage sont faciles à entretenir: lavage, nettoyage des surfaces de la graisse avec des outils improvisés.
- À partir de plastique, il est facile de fabriquer des équipements pour bacs à graisse de dimensions spéciales, selon les croquis du client.
- Pour les restaurants et les cafés, le mandat d'équipement pour les pièges à graisse en plastique est excellent, là où des performances élevées ne sont pas nécessaires, le changement de visiteurs n'est pas rapide.
La marque moderne de séparateurs en plastique pour piéger les graisses est le modèle de la société russe "5ème élément".
Les pièges à graisse en fibre de verre sont représentés sur le marché des équipements de ce type par le modèle Eco-J, fabriqué par Ecoline.
Propriétés:
- Les bacs à graisse en fibre de verre résistent à l'exposition à des environnements chimiques agressifs.
- Un excellent équipement de ce type s'adapte au site d'installation, facile à monter à l'extérieur ou à l'intérieur.
- Les bacs à graisse en fibre de verre sont fiables, légers et faciles d'entretien.
Les bacs à graisse en acier inoxydable sont produits par la société du groupe ASO, qui sont installés dans des établissements de restauration à haute productivité. C'est un équipement coûteux mais performant.
Caractéristiques des bacs à graisse inox :
- Des équipements de dégraissage en acier inoxydable pour les égouts sont installés, peut-être sans restrictions (salle, rue).
- Les propriétés hygiéniques accrues du matériau s'intègrent parfaitement dans n'importe quel intérieur de restaurant.
Important! De nombreuses entreprises fabriquent des séparateurs de graisse en acier galvanisé, ils sont solides mais ne peuvent pas avoir les propriétés des séparateurs en acier inoxydable.
Les principales caractéristiques du processus de nettoyage des bacs à graisse
Supprimez les blocages à l'aide d'une méthode manuelle ou hors ligne.La méthode la plus adaptée est choisie après un contrôle minutieux du volume des accumulations de graisse sur les surfaces, de la taille de l'installation et de ses performances. Pour éliminer les dépôts de graisse sur les parois des bacs à graisse, une solution aqueuse composée de préparations chimiques est utilisée. Tout d'abord, vous devez éliminer les caillots accumulés. Sinon, le traitement chimique sera inutile. Pour éliminer les problèmes graves de blocage, vous devrez démonter l'ensemble du système, filtrer et nettoyer manuellement toutes les parties de l'appareil.

L'extraction des dépôts d'huile et de graisse du "piège" est effectuée dans des zones spéciales, appelées décharges. Par conséquent, vous ne pouvez pas vous inquiéter du fait que l'élimination ne sera pas effectuée correctement.
Marques populaires
Connu pour les marques bien connues. EuroREK (matière première de Wavin Labko) est un fabricant européen qui opère en Russie depuis plus de 15 ans. Les pièges à graisse sont solides, stables et durables. Matériau - fibre de verre.
Helyx opère dans toute la Fédération de Russie. Fonctionne depuis 2007. Elle ne produit que des bacs à graisse industriels. Convient pour pub, café ou restaurant. L'usine de fabrication est située dans la région de Tver. Ils fabriquent également des produits en fibre de verre.
Flotenk est sur le marché depuis plus de 12 ans. Haute qualité et stabilité. Elle dispose de 2 usines en Russie de niveau européen : une à Saint-Pétersbourg, la seconde dans la région de Sverdlovsk. Durée de vie supérieure à 50 ans.
Evo Stok (produits russes) utilise du plastique renforcé ou du polypropylène. Les produits conviennent à la fois aux ménages et aux pour locaux industriels.
Il convient de noter les produits russes "Le cinquième élément". Elle produit des bacs à graisse domestiques et industriels. Garantie 5 ans. Pour une maison individuelle, c'est un très bon choix avec un coût optimal.
Comment nettoyer les bacs à graisse ?
Le bac à graisse doit être maintenu propre par un nettoyage régulier. La fréquence de nettoyage dépend de la capacité du bac à graisse et de la contamination des eaux usées. Si le nettoyage n'est pas effectué trop longtemps, une grande quantité de saleté s'accumule dans le bac à graisse, et il perd sa capacité de protection et peut échouer complètement.
De plus, la graisse est un habitat favorable pour diverses bactéries et peut devenir une source d'odeur désagréable. Les bacs à graisse domestiques se nettoient rapidement et facilement, il suffit de collecter périodiquement l'excès de graisse de la surface. Le bac à graisse est complètement déconnecté du réseau d'égouts, après quoi il est nettoyé avec une spatule spéciale, généralement il est inclus dans la livraison, après quoi il est traité avec des produits chimiques. En raison du faible volume des bacs à graisse, cette procédure doit être effectuée une fois par semaine. Après la procédure, il est nécessaire de connecter le bac à graisse et de vérifier l'étanchéité de l'ensemble du système.
Pour nettoyer les bacs à graisse des ateliers, Ecolife utilise son propre savoir-faire - la soi-disant petite pompe à boues. L'appareil a été créé par les mains des spécialistes d'Ecolife et a fait ses preuves dans la pratique.
Considérez le processus de nettoyage d'un bac à graisse standard en utilisant l'exemple de l'un de nos clients réguliers. La chaîne de magasins Perekrestok possède ses propres ateliers pour la préparation de produits semi-finis et finis. Périodiquement, ils effectuent le nettoyage programmé des trappes à graisse.
![]() | ![]() |
| Les travaux de nettoyage des bacs à graisse et d'enlèvement des déchets sont effectués la nuit afin de ne pas interrompre les processus commerciaux de l'entreprise. | Une équipe complète avec tout l'équipement, les matériaux et les outils arrive sur le site. |
![]() | ![]() |
| La petite pompe à boues de conception originale Ecolife est conçue pour le pompage automatique des bacs à graisse avec rechargement du contenu dans des conteneurs spéciaux. | Petite pompe à boues avec installation sous vide. L'unité est équipée de roues et de poignées pour le transport, les dimensions permettent le passage dans des couloirs étroits. |
![]() | ![]() |
| Un des bacs à graisse de l'atelier de produits semi-finis | Bac à graisse avec couvercle ouvert. (Toutes les photos sont agrandies en cliquant) |
![]() | ![]() |
| Vider le contenu du bac à graisse prend quelques minutes. | Le bac à graisse est vide et prêt à être nettoyé avec un réactif. |
![]() | ![]() |
| Préparation d'un pulvérisateur à pompe avec un pulvérisateur pour le travail. | Le réactif est versé pour nettoyer les murs intérieurs bac à graisse. |
![]() | ![]() |
| Le réactif est appliqué sur les parois du bac à graisse. | Bac à graisse nettoyé de l'intérieur. |
![]() | ![]() |
| Le bac à graisse est rempli d'eau et prêt à fonctionner. Le travail a été fait rapidement et efficacement. | Le contenu pompé est sorti sur le chariot. Les "roues de marche" vous permettent de monter les escaliers. |
Voir nos autres réalisations
![]() |
| Propre machine de pompage des boues pour le pompage et l'élimination des déchets solides des bacs à graisse industriels. |
Pour nettoyer les bacs à graisse industriels, Ecolife utilise une technique spéciale - une machine d'aspiration des boues.
Toute la graisse accumulée dans le bac à graisse est aspirée à travers un tuyau dans un récipient spécial. Les bacs à graisse industriels nécessitent un nettoyage moins fréquent que les bacs domestiques, généralement une fois tous les 3 mois.
Toutes les graisses pompées sont transportées vers des décharges spéciales pour l'élimination des déchets.Le client reçoit tous les documents nécessaires et agit sur l'élimination des graisses à la décharge.
La société Ecolife dispose de toutes les licences nécessaires pour mener à bien les activités de collecte, transport, traitement, élimination, neutralisation, élimination des déchets des classes de danger I-IV.
Conséquences de ne pas nettoyer le bac à graisse
Le minimum qui se produira si vous ne nettoyez pas et n'entretenez pas périodiquement les bacs à graisse est la perte des fonctions de protection. Les appareils peuvent cesser de fonctionner correctement, ce qui entraînera par la suite des problèmes d'égouts (le drainage cessera de passer par les tuyaux). Cela se produit en raison de la pollution accumulée en eux, qui durcit et se transforme en particules de pierre. Ce sont eux qui provoquent le plus souvent des accidents dans les canalisations du réseau d'égouts, il ne peut pas être installé à l'intérieur (à l'exception des modèles domestiques spécialement conçus pour une installation sous un évier).
La réparation d'équipements, de trappes à graisse, d'égouts et d'autres systèmes coûte cher et prend beaucoup de temps. Cela entraîne des dépenses financières importantes. Vous devrez dépenser de l'argent pour résoudre le problème, mais en même temps, l'entreprise subira des pertes, car elle ne pourra temporairement pas effectuer son travail normalement. De plus, les usines de transformation des aliments, les restaurants, les cafés et autres établissements de restauration n'ont pas le pouvoir législatif d'éliminer les déchets des pièges à graisse et à huile. Par conséquent, il est préférable de commander un service clé en main pour l'entreprise.
À quelle fréquence faut-il nettoyer une hotte de cuisine ?

La fréquence de nettoyage de la hotte dépend de la fréquence de cuisson.Avec une cuisson régulière, vous devrez laver et nettoyer la structure au-dessus du poêle une fois tous les trois mois. Si vous cuisinez rarement, la fréquence de nettoyage peut être réduite à 1 tous les six mois, voire un an.
À condition de nettoyer régulièrement les graisses, le processus de nettoyage ne prendra pas beaucoup de temps. Si vous connaissez quelques astuces ou utilisez des détergents spéciaux, même les dépôts de graisse à l'ancienne seront faciles à éliminer.
Produits prêts à l'emploi pour nettoyer la hotte de la graisse
Voyons maintenant comment laver hotte aspirante dans la cuisine. Pour ce faire, le moyen le plus simple consiste à utiliser des outils prêts à l'emploi :
- La soude est dans chaque maison. Préparez une solution de soude - prenez un verre de soude pour 2 litres d'eau. Verser la solution dans un récipient d'une taille appropriée pour s'adapter aux pièces de la hotte. Après avoir fait bouillir la solution, faites-y tremper les éléments contaminés pendant une demi-heure. Après cela, la graisse disparaîtra facilement.
- Vous pouvez frotter le revêtement gras sur le corps avec du jus de citron ou une solution d'acide citrique. Après 20 minutes, la surface est rincée à l'eau. Si nécessaire, les pièces peuvent être trempées dans une solution d'acide citrique (4 cuillères à soupe pour 1 litre d'eau).
- Le savon à lessive élimine de nombreuses impuretés. Il suffit de râper un petit pain de savon et de dissoudre les copeaux dans de l'eau chaude. Les pièces de la hotte sont maintenues dans la solution résultante pendant 20 minutes. Ensuite, ils sont bien frottés avec une éponge ou une brosse.
- L'essence acétique dissout les dépôts graisseux et les poussières adhérentes. Il suffit d'humidifier un chiffon dans l'essence et d'essuyer la surface. Après un quart d'heure, les pièces sont rincées à l'eau. Pour tremper les filtres, vous pouvez préparer une solution de vinaigre. Pour ce faire, l'essence est mélangée à de l'eau dans un rapport de 1 à 2. Le filtre est trempé pendant 20 minutes, puis lavé.
- Pour nettoyer la hotte, vous pouvez utiliser un détergent à vaisselle de cuisine ordinaire.Il dissout bien les graisses. La surface peut être lavée avec une éponge imbibée de produit, ou les pièces peuvent être trempées dans une solution additionnée de gel vaisselle.
- Les compositions pour nettoyer les poêles et les fours conviennent également à cet effet. Placez le filtre sur une surface plane, telle qu'une plaque à pâtisserie, puis appliquez-y l'agent de nettoyage avec une éponge. Après une demi-heure, la pièce est intensément frottée avec une brosse dure et rincée à l'eau tiède.
- Le cure-pipe en forme de gel "Mole" est utilisé si aucun autre composé et méthode de nettoyage ne vous aide. Le gel est appliqué sur les surfaces contaminées et laissé agir pendant 30 minutes. Lorsque le gel commence à agir, les amas graisseux vont mousser. Après cela, la pièce n'a même pas besoin d'être frottée avec une brosse, il suffit de bien rincer à l'eau courante.
- L'appareil de cuisine peut être lavé avec de l'eau de Javel ordinaire. Appliquer la solution au pinceau et laisser agir 10 minutes, puis rincer abondamment à l'eau.
Si tout est déjà fatigué et que vous ne savez pas quoi jouer d'autre, vous pouvez essayer de télécharger les machines à sous 1xBet et profiter de nouvelles expériences avec le bookmaker populaire.

Vous pouvez également utiliser un générateur de vapeur pour dissoudre les graisses. Après cela, le dépôt gras est facilement lavé par l'un des moyens ci-dessus.
Méthodes populaires pour nettoyer les graisses
Si vous ne savez pas comment laver la grille de hottes dans la cuisine, vous pouvez alors préparer un moyen efficace de dissoudre les graisses à la maison. Pour le préparer, vous aurez besoin d'acide citrique, de soude, d'ammoniac, de sel, de vinaigre, d'alcool et de savon à lessive.
Nous préparons l'outil comme suit:
- nous recueillons de l'eau froide dans une casserole de cinq litres;
- trois sur une râpe grossière un demi-morceau de savon à lessive et jeter à l'eau;
- versez ensuite une demi-bouteille d'ammoniaque, de peroxyde d'hydrogène ou de colle au silicate;
- puis ajoutez 1-2 cuillères à soupe d'acide citrique, de sel ou de carbonate de soude;
- à la fin, vous pouvez ajouter une demi-cuillère à soupe d'alcool ou de vinaigre.
Après avoir dissous tous les ingrédients, placez le filtre ou les autres pièces à laver dans la casserole. Nous attendons 15-20 minutes pour que la graisse se dissolve bien, retirons la grille et la rincons sous l'eau courante. Pendant le lavage, la surface peut être frottée avec une brosse ou une éponge.
Caractéristiques de l'appareil
Le but de ce type d'équipement est de préparer les eaux usées pour le rejet dans le réseau d'égouts public, qui, selon la loi, est associé à des normes strictes concernant la fraction massique de graisses autorisée dans les eaux usées.
La capacité du bac à graisse est située le long du trajet des effluents dans le collecteur sanitaire des établissements de restauration collective (restaurants, cantines, cafés, chebureks), des locaux industriels de fabrication de produits alimentaires et des maisons particulières.
structure souterraine
Le réservoir remplit les fonctions suivantes :
- sépare, recueille et élimine l'huile et la graisse des drains ;
- protège les cuves de traitement, les égouts propres et publics de la formation de bouchons gras ;
- empêche le blocage des autoroutes dans certaines sections, ce qui peut entraîner un accident grave. Se déposant sur les parois internes des canalisations, la graisse finit par réduire leur diamètre et leur perméabilité, provoquant des blocages ;
- veille au respect des normes en vigueur concernant la teneur en impuretés nocives dans les effluents sous forme de matières grasses ;
- augmente la rentabilité de l'entretien du réseau d'égouts.
Version compacte en plastique
Des exigences assez strictes ont récemment été imposées sur l'état des eaux usées en ce qui concerne la teneur en graisses qu'elles contiennent au niveau législatif. Pour assurer leur respect et éviter les sanctions des autorités de contrôle, les bacs à graisse sont en sous-effectif avec un filtre à sorption. Ceci permet d'obtenir un rendement en produits gras d'au plus 1 mg/l.
Filtre à sorption pour canalisations
En plus de cela, les appareils avec un emplacement souterrain, quels que soient leur type et leur modification, sont équipés des moyens suivants :
- un compteur avec une unité d'accompagnement sonore pour contrôler le niveau de graisse;
- dispositif de contrôle du niveau des sédiments ;
- un dispositif de signalisation du remplissage du réservoir ;
- système automatisé de collecte et d'élimination des graisses;
- système automatisé d'élimination des boues.
Pour le fonctionnement des équipements dans des régions à prédominance de basses températures avec un emplacement peu profond des réservoirs, le corps des bacs à graisse est réalisé sous une forme chauffée.
Le principe de fonctionnement de l'appareil
Maintenance et contrôle du séparateur
L'entretien d'un bac à graisse n'est pas la procédure la plus agréable, mais il est beaucoup plus désagréable de nettoyer les canalisations d'égout bouchées.
La fréquence de nettoyage du séparateur ménager dépend de plusieurs paramètres :
- le volume du réservoir du séparateur de graisse ;
- l'alimentation familiale, qui détermine la composition des eaux usées ;
- la température de l'eau utilisée.
En raison de ces facteurs, la fréquence de nettoyage du séparateur peut varier de plusieurs semaines à plusieurs mois.
Avant de nettoyer le bac à graisse, il est nécessaire d'ouvrir les fenêtres pour la ventilation transversale et de porter des gants de protection, car les bactéries nocives se multiplient lors de la décomposition des graisses.
Une attention particulière au niveau des effluents doit être portée dans les premières semaines d'exploitation.Il est nécessaire d'ouvrir périodiquement le couvercle du bac à graisse et de vérifier le niveau de déchets solides
Si la couche inférieure de graisse tombe au niveau de la sortie, elle peut se boucher, ce qui entraînera un débordement du réservoir et une inondation de la pièce.
Il est souhaitable d'enlever la masse grasse au moment où elle atteint le niveau de 4-5 cm au-dessus du bord inférieur tuyau de sortie d'eau. Pour éliminer la graisse, vous devez ouvrir le couvercle du réservoir et retirer la couche visqueuse supérieure avec des gants, un seau ou un autre appareil improvisé.
Après l'inspection du bac à graisse, vous pouvez le rincer à l'eau chaude l'eau pendant plusieurs minutes.
Lorsque la période approximative de fonctionnement sûr du séparateur de graisse a déjà été établie expérimentalement, vous pouvez l'examiner beaucoup moins souvent.
Prix
Le prix dépend de la capacité du modèle, ainsi que de la disponibilité d'équipements supplémentaires. Les modèles les plus simples à usage domestique peuvent coûter 4 000 roubles. Les industriels ont des prix de 25 à 500 mille roubles.
Où acheter un bac à graisse pour les égouts?
Vous pouvez trouver de tels appareils dans les magasins de plomberie, ainsi que les commander auprès d'organisations vendant des équipements pour l'industrie alimentaire.
À Moscou
À Moscou, les bacs à graisse sont disponibles dans les magasins suivants :
- SARL « Septique » Adresse : rue. Gorbunova, 12 bâtiment 2 bâtiment 4. Téléphone : 8 (495) 215-17-79.
- Stroyservis-AVF LLC. Adresse : Avenue Andropova, 42 bâtiment 1. Téléphone : 8 (495) 565-35-00.
- LLC "Le cinquième élément" Adresse : 2e rue Entuziastov, 5 bâtiment 3. Téléphone : 8 (800) 500-12-19.
À Saint-Pétersbourg
Vous pouvez acheter des bacs à graisse à Saint-Pétersbourg aux endroits suivants :
- Matline Nord-Ouest LLC. Adresse : Sofiyskaya st., 66. Téléphone : 8 (812) 647-49-00.
- Termite. Adresse : av. Défense Obukhov, 141. Téléphone : 8 (905) 297-41-35.
- MegaLine.Adresse : 026 D Komendantskiy avenue, 4 bâtiment 2, lit. R. Téléphone : 8 (812) 448-68-21.
Étant donné que les pièges à graisse sont de conception simple, les modèles domestiques peuvent être fabriqués de vos propres mains. Mais si vous avez besoin d'un appareil qui traite une grande quantité de déchets, vous devriez vous tourner vers des modèles prêts à l'emploi dotés d'équipements supplémentaires.





























































