- Options interdites et autorisées
- Cas où il ne peut pas être transféré
- Bâtiments privés de plain-pied
- Règles générales
- Dans quel cas est-il permis de transférer la cuisine dans la chambre ?
- Comment transférer une cuisinière à gaz?
- Réaménagement d'appartements
- Ventilation
- Que peut-on et ne peut-on pas faire ?
- Lors du déplacement de la cuisine dans la pièce
- En se déplaçant dans le couloir
- A travers la salle de bain
- Autres options
- Réaménagement de la cuisine et de ses caractéristiques
- Comment légaliser le transfert de la cuisine vers le salon ?
- Approbation du projet
- Comment légaliser le transfert de la cuisine au salon - options pour les appartements standard
- Règles standard
- But de la cuisine
- Comment légaliser la reconstruction ?
- Que faire si le réaménagement a déjà été fait ?
- Comment légaliser le transfert de la cuisine au salon - options pour les appartements standard
Options interdites et autorisées
Cas où il ne peut pas être transféré
- Après réaménagement, la salle de cuisine sera située directement sous la salle de bain des voisins d'en haut.
Cette option peut être obtenue si vous augmentez la superficie des nouveaux locaux en raison des mètres carrés de la salle de bain en démolissant la cloison.

Il y a des exceptions ici.
- Cela peut être fait si vous avez un appartement à deux étages.
- Vous pouvez le faire si vous habitez au dernier étage.

La cuisine a déménagé dans le salon avec les communications
- Sous la nouvelle cuisine après réaménagement se trouvent les salons des voisins.
Il y a des exceptions ici aussi.
- Vous pouvez le faire si vous habitez au premier étage.
- Cela peut être fait s'il y a un local non résidentiel sous vous. En règle générale, il s'agit de locaux commerciaux situés aux premiers étages d'immeubles à appartements. Ils peuvent occuper un ou deux étages. Avec un logement au deuxième ou au troisième étage, il y a une chance de s'entendre sur le projet conformément à toutes les règles.

Cuisine dans un grand séjour. L'approvisionnement en eau et les égouts sont reliés à partir de la salle de bain derrière le mur attenant
- Les voisins au-dessus de la cuisine auront des toilettes ou une salle de bain.

C'est bien si l'emplacement de la nouvelle cuisine est proche de l'emplacement d'origine. Ensuite, il sera possible d'éviter les problèmes d'approvisionnement en égouts, en eau et en ventilation.
- La cuisine est gazéifiée.


Il est impossible de démolir la cloison du salon dans une pièce gazéifiée, car. selon les règles, il devrait être isolé. Faisons des portes coulissantes.
Exception : vous pouvez légalement refuser le gaz dans votre appartement à une seule personne en vous adressant à la commune. Une commission spéciale décide d'un projet de reconstruction et de passage à une nouvelle facturation des cuisinières électriques. Après avoir apporté des modifications au plan technique, vous pouvez coordonner le temps de travail avec les services de gaz. Le contrat avec les anciens fournisseurs de services est résilié et un nouveau est conclu avec les fournisseurs d'électricité.
- De la cuisine, il y aura une sortie vers les toilettes ou la salle de bain.
Bâtiments privés de plain-pied
Comment légaliser le transfert de la cuisine vers le salon ? Cette question inquiète tous ceux qui ont commencé le réaménagement de l'appartement. Quand il s'agit d'une maison privée, il n'y a pas de problèmes.Auparavant, ils exigeaient de recueillir une certaine liste de documents, qui comprenait l'autorisation de l'organisation d'approvisionnement en gaz, le consentement de tous les copropriétaires, un projet aux normes sanitaires confirmées et l'enregistrement de l'USRN (anciennement BTI).
Début 2017, une loi est entrée en vigueur, ce qui facilite grandement la coordination des réaménagements dans les résidences privées. Pour obtenir l'autorisation, il suffit de contacter le MFC. Après cela, tous les documents seront transférés à l'inspection territoriale du logement.
Règles générales

Tout changement dans la position des réseaux d'ingénierie dans l'appartement est un réaménagement. Si les égouts sont transférés, toutes les actions doivent être conditionnellement divisées en 2 étapes:
- coordination du réaménagement, obtention de l'autorisation d'effectuer des travaux ;
- réalisation de la partie technique.
Le transfert des égouts dans l'appartement est nécessaire
coordonner avec le BTI et d'autres autorités. Sans entrer dans les détails, notons
la complexité de cette procédure. Tout d'abord, vous devez faire une enquête sur les lieux et
consulter des experts. Il faut savoir dans quelle mesure les attentes
des changements sont possibles et acceptables.
Deuxièmement, vous avez besoin d'une description détaillée
planifier les changements à venir. Il doit être approuvé, puis il devra être convenu
travailler dans le département d'architecture, etc. Les fonctionnaires ou responsables hésitent à se rendre
pour rencontrer les propriétaires d'appartements qui veulent faire des changements drastiques. Il y a
règles bien définies :
- le transfert de la colonne montante d'égout dans l'appartement est interdit. Ici, plusieurs restrictions s'appliquent simultanément concernant les droits de propriété (la colonne montante fait référence à la propriété de la maison commune), techniques (la modification de la configuration des réseaux d'ingénierie est interdite).De plus, le placement de pièces humides au-dessus des pièces à vivre des voisins d'en bas est interdit par la législation sur le logement;
- il est interdit de détruire ou de réduire la taille des murs porteurs. Des actions similaires sont souvent effectuées lors de la combinaison de deux appartements ou de la connexion d'une cuisine à une pièce;
- si la cuisine est déplacée dans le salon, l'égout peut fuir et inonder les voisins d'en bas. Indépendamment du fait qu'une inondation s'est produite dans un local résidentiel ou annexe, des réclamations seront intentées contre le coupable.
Face à ces difficultés, les responsables
essayez de ne pas prendre de risques et ne donnez pas la permission d'effectuer des travaux. Effets
transfert illettré
les égouts peuvent
toucher celui qui a donné la permission pour cette étape. D'autant plus que les règles
parle de changements dans le système général d'assainissement de la maison, et ceux-ci incluent tout
travailler.
Par conséquent, avant les égouts dans
appartement à une autre pièce, vous devez examiner attentivement votre plan et
peser ses faiblesses. S'il y en a trop, il vaut mieux regarder
d'autres options moins problématiques. Cela vous fera gagner du temps, de l'argent,
Éliminez les conversations désagréables avec les voisins.
Dans quel cas est-il permis de transférer la cuisine dans la chambre ?
En étudiant l'ensemble de la réglementation, il semble qu'il soit tout simplement impossible d'obtenir un permis de travail. Cependant, ce n'est pas le cas. Bien qu'il existe de nombreuses interdictions, il est tout à fait possible de procéder au transfert de la cuisine. Dans quels cas la loi sera-t-elle du côté du propriétaire de l'appartement ?
- L'emplacement du logement au rez-de-chaussée vous permet de transférer la cuisine dans n'importe quelle pièce. La principale chose à clarifier est que les sous-sols ne sont pas considérés comme résidentiels.
- Pour les propriétaires d'appartements au dernier étage, il est permis de déplacer les communications vers la salle de bain ou les toilettes.
- S'il y a un garde-manger ou un hall d'entrée sous la cuisine, il est tout à fait possible d'obtenir une autorisation de réaménagement.
- Dans les appartements à plusieurs niveaux, vous pouvez déplacer l'espace cuisine dans n'importe quelle pièce du deuxième étage.
- S'il y a des magasins, des cafés et d'autres locaux non résidentiels sous l'appartement, le réaménagement est autorisé sans aucune restriction.
En plus de ce qui précède, il est nécessaire de prêter attention à un autre point important. Même en conformité sur tous les plans, vous pouvez obtenir un refus si la pièce fait moins de 8 m2
Il y a aussi certaines exigences de température. Elle doit être comprise entre 18°C et 26°C.
Comment transférer une cuisinière à gaz?
cuisinières à gaz
sont les appareils les plus courants dans nos cuisines. A débuté
installer de telles unités il y a plus de cent ans, et les ménagères ont immédiatement apprécié
la commodité des cuisinières à gaz. Bien sûr, les modèles modernes sont fortement
différents de leurs "arrière-grands-mères", ils ont acquis plus de fonctions, sont devenus
plus sûr et plus pratique à utiliser. Et a également conservé une caractéristique commune à tous
cuisinières à gaz - durabilité. Lorsqu'ils sont utilisés correctement, les poêles sont extrêmement rares
sont hors d'usage.
Mais pour tout son
fiabilité, les cuisinières à gaz sont classées comme appareils à haut risque. Violation
règles de fonctionnement menace de conséquences extrêmement graves. C'est pourquoi,
les réorganisations associées au transfert de cuisinières à gaz nécessitent un enregistrement
autorisations.
Pendant la rénovation
cuisine, il devient souvent nécessaire de placer le poêle sur un autre
place. Si le poêle est électrique, le propriétaire peut effectuer lui-même le réaménagement et
aucun permis n'est requis pour une telle modification. Lors du déplacement de gaz
plaques, il devient nécessaire d'allonger les conduites de gazoducs afin d'assurer
approvisionnement en gaz. Il n'est pas permis d'effectuer de tels travaux par vous-même. Prendre conscience de
Seul un spécialiste du Service Gaz peut intervenir sur le gazoduc.
économie.
Pour cela vous
vous devrez émettre un appel au maître à la maison. Indiquez immédiatement le modèle et la marque de votre
plaques, une telle prévoyance fera gagner du temps. Après tout, sinon
cas, le capitaine qui est venu à l'appel peut ne pas avoir les
détails, et vous devrez émettre un appel à nouveau.
Parce que le
l'emplacement du réchaud à gaz est marqué sur le plan RTC, puis son déplacement sera
être considéré comme un réaménagement. Il faut donc préformer
autorisation de reconstruire.
Cependant, il devrait
savoir que lors de la délivrance des permis, l'Inspection du logement est guidée par le
normes, et si elles sont violées, l'approbation sera refusée. Par exemple, vous décidez
procéder au réaménagement avec l'analyse de la cloison entre la cuisine et l'adjacent
chambre. Si l'appartement est
une pièce, le réaménagement peut être interdit sur la base de ce qui n'est pas autorisé
placer des appareils à gaz sur le territoire des locaux d'habitation. Et en cas d'analyse
cloisons, il ne restera plus une seule pièce dans l'appartement qui
être considéré comme résidentiel. Cependant, dans certaines zones, un tel réaménagement est autorisé
sous réserve de la séparation du coin cuisine du séjour lumière coulissante
cloison.Dans le cas où l'appartement dispose de deux salons ou plus, alors
En règle générale, l'obtention d'une autorisation ne pose aucun problème.
Alors peut
des difficultés surgissent avec la coordination du redéveloppement, y compris le transfert
cuisines dans le salon. Un tel réaménagement peut être autorisé
uniquement à condition qu'il n'y ait pas de locaux d'habitation sous votre appartement. Coordination
une telle réorganisation s'opère selon un projet dans lequel, entre autres, devrait
être calculé l'extension du gazoduc. Cette partie du projet doit être approuvée
Service de gaz de ville.
Concernant
le coût de coordination du réaménagement, consistant en le transfert d'un réchaud à gaz, puis
il comprend deux volets - le paiement au Service du Gaz, dont les maîtres
effectuer les réparations et le paiement pour approbation par l'Inspection du logement.
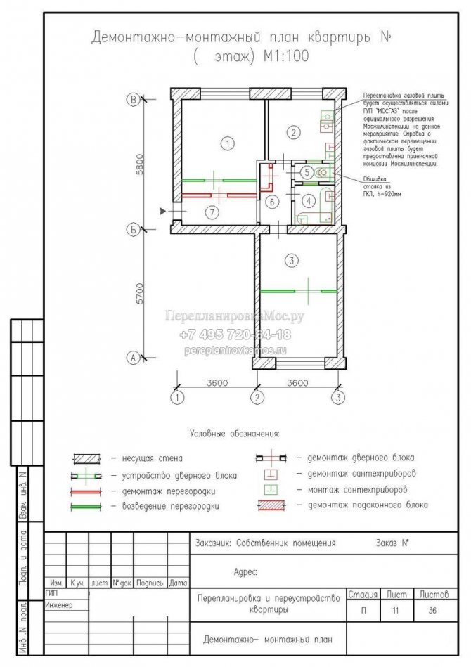
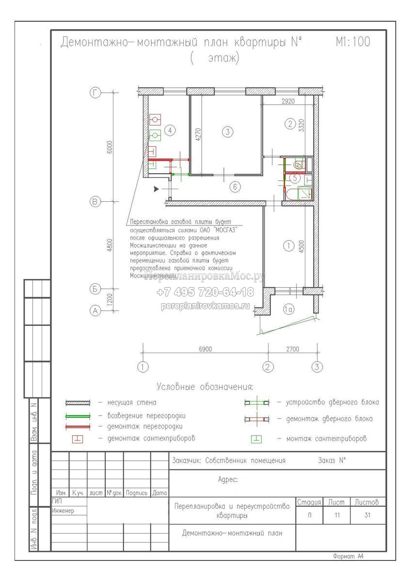
Le transfert de gaz lui-même
les plaques n'ont rien de compliqué et peuvent être faites par le propriétaire lui-même.
Les maîtres devront également payer pour le fait qu'ils apportent du gaz au poêle. Comment
un tel service coûterait-il ? Cela dépend de la distance du tuyau
gazoduc est maintenant situé poêle. Au cas où le mouvement
insignifiant, il vous suffira de le remplacer par un échantillon plus long, un tuyau, selon
auquel le gaz est fourni. Ce service est peu coûteux. En général
distances, il sera nécessaire de connecter des tuyaux supplémentaires au gazoduc, ce qui
est plus complexe et donc plus cher. Habituellement, les services
Les services de gaz pour déplacer la plaque coûtent 1 000 à 3 000 roubles.
Coordination de tels
réaménagement dans certains services de l'Inspection du logement sont gratuits. Mais il y a
les zones où vous devez payer pour cette approbation, le montant de la quittance,
qui devra être soumis au service d'inspection est de 2000 roubles.
Éviter
mauvaises surprises lors de l'accord, il est préférable d'obtenir un préalable
consultation sur la conformité du projet de redéveloppement aux normes et
règles.
Réaménagement d'appartements

La cuisine combinée avec le hall est un phénomène très rare, mais sans aucun doute original.
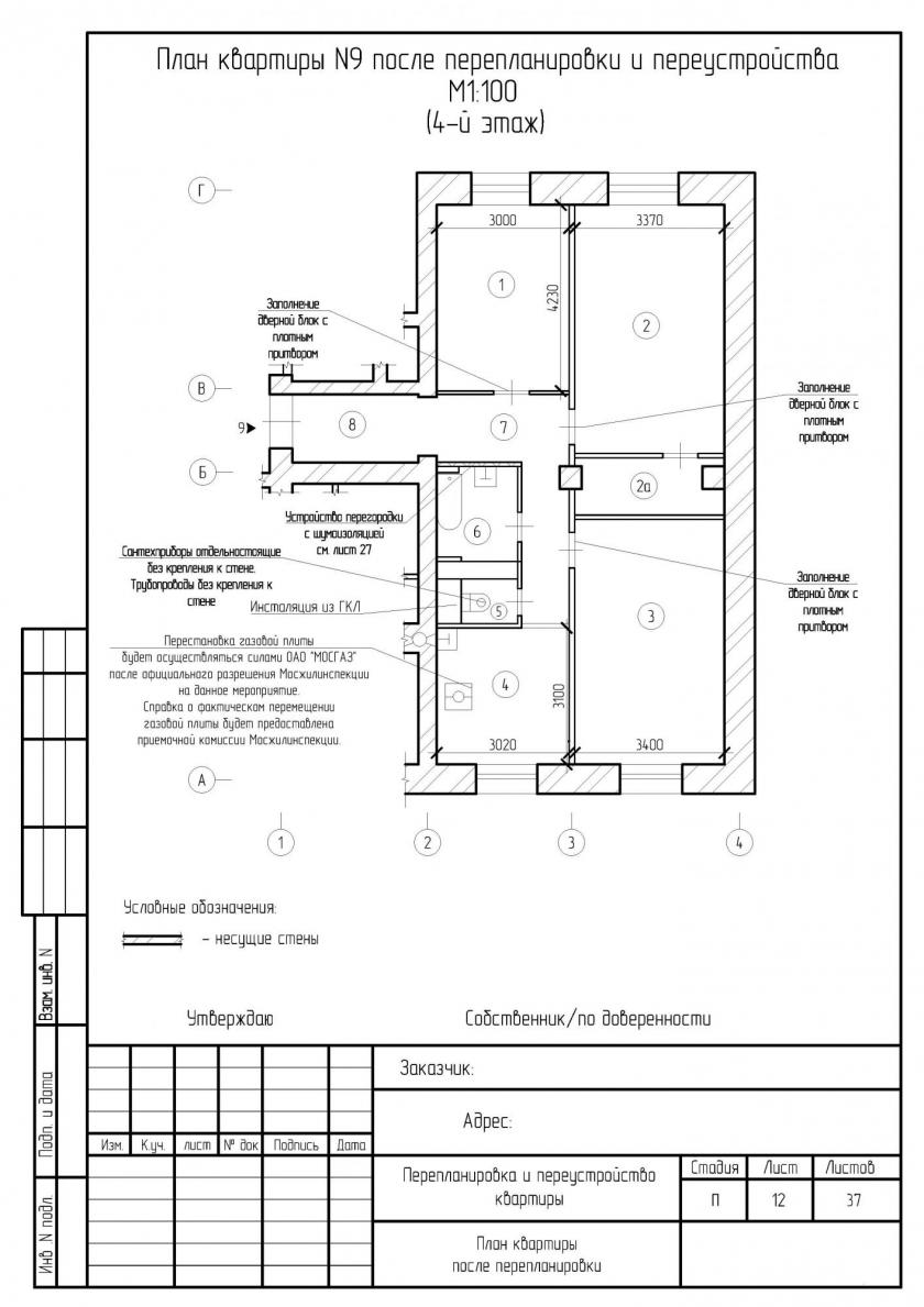
La cuisine peut être déplacée vers un couloir, un salon ou une autre pièce (selon les caractéristiques du plan de la maison). Dans la plupart des cas, les cuisines d'une superficie inférieure à 10 mètres carrés sont transférées. m) Le processus de transfert est assez compliqué à la fois en termes de coordination et de mise en œuvre, car il est nécessaire de transférer et de connecter les communications d'ingénierie aux pipelines existants, ainsi que de prendre en charge la ventilation.
Par exemple, pour assurer l'écoulement gravitaire des eaux usées, les tuyaux doivent être posés en pente. L'angle d'inclinaison requis sera assez difficile à fournir lors du déplacement de la cuisine dans des pièces éloignées. De plus, il peut être difficile de faire passer des tuyaux d'égout sans entrer dans les portes. Si, pour des raisons similaires, la pente appropriée est assurée, il n'y a aucune possibilité, une pompe à eaux usées est utilisée. Son utilisation permet de réaliser un système d'assainissement sans pente. Le seul inconvénient est son coût.
Ventilation
Le réaménagement de l'appartement prévoit une ventilation supplémentaire. Initialement, le canal est monté avec le calcul des dimensions de la pièce et la traction directe. Lors du transfert, vous devrez utiliser des tuyaux et des conduits qui redirigeront le flux d'air. La traction se détériore considérablement si la structure est équipée d'un grand nombre de virages et est également retirée du canal sur une longue distance.Par exemple, après 10 mètres, vous devrez utiliser une ventilation forcée. Pour cela, des ventilateurs sont installés
Il est important de comprendre que l'évent ne peut pas s'ouvrir dans d'autres pièces.

Que peut-on et ne peut-on pas faire ?
Il existe de nombreuses interdictions et restrictions concernant la cuisine.
Lors du déplacement de la cuisine dans la pièce
Est-il possible de réaménager l'appartement - transférer la cuisine dans le salon ? L'emplacement des appartements dans un immeuble résidentiel est typique et les plans d'étage sont les mêmes. La cuisine dispose de canalisations pour l'alimentation en eau et son évacuation après utilisation ; en cas d'accident ou de fuite, les locaux en aval seront inondés.
Est-il possible de s'entendre sur un tel réaménagement - une cuisine au lieu d'une pièce ? Si la cuisine est déplacée vers une chambre à coucher ou une chambre d'enfant, ou une autre pièce, cela constitue une menace potentielle d'inondation d'une pièce située de manière similaire à l'étage inférieur avec de l'eau, donc un tel réaménagement est interdit.
Cette interdiction ne s'applique pas aux premiers étages des immeubles d'habitation.
En se déplaçant dans le couloir
Seront-ils autorisés à déplacer la cuisine dans le couloir ? Le couloir est une zone non résidentielle, lorsqu'il est combiné avec une cuisine, c'est un plus.
Mais la quadrature du couloir n'est pas toujours suffisante pour y allouer de l'espace pour un passage confortable et sans entrave et une niche pour l'équipement de cuisine.
La cuisine dans le couloir n'est pas la meilleure solution, mais pour clôturer une niche pour placer un poêle avec une hotte aspirante, un évier est tout à fait raisonnable.
Idéalement, si la ventilation ne nécessite pas de métamorphose, et sera réalisée à travers les évents de cuisine existants. canaux, car l'utilisation d'appareils à gaz sans ventilation naturelle est interdite.
Il est impossible de détruire des murs porteurs sans accord avec le concepteur et sans prendre des mesures pour renforcer la nouvelle ouverture.
A travers la salle de bain
Dans le "Khrouchtchev", un tel réaménagement ne fonctionnera pas, car agrandir la petite cuisine vers la salle de bain, déplacer la cloison est le seul moyen légal, et il est irréaliste de se déplacer dans les salles de bain de Khrouchtchev.
Les aménagements d'appartements modernes permettent de réduire légèrement la salle de bain et d'agrandir la cuisine, mais il n'est guère possible de résoudre globalement le problème de la transformation d'une cuisine en réfectoire de cette manière.
Il est catégoriquement inacceptable de changer ces pièces par endroits, uniquement de déplacer la cloison vers la salle de bain, en agrandissant la cuisine. La sortie de la salle de bain vers la cuisine est interdite.
Autres options
Le moyen le plus simple d'augmenter la cuisine est de la combiner avec un garde-manger ou un dressing, s'ils sont adjacents, et qu'ils ne sont pas séparés par un mur porteur, mais par une cloison.
Dans ce cas, les modifications globales ne sont pas nécessaires, car :
- la ventilation reste dans la version de conception, naturelle, et utilisant les conduits de ventilation existants ;
- aux étages inférieur et supérieur, il y a aussi des locaux auxiliaires, à des fins non résidentielles;
- la lumière naturelle est préservée dans sa forme originale.
Ces dernières années, il est devenu à la mode d'utiliser un agencement d'équipements de cuisine en îlot, c'est intéressant et pratique, mais vous devrez déplacer une cuisinière à gaz, fournir des tuyaux pour les réseaux d'alimentation et de sortie d'eau et poser des câbles électriques.
Beaucoup d'approbations et un coût de travail considérable - c'est le prix à payer pour appliquer la tendance dans votre appartement.
Réaménagement de la cuisine et de ses caractéristiques
Comment faire une pièce de la cuisine? Le réaménagement de cuisines est une entreprise complexe à la fois techniquement et juridiquement. Tout d'abord, les principes d'utilisation des locaux d'habitation sont pris en compte:
- en tenant compte des droits et intérêts des voisins;
- le respect des normes de sécurité incendie ;
- respect des normes sanitaires et hygiéniques.
Ce ne sont pas des recommandations, mais des exigences inscrites dans les règles d'utilisation de l'immobilier résidentiel. Lors du transfert de la cuisine dans la pièce, ils sont souvent violés.
Actions invalides
Est-il possible de placer la cuisine au-dessus du salon ?
Le propriétaire aura des démêlés avec les autorités de tutelle en cas de :
- placement des salles de bains et des toilettes au-dessus des cuisines et des pièces à vivre (SanPiN 2.1.2.2645-10 ; SNiP 31-03-203) ;
- déménagement de la cuisine dans le séjour (art. 22, décret de la RF Prospect n° 47 du 21 janvier 2006) ;
- placement sur la zone libérée d'une chambre, d'une chambre d'enfant ou même d'un salon ;
- combinant une cuisine gazéifiée avec des chambres pour résidence permanente.
Comment légaliser le transfert de la cuisine vers le salon ?
Je rénove mon appartement. Je souhaite échanger la cuisine et le salon. Comment puis-je le légaliser ? Dites-moi la marche à suivre.
Nous aimerions souligner la procédure correcte pour transférer la cuisine dans le salon, mais il n'y en a pas. Malheureusement, un tel réaménagement ne peut être légalisé.
Selon la loi, il est interdit de placer une cuisine au-dessus des salons des voisins en dessous. Ceci est indiqué au paragraphe 24 du décret du gouvernement de la Fédération de Russie du 26 janvier 2006 n ° 47. Il ne fonctionnera pas non plus de déplacer le mur et d'agrandir la cuisine au détriment d'une autre pièce.
L'interdiction ne s'applique pas si vous habitez au rez-de-chaussée ou au premier étage et qu'il y a des locaux non résidentiels en dessous de vous, comme une épicerie ou un restaurant. Dans ce cas, vous pouvez déplacer la cuisine en toute sécurité dans une autre pièce. Pour ce faire, vous devez postuler avec un projet de réaménagement et une demande d'autorisation auprès de l'inspection locale du logement.
Premièrement, seuls l'évier et le poêle sont repris dans les plans du BTI.Si vous n'allez pas les transférer, il n'y aura pas de problèmes d'harmonisation. Un îlot de cuisine et un réfrigérateur peuvent également être placés dans le salon. Autrement dit, si vous souhaitez créer une cuisine de niche et une grande salle à manger aux dépens de la pièce, un tel réaménagement ne violera pas la loi.
Deuxièmement, le poêle et l'évier peuvent être déplacés vers d'autres locaux non résidentiels - un couloir ou un garde-manger. Vous ne pouvez pas aller aux toilettes ni aux toilettes. On pense que vous aggraverez ainsi vos conditions de vie - placez la cuisine sous la zone humide des voisins d'en haut.
Il y a une autre limite : la cuisine doit avoir de la lumière naturelle. Autrement dit, votre nouvelle cuisine doit avoir une fenêtre ou la lumière doit provenir d'une autre pièce, par exemple à travers une cloison en verre.
Il s'avère que la cuisine peut être déplacée dans le couloir ou le garde-manger, mais pas dans la salle de bain.
Plus difficile avec une cuisinière à gaz. Il est presque impossible de le déplacer, car la cuisine avec un tel poêle doit être isolée et il est interdit de faire passer le tuyau de gaz à travers les pièces d'habitation. Et c'est dangereux.
Il vaut mieux ne pas toucher du tout la cuisinière à gaz.
Troisièmement, malgré le fait qu'il ne devrait pas y avoir de pièces à vivre sous les cuisines, il est possible d'agrandir la pièce aux dépens de la cuisine et vice versa. Pour ce faire, vous devez rendre une nouvelle pièce non résidentielle sur papier. Dans la documentation du projet, une telle pièce peut être appelée bureau ou salon.
Peut-être y a-t-il d'autres astuces que les concepteurs connaissent. Pour ce faire, nous vous conseillons de contacter un architecte compétent pour élaborer un projet.
Approbation du projet
N'oubliez pas qu'il est impossible de déplacer une cuisine sans approbation de projet, car cela doit être reflété dans les documents RTC. Même le transfert d'un évier à l'intérieur de la cuisine nécessite une autorisation préalable de l'inspection du logement.
Si vous décidez d'un réaménagement illégal, des conséquences désagréables peuvent vous attendre. Par exemple, les voisins du dessous se plaindront que vous faites secouer des casseroles au-dessus de leur lit. Ensuite, l'inspection du logement peut vous venir avec un chèque. Elle a le droit d'infliger une amende de 2000-2500 R et d'ordonner de remettre les lieux dans leur état antérieur. Il va falloir tout casser et rendre la cuisine, sinon le tribunal et la vente aux enchères de l'appartement menacent.
De plus, à l'avenir, il est peu probable que vous puissiez vendre un appartement avec un réaménagement illégal. La banque n'approuvera certainement pas les hypothèques pour les acheteurs potentiels.
Comment légaliser le transfert de la cuisine au salon - options pour les appartements standard

Comment repenser la cuisine d'un appartement typique ?
Il n'y a aucun problème avec le transfert de la cuisine vers les pièces à vivre:
- Dans des appartements en duplex.
- Pour les résidents des étages supérieurs, sans affecter la zone de contact entre les salles de bains et les autres locaux auxiliaires des résidents de l'étage inférieur.
- Les conditions sont réalisables dans les appartements du premier niveau de la maison, situés au-dessus des commerces et autres locaux non résidentiels.
Dans les cas ci-dessus, il n'y a pas de détérioration des conditions de vie des autres citoyens, mais les plans doivent encore être coordonnés. Pour l'approbation, vous devrez bien réfléchir aux options.
Solutions possibles
Il y a deux façons. La cuisine-salon combinée est organisée sans changer l'emplacement des équipements technologiques et sanitaires. Zone économique avec tous ceux-là. nodes est déplacé dans un local non résidentiel selon le projet.
Que faut-il prendre en compte dans ceci :
- il est possible de combiner deux pièces adjacentes lors de l'installation de conception d'un poêle électrique;
- dans le cas de la gazéification, il n'est pas permis de supprimer complètement les cloisons entre les pièces.Vous devrez faire preuve de créativité en construisant des portes cintrées ou des panneaux coulissants non standard. Mais seulement après accord avec le BTI.
- presque une option gagnant-gagnant - déplacer la cuisine dans les couloirs et les vérandas. Cependant, il est nécessaire de concevoir de nouvelles communications et d'apporter des modifications au certificat d'enregistrement du logement. Ceci est fait par des spécialistes du Bureau d'Inventaire Technique.
Si, de gré ou de force, la cuisine était déplacée dans un autre endroit, une pièce spacieuse était libérée. Le propriétaire envisage d'aménager ici une chambre, une chambre d'enfant ou un salon.
Comme vous le savez, il est interdit d'aménager des pièces à vivre sous les locaux techniques des voisins des étages supérieurs.
Règles standard
Les appartements dans les maisons anciennes ont généralement une disposition inhabituelle, dans laquelle les salons ont une grande longueur, tandis que la cuisine ne fait que quelques mètres carrés.
Pour une personne moderne, une telle zone ne peut pas être confortable, car ni un bon ensemble de cuisine ni de grands meubles confortables ne peuvent y être placés. Pour corriger cette situation, on a souvent recours au réaménagement.
- Vous devez vous appuyer sur les articles 25 et 26 du code du logement.
- Mais il existe un décret spécial pour la salle de cuisine, qui a été publié par le gouvernement en 2006 sous le numéro 47.
Il est dit que la cuisine ne peut pas être transférée dans les pièces d'habitation. Il ne peut être situé qu'au-dessus de locaux non résidentiels.
Si sous la zone, en raison de laquelle il est prévu d'agrandir la cuisine, il y a un salon ou une salle, alors un tel réaménagement est interdit.
But de la cuisine
Comment se passe le transfert de la cuisine à la chambre ainsi que les communications ?
Qu'est-ce qu'une cuisine dans un appartement moderne ? Vous devez d'abord comprendre si cette pièce est résidentielle ou utilitaire, car les exigences relatives aux paramètres et au fonctionnement des deux sont différentes.
Regardons les dispositions légales. Le Code du logement de la Fédération de Russie (FZ n ° 188 de 2004) domine ici.
Locaux d'habitation et locaux techniques
La première partie de l'article 16 du Code du logement de la Fédération de Russie fait référence aux locaux d'habitation :
- Appartements et ses pièces. Un appartement est considéré comme une pièce dédiée dans un immeuble à appartements, composé d'une ou plusieurs pièces. Outre les locaux auxiliaires, ceux qui pourvoient aux besoins domestiques d'une personne (partie 3 de l'article 16).
- Pièces. Il s'agit déjà d'une notion plus restreinte avec une destination exclusivement résidentielle des locaux (partie 4 de l'article 16).
Comment légaliser la reconstruction ?
Quels documents doivent être délivrés pour un réaménagement légal de la cuisine?
La règle principale: nous nous mettons d'abord d'accord sur le projet et seulement après avoir obtenu l'autorisation, nous commençons les travaux. De plus, l'obtention d'un permis n'est pas moins difficile que la réalisation des travaux. Algori comprend :
- collecte de documents;
- envoi du dossier préparé pour examen par la commission d'architecture et d'urbanisme relevant de la commune. Il faudra s'armer de patience : 30 jours sont accordés pour un examen des travaux à venir, des mémoires déposés et une décision ;
- l'embauche d'une équipe de spécialistes et la réalisation de travaux sur un plan de reconstruction/réaménagement.
Que faire si le réaménagement a déjà été fait ?
Les actions non autorisées ne peuvent être légalisées que par les tribunaux. C'est d'ailleurs souvent le cas des nouveaux propriétaires d'appartements qui ont pris connaissance du réaménagement après l'achat.
Si une modification non autorisée du logement est détectée, il faut :

- appelez un ingénieur BTI pour fixer le véritable état des choses et développer un nouveau certificat d'enregistrement.Là-dessus, le spécialiste mettra un cachet sur les réaménagements illégaux. L'ingénieur BTI a le pouvoir d'inspecter les structures de support et d'émettre une conclusion sur leur intégrité si elles n'ont pas été affectées lors de la reconstruction ;
- soumettre une demande à l'inspection du logement pour approbation des modifications, en y joignant les documents reçus de l'employé de RTC. Le refus de la commission servira de base pour aller en justice.
Après avoir déposé une réclamation, une commission visitera l'appartement et l'évaluera en termes de conformité aux réglementations sanitaires, de construction et d'incendie. S'il n'y a pas de motif de refus, le tribunal rendra une décision positive.
Comment légaliser le transfert de la cuisine au salon - options pour les appartements standard
Comment repenser la cuisine d'un appartement typique ?
Il n'y a aucun problème avec le transfert de la cuisine vers les pièces à vivre:
- Dans des appartements en duplex.
- Pour les résidents des étages supérieurs, sans affecter la zone de contact entre les salles de bains et les autres locaux auxiliaires des résidents de l'étage inférieur.
- Les conditions sont réalisables dans les appartements du premier niveau de la maison, situés au-dessus des commerces et autres locaux non résidentiels.
Dans les cas ci-dessus, il n'y a pas de détérioration des conditions de vie des autres citoyens, mais les plans doivent encore être coordonnés. Pour l'approbation, vous devrez bien réfléchir aux options.
Solutions possibles







































