- L'hiver arrive. Nous vidons l'eau
- Noter
- Comment connecter la station au puits
- Principes de fonctionnement
- Station de pompage à côté du puits
- Méthodes d'isolation thermique de la station de pompage
- Sélection d'équipement
- Caisson ou adaptateur
- Unités de pompage
- Accumulateur et relais
- Bouchon de puits
- Paramètres de base pour la sélection de la pompe
- Sélection d'un emplacement d'installation
- Comment déterminer la profondeur d'aspiration
- Considérations de sécurité
- Commodité et conditions de fonctionnement
- Faire la première manche
- Tuyaux en PEHD - une alternative aux canalisations en acier
- Raccordement d'une station de pompage
- Approvisionnement en eau d'un puits pour résidence permanente
- Raccordement de la station de pompage à l'alimentation en eau
- Bien connecté
- Schéma de câblage
- Matériaux et accessoires pour l'installation
- Comment monter correctement sur un puits ou un puits
L'hiver arrive. Nous vidons l'eau

Il y a de nombreux cas où, après l'hiver, des gens sont venus à la datcha et ont constaté que le système était en panne et qu'il était nécessaire de creuser les murs pour changer les tuyaux, démonter et envoyer la pompe en réparation, il y en a beaucoup. La raison de tout est un oubli élémentaire ou des décisions malavisées lors de la conception d'une maison et d'un terrain personnel.
Comme pour les autres systèmes d'ingénierie, l'approvisionnement en eau doit être pris en charge au stade de la conception.C'est alors qu'une décision fondamentale devait être prise : si la maison de campagne serait exploitée en hiver ou si elle serait conservée avant l'arrivée du froid. L'aménagement du système d'approvisionnement en eau et son entretien saisonnier en dépendent.
Si les propriétaires envisagent de vivre dans une maison de campagne uniquement pendant la saison chaude, l'installation du système ne devrait poser aucun problème. La pompe est connectée au réseau électrique, le tuyau est descendu dans le puits et le tuyau sous pression est connecté au réseau d'alimentation en eau.
Avant l'arrivée du froid, la pompe est retirée (il est préférable de l'emmener en ville), l'eau de tous les réservoirs - réservoirs, conduites d'eau, batteries - est vidangée, les robinets de vidange et les bouchons doivent rester ouverts. Le puits d'abreuvement doit être nettoyé et traité.
Cela peut être fait en utilisant des formulations spéciales, telles que le chlorinol, qui est vendu en pharmacie. Après traitement, l'eau du puits est entièrement pompée, le puits est fermé pour l'hiver couvercle.
Et au printemps, il sera rempli d'eau potable fraîche, et il ne reste plus qu'à utiliser la pompe pour en extraire l'humidité vitale. Un puits qui n'est pas exploité en hiver n'est pas isolé.
Si la maison est destinée à être utilisée toute l'année, des travaux préparatoires assez sérieux et coûteux seront nécessaires. La station de pompage doit être installée dans une pièce isolée, car elle peut fonctionner à une température non inférieure à plus cinq degrés.
Noter
Le coût d'un système d'approvisionnement en eau autonome à domicile, comprenant un puits, le câblage, une pompe submersible ou une station de pompage et des filtres, représente jusqu'à 15% du coût de toute la maison.
Le coût de sa remise en état en cas de dégivrage peut être très élevé : seul le démontage et la réinstallation de la pompe (hors réparations) coûteront de 500 à 800 dollars, et le remplacement des canalisations cassées dissimulées dans les murs entraînera inévitablement un refonte majeure des locaux.
Le tuyau du puits ou du puits à la maison est posé sous le niveau de congélation du sol et isolé pour des raisons de sécurité - à cette fin, un câble électrique à deux conducteurs autorégulateur est généralement utilisé, qui chauffe jusqu'à 65 degrés. A ceux qui ont bien sous la maison, ce sera plus facile, puisque la station de pompage est située au sous-sol, et non à l'air libre.
Pour éviter la formation de givre sur les parois du puits et de glace à la surface de l'eau, la tête et le couvercle du puits sont isolés avec tout matériau respectueux de l'environnement. Ensuite, il y aura une température constante dans le puits - de plus cinq à plus dix degrés.
Le caisson est un bunker métallique avec une trappe, qui est étanche de l'extérieur et recouvert de l'intérieur d'un apprêt et isolé avec de la mousse.
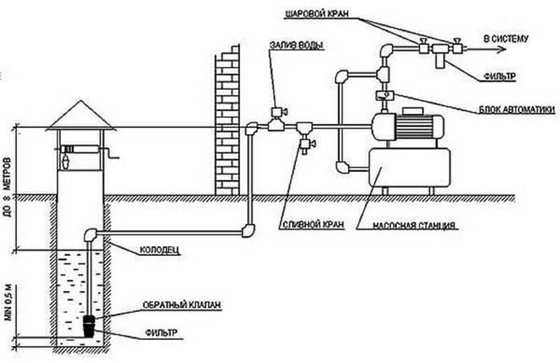
Comment connecter la station au puits
Pour l'installation, une buanderie ou un caisson spécialement équipé convient. Il est nécessaire qu'il y ait une légère élévation au-dessus du sol, ce qui empêchera la casse lors de l'apparition des eaux souterraines.
L'approvisionnement en eau est posé dans un sol non sujet au gel, de sorte que lorsque l'eau gèle, cela n'entraîne pas la rupture des tuyaux. En cas d'échec, le pipeline peut être isolé avec des matériaux calorifuges. La connexion doit être effectuée par étapes :
- Préparez un tuyau en polyéthylène du diamètre et de la longueur souhaités. Sa taille devrait lui permettre d'être transporté jusqu'au puits et déposé en dessous.
- Une extrémité est équipée d'un filtre, d'un treillis métallique ordinaire et d'un clapet anti-retour qui contrôle le remplissage de la pompe en eau.
- La pièce est immergée dans un puits. L'extrémité du tuyau est reliée à la pompe.
- La sortie de la station est équipée d'un robinet, qui permet de couper l'eau, si nécessaire. Un tuyau doit être fixé au robinet.
Pour une résidence d'été, il ne faut pas choisir une station de pompage trop puissante
La deuxième sortie est située en haut du boîtier. Il est relié au système d'alimentation en eau. La grue est fixée au filetage et équipée d'un raccord en polypropylène. Une conduite d'eau y est soudée.
Principes de fonctionnement
L'un des principaux éléments d'une station de puits est un accumulateur hydraulique. Le principe de son travail est le suivant :
- l'eau pénètre dans l'accumulateur depuis la pompe;
- l'arrêt automatique se produit lorsque la pression dans la batterie atteint 2,8 atm ;
- l'eau est délivrée à partir de l'accumulateur;
- la pompe se met en marche lorsque la pression descend en dessous de 1,5 atm.
Dans certaines conceptions, la pompe connectée peut être installée sans accumulateur hydraulique. Dans ce cas, la pompe s'allume automatiquement à l'ouverture du robinet et s'éteint au bout de 5 minutes après sa fermeture.
Station de pompage à côté du puits
Est-il possible d'installer une station de pompage dans un ouvrage en surface, sans le descendre dans une mine ? Dans le cas où l'eau dans le puits est élevée, cela peut être fait. La figure montre un schéma de mise en marche de la station à l'aide d'un tuyau d'aspiration complet avec un clapet anti-retour installé dessus et un raccord fileté pour le raccordement à la pompe. La procédure de démarrage de la station est similaire à celle décrite au paragraphe précédent.
Comment installer une station de pompage dans un puits n'est pas toujours clair.De plus, lors de son achat, il est peu probable qu'un consultant puisse révéler toutes les subtilités. En utilisant les informations détaillées de l'article, vous pouvez faire connexion à faire soi-même.
Méthodes d'isolation thermique de la station de pompage
Tout d'abord, il faut économiser la chaleur qui vient du puits. Pour ce faire, il sera nécessaire d'isoler les murs extérieurs de la gare. En tant que matériau, vous pouvez utiliser de la mousse ou de la mousse de polystyrène. La couverture de révision supérieure en est également faite.

De plus, vous pouvez équiper un cadre en bois. Il remplira non seulement une fonction décorative. L'isolation peut être installée entre sa paroi intérieure et le puits. Mais même avec un degré élevé d'isolation thermique à des températures suffisamment basses en hiver, la probabilité de gel de l'eau dans les tuyaux est élevée. Par conséquent, il est nécessaire de faire un petit système de chauffage. Il peut être mis en œuvre de la manière suivante :
- Installation de câble chauffant résistif. Il est installé sur un sol en béton ou en brique. Si la température dans le puits descend en dessous de +5°C, le câble est activé ;
- Chauffage électrique et thermostat basse consommation. Ce dernier doit être ajusté à une certaine plage de température. En cas de diminution critique du niveau de chauffage de l'air dans le puits, le thermostat allumera le chauffage. Dès que la température se stabilise, il donnera l'ordre d'éteindre.
Certaines sources conseillent d'installer une simple lampe à incandescence. Cependant, son énergie thermique ne suffira pas à chauffer tout le volume du puits. La technique ci-dessus est coûteuse, car de l'électricité est consommée pour maintenir la température. Mais l'isolation passive ne garantit pas l'intégrité des équipements de pompage.
Préface. Afin de ne pas se retrouver une fois dans une maison privée avec un manque d'eau dû au gel de l'approvisionnement en eau au sous-sol ou dans le sol, non seulement les tuyaux, mais aussi la station de pompage dans la zone suburbaine doivent être correctement isolés pour le l'hiver. Considérez comment isoler la pompe et toutes les communications dans le puits responsable de l'approvisionnement en eau, qui est un problème urgent pour les hivers russes.
Isolation thermique des tuyaux du puits à la maison et à elle-même station de pompage de puits - une question d'actualité pour les résidents des maisons de campagne et ceux qui aiment venir dans leur maison de campagne en hiver pour se détendre. L'eau gelée dans les communications est un problème sérieux qui peut causer beaucoup de problèmes, bien plus qu'il n'y paraît à première vue. Pourquoi l'eau gelée est-elle dangereuse et vaut-il la peine d'isoler la station de pompage ?
Sélection d'équipement
Le choix des équipements pour aménager votre futur puits est l'une des étapes les plus importantes, puisque la qualité et la durée de ses travaux dépendront du bon choix.
L'équipement le plus important, dont le choix doit faire l'objet d'une attention particulière, est: une pompe, un caisson, bouchon de puits et accumulateur hydraulique
Caisson ou adaptateur
Le principe de l'agencement avec un caisson ou un adaptateur
Le caisson peut être appelé l'élément de conception principal du futur puits. Extérieurement, il ressemble à un récipient semblable à un baril et est utilisé pour protéger l'équipement des eaux souterraines et du gel.
À l'intérieur du caisson, vous pouvez placer tous les composants nécessaires à l'alimentation en eau automatique (pressostat, réservoir à membrane, manomètre, divers filtres de purification d'eau, etc.), libérant ainsi la maison des équipements inutiles.
Le caisson est en métal ou en plastique. La condition principale est qu'il ne soit pas sujet à la corrosion. Les dimensions du caisson sont généralement : 1 mètre de diamètre et 2 mètres de hauteur.
En plus du caisson, vous pouvez également utiliser un adaptateur. Il est moins cher et a ses propres caractéristiques. Voyons ci-dessous ce qu'il faut choisir un caisson ou un adaptateur et quels sont les avantages de chacun.
Caisson:
- Tous les équipements supplémentaires peuvent être placés à l'intérieur du caisson.
- Convient mieux aux climats froids.
- Durable et fiable.
- Accès rapide à la pompe et aux autres équipements.
Adaptateur:
- Pour l'installer, vous n'avez pas besoin de creuser un trou supplémentaire.
- Mise en place rapide.
- Économique.
Le choix d'un caisson ou d'un adaptateur découle également du type de puits
Par exemple, si vous avez un puits dans le sable, de nombreux experts conseillent de faire attention à l'adaptateur, car l'utilisation d'un caisson n'est pas toujours bénéfique en raison de la courte durée de vie d'un tel puits
Unités de pompage
L'un des éléments clés de l'ensemble du système est la pompe. Fondamentalement, trois types peuvent être distingués:
- Pompe de surface. Convient uniquement si le niveau d'eau dynamique dans le puits ne descend pas en dessous de 7 mètres du sol.
- Pompe vibrante submersible. Solution économique, elle est rarement utilisée spécifiquement pour le système d'approvisionnement en eau, car elle a une faible productivité et peut également détruire les parois du puits.
- Pompes de forage centrifuges. Équipement de profil pour les systèmes d'approvisionnement en eau à partir d'un puits.
Les pompes de forage sont largement représentées sur le marché par une grande variété de fabricants, pour tous les goûts et tous les budgets. La sélection des caractéristiques de la pompe s'effectue en fonction des paramètres du puits et directement à votre système d'alimentation en eau et en chaleur.
Accumulateur et relais
La fonction clé de cet équipement est de maintenir une pression constante dans le système et de stocker l'eau. L'accumulateur et le pressostat contrôlent le fonctionnement de la pompe, lorsque l'eau dans le réservoir s'épuise, la pression y chute, ce qui attrape le relais et démarre la pompe, respectivement, après avoir rempli le réservoir, le relais éteint la pompe. De plus, l'accumulateur protège l'équipement de plomberie des coups de bélier.
En apparence, l'accumulateur ressemble à un réservoir de forme ovale. Son volume, selon les objectifs, peut aller de 10 à 1000 litres. Si vous avez une petite maison de campagne ou un chalet, un volume de 100 litres suffira.
Accumulateur hydraulique - accumule, relais - commandes, manomètre - affiche
Bouchon de puits
Pour équiper le puits, une tête est également installée. Son objectif principal est de protéger le puits de la pénétration de divers débris et d'y faire fondre de l'eau. En d'autres termes, le capuchon remplit la fonction d'étanchéité.
hauteur libre
Paramètres de base pour la sélection de la pompe
Donc, à propos de la hauteur à laquelle vous devez élever l'eau, nous avons déjà écrit
À quoi d'autre devez-vous faire attention lors du choix? Nous devons connaître exactement la distance entre le puits et la maison et le volume de liquide pompé, qui dépendra du volume total du réseau d'alimentation en eau et de la consommation d'eau maximale possible à un moment donné. Un exemple banal : on ouvre le robinet le plus proche du point d'entrée du bâtiment - on obtient une bonne pression, on ouvre le second - la pression chute, et au point éloigné le débit d'eau sera le plus faible. Les calculs ici, en principe, ne sont pas compliqués, vous pouvez les faire vous-même à l'aide d'une calculatrice en ligne, ou simplement en étudiant les instructions du fabricant
Les calculs ici, en principe, ne sont pas compliqués, vous pouvez les faire vous-même à l'aide d'une calculatrice en ligne, ou simplement en étudiant les instructions du fabricant.
Qu'est-ce qui détermine la pression dans le système ? De la puissance de la pompe et du volume de l'accumulateur - plus il est grand, plus la pression moyenne dans le système d'alimentation en eau est stable. Le fait est que lorsqu'elle est allumée, la pompe ne fonctionne pas constamment, car elle a besoin de refroidissement, et lorsque la pression de fonctionnement est atteinte, elle ne doit pas continuer à l'augmenter. Le système est conçu de manière à pomper de l'eau dans l'accumulateur, dans lequel est installé un clapet anti-retour qui empêche l'eau de refluer lorsque la pompe est éteinte. Lorsque la pression dans le réservoir atteint le seuil défini, la pompe s'arrête. Si en même temps l'apport d'eau continue, il diminuera progressivement, atteignant le repère minimum, qui est un signal pour rallumer la pompe.
Autrement dit, plus l'accumulateur est petit, plus la pompe est souvent forcée de s'allumer et de s'éteindre, plus la pression augmente ou diminue souvent. Cela entraîne une usure accélérée de l'équipement de démarrage du moteur - dans ce mode, les pompes ne durent pas longtemps. Par conséquent, si vous prévoyez d'utiliser l'eau du puits tout le temps, achetez un réservoir d'une plus grande capacité pour la station de pompage.
Lors de l'aménagement d'un puits, un tuyau de tubage y est installé, à travers lequel l'eau monte. Cette conduite peut être de diamètres différents, c'est-à-dire qu'elle peut avoir un débit différent. Selon la section du caisson, vous pouvez également choisir l'équipement adapté à votre maison.
Toutes les informations nécessaires seront dans les instructions de la pompe achetée. Vous pouvez également obtenir des recommandations de spécialistes qui forent votre puits.Ils connaîtront exactement les paramètres de fonctionnement optimaux. Il ne sera pas superflu de faire également une certaine réserve en termes de puissance de l'unité, afin que la pression dans le système monte plus rapidement jusqu'à un seuil confortable, sinon l'eau coulera constamment lentement du robinet.
Sélection d'un emplacement d'installation
Les stations de pompage sont installées près d'une source d'eau - un puits ou un puits - dans une fosse spécialement équipée - un caisson. La deuxième option est dans la buanderie de la maison. Le troisième est sur une étagère dans le puits (un tel nombre ne fonctionnera pas avec un puits) et le quatrième est dans le sous-sol.

Installation d'une station de pompage dans le sous-champ - le bruit de son fonctionnement peut être trop fort
Comment déterminer la profondeur d'aspiration
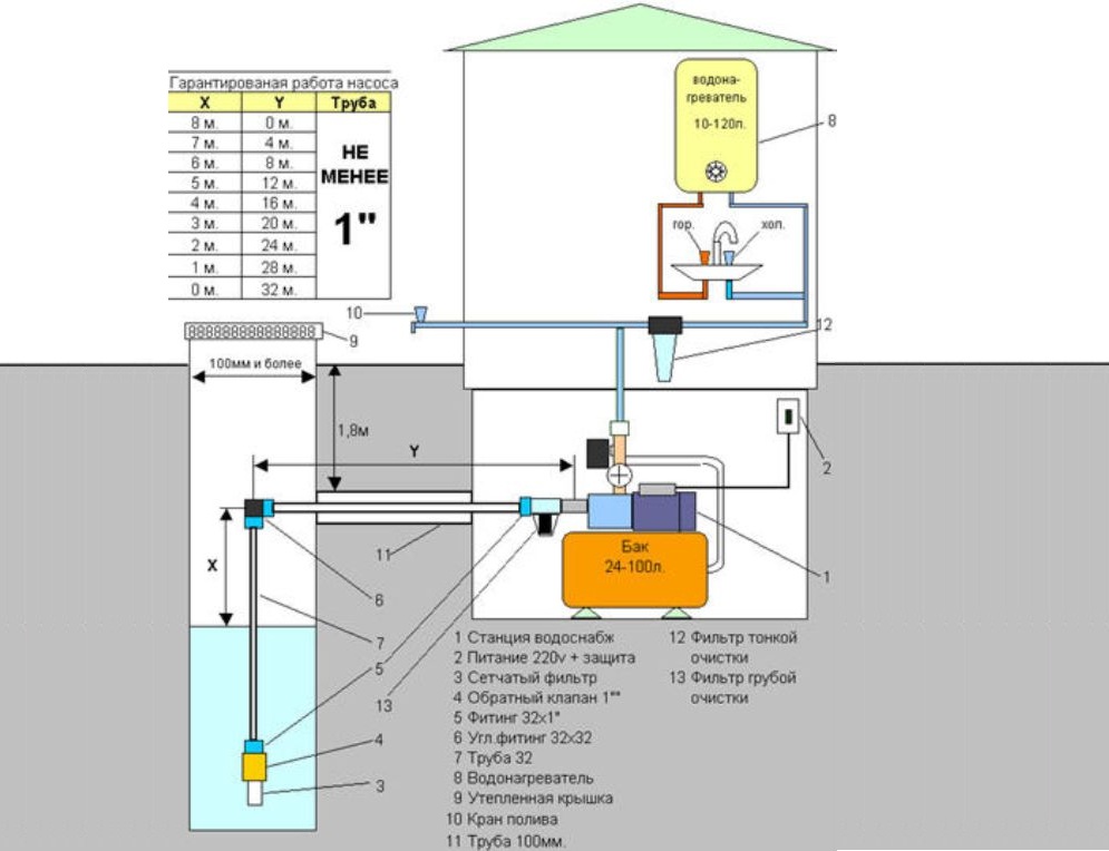
Lors du choix d'un emplacement, ils sont principalement guidés par des caractéristiques techniques - la profondeur d'aspiration maximale de la pompe (d'où la pompe peut soulever de l'eau). Le fait est que la profondeur de levage maximale des stations de pompage est de 8 à 9 mètres.
Profondeur d'aspiration - la distance entre la surface de l'eau et la pompe. La canalisation d'alimentation peut être abaissée à n'importe quelle profondeur, elle pompera l'eau du niveau du miroir d'eau.
Les puits ont souvent une profondeur supérieure à 8-9 mètres. Dans ce cas, vous devrez utiliser un autre équipement - une pompe submersible ou une station de pompage avec éjecteur. Dans ce cas, l'eau peut être fournie à partir de 20 à 30 mètres, ce qui est généralement suffisant. L'inconvénient de cette solution est un équipement coûteux.

Profondeur d'aspiration - une caractéristique qui détermine la méthode d'installation
Si vous n'êtes qu'à un mètre de pouvoir installer un équipement classique, vous pouvez placer la station dans un puits ou au-dessus d'un puits. Une étagère est fixée au mur dans le puits, dans le cas d'un puits, une fosse est approfondie.
Lors du calcul, n'oubliez pas que le niveau du miroir d'eau "flotte" - en été, il baisse généralement. Si votre profondeur d'aspiration est sur le point, il se peut qu'il n'y ait tout simplement pas d'eau pendant cette période. Plus tard, lorsque le niveau montera, l'approvisionnement en eau reprendra.
Considérations de sécurité
Un autre point à considérer est la sécurité de l'équipement. Si l'installation d'une station de pompage est censée être à proximité d'une maison avec résidence permanente, les problèmes sont moins nombreux - vous pouvez choisir n'importe quelle option, même dans un petit hangar. Une seule condition - il ne doit pas geler en hiver.

L'installation d'une station de pompage dans une grange convient à la résidence permanente et à l'état d'isolation / chauffage pour l'hiver
S'il s'agit d'une datcha où ils ne vivent pas en permanence, la question est plus compliquée - il est nécessaire d'aménager une pièce qui ne soit pas frappante. La façon la plus sûre d'installer une station de pompage est dans la maison. Bien qu'ils puissent l'emporter dans ce cas.
Le deuxième endroit où vous pouvez installer une station de pompage est un caisson enterré camouflé.

Schéma d'installation d'une station de pompage dans un puits
Le troisième est sur une étagère dans le puits. Seulement dans ce cas, le traditionnel bien maison ne vaut pas la peine d'être fait. Vous avez besoin d'un couvercle en acier, qui est verrouillé avec un verrou fiable (soudez des boucles à l'anneau, faites des fentes dans le couvercle, sur lesquelles accrocher la constipation). Cependant, une bonne couverture peut également être cachée sous la maison. Seul le design doit être pensé pour qu'il n'interfère pas.
Commodité et conditions de fonctionnement
L'installation d'une station de pompage dans la maison est bonne pour tout le monde, sauf que l'équipement fait du bruit pendant le fonctionnement. S'il y a une pièce séparée avec une bonne isolation phonique et que c'est possible selon les caractéristiques techniques, il n'y a pas de problème. Souvent, ils font une pièce similaire au sous-sol ou au sous-sol.S'il n'y a pas de sous-sol, vous pouvez faire une boîte dans le sous-sol. L'accès se fait par une trappe. Cette boîte, en plus de l'isolation acoustique, doit également avoir une bonne isolation thermique - la plage de température de fonctionnement commence à partir de + 5 ° C.
Pour réduire le niveau sonore, la station peut être placée sur du caoutchouc épais pour amortir les vibrations (créées par un ventilateur de refroidissement). Dans ce cas, même l'installation dans la maison est possible, mais le son le sera certainement toujours.

Caisson à partir d'anneaux en béton
Si vous vous êtes arrêté à l'installation d'une station de pompage dans un caisson, celle-ci doit également être isolée et également étanche. Habituellement, des conteneurs en béton armé prêts à l'emploi sont utilisés à ces fins, mais un caisson peut être constitué d'anneaux en béton (comme un puits). Installez l'anneau avec le bas vers le bas, l'anneau avec le couvercle vers le haut. Une autre option consiste à le poser en brique, à couler du béton sur le sol. Mais cette méthode convient aux zones sèches - le niveau de la nappe phréatique doit être inférieur d'un mètre sous la profondeur du caisson.
La profondeur du caisson est telle que l'équipement est installé en dessous du niveau de congélation. Isolation en polystyrène expansé. Mieux extrudé. Ensuite, vous obtenez également l'imperméabilisation en même temps.
Pour un caisson d'anneaux en béton, il est pratique d'utiliser une coque (si vous trouvez un diamètre approprié). Mais vous pouvez également plaquer de la mousse de polystyrène, la découper en bandes et la coller. Pour les fosses et les structures rectangulaires, les dalles appropriées peuvent être collées aux murs à l'aide de mastic bitumineux. Lubrifiez le mur, appliquez l'isolant, vous pouvez également le fixer avec une paire de clous / chevilles.
Faire la première manche
Le système doit être rempli. Pour ce faire, il existe un bouchon spécial qui masque le trou de l'entonnoir. L'accumulateur hydraulique et le trajet entre le clapet anti-retour et la pompe sont remplis d'eau. Après cela, le réservoir hydraulique est testé.La pression d'air est mesurée, pour laquelle un manomètre pour pneus de voiture convient. Ce n'est qu'après s'être assuré que les pompes de la pompe et le réservoir hydraulique fonctionnent que vous pouvez utiliser la station de pompage comme une station de pompage autonome ne nécessitant pas de surveillance constante.
C'est intéressant: Forage manuel de puits d'eau - comment le faire soi-même effectuer des travaux manuellement
Tuyaux en PEHD - une alternative aux canalisations en acier
Arrêtons-nous plus en détail sur les tuyaux reliant l'équipement submersible et la pompe centrifuge de surface.
Lors du choix des tuyaux pour la plomberie extérieure, il est nécessaire de se concentrer sur des facteurs tels que :
- transport pratique;
- installation facile qui ne nécessite pas de connaissances hautement qualifiées ;
- force, résistance à l'abrasion;
- élasticité et déformation de la forme sans perte de qualités fonctionnelles ;
- non toxique, sécurité pour le mouvement de l'eau potable.
Toutes ces exigences sont satisfaites par les tuyaux en polyéthylène basse pression. Contrairement à leurs homologues métalliques, ils ne se corrodent pas avec le temps. La durée de vie moyenne des tuyaux en PEHD est de 50 ans.

L'un des avantages des tuyaux en PEHD est la disponibilité d'un ensemble de divers raccords d'un standard approprié (raccords, bouchons, adaptateurs) pour une installation rapide et facile.
Nous vous recommandons d'acheter uniquement des produits marqués de haute qualité, en indiquant les données suivantes sur la partie extérieure :
- noter;
- diamètre extérieur;
- épaisseur du mur;
- pression nominale et maximale.
Sur le tuyau, qui est nécessaire pour poser la conduite sous pression du puits, il est possible d'indiquer la destination - "boire". Pour une utilisation dans le pays, les produits d'un diamètre de 32 conviennent mm et épaisseur de paroi 2,4 mm.La bande bleue indique que les tuyaux sont conçus pour pomper de l'eau (jaune - pour transporter du gaz).

Un réseau d'alimentation en eau de conception complexe comporte des branches (par exemple, pour arroser un jardin ou alimenter en eau un bain public). Pour contrôler les points de raccordement des tuyaux, des regards en briques sont disposés, béton ou plastique
Raccordement d'une station de pompage
Le choix de l'équipement et du lieu d'installation représente la moitié de la bataille. Vous devez également tout connecter correctement dans un système - une source d'eau, une station et des consommateurs. Le schéma de raccordement exact de la station de pompage dépend de l'emplacement choisi. Mais de toute façon il y a :
- Canalisation d'aspiration qui descend dans un puits ou un puits. Il se rend à la station de pompage.
- La gare elle-même.
- Le pipeline allant aux consommateurs.
Tout cela est vrai, seuls les schémas de cerclage changeront selon les circonstances. Considérons les cas les plus courants.
Approvisionnement en eau d'un puits pour résidence permanente
Si la station est placée dans une maison ou dans un caisson quelque part sur le chemin de la maison, le schéma de connexion est le même. Un filtre (le plus souvent un maillage régulier) est installé sur la canalisation d'alimentation descendue dans un puits ou un puits, un clapet anti-retour est placé après, puis un tuyau passe déjà. Pourquoi le filtre - c'est clair - pour se protéger des impuretés mécaniques. Un clapet anti-retour est nécessaire pour que, lorsque la pompe est arrêtée, l'eau sous son propre poids ne reflue pas. Ensuite, la pompe s'allumera moins souvent (elle durera plus longtemps).
Schéma d'installation d'une station de pompage dans une maison
Le tuyau est sorti à travers la paroi du puits à une profondeur juste en dessous du niveau de congélation du sol. Ensuite, il entre dans la tranchée à la même profondeur.Lors de la pose d'une tranchée, elle doit être rendue droite - moins il y a de virages, plus la chute de pression est faible, ce qui signifie que l'eau peut être pompée à partir d'une plus grande profondeur.
Pour être sûr, vous pouvez isoler le pipeline (posez des feuilles de mousse de polystyrène sur le dessus, puis remplissez-le de sable, puis de terre).
Option de passage pas à travers la fondation - chauffage et isolation sérieuse sont nécessaires
A l'entrée de la maison, le tuyau d'alimentation traverse la fondation (le lieu de passage doit également être isolé), dans la maison il peut déjà monter jusqu'au site d'installation de la station de pompage.
Cette méthode d'installation d'une station de pompage est bonne car si tout est fait correctement, le système fonctionne sans problème. L'inconvénient est qu'il est nécessaire de creuser des tranchées, ainsi que de faire sortir / rentrer le pipeline à travers les murs, et aussi dans le fait qu'il est difficile de localiser les dommages en cas de fuite. Pour minimiser les risques de fuite, prenez des tuyaux de qualité éprouvée, posez une pièce entière sans joints. S'il y a une connexion, il est souhaitable de faire un trou d'homme.
Schéma détaillé de la tuyauterie d'une station de pompage lorsqu'elle est connectée à un puits ou à un puits
Il existe également un moyen de réduire le volume des travaux de terrassement: posez la canalisation plus haut, mais isolez-la bien et utilisez en plus un câble chauffant. Cela peut être la seule issue si le site a un niveau élevé d'eau souterraine.
Il y a un autre point important - le couvercle du puits doit être isolé, ainsi que les anneaux à l'extérieur jusqu'à la profondeur de congélation. C'est juste que la section du pipeline allant du miroir d'eau à la sortie du mur ne doit pas geler. Pour cela, des mesures d'isolation sont nécessaires.
Raccordement de la station de pompage à l'alimentation en eau
Souvent, une station de pompage est installée pour augmenter la pression dans le système d'alimentation en eau avec une alimentation en eau centralisée.Dans ce cas, une conduite d'eau est connectée à l'entrée de la station (également via un filtre et un clapet anti-retour), et la sortie va aux consommateurs.
Schéma de raccordement de la station de pompage à l'alimentation en eau
Il est conseillé de mettre une vanne d'arrêt (bille) à l'entrée afin de pouvoir en cas de besoin éteindre votre système (pour des réparations par exemple). Deuxième vanne d'arrêt - avant station de pompage - nécessaire pour réparation tuyauterie ou équipement. Ensuite, il est également judicieux de placer un robinet à tournant sphérique à la sortie - afin de couper les consommateurs si nécessaire et de ne pas évacuer l'eau des tuyaux.
Bien connecté
Si la profondeur d'aspiration de la station de pompage pour le puits est suffisante, la connexion n'est pas différente. Sauf si le pipeline sort au point où le tube de tubage se termine. Une fosse à caissons est généralement aménagée ici et une station de pompage peut être installée à cet endroit.
Installation de la station de pompage : schéma de connexion du puits
Comme dans tous les schémas précédents, un filtre et un clapet anti-retour sont installés à l'extrémité du tuyau. A l'entrée, vous pouvez mettre un robinet de remplissage à travers un té. Vous en aurez besoin pour le premier démarrage.
La principale différence entre cette méthode d'installation est que le pipeline menant à la maison longe en fait la surface ou est enterré à une faible profondeur (tout le monde n'a pas une fosse sous la profondeur de congélation). Si la station de pompage est installée dans le pays, ça va, l'équipement est généralement retiré pour l'hiver. Mais si l'alimentation en eau est prévue pour être utilisée en hiver, elle doit être chauffée (avec un câble chauffant) et isolée. Sinon ça ne marchera pas.
Schéma de câblage
La procédure de création d'un système d'alimentation en eau peut être simplifiée en établissant d'abord un schéma de raccordement.La pompe doit être choisie de sorte qu'elle se caractérise par de bonnes propriétés pression-débit. L'équipement doit être isolé pour empêcher l'eau du système de geler lorsque la température baisse.
La première étape consiste à choisir le bon endroit pour l'installation.
Les matériaux pour connecter la station de pompage peuvent être achetés dans une quincaillerie
Fonctionnalités de connexion :
- Préparation obligatoire de la base d'appui pour l'unité de pompage.
- La surface doit être recouverte d'un tapis en caoutchouc.
- Les jambes sont fixées avec des boulons et des ancres.
- Lors du processus de connexion, un robinet américain est utilisé.
Lorsque la pompe est déjà dans le puits, vous devez connecter l'alimentation électrique. Le moteur démarre à l'ouverture du robinet. Ensuite, l'eau pénètre dans le tuyau sous pression et expulse tout l'air qui s'y est accumulé.
L'installation sur un puits ou un puits peut être effectuée indépendamment. Pour ce faire, vous devez sélectionner le type de station et vous familiariser avec les principes de son fonctionnement. Lors de la connexion, vous devez tenir compte de la profondeur de son emplacement, ainsi que du diamètre des tuyaux utilisés. La moindre erreur lors de l'installation peut entraîner un dysfonctionnement de l'ensemble du système.
Matériaux et accessoires pour l'installation
Les canalisations en acier de l'approvisionnement en eau central, qui fournissent de l'eau sale et rouillée à nos maisons, appartiennent à jamais au passé. Pour l'alimentation en eau d'une maison privée à partir d'un puits ou d'un puits, utilisez des tuyaux modernes en polyéthylène HDPE de la marque PE-100 d'une épaisseur de paroi de 3 mm, faciles à poser et à introduire dans la maison de vos propres mains. Dans la grande majorité des cas, un diamètre de 32 mm suffit pour un câblage externe.

Pour fournir de l'eau selon le premier schéma (avec immersion de l'unité de pompage) à partir du puits, vous aurez besoin de:
- adaptateur de tête ou de fond de trou ;
- câble de suspension d'un diamètre de 3 mm;
- la pompe elle-même, équipée d'un clapet anti-retour ;
- accumulateur hydraulique d'une capacité de 25 à 100 l;
- pressostat type RDM-5 et fonctionnement "à sec" ;
- filtre grossier et collecteur de boue ;
- manomètre;
- robinets à tournant sphérique, raccords;
- câble électrique et disjoncteurs calibrés à 16 A.
Si le schéma avec une station de pompage vous convient mieux, vous n'avez pas besoin d'acheter un relais et un accumulateur hydraulique séparément, car ils sont inclus dans le kit d'installation. Comment calculer correctement le volume minimum du réservoir de stockage et la puissance de la pompe, voir la vidéo:
Comment monter correctement sur un puits ou un puits
Schéma de raccordement de la station de pompage. (Cliquez pour agrandir)
La première chose à faire est de déterminer où sera située la station de pompage.
Il peut s'agir d'une pièce à l'intérieur de la maison (par exemple, un sous-sol) ou d'un caisson (il s'agit d'une chambre étanche située à l'extérieur de la maison).
Afin de raccorder le système à un puits ou à un puits, vous devez :
- Les pieds de la station doivent être fixés à la surface. Cela se fait à l'aide d'une attache spéciale - une ancre.
- Abaissez le tuyau dans le puits (puits). Vous devez faire attention à ne pas abaisser le tuyau jusqu'au fond, de sorte que lors du pompage de l'eau, divers débris et saletés n'y pénètrent pas. Il suffit de la surélever d'un mètre du fond du puits.
- Un tuyau en polyéthylène est requis à une extrémité, qui est placé dans un puits ou un puits. Mais, avant de l'abaisser, il est nécessaire de fixer un raccord (élément de liaison) au tuyau. Pour que le tuyau soit constamment rempli d'eau, vous devez mettre un clapet anti-retour, puis un filtre.
- La deuxième extrémité du tuyau, à travers des tranchées posées à l'avance, est conduite directement à l'alimentation en eau de la maison.
Attention : afin d'éviter les erreurs d'installation, avant de poser des tuyaux dans des tranchées, il est conseillé de calculer à l'avance la longueur du tuyau. Pour ce faire, vous devez tenir compte du nombre de coudes et de l'épaisseur de la fondation.









































