- Quelle marque de pompe submersible est préférable de choisir
- Pompe de surface pour puits 30 mètres
- Vidéo - Pompe à main pour un puits sans fondation
- Types de pompes pour puits
- Le principe de fonctionnement et les règles d'installation des pompes de surface
- Types de pompes submersibles pour puits
- Pompes centrifuges pour puits
- Applications de pompes vibrantes
- Spécificités des équipements de pompage submersibles
- Pompe à vibration + puits : oui ou non ?
- Lignes directrices pour le choix d'une pompe centrifuge
- Quelques mots sur les modèles populaires
- Pompes de surface pour puits
- Quelle devrait être une bonne pompe
- Options de sélection de pompe de puits
- Caractéristiques de l'aquifère
- Besoin en eau
- pression
- Le degré d'entrée dans le boîtier
- Que rechercher lors du choix d'une pompe?
- Vortex
- Centrifuge
Quelle marque de pompe submersible est préférable de choisir
Il existe une grande variété de pompes submersibles sur le marché. Cependant, tous les fabricants ne peuvent pas offrir à leurs clients une qualité garantie. Service spécialisé, une garantie d'entreprise ne peut être fournie que par des entreprises réputées et jouissant d'une bonne réputation. En se concentrant sur les nombreuses critiques de consommateurs ordinaires et l'opinion d'experts, une revue a été compilée, qui comprenait les entreprises manufacturières TOP-10, professionnelles dans leur domaine.
Gilex LLC. La campagne russe est le leader parmi les fabricants nationaux. Date de lancement sur le marché 1993.Elle produit une large gamme d'équipements de pompage de haut niveau. Les spécialistes de l'entreprise analysent attentivement la demande du marché, ce qui permet de créer les équipements les plus adaptés aux besoins spécifiques des personnes. Un vaste réseau de succursales d'entreprises opère avec succès sur le territoire de la Fédération de Russie et des pays voisins.
OJSC Technopribor. Entreprise de fabrication biélorusse. Fondée en 1974. Les installations de production sont situées à Moguilev. Des produits de haute qualité, abordables et peu coûteux quittent la chaîne de montage de l'entreprise depuis des décennies.
Surtout, l'entreprise a accordé une attention particulière au développement et à la production d'équipements de pompage. Les modèles domestiques fiables et abordables, tels que la célèbre série "Brook", sont très populaires parmi la population.
Grundfos
Un grand fabricant d'équipements de pompage du Danemark. Fondée en 1945. Littéralement après 5 ans, l'entreprise a déjà lancé ses 5 000 premières pompes sur le marché, ce qui a fait sensation auprès des consommateurs. Depuis 1952, une ligne de production de masse a été lancée. Les modèles de forage Grundfos en acier inoxydable et en céramique sont les leaders du marché mondial.
OOO Promelectro. Entreprise de Kharkov, fondée en 1995. Engagé dans le développement, la fabrication de pompes submersibles domestiques "Aquarius", la gamme BTsPE. La marque a acquis une bonne réputation sur le marché russe. Chaque unité de production est qualité, fiabilité, longue durée de vie. Fournit des performances élevées lorsque vous travaillez dans un système d'approvisionnement en eau autonome.
Marteau. Entreprise allemande bien connue. Date de fondation 1980. L'activité principale est la production d'énergie, d'appareils de mesure, d'outils électriques de jardin.Les stations de pompage, les pompes submersibles de diverses modifications de la société jouissent d'une grande réputation auprès des consommateurs russes. L'introduction de nouveaux développements, la modernisation des lignes, la haute qualité allemande des composants sont les trois piliers sur lesquels repose invariablement la popularité de l'entreprise.
Karcher. Une marque allemande faisant autorité spécialisée dans la production d'équipements de nettoyage et de nettoyage. Fondée en 1935. La société commerciale a réussi à maintenir la haute qualité allemande au fil des ans, introduisant rapidement de nouveaux développements. Engagé avec succès dans la vente d'appareils électroménagers et professionnels, avec plus de 120 filiales dans 70 pays.
Bison. Fabricant-fournisseur russe. Date de fondation 2005. Elle fournit au marché une large gamme d'outils manuels et mécanisés, de matériaux et d'équipements électriques peu coûteux. La marque est connue pour ses développements innovants, son large domaine de service et son service client de garantie. Les produits se caractérisent par des caractéristiques stables, une grande fiabilité et une longue durée de vie.
ALKO. Le fabricant allemand est l'une des principales marques européennes d'équipements et de machines de jardin. Fondée en 1931. Au fil des années, l'entreprise a élargi, introduit et développé sa gamme de produits. Aujourd'hui, la marque dispose d'un énorme volume de produits : composants de climatisation et de ventilation, équipements de jardin, éléments pour voitures. La direction prioritaire est occupée par les équipements et outils de jardinage.
Vortex. Fabricant russe, leader reconnu parmi les équipements de pompage et les outils électriques. La direction prioritaire de la production est les stations de pompage, les modèles de forage et de drainage.Le premier lot d'équipements sous la marque Whirlwind est sorti de la chaîne de montage en 1974 dans une usine de Kuibyshev. Aujourd'hui, le fabricant possède ses propres installations en Chine, où presque tous les équipements sont produits.
Belamos. Marque russe qui produit des équipements de pompage pour les systèmes de chauffage et d'approvisionnement en eau. Date de fondation 1993. En peu de temps, l'exportateur d'équipements étrangers est devenu le plus grand fabricant d'équipements de pompage à des fins diverses : pour les systèmes de chauffage, l'approvisionnement en eau, le forage, le drainage, les matières fécales, etc.
Pompe de surface pour puits 30 mètres
Plus la profondeur augmente, plus la pression augmente, donc pour un niveau statique de 30 m, il vous faudra une pompe plus puissante que la DP-100.

Pompe de surface avec éjecteur à distance LEO AJDm110/4H
La hauteur d'aspiration maximale est de 40 mètres, ce qui garantit une certaine réserve de puissance pour remonter l'eau à une profondeur de 30 mètres.
Le fabricant LEO lance un nouveau type de pompes à arbre flexible pour puits profonds.
Il est installé en tête de puits. Un arbre flexible est produit avec une longueur de 25, 45 mètres - la profondeur à partir de laquelle l'eau peut être pompée. Ce type de pompe est plus semi-submersible que de surface. Ils sont montés sur une chaîne de production d'un diamètre de 50 mm. Peut être une alternative à une pompe à main.
La partie hydraulique est constituée de 2 flexibles insérés l'un dans l'autre. Un arbre flexible est passé à l'intérieur, relié à une tête de pompe à vis.

pompe à vis
Malgré sa petite taille, la capacité maximale est de 1,8 m3/h et la tête est de 90 mètres. Le tuyau est descendu dans le puits à une profondeur prédéterminée, l'arbre flexible est relié à l'arbre de la boîte de vitesses du moteur électrique.L'avantage de la pompe est que le moteur électrique est en haut. En cas de colmatage de la pompe, l'arbre flexible est déconnecté, le tuyau est retiré et lavé.
Faisons un tableau des 10 premières pompes de surface les plus demandées par les acheteurs.
Tableau 2. Les meilleures pompes de surface.
| marque | Type de | Pression, bars | Tête, m | Consommation, m 3 / h | Profondeur du niveau d'eau, m |
|---|---|---|---|---|---|
| Grundfos MQ 3-35 | multi-étagé, auto-amorçant | 7.5 | 44 | 4.1 | 8 |
| AJDm110/4H | avec éjecteur externe | 9 | 100 | 2.2 | 30-40 |
| Pedrollo JSWm 2CX (JSWm 10MX | auto-amorçante avec intégré éjecteur | 7 | 37 | 4.8 | 8,5-9 |
| Pedrollo JSWm 2CX (JSWm 10MX | auto-amorçante, vortex | 8 | 38 | 8 | |
| APM 100, 150, 200 (Speroni) | avec éjecteur à distance | 7 | 64 | 1,8 2,7 | 10-40 |
| BG et BGM (3, 5, 7, 9, 11 (Lowara) | auto-amorçante avec éjecteur intégré | 9 | 46-60 | 2-4 | 8-9 |
| JET 112 T par DAB | auto-amorçante avec éjecteur intégré | 6-8 | 50 | 2-3 | 8-9 |
| Calpéda NGLM 4/A | auto-amorçante avec éjecteur intégré | 8 | 50 | 2-4 | 9 |
| JMC 100 | centrifuge auto-amorçante | 7.5 | 44.5 | 3 | 8 |
| Gilex Jumbo 70/50 N / 3702 | auto-amorçant | 8 | 50 | 4.2 | 9 |
| Les meilleures stations de pompage pour le relevage en eau profonde | |||||
| Grundfos JPD 4-54 PT-V | avec éjecteur à distance | 6 | 54 | 27 | |
| CABINE ELITECH 800/24E | avec éjecteur à distance | 6 | 45 | 2.4 | 25 |
| Gilex Jumbo 50/28 Ch-18 | avec éjecteur à distance | 3 | 28 |
Ici, les stations et les pompes avec un éjecteur intégré ou une version externe sont sélectionnées. Pour automatiser le processus d'extraction de l'eau des puits, il est recommandé d'acheter un accumulateur hydraulique avec un pressostat pour ces pompes. Habituellement, ils achètent une station de pompage prête à l'emploi. Le fabricant a calculé le volume optimal du réservoir pour ce type de pompe.
Pour que l'équipement de pompage fonctionne correctement, il est nécessaire de choisir la bonne pompe.En plus du niveau statique et dynamique, du débit du puits, de la consommation moyenne par personne et par jour, il est nécessaire de déterminer la hauteur totale de montée de l'eau du miroir au point d'alimentation le plus élevé. N'oubliez pas la section horizontale, dont 6% -10% doivent être ajoutés à la hauteur de l'ascenseur. Déterminez donc la pression requise.
Les pompes de surface auto-amorçantes sans éjecteur intégré sont mieux installées dans les sous-sols ou les caissons. Plus la distance à la surface de l'eau est courte, plus les pertes hydrauliques sont faibles. Les virages et le rétrécissement des conduites d'eau augmentent également la résistance hydraulique. Achetez un réservoir de stockage pour l'irrigation, ainsi vous créerez un approvisionnement en eau si le débit quotidien du puits est faible.
Vidéo - Pompe à main pour un puits sans fondation
Un autre type de pompe pourrait être envisagé - le compresseur. Il est utilisé pour soulever l'eau d'un puits à l'aide d'un pont aérien. La méthode n'a pas trouvé une large diffusion. Des pompes submersibles, semi-submersibles et profondes sont souvent utilisées, mais leur dispositif est plus compliqué, le coût et la réparation sont également coûteux. La meilleure option pour les puits peu profonds est une pompe de surface.
Types de pompes pour puits
Tous les modèles sont divisés en :
- Pompes submersibles. Les appareils sont partiellement ou complètement immergés dans l'eau.
- Surface. Ils sont utilisés lorsque le niveau d'eau n'est pas inférieur à 9 mètres. Leur installation peut être effectuée au sol et sur une plate-forme flottante, mais une condition préalable est que l'eau ne pénètre pas à l'intérieur du moteur.
Le principe de fonctionnement et les règles d'installation des pompes de surface
Installation d'une pompe de surface
Le fonctionnement de la pompe de puits est le suivant :
- Une pompe est montée sur l'arbre rotatif du moteur électrique, sur lequel se trouvent des trous pour l'alimentation et le prélèvement d'eau.
- L'admission est réalisée par un manchon ou un tuyau avec un clapet anti-retour. L'élément doit être de bonne qualité, sinon la dépressurisation de l'unité peut entraîner le fait que le moteur ne démarre pas.
- Pour augmenter la profondeur de la prise d'eau à plus de 9 mètres, vous pouvez utiliser un éjecteur externe, qui est abaissé sous l'eau avec un tuyau. Dans ce cas, lorsque la pompe est en marche, une partie de l'eau tombe dans l'éjecteur, la pression dans le tuyau augmente, ce qui augmente la pression. Mais le fort bruit généré par l'installation ne permet pas d'utiliser cette option tout le temps.
- L'installation d'une pompe de surface est très simple. L'unité est placée près du puits, un tuyau est descendu dans l'eau, l'appareil est connecté au réseau.
- Il est préférable d'installer la pompe dans une pièce chauffée ou dans un conteneur isolé.
Types de pompes submersibles pour puits
Les fabricants produisent trois types d'équipements submersibles :
- Centrifuge. Ce sont les appareils les plus chers. Conçu pour soulever l'eau d'une profondeur de plus de 100 mètres.
Dans sa composition, le sable peut dépasser 180 g/m. Une caractéristique des unités est une plus grande puissance et une productivité accrue. - Vortex. Avec leur aide, de l'eau contenant jusqu'à 40 g / m3 d'impuretés peut être pompée et la profondeur des puits est de 30 à 100 mètres.
- Vis. Le prix de ces appareils est le plus petit. Ils servent à organiser l'approvisionnement en eau à partir de puits dont la profondeur peut atteindre 15 mètres ou de réservoirs ouverts. La présence maximale de particules abrasives est de 40 g/m.
Pour les puits, des pompes de puits profonds à forte puissance sont utilisées.
Pompes profondes
Les dimensions optimales de tels dispositifs permettent de les installer dans des puits étroits. La longueur du cylindre de pompe allongé est de 50 centimètres à 2,5 mètres et le diamètre extérieur est d'environ 10 centimètres.
Si la question se pose de savoir quelle pompe choisir pour un puits de 15 mètres, alors une pompe pour puits profond est la meilleure solution. Il est bien adapté pour les puits de puits, les puits de sable profonds ou artésiens, les réservoirs de traitement. Ils sont fabriqués à partir d'acier inoxydable de haute qualité.
Pompes centrifuges pour puits
Pompe centrifuge
Les caractéristiques de l'unité sont :
- La conception de l'appareil comprend un arbre moteur sur lequel se trouve une roue, constituée de deux plaques reliées par des pales.
- La force centrifuge de la pompe capte l'eau avec les pales, puis la rejette dans le tuyau d'alimentation. Les pompes centrifuges sont le type d'équipement le plus courant pour les puits. C'est le mécanisme le plus polyvalent.
- Leur but principal est de pomper de l'eau propre. Cela indique qu'il ne devrait même pas y avoir une petite quantité de sable dans l'eau.
- Le coût des pompes centrifuges dépend du nombre d'étages et de certaines caractéristiques de conception.
- Pour les besoins domestiques, les pompes à un étage sont le plus souvent utilisées, cependant, si plus de pression d'eau est nécessaire, des pompes à plusieurs étages doivent être choisies, où il y a plusieurs roues de fonctionnement sur un arbre.
Applications de pompes vibrantes
Les pompes vibrantes sont utilisées aux fins suivantes :
Dispositif de pompe vibrante
- Pompage de l'eau du réservoir. Il peut être utilisé pour vider un puits fraîchement creusé ou le nettoyer si nécessaire.
- Élever l'eau d'un réservoir à usage domestique.
- Approvisionnement en eau à partir d'une source ouverte telle que lacs, piscines, rivières, etc.
- Approvisionnement en eau à partir d'un récipient pré-rempli, qui peut inclure une citerne, un réservoir, etc.
- Pompage de l'eau d'une pièce inondée, d'un sous-sol, d'une tranchée, etc.
- Le pompage de l'eau d'un puits peut également être effectué à l'aide d'une pompe vibrante, mais les avis sur l'utilisation de cet appareil dans de telles conditions varient considérablement. Certains parlent positivement du fonctionnement de la pompe, l'utilisant depuis des années, tandis que d'autres parlent d'un puits endommagé et d'un effondrement de la fondation.
Spécificités des équipements de pompage submersibles
Selon le type d'appareil, on distingue les pompes centrifuges et vibrantes. Dans le premier, un disque rotatif à pales est utilisé pour fournir de l'eau, et dans le second, une membrane spéciale qui transfère l'eau à l'aide de nombreuses vibrations. Ces caractéristiques de conception sont importantes car elles affectent l'intégrité du puits de différentes manières.
Pompe à vibration + puits : oui ou non ?
Est-il possible d'installer une pompe vibrante dans le puits ? Ces modèles sont relativement peu coûteux, faciles à utiliser et ont des performances adaptées à un nombre important de puits.
De nombreux experts s'opposent catégoriquement à l'utilisation de toute technique de vibration dans le puits. Cependant, les avis des propriétaires indiquent que les pompes de ce type sont utilisées avec succès sans endommager la structure. Alors, quelle pompe - vibrante ou centrifuge - est la meilleure pour un puits ?
Les objections des experts sont fondées. Une exposition prolongée aux vibrations affecte presque toujours négativement l'état des objets environnants. Le puits ne fait pas exception.
Les vibrations de la pompe située à côté du filtre affectent l'état du boîtier et du sol environnant, qui sont progressivement détruits. Les vibrations peuvent provoquer une accélération significative des processus d'envasement et de sablage.
Mais ça ne se fait pas tout de suite.En règle générale, les puits résistent avec succès aux vibrations pendant un certain temps. Par conséquent, à l'aide d'une telle pompe, il est possible de pomper le puits, de le nettoyer et de le faire fonctionner avec succès sans dommage visible.
Mais la destruction due aux vibrations se produit toujours, mais pas trop rapidement. L'utilisation constante d'une pompe vibrante peut réduire considérablement la durée de vie de la structure.
Si nécessaire, l'utilisation de modèles de vibration est tout à fait acceptable, mais uniquement en tant qu'option temporaire. Mais à la première occasion, une telle pompe doit être remplacée par un dispositif centrifuge plus sûr.
Lignes directrices pour le choix d'une pompe centrifuge
Pour ce faire, vous devez étudier attentivement le passeport technique de la centrifugeuse et découvrir plusieurs points importants:
- quelle est la performance de la pompe ;
- si ses dimensions conviennent au puits;
- à partir de quelle profondeur peut-il faire monter l'eau;
- quelles sont les caractéristiques de son installation et de son fonctionnement ;
- comment et dans quelles conditions le service de garantie est effectué, etc.
Habituellement, les consultants donnent des recommandations assez professionnelles lors du choix d'un tel équipement. Il convient de rappeler que de nombreux fabricants indiquent des caractéristiques limites plutôt que moyennes pour les pompes, vous devez donc prendre en compte une certaine marge de durée de vie opérationnelle.
Directement dans le marquage d'une pompe domestique ou dans le passeport technique d'une pompe étrangère, deux chiffres importants pour le choix sont indiqués. Le premier (dans l'exemple 55) est le débit en l/min, le second (75) est la hauteur manométrique maximale en mètres
Quelques mots sur les modèles populaires
Si la décision est prise d'utiliser une pompe à vibration, très probablement, "Kid" ou "Brook" sera acheté.Ces modèles se distinguent par de bonnes performances, une résistance aux pannes et un prix tout à fait abordable.
Ils sont faciles à nettoyer ou à réparer de vos propres mains. Mais pour une utilisation permanente, la technologie des vibrations n'est pas adaptée, elle doit être remplacée au plus vite.
La pompe à vibration "Kid" est un choix populaire, mais pas très approprié pour un puits, car les vibrations de l'appareil peuvent provoquer sa destruction
Parmi les marques populaires de pompes centrifuges submersibles, il convient de noter Aquarius et Vodomet. Ils sont très similaires, mais selon les avis des utilisateurs, Aquarius gagne sensiblement en qualité et en durabilité, bien qu'il coûte plus cher.
Cependant, le canon à eau a aussi ses partisans. Si vous avez la chance d'obtenir un modèle bien assemblé, il affichera des résultats assez décents.
Les pompes centrifuges submersibles de la marque Aquarius se sont imposées comme un équipement fiable et durable pour le puits, capable de faire face à des charges accrues
Les pompes de forage spéciales coûteront un montant substantiel, mais ces coûts se justifieront pleinement avec le temps. Comme exemple d'un tel équipement, il convient de noter les modèles 3STM2 et 4STM2 fabriqués par TAIFU.
Pompes de surface pour puits
Un équipement de ce type n'est pas conçu pour être descendu dans un puits. C'est un moteur électrique équipé d'un dispositif de pompage de liquide. L'aspiration se produit en créant un vide dans la chambre de travail de l'appareil. Il faut tenir compte du fait que les pompes de surface peuvent soulever de l'eau à une profondeur n'excédant pas 10 m. Sur cette base, leur domaine d'application est extrêmement limité et la qualité de l'eau résultante est plutôt faible.
Installez des équipements de type surface aux endroits suivants :
- sur plate-forme flottante, si le tubage passe en cuve étanche ;
- sous un auvent à proximité immédiate de la source;
- dans une cabine spécialement conçue pour protéger l'appareil lui-même des dommages mécaniques et des précipitations ;
- dans une pièce d'habitation ou de service en reliant la pompe au puits avec des tuyaux situés sous terre ou sur des étais.
Pour installer une pompe de surface, il n'est pas nécessaire d'avoir une formation spéciale ou d'utiliser des outils professionnels.
Ce travail s'effectue dans l'ordre suivant :
- Une plate-forme est en train d'être mise en place sur laquelle reposera la pompe. L'équipement lui-même est entretenu et ses performances sont vérifiées. Le dispositif est fixé rigidement sur la plate-forme.
- Le pipeline est en cours d'assemblage. Pour cela, des tuyaux en acier, en laiton ou en plastique d'un diamètre de 25 à 32 mm sont utilisés. Le métal est relié par du fil et le plastique par des accouplements ou des soudures.
- La canalisation est reliée à la pompe. La productivité de son travail de pompage de l'eau du puits est vérifiée.
Avant le réservoir de stockage, la canalisation est rendue permanente à partir de produits rigides ou temporaire à partir d'un tuyau flexible, qui est détordu et torsadé selon les besoins.
Quelle devrait être une bonne pompe
Le débit d'une source locale est un indicateur important lors du choix d'un appareil. Pour des performances élevées, une grande unité de puissance est nécessaire. La profondeur est le facteur déterminant. Un modèle conçu pour 40 m fournira de l'eau à partir de 50 m, mais tombera rapidement en panne.
Le niveau de qualité du forage doit également être pris en compte. Si les travaux ont été effectués par une équipe professionnelle, le puits peut supporter de lourdes charges et résiste aux influences extérieures.Pour les fosses à faire soi-même, il est préférable d'acheter des modèles centrifuges conçus spécifiquement pour les puits pour l'installation d'une pompe submersible.
Lors du choix de l'équipement de pompage de l'eau, une attention particulière est portée aux dimensions de l'appareil. Ils doivent être choisis en fonction de la section interne du boîtier
La pompe doit passer librement dans le tuyau. Si l'unité est en contact avec les murs, il est préférable de rechercher une option avec des dimensions plus petites.
Trouver un modèle de pompe qui s'adapte à un boîtier de 4" est plus facile qu'un modèle de 3". Ce facteur doit être pris en compte lors de l'élaboration d'un plan d'installation d'une pompe submersible dans un puits.
Les mécanismes de pompe profonde ont différents schémas d'alimentation. Les appareils monophasés et triphasés sont autorisés à être utilisés dans une mine d'eau.
Options de sélection de pompe de puits
Caractéristiques de l'aquifère
Les caractéristiques de l'aquifère comprennent:
1. profondeur - dynamique, changeant en fonction de divers facteurs et statique;
2. débit - la quantité de liquide entrant dans l'apport par unité de temps;
3. le type de sol dans lequel se trouve l'eau.
Une fois les travaux terminés, un passeport est établi indiquant toutes les données nécessaires.
Besoin en eau
Dans le cas d'une maison privée, le besoin en eau est calculé - il ne doit pas dépasser le débit. Lors de sa détermination, le nombre de résidents et d'appareils de plomberie est pris en compte, ainsi que le mode de fonctionnement + la quantité de liquide pour l'irrigation.
Ce paramètre, selon la situation, diffère considérablement. Par conséquent, compte tenu des normes, il est préférable de le déterminer en fonction des habitudes de consommation - dans des conditions similaires, le débit peut nécessiter à la fois 2 et 20 m3 / h.
pression
Un paramètre obligatoire est la charge, qui peut être considérée en atmosphères ou en mètres de colonne d'eau - le rapport entre ces valeurs est d'environ : 1 à 10.
Dans son calcul simplifié, les éléments suivants sont résumés :
1. Hauteur de levage géométrique (distance verticale de la pompe au point de démontage le plus élevé) ;
2. Pertes sur les sections horizontales (10 m équivaut à 1 m)
3. Pression libre au mélangeur (à partir de 2 ou 3 m).
Le degré d'entrée dans le boîtier
L'appareil doit entrer dans le tube de tubage avec un jeu de 1 ... 3 cm. Les diamètres les plus courants de ce dernier sont de 10, 13 et 15 cm. En conséquence, les pompes sont produites à 3", 4", plus de 4" .
Que rechercher lors du choix d'une pompe?
Avant le choix final, vous devez prêter attention à plusieurs caractéristiques techniques clés de l'équipement de pompage. L'une de ces caractéristiques est la performance.
Elle se mesure en l/min ou en mètres cubes. m / h et désigne le volume d'eau pompée par minute ou par heure. Pour une famille de 2-3 personnes, ce chiffre devrait atteindre 45 l/min soit 2,5 mètres cubes. m/h minimum
L'une de ces caractéristiques est la performance. Elle se mesure en l/min ou en mètres cubes. m / h et désigne le volume d'eau pompée par minute ou par heure. Pour une famille de 2-3 personnes, ce chiffre devrait atteindre 45 l/min soit 2,5 mètres cubes. m/h minimum.
Cet indicateur peut être calculé indépendamment. Additionnez la consommation d'eau de tous les points de prélèvement (consommateurs) de la maison et multipliez par un facteur de 0,6. Le nombre 0,6 signifie que pas plus de 60 % de tous les points de prise d'eau sont utilisés en même temps.
Les coefficients de calcul de la productivité sont présentés en l/min et en mètres cubes. m/heure.Pour les calculs, sélectionnez uniquement les valeurs des points de clôture qui se trouvent dans la maison
La pression maximale est un indicateur important. Cela dépend de la force de pression si la pompe pompera suffisamment d'eau pour vos besoins. Pour le calculer, il est nécessaire de faire la somme des hauteurs d'eau dynamiques et statiques. Ajoutez ensuite 10% du montant reçu.
Il existe des formules plus complexes qui tiennent compte de la distance à la maison et du nombre de prises d'eau. Si vous ne souhaitez pas effectuer vous-même des calculs complexes, demandez conseil à un spécialiste.
Le niveau d'eau statistique ou la profondeur du miroir est la distance entre le niveau d'eau réel et le sommet du puits. Si cette distance ne dépasse pas 10 mètres, une pompe de surface doit être sélectionnée.
Certains experts estiment que ce chiffre devrait être compris entre 2 et 7 mètres. Dans d'autres cas, concentrez-vous sur le submersible. A noter que ce dernier est plus endurant, quasiment silencieux, et aussi puissant.
Les pompes de surface sont assez lourdes et bruyantes. Ils sont idéaux si un puits ou un puits jusqu'à 10 mètres de profondeur
La hauteur de la colonne d'eau ou le niveau dynamique est également important - c'est la distance entre le bord de l'eau et le fond du puits. Il est nécessaire de prendre en compte la profondeur du puits ou du puits, car ce paramètre est également prescrit dans le passeport de la pompe. Ces indicateurs devraient idéalement correspondre
Il convient de prendre en compte la hauteur de la pompe elle-même par rapport au puits
La puissance de l'équipement est fixée en W et correspond à la quantité d'électricité que la pompe « tirera ». N'achetez pas une pompe avec une réserve de marche, sinon vous paierez simplement trop cher pour l'électricité.
Faites attention au matériau du corps, il doit avoir une protection contre la corrosion. Les détails sont également importants.
Vérifiez, au moins visuellement, la qualité de l'assemblage, des roues. Il est préférable qu'ils soient "flottants" et fabriqués en plastique technique durable.
L'outil de travail clé d'une pompe hydraulique centrifuge est la roue. Le plus souvent, il est constitué d'un alliage de métaux non ferreux, d'acier inoxydable ou de fonte.
Nous avons fourni plus de conseils sur le choix du bon modèle de pompe pour le puits dans l'article suivant.
Dans le cas d'une pompe centrifuge, il y a une roue à aubes qui pompe l'eau. Dans les appareils puissants, il peut y avoir plusieurs roues de ce type.
La roue est entraînée par un moteur électrique. La force centrifuge déplace l'eau vers le bord de la roue à partir de son centre. Ainsi, une zone de haute pression se forme et le liquide s'écoule à travers les canalisations jusqu'aux points de prise d'eau (cuisine, bain, arrosage). Ensuite, la pression est réduite et le processus recommence.
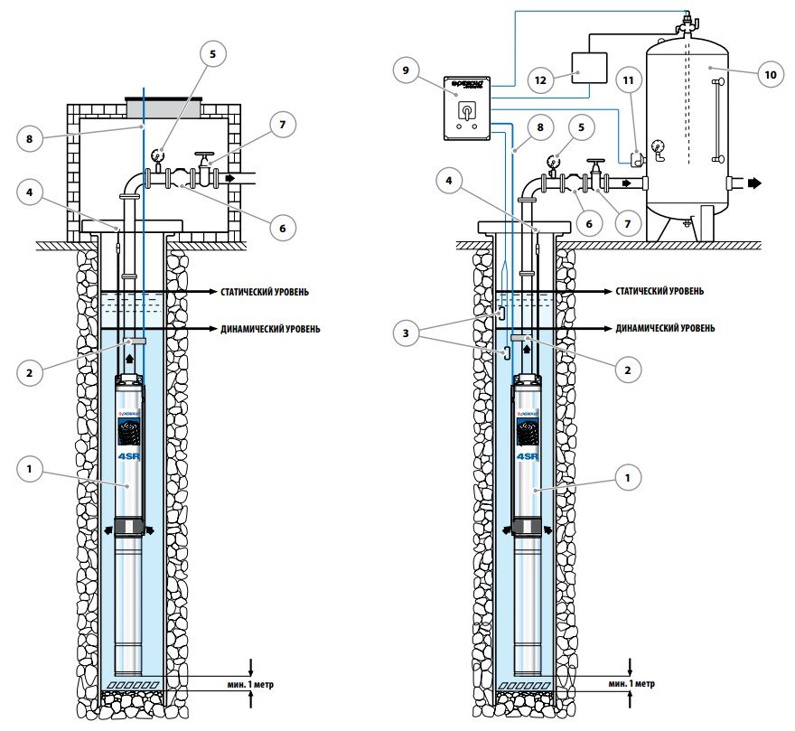
Certaines pompes centrifuges ont un accumulateur hydraulique. Il s'agit d'un réservoir avec un élément à membrane. Il est utilisé pour maintenir la pression nécessaire dans les tuyaux à travers lesquels l'eau, à l'aide d'une pompe, s'écoule du puits et dans la maison. Il est indispensable pour les puits et puits d'une profondeur de 10 à 30 mètres.
Un autre élément important est le clapet anti-retour. Le principe de son fonctionnement est que l'eau n'a pas la possibilité de se déplacer dans la direction opposée, c'est-à-dire de la maison par des tuyaux jusqu'au puits.
Il convient également de déterminer le type d'eau que la pompe peut pomper. Si l'eau du puits est mélangée à de la chaux, de l'argile ou du sable, cela doit être annoncé avant l'achat. Sinon, la pompe se bouchera et tombera en panne prématurément.
Avant d'acheter, renseignez-vous sur l'emplacement des centres de service et la disponibilité des pièces (au moins les pièces clés) pour le modèle de pompe sélectionné.
Si vous souhaitez installer la pompe vous-même, assurez-vous de lire attentivement les instructions de l'appareil et de consulter des spécialistes.
Compte tenu de ces caractéristiques, vous pouvez facilement sélectionner le bon modèle de pompe.
Vortex
Dans les pompes submersibles vortex, l'aspiration et l'expulsion de l'eau se produisent à l'aide d'une seule roue à aubes, située dans la partie supérieure d'un boîtier suspendu verticalement près du tuyau de sortie. Pour réduire les pertes hydrauliques, la conception prévoit une très petite distance entre la face latérale du disque de roue vortex et la chambre de travail - cela empêche les dispositifs vortex de fonctionner dans un environnement avec des particules de sable.
Les appareils de type vortex ont de bonnes caractéristiques de pression (la hauteur de levage du liquide atteint 100 m) et des volumes de pompage moyens (environ 5 mètres cubes / heure).
Bien que les pompes électriques vortex soient rarement utilisées dans la vie de tous les jours, il existe sur le marché des modèles Belamos TM, Sprut, Whirlwind, NeoClima, Pedrollo Davis.
Riz. 7 Pompe submersible Vortex - conception et apparence
Centrifuge
Les dispositifs centrifuges ont atteint une telle distribution en raison des propriétés suivantes :
- Leur coefficient de performance (COP) est le plus élevé de tous les analogues, dans les grandes unités industrielles, il atteint 92%, dans les modèles domestiques, il atteint 70%.
- Structurellement, la chambre de travail est conçue de manière à ce que le liquide pénètre dans la partie centrale de la roue centrifuge et soit expulsé par le tuyau latéral. Cela vous permet de fabriquer des dispositifs centrifuges à plusieurs étages dans lesquels le fluide éjecté est acheminé vers l'essieu de la roue suivante, ce qui augmente encore sa pression.Grâce à l'utilisation de plusieurs roues centrifuges avec chambres de travail séparées (étages), il est possible d'obtenir des paramètres de pression dans le système plusieurs fois supérieurs à ceux des autres équipements de pompage (dans les modèles domestiques, la pression ne dépasse pas 300 m) .
- Les types centrifuges sont capables de pomper de gros volumes de liquide à haute pression; pour un usage domestique, ce chiffre dépasse rarement 20 mètres cubes / h.
- Les unités de type centrifuge sont moins affectées par les fines particules de sable sur le mécanisme de travail, elles sont largement utilisées dans les puits de sable, en choisissant un modèle pour travailler avec une granulométrie appropriée indiquée dans le passeport.
- Un avantage significatif des types centrifuges est le haut niveau d'automatisation, les principaux fabricants mondiaux d'équipements de pompage (Grundfos, Pedrollo, Speroni, Dab) fournissent à leurs appareils des unités avec contrôle de fréquence de la vitesse de rotation de la roue. Cette innovation permet non seulement d'économiser considérablement l'électricité lors du fonctionnement de la pompe électrique (jusqu'à 50%), mais également d'augmenter considérablement sa durée de vie.
Si nous énumérons tous les fabricants de pompes centrifuges qui représentent leurs produits sur le marché intérieur, la liste sera assez volumineuse, nous nous limiterons donc aux principaux fabricants mondiaux énumérés ci-dessus. Parmi les marques nationales, Aquarius, Dzhileks Vodomet, Whirlwind, Belamos, Caliber, Unipump ont reçu la plus grande renommée.
Riz. 8 Pompes submersibles centrifuges - conception et matériaux de fabrication en utilisant l'exemple de Grundfos SBA










































