- Facteurs de montage
- Composé
- Le dessin est la tête de tout
- Ce que vous devez savoir avant de concevoir
- Comment choisir la bonne pompe d'égout
- Hauteur maximale de tête et de levage
- Température de fonctionnement
- Disponibilité de l'automatisation
- Alimentation et matériau du boîtier
- Types d'élimination des déchets
- Bien
- Autonome
- Central
- Concevoir
- Choisir une pompe fécale
- Volume du réservoir
- Choisir un emplacement pour un réservoir de stockage
- Caractéristiques de fonctionnement
- Qu'est-ce qu'un égout sous pression
- Comment choisir l'unité pour vos besoins?
- But des pompes d'égout
- Schéma des eaux usées domestiques
- Aménagement des systèmes d'égouts
Facteurs de montage
- virages ;
- niveau de la nappe phréatique ;
- Se tourne.
Les égouts de tout type sont équipés d'installations de traitement.
Tout égout est placé sous une pente. S'il est nécessaire de modifier le niveau de pente, il est nécessaire de s'appuyer sur les indicateurs de la section de tuyau. Dans certains cas, des regards ou des pompes sont installés.
Composé

Les puits sont des structures divisées par objectif. Et ils sont: drainage, perepannye, rotatif, visionnage. Les puits sont généralement équipés de supports permettant aux spécialistes de descendre pour les réparations, ainsi que de trappes avec couvercles.
Les sorties vers les prises d'eau sont des structures qui assurent l'évacuation gratuite des eaux usées des canalisations dans un réservoir.
Les collecteurs - sont des tunnels souterrains, qui se présentent sous la forme de tuyaux de grand diamètre, à travers lesquels les eaux usées se déplacent vers la destination finale.
Les stations d'épuration locales sont des installations utilisées pour évacuer et traiter les eaux usées. Ces installations comprennent des usines de traitement biologique. Le nombre de maisons viabilisées dépend de la productivité et de la taille de la structure.
Les stations de pompage sont des unités installées dans des installations séparées qui nécessitent un approvisionnement dosé en eaux usées.
Le dessin est la tête de tout
Un projet d'assainissement, réalisé conformément à toutes les règles, et offrant le moyen le plus optimal d'évacuation de l'eau pour une maison privée. Mais les propriétaires ne cherchent pas toujours à demander l'aide de spécialistes, mais préfèrent résoudre le problème par eux-mêmes.
Par où devez-vous commencer si vous voulez faire un égout de vos propres mains? Bien sûr d'après le dessin. Mais pour bien faire les choses, vous devez choisir le bon schéma qui correspond aux conditions réelles et comprendre comment le système doit fonctionner.
Exemple de système d'assainissement
Ce que vous devez savoir avant de concevoir
Pour concevoir un système, vous devez répondre aux questions suivantes :
- Est-il possible de se connecter à l'autoroute de la ville, faudra-t-il uniquement collecter les déchets d'égouts ou faut-il également organiser leur nettoyage?
- Quelle quantité d'eaux usées sera recyclée ? Elle dépend à la fois du nombre et de la saisonnalité des personnes vivant dans la maison, ainsi que de la disponibilité et de la variété des points d'eau.
Chiffre pour plus de clarté - consommation d'eau par jour
- Vous devriez trouver la profondeur à laquelle le sol gèle. Ceci est nécessaire pour le bon approfondissement de la sortie d'égout.
- GWL - la marque à laquelle se trouve le miroir des eaux souterraines (lire l'article sur la réalisation des études d'ingénierie et géologiques). S'ils sont situés en hauteur, un réseau d'égouts peut également être construit sur la parcelle pour recueillir les égouts pluviaux.
- Il est nécessaire d'évaluer si la topographie du site contribue au fait que les drains peuvent fusionner par gravité. Sinon, vous devrez utiliser une pompe fécale et vous devez déterminer immédiatement l'endroit où elle doit être installée.
Comment faire un égout dans une maison privée si vous devez utiliser une pompe
- Lors de l'installation d'installations de traitement, vous devez déterminer immédiatement leur type, envisager la possibilité d'accéder aux équipements d'égout (lire l'article sur la façon de pomper et de nettoyer les fosses septiques).
- Il est nécessaire d'établir avec précision le type de sol de la zone, en fonction duquel une décision est prise soit sur la construction d'un puits de drainage, de tranchées de filtration ou de champs.
- Il est nécessaire de dessiner un schéma indiquant tous les types d'équipements de plomberie. Dans ce cas, il est nécessaire de prendre en compte l'option de pose du pipeline: à l'intérieur du sol ou en surface, afin de comprendre si des travaux de démontage devront être effectués.
A quoi sert le schéma de câblage du réseau interne ? Tout d'abord, afin de calculer correctement la quantité de matériaux nécessaires et de déterminer avec précision leur emplacement dans le système.
En relation: Erreurs impardonnables lors de la distribution de communications: décrire en termes généraux
Comment choisir la bonne pompe d'égout
Après vous être familiarisé avec tous les types et sous-types de pompes existants, vous devez choisir l'option la plus optimale.
Il est important de faire attention à quelques points avant d'acheter :
- Qualité et performances de l'appareil.
- Le matériau dont il est fait.
- Prix.
- La présence d'un broyeur.
- Quel est le but de cet appareil ?
La qualité et les performances de l'unité sont d'une grande importance - ces caractéristiques montrent la quantité de matières fécales que l'unité peut pomper en un certain temps. Le chiffre le plus bas est de 5 cubes en 60 minutes. Le plus grand est de 48. Pour une maison privée, la moyenne est de 9 à 13 mètres carrés en 60 minutes.
La présence d'un broyeur joue également un rôle important lors du choix d'un appareil. S'il y a des débris dans les eaux usées, il est préférable d'acheter une pompe avec un hacheur et un filet.
Les éléments suivants sont également pris en compte lors du choix d'une unité :
- hauteur maximale de tête et de levage ;
- température de fonctionnement;
- disponibilité de l'automatisation ;
- alimentation et matériau du boîtier.
De plus, vous pouvez acheter une télécommande, ainsi qu'un système automatique. Tout dépend des souhaits de l'acheteur. Pour un prix supplémentaire, vous pouvez augmenter la fonctionnalité de l'unité.
Hauteur maximale de tête et de levage
La tête détermine la hauteur de levage maximale. Il y a une ligne de pression verticale et horizontale. Pour calculer la tête maximale, calculez la distance horizontale, divisez par 10, puis ajoutez ce chiffre à la longueur du métrage verticalement d'un bord à moteur de la pompe.
Mais avant de calculer un certain chiffre, vous devez considérer quelques nuances:
- la température de l'eau;
- la quantité et la taille des impuretés dans le liquide ;
- matériau et diamètre du tuyau ;
- Pression atmosphérique ;
- la vitesse de déplacement des masses fécales dans les canalisations.
Vous devez contacter un spécialiste s'il n'y a pas de système de drainage des égouts.Cela vous aidera à choisir la meilleure option afin de ne pas vous tromper de diamètre de tuyau ou de puissance moteur.
Température de fonctionnement
Les unités d'égout sont divisées en deux types:
- Pour eau froide.
- Pour l'eau chaude.
Si seule de l'eau à basse température est versée dans la fosse de drainage, la première option est considérée comme optimale. De plus, il a un coût moindre que les appareils pour liquides chauds. Habituellement, le liquide chaud ne pénètre dans les égouts qu'en cas d'urgence. L'un d'eux est une décharge d'urgence du système de chauffage.
Disponibilité de l'automatisation
La présence de l'automatisation allume et éteint le moteur de la pompe indépendamment. Vous n'avez pas besoin de le faire manuellement. Idéalement, le groupe motopompe devrait comprendre les éléments suivants :
- flotteur;
- broyeur;
- relais thermique.
Le flotteur est capable de déterminer le niveau de liquide dans les drains, lorsque l'eau s'écoule au minimum, le moteur s'éteint automatiquement. Le broyeur agit comme un système autonettoyant. Le thermostat régule la température. Pour éviter une surchauffe et des dommages au moteur, l'interrupteur thermique coupe l'alimentation électrique lorsque de l'eau à des températures élevées est évacuée dans les drains.
L'automatisation vous permet d'éviter les pannes du moteur et son remplacement à l'avenir - la présence d'un flotteur, d'un hacheur et d'un relais thermique permettra d'économiser considérablement les finances et de réduire le nombre de pannes. Les unités submersibles sont difficiles à sortir pour réparation ou entretien. Et les experts ne conseillent pas simplement de "retirer" le moteur sous le liquide.
Alimentation et matériau du boîtier
Vous pouvez démarrer différents types de pompes d'égout à partir d'un réseau triphasé ou monophasé.Le monophasé est moins cher, et pour économiser le moteur des surtensions, il est préférable d'acheter un stabilisateur ou un générateur portable spécial et d'y connecter la pompe. Si la distance est trop longue, vous aurez besoin d'un carter solide qui protégera le moteur des changements brusques de température, du gel et de la pluie. Il est recommandé d'acheter les pompes de surface pour les maisons privées avec un boîtier puissant.
Le triphasé nécessitera également un équipement supplémentaire qui empêchera les dommages - un panneau de commande. Cette partie protégera contre le déséquilibre de phase dans le secteur.
Le boîtier métallique est considéré comme fiable. Mais il est difficile à installer - il est lourd et nécessitera une paire de mains supplémentaire si le moteur est submersible ou semi-submersible. Le plastique est moins cher, mais en termes de fonctionnement, il est inférieur à la fonte et à l'acier inoxydable.
Vous pouvez choisir un corps en plastique et des pièces de travail en métal. Pour une maison privée, un appareil de surface ou submersible à faible puissance est considéré comme la meilleure option. Pour organiser l'évacuation des eaux usées dans le pays, il est préférable d'utiliser une station de pompage.
Types d'élimination des déchets
- Central.
- Autonome.
- Bien.
Bien
Le puits est destiné au détournement des drains sanitaires dans les maisons privées. Ses avantages sont une installation simple et un faible coût. Pour utiliser un tel système, une dépression suffisamment grande dans le sol est utilisée, qui est clôturée avec des anneaux en béton et en plastique, ou avec une structure en brique faite maison.
L'inconvénient du puits est le besoin fréquent de pompage. Étant donné que tous les déchets qui pénètrent dans les égouts sans traitement sont évacués dans le puits, un sédiment dense se forme au fond, ce qui empêche l'absorption d'humidité.
Un autre inconvénient est la pollution de l'environnement.Étant donné que les drains ne sont pas soumis à un prétraitement, tous les produits chimiques utilisés dans la maison ont un impact négatif sur l'environnement.
Autonome
Une fosse septique est un moyen plus humain d'éliminer les eaux usées. Le principe de base de son travail est la purification initiale de l'eau des impuretés toxiques et des déchets solides. Ce système se compose de plusieurs réservoirs. Les eaux usées sont rejetées dans le premier réservoir. En raison de la masse différente, les déchets solides et les composants chimiques se déposent au fond, les graisses et les objets plus légers remontent à la surface et l'eau passe à la deuxième étape de purification à travers un tuyau spécial.
Le deuxième réservoir peut être utilisé comme puisard de secours ou avoir pour fonction de décomposer les produits chimiques ménagers en composants. Pour ce faire, des additifs biologiques sont utilisés, qui aident en peu de temps à décomposer toutes les impuretés contenues dans l'eau.
À l'avenir, l'eau déjà purifiée pourra être pompée ou utilisée pour l'irrigation. Avant de prendre des décisions concernant l'utilisation du liquide d'irrigation, il est nécessaire de mesurer le niveau de contamination de l'eau par des produits chimiques. Si la teneur en substances nocives est élevée, des filtres spécialisés doivent être utilisés.
Ainsi, il est possible de réduire la consommation d'eau et de fournir une opportunité de réviser le projet d'approvisionnement en eau, ce qui réduira considérablement les coûts.
Important! Lors de l'utilisation de cette méthode, il est nécessaire de doter la fosse septique de trappes d'inspection pour le nettoyage, ainsi que d'un système de ventilation pour éliminer les fumées et les gaz qui se forment lors de la décomposition de diverses substances. Avantages d'une fosse septique :
Avantages d'une fosse septique :
- Respect de l'environnement accru par rapport à un puits.
- Possibilité de ménage séparé.
Défauts:
Augmentation du coût du système et de l'installation.
Central
Tout le monde ne peut pas utiliser le système d'assainissement central en raison du fait que les tuyaux d'évacuation des eaux usées ne sont souvent pas tendus jusqu'au secteur privé. Si cela est possible, il est nécessaire d'obtenir une autorisation spéciale au stade de la planification, ce qui permettra l'utilisation de cette méthode.
Malgré le fait que l'obtention d'une autorisation nécessitera des coûts financiers supplémentaires, l'utilisateur a la possibilité d'utiliser librement ce système chez lui. Il n'y a pas non plus besoin de pompage régulier et d'utilisation de divers moyens qui accélèrent la décomposition des substances dans le puits.
Certains facteurs peuvent influer sur l'utilisation d'une méthode d'élimination des déchets :
- Climat.
- Le nombre d'unités d'évacuation de l'eau dans la maison.
- Possibilité d'utilisation pour l'évacuation des précipitations.
Selon le climat environnant, la profondeur de gel de la terre en hiver peut être différente. Sur cette base, la profondeur et le volume de la fosse septique ou du puits utilisé sont conçus. Afin de ne pas endommager le système de canalisations et le puits lui-même, il est nécessaire de calculer la profondeur correcte à laquelle le réservoir sera immergé. Si les calculs ne sont pas corrects, cela peut entraîner des coûts supplémentaires pour réparer ou remplacer l'ensemble du projet.
Le nombre de nœuds affecte également le volume des réservoirs et le diamètre des tuyaux de décharge. Si la maison utilise un bain, le volume de liquide traversant les tuyaux sera petit, respectivement, vous pouvez utiliser un tuyau d'un diamètre plus petit.
Afin de protéger la zone adjacente de la formation de grandes flaques d'eau, des bacs anti-tempête sont souvent utilisés autour de la maison, qui drainent tout le liquide dans le réservoir ou évacuent l'eau à l'extérieur de la zone de la maison, ce qui peut nuire aux voisins.
Concevoir
S'il y a suffisamment de motifs pour l'agencement du NC, vous pouvez passer à la première étape de la construction - la conception du système. Il vaut mieux laisser cette partie du travail aux experts. Ils effectueront le calcul de la station de pompage des eaux usées, détermineront la puissance optimale de la pompe et la nécessité d'installer une chambre de commutation, établiront un devis précis et une note explicative et respecteront les normes de conception. Un exemple d'un tel projet et des estimations d'installation peuvent être trouvés sur des sites thématiques et des forums.
A noter que lors du raccordement aux réseaux centraux d'assainissement, le service d'exploitation demandera en premier lieu un projet d'évacuation des eaux usées. Lors de l'organisation d'un NK autonome, certains des problèmes sont supprimés, mais, néanmoins, il y a des nuances qui doivent être prises en compte.
Erreurs de calcul hydraulique, calculs du diamètre minimum des tuyaux, de la puissance du moteur, etc. peut entraîner un fonctionnement instable du réseau interne ou externe de la CN. Dans certains cas, la situation peut être corrigée en créant une boucle d'amortissement de pression (puits d'amortissement).
Dispositif de puits d'extinction
Le nombre de tels puits dans le système n'est pas standardisé, leur nombre, la distance entre les deux plus proches et les caractéristiques sont déterminés au cours de calculs ou en fonction des résultats d'un essai hydraulique. Elle n'est pas aussi grave que pour l'oléoduc, mais, néanmoins, elle doit être réalisée pour les compagnies pétrolières sans faute.
Choisir une pompe fécale
Tout d'abord, il est nécessaire de déterminer sa capacité, cela dépend de la longueur des lignes de canalisation verticales et horizontales. Cette dépendance est illustrée dans la figure ci-dessous.
Puissance de la pompe en fonction de la longueur de la canalisation
Quant au débit dans le système NK, selon les normes SNiP, il devrait être d'environ 2,0 l / s, respectivement, la capacité de la pompe est sélectionnée au niveau de 120 l / min. Ensuite, vous devez décider du type d'équipement de pompage, il peut s'agir de :
- Submersible (aspiration).
- Superficiel.
Les premiers sont plus chers, ils sont conçus pour un fonctionnement sans problème dans un environnement agressif. Ces derniers sont un peu moins chers et plus faciles à entretenir, mais leur installation nécessitera plus d'efforts.
Volume du réservoir
Le calcul du volume est basé sur le taux journalier de consommation d'eau par personne, sa valeur moyenne est d'environ 0,20 m3. Le réservoir doit contenir un débit minimum de trois jours. Par exemple, si 4 personnes vivent dans un immeuble, la consommation quotidienne moyenne sera d'environ 0,80 m3, compte tenu de la norme de trois jours, le réservoir doit avoir un volume d'au moins 3,20 m3.
Il convient de s'attarder sur la conception à deux chambres du réservoir, dans ce cas un compartiment jouera le rôle de décanteur primaire, et le second jouera le rôle de chambre de pompage. C'est dans celle-ci qu'une pompe fécale équipée d'un broyeur sera installée. Le remplissage du réservoir est contrôlé par des capteurs spéciaux, lorsque le niveau seuil est atteint, la pompe est démarrée pour les pomper.
Vous pouvez acheter une station de pompage des eaux usées prête à l'emploi avec un réservoir en plastique ou construire vous-même un réservoir de stockage à partir d'anneaux ou de briques en béton et installer l'équipement nécessaire.
KNS : a) industriel ; c) puissance moyenne
Choisir un emplacement pour un réservoir de stockage
Afin d'éviter les réclamations du service des eaux, du service sanitaire et épidémiologique et d'autres organismes de réglementation, le choix de l'emplacement du réservoir de stockage doit être pris au sérieux. Conformément aux normes du SNiP 020402-84, autour d'une éventuelle source de pollution, il doit y avoir zone de protection sanitaire. Le document ci-dessus précise la distance minimale qui doit être entre les tuyaux (manchons) du NK et les puits ou autres sources d'eau potable. Ces SNiP réglementent également la distance par rapport à la zone de sécurité des bâtiments résidentiels, les limites du site, les arbustes et les arbres, ainsi que d'autres objets.
Normes de base pour le lieu de KNS
De plus, les réseaux souterrains traversant le site doivent être pris en compte, malheureusement, leur désignation sur les plans n'est pas toujours présente, ce qui peut entraîner certaines difficultés. Des informations sur la disponibilité de ces communications peuvent être obtenues auprès des services concernés.
Caractéristiques de fonctionnement
La condition principale pour le fonctionnement complet de la pompe forcée d'égout est la présence d'une alimentation en eau centralisée.
Le mécanisme d'assainissement artificiel est sans prétention dans les soins. De temps en temps, le récipient de collecte des masses drainantes doit être désinfecté. Pour ce faire, il suffit de verser Whiteness dans le réservoir ou un agent spécialement conçu ou un liquide de nettoyage des tuyaux, qui dissolvent efficacement les dépôts sur les tuyaux et les murs.
En même temps, il faut s'abstenir d'agents organiques qui peuvent rendre les joints en caoutchouc et la plomberie en plastique inutilisables.
Si la pompe sanitaire est utilisée dans des pièces non chauffées, le système doit être vidangé au début de la saison hivernale.
Qu'est-ce qu'un égout sous pression
Les eaux usées sous pression sont un système dans lequel les effluents ne se déplacent pas dans des tuyaux indépendamment, mais à l'aide d'une pompe. De plus, tout le processus se déroule automatiquement, avec peu ou pas d'intervention du propriétaire.
Les égouts sous pression se composent de plusieurs parties
Dispositif d'assainissement sous pression :
- La partie la plus importante du système est considérée comme une installation de pression d'eau pneumatique d'égout - une station de pompage. Les eaux usées s'y accumulent progressivement et lorsqu'elles atteignent un niveau suffisant, la pompe commence à distiller les eaux de vidange dans des puits de décantation. De nos jours, l'ensemble du processus est entièrement automatisé et ne nécessite aucune intervention humaine.
- En plus de la station de pompage, le système comprend un pipeline. De plus, les tuyaux pour cela doivent être utilisés plus durables et fiables que pour un système par gravité. Après tout, il y a beaucoup de pression sur eux.
Une station sous pression est un système qui est utilisé si l'organisation d'un égout gravitaire n'est pas possible. Après tout, cette option d'assainissement vous permet de résoudre de nombreux problèmes.
Comment choisir l'unité pour vos besoins?
Lorsque vous vous familiarisez avec les types de pompes fécales existants, la question se pose devant vous, que rechercher lors du choix ? Si vous tenez compte de quelques paramètres de base, faites attention au fabricant et au coût de l'équipement, vous pouvez choisir la bonne unité pour tous les besoins - pour le pompage l'eau de la piscine, sous-sol et plus. Heureusement, il existe de nombreux choix sur le marché.
Si vous avez besoin d'une pompe pour pomper l'eau d'un étang ou d'un autre plan d'eau, suivez ce lien et consultez le classement des meilleurs modèles et des conseils pour choisir.
La principale caractéristique qui détermine la qualité de la pompe fécale est la performance.Il affiche la quantité d'eaux usées que l'équipement peut pomper par unité de temps. Pour choisir la bonne quantité pour l'entretien d'une maison privée, vous devez calculer la vitesse à laquelle les déchets sont collectés dans la fosse et la quantité qui devra être pompée à la fois.
En règle générale, cet indicateur est mesuré en m3 / heure et varie de 5 à 48 mètres cubes. par heure pour modèles industriels. Pour un usage domestique, les modèles les moins performants conviennent. En moyenne, 10 à 12 mètres cubes par heure seront la meilleure option pour une maison.
Si vous avez besoin d'une pompe pour donner, nous vous recommandons de vous familiariser avec les types et les fabricants d'équipements les plus appropriés pour pomper les matières fécales.
Un autre paramètre qui revêt une grande importance lors du choix est la taille des particules acceptables. Encore une fois, vous devez d'abord analyser le matériel avec lequel l'équipement devra fonctionner. Si vous ne trouvez pas le bon modèle, regardez les options de hachoir. Ils conviennent le plus souvent à un puisard.
Si l'équipement est submersible, tenez compte de la profondeur d'immersion autorisée. Comparez-la à la profondeur de votre fosse septique et faites un choix en fonction de ces valeurs.
Attention à la puissance du moteur électrique. Modèles disponibles de 0,25 kW (pour les pompes de drainage) à 4 kW (pour les unités industrielles)
Il convient également de mesurer en mètres la distance entre le site d'installation et le point de transport des matières fécales. L'indicateur est pris en compte à la fois horizontalement et verticalement, car avec une pente, la pompe devra faire plus de travail que dans des conditions normales.

Souvent, le fabricant ne spécifie qu'une seule valeur, par exemple 100 m. Cela signifie que l'unité peut déplacer le liquide de 100 m horizontalement. Pour connaître la valeur verticale, divisez la valeur par 10. Cela signifie qu'une telle pompe peut surélever les drains de 10 m de hauteur
Une fonctionnalité supplémentaire sous la forme d'une télécommande ou d'un système marche/arrêt automatique pour le moteur électrique est sélectionnée à la demande du client. Bien entendu, toutes ces "puces" augmentent le coût de l'appareil.
But des pompes d'égout

Rarement, les propriétaires peuvent se connecter à un système d'égouts centralisé. Dans la plupart des cas, des systèmes de drainage autonomes sont équipés dans les zones suburbaines, qui doivent être desservies de manière indépendante. La bonne disposition du drain dans une maison de campagne est considérée comme la clé de l'existence normale de toute la famille. Cependant, il existe un autre moyen de résoudre ces problèmes.
Des camions aspirateurs fournissent régulièrement leurs services pour le pompage des eaux usées du système de drainage dans une maison privée. Mais de telles mesures sont considérées comme relativement coûteuses et chronophages. Afin d'éviter les problèmes, il est nécessaire de contrôler indépendamment le processus de pompage des eaux usées, d'attendre que l'équipe d'égouts termine son travail. Par conséquent, de nombreux propriétaires tentent d'équiper le système d'égout. Pour cela, des pompes spéciales sont nécessaires, à l'aide desquelles les eaux usées sont pompées dans les égouts.
Les pompes sont nécessaires dans de telles situations:
- Si les appareils de plomberie sont mal situés ou s'il y a des difficultés à évacuer les eaux usées par gravité ;
- S'il est nécessaire de détourner les drains à une longue distance de la maison ;
- Pour éviter le colmatage des canalisations d'égout;
- Lors de l'installation de plomberie sur les sous-sols. Dans de tels cas, les bandes sont installées sous l'égout lui-même.
Selon la conception du système de drainage, un type de pompe spécifique est sélectionné.
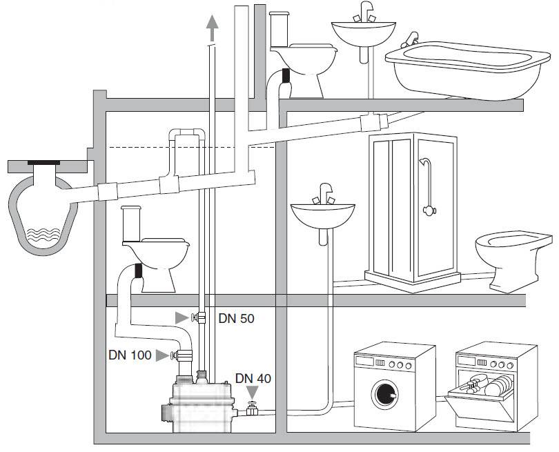
Schéma des eaux usées domestiques
Le schéma du système d'égout comprend des tuyaux, des raccords, des collecteurs et des réservoirs de sédimentation. Il est construit à partir de collecteurs de déchets, c'est-à-dire de cuvettes de toilettes, d'éviers, de baignoires, vers l'évacuation finale des eaux et des déchets vers le puisard. Fondamentalement, un système gravitaire est utilisé, donc pour construire un réseau, le terrain sur lequel la ville est construite est pris en compte, ou plutôt sa pente.

Le système de tuyauterie est dirigé vers les altitudes inférieures. Pour assurer l'écoulement gravitaire de l'eau et des masses fécales, l'angle d'inclinaison des tuyaux et des drains de 2 à 5 degrés est suffisant. La ventilation du pipeline à l'aide de tuyaux verticaux est également organisée. Cela permet aux drains de s'écouler sans formation de bourrages et de bouchons.
Aménagement des systèmes d'égouts
La composition du système d'assainissement général de la maison comprend les éléments suivants:
- Dispositif de stockage (avec ou sans système de traitement) des eaux usées.
- Système de canalisation d'égout externe (externe).
- Système d'égouts interne.
Le système de stockage peut être réalisé sous la forme :
- Un puisard (sans fond et avec un fond), dans lequel les eaux usées sont filtrées en nettoyant les eaux usées lors de leur passage dans le sol et en les traitant à l'aide de la microflore vivant dans le lecteur. Pour remblayer le fond, on utilise de la pierre concassée ou des criblures. Conçu pour un débit d'eaux usées jusqu'à 1 cu. mètres.
- Un réservoir scellé - en acier ou en plastique et ayant un volume donné qui vous permet de collecter les eaux usées pendant une certaine période.Le réservoir en plastique est installé dans une fosse préalablement creusée et ne nécessite pas d'étanchéité supplémentaire, il n'est pas sujet à la corrosion.
- Une fosse septique dans laquelle les eaux usées sont traitées et après un certain temps les déchets sont évacués par pompage à l'aide d'un véhicule spécial équipé d'une citerne. Dans certaines régions, un système de fosse septique à deux chambres est utilisé pour desservir un plus grand nombre de résidents. Le premier puits est utilisé comme puisard et le second pour la filtration des eaux usées. Une fosse septique est un conteneur divisé en 2-3 chambres, dans lequel un traitement progressif des eaux usées est effectué. La fosse septique "Purflo" (France) produit un traitement des eaux usées de haute qualité et est conçue pour 2 à 10 personnes.
- Les stations d'épuration locales sont des systèmes capables d'éliminer jusqu'à 98 % des solides des eaux usées, les convertissant en engrais. Ces stations sont conçues pour le traitement des eaux usées d'une quantité de 1 à 10 mètres cubes. mètres par jour, ce qui répond aux besoins des consommateurs en quantité de 4 à 50 personnes. Un exemple est l'installation Biosepter-Super-filter (Russie). La station a un corps robuste en acier durable de 5 mm d'épaisseur, conçu pour fonctionner pendant 30 ans et composé de plusieurs compartiments pour le traitement étagé des eaux usées. Au stade initial, les composants contenant des matières grasses sont séparés et les fractions les plus importantes sont déposées. Dans la deuxième chambre, les fractions de taille moyenne sont séparées et la troisième chambre est filtrée à l'aide de filtres spéciaux et nettoyée microbiologiquement.
Pour pomper l'eau fécale, en plus de la méthode d'écoulement par gravité, une pompe spéciale Wilo TMW30 EM -30 (Allemagne) peut être utilisée, capable de pomper jusqu'à 72 l/min., fournissant une pression jusqu'à 30 m et fonctionnant à partir d'un Réseau 220 V, d'une puissance de 700 W.











































