Distance entre l'équipement à gaz et le câblage électrique : normes et règles techniques

Quelles règles régissent

La distance entre la sortie et le pipeline, des câbles électriques aux conduites de gaz, est réglementée par un groupe d'actes juridiques réglementaires du ministère de l'Énergie - PUE - les règles d'installation des installations électriques.Ils décrivent clairement les exigences pour les systèmes de chauffage, les gazoducs, leur emplacement par rapport aux communications électriques.

Tous les paramètres d'emplacement des appareils électriques, des fils, des prises par rapport aux conduites de gaz et de chauffage doivent être indiqués dans la conception de la pièce. Ils doivent être prescrits lors de l'élaboration d'un plan pour une cuisine ou une autre pièce. Le contrôle de la conformité est confié aux employés des offices du gaz. Ils corrigent la violation et émettent une ordonnance pour éliminer les lacunes.

Mais dans tous les cas, chacun de nous doit comprendre que la sécurité du logement, la santé et la vie de ses habitants, le fonctionnement sûr des équipements pendant longtemps dépendent de l'emplacement compétent de toutes les communications dans l'appartement.

la source

La distance entre la maison et l'objet à l'extérieur de la clôture

Lorsqu'ils décident de l'emplacement d'une maison sur un site, ils tiennent également compte de la distance du futur bâtiment aux lignes électriques, aux gazoducs, aux chemins de fer et aux cimetières. Cela permettra de protéger les ménages du bruit de la circulation et des émanations des lieux de sépulture, d'éviter les inondations et l'affaissement d'un bâtiment privé situé sur un sol excessivement humide.

Aux lignes électriques

Pour protéger la population des chocs électriques dus à la déformation accidentelle des fils, des zones de sécurité sont établies de part et d'autre de la ligne électrique. À l'intérieur de ces zones, la construction de logements, la construction de chalets d'été et les associations de jardinage sont interdites. Si une maison se trouve toujours dans la ligne électrique, elle n'est pas démolie, mais une interdiction est imposée sur la reconstruction et la construction d'immobilisations.

La distance minimale entre la maison et la ligne électrique dépend de sa tension

Le respect des zones de sécurité des lignes électriques assure également la sécurité de la section du réseau électrique contre les fluctuations qui se produisent lors de la construction de la maison.La distance de sécurité entre la clôture et les lignes électriques est déterminée en fonction du niveau de tension et est :

  • 35 kV - 15 m ;
  • 110 kV - 20 mètres ;
  • 220kV - 25m;
  • 500kV - 30m;
  • 750kV - 40m;
  • 1150kV - 55m.

Vers le réservoir

Lorsque vous rêvez d'une maison près d'une rivière ou d'un étang, vous devez déterminer si le terrain acquis est inclus dans la zone de protection des eaux - un terrain adjacent à un plan d'eau bénéficiant d'une protection juridique spéciale. La mise en place d'un régime particulier vise à prévenir la pollution, l'envasement et la salinisation des sols, à préserver la richesse des eaux et à maintenir la biocénose naturelle.

La distance minimale entre la maison et la rivière dépend du type de réservoir

Construire une maison près d'un plan d'eau comporte également le risque de sa destruction en raison de son placement sur un sol ramolli. Lors de la pose des fondations, la largeur de la zone de protection de l'eau de la rivière ou de la mer est prise en compte. Cette superficie est déterminée par la longueur du réservoir et est :

  • 10km - 50m;
  • jusqu'à 50 km - 100 m;
  • plus de 50 km - 200 m;
  • pour la mer - plus de 500 m.

Vers le tuyau de gaz

Si un gazoduc externe est situé sur le site, la distance entre celui-ci et la maison doit être d'au moins 2 m.La distance de sécurité pour les conduites souterraines est déterminée en fonction de la pression de l'alimentation en gaz. Dans les colonies, en règle générale, la pression dans le gazoduc ne dépasse pas 0,005 MPa. Dans ce cas, la fondation est posée à une distance d'au moins 2 m de la conduite de gaz.

Dans le village, une distance de 2 m suffit à une conduite de gaz basse pression

Sur la route

Dans différentes colonies, la distance entre la clôture et la route varie. Dans les petites villes, en règle générale, ce chiffre doit être d'au moins 3 m.Si l'administration locale permet de s'écarter des normes, il est toujours préférable de construire une clôture à l'écart du passage.Cela permettra non seulement de protéger les riverains, mais aussi de faciliter l'accès au site.

Mieux vaut rester à l'écart de la poussière et des odeurs de la route : à au moins cinq mètres de la clôture

Parlant de la distance entre la clôture et la route, les concepts de "route" et de "chaussée" sont séparés. Le premier s'appelle une toile avec une zone piétonne et un bord de route, dont la distance optimale est d'environ 3 m. Sous le second, une section pour la circulation des véhicules est envisagée. Si le terrain est situé à proximité des autoroutes, la distance à la clôture doit être d'au moins 5 m.

Vers le cimetière

La distance standard entre un cimetière d'une superficie de plus de 20 hectares et un bâtiment résidentiel est d'au moins 500 m. Si le site est situé dans un village à proximité d'un petit cimetière, l'habitation doit être située à une distance d'au moins A 300 m, la distance jusqu'au logement est de 50 m.

La distance minimale au cimetière est déterminée par sa taille

Vers le chemin de fer

Le rugissement et l'odeur du chemin de fer ne plairont à personne: nous construisons une maison à moins de 100 m

Afin de protéger les propriétaires de sites du bruit des trains, la distance entre le secteur privé et la voie ferrée doit être supérieure à 100 m, mais pas inférieure à 50 m.

Nous espérons que les recommandations ci-dessus vous aideront à faire le bon choix pour placer une maison sur votre propre site. Dans tous les cas, il est préférable de s'assurer qu'il est correct en discutant de vos projets avec l'administration locale et les voisins. Auteur du texte Miroshnikov A.P.

Distance entre l'équipement à gaz et le câblage électrique : normes et règles techniques

Exigences pour l'utilisation du RCD

Les exigences relatives à l'utilisation de DDR à des fins de sécurité électrique sont réglementées par le PUE, chapitres 1.7, 6.1, 7.1. Le courant de déclenchement d'un DDR installé à des fins de sécurité électrique ne doit pas dépasser 30 mA (utiliser des DDR avec un courant de déclenchement de 10 mA et 30 mA).

La valeur nominale du différentiel pour le courant de déclenchement est sélectionnée conformément aux exigences de la clause 7.1.83 du PUE. Le courant de fuite total du réseau en mode normal ne doit pas dépasser 1/3 du courant nominal du différentiel. En l'absence de données sur les courants de fuite, le calcul des courants de fuite est effectué conformément aux exigences de ce paragraphe. Lors du calcul, le courant de fuite du récepteur électrique est de 0,4 mA pour chaque 1 A de courant de charge et le courant de fuite du réseau est de 10 μA pour chaque mètre de longueur de câble.

Les exigences relatives à l'installation de disjoncteurs différentiels pour la protection contre les incendies sont régies par les documents suivants :

  1. PUE, clause 7.1.84 « Pour augmenter le niveau de protection incendie en cas de courts-circuits vers des parties mises à la terre, lorsque le courant est insuffisant pour faire fonctionner la protection contre les surintensités, à l'entrée d'un appartement, d'une maison individuelle, etc. il est recommandé d'installer un RCD avec un courant de déclenchement jusqu'à 300 mA » ;
  2. Loi fédérale du 22 juillet 2008 N 123-FZ "Règlement technique sur les exigences de sécurité incendie". Article 82, alinéa 4 « Les lignes d'alimentation électrique des locaux des bâtiments et ouvrages doivent être munies de dispositifs d'arrêt de protection empêchant la survenue d'un incendie. Les règles d'installation et les paramètres des dispositifs à courant résiduel doivent tenir compte des exigences de sécurité incendie établies conformément à la présente loi fédérale.
Lire aussi :  Le principe de fonctionnement d'une chaudière à gaz à double circuit et les caractéristiques de son raccordement

Conformément à ces exigences, un RCD avec un courant de déclenchement de 100 mA ou 300 mA est installé à l'entrée de l'appartement.Un tel RCD est appelé lutte contre l'incendie.

Si le calcul montre que le courant de fuite total du blindage de l'appartement ne dépasse pas 10 mA, vous pouvez économiser de l'argent et vous pouvez installer un différentiel avec un courant de déclenchement de 30 mA à l'entrée de l'appartement. Ce RCD servira de RCD "incendie" et de RCD utilisé à des fins de sécurité électrique.

Sinon, un DDR « anti-incendie » avec un courant de déclenchement de 100 mA ou 300 mA est installé à l'entrée de l'appartement, et un DDR avec un courant de déclenchement de 10 mA ou 30 mA est installé sur les départs (où le l'installation d'un RCD est nécessaire pour la sécurité électrique).

À quelle distance la prise doit-elle être de la chaudière à gaz ?

Maintenant séparément sur la distance à laquelle la prise doit être située. La distance entre la chaudière à gaz et la prise alimentant sa régulation doit être d'au moins 500 mm. (0,5 m.). Cette exigence découle du PUE-7 (règles pour les installations électriques), cela est indiqué dans la clause 7.1.50. Vous pouvez trouver une distance de 40 cm dans PUE-6, mais nous vous recommandons de respecter les exigences de PES-7.

Distance entre l'équipement à gaz et le câblage électrique : normes et règles techniques

Coordination et conception

La conception et la coordination avant l'installation d'une chaudière à gaz et d'une chaufferie sont obligatoires sans faute. Dans ce cas, la procédure ressemblera à ceci :

  • le propriétaire de la maison soumet une demande à l'organisme (Oblgaz, Gorgaz) indiquant le montant de la consommation de gaz prévue ;

  • l'organisation lui délivre les conditions techniques pertinentes ou un refus motivé de les délivrer par écrit ;

  • un projet est en cours pour connecter une chaufferie à gaz, un tel projet a le droit de faire une organisation qui a la licence appropriée;

  • le projet est approuvé ;

  • il est installé et raccordé par un organisme habilité à effectuer de tels travaux.

Le raccordement non autorisé d'une chaudière à gaz est interdit par la loi.

Règles de placement des prises par rapport au tuyau de gaz

Les conduites de gaz doivent également être situées à distance d'une prise électrique, d'un interrupteur, de fils et d'autres appareils électriques. Selon les "Règles de conception des systèmes de consommation de gaz" établies, entrées en vigueur le 06 juin 2019, dans SP 402.1325800.2018, vous pouvez trouver un point sur les exigences relatives à la distance entre les conduites de gaz et les réseaux d'alimentation électrique.

Distance entre l'équipement à gaz et le câblage électrique : normes et règles techniques

Ces distances doivent être d'au moins 400 mm horizontalement et d'au moins 100 mm verticalement. Ceci est indiqué par l'article 6.15.

Dans le même temps, le placement du tuyau de gaz de la prise ou de l'interrupteur doit toujours être à au moins 500 mm.

Responsabilité en cas de non-conformité

Sur la base de la législation en vigueur, des sanctions sont prévues pour les citoyens qui connectent arbitrairement ou avec des violations des équipements à gaz et une chaufferie à gaz. L'article 9.4 du Code des infractions administratives de la Fédération de Russie prévoit une amende et, dans certaines situations, la déconnexion de l'abonné de l'alimentation en gaz jusqu'à ce que l'infraction soit éliminée. Bien que les amendes pécuniaires ne soient pas si importantes, le respect des règles est toujours obligatoire.

Les propriétaires de maisons privées connectent souvent arbitrairement des équipements à gaz, soit seuls, soit avec l'aide de spécialistes non qualifiés. Cela peut également entraîner des amendes et déconnecter l'abonné de la consommation de gaz (CAO RF Article 7.19).

Dans une situation où les violations entraînent des dommages aux biens ou à la santé, la responsabilité pénale peut également être appliquée, pouvant aller jusqu'à l'emprisonnement.

Photo dans l'article :,,,

Il est temps de remplacer le compteur de gaz

Quand est-il temps de changer le compteur ?

Chaque compteur a une période de vérification. Habituellement, cette période est de 8 à 10 ans. La première vérification a lieu au moment de l'installation du compteur. Ainsi, le temps de vérification tombe exactement au milieu de la durée de vie de l'instrument.

Si le compteur est utilisable et mesure correctement les lectures, il est laissé en fonctionnement pendant une autre période. Et si les lectures ne sont pas exactes, alors compteur gaz à changer.

On vous a dit d'installer un compteur d'une certaine marque, que faire ?

Personne ne peut vous obliger à installer un compteur de gaz d'une marque particulière. L'organisation de service est tenue d'accepter de votre part tout appareil de mesure certifié sur le territoire de la Fédération de Russie. L'essentiel est que les exigences techniques soient respectées.

Quelles sont les exigences techniques à prendre en compte lors du choix d'un compteur de gaz ?

  1. Volume du compteur. Habituellement, ce paramètre apparaît directement dans le nom du compteur après la lettre "G". Par exemple G4, G6, G10. Plus le volume est important, plus le débit est élevé.
  2. Correction thermique. Le compteur peut être installé aussi bien à l'intérieur qu'à l'extérieur. La température extérieure peut varier au cours de l'année de 80 à 90 degrés. Par conséquent, il est nécessaire d'installer un correcteur thermique dans les compteurs de rue pour comptabiliser correctement le gaz consommé.Ce paramètre apparaît également généralement dans le nom du compteur et est désigné par la lettre "T".G4 - sans correcteur thermique, G4T - avec un correcteur thermique.
  3. La distance entre les centres des tuyaux d'alimentation en gaz. Ce paramètre peut être mesuré à l'aide d'une règle Distances standard entre les centres des tuyaux pour les compteurs de gaz domestiques : G4 - 110 mm G6 - 200 ou 250 mm G10 - 250 ou 250 mm
  4. Sens d'arrivée du gaz Tenez-vous face à l'afficheur du compteur. Si le tuyau d'arrivée de gaz se trouve sur votre main gauche, l'alimentation en gaz se fait de gauche à droite. Si à droite, alors de droite à gauche.
  5. Diamètre de filetage. Les canalisations par lesquelles circule le gaz doivent être fixées hermétiquement dans le compteur. Et si le diamètre du tuyau est, disons, de 40 mm et que le filetage sur le compteur est de 32 mm, alors bien sûr, ils ne convergeront pas à la jonction. Mais contrairement au problème de la distance non standard entre les tuyaux, le problème des filetages est tout simplement résolu avec une buse d'adaptation.

Quelle marque de comptoir dois-je choisir ?

Il n'y a pas de réponse définitive ici. Appelez-nous au 8-962-957-32-80, nous vous conseillerons et vous aiderons dans votre choix.

Types et niveaux

La population est approvisionnée en gaz à haut pouvoir calorifique, l'option la plus optimale pour un usage domestique. Le niveau de sécurité du carburant transporté dans les conduites principales est considéré comme supérieur à son déplacement et à son utilisation dans des cylindres. La pose de tuyaux à cet effet dépend des caractéristiques du relief et de l'opération requise et se divise en 3 types :

  1. Les communications terrestres sont le type d'installation le moins problématique, qui est également utilisé dans les zones suburbaines en raison de l'absence de travaux coûteux à la fois pendant le processus d'assemblage et, si nécessaire, de réparations. Il est fait uniquement d'acier (comme réglementé dans SNiP), mais aucune rigueur particulière n'est prescrite dans la distance à la construction. La seule exigence est une zone de sécurité bilatérale autour du tuyau d'au moins 2 m.
  2. Conduites souterraines, reconnues comme le moyen de pose le plus sûr, avec une probabilité minimale de dommages dus à des causes externes. Ils peuvent être constitués de tuyaux en polymère ou en acier, mais ici la distance est normalisée en fonction de plusieurs composants.
  3. Les réseaux internes sont situés à l'intérieur du bâtiment, ils doivent être laissés dans le domaine public, et l'assemblage doit être réalisé uniquement en acier et en cuivre.Il existe également des normes pour les réseaux internes - elles sont déterminées par l'objet de consommation et son installation, en tenant compte de tout ce qui peut constituer une menace potentielle d'incendie ou d'explosion, jusqu'à la cheminée.

Distance entre l'équipement à gaz et le câblage électrique : normes et règles techniques

Gazoduc souterrain

Pour les structures souterraines, la distance à laquelle un bâtiment résidentiel peut être placé lors de la planification et du développement est dictée par le diamètre du tuyau et la pression sous laquelle le gaz est fourni.

Plus la pression de transport est élevée, plus le danger potentiel pour les bâtiments résidentiels est grand. C'est pourquoi la distance entre la conduite de gaz et la maison doit être strictement respectée.

Distance entre l'équipement à gaz et le câblage électrique : normes et règles techniques

Pour obtenir un permis, des calculs sont effectués par types de communications :

  • faible est considéré comme allant jusqu'à 0,05 kgf / cm2 - servi pour les bâtiments résidentiels, spécialisés et publics;
  • un gazoduc à moyenne pression (de 0,05 kgf / cm2 à 3,0 kgf / cm2) est nécessaire dans les chaufferies urbaines ou dans le principal si la ville est grande;
  • la haute pression peut être utilisée dans des installations industrielles ou dans un projet séparé, utilisé assez rarement.
Lire aussi :  Comment allumer une chaudière à gaz: un guide et des conseils d'utilisation utiles

La station de distribution de gaz locale dispose des données nécessaires sur l'emplacement du tuyau par rapport au niveau de gel du sol, à son diamètre et à sa pression. C'est pourquoi il est nécessaire d'y faire une demande d'autorisation et d'information. Si nous parlons d'une petite colonie où il n'y a pas d'approvisionnement centralisé ni d'approvisionnement principal en gaz, un tel appel n'est pas nécessaire.

Distance entre l'équipement à gaz et le câblage électrique : normes et règles techniques

Raccordement d'une chaudière à gaz à une cheminée

Le diamètre de la cheminée doit être égal ou supérieur au diamètre de la sortie de l'appareil.

Dans la plupart des cas, le diamètre de la cheminée dépend de la puissance :

  • 100kW - 230mm;
  • 80kW - 220mm;
  • 60kW - 190mm;
  • 40kW - 170mm;
  • 30kW - 130mm;
  • 24kW - 120mm.

Des cheminées ordinaires sont élevées à 0,5 m au-dessus du faîte de la maison. Ils sont disposés à la fois à l'intérieur du mur de la maison, et à l'intérieur de la maison ou derrière son mur. Pas plus de 3 coudes sont autorisés sur le tuyau. La première section du tuyau qui relie la chaudière à la cheminée principale ne doit pas dépasser 25 cm et le tuyau doit avoir une ouverture pouvant être fermée pour le nettoyage. Pour les chaudières avec des cheminées ordinaires et une chambre de combustion ouverte, une grande alimentation en air est nécessaire. Il peut être équipé d'une fenêtre ouverte ou d'un tuyau d'alimentation séparé.

La cheminée doit être en tôle ou autre matériau résistant aux acides. Ne raccordez pas la chaudière avec une ondulation à la cheminée principale. Une cheminée en brique ne peut pas non plus être utilisée.

La cheminée coaxiale doit être montée horizontalement et enfoncée dans le mur. Ce type de cheminée est un tuyau dans un tuyau. Il doit s'éloigner du mur d'au moins 0,5 m.Si la chaudière est ordinaire, la cheminée doit avoir une légère pente vers la rue. Si l'appareil se condense, la pente doit être vers l'appareil lui-même. Ainsi, le condensat pourra s'écouler dans un tuyau spécial, qui devra être dévié vers l'égout. La longueur maximale des cheminées coaxiales est de 5 m.

Normes de conception pour les chaudières de toit à gaz

La conception de KKg est réalisée par des entreprises qui disposent d'une licence pour le type de travail correspondant. Avant l'approbation, le projet doit être coordonné par la direction architecturale, SES, l'inspection incendie avec les organismes d'exploitation qui ont établi des spécifications techniques dans le processus de conception.

Le sol KKg est réalisé avec une imperméabilisation capable de fournir une inondation d'eau jusqu'à 100 mm de haut.Les ouvertures des fenêtres doivent fournir de la lumière naturelle et sont donc fixées à partir d'un rapport d'au moins 0,05 m2 pour 1 m3 du volume total de l'installation d'alimentation en chaleur.

Le schéma de tuyauterie des réseaux de chauffage et de ventilation intra-maison est réalisé selon un schéma dépendant, via une unité de mélange pour la libération d'énergie thermique, et le système ECS est réalisé selon un schéma fermé via un échangeur de chaleur.

Les systèmes de chauffage sont divisés à l'avant, avec un nœud individuel pour la comptabilité commerciale de l'énergie thermique. Un système de traitement chimique de l'eau doit être installé dans la chaufferie pour fournir de l'eau douce à la chaudière et au circuit de chauffage. Ces exigences sont remplies pour éviter la formation de tartre sur les surfaces chauffantes.

Quelles chaudières utiliser

En tant que sources d'énergie thermique en KKg, des chaudières à eau chaude automatisées sont utilisées, capables de chauffer de l'eau avec un caloporteur jusqu'à 95 C et une pression jusqu'à 1,0 MPa.

Par exemple, une chaufferie modulaire ARGUS TM-1000.00.PR.10 d'une puissance de 1050 kW est équipée de :

  1. Chaudière à gaz PROTHERM 120 SOO d'une puissance de 105 kW et d'un rendement de -90%, 10 unités.
  2. Groupe de pompe avec pompe centrifuge WILO HWJ 202 EM 20L.
  3. Réservoir à membrane d'expansion REFLEX N 200/6.
  4. Système d'automatisation et de régulation.
  5. Groupe d'instrumentation et capteurs primaires.
  6. Bloc de traitement chimique de l'eau.
  7. Système d'évacuation des fumées.

Comment fournir du gaz

La pression de gaz dans le gazoduc pour KKg ne doit pas dépasser 5 kPa.

Le câblage externe du gazoduc vers les chaudières est effectué dans des endroits pratiques pour l'entretien ultérieur et exclut la possibilité de sa rupture. Le raccordement à ce gazoduc d'autres consommateurs n'est pas autorisé.

Le gazoduc ne doit pas traverser les systèmes de ventilation, les fenêtres et les portes.La conduite de gaz interne dans la chaufferie est ouverte, tandis que l'accès doit être libre pour la surveillance et l'inspection technique des dispositifs de sécurité et d'automatisation.

De plus, une vanne d'arrêt de sécurité (PZK) avec un actionneur électromagnétique est installée dans le système de sécurité sur la conduite de gaz, qui coupe le gaz en cas d'urgence.

Alimentation du toit

L'équipement électrique de KKg doit être conforme au PUE, en tant qu'objet de la deuxième catégorie de fiabilité de l'alimentation électrique.

Le schéma d'alimentation électrique doit prévoir la possibilité d'allumer un équipement électrique de secours lorsque l'appareil principal, tel qu'une pompe, un ventilateur et un extracteur de fumée, sort.

L'automatisation de la sécurité doit garantir que l'alimentation en gaz de la chaudière est coupée en cas d'urgence : pression de gaz élevée, séparation de la flamme du brûleur, contamination du gaz dans la chaufferie, faible tirage dans le four, température et liquide de refroidissement élevés pression.

La sécurité incendie

Il existe un certain nombre d'exigences de sécurité incendie importantes pour KKg dans un bâtiment à plusieurs étages :

  1. L'emplacement de la chaufferie directement au-dessus des appartements est interdit.
  2. L'installation de la chaudière se voit attribuer une catégorisation de classe "G" pour les risques d'explosion et d'incendie.
  3. La hauteur des plafonds de l'objet doit être supérieure à 2,65 m.
  4. Largeur de porte supérieure à 0,8 m.
  5. Des barrières coupe-feu doivent être installées dans le bâtiment.
  6. La chambre doit avoir une sortie de secours séparée.
  7. L'installation est équipée d'alarmes incendie sonores et lumineuses et de systèmes d'extinction d'incendie d'urgence.

Caractéristiques de la cuisine pour l'installation d'une chaudière à gaz

La puissance de la plupart des chaudières à gaz dépasse rarement 30 kW. Cela permet de les installer dans la cuisine d'une maison ou d'un appartement.Cela se fait également avec l'accord des organismes de contrôle. Bon nombre des règles ci-dessus s'appliquent à ce cas, mais compte tenu des spécificités des locaux, il en existe d'autres.

Distance entre l'équipement à gaz et le câblage électrique : normes et règles techniques

Pour installer une chaudière à gaz dans la cuisine, vous devez respecter les règles suivantes:

Ces règles ne sont pas la "vérité ultime". Le document principal pour la préparation de la chaufferie pour l'installation d'équipements à gaz sera les conditions techniques.

Règles de placement des tuyaux et des prises par rapport à la conduite de gaz

Souvent, la cause des urgences et des urgences est une violation des règles de sécurité les plus simples pour l'installation du câblage électrique, dont l'une est les normes de distance du câblage électrique par rapport aux pipelines.

L'ensemble des règles d'installation des installations électriques (PES) élaborées par des spécialistes du ministère de l'Énergie vous permet de répondre pleinement à la question: à quelle distance du tuyau de gaz pouvez-vous poser un câble et installer une prise électrique.

La distance entre la prise électrique et le tuyau de gaz - ce qui régit les normes

Les règles d'installation en toute sécurité du câblage électrique sont régies par le principal document réglementaire - PUE-6, elles s'appliquent aux installations électriques installées et exploitées avec une tension alternative jusqu'à 750 kW. Les règles sont élaborées en tenant compte de la mise en œuvre des tests planifiés et préventifs, des réparations des installations électriques, sur lesquelles une surveillance technique est établie.

Distance entre le gazoduc et la sortie

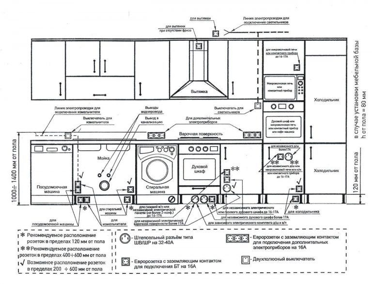
La distance entre la sortie et la conduite de gaz est établie par le règlement du ministère de l'Énergie PUE-7 paragraphe 7.1.50, qui réglemente la distance entre les interrupteurs électriques, les prises électriques et la conduite de gaz n'est pas inférieure à 500 mm.

Distance entre l'équipement à gaz et le câblage électrique : normes et règles techniques

Riz. 3 Critères et méthodes de sélection pour la pose de fils et câbles électriques à découvert

Règles de placement des tuyaux et des câbles électriques

Lors de l'installation des réseaux électriques, le câblage interne et externe est distingué, dans la première version, il est placé dans la structure (stroboscopes) ou les niches des structures du bâtiment et est séparé de la surface par des matériaux ignifuges - béton, plâtre, mortier ciment-sable, albâtre , liant de gypse. L'épaisseur de la couche isolante de câblage caché à partir de matériaux de construction non combustibles est réglementée par le PSE uniquement pour les cas de produits voisins à partir de composants combustibles, selon les règles, la couche isolante ne doit pas être inférieure à 100 mm.

Les PES réglementent plus en détail les normes de distances de câblage ouvertes aux tuyaux à travers lesquels circulent des gaz explosifs. Comme l'exigent les documents réglementaires (PUE-6 clause 2.1.56), la distance autorisée dans la lumière entre les fils électriques sans protection ou sous isolation de protection et les canalisations contenant des substances neutres doit être d'au moins 50 mm. En cas de passage de gaz explosif dans la ligne, le jeu est supérieur à 100 mm .

Lire aussi :  Présentation des gammes de chaudières à combustible solide Dakon

Si la distance entre les câbles électriques et les tuyaux est inférieure à 250 mm, il est obligatoire de protéger le câblage des influences mécaniques sur une longueur d'au moins 250 mm des deux côtés du tuyau de gaz.

Lors de la pose d'un câble électrique et de tuyaux avec une substance de travail neutre en parallèle, l'écart entre eux est d'au moins 100 mm.Si la ligne électrique passe à côté du gazoduc, la distance entre le tuyau de gaz et le fil doit être supérieure à 400 millimètres.

Si la conception des locaux comprend l'intersection de conduites chaudes posées avec un câblage électrique, ce dernier doit avoir une conception d'isolation résistante à la chaleur appropriée ou avoir une protection externe contre les températures élevées.

Distance entre l'équipement à gaz et le câblage électrique : normes et règles techniques

Riz. 4 Modes d'installation du câblage selon le type de local

Lors de travaux de réparation dans un appartement, une situation se présente souvent lorsque vous devez déplacer une prise électrique dans la cuisine ou poser un nouveau câblage. Dans ce cas, les travaux d'installation électrique doivent être effectués conformément aux exigences et règles généralement acceptées (PES), élaborées par des spécialistes, en tenant compte des normes de sécurité testées à plusieurs reprises.

Raccordement électrique de l'appareil à gaz

Les chaudières à gaz modernes existent avec 2 options de raccordement au secteur : un câble isolé à trois conducteurs et une fiche pour le raccordement à une prise. Dans les deux cas, vous devez suivre la règle: l'appareil à gaz est connecté via un disjoncteur individuel au blindage et vous devrez certainement vous occuper de la mise à la terre. Il est recommandé d'utiliser des stabilisateurs de tension ainsi que des alimentations de secours pour se préparer à une panne de courant.

Un interrupteur de coupure doit être installé à proximité de la chaudière afin de pouvoir l'éteindre rapidement et facilement. Ne reliez pas l'appareil à un tuyau de chauffage ou à une conduite de gaz. Afin d'assurer une mise à la terre de haute qualité, il est nécessaire d'équiper une boucle de terre ou une mise à la terre ponctuelle.

Raccordement d'une chaudière à gaz à une cheminée

Le diamètre de la cheminée doit être égal ou supérieur au diamètre de la sortie de l'appareil.

Dans la plupart des cas, le diamètre de la cheminée dépend de la puissance :

  • 100kW - 230mm;
  • 80kW - 220mm;
  • 60kW - 190mm;
  • 40kW - 170mm;
  • 30kW - 130mm;
  • 24kW - 120mm.

Des cheminées ordinaires sont élevées à 0,5 m au-dessus du faîte de la maison. Ils sont disposés à la fois à l'intérieur du mur de la maison, et à l'intérieur de la maison ou derrière son mur. Pas plus de 3 coudes sont autorisés sur le tuyau. La première section du tuyau qui relie la chaudière à la cheminée principale ne doit pas dépasser 25 cm et le tuyau doit avoir une ouverture pouvant être fermée pour le nettoyage. Pour les chaudières avec des cheminées ordinaires et une chambre de combustion ouverte, une grande alimentation en air est nécessaire. Il peut être équipé d'une fenêtre ouverte ou d'un tuyau d'alimentation séparé.

La cheminée doit être en tôle ou autre matériau résistant aux acides. Ne raccordez pas la chaudière avec une ondulation à la cheminée principale. Une cheminée en brique ne peut pas non plus être utilisée.

La cheminée coaxiale doit être montée horizontalement et enfoncée dans le mur. Ce type de cheminée est un tuyau dans un tuyau. Il doit s'éloigner du mur d'au moins 0,5 m.Si la chaudière est ordinaire, la cheminée doit avoir une légère pente vers la rue. Si l'appareil se condense, la pente doit être vers l'appareil lui-même. Ainsi, le condensat pourra s'écouler dans un tuyau spécial, qui devra être dévié vers l'égout. La longueur maximale des cheminées coaxiales est de 5 m.

Exigences d'installation de base

Actuellement, les exigences relatives à l'installation d'équipements à gaz dans les appartements, les chalets et les maisons privées résidentielles de la Fédération de Russie ne sont prévues par aucun acte juridique réglementaire. Lors de la conception de l'emplacement et de l'installation de ces appareils, ils sont guidés par les instructions d'installation et d'utilisation fournies avec l'équipement.

Distance entre l'équipement à gaz et le câblage électrique : normes et règles techniques

Distance entre l'équipement à gaz et le câblage électrique : normes et règles techniquesDistance entre l'équipement à gaz et le câblage électrique : normes et règles techniques

Le respect de ces exigences est très important, principalement parce que la sécurité de notre existence en dépend, et s'il s'agit d'un immeuble, alors les gens qui nous entourent. Les explosions de gaz et les incendies sont de nature hautement destructrice.

Les normes à l'étude peuvent être tirées du SNiP 2.04.08-87, qui était valable jusqu'en 2002. Cette loi prévoit que la distance à la chaudière lors de l'installation d'un poêle à gaz dans des bâtiments résidentiels et des appartements doit être d'au moins 50 cm.De plus, le poêle doit être situé à côté de la chaudière, mais en aucun cas en dessous. Et vous ne devriez pas non plus mettre un poêle sous la colonne. Dans le même temps, l'emplacement des appareils à gaz entre eux ne doit pas être à une grande distance de la hotte, qui doit être obligatoire et remplir ses fonctions (être nettoyée).

La hotte assure l'élimination des produits de combustion, principalement du monoxyde de carbone formé, qui n'est en aucun cas ressenti par une personne et est mortel même à faible concentration. En conséquence, la pièce, en plus de la hotte, devrait avoir des fenêtres ouvrantes pour la ventilation.

Distance entre l'équipement à gaz et le câblage électrique : normes et règles techniquesDistance entre l'équipement à gaz et le câblage électrique : normes et règles techniques

Avant le tuyau qui amène le gaz dans la pièce, l'emplacement des autres appareils n'est pas réglementé. Et il n'y a pas non plus de réglementation pour l'installation de prises électriques dans la cuisine avec une cuisinière. Cependant, il n'est pas catégoriquement recommandé de suspendre des prises ou d'autres objets directement au-dessus de l'appareil, car pendant l'utilisation de l'appareil, une grande quantité de chaleur est générée et les objets situés au-dessus peuvent fondre, prendre feu ou simplement devenir inutilisables en raison de l'exposition à haute température.

La seule chose qui peut être placée au-dessus du poêle est le dispositif de réception de la hotte électrique, qui est conçu pour fonctionner à des températures élevées.

Il n'est pas difficile de brancher vous-même les appareils à gaz et, en particulier, le poêle, si vous suivez les conditions du mode d'emploi

Cependant, avant l'installation, il est important de se tourner vers des professionnels pour élaborer un projet, s'il n'y en a pas, puis de se tourner vers eux pour réaliser les travaux, car les erreurs lors de l'installation et de la mise en service de ce genre d'équipement coûtent très cher aux consommateurs.

Distance entre l'équipement à gaz et le câblage électrique : normes et règles techniquesDistance entre l'équipement à gaz et le câblage électrique : normes et règles techniques

Classification par type de joint

Le transport des gaz s'effectue à travers différents types de gazoducs, et le matériau pour la fabrication des tuyaux, et la nécessité de construire des supports de gazoducs, et la distance à différents objets peut en dépendre:

  1. Les gazoducs souterrains sont construits en polyéthylène ou en acier, le premier type de matériau dominant, résistant à la corrosion et ne nécessitant pas de mesures de protection.
  2. Les conduites en acier sont utilisées pour les gazoducs hors sol, les réseaux d'ingénierie sont conçus en tenant compte des supports nécessaires, des stations de compression de gaz et de la nécessité de réparations permanentes.
  3. La construction d'autoroutes terrestres est moins chère que les deux premières, mais nécessite également une assistance technique coûteuse pour se conformer aux règles de sécurité, en tenant compte de la sécurité contre les dommages pouvant représenter des facteurs humains ou naturels.
  4. Les sous-marins ne sont pas non plus bon marché - le souci de la sécurité du travail est décemment coûteux et la conception nécessite des compétences spécifiques, en tenant compte de la situation sismique et de l'éloignement des voies de transport.

Distance entre l'équipement à gaz et le câblage électrique : normes et règles techniques

Dans tous les cas, la pose du gazoduc est effectuée conformément à la législation en vigueur de la Fédération de Russie et à la distance standard entre les bâtiments et les structures et le gazoduc. L'équipement doit non seulement respecter les règles de sécurité, mais également tenir compte des limites des zones d'une certaine longueur, des mesures de protection de l'environnement, de l'utilisation des terres - et tout dépend des catégories.

Les "Règles de protection des réseaux de distribution de gaz" définissent un zonage spécial et des distances standard auxquelles il est permis d'approcher diverses structures. Les normes d'installation des stations-service de gaz sont présentes dans le SNiP 2.07.01-89 « Urbanisme. Planification et développement des établissements urbains et ruraux » et SP 42.13330.2011.

Distance entre l'équipement à gaz et le câblage électrique : normes et règles techniques

Regardez la vidéo ci-dessous sur ce sujet.

Évaluation
Site sur la plomberie

Nous vous conseillons de lire

Où remplir la poudre dans la machine à laver et combien de poudre verser