- Comment déterminer le bon nombre d'appareils électriques
- Placement sûr des points d'alimentation
- Types de blocs réseau intégrés
- Vue # 1 - prises fixes
- Vue # 2 - modèles rétractables
- Vue # 3 - blocs rotatifs
- Quelles prises pour la cuisine choisir
- Prises pour appareils encastrés : règles de placement
- Règles et disposition des points de vente
- Elaboration d'un agencement de points de vente
- Détermination du nombre de points de vente requis
- Emplacement des prises pour chaque type d'appareils électroménagers
- Règles de câblage
- Tableau : puissance et section des fils pour connecter les appareils de cuisine
- Règles pour l'emplacement des prises dans la cuisine: photos, schémas et recommandations
- Comment organiser les prises dans la cuisine: règles de base
- Disposition des prises dans la cuisine: principes de compilation
- Quel câble choisir pour le câblage
- Comment bien positionner une ou plusieurs alimentations : réglementation
- Règles et mise en page
- Quel câble faire passer ?
- Ce qu'il faut considérer lors de la conception d'un agencement de prises
- Quel câble utiliser
Comment déterminer le bon nombre d'appareils électriques
Pour tout faire correctement, vous devez commencer par établir un plan d'aménagement du matériel et du mobilier. Si le futur design n'a pas encore été déterminé, cet événement devra être reporté.Sinon, il se peut que les prises électriques ne «montent» pas du tout là où elles sont nécessaires. Étant donné que leur emplacement est lié au câblage, il sera assez difficile d'effectuer le transfert. Il est plus facile de décider d'abord de la conception de la pièce.
Nous construisons un plan pour organiser les meubles et les appareils électroménagers. Déterminez le nombre approximatif de blocs requis. Un devrait être pour chaque pièce d'équipement fixe, plus au moins deux blocs à chaque bord du comptoir et un près de la table à manger. A condition que ce dernier ne soit pas situé à distance du mur. On considère comme équipement fixe :
- capot;
- four;
- plaque;
- frigo;
- congélateur;
- Machine à laver;
- Lave-vaisselle;
- four micro-onde;
- broyeur de déchets.
Il est bon d'installer une prise électrique près de l'interrupteur de la cuisine. Habituellement, cette zone est relativement libre de meubles, donc un point d'accès au réseau sera utile ici. Il est particulièrement utile pour brancher un aspirateur. Après cela, nous réfléchissons à l'emplacement des connecteurs pour les autres appareils électroménagers. Comme nous le savons, ils devraient être au moins deux de chaque côté du comptoir.
Géoside Instagram
Nous effectuons un calcul avec une marge afin que lors de l'achat de nouveaux appareils, vous n'ayez pas à utiliser de rallonge ou de répartiteur de réseau, cela s'appelle aussi un té. Ceci est dangereux, et donc hautement indésirable.
Placement sûr des points d'alimentation
L'installation des prises est effectuée conformément aux normes établies pour la connexion en toute sécurité des appareils électriques. Ils sont pris en compte lors de la planification :
- La hauteur de la prise depuis le sol est de 15 cm.Pour les meubles avec un socle standard, la hauteur est de 10 cm - la prise de courant tombe dans un espace ouvert, est librement disponible
- La hauteur d'installation des prises lorsqu'elles sont situées sur un tablier est de 15 à 20 cm de la surface de travail ou de 90 à 100 cm du sol
- Pour l'éclairage de la hotte et du dessus - monté au-dessus de l'armoire sans bloquer la ventilation
- Distance à la cuisinière à induction - 15 cm
- Distance à l'évier, à la cuisinière à gaz ou électrique - au moins 20 cm
- Distance à l'appareil électrique - 1-1,5 m
Lors de l'installation d'appareils électroménagers encastrés, des trous sont découpés sous les produits dans les parois arrière des armoires. Une prise distincte est attribuée à chaque appareil fixe. Lors du choix des emplacements de raccordement, rappelez-vous que les équipements électriques doivent :
- Être inaccessible ou sans danger pour les enfants
- Ne soyez pas obscurci par de gros équipements - ils sont mis de côté pour des raisons de sécurité, ainsi que de facilité d'utilisation
- Ne pas endommager les communications
Vient maintenant le tour du choix des matériels électriques.
Types de blocs réseau intégrés
Toutes les prises intégrées dans les comptoirs des ensembles de cuisine peuvent être divisées en fixes, rétractables et rotatives.
Vue # 1 - prises fixes
Les blocs fixes sont montés dans le plan spécifié sans possibilité de modifier la position. Des chutes de miettes, d'eau et de débris divers, ils sont protégés par des couvercles. Pour brancher l'appareil sur une prise, il vous suffit de déplacer ce cache.
De tels connecteurs sont simples et ne nécessitent aucune manipulation complexe pendant le fonctionnement.
L'unité de réseau intégrée fixe diffère peu des prises électriques aériennes classiques, car il est difficile de la déguiser des regards indiscrets
Le principal inconvénient des prises intégrées fixes est qu'elles prennent beaucoup de place sur le bureau.
La surface des couvercles n'est pas adaptée à une utilisation fonctionnelle.Vous ne pouvez rien mettre dessus, et vous devez donc utiliser uniquement la partie inoccupée du comptoir.
Vue # 2 - modèles rétractables
En raison de l'inadéquation des couvercles des modèles fixes pour le fonctionnement, les prises rétractables sont plus populaires. Leur surface peut fusionner avec le dessus de table - à l'état non fonctionnel, le couvercle de l'unité réseau dépasse littéralement de 1 à 2 mm au-dessus de la surface du casque. Pour cette raison, la cuisine a l'air plus rangée et rangée.
Lorsque la prise électrique escamotable, lorsqu'elle est pressée, émerge efficacement du plan de travail du casque, la cuisine prend un aspect moderne et insolite.
Pour étendre la prise, vous devez appuyer sur le couvercle ou sur le bouton situé à proximité. Après cela, le mécanisme rétractable fonctionnera. Cela poussera le bloc d'alimentation hors du plateau complètement ou partiellement de 10 à 20 mm.
Après cela, le bloc doit être retiré à la main et fixé à la hauteur souhaitée. De nombreux modèles sont équipés de boutons spéciaux qui vous permettent de fixer le résultat souhaité.
Pour fixer le bloc de prise de courant à la hauteur souhaitée, il vous suffit d'appuyer sur un certain bouton sur le boîtier de l'appareil
Une prise rétractable est un connecteur spécifique. Il remplit les fonctions d'un connecteur électrique standard, mais possède un certain nombre de fonctionnalités.
Il ne doit pas être utilisé pour les appareils électroménagers qui doivent toujours être connectés au réseau :
- réfrigérateurs;
- climatiseurs;
- congélateurs;
- cuisinières électriques (pour les connecter, vous avez besoin d'une prise de courant);
- autre.
Tout l'intérêt de ce connecteur réside justement dans le fait qu'il est à l'abri des regards indiscrets.
Une prise rétractable intégrée est nécessaire pour une connexion à court terme au réseau de plusieurs appareils électriques.Ceux-ci peuvent inclure des cafetières, des bouilloires, des grille-pain, des cuiseurs à vapeur et d'autres appareils qui ne nécessitent pas une connexion permanente au secteur. Lorsque l'équipement est éteint, le bloc d'alimentation peut être encastré dans le plan de travail.
La présence d'un contrôle logiciel supplémentaire et l'intégration de l'unité dans le système "Smart Home" vous permettent d'immerger automatiquement la prise dans le plan de travail après avoir éteint l'équipement
En raison des caractéristiques de conception, une sortie rétractable ne peut pas être placée sur la zone du comptoir, sous laquelle se trouvent des tiroirs ou des conduites d'eau.
Il appartient à des structures plutôt fragiles et avec une utilisation fréquente peut rapidement se desserrer. Pour augmenter la durée de vie possible de l'unité réseau lors de la connexion ou du retrait de la fiche de la prise, il convient de tenir l'appareil avec votre main.
Nous avons examiné plus en détail les prises rétractables pour les comptoirs dans le prochain article.
Vue # 3 - blocs rotatifs
Les douilles pivotantes sont capables de changer de position dans l'espace. Ils sont installés dans la position requise sans perte de fonctionnalité. L'angle d'inclinaison dépend des caractéristiques du modèle sélectionné et peut atteindre une valeur de 180 degrés. Les valeurs de ce paramètre sont indiquées sur l'emballage du produit.
Pour utiliser une telle prise, il vous suffit d'appuyer sur son couvercle ou sur un bouton situé à proximité sur une table ou un mur.
Avant d'installer un parasurtenseur, vous devez vous assurer qu'il sera pratique pour le raccordement quotidien des appareils électroménagers les plus fréquemment utilisés.
Ces blocs de réseau appartiennent à des structures horizontales. Lors de leur utilisation, il peut y avoir des difficultés lors de la connexion d'appareils avec des fiches en forme de L.
Quelles prises pour la cuisine choisir
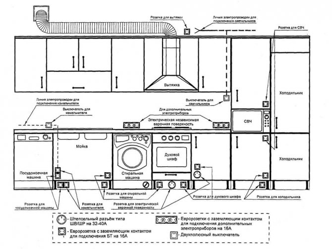
Pour une installation dans la cuisine, plusieurs types de prises sont utilisées :
- Emplacement d'angle. Ils sont situés dans un boîtier en plastique à la jonction d'angle des murs, ils peuvent être cachés sous les armoires suspendues de l'ensemble de cuisine. De par leur conception, ils sont divisés en simple et modulaire. La conception modulaire n'impose aucune restriction sur le nombre de prises dans un panneau.
- Type rétractable, situé dans les plateaux. Ils sont réalisés par un module à ressort composé de 2-3 prises. Extérieurement, ils ressemblent à un bloc d'extension monté verticalement, équipé d'un couvercle décoratif. Le bloc commence à sortir après avoir été relâché, ce qui s'effectue en appuyant légèrement sur le couvercle.
- Les blocs intégrés de l'installation masquée. Installé dans un trou rectangulaire dans le dessus de table. Pour l'utiliser, vous devez appuyer sur le couvercle et tourner le bloc autour de l'axe à un angle de 60 à 90º.
- Type aérien. Ils peuvent être installés dans un mur ou sur des boîtes (avec câblage ouvert). Il existe des prises aériennes de conception modulaire (n'importe quel nombre de places).
Lors du choix des points de vente, vous devez vous rappeler un certain nombre de règles:
Le matériel d'installation électrique utilisé doit supporter un courant jusqu'à 16 ampères
Vue d'ensemble du bloc intégré du canal Ferrures de meubles.
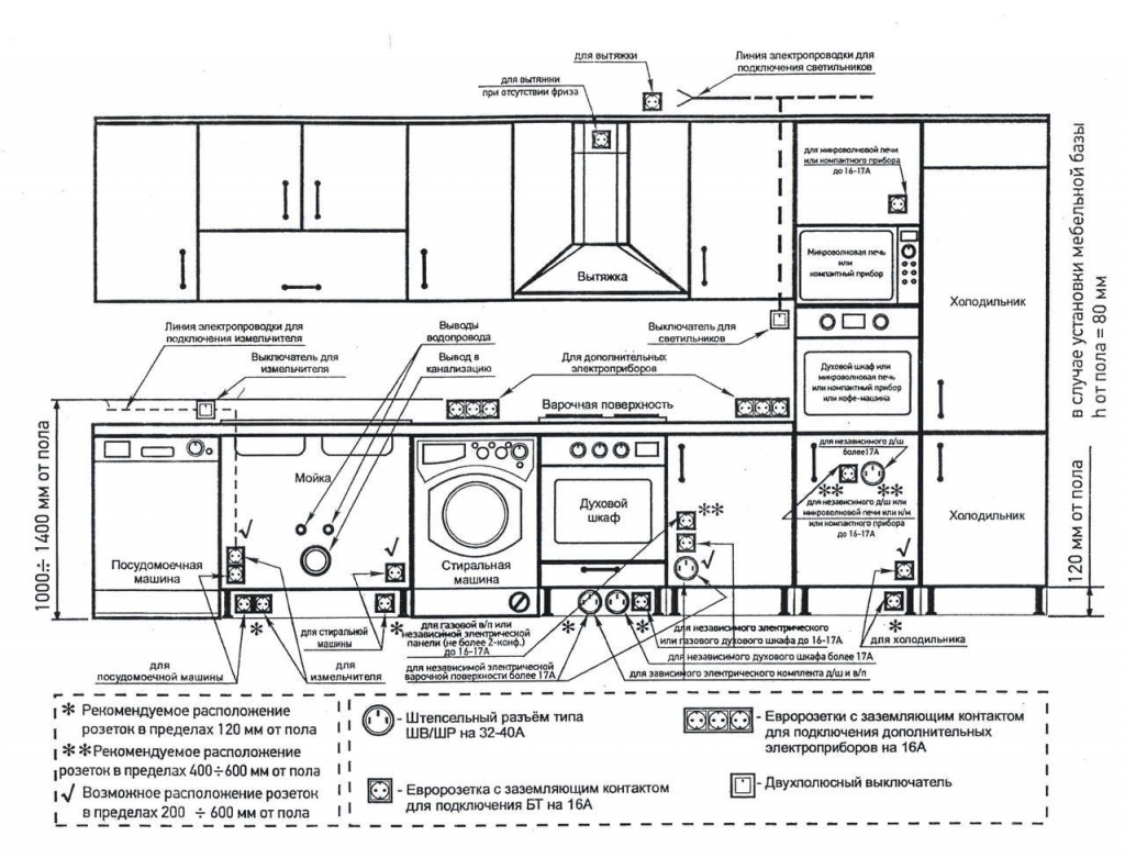
Prises pour appareils encastrés : règles de placement
Plusieurs règles doivent être suivies lors de l'élaboration de la disposition des points de vente:
- Aux points de raccordement du lave-linge ou du lave-vaisselle, les prises sont installées de manière à être toujours disponibles. Dans de tels cas, des prises de type fermées sont utilisées, elles empêchent l'eau de pénétrer.
- Pour la cuisinière et le four, comme mentionné ci-dessus, des prises spéciales de type 32A + 40A sont utilisées.
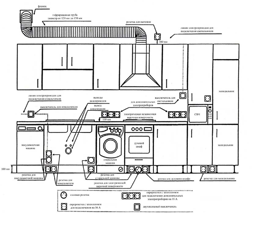
- La prise à laquelle la hotte est raccordée, le cas échéant, est installée au niveau supérieur des armoires et toujours avec un décalage dans le sens opposé au passage de l'air. Ceci est fait pour que l'air chaud, lorsqu'il pénètre dans la hotte, n'endommage pas le câblage électrique.
-
Toutes les prises pour les appareils encastrés doivent être situées à proximité de l'emplacement avec un accès libre direct, et non directement derrière les appareils.
- Il en va de même pour la prise du réfrigérateur, car si vous placez la prise derrière le réfrigérateur, vous risquez de l'endommager avec une grille chaude située à l'arrière du réfrigérateur.
- Il est interdit de placer des prises de courant au-dessus de la cuisinière pour la cuisson, de l'évier et derrière le corps des appareils encastrés. Dans le premier cas, en raison du danger de dommages dus à la chaleur, dans le second - de l'eau.
- Il est également impossible d'installer des prises dans les parties mobiles de l'ensemble de cuisine, car cela peut entraîner un frottement du câble électrique.
Attention! Avant d'installer des prises, lisez la documentation de l'équipement intégré ou demandez au responsable la quantité de courant nécessaire au fonctionnement de cet équipement.
Règles et disposition des points de vente
Déterminez le nombre d'appareils ménagers qui s'y trouveront ou s'y trouveront dans un proche avenir. Ensuite, spécifiez et notez la puissance de chacun et les fonctionnalités de connexion, le cas échéant. Indicateurs de puissance approximatifs :
- Grande technologie.
- four électrique - à partir de 2500 W;
- table de cuisson - 1000-1500 W;
- lave-vaisselle - à partir de 1000 W;
- lave-linge - à partir de 1500 W;
- chauffe-eau - à partir de 1500 W;
- réfrigérateur - 200-1000 W;
- congélateur - 300 watts.
- Petits appareils de cuisine.
- four à micro-ondes - à partir de 800 W;
- bouilloire électrique - à partir de 500 W;
- mélangeur - jusqu'à 300 W;
- robot culinaire - 1200-1500 W;
- cafetière - à partir de 900 watts.
- Technologie supplémentaire. qui peuvent être présents dans la cuisine :
- téléviseur - 200-330 W;
- ordinateur portable - 50-75 watts.
Le placement des prises est soumis à certaines règles pour éviter les situations pouvant entraîner des conséquences désagréables :
Portez une attention particulière au fait que la puissance totale des appareils inclus dans la prise ne doit pas dépasser celle autorisée. Par exemple, vous ne pouvez pas brancher une bouilloire et un four à micro-ondes sur la même prise en même temps.
La puissance des appareils peut être précisée dans les fiches techniques de ceux-ci.
Il est nécessaire d'amener dans la cuisine autant de lignes qui alimentent les prises de courant pour qu'avec une double marge il y en ait assez pour tous les appareils. Cela signifie que la cuisine doit être conditionnellement divisée en parties avec l'emplacement des appareils, puis la puissance résultante doit être divisée en groupes de prises dans ces parties et multipliée par deux dans chaque groupe reçu.
Pour les appareils électriques à forte puissance (gros électroménager, cuisinières électriques, etc.), il est préférable d'avoir des lignes séparées avec une section appropriée, en cuivre et par automatisme de protection. Pour plus de commodité, il est préférable de signer chaque machine dans le tableau électrique.
Les appareils avec un boîtier métallique nécessitent une mise à la terre. Par conséquent, leurs prises doivent être connectées via un disjoncteur différentiel ou un RCD (dispositif à courant résiduel).
Il est interdit d'installer des prises directement derrière les fours électriques encastrables, les réfrigérateurs, les hottes, elles doivent être situées sur le côté à une distance d'environ 20 cm.
Les prises sont installées au-dessus du plateau de la table, en reculant de 10 à 15 cm.Les conditions doivent être strictement respectées pour éviter que l'humidité et les éclaboussures de graisse ne s'y déposent. Ne pas monter au-dessus d'un évier ou d'une cuisinière.Lors de l'installation de prises à proximité de tuyaux, assurez-vous qu'elles sont munies de couvercles et de joints en caoutchouc qui les protégeront de l'humidité en cas de bris.
Les fabricants indiquent sur les emballages aux prises pour quelle puissance elles sont conçues, ces chiffres doivent être pris en compte lors de l'achat. Ils produisent des options de 10 ampères, ce qui correspond à 2,2 kW, et 16 ampères - 3,5 kW.

Établissez au préalable une disposition des prises. C'est à ce point qu'il faut prêter le plus d'attention.
L'importance de la scène réside dans le fait que la commodité d'utiliser des appareils électroménagers dans la cuisine, la sécurité et l'esthétique de la pièce dépendront de la précision et du succès de l'élaboration du schéma.
L'emplacement des prises doit être strictement dessiné sur le plan de la cuisine et noter comment les lignes électriques y seront tracées.
N'oubliez pas le design de la pièce, ils ne doivent pas gâcher l'aspect général. Si les prises de courant pour les gros appareils électroménagers ne sont généralement pas visibles derrière le tablier de la cuisine, puis situées au-dessus du comptoir, elles peuvent donner un aspect intéressant ou le gâcher.

Dans les cuisines modernes, les options coulissantes sont souvent choisies, elles sont cachées dans le plan de travail sans en changer l'esthétique et apparaissent en cas de besoin. Parmi les avantages, il convient également de noter qu'ils sont faciles à installer, vous pouvez souvent commander l'installation lors de la fabrication d'un ensemble de cuisine.
Elaboration d'un agencement de points de vente
Lors de la planification d'une refonte majeure de la cuisine, vous devez prendre soin d'établir un plan d'implantation pour l'emplacement des prises afin d'éviter les fils suspendus inutiles, ainsi que les désagréments lors du raccordement des appareils électriques.
Détermination du nombre de points de vente requis
Pour déterminer le nombre de prises dans la cuisine, vous devez additionner tous les appareils électroménagers que vous prévoyez d'utiliser et ajouter 20 % supplémentaires comme marge. Les consommateurs de cuisine les plus courants sont :
- cagoules;
- assiettes;
- frigo;
- appareils encastrés;
- bouilloire, mélangeur, etc.
À la liste qui en résulte, il convient également d'ajouter des appareils pouvant être utilisés à l'avenir. Tous les calculs doivent être effectués au stade du câblage, c'est-à-dire avant le début des travaux de finition, car il ne sera pas facile d'installer des prises supplémentaires ultérieurement.

Le nombre de prises à chaque point de connexion dans la cuisine dépend directement du nombre d'appareils électriques qui seront utilisés à proximité immédiate de celui-ci.
Emplacement des prises pour chaque type d'appareils électroménagers
Selon le consommateur, la prise doit être située à un certain niveau du sol :
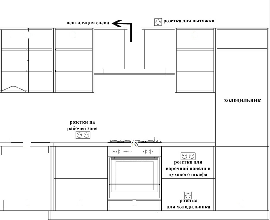
- Plaque. La règle principale est que les prises ne doivent pas être placées au-dessus des brûleurs ou derrière le four. La distance optimale par rapport au sol est de 15 cm avec une certaine indentation sur le côté afin que la fiche soit accessible, mais la prise n'est pas visible.
- Frigo. Les recommandations sont généralement les mêmes. De plus, il convient de garder à l'esprit que certains modèles de réfrigérateurs ont un cordon d'alimentation court, ce qui ne vous permettra pas de placer la prise très loin.
- Lave-linge et lave-vaisselle. Cette technique comporte des trous à l'arrière pour l'alimentation et l'évacuation de l'eau, de sorte que la sortie doit être située à une certaine distance. Il est préférable de le placer du côté opposé des tuyaux à une hauteur de 15 à 20 cm du sol.
- Capot.Étant donné que cet appareil est installé assez haut, la prise doit également être située plus près du plafond, généralement à 2 m du sol.
-
Sur un tablier. En règle générale, cet emplacement est une zone de travail pour la cuisine, de sorte que le raccordement des appareils électriques de la cuisine peut être nécessaire assez souvent. Pour que la prise puisse être allumée et éteinte sans difficulté, la prise est placée à 10–15 cm du bord du plan de travail ou à 110–115 cm du sol. Vous ne devez pas le placer trop haut, car le tablier est un endroit visible dans la cuisine et les fils bien en vue ne feront que gâcher l'intérieur.
Dans la zone de la cuisine où sont installés le canapé, la table et les chaises, la présence d'une prise est également extrêmement importante, par exemple pour brancher un aspirateur, recharger un téléphone ou un ordinateur portable. Dans ce cas, il est préférable de mettre une paire de prises doubles à une hauteur de 20-30 cm du sol
À un endroit plus élevé, les fils seront visibles.
Règles de câblage
Le raccordement des prises dans la cuisine est effectué en respectant les règles suivantes:
- La puissance totale des consommateurs connectés à la prise ne doit pas dépasser le maximum autorisé.
- Lors de l'utilisation d'équipements à forte puissance, il est nécessaire d'y apporter une ligne dédiée et d'installer une machine séparée.
- S'il y a des appareils électriques avec un boîtier métallique, ils doivent être mis à la terre.
- Il est déconseillé d'installer des prises derrière des appareils électriques générant de la chaleur (fours, réfrigérateurs, etc.).
-
Avant de commencer l'installation, vous devez établir un plan.
Tableau : puissance et section des fils pour connecter les appareils de cuisine
| Type d'équipement | Consommation électrique maximale | Prise | Section de câble | Automatique dans le bouclier | |
| Connexion monophasée | Connexion triphasée | ||||
| Kit dépendant : tableau électrique plus four | environ 11kW | Calculé pour la consommation électrique du kit | Jusqu'à 8,3 kW/4 mm² (PVA 3*4) 8,3-11 kW/6 mm² (PVA 3*6) | Jusqu'à 9 kW/2,5 mm² (PVA 3*2,5)9-15/4 mm²(PVA 3*4) | séparé, au moins 25 A (seulement 380 V) plus RCD |
| Tableau électrique (indépendant) | 6–11kW | Évalué pour la consommation d'énergie du panneau | Jusqu'à 8,3 kW/4 mm² (PVA 3*4) 8,3-11 kW/6 mm² (PVA 3*6) | Jusqu'à 9 kW/2,5 mm² (PVA 3*2,5)9-15/4 mm²(PVA 3*4) | séparé, au moins 25 A plus RCD |
| Four électrique (indépendant) | 3,5 à 6 kW | prise euro | Jusqu'à 4 kW/2,5 mm² (PVA 3*2,5) 4 à 6 kW/4 mm² (PVA 3*4) | 16 A 25 A | |
| plaque de cuisson à gaz | prise euro | 1,5 mm² (PVA 3*1,5) | 16A | ||
| Four à gaz | prise euro | 1,5 mm² (PVA 3*1,5) | 16A | ||
| Machine à laver | 2,5 kW7 kW avec sécheur | prise euro | 2,5 mm² (PVA 3*2,5) 7 kW/4 mm² (PVA 3*4) | séparé, 16 A séparé, 32 A | |
| Lave-vaisselle | 2–2,5kW | prise euro | 2,5 mm² (PVA 3*2,5) | séparé, 16 A | |
| Réfrigérateur, congélateur | moins de 1kW | prise euro | 1,5 mm² (PVA 3*1,5) | 16 A | |
| Capot | moins de 1kW | prise euro | 1,5 mm² (PVA 3*1,5) | 16 A | |
| Machine à café, cuiseur vapeur, four à micro-ondes | jusqu'à 2kW | prise euro | 1,5 mm² (PVA 3*1,5) | 16 A |
Règles pour l'emplacement des prises dans la cuisine: photos, schémas et recommandations
Avant de commencer à choisir des lieux, ainsi qu'à installer des prises, vous devez faire quelques calculs qui vous aideront à tout faire correctement. Tout d'abord, vous devez écrire tous les appareils que vous prévoyez d'utiliser dans un proche avenir, ainsi que leur puissance approximative. Bien sûr, les indicateurs de puissance seront individuels, cependant, à titre d'exemple, on peut considérer les indicateurs moyens suivants :
- réfrigérateur - jusqu'à 1 kW;
- chauffe-eau - à partir de 1,5 kW;
- table de cuisson - de 1 à 1,5 kW;
- lave-linge - environ 1,5 kW;
- four électrique - à partir de 2,5 kW.
Un exemple de l'emplacement correct de la prise pour le réfrigérateur
Ce sont tous des éléments de gros appareils électroménagers qui créent la charge principale sur le réseau. Les petits appareils, qui comprennent un four à micro-ondes, un mixeur, une cafetière, une bouilloire, etc., consomment en règle générale de 300 à 800 kW, selon le modèle.
Comment organiser les prises dans la cuisine: règles de base
Voici quelques règles de base à suivre lors de l'aménagement des prises dans la cuisine :
la puissance totale de tous les appareils qui seront connectés à une prise ne doit pas dépasser celle autorisée. Autrement dit, vous devez voir à l'avance la puissance de chaque appareil (elle est indiquée dans la fiche technique). Habituellement, seuls de gros appareils tels qu'une bouilloire électrique et un four à micro-ondes ne peuvent pas être connectés à une seule prise, et d'autres combinaisons sont tout à fait acceptables;
La disposition des prises électriques et les conclusions dans la cuisine
- il devrait y avoir suffisamment de lignes électriques pour les prises dans la cuisine afin qu'il y en ait assez pour toutes les prises avec une double marge. Pour ce faire, divisez conditionnellement l'espace en plusieurs zones, en fonction de l'emplacement des appareils, puis divisez la puissance requise pour les alimenter en groupes de prises. En multipliant le résultat par deux dans chacun des groupes, vous obtiendrez l'image la plus complète du nombre de sources qui seront nécessaires ;
- afin d'alimenter de gros appareils, il est conseillé de leur apporter des lignes séparées, dont la section sera adaptée. Ceci s'applique aux cuisinières électriques et autres gros appareils pour lesquels une protection automatique individuelle séparée sur le panneau électrique n'interférera pas ;
- si l'appareil a un boîtier métallique, il doit être mis à la terre et les prises dans ce cas doivent être connectées via un RCD ou un disjoncteur différentiel;
Dans une grande cuisine, il est préférable de disposer des blocs avec moins de prises, mais avec un intervalle plus fréquent.
- selon la réglementation, l'installation de prises directement au-dessus d'appareils électriques (réfrigérateur, four, hotte aspirante, etc.) est strictement interdite. Ils doivent être situés strictement sur le côté et à une distance d'au moins 20 cm;
- Un autre point important concerne l'installation à l'emplacement du tablier. Les prises de courant dans la cuisine doivent s'élever au-dessus du plan de travail d'au moins 10-15 cm pour éliminer le risque de gouttes d'eau et de graisse.
Les prises encastrées ne doivent pas être placées près de l'évier pour éviter que l'eau ne pénètre dans l'appareil
Disposition des prises dans la cuisine: principes de compilation
Il est plus facile d'installer correctement les prises dans la cuisine si vous utilisez le schéma préparé
La commodité de leur utilisation, ainsi que l'aspect esthétique du problème, dépendront du soin apporté au système de localisation des prises.
Quel câble choisir pour le câblage
Après avoir terminé le calcul de la consommation électrique de tous les appareils électriques, vous pouvez commencer à sélectionner le type de produits de câble, déterminer la section requise des conducteurs. Pour ce faire, nous utilisons les données du tableau des courants admissibles.
| Section de câble, mm² | Ouvert | situé dans le tuyau | ||||||||||
| Charges de courant, A | puissance, kWt | Charges de courant, A | puissance, kWt | |||||||||
| 220 | 380 | 220 | 380 | |||||||||
| Cu | Al | Cu | Al | Cu | Al | Cu | Al | Cu | Al | Cu | Al | |
| 0,5 | 11 | — | 2,4 | — | — | — | — | — | — | — | — | — |
| 0,75 | 15 | — | 3,3 | — | — | — | — | — | — | — | — | — |
| 1 | 17 | — | 3,7 | — | 6,4 | — | 14 | — | 3 | — | 5,3 | — |
| 1,5 | 23 | — | 5 | — | 8,7 | — | 15 | — | 3,3 | — | 5,7 | — |
| 2 | 26 | 21 | 5,7 | 4,6 | 9,8 | 7,9 | 19 | 14 | 4,1 | 3 | 7,2 | 5,3 |
| 2,5 | 30 | 24 | 6,6 | 5,2 | 11 | 9,1 | 21 | 16 | 4,6 | 3,5 | 7,9 | 6 |
| 4 | 41 | 32 | 9 | 7 | 16 | 12 | 27 | 21 | 5,9 | 4,6 | 10 | 7,9 |
| 5 | 50 | 39 | 11 | 8,5 | 19 | 14 | 34 | 26 | 7,4 | 5,7 | 12 | 9,8 |
| 10 | 80 | 60 | 17 | 13 | 30 | 22 | 50 | 38 | 11 | 8,3 | 19 | 14 |
| 16 | 100 | 75 | 22 | 16 | 38 | 28 | 80 | 55 | 17 | 12 | 30 | 20 |
| 25 | 140 | 105 | 30 | 23 | 53 | 39 | 100 | 65 | 22 | 14 | 38 | 24 |
| 35 | 170 | 130 | 37 | 28 | 64 | 49 | 135 | 75 | 29 | 16 | 51 | 28 |

Comment bien positionner une ou plusieurs alimentations : réglementation
Presque tous les articles de la cuisine ont leurs propres normes.
Les appareils électroménagers doivent être situés dans une zone ne dépassant pas 1 mètre de la source d'alimentation. La prise doit être installée à portée de main.
Les prises, les interrupteurs doivent être installés de manière à ce que l'humidité ne pénètre pas dessus.
La hauteur maximale au-dessus du socle ne doit pas dépasser 2 m
Attention
Des informations sur toutes les normes peuvent être trouvées dans les documents: GOST 7397.0-89, 7396.1-89, 8594-80, SNiP 3.05.06-85.
Règles et mise en page




Calculez pièce par pièce les appareils électroménagers, résumez leur consommation totale d'énergie en kW. Lors du calcul, vous devez laisser une marge qui peut être nécessaire lors de la connexion de nouveaux appareils électroménagers. La valeur résultante est prise en compte lors de la pose du câble principal vers la cuisine.
Dessinez sur papier l'emplacement des meubles, des appareils électroménagers sur les murs. Effectuez un « balayage » de la zone afin que tous les éléments intérieurs, les appareils électroménagers soient visibles dans une seule projection.
Marquez le point d'entrée du câble d'alimentation vers la cuisine.
Créer des groupes de points de vente qui seront situés dans des zones distinctes
Il est important de ne pas oublier les sorties d'alimentation uniques, le cas échéant. Par exemple, pour une zone de travail et un tablier - un groupe de 3-4 pièces, pour une hotte et un réfrigérateur - un chacun sous le plafond et au-dessus du socle. Chaque cuisine a son propre schéma.
Dessinez des lignes de câblage, marquez des emplacements pour les prises
Faites un dessin en tenant compte des règles de leur emplacement. Les généralités sont décrites dans le paragraphe ci-dessus. Il existe des cas particuliers, qui seront discutés plus en détail ci-dessous.
Marquez tous les fils sur papier, notez la consommation électrique de chaque groupe.
Compter le nombre de fils et d'accessoires
Chaque cuisine a son propre schéma.
Dessinez des lignes de câblage, marquez des emplacements pour les prises. Faites un dessin en tenant compte des règles de leur emplacement. Les généralités sont décrites dans le paragraphe ci-dessus. Il existe des cas particuliers, qui seront discutés plus en détail ci-dessous.
Marquez tous les fils sur papier, notez la consommation électrique de chaque groupe.
Comptez le nombre de fils et d'accessoires.
Important
Il est préférable de dessiner un schéma avec des dimensions sur du papier millimétré à l'aide d'une règle ou d'utiliser un logiciel informatique. Par exemple, AutoCAD

- Européen - 30 cm du sol.
- La norme soviétique se situe au niveau de la ceinture d'une personne, à environ 90 cm du sol.
Quel câble faire passer ?
Il existe deux types de câble :
- pour câblage caché;
- pour externe.
Lors du choix des câbles pour la cuisine, vous devez être guidé par plusieurs règles:
- Pour une ou plusieurs alimentations, choisissez des fils avec une section de câble minimale de 2,5 mètres carrés. mm (câblage cuivre). Ce sont des fils de la marque VVG ou VVGng. Le deuxième câble a un degré de protection plus élevé pour la sécurité incendie.
- Pour un four électrique, un fil plus gros est sélectionné pouvant supporter une charge allant jusqu'à 7 kW. En règle générale, les fils de cuivre d'une section allant jusqu'à 4 mètres carrés ont de tels indicateurs. mm.
Attention
Il est important de se rappeler comment acheminer correctement le câble. Lors de la conception du câblage, tenez compte des boîtes de jonction à travers lesquelles les câbles seront raccordés. ne laissez pas de vieux fils sur le câble en cuivre ou ne tordez pas le cuivre avec de l'aluminium
ne laissez pas de vieux fils sur le câble en cuivre ou ne tordez pas le cuivre avec de l'aluminium
ne laissez pas de vieux fils sur le câble en cuivre ou ne tordez pas le cuivre avec de l'aluminium
Ce qu'il faut considérer lors de la conception d'un agencement de prises
Tout d'abord, vous devez décider quel type d'appareils électroménagers sera installé et le placer correctement sur le dessin de la pièce. Après avoir préparé à l'avance l'agencement d'un ensemble de cuisine, il est facile d'éviter les problèmes liés au transfert de prises déjà en cours d'installation de meubles.
En aucun cas, les prises de courant ne doivent être situées derrière des appareils encastrés ou derrière des armoires avec des tiroirs avec des fermetures et des systèmes coulissants, tels que des cargaisons (bouteilles), des carrousels, des paniers métalliques. S'il est nécessaire d'installer une prise juste derrière une telle armoire, elle est montée à une hauteur ne dépassant pas la hauteur des pieds du meuble.
Il est recommandé d'installer des prises pour l'installation à côté des appareils, généralement derrière une armoire adjacente, dans la paroi arrière de laquelle, si nécessaire, une découpe est pratiquée. Cette armoire, comme il ressort de ce qui précède, ne doit pas être équipée de systèmes coulissants complexes. La profondeur des armoires à tiroirs simples et la possibilité d'installer des prises électriques derrière celles-ci doivent être discutées avec le concepteur ou le conseiller commercial du salon du meuble.
Quel câble utiliser
La pose des câbles électriques est prévue en fonction de la puissance des appareils électroménagers :
- Câble en cuivre avec une section de conducteur de 8 mètres carrés. mm est prévu de fournir aux consommateurs individuels de grande puissance - une cuisinière électrique, une plaque de cuisson, un four électrique, une chaudière de chauffage, un chauffe-eau à accumulation, un chauffe-eau à circulation, une machine à laver automatique, un lave-vaisselle;
- Câble en cuivre d'une section de 4 à 6 mm² - micro-ondes, réfrigérateur, bouilloire électrique, robot culinaire ;
- Câble en cuivre avec une section de conducteur de 2 à 4 mm - pour un grille-pain, un mixeur, un hachoir à viande électrique, une cafetière, une machine à café, un téléviseur et d'autres consommateurs.
Dans le cas de l'installation d'un bloc de prises, il est recommandé de poser une ligne séparée vers le bloc à partir de section de câble 6-8 mm, cela garantira un fonctionnement fiable sans surchauffer la ligne.

câble cuivre VVGng
L'installation de lignes séparées vers les consommateurs de grande puissance assurera une alimentation électrique fiable de l'appareil et un arrêt d'urgence par un disjoncteur. Par exemple, si l'élément chauffant de la machine à laver tombe en panne et qu'il y a un court-circuit dans le circuit, la machine individuelle éteindra uniquement la ligne électrique de la machine à laver. Et le reste des appareils continuera à fonctionner en mode normal.
Attention! Lors de la pose d'un nouveau câblage, vous devez utiliser uniquement un câble en cuivre, pas de torsions avec de l'aluminium, uniquement des noyaux solides de la machine sur le blindage jusqu'à la prise de cuisine !








































