Comment faire un poêle à ventre de vos propres mains

Méthodes de pose de cheminée

Comment faire un poêle à ventre de vos propres mainsMéthodes de sortie de cheminée

Les poêles Potbelly sont souvent installés à l'extérieur et utilisés pour la cuisson, la cuisson à la vapeur des aliments pour les animaux de la ferme et le chauffage de l'eau. Dans ce cas, un morceau de tuyau d'un diamètre approprié est utilisé pour la cheminée. Il est important de choisir un canal plus haut que la hauteur humaine - la fumée n'irritera pas les muqueuses et la poussée sera suffisante pour entretenir le feu et éliminer les produits de combustion. Les cheminées pour femmes bourgeoises dans les garages et les bains sont organisées selon d'autres schémas :

Les cheminées pour femmes bourgeoises dans les garages et les bains sont organisées selon d'autres schémas :

  • Le canal est dirigé verticalement à travers le plafond. La majeure partie de la cheminée est située à l'intérieur et dégage de la chaleur, augmentant ainsi l'efficacité énergétique.Dans le même temps, la méthode impose des exigences accrues en matière d'isolation thermique des points de transition à travers les structures du bâtiment pour prévenir les incendies. Pour vous protéger contre les fuites de pluie et de neige, vous devrez réaliser une étanchéité du toit.
  • La cheminée est conduite avec un coude horizontal à travers le mur à proximité immédiate du poêle à ventre, et le tuyau principal traverse verticalement le bâtiment. Une petite section du tuyau à l'intérieur de la pièce dégage peu de chaleur, mais est la plus résistante au feu.
  • La meilleure option consiste à faire passer la cheminée à travers le mur à une distance d'environ un demi-mètre du plafond. Dans ce cas, le canal réchauffe la pièce, mais il n'est pas nécessaire de faire un trou dans le plafond et le toit, ce qui réduit le coût et le temps de fabrication.

Les exigences sont prises en compte lors du choix d'un emplacement pour l'installation d'un poêle à ventre dans une pièce. De plus, il est interdit d'aménager plus de 3 tours de chenal tout au long.

Conseils pour un bon nettoyage du poêle à ventre plat

Un gros avantage d'un tel four est le fait que sa conception vous permet de le nettoyer moins souvent. Néanmoins, il est nécessaire de le faire périodiquement afin que les résidus de suie ne s'accumulent pas dans la cheminée et que rien n'interfère avec la libre sortie de la fumée par la cheminée. Si le poêle à ventre fume, il est urgent de commencer à nettoyer le tuyau. À ces fins, un cure-pipe spécial est le mieux adapté. Au fait, vous pouvez le faire vous-même. Il suffit d'attacher une brosse cylindrique au bout de la corde. Une brosse avec des poils en plastique ou en fer fonctionne mieux. L'essentiel est de choisir la brosse de la bonne taille afin qu'elle puisse facilement pénétrer dans le conduit de fumée étroit et ne pas s'y coincer.

Les actions de nettoyage de la canalisation sont réalisées selon les étapes suivantes :

  • Avant le nettoyage, l'ouverture menant au four doit être fermée et recouverte en plus d'un chiffon.
  • Pour commencer, vous devez effectuer plusieurs mouvements de translation avec un pinceau.
  • Ensuite, vous devez récupérer toutes les ordures qui tomberont dans le cloaque.
  • Ces travaux doivent être effectués avec soin afin de ne pas endommager l'intégrité du tuyau.

Comment faire un poêle à ventre de vos propres mainsComment faire un poêle à ventre de vos propres mains

Un poêle-poêle à faire soi-même aide parfaitement à réchauffer le garage en hiver. Et sa production indépendante est très économique et ne nécessite pas beaucoup d'efforts.

Comment faire un "poêle à ventre" de vos propres mains, voir la vidéo suivante.

Les points importants

Aucun élément de four ne doit être installé à proximité de la source de chaleur principale !

Lors de la réalisation d'équipements de chauffage tels qu'un four à cylindre ou à bubafon, vous devez faire attention à certains points importants:

  • Certaines sections du tuyau de cheminée sont montées strictement dans le sens opposé à celui dans lequel les flux de gaz se déplaceront.
  • Avant de fabriquer un four, il est nécessaire de déterminer le lieu de son installation, afin que l'espace environnant puisse sans faute supporter un régime de température suffisamment élevé.
  • La cheminée doit être conçue de manière à ce que même après une longue période, il soit possible de la démonter à des fins de nettoyage.
  • Avant de démarrer un bubafon ou un réchaud à combustion longue à partir d'un cylindre, l'appareil doit d'abord être testé. Ce processus est souhaitable pour effectuer dans différents modes. Ceci est nécessaire pour connaître la température et le fonctionnement optimaux de l'équipement.

Règles de base pour allumer un four à partir d'un cylindre

Le four est démarré selon un certain schéma

Il est important d'en tenir compte afin d'obtenir un résultat optimal et d'assurer un niveau de sécurité idéal.

  • Vous devriez faire des choses comme :
  • Pour un allumage efficace, il est d'abord nécessaire de retirer complètement le couvercle actuel, puis de retirer le dispositif spécial d'alimentation en masses d'air.
  • Le combustible utilisé est en cours de pose, mais son volume ne doit en aucun cas être supérieur au conduit de cheminée situé en bas.
  • Si un poêle à ventre ou un bubafonya fonctionnent sur du bois, alors en position verticale, ils peuvent s'adapter beaucoup plus que s'ils sont posés horizontalement.
  • Ça vaut le coup, saupoudrez le dessus du bois de chauffage utilisé avec une petite quantité de copeaux de bois et mettez du papier.
  • Le registre s'ouvre et du papier ou des chiffons sont jetés dans le tuyau. Après l'allumage complet du carburant, le registre se ferme.
Lire aussi :  Cheminées à bois en métal et en brique pour la maison

Dans cette position, le four est capable de fonctionner pendant une journée ou plus, c'est-à-dire qu'une intervention humaine constante n'est pas nécessaire.

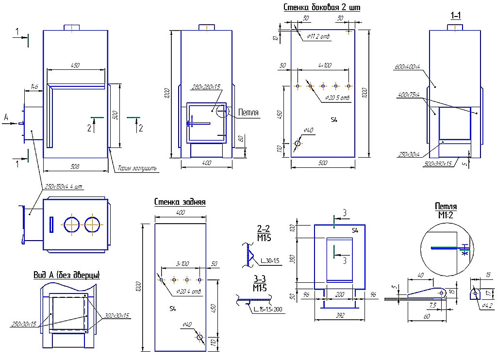
Poêle à ventre à faire soi-même à partir d'un tuyau ou d'un tonneau

Un tel four est constitué d'une conception horizontale ou verticale. Le diamètre du tuyau ou du baril est choisi en fonction de la taille de l'espace libre dans le garage. La version verticale est assemblée dans l'ordre suivant :

  1. Sur la surface latérale aux emplacements du foyer et du ventilateur, 2 trous rectangulaires sont découpés.
  2. Les portes sont fabriquées à partir de pièces découpées en soudant un cadre de bandes métalliques. Installez les loquets et les poignées.
  3. À l'intérieur, en reculant de 10 cm du bord inférieur de la porte du foyer, des supports sont soudés à partir des coins sous la grille en renfort.
  4. Les extrémités de la structure du tuyau sont soudées.
  5. Les jambes sont soudées par le bas
  6. Un trou pour la cheminée est découpé dans la partie supérieure.
  7. Les charnières sont soudées, les portes sont suspendues.
  8. Raccordez le conduit de fumée.

Le montage de la version horizontale est légèrement différent :

  1. La porte de la chambre de combustion de la pièce coupée est installée à la fin.
  2. Il n'y a pas de ventilateur, mais un trou d'un diamètre de 20 mm est percé sous la porte.
  3. Pour installer le poêle, un support est fabriqué à partir de coins ou de tuyaux.
  4. Une grille amovible est fabriquée à partir d'une feuille de métal d'une largeur telle que le centre se trouve à 7 cm du point le plus extérieur de la surface latérale du corps. Des trous sont percés pour permettre à l'air de passer sur toute la surface de la feuille.
  5. Si le poêle à ventre provient d'un tuyau, un tuyau de cheminée est soudé en haut à l'arrière. Tout d'abord, un cercle du diamètre souhaité est dessiné sur le canon, puis des coupes radiales sont effectuées à un angle de 15⁰. Les secteurs résultants sont courbés. Un tuyau leur est attaché avec des rivets.

Caractéristiques de chauffage du garage

Un garage capital avec isolation n'est pas disponible pour tous les propriétaires de voitures. Le plus souvent, à la disposition du propriétaire du véhicule se trouve une structure métallique, dépourvue de toute isolation. Toute énergie thermique quitte une telle structure presque instantanément.

Lorsque vous résolvez le problème du chauffage d'un garage, vous ne devez pas évaluer son besoin de chaleur sur la base d'une expérience similaire avec un immeuble résidentiel. Et ce n'est pas seulement le manque d'isolation.

Il existe une loi dite du cube carré, qui stipule que lorsque les dimensions d'un corps géométrique diminuent, le rapport de la surface de ce corps à son volume augmente.

Pour un stockage normal de la voiture dans le garage, la température à l'intérieur de la boîte ne doit pas descendre en dessous de +5º et monter au-dessus de +18º pendant la présence des propriétaires et l'exécution des travaux de réparation. Les exigences sont réglementées par SP 113.13330.2012

Cela affecte la taille de la perte de chaleur de l'objet, par conséquent, pour chauffer un mètre cube d'une petite pièce, par exemple un garage, il faut plus de chaleur que pour chauffer une grande maison.

Si un appareil de chauffage de 10 kW peut suffire pour un bâtiment à deux étages, un garage beaucoup plus petit aura besoin d'une unité d'une capacité d'environ 2 à 2,5 kW d'énergie thermique.

Pour maintenir une température de fonctionnement très modeste à 16°C, un poêle de 1,8 kW suffit. Si vous avez besoin de maintenir uniquement la température optimale pour stocker la voiture sur le parking - 8 ° C - une unité de 1,2 kW convient.

Il s'avère que la consommation de combustible pour chauffer une unité de volume de garage peut être deux fois plus élevée que pour un immeuble résidentiel.

Pour bien réchauffer l'ensemble du garage, ses murs et son sol, il faut encore plus d'énergie thermique, c'est-à-dire chauffage plus puissant. Mais même avec une isolation, la chaleur quittera la pièce trop rapidement. Par conséquent, il est recommandé de ne pas chauffer tout le garage, mais uniquement le soi-disant espace de travail.

Un chauffage efficace du garage peut être effectué à l'aide du soi-disant "bouchon chaud", formé lors du processus de convection naturellement limitée de l'air chaud dans la pièce

L'idée est de concentrer l'air chaud au centre de la pièce et autour de celle-ci de manière à ce qu'une couche d'air froid reste entre les murs et le plafond. En conséquence, les équipements et les personnes seront constamment dans un nuage d'air à une température confortable et la consommation d'énergie thermique sera sensiblement réduite.

Les experts appellent ce phénomène un plafond chaud, il se produit en raison d'une convection naturellement limitée.Un flux intense d'air chauffé monte, mais n'atteint pas un peu le plafond, car son énergie cinétique est éteinte par des couches froides plus denses.

De plus, le flux chaud est distribué sur les côtés, touchant légèrement les murs ou à une courte distance de ceux-ci. Presque tout le garage devient chaud; sous l'influence des processus de convection, même le trou d'observation se réchauffe.

Pour obtenir cet effet, les poêles de garage de puissance relativement faible conviennent, créant un flux d'air chaud intense, mais pas particulièrement dense.

Lire aussi :  Systèmes divisés Сentek: classement des meilleures offres + recommandations à l'acheteur

La convection naturelle de la masse d'air dans le garage assure la formation d'une température favorable au travail même dans le trou d'inspection

Une autre option de chauffage de garage consiste à utiliser divers radiateurs infrarouges. Pour un garage avec des parois métalliques, un tel équipement n'est pas particulièrement bien adapté. Le rayonnement infrarouge est mal réfléchi par les surfaces métalliques, il les traverse, par conséquent, toute la chaleur ira simplement à l'extérieur.

Pour un garage en briques avec des murs en demi-briques, les experts ne recommandent pas non plus un radiateur infrarouge. Ce matériau ne transmet pas les ondes infrarouges, mais ne les réfléchit pas. La brique absorbe ce type d'énergie thermique et la restitue au fil du temps. Malheureusement, le processus d'accumulation d'énergie et de restitution prend trop de temps.

Qu'est-ce qu'un ventre plat

Les poêles Potbelly ont trouvé une large application même parmi nos ancêtres en raison de la simplicité de leur conception.

Parlons de la création d'un poêle à ventre efficace de vos propres mains:

  • à partir d'une bouteille de gaz - une option appropriée pour laquelle les modèles dodus conviennent;
  • à partir d'un flacon est également la meilleure option, car il y a une porte ici, il vous suffit de fixer une cheminée;
  • à partir d'un baril - le plus souvent, des poêles à ventre long sont fabriqués à partir de celui-ci, car la capacité permet d'organiser une chambre de combustion assez grande;
  • du coffre-fort - pourquoi jeter l'ancienne structure si elle peut bien servir.

Comment faire un poêle à ventre de vos propres mains

Les poêles Potbelly, fabriqués à la main, sont fabriqués en métal à l'aide d'un outil spécial.

Comment faire un poêle à ventre de vos propres mains

Si vous êtes intéressé par la façon d'équiper un poêle à ventre de vos propres mains, son appareil est assez simple. La base comprend un conteneur qui joue le rôle d'une chambre spéciale à partir de laquelle la cheminée doit être retirée. Les portes sont équipées à l'avant - le carburant préparé est chargé par l'une et les cendres sont éliminées par la seconde.

Comment faire un poêle à ventre de vos propres mains

Comment faire un poêle à ventre de vos propres mains

Types de bourgeois

Les poêles Potbelly sont fabriqués en fonte et en acier inoxydable. La conception du four est une trémie avec une porte de foyer, dans certains modèles - un cendrier et un tuyau de cheminée.

Variétés :

  • four avec plaque de cuisson pour cuisiner;
  • four avec plaque de cuisson, four et brûleurs ;
  • four-réchauffeur - ayant un boîtier autour de son corps, le four-réchauffeur est capable d'augmenter efficacement le transfert de chaleur. L'air est aspiré dans l'espace entre le poêle et son enveloppe dans la zone inférieure, monte, se réchauffe contre les parois du four et sort dans la zone supérieure par le dessous du couvercle ou par les trous de celui-ci. La basse température du boîtier crée une surface sûre pour les humains, qui ne vous brûlera pas. Le boîtier peut être en acier et en céramique.
  • four générateur de gaz - une structure en acier recouverte d'une peinture résistante à la chaleur, composée de deux chambres de combustion: la chambre inférieure est une chambre de gazéification; haut - chambre de postcombustion.

Régimes bourgeois

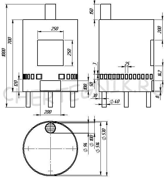
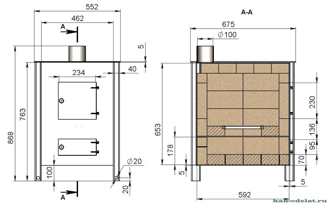
Le principal avantage du poêle rectangulaire. contrairement aux produits ovales constitués de tuyaux ou de bouteilles de gaz, il consiste en une plus grande surface chauffée, donc son efficacité sera beaucoup plus grande. La taille optimale pour un poêle à ventre est de 800x450x450 mm. Un four de cette taille ne prend pas beaucoup de place et peut facilement s'intégrer même dans une petite pièce.

Comment faire un poêle à ventre de vos propres mains

La conception la plus simple est le poêle Gnome, qui consiste en une boîte avec un tuyau soudé dessus.

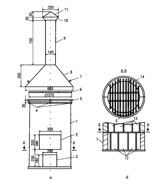
Une différence importante fours loginov est la présence de deux plaques (réflecteurs ) dans la partie supérieure du compartiment du four. Car trajet des gaz dans le même temps, le transfert de chaleur d'un tel poêle à ventre est nettement supérieur à celui d'un four métallique conventionnel.

Conseils. S'il est nécessaire de réduire la taille du four Loginov, il est souhaitable de ne modifier que sa largeur. Lors de la modification de la longueur et de la hauteur de la structure, son efficacité peut être considérablement réduite.

Comment faire un poêle à ventre de vos propres mains Schéma détaillé du poêle à ventre de Loginov

Photo de poêle à ventre bricolage

Comment faire un poêle à ventre de vos propres mains

Comment faire un poêle à ventre de vos propres mains

Comment faire un poêle à ventre de vos propres mains

Comment faire un poêle à ventre de vos propres mains

Comment faire un poêle à ventre de vos propres mains

Comment faire un poêle à ventre de vos propres mains

Comment faire un poêle à ventre de vos propres mains

Comment faire un poêle à ventre de vos propres mains

Comment faire un poêle à ventre de vos propres mains

Comment faire un poêle à ventre de vos propres mains

Comment faire un poêle à ventre de vos propres mains

Comment faire un poêle à ventre de vos propres mains

Comment faire un poêle à ventre de vos propres mains

Comment faire un poêle à ventre de vos propres mains

Comment faire un poêle à ventre de vos propres mains

Comment faire un poêle à ventre de vos propres mains

Comment faire un poêle à ventre de vos propres mains

Comment faire un poêle à ventre de vos propres mains

Comment faire un poêle à ventre de vos propres mains

Comment faire un poêle à ventre de vos propres mains

Comment faire un poêle à ventre de vos propres mains

Comment faire un poêle à ventre de vos propres mains

Comment faire un poêle à ventre de vos propres mains

Comment faire un poêle à ventre de vos propres mains

Comment faire un poêle à ventre de vos propres mains

Comment faire un poêle à ventre de vos propres mains

Comment faire un poêle à ventre de vos propres mains

Comment faire un poêle à ventre de vos propres mains

Comment faire un poêle à ventre de vos propres mains

Comment faire un poêle à ventre de vos propres mains

Comment faire un poêle à ventre de vos propres mains

Comment faire un poêle à ventre de vos propres mains

Comment faire un poêle à ventre de vos propres mains

Comment faire un poêle à ventre de vos propres mains

Comment faire un poêle à ventre de vos propres mains

Comment faire un poêle à ventre de vos propres mains

Comment faire un poêle à ventre de vos propres mains

Nous vous conseillons également de visionner :

  • Chaudières à combustion longue
  • Installer un radiateur sèche-serviettes
  • Comment nettoyer une cheminée
  • Accumulateur de chaleur pour le chauffage
  • Chauffage des conduites d'eau du gel
  • Cheminées pour chaudières à gaz
  • collecteur solaire
  • Chauffage d'une maison privée
  • Four à faire soi-même
  • Égout pluvial
  • Égouts dans une maison privée
  • Plomberie à la campagne
  • Tuyaux de chauffage
  • L'eau à la maison d'un puits
  • Cheminée bricolage
  • bien pomper
  • Pose de cheminée
  • Assainissement bricolage
  • Radiateurs de chauffage
  • Four suédois
  • Plancher chaud faites-le vous-même

Veuillez reposter

Types de bourgeois

Les poêles Potbelly sont fabriqués en fonte et en acier inoxydable.La conception du four est une trémie avec une porte de foyer, dans certains modèles - un cendrier et un tuyau de cheminée.

Variétés :

  • four avec plaque de cuisson pour cuisiner;
  • four avec plaque de cuisson, four et brûleurs ;
  • four-réchauffeur - ayant un boîtier autour de son corps, le four-réchauffeur est capable d'augmenter efficacement le transfert de chaleur. L'air est aspiré dans l'espace entre le poêle et son enveloppe dans la zone inférieure, monte, se réchauffe contre les parois du four et sort dans la zone supérieure par le dessous du couvercle ou par les trous de celui-ci. La basse température du boîtier crée une surface sûre pour les humains, qui ne vous brûlera pas. Le boîtier peut être en acier et en céramique.
  • four générateur de gaz - une structure en acier recouverte d'une peinture résistante à la chaleur, composée de deux chambres de combustion: la chambre inférieure est une chambre de gazéification; haut - chambre de postcombustion.

Fours-poêles à ventre à partir d'une bouteille de gaz

Les bouteilles de gaz ont un volume différent - de 10 à 50 litres. Plus le ballon est grand, plus la chambre de combustion d'un poêle fait maison est spacieuse.

Lire aussi :  Coagulants pour la purification de l'eau dans la piscine: comment choisir + règles d'utilisation

Les entreprises industrielles ne fabriquent généralement pas de fours à partir de bouteilles de gaz usagées (ces produits, selon les instructions jointes, ne peuvent pas être démontés, ils sont censés être simplement mis au rebut). Mais les artisans russes maîtrisent depuis longtemps la production de poêles compacts à partir de bouteilles de gaz qui ont fait leur temps. L'acier à partir duquel ils sont fabriqués est très résistant, il peut résister à la chaleur de la combustion de n'importe quel combustible. Le corps du poêle à ventre est composé d'une ou deux bouteilles de gaz.

Schéma d'un poêle-poêle avec foyer vertical. L'appareil de chauffage présente les caractéristiques de conception suivantes :

Comment faire un poêle à ventre de vos propres mains

  • des ouvertures pour un tiroir-tiroir à cendres, une sortie pour une cheminée, une porte de four sont découpées dans le corps du cylindre;
  • une grille amovible est insérée au-dessus de la chambre à cendres ;
  • la porte est installée dans un tuyau incliné soudé au corps;
  • une plaque de cuisson non amovible est soudée sur le corps;
  • des cloisons sont situées à l'intérieur du caisson afin que les produits de combustion soient retenus et réchauffent mieux le poêle ventru.

Un poêle à ventre à partir d'un cylindre avec une chambre de combustion horizontale se compose d'un corps avec une porte de chambre de combustion, d'un cendrier avec une porte, d'un conduit pour la cheminée et d'une trappe supplémentaire faisant office de brûleur. Ainsi, lors de la construction d'un poêle à ventre, quatre trous sont découpés dans un cylindre.

Le cendrier est en tôle d'acier d'une épaisseur d'au moins 3 mm, la porte du four en bout de cylindre est également découpée en acier épais et montée sur charnières. Si le maître n'a pas d'expérience dans la fabrication de portes et de fixations, vous pouvez acheter des portes d'usine en fonte. La fixation est effectuée sur des boulons à des coins en acier soudés au boîtier du poêle. Les racks pour le corps sont constitués d'une barre (renforcement du bâtiment) ou d'un coin roulé.

Réchaud goutte à goutte au travail

Vous pouvez également fabriquer vous-même un modèle économique de poêle à ventre goutte à goutte. Pour le cas, un fût métallique de petit volume ou un autre récipient disponible à la ferme convient. Un trou est fait dans le corps à travers lequel l'huile s'écoulera.

Ensuite, ils prennent un brûleur d'une capacité d'environ 2 litres, connectent un tube de cuivre de 1 m de long à son tuyau, puis le plient en deux.

Comment faire un poêle à ventre de vos propres mains
Une telle unité, fonctionnant avec des produits pétroliers usagés, peut fumer, de sorte que la pièce dans laquelle elle est installée doit avoir une bonne ventilation.

Un trou est pratiqué dans le récipient le long du diamètre du tube.Le tube lui-même a la forme de la lettre "G" et le brûleur est suspendu.

Poêle à ventre efficace à faire soi-même + dessins et instructions

Comment faire un poêle à ventre de vos propres mainsUne excellente option économique pour un chauffage et une cuisinière est un poêle à ventre plat. Il est incroyablement pratique et facile à configurer et à utiliser. Il est bon d'avoir un tel appareil à la campagne, à l'atelier, au garage et dans de nombreux autres endroits. Un poêle ventru à eau peut chauffer plusieurs pièces. Il existe de nombreux modèles différents en vente aujourd'hui, du fonctionnel sans prétention au rétro sophistiqué.

Mais leur prix ne peut pas être qualifié de bas. Par conséquent, les artisans expérimentés, disposant d'outils et d'un métal approprié, peuvent essayer de fabriquer eux-mêmes un poêle à ventre efficace.

Comment faire un poêle à ventre de vos propres mains

Boire dans un ballon

La version la plus simple d'un poêle à ventre peut être fabriquée à partir de matériaux improvisés. Un tonneau à paroi épaisse, un vieux bidon industriel ou une bouteille de gaz (bien sûr, vide) conviennent à cela.

Des artisans ingénieux utilisent des tuyaux de diamètre approprié, des disques de roues globales et des feuilles de métal.

Lors du choix d'un outil initial pour le travail, il convient de tenir compte du fait qu'un métal trop fin se déforme lorsqu'il est fortement chauffé et que le produit qui en résulte perdra sa forme. L'épaisseur optimale du matériau est de 3-4 mm.

Recommandations pour le placement et l'utilisation d'un poêle fait maison

Comment faire un poêle à ventre de vos propres mains

Poêle à ventre dans le bain

L'installation et l'utilisation du four doivent être réalisées conformément à une technologie établie et éprouvée par de nombreux utilisateurs. Si le poêle à ventre est installé dans une maison en bois, la distance minimale autorisée entre celui-ci et les murs les plus proches sera de 100 cm.Les précautions de sécurité exigent la disposition obligatoire d'une cheminée. Il est impossible de construire des sections, le tuyau doit être continu et solide.

Dans certaines situations, il est impossible de résoudre le problème du désenfumage sans construire de canalisations. Les artisans ont trouvé une solution totalement sûre et efficace à ce problème. L'essentiel est que les sections soient accouplées aussi étroitement que possible. La partie inférieure est insérée dans la partie supérieure, et rien d'autre.

Si le tuyau va sortir à travers le mur, le lieu de contact entre les objets doit être équipé d'une barrière thermique

Si vous le souhaitez, le poêle à ventre peut être ennobli à l'aide d'une variété d'accessoires, par exemple des dispositifs pour un stockage pratique du carburant. Conformément aux règles de sécurité, le combustible doit également être stocké à distance du corps du four. Cette distance doit être d'au moins 1 m.

Un poêle à ventre correctement assemblé peut chauffer une pièce en seulement 15 à 20 minutes. Si vous le souhaitez, il peut être décoré et transformé en un merveilleux ajout à l'intérieur de la pièce, ce qui en fait une source de chaleur constante à part entière. Suivez les conseils donnés et tout ira bien.

Un poêle à ventre moderne peut devenir une décoration intérieure

Travail réussi !

Évaluation
Site sur la plomberie

Nous vous conseillons de lire

Où remplir la poudre dans la machine à laver et combien de poudre verser