Schémas et règles typiques pour la rédaction d'un système de ventilation dans une maison privée

Conception de systèmes de ventilation : élaboration d'un plan et calcul

Organisation de la circulation de l'air dans l'appartement

Considérez comment l'air circule dans un seul appartement sans installer d'échangeurs d'air supplémentaires.

Comme mentionné ci-dessus, l'air frais pénètre par toutes sortes de fentes et d'espaces de fenêtre, ainsi que par les portes - portes entrouvertes et espaces en dessous.

Schémas et règles typiques pour la rédaction d'un système de ventilation dans une maison privée
Le diagramme montre clairement la direction du mouvement de l'air. Il pénètre par les fenêtres ou les portes des pièces d'habitation et se dirige vers les bouches d'aération.

La vie confortable dans les appartements se caractérise par un certain nombre de facteurs, notamment la fréquence des échanges d'air et le volume d'air régulièrement renouvelé.

Il existe des règles régissant la circulation des flux d'air.

Schémas et règles typiques pour la rédaction d'un système de ventilation dans une maison privéeTableau des taux de renouvellement d'air adaptés à un immeuble à appartements. Le changement d'air doit être plus actif là où il y a une forte humidité, c'est-à-dire dans la cuisine et dans les salles de bain.

Dans les bâtiments anciens, les gaines de ventilation ne fonctionnent pas toujours à 100 %, et cela peut être vérifié de manière simple. Il est nécessaire de prendre une feuille de papier et de la fixer au trou de ventilation technique. Si le papier n'est pas retenu par la force de traction et tombe, la ventilation naturelle est interrompue.

Au lieu d'une feuille, vous pouvez utiliser une bougie allumée ou une allumette. Par le mouvement de la langue de la flamme, il devient clair s'il y a un courant d'air de la pièce vers l'extérieur.

Nous avons examiné plus en détail les règles de vérification de la ventilation dans un appartement et les moyens de trouver un problème dans un autre article.

Les problèmes de ventilation affectent négativement le bien-être des personnes vivant en appartement. Le manque d'air frais provoque une somnolence malsaine, de la fatigue, des maux de tête.

Les personnes atteintes de maladies du cœur et du système respiratoire y sont particulièrement sensibles. Ils veulent constamment garder les bouches d'aération et les fenêtres ouvertes, ce qui entraîne un refroidissement brutal des locaux et, par conséquent, une augmentation du nombre de rhumes.

Nous vous recommandons également de vous familiariser avec les informations sur la façon de restaurer les performances de la ventilation et des conduits d'air.

Schémas et règles typiques pour la rédaction d'un système de ventilation dans une maison privée
Vous pouvez augmenter l'efficacité du système d'évacuation naturelle en utilisant l'appareil le plus simple - un ventilateur installé dans la sortie de ventilation de la salle de bain

Si une hotte régulièrement allumée est installée au-dessus du poêle avec une sortie d'air vers la gaine de ventilation, cela contribuera également au changement rapide des masses d'air dans la cuisine et les pièces adjacentes.

Si vous le souhaitez, les résidents peuvent organiser indépendamment le flux d'air. Pour ce faire, utilisez à la fois une ventilation ordinaire et des dispositifs mécaniques et techniques spéciaux, par exemple une vanne d'alimentation sur la fenêtre.

Les vannes sont installées non seulement sur les fenêtres à double vitrage, mais également dans les murs, le plus souvent sous les fenêtres, à proximité des appareils de chauffage. L'air de la rue pénètre dans la pièce par un petit trou de 5 à 10 cm de diamètre et est chauffé par la chaleur d'un radiateur ou d'un convecteur.

Il existe des modèles automatiques sensibles aux changements de température et d'humidité : dès que les paramètres dépassent la norme, l'aération se produit.

Mais le système d'alimentation centralisé de type canal est reconnu comme plus parfait. Vous ne pouvez l'installer vous-même que dans une maison privée, car dans les immeubles de grande hauteur, des services spéciaux sont impliqués dans des systèmes de cette ampleur.

Les conduits d'air et les appareils d'alimentation en air / chauffage sont situés au-dessus des locaux, dans les plafonds, traversent les murs, ils sont donc installés pendant le processus de construction.

Schémas et règles typiques pour la rédaction d'un système de ventilation dans une maison privée
La ventilation des conduits d'alimentation est équipée dans les nouveaux bâtiments de la classe dite d'élite. L'une des conditions d'installation est la hauteur sous plafond, qui permet une installation sans endommager l'intérieur.

Comme vous pouvez le voir, l'absence d'un système de ventilation naturelle bien établi peut être partiellement compensée par l'installation d'appareils supplémentaires. Il n'y a qu'un seul inconvénient - des dépenses ponctuelles supplémentaires pour l'achat d'appareils et des appareils réguliers - pour payer l'électricité.

Dispositif de conduits de ventilation

Lors du choix de la ventilation d'une maison en béton cellulaire, une attention particulière doit être portée à l'installation de conduits de ventilation.Compte tenu de la fragilité du matériau, de sa capacité à absorber l'humidité et de son instabilité aux hautes températures

Les conduits de ventilation dans les maisons en béton aéré sont construits de l'une des manières suivantes:

  • Pose d'un canal en briques;
  • Doublage avec des tuyaux en amiante ou en plastique;
  • Installation d'un caisson en acier galvanisé garni de blocs de béton cellulaire de petite taille.

Schémas et règles typiques pour la rédaction d'un système de ventilation dans une maison privéeConduits d'air en acier galvanisé

Cette dernière méthode est rarement utilisée en raison de sa complexité et de son coût élevé. De plus, des condensats se forment sur les parois des structures métalliques, ce qui est préjudiciable au béton cellulaire, de sorte que ces canaux doivent être isolés en plus.

Conduits de ventilation en brique

Si vous décidez de disposer les conduits de ventilation en brique, les instructions suivantes vous seront utiles:

Moins il y a de tels canaux dans la maison, mieux c'est. Par conséquent, il est souhaitable de les disposer dans les murs des pièces adjacentes à forte humidité (chaufferie, buanderie, salle de bain, cuisine). En règle générale, ils sont situés à proximité, car ils sont unis par un système commun d'approvisionnement en eau et d'assainissement.

Schémas et règles typiques pour la rédaction d'un système de ventilation dans une maison privéeConduit d'air en brique dans le mur entre la cuisine et la salle de bain

Pour la maçonnerie, vous ne pouvez utiliser que des briques pleines ou creuses, mais en remplissant tous les vides avec du mortier.

Schémas et règles typiques pour la rédaction d'un système de ventilation dans une maison privéeLes canaux sont faits de briques en céramique solides avec une étanchéité soignée des coutures.

Il est très important d'appliquer soigneusement la solution, en évitant que le mélange ne tombe dans le canal. Les coutures doivent être complètement remplies et frottées toutes les 2-3 rangées de maçonnerie afin que l'air d'échappement ne pénètre pas dans les canaux et les pièces adjacents

Schémas et règles typiques pour la rédaction d'un système de ventilation dans une maison privéeLes conduits de ventilation en brique sont disposés avec un soin et une précision particuliers

Les parois des canaux à l'intérieur doivent être aussi lisses que possible afin que les saillies n'interfèrent pas avec la libre circulation de l'air.Par conséquent, l'excédent de mortier des joints doit être constamment éliminé et la surface lissée à la truelle. Ou le canal de brique pendant le processus de maçonnerie est doublé d'un conduit métallique.

Schémas et règles typiques pour la rédaction d'un système de ventilation dans une maison privéeConduit d'air galvanisé en maçonnerie

Revêtement avec des tuyaux en plastique

Pour un appareil à ventilation forcée, cette méthode est considérée comme la plus efficace, car il n'y a pratiquement pas de condensation sur le plastique.

Schémas et règles typiques pour la rédaction d'un système de ventilation dans une maison privéeConduits d'air rectangulaires en plastique

En règle générale, des tuyaux ronds d'un diamètre de 13 cm ou des tuyaux rectangulaires d'une section transversale de 150 cm2 sont utilisés pour son installation. La section transversale des canaux de ventilation naturelle doit être plus grande.

Schémas et règles typiques pour la rédaction d'un système de ventilation dans une maison privéeDiamètre ventilation forcée standard - 13 cm

Mais ce sont des données approximatives. Pour calculer avec précision la taille des conduits d'air, vous devez connaître le volume de sortie d'air, le nombre de personnes vivant dans la maison, tenir compte des conditions climatiques et d'autres paramètres. C'est une tâche réservée aux spécialistes.

Le dispositif de ventilation dans la maison en béton cellulaire est réalisé parallèlement à la construction des murs.

Dans un bloc situé au niveau de l'évent, une branche est fixée et reliée à un tuyau en plastique.

Schémas et règles typiques pour la rédaction d'un système de ventilation dans une maison privéePose de canaux en plastique à partir de tuyaux d'égout

Pour contourner les conduits d'air dans les blocs lors de la pose ultérieure, des trous sont découpés de plusieurs millimètres plus grands que les dimensions des tuyaux. Le béton cellulaire est très facilement scié avec une scie à métaux ordinaire.

Schémas et règles typiques pour la rédaction d'un système de ventilation dans une maison privéeTrou percé dans le bloc

L'espace entre les murs des blocs et les conduits d'aération est rempli de mortier. Les tuyaux, à mesure que la hauteur de la maçonnerie augmente, sont reliés les uns aux autres, se construisant.

Schémas et règles typiques pour la rédaction d'un système de ventilation dans une maison privéeA ce stade, l'élément suivant est fixé au tuyau encastré dans le mur

Aux endroits où les tuyaux traversent le grenier et le toit, ils doivent être isolés.

Schémas et règles typiques pour la rédaction d'un système de ventilation dans une maison privéeConduit de ventilation isolé sur le toit

Au niveau du grenier, les conduits d'air individuels sont combinés en un seul canal et conduits à travers le toit vers la rue ou connectés à un ventilateur de conduit ou à un échangeur de chaleur. Toutes les ouvertures avec des sorties de canal dans les murs sont scellées et scellées.

Principaux types de structures

Les experts se concentrent sur le fait qu'il existe plusieurs types de systèmes de ventilation avec récupération de chaleur :

  • lamellaire;
  • avec caloporteurs séparés ;
  • rotatif;
  • tubulaire.

Variétés de récupérateurs d'air

Type de plaque - comprend une structure à base de tôles d'aluminium. Une telle installation d'échangeur de chaleur est considérée comme la plus équilibrée en termes de coût des matériaux et de valeur de la conductivité thermique (le rendement varie de 40 à 70%). L'unité se distingue par sa simplicité d'exécution, son prix abordable et l'absence d'éléments mobiles. L'installation ne nécessite pas de formation spécialisée. L'installation sans aucune difficulté est effectuée à la maison, de vos propres mains.

type de plaque

Rotary - des solutions assez populaires parmi les consommateurs. Leur conception prévoit un arbre de rotation alimenté par le réseau, ainsi que 2 canaux d'échange d'air à contre-courant. Comment fonctionne un tel mécanisme ? - Une des sections du rotor est chauffée par l'air, après quoi elle tourne et la chaleur est redirigée vers les masses froides concentrées dans le canal adjacent.

type rotatif

Lire aussi :  Ventilation dans une maison en bois: règles pour doter une maison en rondins d'un système d'échange d'air

Malgré le rendement élevé, les installations présentent un certain nombre d'inconvénients importants:

  • des indicateurs de poids et de taille impressionnants ;
  • exactitude à l'entretien régulier, réparation;
  • il est problématique de reproduire le récupérateur de ses propres mains, de restaurer ses performances;
  • mélange de masses d'air;
  • dépendance à l'énergie électrique.

Vous pouvez regarder la vidéo ci-dessous sur les types de récupérateurs (à partir de 8-30 minutes)

Noter! Une unité de ventilation avec des dispositifs tubulaires, ainsi que des caloporteurs séparés, n'est pratiquement pas reproduite à la maison, même si tous les dessins et schémas nécessaires sont à portée de main. Fabriquer un appareil de chauffage pour votre maison de vos propres mains

Fabriquer un appareil de chauffage pour votre maison de vos propres mains

Quel schéma est le meilleur pour un chalet?

Pour décider lequel et comment équiper au mieux une maison privée en ventilation, vous devez prendre en compte de nombreux facteurs. Les caractéristiques de tous les systèmes d'ingénierie et des appareils de chauffage des bâtiments sont ici importantes.

Lorsque vous choisissez le bon type de système de ventilation, tenez compte :

  • caractéristiques climatiques de la région;
  • la présence de sources d'impuretés désagréables et nocives dans l'air à proximité de la maison;
  • nomination de différents locaux;
  • caractéristiques individuelles de l'architecture du bâtiment;
  • la présence de poêles ou chaudières à gaz, ainsi que de cheminées ou poêles à bois/charbon ;
  • le nombre de résidents permanents dans le chalet et bien plus encore.

Il est recommandé de concevoir et d'installer indépendamment uniquement une ventilation naturelle. Pour son calcul, des méthodes simplifiées avec des indicateurs moyennés sont utilisées. Les comprendre n'est pas difficile.

Pour les pièces à vivre, le taux de renouvellement d'air est fixé à 30 m3 / h, pour les salles de bains et les toilettes entre 25 et 30 m3 / h et pour la cuisine - entre 70 et 100 m3 / h. Sur la base de ces données et de la cylindrée des pièces, il vous suffit de calculer la largeur des conduits de ventilation, puis de les équiper dans le bâtiment.

De plus, il est préférable de le faire au stade de la conception du chalet.Souvent, la meilleure option est un puits de ventilation au milieu du bâtiment avec sa sortie au-dessus du faîte du toit.

Schémas et règles typiques pour la rédaction d'un système de ventilation dans une maison privéePour calculer correctement la ventilation mécanique, vous devez avoir les compétences appropriées. Des erreurs de calcul peuvent entraîner des pannes constantes de l'équipement de ventilation et des coûts d'installation gonflés.

Si une maison privée est construite sur deux ou trois étages et qu'un système d'échange d'air forcé est choisi pour cela, il est préférable de confier sa conception à un professionnel. L'installation peut alors se faire à la main.

Cependant, s'il n'y a pas d'expérience en la matière et que vous ne voulez pas faire face à des problèmes à l'avenir, l'installation de tous les équipements de ventilation doit également être confiée à un spécialiste.

Par rapport à la ventilation mécanique, la ventilation naturelle est moins chère, moins bruyante et ne dépend pas de la disponibilité de l'électricité. Cependant, il est plus difficile à réglementer. De plus, sa poussée dépend fortement des facteurs atmosphériques externes.

Mais l'absence de ventilateurs électriques est l'absence de problèmes de pannes et la nécessité de leur entretien.

Le système de ventilation forcée dans une maison privée dans une version combinée ou uniquement d'évacuation ou d'alimentation est plus difficile à installer et à utiliser. Cependant, cela vous permet d'économiser sur le chauffage et de contrôler plus précisément le microclimat dans le chalet.

Autres solutions

Le marché ne s'arrête pas et de nouvelles solutions sont proposées aujourd'hui. Par exemple, il existe des systèmes de récupération qui, immédiatement, à travers un trou dans le mur, éliminent l'air évacué et fournissent de l'air frais. C'est une solution idéale si la ventilation est prise en charge après rénovation ou s'il est nécessaire de résoudre le problème uniquement dans certaines pièces. L'essentiel est que ces chambres aient au moins un mur donnant sur la rue.

Il existe un appareil qui élimine l'air d'échappement par un trou, prend de l'air frais. Il le réchauffe/refroidit également.

L'inconvénient de cette méthode d'organisation de la ventilation dans une maison ou un appartement est le prix d'un tel équipement. Le coût d'un tel appareil est de plus de 400 $.

Recommandations pour une installation avec un échangeur de chaleur

Les recommandations d'installation se réfèrent principalement aux pièces dans lesquelles l'échangeur de chaleur doit être installé. Tout d'abord, les chaufferies sont utilisées pour cela (si nous parlons de ménages privés). De plus, des récupérateurs sont montés dans les sous-sols, les greniers et autres locaux techniques.

Si cela ne diffère pas des exigences de la documentation technique, l'unité peut être installée dans n'importe quelle pièce non chauffée, tandis que le câblage des conduits de ventilation, si possible, doit être installé dans des pièces chauffées.

Les conduits de ventilation traversant des locaux non chauffés (ainsi qu'à l'extérieur) doivent être isolés. De plus, une isolation thermique est nécessaire aux endroits où les conduits d'évacuation traversent les murs extérieurs.

Compte tenu du bruit que l'équipement peut produire pendant son fonctionnement, il est préférable de le placer à l'écart des chambres et autres pièces à vivre.

Quant au placement de l'échangeur de chaleur dans l'appartement : le meilleur endroit pour cela serait un balcon ou un local technique.

En l'absence d'une telle opportunité, un espace libre dans le dressing peut être alloué pour l'installation de l'échangeur de chaleur.

Quoi qu'il en soit, l'emplacement de l'installation dépend en grande partie des caractéristiques de conception du système de ventilation, de l'emplacement du câblage de ventilation et des dimensions de l'appareil.

Les principales erreurs dans l'installation des systèmes de ventilation dans la vidéo suivante:

Caractéristiques et schémas

Chaque type a ses propres caractéristiques qui affectent son choix de fonctionnement. Il y a plusieurs points principaux :

la plupart des maisons à ossature ont un système d'échange d'air préinstallé;

Les tuyaux d'échange d'air sont montés selon le projet lors de la construction de la maison

  • chaque maison utilise son propre schéma et disposition des conduits de ventilation;
  • l'automatisation n'assure un fonctionnement à part entière que s'il existe des capteurs bons et utilisables;
  • le schéma et le plan de ventilation doivent être établis même lors de la planification de la maison, mais si cela ne s'est pas produit, le plan est alors réalisé avant l'aménagement de tous les locaux;
  • le plus souvent, les tuyaux métalliques ne sont pas utilisés dans le système de ventilation en raison de leur perte de chaleur et de leur conductivité acoustique trop élevée ;
  • pour la résidence permanente, une ventilation mécanique est utilisée, qui peut pleinement fournir un bon microclimat et un bon échange d'air dans les locaux à tout moment de l'année et à n'importe quelle température.

Pour l'aménagement de maisons à ossature d'un certain type, un système de ventilation a déjà été pensé, ce qui facilite la planification. Cette approche fournit un système de ventilation complet basé sur toutes les caractéristiques des locaux et du bâtiment dans son ensemble.

Le régime dépend également du type de bâtiment. Par exemple, pour une maison à deux étages, vous pouvez utiliser un type mixte, qui sera différent sur deux étages.

Schéma d'entrée et de sortie d'air dans une maison à deux étages

Auparavant, le schéma devait être élaboré en fonction des souhaits des habitants. Avoir une ventilation forcée dans une maison saisonnière n'a pas de sens. Il convient également de noter que les maisons à ossature peuvent être constituées de divers matériaux, ce qui facilite l'intégration de la ventilation d'un type ou d'un autre.

Tous les schémas sont élaborés en fonction des paramètres des locaux et de la conception de la maison. De plus, toutes les sorties de canal doivent avoir des grilles, ainsi que des boulons. Du côté de l'intérieur, des amortisseurs spéciaux sont installés, qui sont nécessaires non seulement pour réguler le débit, mais également pour la pleine conservation de la maison en l'absence des résidents.

Qu'est-ce que la ventilation et comment ça marche dans cette vidéo :

Conclusion

Ventilation dans une maison à ossature nécessaire. Pour différentes options pour les bâtiments à usage et de résidence, vous pouvez sélectionner vos propres systèmes de ventilation. Chaque système a ses propres caractéristiques et caractéristiques qui doivent être prises en compte lors de l'organisation. Une partie des maisons à ossature en cours de production a déjà une disposition des conduits de ventilation et tout pour leur installation.

Calculs

Un calcul compétent de la ventilation d'alimentation et d'extraction implique la détermination de ses paramètres suivants:

  • débit d'air total ;
  • pression normale dans le système ;
  • Puissance de chauffage;
  • aire de la section transversale ;
  • la taille des trous d'entrée et de sortie ;
  • consommation d'énergie électrique (pour les systèmes mécaniques).

La productivité est calculée à partir de données sur la hauteur et la superficie des locaux, sur l'utilisation de chaque site et sur sa charge de travail. Lors du choix de la fréquence de passage de l'air dans la ventilation, il ne faut pas s'écarter des valeurs prescrites par SNiP. Si nécessaire, seules des corrections sont apportées aux caractéristiques de chauffage et au nombre de personnes présentes. Pour la plupart des appartements résidentiels, il est nécessaire d'assurer l'approvisionnement de 100 à 500 mètres cubes. m d'air en 60 minutes. Et si la superficie de l'appartement est grande (ou si vous avez besoin de ventiler une maison privée), ce chiffre sera déjà de 1 à 2 000 mètres cubes. M.

Lire aussi :  Certification des systèmes de ventilation

Pour un aperçu de la conception des systèmes de ventilation, voir la vidéo suivante.

Type de système combiné

La ventilation combinée est mise en œuvre principalement sous la forme d'un schéma à apport naturel et à évacuation mécanique, c'est-à-dire forcée, des masses de déchets.

L'air frais pénètre dans les pièces par les vannes en raison de la raréfaction créée par les ventilateurs d'extraction. Dans ce cas, le préchauffage des masses d'air soufflé n'est pas effectué. Mais ce n'est pas un problème si vous installez un élément chauffant correctement sélectionné sous la vanne - un radiateur ouvert.

L'évacuation mécanique dans une maison privée est réalisée par des ventilateurs, généralement canalisés. Il peut y en avoir plusieurs, mais parfois un seul suffit.

Les ventilateurs d'extraction doivent fonctionner sans arrêt pour assurer une circulation d'air efficace. Afin d'économiser les ressources énergétiques, des régulateurs de vitesse à commande automatique / manuelle sont connectés au système.

Schémas et règles typiques pour la rédaction d'un système de ventilation dans une maison privée
Le flux d'air s'écoule dans la maison s'organise de manière naturelle. Pour ce faire, utilisez des vannes d'entrée murales ou spéciales pour fenêtre. La conception de tels dispositifs ne prévoit pas la présence de pièces mobiles.

Les experts caractérisent la ventilation combinée comme fonctionnelle, relativement peu coûteuse et facile à utiliser. Pour l'emplacement des équipements connexes ne nécessite pas beaucoup d'espace. De plus, tous les éléments fonctionnels nécessitent un entretien minimal.

Parmi les inconvénients du type de système combiné, il convient de noter le manque de filtration et de chauffage de l'air soufflé, ainsi que les taux de renouvellement d'air minimaux.

Étapes de conception du système de ventilation

La portée et le contenu du projet varieront en fonction de sa complexité, mais les principales composantes seront approximativement les mêmes. Ainsi, au stade préliminaire, un projet technique est élaboré, qui est en fait une étude de faisabilité (étude de faisabilité). À ce stade, des spécialistes se rendent sur le site pour enregistrer les premières informations, notamment la destination et les fonctions du bâtiment ou des locaux, sa superficie et le nombre d'habitants/employés.

La première étape se termine par la sélection de l'équipement, la prise en compte des principales caractéristiques et propriétés. Les décisions d'optimisation sont prises en interaction avec d'autres systèmes d'ingénierie. Et le calcul du renouvellement d'air de chaque pièce spécifique est effectué conformément aux conditions techniques, aux normes de construction et sanitaires.

Ensuite, un schéma est développé pour calculer le diamètre et la surface des conduits d'air et le niveau de bruit est déterminé. Les dessins sont envoyés pour approbation. Le concepteur du projet ou le client direct peut apporter des modifications.

À l'étape suivante, après accord, un ensemble de documents sur la plomberie, les travaux de construction et l'électricité est préparé.

Ce n'est qu'après l'achèvement de toutes les étapes ci-dessus que la ventilation est installée et lancée.

Schémas et règles typiques pour la rédaction d'un système de ventilation dans une maison privéeLa hauteur du plafond joue un rôle important dans la conception du système de ventilation. Le plafond bas complique considérablement la tâche, en règle générale, cela se trouve dans le salon, la chambre et la cuisine, si le couloir est complètement adjacent au mur du salon

La répartition rationnelle des fonds destinés à l'achat d'équipements et de matériaux est également d'une importance non négligeable dans la conception.Sur le marché moderne, il existe une vaste gamme d'équipements et d'appareils de différents fabricants de différentes catégories de prix.

Pour l'achat d'équipement, des calculs spéciaux seront nécessaires:

  1. À l'aide de la superficie et de la destination des locaux indiquées dans le plan d'étage de la structure, les performances requises sont déterminées. L'indicateur est calculé en m3/h.
  2. Compte tenu des performances, la valeur de la température de l'air en sortie du système de ventilation et la température ambiante minimale déterminent la puissance de l'aérotherme. Le chauffe-conduit est utilisé exclusivement pendant la saison froide comme chauffage de bâtiment.
  3. Les caractéristiques du ventilateur dépendent de la longueur et de la complexité du parcours. Pour calculer la puissance requise, le type et le diamètre du conduit, les transitions de diamètre et le nombre de coudes sont utilisés.
  4. Calcul de la vitesse d'écoulement de l'air dans les conduits d'air.
  5. La vitesse de l'air affecte le niveau de bruit.

Le budget du projet est calculé une fois tous les calculs terminés et les conduits de ventilation proposés sont appliqués au plan du bâtiment. Les TdR préparés doivent être approuvés par le client et les structures départementales.

Schémas et règles typiques pour la rédaction d'un système de ventilation dans une maison privéeDans une maison privée, un projet de système de ventilation doit être en cours avant même la pose des fondations. Tous les détails doivent être pensés à l'avance dans les moindres détails, ce qui garantira un système d'échange d'air efficace.

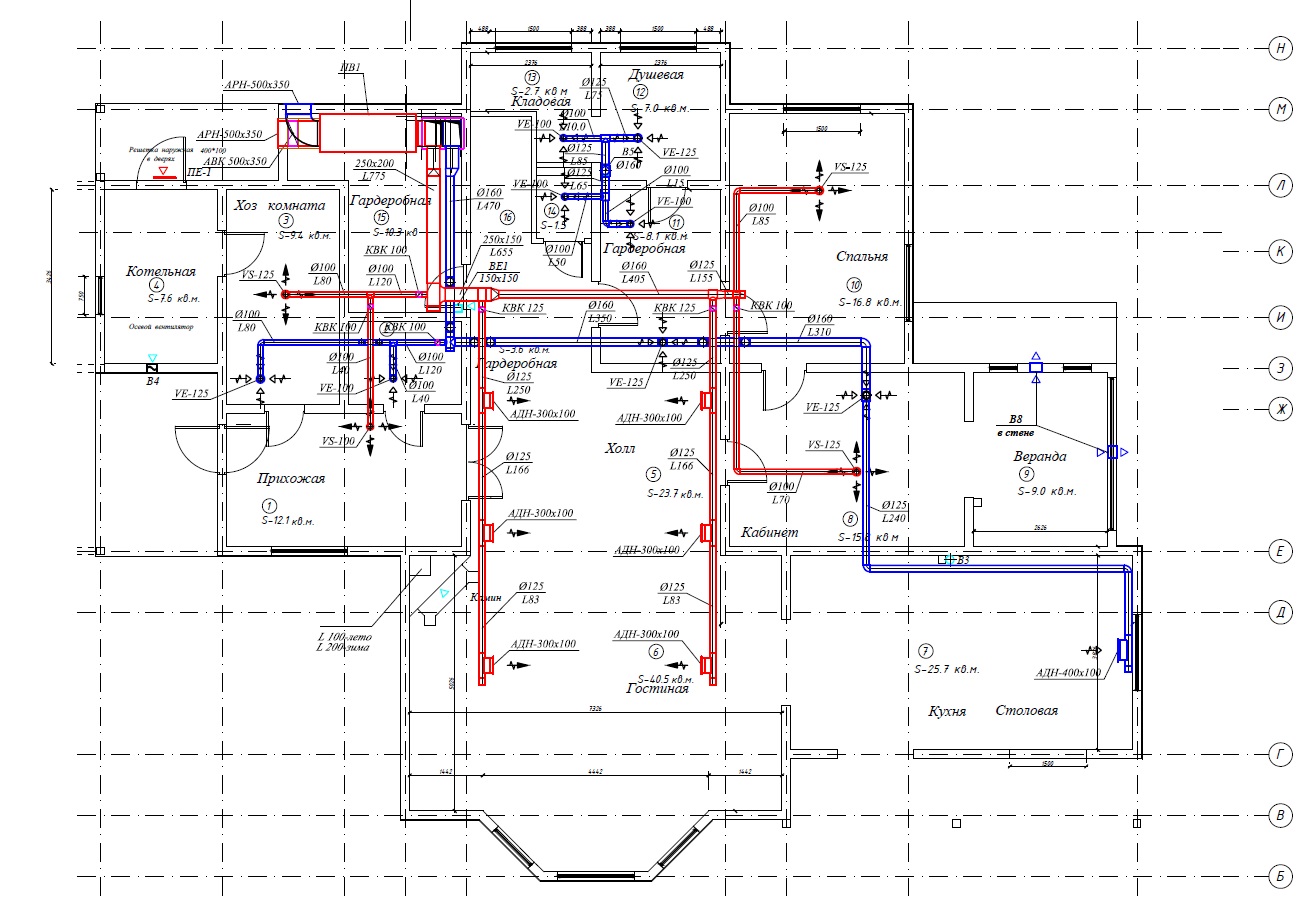
Recommandations pour les chambres individuelles

Lors de l'organisation d'une ventilation dans une maison privée, les flux d'air sont disposés de manière à ce que l'air extérieur propre pénètre d'abord dans le salon, les chambres, le bureau et la bibliothèque.

Et puis, le long des couloirs, il doit se rendre à la cuisine, à la salle de bain et au garde-manger avec accès au conduit de ventilation d'échappement.

Pour assurer une circulation d'air naturelle sans entrave dans le chalet, toutes les portes intérieures doivent avoir un espace de 2 à 3 cm entre le vantail de la porte et le seuil.

Si le chalet est en bois, une hotte supplémentaire doit également être fournie dans la salle de bain. L'humidité dans cette pièce est élevée, il sera difficile de se passer d'un ventilateur d'extraction

Dans la cuisine, en plus du trou de ventilation, il est recommandé d'installer en plus un ventilateur d'extraction au-dessus du poêle dans le conduit de ventilation. Il vous permettra d'éliminer rapidement les odeurs de cuisine, évitant qu'elles ne se propagent au reste des pièces de la maison.

Moment séparé - chaufferie et cuisine avec équipement au gaz. Ils doivent être équipés d'un canal séparé pour le flux d'air directement de la rue. De plus, n'oubliez pas la cheminée.

De cette façon, l'oxygène pour la combustion entrera dans le four en quantité suffisante et le monoxyde de carbone quittera immédiatement la pièce.

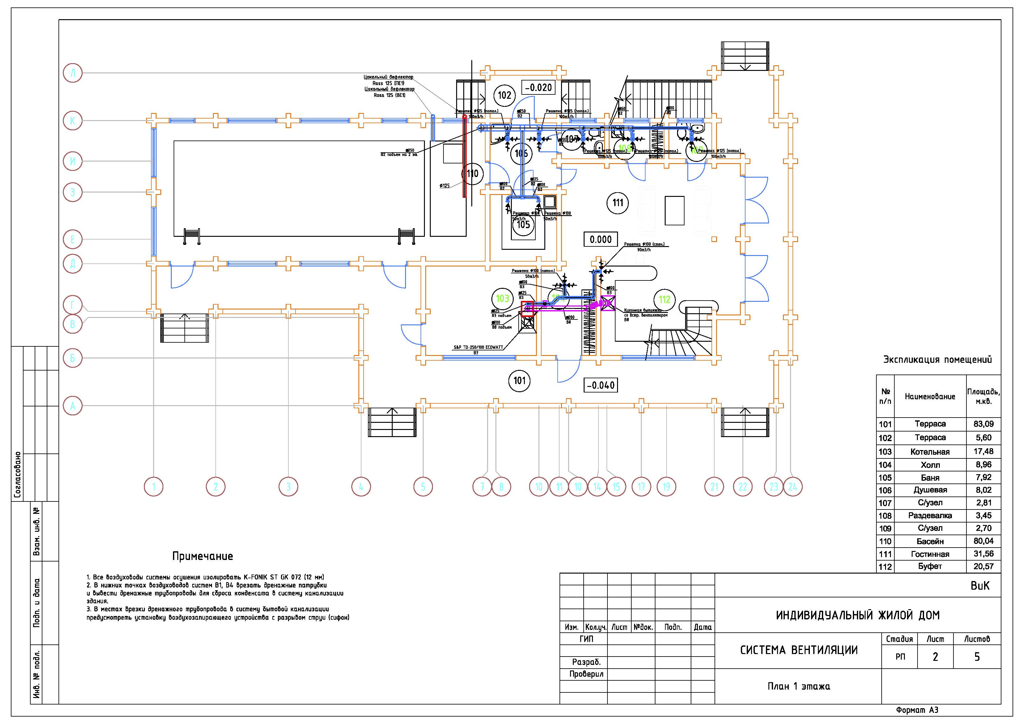
Système de ventilation pour un appartement 2 pièces (option 1)

Schémas et règles typiques pour la rédaction d'un système de ventilation dans une maison privée
Projet de ventilation dans un appartement 2 pièces (option 1)

Paramètres communs :

  • Superficie de l'appartement : 51,4 m².
  • Capacité de ventilation : 240 m³/h.
identification de l'équipement Marquage Qté Prix, frotter Coût, frotter
Équipement
PU avec chauffage électrique et automatisation Breezart 350 Lite* 1 70000 70000
Silencieux de conduit CSA 160/900 1 3080 3080
Réseau de distribution d'air et matériaux
Vanne à entraînement manuel (en option - entraînement électrique) KVK-160M 1 1100 1100
Conduit d'air en acier galvanisé, m D160 3 450 1350
Gaine d'air flexible thermo-isolée, entreprise unitaire. Sonoduct D125 1 4201 4201
Branche-90, pc. 125 1 319 319
Branche-90, pc. 160 3 392 1176
Té-90, pc. 160/125 1 410 410
Transition, pc. 160/125 1 301 301
Bouchon, pc. 125 1 196 196
Grille de ventilation, pc. AMN-300×150 2 554 1108
Adaptateur type 7, pc. 300x150 1 698 698
Adaptateur type 1, pc. 300x150 1 752 752
Grille extérieure, pc. ННР(С) 200х200 1 1719 1719
Vanne papillon, pc. DK-125 2 709 1418
Isolation thermique, m2 Pénofol 30 mm 6 492 2952
Consommables et matériel de fixation, jeu   1 6142 6142
Œuvres
Installation et mise en service sur le site du périphérique de Moscou 1 21000 21000
Ajouter. paiement lorsque l'objet est situé en dehors du périphérique de Moscou, rub/km 42 a besoin d'éclaircissements
TOTAL 117 922

* Il est possible d'utiliser d'autres modèles de centrales de traitement d'air.

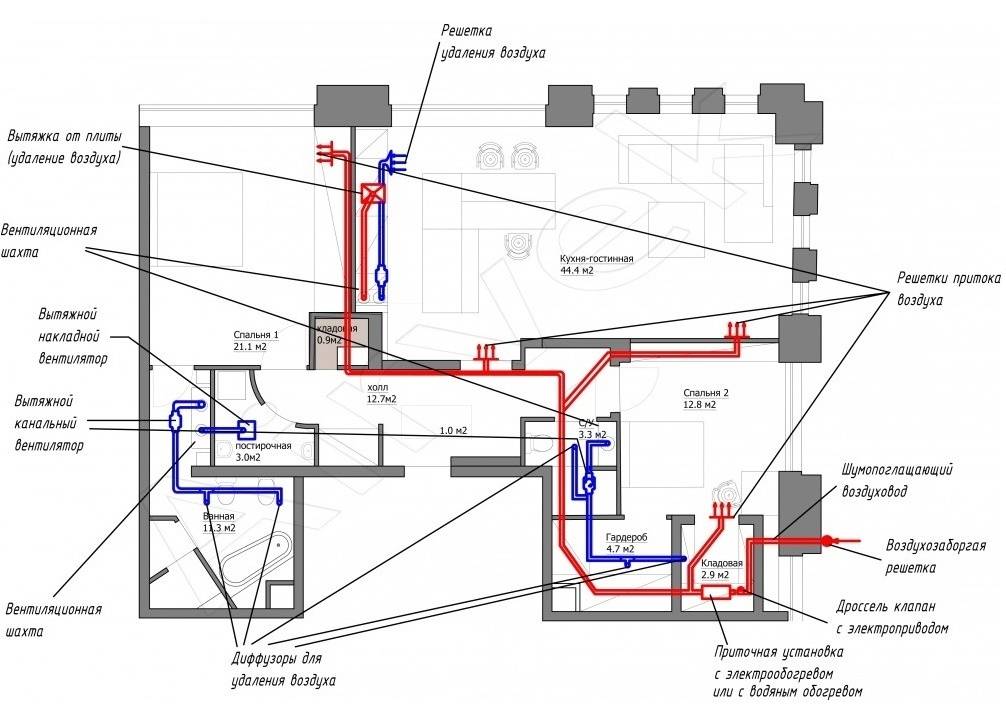
Installation de conduits de ventilation dans le chalet: emplacements des systèmes d'alimentation et d'évacuation

Schémas et règles typiques pour la rédaction d'un système de ventilation dans une maison privée

Grilles de ventilation externe des vannes à admission forcée

Condition un. De l'air frais doit être fourni à toutes les pièces de vie :

  • à la crèche;
  • au hall (au salon);
  • à la chambre à coucher;
  • au bureau;
  • à la salle à manger.

Condition deux. L'extraction d'air doit être présente :

  • des toilettes ;
  • de la douche;
  • de la salle de bain;
  • du bain (sauna);
  • de la salle de bain combinée;
  • de la cuisine;
  • de la lessive à domicile ;
  • de la pièce où les vêtements sont séchés;
  • d'un atelier à domicile, s'il contient de la poussière, de la fumée, des émanations nocives, des odeurs désagréables ;
  • des garde-manger, dressings, si ces zones sont séparées du séjour par une porte (si ces zones ont une entrée sur la zone sanitaire, elles doivent alors disposer d'une vanne d'alimentation).

Condition trois. Certaines pièces nécessitent à la fois une ventilation d'alimentation et d'évacuation. C'est avant tout :

  • pièce reliée à la cuisine;
  • l'une des pièces, si le flux d'air qui la traverse doit franchir plus de 2 portes vers la hotte ;
  • une pièce dans laquelle sont installés des appareils utilisant du gaz (chaufferie, cuisine).

Systèmes de ventilation au deuxième étage

Les chambres du deuxième étage ont leurs propres caractéristiques. Comme l'air chaud a tendance à monter, les systèmes de ventilation de cette zone sont soumis à une charge accrue.

Si tout le deuxième étage est séparé du premier étage par une structure entièrement porte (en tenant compte du palier) et que la porte s'ouvre et se ferme immédiatement, les principes généraux du système de ventilation sont conservés.

Lire aussi :  Ventilation de garage à faire soi-même: un aperçu des meilleures options pour aménager un système d'échange d'air

Lorsque le deuxième étage n'est aucunement clôturé par rapport au premier, des canaux d'alimentation et d'évacuation sont construits. Pour cela, n'importe quelle pièce est sélectionnée, son objectif opérationnel ne joue aucun rôle.

Unités pour système d'échappement local

Les abris existants, équipés de systèmes de ventilation par aspiration, sont divisés en plusieurs catégories spécialisées :

  • unités installées à la source de la pollution ;
  • des solutions qui bloquent la source de pollution ;
  • produits de resoufflage.

Dans la pratique, les unités à l'aide desquelles la source de propagation des substances dangereuses est localisée dans une certaine zone sont très populaires. Cependant, de telles solutions ne sont pas toujours commodes et appropriées à appliquer. Elles ont été remplacées par des hottes plus modernes avec un évent à la ventilation :

  • parapluies en métal et polycarbonate avec fonction de capote;
  • unités d'aspiration locales ;
  • hottes puissantes;
  • solutions encapsulées;
  • élimination des sécrétions du corps des machines-outils et des unités de travail;
  • solutions vitrines, façonnées et planches.

Les systèmes de ventilation locaux sont très courants dans les endroits où il est nécessaire d'assurer les normes requises pour l'échange d'air dans une zone locale spécifique.

Les hottes aspirantes sont les conceptions d'aspiration les plus populaires et les plus courantes. Ils équipent de petits espaces de travail (tables de soudure, de cuisson).Les impuretés dangereuses sont rapidement collectées et redirigées vers le haut, après quoi elles sont évacuées. La ventilation de la hotte fonctionne à la fois par tirage naturel et par tirage forcé.

Aspiration spécialisée - aspire les substances indésirables et potentiellement dangereuses avec une consommation minimale d'oxygène. La ventilation par extraction industrielle est souvent représentée par plusieurs unités locales. Leur principale caractéristique est qu'ils n'interfèrent pas avec le travail.

Les hottes sont l'une des solutions les plus efficaces pour l'élimination forcée des fumées nocives, des substances, tout en formant un niveau minimum d'échange d'air. Il existe plusieurs types de telles armoires en vente:

  • avec un dispositif de sortie supérieur, à travers lequel l'air chaud et humide est évacué;
  • avec l'élimination des flux contaminés de la structure latérale - nous parlons d'un analogue d'un "escargot", pour la collecte des produits résiduels;
  • avec des solutions déviatrices de type combiné situées en bas de l'unité.

Hottes locales : a - hotte aspirante ; b - vitrine; c - carter d'abri pour une rectifieuse; g - hotte aspirante; e - parapluie-visière sur l'ouverture ouverte du four; e - entonnoir d'échappement lors du soudage de produits de grande taille; g - aspiration inférieure; h - aspiration latérale; et - panneau d'échappement incliné ; j - aspiration double face du bain galvanique; l - aspiration unilatérale avec soufflage; m - aspiration annulaire pour un pistolet de soudage manuel

Le ventilateur, situé dans le système d'échange d'air, crée un tourbillon dans le flux afin que la poussière soit localisée dans une petite zone et ne se répande pas dans toute la pièce. Un exemple d'une telle installation est un poste de soudage, où la ventilation par aspiration forcée est représentée par une petite armoire.L'aspiration en eux est située au sommet de la structure.

Si nous parlons de l'élimination de substances non dangereuses, la vitesse de déplacement est autorisée dans les limites suivantes:

  • 0,5 – 0,7 m/s ;
  • 1,1 - 1,6 m / s - pour les cas où des impuretés toxiques, des fumées métalliques sont évacuées de la pièce.

Des hottes sont installées dans les laboratoires de chimie

Quant aux panneaux d'aspiration, ils sont utilisés dans les cas où l'air dans un espace confiné est saturé de gaz toxiques, de poussière et de chaleur. Le panneau est positionné de manière à ce que les composés toxiques soient à la distance maximale du travailleur. Des tuyaux d'échappement pour la ventilation complètent le moteur intégré et éliminent rapidement les suspensions dangereuses. Les installations considérées sont utilisées aux postes de soudage, lors du traitement de gros produits. Du soudage, ils sont situés à une distance allant jusqu'à 3,5 m, équipés de ventilateurs à un ou deux moteurs.

La vitesse de déplacement des masses d'air doit répondre aux critères suivants :

  • de 3,5 à 5 m/s, lorsqu'il s'agit du dégagement de poussières chaudes ;
  • de 2 à 3,5 m/s, si des suspensions toxiques ou non poussiéreuses sont dégagées pendant le fonctionnement.

Les experts se concentrent sur un point important - l'installation de la ventilation par aspiration est effectuée à condition que 1 m2 du panneau élimine 3,3 mille m3 d'air par heure

Les aspirations embarquées sont pertinentes dans les cas où la source de pollution est maintenue en position verticale à l'aide d'ascenseurs spéciaux. De telles installations sont largement utilisées dans les ateliers où le traitement galvanique des métaux est effectué, dans lesquels les substances dangereuses sont versées dans un récipient spécial puis aspirées à travers un petit trou.

D'un point de vue constructif, la ventilation par aspiration des locaux industriels se compose de plusieurs conduits d'air dont les entrées ont une forme étroite (jusqu'à 10 cm), elles sont situées sur les bords de la baignoire.

Étapes de la conception de la ventilation

Il y a 2 étapes principales, tout à fait équivalentes en termes de quantité de travail. La première étape (50%) est la collecte des données initiales pour la conception et la coordination des principales décisions fondamentales. La deuxième étape (50%) est le développement d'un projet de ventilation.

Collecte des données initiales Après avoir contacté notre équipe, nous devons suivre le chemin suivant :

① Sélectionnez le type de système de ventilation Il existe 3 options pour les systèmes de ventilation. Ventilation naturelle - puits dans les salles de bain de tout bâtiment. Ventilation hybride - vannes d'alimentation et mini-blocs d'alimentation dans chaque pièce. Ventilation d'alimentation et d'extraction - cela nécessite une conception détaillée. En détail - les avantages et les inconvénients de chaque système de ventilation.

② Sélectionnez l'ensemble complet et la marque de l'équipement de ventilation Si vous avez choisi un système de ventilation forcée, nous devrons déterminer la marque et l'équipement supplémentaire de l'équipement. La ventilation mécanique peut combiner les fonctions de filtration, de chauffage, de refroidissement, d'humidification et même d'ionisation de l'air. L'unité standard comprend un filtre, un réchauffeur d'air et une section de silencieux.

③ Sélectionnez les méthodes de distribution d'air et le type de grille En bref, vous pouvez réaliser des grilles à partir du mur ou du plafond et, dans certains cas, du sol. Vous pouvez connecter la ventilation au système de climatisation et fournir de l'air à travers les grilles des blocs de canaux. Vous pouvez poser des conduits d'aération sous le plafond et même dans la chape. Vous pouvez acheter des grilles simples et bon marché, ou vous pouvez acheter des grilles vortex, à buses ou à fentes.Au lieu d'un système de ventilation coûteux à part entière, vous pouvez fabriquer des climatiseurs à conduits avec pour fonction d'ajouter de l'air frais de la rue, mais partout il y a des pièges.

④ Sélectionnez le type de conduits d'air, l'emplacement de l'équipement, les ouvertures d'admission et d'évacuation, le système de chauffage pour chauffer l'air en hiver. Nous devons nous mettre d'accord sur les termes de référence et le projet de conception afin de ne pas avoir à ajuster plusieurs fois les projets finis.

⑤ Questions supplémentaires avant de commencer la conception de la ventilation : "Avez-vous des plans architecturaux numériques dans AutoCAD (ou ArchiCAD) ?"

Les mises en page PDF ou même JPEG nous conviennent, mais la conversion des dessins au standard AutoCAD prendra du temps. Nous avons besoin de mises en page dans AutoCAD pour un calcul précis de la quantité de matériaux et la sélection correcte de l'équipement.

Développement du projet de ventilation Après avoir collecté toutes les données initiales, convenu des termes de référence et de l'avant-projet, nous commençons le développement de la documentation du projet. Nous effectuons les calculs nécessaires selon les croquis déjà convenus avec vous. Dans ce cas, nous n'avons pas à corriger les projets finis et à recalculer le réseau. Nous discuterons de tous les problèmes à l'avance.

Comment choisir les tuyaux ?

On utilise principalement du plastique ou du polyéthylène, ainsi que du polypropylène.

Vous aurez également besoin de coudes à 45 et 90 degrés, de raccords en T et de raccords. Il est préférable d'utiliser des produits en polyéthylène, car les greniers ne sont pas toujours chauffés. Un environnement agressif - gel et soleil - peut rompre l'étanchéité.

Le polyéthylène est très élastique et réagit parfaitement aux changements de conditions météorologiques.Dans chaque cas, la quantité de matériau doit être calculée séparément, nous pouvons seulement dire qu'au moins un compensateur doit être présent dans tout projet, et au lieu de coudes de 90 degrés, il est préférable d'utiliser 45.

Quant à l'outil, chaque employé le choisit pour lui-même. Pour fixer ou couper le tuyau, vous avez besoin d'un perforateur ou d'un tournevis (tout dépend des murs du bâtiment), d'une meuleuse à vitesse réglable ou d'une scie à métaux.

Évaluation
Site sur la plomberie

Nous vous conseillons de lire

Où remplir la poudre dans la machine à laver et combien de poudre verser