- Exigences de base pour le câblage électrique dans une maison en bois
- Quel inventaire utiliser ?
- Calcul de la quantité de matériaux
- Comment faire du câblage dans la maison de vos propres mains
- La première étape du câblage électrique
- Projet électrique de la maison. Que comprend-il ?
- Un aperçu des erreurs de conception courantes
- Caractéristiques de l'alimentation électrique d'une maison privée
- Durée de vie du câblage
- Installation de câblage à faire soi-même
- Comment calculer le câblage électrique sur le site
- Plan et schéma du câblage électrique dans la maison. A quoi servent-ils ?
- Installation de câblage électrique dans une maison en bois
- Conclusions et vidéo utile sur le sujet
Exigences de base pour le câblage électrique dans une maison en bois
Les codes de règles pour PUE et SNiP sont développés par des experts en sécurité. Ce n'est pas un caprice d'un fonctionnaire de fauteuil, mais une liste de normes nécessaires, dont le respect rapproche le plus possible le niveau de "négligence" de celui souhaité. On peut dire que la vie elle-même écrit ces chapitres secs, derrière lesquels se cachent parfois des drames humains.
La principale cause d'incendie dans les bâtiments en bois est un court-circuit dans le câblage électrique.
Les statistiques sur les incendies ne laissent malheureusement aucun doute sur le fait que la construction en bois est toujours à la pointe du risque d'incendie.Cependant, si vous vous souvenez que pendant des centaines (voire des milliers) d'années, nos ancêtres ont vécu dans des cabanes en rondins de bois, il y a de l'espoir que tout est possible, il vous suffit de gérer correctement le câblage. Après tout, c'est dans la grande majorité des cas qu'il provoque un incendie.
Les principales exigences contenues dans le PUE et les GOST sont les suivantes :
- Le calcul du câblage doit être effectué avec une marge allant jusqu'à 30%. Cela s'applique principalement à la sélection de la section des fils, car le degré d'échauffement de l'isolation et la probabilité d'un court-circuit pendant le fonctionnement en dépendent. Afin de couvrir l'ensemble de l'électrification dans son ensemble, il est nécessaire de préparer un projet de travail avec un schéma détaillé et les spécifications du câblage électrique, et à la fin des travaux, obtenir une certification et recevoir un passeport de câblage.
- La qualité des connexions ne doit pas permettre la moindre possibilité d'électrocution pour les habitants de la maison.
- Le chauffage et l'allumage des câbles sont inacceptables, car cela entraînera très probablement un incendie criminel dans toute la maison. La possibilité de courts-circuits doit être complètement exclue.
Un obstacle important à l'indépendance travaux d'installation le câblage dans une maison en bois est l'absence d'un document unique réglementant l'installation. Les principales réglementations sont dispersées dans les documents réglementaires de GOST et SNiP et ne sont pas systématisées. Par conséquent, lors de l'élaboration d'un projet, il est préférable de contacter un organisme spécialisé disposant d'une licence pour ce type d'activité.
Quel inventaire utiliser ?
Qu'on le veuille ou non, mais l'utilisation d'outils pour le câblage est nécessaire, car les mains nues ne peuvent pas atteindre une précision et une exécution sans erreur.Par conséquent, nous vous proposons une liste d'outils que vous devez d'abord acquérir :
- tournevis-indicateur;
- testeur ou multimètre;
- marteau et perforateur;
- pinces, pinces;
- tournevis plats et bouclés;
- matériau isolant (isolant liquide ou ruban électrique);
- chasseur de mur.

Kit d'électricien standard
Chez vous, respectez les consignes de localisation des gros consommateurs : prises et interrupteurs. Selon les normes européennes modernes, la prise est située à une distance de 25 cm du sol et l'interrupteur à 90 cm.
Calcul de la quantité de matériaux
Après avoir créé le circuit, il est nécessaire de passer à l'étape suivante - compter la quantité de matériaux pour l'installation électrique. Tout d'abord, comptez la quantité de câble. Veuillez noter que le câblage dans le garage sera à la fois interne et externe (pour la pose du poteau au compteur et à l'entrée), vous devrez donc acheter des matériaux pour tous les types de travaux. Le fil SIP est généralement posé à partir du poteau, sa section vous sera indiquée dans les conditions techniques de raccordement, tandis que selon PUE 7.1.34 et dans le tableau 2.4.2 "La plus petite section ou diamètre des fils de dérivation des lignes aériennes aux entrées », la section transversale des conducteurs en aluminium est autorisée à utiliser pas moins de 16 m². mm ou plus de 2,5 m². mm, s'il s'agit de l'alimentation d'un équipement électrique séparé (le garage n'en est pas un).
Sur la base de ce qui précède (PUE 7.1.34), le câblage à l'intérieur du garage doit être réalisé avec un fil ou un câble en cuivre. Pour le câblage à l'intérieur du garage, utilisez VVGng-LS.
Afin de calculer correctement la section de câble, il est nécessaire de déterminer avec précision quels appareils électriques seront installés à l'intérieur.La puissance totale de tous les appareils électriques doit être multipliée par un facteur de "1,2" (une marge de puissance de 20%), sur la base duquel, selon le tableau, sélectionnez la valeur appropriée. Posez un câble avec une section de fils conducteurs de 2,5 mètres carrés sur les prises. mm, aux appareils individuels - calculer par puissance.
Quant à la longueur, il faut la prendre avec une marge, car. le conducteur sera coupé en morceaux (de la douille au blindage, de l'interrupteur à la lampe, etc.). Pour chaque connexion filaire, il faut prendre une marge de 10-15 cm.
Calculez le nombre exact de prises dans le garage. Il doit y en avoir au moins 2. Un pour une rallonge (en cas de réparation de machine), et le second pour un appareil électrique fixe (par exemple, un compresseur ou une machine à souder). Il y aura deux interrupteurs : un pour le trou d'observation, le second pour l'éclairage principal. Si nécessaire, vous pouvez ajouter d'autres interrupteurs pour contrôler la lumière sur chacun des murs, par exemple.
Une attention particulière doit être portée aux lampes. À notre époque, les lampes LED et fluorescentes sont populaires. La première option est plus économique et durable, mais en même temps plus chère.
La première option est plus économique et durable, mais en même temps plus chère.
En même temps, ce sera formidable si la lampe elle-même a une classe élevée de protection contre la poussière et l'humidité - IP54 et supérieur
Ceci est particulièrement important si le garage n'est pas chauffé et que de la condensation peut s'accumuler.
Si l'installation d'un câblage ouvert dans le garage est effectuée, il est également nécessaire de calculer le nombre de fixations, d'ondulations ou de canaux de câbles.Selon SNiP 3.05.06-85 (tableau 2), l'étape de fixation du câblage ouvert dans des tuyaux d'un diamètre de 20 mm ne dépasse pas 1 m, 32 mm ne dépasse pas 1,4 mètre Ces exigences peuvent être appliquées au câble pose en ondulation. Dans le même temps, il existe des exigences pour la fixation d'un câble sans tuyaux ni ondulations avec un câblage ouvert, elles sont décrites dans VSN 180-84. clause 7.2., où il est dit : "La distance entre les points de fixation des fils et câbles doit être d'au moins 500 mm pour une installation horizontale et 1000 mm pour une installation verticale." Dans ce cas, vous devez tenir compte des exigences, mais en fait, vous devez fixer l'ondulation tous les 0,3 à 0,7 mètre, afin qu'elle ne s'affaisse pas.
Installation du câblage de manière cachée, nous ne recommandons pas d'utiliser, car. cela prend plus de temps et il est peu probable qu'il améliore l'intérieur de la pièce. Une fois tous les éléments calculés, nous passons au processus principal.
Comment faire du câblage dans la maison de vos propres mains
Avant de commencer les travaux, lisez les Règles pour les installations électriques (PUE), qui décrivent les bases du travail avec l'équipement.
- Le câblage à faire soi-même dans une maison nécessite les conditions suivantes:
- un accès gratuit aux équipements de comptage, aux boîtes de distribution, aux prises et aux interrupteurs est requis.
- ils sont montés à un niveau de 60 à 150 cm du sol; l'ouverture des portes ne doit pas bloquer l'accès.
- le câble est alimenté par le haut ;
- La hauteur d'installation des prises varie de 50 à 80 centimètres du sol. Pour des raisons de sécurité, ils ne peuvent pas être placés à moins de 50 centimètres des cuisinières électriques et à gaz, des radiateurs de chauffage, des canalisations.
- L'alimentation se fait par le bas.
- Le nombre de prises est déterminé à raison de 1 pièce par 6 m².Cette règle ne s'applique pas à la cuisine, ici ils mettent des prises en fonction du nombre d'appareils électroménagers.
- Pour alimenter la salle de bain, il est préférable de prévoir un transformateur séparé situé à l'extérieur de cette pièce (pour baisser la tension).
- le câble est posé dans le strict respect de la verticale et de l'horizontale (sans coudes ni diagonales, afin de ne pas l'endommager lors de l'installation et de la perforation).
- horizontales sont posées à une distance de 5 à 10 centimètres des plafonds et des corniches et à 15 cm du plafond et du sol. Les câbles situés verticalement sont posés à au moins 10 cm du bord d'une ouverture de porte ou de fenêtre.
- La distance aux conduites de gaz ne doit pas être inférieure à 40 centimètres;
- Le câblage ne doit pas entrer en contact avec les structures métalliques du bâtiment.
- des boîtes spéciales sont utilisées pour le câblage et les câbles de connexion. Les connexions doivent être solidement isolées. Il est interdit de connecter des fils de cuivre avec de l'aluminium.
La première étape du câblage électrique
Lors de la conduite de fils électriques, les normes suivantes doivent être respectées:
Assurer le libre accès aux coffrets de distribution et aux équipements de comptage électrique.
Le montage des prises et des interrupteurs s'effectue à une hauteur d'un mètre et demi de la surface du sol, tout en garantissant un accès libre à ceux-ci. Afin de protéger les jeunes enfants, il est possible d'acheter des prises spéciales qui sont installées sur les prises.

Lors de l'ouverture des portes, le degré d'accessibilité à l'équipement ne doit pas être réduit. L'installation d'une prise est indiquée par 6 mètres carrés.

Selon le nombre d'unités d'équipement électrique, des prises sont montées dans la cuisine.


La pose des câbles doit être claire, en respectant la position verticale, horizontale et diagonale, tandis que le cordon d'alimentation ne doit pas s'affaisser ou se plier. Si cette règle est ignorée, il devient alors possible d'endommager le câble électrique lors des travaux d'installation et d'installation et à l'aide d'un perforateur.

Lors de la pose de câbles horizontaux, reculez de 5 à 10 centimètres des plafonds et des corniches. Une distance de 15 cm est requise par rapport aux surfaces du sol et du plafond.
Lors de l'installation de câbles verticaux, un retrait de 10 cm des fenêtres et des portes et de 40 cm des tuyaux de chauffage au gaz est requis.

Pour séparer et connecter les câbles électriques, l'utilisation de boîtes spéciales est indiquée.

Isolez toute connexion électrique conductrice pour éviter d'éventuels courts-circuits et incendies.

L'interdiction de la connexion des fils d'aluminium et de cuivre.

Projet électrique de la maison. Que comprend-il ?
Réfléchissez au câblage de la maison et de l'appartement en tenant compte :
- l'utilisation de l'électricité pour faire fonctionner simultanément plusieurs types d'équipements ;
- sans avoir besoin de limiter les connexions réseau et de recharger les appareils ;
- placement pratique des prises et leur nombre correct pour chaque pièce.
n'est possible qu'à l'aide de calculs de consommation d'énergie et d'un projet électrique bien conçu.

Lorsque vous effectuez des travaux avec un électricien, il est important de connaître la position de tous les éléments du système électrique de la maison et la disposition du câblage à l'intérieur des murs. Cela est nécessaire, ne serait-ce que parce que, dans le processus de réaménagement, de réparation, les communications importantes ne doivent pas être touchées. Il est également nécessaire s'il y a l'un ou l'autre dysfonctionnement du réseau.Lors du câblage des électriciens, la charge sur le réseau de la maison doit également être prise en compte et un câble avec la section requise doit être utilisé.
Avec des chutes de tension fréquentes, une protection appropriée est installée
Lors du câblage des électriciens, la charge sur le réseau de la maison doit également être prise en compte et un câble avec la section requise doit être utilisé. Avec des chutes de tension fréquentes, une protection appropriée est installée.

Le câblage est divisé en plusieurs étapes :
- établir un schéma de câblage ;
- calcul de puissance;
- l'achat des matériaux pertinents ;
- installation de câblage, installation de raccords et d'accessoires.
Un aperçu des erreurs de conception courantes
Des défauts dans le schéma ou la planification des travaux entraînent des erreurs d'installation, ce qui menace de perturber le fonctionnement du réseau électrique. Le résultat peut être la défaillance d'un équipement coûteux et, pire encore, une blessure électrique à l'un des résidents.
Quelles erreurs faut-il éviter :
- utiliser des produits de mauvaise qualité sans étiquetage ni certification ;
- faire des calculs individuels - tous les produits et matériaux techniques doivent être achetés avec une marge ;
- jeter dans le projet l'installation de prises conventionnelles pour connecter des plaques de cuisson, des chaudières, des pistolets à air chaud;
- dans les maisons en bois, prévoyez l'utilisation d'un câblage fermé - plus complexe et soumis à la liste des exigences du PUE;
- concevoir la commutation dans une boîte de jonction de fils d'alimentation basse tension et puissants ;
- planifier la connexion des fils avec des torsions dangereuses pour la maintenance et l'exploitation ultérieures ; la meilleure option est les terminaux prêts à l'emploi;
- faire des circuits de fils d'aluminium et de cuivre, ainsi qu'utiliser du câblage en aluminium.
Certaines erreurs sont liées à des calculs incorrects.Par exemple, les flashs de câble avec une méthode d'installation fermée doivent être posés à une profondeur de 2 à 2,5 cm, pas moins.
Il est impossible de connecter la mise à la terre des prises à l'aide d'une boucle, à la terre sur des égouts en fonte ou des conduites de gaz en acier.
Si vous ne savez pas comment effectuer correctement le câblage électrique dans la maison, contactez l'organisme de conception. Des spécialistes se rendront sur place et établiront un schéma de câblage en fonction des conditions d'installation spécifiques.
Caractéristiques de l'alimentation électrique d'une maison privée
Il existe des règles spéciales pour l'alimentation électrique d'une maison privée. Cela est dû à la présence de locaux techniques, d'éclairage public et d'autres facteurs. Il existe plusieurs composantes du réseau de logements individuels.
Entrer dans la maison.
La compagnie d'électricité est responsable du raccordement de la maison à l'électricité. Un projet d'alimentation électrique est en cours d'élaboration, des spécifications techniques sont en cours d'élaboration.
IMPORTANT
Il existe deux modes d'entrée : air (90 %), câble ou souterrain (10 %).
L'option souterraine est plus chère, plus difficile. Une tranchée est creusée de 70 à 100 cm de profondeur pour la pose des câbles. Les arbres ne sont pas situés à moins de 2 m, les buissons - à moins de 0,75 m Il est interdit de tirer le fil sous le bâtiment.
L'option aérienne lors de l'utilisation de SIP est plus facile à vérifier pour le vol. La méthode est facile à installer et à entretenir. Pour une entrée conventionnelle, en règle générale, une variante de fils d'une section de 16 mm 2 est utilisée.
Paramètres utilisés au stade de l'entrée dans la maison.
| Paramètre | Norme |
| Distance du poteau à la maison | Pas plus de 25m, avec une plus grande distance, un autre poteau est installé |
| Hauteur des fixations à la maison | Pas moins de 2,75 m |
| La distance du fil de la visière sur le toit | Pas moins de 20 cm |
| Distance du SIP aux murs vierges des structures | Pas moins de 20 cm |
| Distance du SIP aux terrasses, balcons, ouvertures de fenêtres | Pas moins de 100 cm |
Il est prévu d'exclure le contact du fil avec des éléments métalliques. La possibilité d'oscillation du fil est calculée.
Pose de compteur.
Elle pratique sur la façade de l'immeuble. Cela facilite la connexion au blindage avec un câble pratique. À travers le mur extérieur, le fil est tiré dans un tuyau métallique, ce qui exclut l'accumulation d'humidité. Le compteur doit être conforme aux spécifications. Dans le secteur résidentiel, le courant de fonctionnement n'est pas inférieur à 30 A. Les indicateurs de courant de fonctionnement, le nombre de phases et d'autres paramètres sont définis individuellement.
Tableau de distribution.
Le blindage est appelé le cœur du réseau électrique domestique d'un immeuble résidentiel. Le bouclier est verrouillé avec une clé si un compteur y est installé. Le verre est fourni pour prendre des mesures.
Conditions:
- L'emplacement du tableau (intégré ou articulé) doit être pratique, sec et non sujet aux inondations.
- Le bouclier doit être situé à au moins 1 mètre des conduites de gaz et d'eau (PUE - 7.1.28).
- Sans étanchéité, il est interdit de placer un écran au-dessus de la baignoire, de la salle de bain, de la cuisine (PUE - 7.1.29).
- Pour les murs combustibles, des boucliers ignifuges sont fabriqués.
- Des tableaux séparés peuvent être installés dans les garages, les buanderies, les ateliers et pour l'éclairage public (PUE - 7.1.22).
Depuis le tableau de distribution, l'électricité est transmise aux consommateurs via le câblage électrique.
Éléments structurels de l'ASU :
- fils triphasés ou monophasés;
- contacts pour connecter des câbles;
- interrupteur à couteau (interrupteur automatique);
- automatiques de protection (RCD);
- mise à la terre avec un fil neutre.
Un câble d'entrée traverse le blindage, l'électricité est connectée à la maison.
Distribution autour de la maison.
Le câblage est effectué avant les travaux de finition. Règles de base:
- Le câblage le long des murs (intérieur et extérieur) est posé verticalement ou horizontalement, sans entrer en contact avec des structures métalliques.
- Les interrupteurs sont installés à 60-140 cm du sol. Lorsqu'elle est ouverte, la porte n'interfère pas avec leur accès. Le fil est posé de haut en bas.
- La distance entre le sol et les prises est de 50 à 80 cm.Le fil est tiré de bas en haut. Une prise est recommandée par 6 m 2 , sans compter la cuisine. Il n'y a pas de prises dans les toilettes. Des appareils de chauffage, des cuisinières à gaz, des prises électriques, ils sont à au moins 50 cm.
- Pour les connexions filaires, des fils de distribution et une isolation soignée sont fournis.
Dans certains cas, les fils sont posés sous le plancher ou sous les dalles de plancher.
Le schéma de câblage de la maison indique l'emplacement des fils électriques, des nœuds de montage, des connecteurs d'alimentation. La cuisine, la salle de bain sont considérées comme énergivores, le salon, l'atelier sont assez spacieux. Les locaux économiques comprennent les enfants, les chambres, les salles de bains, les buanderies.
Câblage extérieur.
À l'extérieur des bâtiments, le câblage est monté par un câble ou une ligne aérienne. Une section distincte pour cela est définie dans le bouclier. Dans les parcelles de jardin, le câblage sous le sol est plus souvent pratiqué.
Lors du câblage le long de la façade, la probabilité d'accumulation d'humidité (même de rosée) est exclue. A cet effet, un système de drainage est équipé au niveau du sol.
Une fois le câblage terminé, les travaux de mise en service sont effectués, l'isolation des câbles est vérifiée.
Durée de vie du câblage
Pour savoir quand il est temps de changer le câblage électrique de la maison ou pour savoir combien d'années dureront les travaux de remplacement, vous devez connaître sa durée de vie. Les câbles et les systèmes de connexion d'aujourd'hui sont bien meilleurs qu'ils ne l'étaient il y a quelques décennies. Par conséquent, ils dureront plus longtemps. Mais tout a son temps, et même un bon câblage devra tôt ou tard être remplacé.
L'utilisation de disjoncteurs différentiels, de boîtes de distribution et de jonction, de bornes et d'autres éléments de protection contribue à prolonger la durée de vie du câblage électrique à la maison.
La gradation généralement acceptée comprend trois types différents de durée de fonctionnement du câblage électrique : durée de vie nominale, garantie et réelle. Il y a une différence entre eux :
- Nominal - il s'agit de la période pendant laquelle les facteurs de performance du système doivent être observés. Par exemple, un câble en cuivre peut fonctionner correctement pendant 30 ans si la tension ne dépasse pas 0,66 kV et la température varie de -50 à +50 degrés.
- La période de garantie est la période pendant laquelle le fabricant (ou le vendeur) est prêt à être responsable de ce câble. Par exemple, si quelque chose arrive au fil dans les 5 ans de fonctionnement dans les conditions convenues, il sera réparé ou remplacé gratuitement.
- Le terme réel est le temps de fonctionnement du système, qui ne dépend que de l'utilisateur. Elle peut être inférieure ou supérieure à la valeur nominale, selon les conditions de fonctionnement du câblage.
C'est intéressant: Installation de revêtement de sous-sol à faire soi-même
Installation de câblage à faire soi-même
Il est d'usage de commencer à poser les fils électriques immédiatement après la construction des murs et des toits. Pour ce faire, vous pouvez faire appel à un électricien ou tout faire vous-même.Si le concept d '«électricité» n'est pas quelque chose de terrible et d'incompréhensible, la deuxième option vous permettra d'économiser un peu sur la construction de votre maison. Vous avez juste besoin d'avoir des compétences de base dans la manipulation d'un perforateur, d'une pince et d'un tournevis, et n'oubliez pas non plus les mesures de sécurité appropriées.
Schéma de câblage typique pour une maison privée
Cependant, si vous avez des doutes sur votre propre compétence en la matière, il est préférable de confier l'installation du câblage électrique domestique à un professionnel. Le prix d'une erreur ici est trop élevé, un incendie né d'un court-circuit peut détruire tout le chalet. Le câblage à faire soi-même ne doit être effectué qu'avec une confiance claire dans ses propres capacités et connaissances. Dans ce cas, tous les schémas de câblage et les fils sélectionnés doivent être conformes aux règles et réglementations de l'installation électrique.
Comment calculer le câblage électrique sur le site
Sur le territoire adjacent, le long des allées, parfois même dans le jardin et le jardin fleuri, ainsi que le long du périmètre du site, il y a toujours une sorte d'éclairage. Et s'il est plus pratique pour certains propriétaires particulièrement économiques d'utiliser des lanternes et des lampes solaires décoratives, les lignes électriques sont traditionnellement étirées jusqu'aux terrains à partir de la sous-station la plus proche. Il peut s'agir d'un câble aérien ou souterrain, dans le premier cas il passe à travers les isolateurs au sommet des poteaux, et dans le second cas il passe à travers un tuyau diélectrique spécial enfoui profondément dans le sol.
En fonction de la fourniture d'électricité, il est nécessaire de calculer la poursuite de la ligne sur le site. La solution la plus simple consiste à partir de deux fils, dont l'un est en phase et le second est à zéro, parfois il peut y avoir trois fils par maison pour fournir deux phases distinctes.Une entrée quadripolaire est nécessaire s'il y a besoin d'une version triphasée, s'il y a un consommateur approprié (équipement industriel et professionnel, machine). Ce dernier type de connexion ne peut être utilisé qu'après avoir obtenu l'autorisation du fournisseur d'électricité.

Alors, concentrons-nous sur une connexion bifilaire monophasée à une sous-station, qui doit encore être étirée si vous ne voulez pas payer le travail de spécialistes. Avant de calculer le câblage électrique, il convient de noter que la longueur du câble de la ligne commune à votre site ne doit pas dépasser 25 mètres, à une distance supérieure (et en cas de vents forts dans votre région et à une distance plus courte) vous besoin de mettre un support. La hauteur de l'emplacement du câble au-dessus de la chaussée est d'au moins 6 mètres, il est souhaitable d'amener une ligne aérienne dans la maison à un niveau de 3 mètres.
À la sortie de la sous-station où se trouve le transformateur, le courant a généralement déjà une tension de 220 V. Mais les chutes dans le réseau électrique sont chose courante et il peut s'avérer que quelque 160 V vous soient fournis. le niveau de tension requis, vous devez installer un stabilisateur, ainsi que des machines qui protégeront le réseau contre les surcharges. Leurs paramètres sont indiqués en ampères, c'est-à-dire qu'ils sont proportionnels à la consommation de courant. Après avoir terminé le tableau, nous le plaçons dans un endroit où il n'y a pas d'humidité.
Les fils sont tirés vers toutes les dépendances, que ce soit une grange ou une remise d'été, cela peut se faire par avion et directement, ce sera plus économique.Il est préférable de fournir un éclairage le long des voies avec un câble souterrain, et les lumières doivent être connectées en parallèle et non en série, de sorte que l'épuisement d'une lampe n'éteigne pas l'ensemble du circuit. Nous prenons un plan, et nous y marquons une ligne aérienne reliant les bâtiments au distributeur, et un câble souterrain qui en part le long des voies (et répétant tous leurs virages). Nous mesurons le câblage résultant et multiplions sa longueur par 2, car au moins deux fils sont nécessaires (une double isolation est recommandée dans la rue), pour la phase et le zéro.
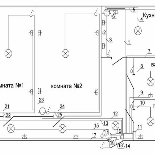
Plan et schéma du câblage électrique dans la maison. A quoi servent-ils ?
Les plans de câblage peuvent sembler différents. Le plus souvent ils se présentent sous la forme d'un schéma électrique appliqué au réseau :

Le plus souvent, les acheteurs de logements dans de nouveaux immeubles à plusieurs étages: appartements, maisons de ville sont confrontés au problème de l'absence de plan et de schéma de câblage. Quant aux propriétaires de maisons privées, ils disposent généralement de ces documents.
Que doivent faire les locataires d'immeubles à appartements ? Vous pouvez contacter le service du logement, mais la meilleure option est lorsque le schéma est établi directement par vous ou avec l'aide de spécialistes.
Pour établir correctement un schéma de câblage, vous devez disposer d'un certain nombre de connaissances, ainsi que d'au moins les informations de base sur l'électrotechnique. Si vous ne possédez pas de telles connaissances ou compétences, il est préférable d'inviter un spécialiste. Les électriciens pourront établir rapidement un plan détaillé qui tiendra compte de toutes les caractéristiques de votre maison, appartement ou maison de ville. De plus, les professionnels, si nécessaire, pourront remplacer un ancien câblage ou un dysfonctionnement existant.

Si vous avez une idée de ce que vous rencontrerez lors de l'élaboration d'un schéma, ou lors du développement d'un projet, ainsi que lors de l'exécution de travaux dans un système électrique, vous devez considérer qu'il existe plusieurs options pour connecter l'électricité circuits.
Voici les moyens :
- Cohérent;
- Parallèle;
- Mixte.
Avec une méthode séquentielle, la pose du câblage électrique dans une maison ou un appartement est très simple : chaque élément du circuit suivra le précédent. Cette méthode se caractérise par l'absence de toute connexion nodale.
Un exemple d'une telle connexion est une guirlande de sapin de Noël, où tous les éléments sont concentrés sur un seul fil. Certes, cette méthode de câblage a un sérieux inconvénient - si un élément est endommagé, le circuit est complètement éteint.

La méthode parallèle implique que lorsqu'elle est allumée, toutes les parties du circuit ne sont pas connectées les unes aux autres, car elles sont connectées en deux nœuds. Le principal avantage de cette méthode est la poursuite du fonctionnement du câblage électrique, même si l'un des éléments tombe en panne.
Dans la méthode mixte, les deux types de connexions sont utilisés dans une section de la chaîne.
Il est très important d'aborder le choix de la méthode de câblage avec une grande responsabilité, car cela déterminera la stabilité de l'alimentation électrique dans les locaux de la maison. Le nombre de prises dans les chambres est déterminé en fonction des souhaits des résidents. Mais vous devez vous rappeler qu'un seul point d'accès au réseau ne suffira pas
Raccordement du téléviseur, climatiseur, lampes, chargeurs prévoir au moins trois prises dans chaque pièce pour éviter l'utilisation de rallonges et de tés
Mais vous devez vous rappeler qu'un seul point d'accès au réseau ne suffira pas. Raccordement du téléviseur, climatiseur, lampes, chargeurs prévoir au moins trois prises dans chaque pièce pour éviter l'utilisation de rallonges et de tés
Le nombre de prises dans les chambres est déterminé en fonction des souhaits des résidents. Mais vous devez vous rappeler qu'un seul point d'accès au réseau ne suffira pas. Branchement d'un téléviseur, d'un climatiseur, de lampes, de chargeurs Prévoir au moins trois prises dans chaque pièce pour éviter l'utilisation de rallonges et de tés.

Le câblage électrique dans la maison doit avant tout être fiable. Puisque la question du confort peut être ajustée, mais pas la sécurité. Sauf si vous devez remplacer le câble et les accessoires, ce qui entraînera des coûts supplémentaires en argent et en temps.
Par conséquent, cela ne vaut pas la peine d'économiser dans ce domaine - il est préférable d'utiliser uniquement un équipement de haute qualité et d'engager des électriciens professionnels.
Installation de câblage électrique dans une maison en bois
L'installation d'un câble électrique dans une maison privée nécessitera des mesures de sécurité particulières, surtout si la maison est en bois. Le câblage dans une telle habitation est réalisé en tenant compte des exigences suivantes : Des fils et des câbles auto-extinguibles avec une excellente isolation sont utilisés. Les coffrets de distribution et d'installation doivent être en métal.
Toutes les connexions sont scellées. Le câblage exposé ne doit pas entrer en contact avec les murs et les plafonds. Il peut être monté à l'aide d'isolateurs en porcelaine. Le câblage caché est effectué à travers des tuyaux métalliques (cuivre), des boîtes en acier sans faute avec mise à la terre.
Lors de l'utilisation d'ondulations et de boîtes en plastique, elles sont montées dans du plâtre.Ce type d'installation est plus sûr et plus esthétique. Une étape supplémentaire pour améliorer la sécurité d'une habitation en bois est l'installation d'un RCD (relais différentiel) qui réagit aux fuites de courant et aux courts-circuits en éteignant la machine.
Conclusions et vidéo utile sur le sujet
Vous pouvez établir un schéma de câblage sous la forme d'un dessin fait à la main ou à l'aide d'un programme informatique. Un exemple de câblage pour un appartement dans une image informatique en trois dimensions:
Conseils professionnels de praticiens :
Les subtilités des différents types de connexion des prises et interrupteurs :
Il est possible de conduire un réseau électrique dans un appartement, en protégeant tous les appareils et en répartissant correctement la charge, à une condition - si vous êtes un électricien qualifié.
Il n'est pas possible de travailler sur le standard sans autorisation spéciale. Par conséquent, vous pouvez changer la prise ou connecter la hotte vous-même, et il est préférable de confier des travaux plus sérieux à des spécialistes.
Vous souhaitez partager votre expérience personnelle dans l'élaboration d'un schéma de modernisation ou de réparation de lignes électriques dans un appartement ? Vous avez des questions ou des conseils précieux ? Veuillez écrire vos commentaires dans la case ci-dessous.

































