- Service
- Critères de sélection, types et éléments de ventilation dans un immeuble à appartements
- Schémas du système
- Systèmes de ventilation pour les bâtiments résidentiels
- Problèmes et solutions
- Lorsque vous devez changer le système naturel en système forcé
- Qui doit nettoyer les conduits de ventilation dans les bâtiments à plusieurs étages
- Paiement des travaux de nettoyage
- Modèle de lettre pour le nettoyage de la ventilation
- Installer un ventilateur dans la salle de bain et les toilettes
- L'ordre de fonctionnement de la ventilation sur l'exemple d'un projet type
- Définition
- Le principe de fonctionnement et les options de ventilation
- Organisation de la circulation de l'air dans l'appartement
Service
Pendant le fonctionnement, tout système de ventilation se bouche inévitablement. La poussière de la rue, les particules de graisse de la cuisine, les déchets de construction, etc. peuvent y pénétrer. La grille de ventilation de l'appartement peut également se boucher.
Il est facile de vérifier le niveau de tirage dans la gaine du conduit de ventilation. Il suffit de rapprocher la flamme d'une allumette ou d'un briquet allumé de la grille.
Lorsque tout est en ordre avec le brouillon, le feu commencera à trembler et se précipitera sensiblement vers la mine. Si cela ne se produit pas, retirez la grille et répétez le test à nouveau.
Si à nouveau la flamme reste immobile, l'arbre doit être nettoyé.
C'est important! Le feu doit être manipulé avec précaution - une flamme nue peut faire fondre une grille en plastique et même enflammer des accumulations de poussière dans une mine fortement bouchée. Une autre façon de déterminer le colmatage consiste à appliquer une fine feuille de papier ou de tissu sur l'évent. Une ventilation fonctionnant correctement devrait maintenir la feuille en place sans aucun problème.
Une ventilation fonctionnant correctement devrait maintenir la feuille en place sans problème.
Parfois, la flamme dévie complètement dans l'autre sens, signalant la présence d'une poussée inverse - un phénomène désagréable qui contribue à la pénétration dans l'appartement de l'air pas le plus sain et pas des odeurs les plus agréables de la gaine de ventilation. Pour éviter cela, l'installation de grilles avec un clapet anti-retour qui permet à l'air de circuler dans une seule direction aidera à éviter cela.
Le nettoyage complet et efficace des gaines de ventilation dans les bâtiments à plusieurs étages n'est effectué que par des organisations professionnelles dotées d'équipements spéciaux: collerettes pneumatiques avec poids, poids spéciaux, équipement vidéo et autres appareils. Il est recommandé d'effectuer une procédure similaire au moins une fois tous les 3 à 5 ans. En plus du nettoyage mécanique, une désinfection est effectuée.
Il est presque impossible de nettoyer vous-même la gaine de ventilation. Tout ce qui peut être fait depuis l'appartement est de nettoyer le canal de haut en bas à bout de bras.
Critères de sélection, types et éléments de ventilation dans un immeuble à appartements
La présence de certains éléments ne dépendra directement que du type de système. Mais, quelle que soit l'option choisie, il contiendra les composants obligatoires suivants :
- canaux aériens;
- conduit de ventilation;
Peu importe le type, il s'agira forcément d'une alimentation et d'un échappement. En conséquence, il est nécessaire d'assurer non seulement la hotte, mais également l'arrivée dans le même volume.
Selon le type d'initiation de poussée, ces systèmes sont généralement divisés en:
- naturel - le courant d'air apparaît en raison de la différence de température et de pression dans la rue et dans la pièce;
- combiné - l'échappement ou l'injection est effectué électromécaniquement;
- forcé - le tirage et l'injection se produisent à l'aide de ventilateurs spéciaux et d'autres dispositifs.
Si la ventilation naturelle des bâtiments résidentiels est utilisée dans un bâtiment à plusieurs étages, la présence d'un puits de ventilation est obligatoire.
Schéma d'un puits de ventilation de maison typique
Les exigences pour son agencement sont simples et les mêmes pour tous les bâtiments:
- étanchéité;
- le débit correspond au volume de conception ;
- respect des normes sanitaires et hygiéniques;
- la sécurité incendie.
De plus, selon le schéma d'échange d'air, le système peut être à mélange ou à déplacement. La première méthode est typique pour les murs impénétrables avec pare-vapeur. L'afflux passe par les trous de ventilation et diverses fentes. En raison de la vitesse initiale relativement élevée, l'air frais extérieur est mélangé à l'air pollué. Avec une mauvaise organisation des flux, il sera difficile d'extraire ainsi de l'air pollué par des impuretés.
Pour sélectionner le type de ventilation, tous les facteurs doivent être pris en compte, tels que :
- nombre d'étages;
- emplacement par rapport aux autres structures ;
- le niveau de bruit extérieur ;
- pollution environnementale.
Pour les maisons avec un emplacement intra-quartier et un bruit jusqu'à 51 dBA, il est recommandé d'installer une ventilation naturelle.Si le bâtiment est situé dans une zone particulièrement polluée, ou si le niveau sonore est supérieur à 51 dBA, il est nécessaire d'utiliser un système d'alimentation en air et il est souhaitable de procéder à une filtration.
Schémas du système
C'est très bien lorsque la ventilation est disposée dans une maison à panneaux avec des conduits d'évacuation individuels. C'est-à-dire qu'un puits séparé mène au toit depuis la cuisine, les toilettes et la salle de bain à chaque étage.
Ensuite, il n'y a pas de débordement d'odeurs des voisins, le tirage est plus stable et n'a pas tendance à basculer. Une autre option - les canaux verticaux de tous les appartements sont collectés dans un collecteur horizontal situé dans le grenier, et à partir de là, l'air pénètre dans la rue.
La figure ci-dessous montre différentes manières d'organiser un schéma de ventilation d'une maison à panneaux :
La méthode la plus malheureuse est illustrée dans l'option «b», où un petit canal sort de chaque appartement - un satellite qui entre plus haut dans un puits vertical commun. Cette méthode vous permet d'économiser la surface utile des pièces et est peu coûteuse à mettre en œuvre, mais pendant le fonctionnement, elle crée beaucoup de problèmes pour les personnes vivant dans la maison.
Le plus courant d'entre eux est le flux d'odeurs d'un appartement à l'autre. Plus clairement, un tel dispositif de ventilation est illustré sur l'image:
Les méthodes "c" et "d" se retrouvent dans les maisons à panneaux avec un petit nombre d'étages, ayant un grenier. Ils ne peuvent pas non plus être qualifiés de parfaits, car dans le premier cas, le collecteur crée une résistance supplémentaire à la traction, et dans le second, toutes les odeurs des appartements sont collectées dans le grenier.
Opinion d'expert
Makarov Igor Tarassovitch
Conseiller juridique avec 8 ans d'expérience. Spécialisation - droit pénal. Vaste expérience dans la revue de documents.
Par conséquent, les meilleures options sont les systèmes de ventilation modernes avec alimentation et évacuation mécaniques de l'air.Ceux-ci sont utilisés dans les maisons neuves, un exemple est illustré ci-dessous :
Il y a une unité d'approvisionnement située au sous-sol et fournissant de l'air purifié et chauffé (ou refroidi) à toutes les pièces. Un ventilateur d'extraction de la même capacité est situé sur le toit du bâtiment, qui élimine régulièrement le mélange d'air pollué des appartements.
C'est le schéma le plus simple: la ventilation dans un bâtiment à plusieurs étages peut également être organisée à l'aide d'équipements économes en énergie - des récupérateurs. Leur tâche est de prélever la chaleur (ou le froid) de l'air évacué et de la transférer à l'air soufflé.
Systèmes de ventilation pour les bâtiments résidentiels
Selon les plans de construction, la ventilation peut avoir une conception complètement différente. Dans cette section, nous essaierons de comprendre comment la ventilation est disposée dans une maison à panneaux sur les schémas et parlerons du degré d'efficacité de l'un ou l'autre type de sa mise en œuvre.

Dans ce cas, les gaines de ventilation ne sont pas interconnectées, le tirage à l'intérieur du tuyau s'améliore et l'air pollué des appartements voisins ne pénètre pas dans la maison. Une autre variante d'un tel système de ventilation à Khrouchtchev est que de chaque appartement, des canaux séparés mènent au toit, où ils sont connectés en un seul tuyau qui amène les masses d'air dans la rue.
Malheureusement, on utilise assez souvent la méthode de ventilation la plus simple, mais inefficace, dans laquelle l'air de tous les appartements pénètre dans un seul grand puits - tout comme la ventilation est organisée à Khrouchtchev. Cela vous permet d'économiser de l'espace et des coûts lors de la construction du bâtiment, mais cela a de nombreuses conséquences désagréables:
- l'apport de poussière et d'odeurs désagréables provenant d'autres appartements - les résidents des étages supérieurs y sont particulièrement sensibles, où l'air monte naturellement;
- contamination rapide du tuyau de ventilation commun;
- manque d'isolation phonique.

Il existe plusieurs autres façons d'évacuer l'air par les conduits de ventilation - avec des canaux horizontaux dans le grenier et la sortie du tuyau vers le grenier sans cheminée. Dans le premier cas, les conduits d'air horizontaux réduisent le courant d'air, et dans le second cas, le grenier est pollué en raison de l'absence de débouché sur la rue. Le système de ventilation de Khrouchtchev et d'autres bâtiments de style soviétique, bien que budgétaire, est gênant pour les résidents.

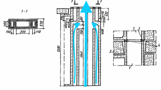
Schémas de principe de quelques systèmes de ventilation naturelle de bâtiments résidentiels : (a) - sans conduits préfabriqués ; (b) - avec des canaux de collecte verticaux ; (c) - avec des canaux de collecte horizontaux dans le grenier ; (d) - avec un grenier chaleureux
Heureusement, il existe un système de ventilation moderne qui aspire et fournit automatiquement de l'air. Sa conception comprend un ventilateur qui pompe l'air dans la mine. Il est généralement situé au sous-sol du bâtiment. Sur le toit de la maison, il y a une ventilation par aspiration de la même puissance, qui élimine avec force les masses d'air polluées du conduit d'air. C'est le schéma de ventilation le plus simple dans un immeuble. Il peut également être organisé avec l'utilisation d'équipements économes en énergie - les récupérateurs. La tâche de l'échangeur de chaleur est de prélever la chaleur (ou le froid) de l'air évacué et de la transférer à l'air soufflé.

Les puits de ventilation, en règle générale, proviennent du sous-sol d'un bâtiment à plusieurs étages, assurant en outre sa protection contre l'humidité et les fumées. La ventilation du sous-sol est assurée par tirage naturel et, dans les maisons modernes, des unités d'alimentation en air sont également installées ici.Pour éliminer l'air brut du sous-sol, des puits de ventilation communs sont utilisés, qui sortent par des ouvertures à chaque étage et dans chaque appartement.
L'aération du sous-sol, lieu où débute le système de ventilation naturelle, est l'une des principales conditions de son bon fonctionnement. Pour ce faire, des trous sont percés dans les murs du sous-sol à travers lesquels l'air frais pénètre dans le sous-sol. Cela réduit non seulement l'humidité à la base de la maison, mais crée également une traction dans la mine de la maison commune.
La forme des trous peut être simple - ronde ou carrée. Ils doivent être situés à une distance suffisante au-dessus du sol pour que l'eau et la saleté de la rue ne pénètrent pas à l'intérieur. La distance optimale du sol est d'au moins 20 cm.Les trous doivent être placés uniformément autour du périmètre du sous-sol, s'il y a plusieurs pièces, il est nécessaire d'organiser plusieurs conduits d'air dans chacun. Les évents ne doivent pas être fermés, sinon tout le principe de la ventilation d'un immeuble sera violé. Dès la pénétration dans le sous-sol des animaux, les trous sont recouverts d'un treillis métallique.
Problèmes et solutions
Les problèmes des systèmes de ventilation de Khrouchtchev sont typiques de tous les immeubles d'appartements avec une méthode de ventilation naturelle:
- Tirage inversé : la pression à l'intérieur est plus faible qu'à l'extérieur. Il est éliminé en installant des ventilateurs d'alimentation supplémentaires ou un système de micro-ventilation pour les fenêtres en plastique.
- Problèmes avec les bouches d'aération bouchées. Deux solutions s'offrent à vous : le nettoyer vous-même ou contacter un organisme spécialisé.
Conduit de ventilation sale Parfois, le courant d'air de la salle de bain disparaît lorsque les locataires ferment la fenêtre de ventilation entre les pièces ou installent une structure en plastique sans imposte, mais cela est strictement interdit.La connaissance de la façon dont la ventilation est organisée aide à ne pas commettre de telles erreurs.
- Faible intensité de tirage : gaine de ventilation en toiture de hauteur insuffisante. Il est résolu de manière « folklorique » : en installant un tuyau en plastique d'un diamètre de 100 à 200 mm, à une hauteur de 2 500 à 3 000 mm au-dessus du toit.
Lorsque vous devez changer le système naturel en système forcé
Ventilation dans l'appartement dans le panneau la maison lors de l'occupation est naturel : l'air frais entre dans la pièce par les fenêtres et les portes et est évacué dans la rue par le conduit principal. Une exception est la ventilation des étages supérieurs. Et il arrive qu'elle ne puisse pas faire face à la purification de l'air. Ensuite, des ventilateurs supplémentaires sont installés. La ventilation dans un bâtiment à panneaux de 9 étages au dernier étage est réalisée à l'aide de gaines individuelles, sans raccordement au canal principal.
Les bâtiments modernes "ne respirent pas", ce qui signifie que le schéma de ventilation d'un appartement particulier doit être revu
Qui doit nettoyer les conduits de ventilation dans les bâtiments à plusieurs étages
La ventilation est le même système général du bâtiment que la plomberie, l'électricité, les gazoducs, les ascenseurs, etc. Le nettoyage est effectué par la société de gestion ou l'association des propriétaires dans un immeuble à appartements.
Les propriétaires recherchent les services d'autres organisations responsables de la gestion de la ferme. Les conduits d'aération sont nettoyés régulièrement - selon un plan ou à la demande des résidents.
Les professionnels tiennent compte de la taille et des matériaux à partir desquels les canaux sont créés. L'équipement de nettoyage de la ventilation diffère en termes de puissance et de configuration.
Méthodes de nettoyage :
- Mécanique, avec l'utilisation d'aspirateurs et d'appareils à brosse.
- Chimique, dans lequel des réactifs chimiques sont pulvérisés dans les conduits d'air.
- La neige carbonique est utilisée pour le nettoyage cryogénique de la ventilation dans un immeuble à appartements.
Outils et consommables :
- Brosses pour nettoyage mécanique.
- Corde souple de 6 m de long.
- Volants avec brosses métalliques.
- Brosseuse.
- Aspirateur avec tuyau flexible.
- Générateur de vapeur et dispositif de pulvérisation.
- Un ensemble d'outils pour nettoyer la graisse.

Les vieilles maisons et les conduits de ventilation envahis ne permettent pas toujours de réparer un simple nettoyage mécanique.
Un dispositif d'inspection vidéo numérique est utilisé.
Paiement des travaux de nettoyage
Le coût du nettoyage est affecté par la complexité des travaux effectués et d'autres facteurs :
- Accès aux conduits de ventilation.
- La quantité de saleté.
Le prix de base est calculé pour 1 m². M. le mien.
Prix:
- Contrôle visuel - 5000 roubles.
- Nettoyage mécanique de la saleté - 170 roubles.
- Nettoyage de surface à partir de graisse - 750 roubles.
- Examen microbiologique des échantillons - 1500 roubles. pour 1 lavage.
- Désinfection - 50 roubles.
Modèle de lettre pour le nettoyage de la ventilation
Il s'agit d'une déclaration sur une violation des normes de fourniture de services publics à la population. L '«en-tête» du document indique le nom du responsable de l'organisation fournissant des services de nettoyage du conduit d'évacuation et les données du demandeur. Selon les règles, la société de gestion doit maintenir la ventilation et les cheminées en bon état.
Le texte de la demande contient l'adresse et un message indiquant que l'organisation ne respecte pas les dispositions du Code du logement de la Fédération de Russie et ne fournit pas l'intégralité des services publics. L'information est en cours de clarification que le conduit d'évacuation ne fonctionne pas dans l'appartement.
Installer un ventilateur dans la salle de bain et les toilettes
Le dispositif de ventilation dans la maison à panneaux prévoit également l'installation d'un ventilateur supplémentaire dans la salle de bain et les toilettes. Dans le même temps, il est nécessaire d'assurer son afflux à travers les fentes de la porte, et la quantité d'air évacué et entrant doit être la même.
Selon les normes sanitaires, l'échange d'air dans la salle de bain et les toilettes doit se produire au moins 8 fois / heure, c'est-à-dire que l'air en une heure doit changer complètement huit fois dans la pièce. Lors du choix d'un ventilateur de salle de bain, vous devez être guidé par:
- puissance de l'équipement ;
- la présence de bruit provenant de l'appareil.
- dessin et couleurs.
- la présence de fonctions supplémentaires.
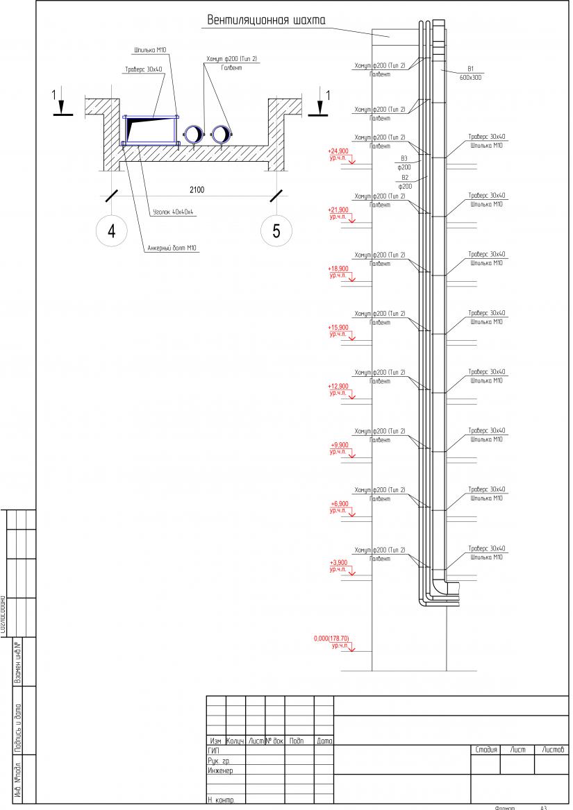
L'ordre de fonctionnement de la ventilation sur l'exemple d'un projet type
Le projet de panneaux le plus courant est un bâtiment de neuf étages. Le principe de fonctionnement de la hotte est le même pour eux.
L'air de la rue, à travers les fenêtres et les fissures, pénètre dans l'appartement. L'extraction se fait par des conduits de ventilation satellites dans la cuisine ou la salle de bain.
Un, moins souvent plusieurs canaux de la hotte sont amenés au tuyau principal. Ces canaux sont reliés au puits principal par deux étages.
Ces arbres sont assez encombrants et prennent beaucoup de place. Un tel système sera très probablement équipé d'une maison à grands panneaux.
Un tel schéma pour une maison de 9 étages suggère la présence d'un grenier chaleureux. La sortie des 8e et 9e étages va directement dans l'atmosphère, en contournant le canal commun. Le schéma d'un bâtiment de 9 étages a été conçu sur la base de l'absence totale de vent et d'une température de l'air extérieur de +5.
Malgré le fait que la ventilation naturelle dans de telles maisons n'est pas très efficace, elle ne nécessite presque aucun entretien, les blocages se produisent rarement. Il y a eu des cas où les conduits de ventilation ont été obstrués par des matériaux de construction lors de la construction de la maison.
Une telle surprise a ensuite affecté la qualité de la hotte. Le plus souvent, le nettoyage de la mine est nécessaire une fois tous les 5 à 6 ans.
Pendant les réparations, de nombreuses personnes bloquent le flux d'air à un endroit. Par ignorance, ils pensent que cela n'affectera pas la hotte, mais le processus de renouvellement de l'air dans l'appartement est entravé ou s'arrête complètement.
Les actions les plus courantes qui entraînent des interférences et des dysfonctionnements dans la ventilation naturelle sont :
- installation de fenêtres en plastique scellées;
- portes intérieures avec joint;
- installation de divers ventilateurs dans la hotte.
Afin de ne pas perturber le fonctionnement du tirage de ventilation naturelle, il est interdit d'obstruer l'entrée et la sortie d'air. Pour les fenêtres en plastique, il est nécessaire d'installer des entrées d'air ou d'organiser séparément une entrée externe. Les portes entre les chambres sont équipées de barreaux en bas. La section transversale du conduit d'évacuation ne doit pas être bloquée par des ventilateurs.
Opinion d'expert
Makarov Igor Tarassovitch
Conseiller juridique avec 8 ans d'expérience. Spécialisation - droit pénal. Vaste expérience dans la revue de documents.
Le schéma de ventilation dans un bâtiment à plusieurs étages est posé au moment de la construction. Sa conception comporte plusieurs étapes. La ventilation des immeubles à appartements est une exigence obligatoire des normes sanitaires.
Une exigence obligatoire des normes sanitaires est l'arrangement systèmes de ventilation dans les immeubles d'habitation Maisons
Définition
Les Khrouchtchev sont des immeubles d'appartements construits selon un projet standard du début des années 50 au début des années 80. Le nom a été donné par le nom du secrétaire général du parti Nikita Sergeevich Khrouchtchev. Il existe trois options de solutions constructives: les maisons en briques, en panneaux et en gros blocs ne dépassant pas 5 étages. Le nombre d'étages est limité en raison de l'absence d'ascenseur.Le style architectural d'exécution s'appelait "fonctionnalisme".
La plupart des maisons ont été construites à partir de panneaux de grande taille, cela est dû à la rapidité et au coût d'installation. La série 447 la plus courante, la plupart des villes de l'Union soviétique ont été construites avec. Il dispose d'une fenêtre unique entre la salle de bain et la cuisine.
Presque toutes les maisons en série étaient équipées d'un geyser, ce qui se reflétait dans la conception du système de ventilation.
Le principe de fonctionnement et les options de ventilation
L'afflux d'air extérieur dans les locaux passe par des porches ou des canaux de fenêtre lâchement adjacents et des vannes prévues à cet effet dans les fenêtres à double vitrage en métal-plastique.
La hotte est réalisée à travers des puits verticaux (en règle générale, ils passent dans les salles de bains et dans les cuisines), allant de l'appartement au toit ou au grenier. En raison de la différence de température entre l'intérieur et l'extérieur, un courant d'air se produit dans la mine, ce qui assure la circulation de l'air.
Le flux d'air frais se déplace dans les pièces, se mélangeant progressivement aux masses d'air évacué, après quoi il est évacué de la pièce par les conduits d'évacuation.
Si le flux d'air est bloqué, la circulation normale de l'air dans l'appartement devient impossible.
Les actions suivantes entraînent une interruption de ce processus :
- Installation de cadres de fenêtres aveugles.
- Installation de portes sans espace entre le sol et le vantail de la porte.
- Portes intérieures fermées en permanence.
- Installation de ventilateurs à allumage périodique aux entrées des gaines de ventilation.
Bien sûr, cela ne devrait en aucun cas être une raison pour refuser les portes intérieures ou les fenêtres en plastique pratiques.Pour un échange d'air normal, il suffit d'installer des grilles de trop-plein dans les vantaux des portes, d'insérer des vannes spéciales dans les fenêtres et, lors de l'installation des ventilateurs, de s'assurer qu'ils ne bloquent pas complètement le conduit d'évacuation.
Le mauvais fonctionnement du système de ventilation est mis en évidence par la formation de condensat sur les murs, les fenêtres embuées et la formation de moisissures.
Pour les immeubles à appartements, plusieurs options de ventilation sont autorisées :
- De chaque pièce de chaque appartement, un puits séparé va au toit. La méthode est pratique car les odeurs des voisins ne pénètrent en aucun cas dans l'appartement. La traction est également plus forte et plus stable ici. Les développeurs utilisent rarement cette méthode, car sa mise en œuvre nécessite un grand nombre de tuyaux et des coûts de main-d'œuvre supplémentaires. De plus, dans les bâtiments à plusieurs étages, un tel système de ventilation nécessitera trop d'espace.
- Les conduits d'évacuation des pièces individuelles se dirigent vers un conduit de collecte commun dans le grenier, d'où il est conduit dans la rue. Avec un diamètre insuffisant du conduit de ventilation, les masses d'air d'échappement peuvent pénétrer dans les pièces situées aux étages supérieurs. Pour cette raison, les étages supérieurs sont souvent reliés directement à la gaine, en contournant le collecteur de boîtes.
- Les conduits de ventilation mènent directement au grenier, qui agit comme une sorte de chambre de ventilation intermédiaire. De là, à travers le canal de collecte, l'air évacué va dans la rue. Ce n'est pas un moyen très pratique, car non seulement toutes sortes d'odeurs s'accumulent dans le grenier, mais aussi une abondance d'air humide. Cela entraînera la formation de condensation, l'apparition de moisissures et la destruction accélérée des matériaux de construction.Pour réduire les condensats, les canaux doivent avoir une bonne isolation thermique.
- Structure arborescente du système de ventilation. Les petits canaux des pièces individuelles conviennent à un puits vertical commun. La méthode est économique, et donc la plus courante. Le principal problème de cette solution est que si le tirage est perturbé, les odeurs d'un appartement pénètrent dans les appartements voisins.
Organisation de la circulation de l'air dans l'appartement
Considérez comment l'air circule dans un seul appartement sans installer d'échangeurs d'air supplémentaires. Comme mentionné ci-dessus, l'air frais pénètre par toutes sortes de fentes et d'espaces de fenêtre, ainsi que par les portes - portes entrouvertes et espaces en dessous.
Le diagramme montre clairement la direction du mouvement de l'air. Il pénètre par les fenêtres ou les portes des pièces d'habitation et se dirige vers les bouches d'aération.
La vie confortable dans les appartements se caractérise par un certain nombre de facteurs, notamment la fréquence des échanges d'air et le volume d'air régulièrement renouvelé. Il existe des règles régissant la circulation des flux d'air.
Tableau des taux de change d'air adapté pour un immeuble à appartements. Le changement d'air doit être plus actif là où il y a une forte humidité, c'est-à-dire dans la cuisine et dans les salles de bain.
Dans les bâtiments anciens, les gaines de ventilation ne fonctionnent pas toujours à 100 %, et cela peut être vérifié de manière simple. Il est nécessaire de prendre une feuille de papier et de la fixer au trou de ventilation technique. Si le papier n'est pas retenu par la force de traction et tombe, la ventilation naturelle est interrompue.
Au lieu d'une feuille, vous pouvez utiliser une bougie allumée ou une allumette. Par le mouvement de la langue de la flamme, il devient clair s'il y a un courant d'air de la pièce vers l'extérieur.
Les problèmes de ventilation affectent négativement le bien-être des personnes vivant en appartement. Le manque d'air frais provoque une somnolence malsaine, de la fatigue, des maux de tête.
Les personnes atteintes de maladies du cœur et du système respiratoire y sont particulièrement sensibles. Ils veulent constamment garder les bouches d'aération et les fenêtres ouvertes, ce qui entraîne un refroidissement brutal des locaux et, par conséquent, une augmentation du nombre de rhumes.
Vous pouvez augmenter l'efficacité du système d'évacuation naturelle en utilisant l'appareil le plus simple - un ventilateur installé dans la sortie de ventilation de la salle de bain
Si une hotte régulièrement allumée est installée au-dessus du poêle avec une sortie d'air vers la gaine de ventilation, cela contribuera également au changement rapide des masses d'air dans la cuisine et les pièces adjacentes.
Si vous le souhaitez, les résidents peuvent organiser indépendamment le flux d'air. Pour cela, une ventilation ordinaire et des dispositifs mécaniques et techniques spéciaux sont utilisés.
Galerie d'images
Photo de
Vous pouvez aérer rapidement et complètement l'appartement en ouvrant les châssis des fenêtres. Cependant, cette méthode n'est reconnue efficace que pendant la saison chaude. Par temps froid, cela perturbera l'équilibre de la température dans les pièces.
Pour rendre l'échange d'air plus productif, il est préférable d'utiliser des volets pour la ventilation. L'air frais ne pénètre pas sur toute la hauteur de la fenêtre, mais dans la zone supérieure - il est donc réparti plus uniformément dans les pièces
Pour que l'air puisse circuler librement sans ouvrir régulièrement les évents, des vannes d'alimentation sont intégrées dans la conception des fenêtres en plastique. Ils ne gâchent pas l'apparence des fenêtres et ne créent pas de courants d'air.
Pas tout le monde les systèmes fractionnés ont la capacité fournir de l'air à la pièce depuis la rue.La plupart d'entre eux fonctionnent uniquement en mode refroidissement/chauffage. Lors du choix, vous devez rechercher des modèles avec un afflux d'air purifié
Les fenêtres ouvertes sont un moyen traditionnel de rafraîchir l'atmosphère de votre maison.
Fenêtres entrouvertes et châssis de fenêtres en plastique à double vitrage
Fournir des vannes domestiques sur les fenêtres en plastique
Systèmes split avec transport d'air frais jusqu'à 15%
Les vannes sont installées non seulement sur les fenêtres à double vitrage, mais également dans les murs, le plus souvent sous les fenêtres, à proximité des appareils de chauffage. L'air de la rue pénètre dans la pièce par un petit trou de 5 à 10 cm de diamètre et est chauffé par la chaleur d'un radiateur ou d'un convecteur.
Il existe des modèles automatiques sensibles aux changements de température et d'humidité : dès que les paramètres dépassent la norme, l'aération se produit.
Mais le système d'alimentation centralisé de type canal est reconnu comme plus parfait. Vous ne pouvez l'installer vous-même que dans une maison privée, car dans les immeubles de grande hauteur, des services spéciaux sont impliqués dans des systèmes de cette ampleur.
Les conduits d'air et les appareils d'alimentation en air / chauffage sont situés au-dessus des locaux, dans les plafonds, traversent les murs, ils sont donc installés pendant le processus de construction.
La ventilation des conduits d'alimentation est équipée dans les nouveaux bâtiments de la classe dite d'élite. L'une des conditions d'installation est la hauteur sous plafond, qui permet une installation sans endommager l'intérieur.
Comme vous pouvez le voir, l'absence d'un système de ventilation naturelle bien établi peut être partiellement compensée par l'installation d'appareils supplémentaires. Il n'y a qu'un seul inconvénient - des dépenses ponctuelles supplémentaires pour l'achat d'appareils et des appareils réguliers - pour payer l'électricité.



































