- Réglage du débit du fluide de travail. Que rechercher lors de l'achat?
- Disposition de l'unité de pompage et de mélange
- Éléments pour l'assemblage
- Types d'unités de mélange
- Avec raccords pour les circuits de connexion
- Avec robinets intégrés
- avec vannes de régulation
- Matériaux et outils
- Comment choisir une vanne à trois voies
- Pourquoi vous devez utiliser une unité de mélange
- Le concept général de l'unité de mélange
- Pourquoi cette conception est-elle importante ?
- Comment fonctionne l'unité de mélange
- Schémas des unités de mélange
Réglage du débit du fluide de travail. Que rechercher lors de l'achat?
Le réglage manuel s'effectue au moyen d'un robinet à tournant sphérique classique. Visuellement, il ressemble beaucoup à une simple vanne, mais possède une sortie supplémentaire. Une armature de ce type est utilisée pour la commande manuelle forcée.
En ce qui concerne le réglage automatique, une vanne à trois voies spéciale est utilisée ici, équipée d'un dispositif électromécanique pour changer la position de la tige. Il doit être relié à un thermostat afin de pouvoir régler la température dans la pièce.
N'oubliez pas que lors de l'achat d'une vanne, il est impératif de prendre en compte les paramètres techniques de l'appareil, qui comprennent les éléments suivants
- Diamètre de raccordement au réseau de chauffage.Souvent, cet indicateur varie de 2 à 4 centimètres, bien que cela dépende en grande partie des caractéristiques du système lui-même. Si l'appareil d'un diamètre approprié n'a pas pu être trouvé, vous devrez utiliser des adaptateurs spéciaux.
- La possibilité d'installer un servo variateur sur une vanne à trois voies, le principe de fonctionnement est envisagé au début de l'article. Grâce à cela, l'appareil pourra fonctionner automatiquement. Ce moment est très important si l'appareil est sélectionné pour fonctionner dans des "planchers chauds" de type eau.
- Enfin, c'est le débit du pipeline. Ce concept fait référence au volume de liquide qui peut le traverser en un certain temps.
Disposition de l'unité de pompage et de mélange
Chaque fabricant propose ses propres solutions de conception pour les mitigeurs pour chauffage au sol. Cependant, les unités prêtes à l'emploi, en particulier celles importées, sont assez chères, alors qu'un tel appareil peut être assemblé indépendamment d'éléments individuels. Comment faire une telle option budgétaire, nous décrirons plus loin, sur la base de l'option avec une vanne à trois voies.
Éléments pour l'assemblage
Achetez tous les composants nécessaires pour assembler le nœud.

Ce qui est nécessaire pour assembler l'unité de mélange
Les principaux détails du contour dans une pièce de 20 mètres carrés:
- pompe de circulation d'une capacité de 15/4 ;
- deux collecteurs à température contrôlée ;
- vanne mélangeuse ;
- deux clapets anti-retour ;
- raccords avec écrou-raccord (généralement 16x2);
- couplages avec la transition vers le rayon extérieur et intérieur;
- linge de plomberie pour sceller les joints;
- Mastic silicone Unipak.

Collecteur de chauffage au sol
Les dimensions des raccords de raccordement sont choisies en fonction de la puissance du système et du diamètre de la canalisation.
Table. Instructions de montage étape par étape.
Étapes, photo
Descriptif des actions
Étape 1
Il y a une flèche sur la vanne mélangeuse qui indique le sens de déplacement du liquide de refroidissement. Du côté où il est rouge, il devrait y avoir une entrée d'un tuyau d'eau chaude.
Étape 2
En bas se trouve l'entrée de retour.
Étape 3
Prenez un adaptateur, séparez un petit brin de lin et enroulez-le à sec sur le fil. La forme de l'enroulement n'a pas d'importance, il n'est pas nécessaire de frapper le pas du filetage.
Étape 4
Pressez ensuite un peu de mastic sur le lin et répartissez-le avec votre doigt sur toute la circonférence du fil. Essayez de le faire avec précaution afin que le mastic ne pénètre pas à l'intérieur du raccord.
Étape 5
Visser l'adaptateur sur le mitigeur du côté où sortira l'eau du circuit plancher.
Étape 6
Pour serrer la connexion, vous pouvez utiliser la pince insérée à l'intérieur du manchon. L'excès de mastic pressé en même temps doit être enlevé avec une serviette.
Étape 7
De même, du côté opposé (d'où viendra l'eau chaude), un clapet anti-retour est connecté au té de mélange à l'aide d'un adaptateur avec un filetage double face. Serrez bien la connexion avec une clé à molette et essuyez à nouveau.
Étape 8
Une fois le manchon bien serré, vissez la valve elle-même
Il est très important de le configurer correctement. Concentrez-vous sur la flèche sur le corps, qui indique la direction du mouvement de l'eau.
Étape 9
Le clapet anti-retour sera situé au bas du mélangeur - où l'eau refroidie de la canalisation de retour y entrera.
Étape 10
Un té avec une vanne est connecté au clapet anti-retour, à travers lequel le collecteur communiquera avec le mélangeur.
Étape 11
L'unité de mélange elle-même est déjà assemblée
Maintenant, nous devons y attacher le reste.Tout d'abord, la pompe, ayant préalablement installé un joint en caoutchouc sur la connexion.
Étape 12
La pompe sera à gauche, à la sortie du mélangeur.
Étape 13
Par le bas, un collecteur est fixé au té via un adaptateur d'angle.
Étape 14
Un raccord est vissé sur la sortie de la pompe. Dans ce cas, il s'agit de polypropylène, mais il peut s'agir de n'importe quel autre. L'essentiel est d'établir une bonne connexion.
Étape 15
Afin de pouvoir fixer ultérieurement l'ensemble au mur et de doter le collecteur d'un renfoncement pour le passage du tuyau de retour en dessous, utilisez un collier de plomberie. Habituellement, il est attaché à une épingle à cheveux, mais dans ce cas, le maître a coupé 2 cm du tuyau de propylène pour l'utiliser comme support.
Étape 16
L'écrou de serrage s'insère parfaitement dans le trou du tube.
Étape 17
Installez les pinces. Dans ce cas, il y en aura trois : sous le collecteur de retour, sous le raccord en polypropylène à gauche de la pompe et à droite, sous la vanne d'arrivée d'eau chaude.
Étape 18
Lorsque vous achetez un ensemble complet chez le fabricant, un écran spécial est inclus dans le kit sur lequel il est installé. Puisque nous l'assemblons nous-mêmes, un morceau de feuille OSB coupé à la taille désirée peut servir d'écran. Placez l'unité assemblée dessus, placez les pinces avec supports aux bons endroits et tracez leurs contours afin que vous puissiez voir où les fixer.
Étape 19
Maintenant, le collecteur doit être retiré et fixé avec des pinces au panneau.
Étape 20
Pour ce faire, ils doivent percer des trous fins au centre et les visser à la plaque avec des vis.
Étape 21
Lorsque l'unité de mélange est installée à sa place habituelle et fixée avec des colliers, il ne reste plus qu'à y fixer le collecteur de chauffage au sol du côté de la pompe. Dans ce cas, le maître assemble cette partie de la structure en polypropylène, mais comme vous n'avez probablement pas de fer à souder spécial, vous pouvez utiliser des raccords en laiton.

À quoi ressemble l'unité de mélange assemblée ?
Au final, l'unité de mélange assemblée à la main ressemblera à celle montrée sur la photo, et nous espérons vraiment que tout a fonctionné pour vous.
Types d'unités de mélange
Le schéma de fonctionnement du collecteur pour un sol chaud est assez simple. Le caloporteur de la chaudière de chauffage pénètre dans le distributeur d'alimentation. Il est recommandé de le placer en haut (au-dessus du peigne de retour), cependant, en fonction des caractéristiques locales d'installation, ainsi que du type d'unité de mélange connectée, il peut également être installé en dessous. Le boîtier du collecteur comporte deux branches ou plus équipées de vannes d'arrêt et de contrôle appropriées. Pour chacune des branches, le fluide caloporteur est redirigé vers certaines canalisations TP. L'extrémité de sortie de la boucle de tuyau se ferme sur le collecteur de retour, qui dirige le débit total collecté vers la chaudière de chauffage.
Évidemment, dans le cas le plus simple, un collecteur pour un plancher chauffé à l'eau est un morceau de tuyau avec un certain nombre de sorties filetées. Cependant, selon la configuration finale qu'il recevra, la complexité de son assemblage, ses réglages et son coût peuvent varier considérablement. Considérons d'abord les modèles de base les plus populaires de distributeurs d'eau TS.
Avec raccords pour les circuits de connexion

L'un des plus économiques, mais tout à fait prêt à l'emploi, est un peigne avec filetages d'entrée / sortie et raccords pour le raccordement de tuyaux métal-plastique ou XLPE.
Un de ces modèles est montré sur la photo.
Avec robinets intégrés
Dans la configuration minimale, vous pouvez également trouver un collecteur pour plancher chauffant équipé de vannes à boisseau sphérique à deux voies. De tels dispositifs ne permettent pas d'ajuster les contours - ils sont conçus uniquement pour allumer ou éteindre des branches de chauffage individuelles.
Étant donné que le système de chauffage par le sol est acheté et installé pour augmenter le confort des résidents, qui est assuré par un réglage fin du système, l'opportunité d'utiliser de tels peignes est purement sélective.
Collecteur à trois circuits avec vannes à boisseau sphérique à deux voies intégrées
Lors de l'achat de ces options budgétaires pour les distributeurs, il convient de garder à l'esprit que leur utilisation nécessite des connaissances fondamentales, ainsi qu'une vaste expérience dans l'installation de systèmes de chauffage.
De plus, les économies d'approvisionnement sont plutôt conditionnelles, puisque tous les équipements supplémentaires devront être achetés séparément. Les collecteurs pratiquement simplifiés pour un plancher d'eau chaude sans modification ne conviennent que pour les systèmes auxiliaires pour une ou deux petites boucles. Ils conviennent également à plusieurs circuits, mais ayant des caractéristiques thermiques et hydrauliques identiques. Après tout, la conception de tels peignes n'offre pas la possibilité technique d'installer des équipements de contrôle et de régulation directement sur chaque branche.
avec vannes de régulation
Exemple de collecteur avec vannes de régulation
Le niveau suivant, tant en termes de coût que de fonctionnalité, est un collecteur de distribution pour chauffage au sol avec vannes de régulation. De tels dispositifs, fonctionnant en mode manuel, peuvent déjà fournir un réglage de l'intensité de l'alimentation en liquide de refroidissement pour les circuits de chauffage individuels. Pour eux, dans la plupart des cas, il est techniquement possible d'installer des actionneurs avec servocommandes au lieu de vannes manuelles.
Les actionneurs peuvent être connectés soit directement à des sondes électroniques de température installées dans les locaux, soit à une unité centrale de commande programmable.
Matériaux et outils
Le travail nécessitera des outils et du matériel. Vous devez également calculer la quantité de matériaux requise et, en outre, prendre soin d'acheter les composants système nécessaires.
- Chaudière;
- collectionneur;
- pompe;
- soupape de réglage ;
- sortie d'air;
- soupapes;
- raccord;
- des vis;
- Tournevis;
- ciment;
- le sable.
En plus d'eux, les principaux composants du système doivent être achetés avant l'installation. La chaudière de chauffage est l'élément principal du système de chauffage. Lors des travaux d'installation, vous ne pouvez pas vous passer d'une pompe à pression, qui peut être connectée directement à la chaudière.
Des vannes sont installées à l'entrée de l'appareil. Vous devez également préparer les tuyaux qui seront utilisés pour créer le câblage. Après cela, le collecteur est préparé. Cet appareil contient des éléments servant à régler la température du système et à la réguler.
De plus, le propriétaire doit acheter des tuyaux pour les poser sur la surface du sol. En plus d'eux, des raccords sont achetés, qui pendant le fonctionnement sont utilisés pour poser la ligne principale.De plus, ces éléments sont également utilisés pour connecter les tuyaux posés au système de chauffage par le sol.
Les tuyaux destinés au chauffage par le sol peuvent être en polypropylène. Le meilleur choix est les produits avec une couche de renforcement en fibre de verre. Leur avantage est qu'à des températures élevées, ils se dilatent moins. En plus d'eux, des tuyaux en polyéthylène peuvent être utilisés, car ils se dilatent au minimum lorsqu'ils sont chauffés.
Lors de l'installation de systèmes de chauffage de surface, les tuyaux en polyéthylène sont le plus souvent utilisés. Vous devez choisir des produits d'un diamètre de 18 à 22 mm. Le tuyau doit être conçu pour une pression de service jusqu'à 10 bars et une température jusqu'à 90 degrés Celsius. Certains modèles de tuyaux sont équipés d'une protection contre l'oxygène et ont des couches supplémentaires dans leur structure. Cependant, le plus souvent, les propriétaires optent pour des tuyaux en polyéthylène, car leur coût est assez faible. Si pour le propriétaire lors de l'installation d'un sol chaud, le plus important est de réduire le coût d'installation du système, les tuyaux en polyéthylène sont généralement choisis.
De par son apparence, le collecteur est un appareil qui possède des robinets. D'une autre manière, cela s'appelle un séparateur. Il est principalement utilisé pour connecter différents circuits du système.
La ligne principale relie différents circuits qui assurent la livraison eau chauffée et sortie froid.
Lors de l'installation d'un sol "chaud", deux collecteurs sont disposés. Le premier agit comme un séparateur et est conçu pour distribuer de l'eau chauffée. Le second est utilisé pour collecter le liquide de refroidissement refroidi.
Les dispositifs utilisés pour configurer le système sont situés dans la conception du répartiteur :
- soupapes;
- dispositif de réglage du drain ;
- drain de rechange;
- l'air de l'eau.
Comment choisir une vanne à trois voies
Un point important est le choix d'une vanne à trois voies appropriée. Afin de le choisir immédiatement correctement, sans perdre de temps sur un échange ultérieur, vous devez être guidé par les conseils suivants :
1. Renseignez-vous à l'avance sur le débit du liquide de refroidissement dans votre système. Celle-ci peut être relevée dans la documentation fournie avec la chaudière de chauffage. Ensuite, vous pouvez choisir la vanne par capacité.
2. Méthode de contrôle des vannes. Il peut être actionné manuellement ou automatiquement. S'il est plus pratique pour vous de contrôler manuellement le fonctionnement de la vanne, choisissez une vanne de type manuel à trois voies peu coûteuse. Si vous préférez l'automatisation, décidez du type de contrôle automatique. Par exemple, la vanne répondra à la température du liquide de refroidissement ou à la température de l'air ambiant.
3. Gamme de températures variables. Connaissant la température du liquide de refroidissement qui circulera dans le système de chauffage, choisissez un appareil avec les caractéristiques de température appropriées.
4. Matériau du boîtier. Ces robinets sont le plus souvent en laiton, qui possède de bonnes propriétés anticorrosion. C'est ce matériel qui est recommandé à l'achat. Les robinets en fonte ne sont produits qu'en gros diamètres, leur utilisation est donc très spécifique.
5. Diamètre des buses. Il doit correspondre au diamètre des canalisations de chauffage disponibles dans la maison. Vous n'avez alors pas besoin d'acheter d'adaptateurs supplémentaires.
En choisissant et en installant correctement un robinet thermostatique à trois voies, vous doterez votre maison d'un système de chauffage fiable, selon vos besoins.Ainsi, non seulement le niveau de confort maximal dans la maison sera atteint, mais les ressources énergétiques seront également économisées. Une telle approche dans le monde moderne est la seule vraie à tous égards.
Un mitigeur thermostatique à trois voies est un produit dont le but est de permettre de contrôler et de maintenir la température de consigne du liquide de refroidissement dans le système de chauffage. Une caractéristique de l'appareil est qu'il est équipé d'une entrée et de deux sorties ou de deux entrées et d'une sortie. Cette conception vous permet d'installer une vanne à trois voies pour la chaudière aux points de dérivation ou là où il est nécessaire d'assurer le mélange du liquide de refroidissement, par exemple, de l'eau chaude et froide.
Pourquoi vous devez utiliser une unité de mélange

Ainsi, pour les radiateurs, la température de l'eau est utilisée de 60 à 90 degrés, qui sort directement de la chaudière. Mais pour un sol chaud, la température de liquide recommandée est d'environ 30 à 40 degrés.
Le principe de fonctionnement est similaire au fonctionnement d'un mélangeur ordinaire.
Si nous connectons les circuits au collecteur avec les batteries, le sol chaud recevra une grande quantité de chaleur, ce qui n'est pas acceptable pour un certain nombre de raisons.
- Étant donné que la couche de chape au-dessus des tuyaux mesure environ 3 à 6 cm, une température élevée entraînera une fissuration et une déformation de la couche.
- Les tuyaux qui se trouvent à l'intérieur de la chape subiront une charge plus importante, ce qui entraînera des contraintes locales, car à des températures élevées, la dilatation linéaire est beaucoup plus grande et les tuyaux sont limités par une couche de chape en béton. Tout cela conduira à une défaillance rapide des tuyaux.
- Les revêtements de sol n'aiment pas les surfaces chaudes, ils commencent à se décoller et à se fissurer (stratifié, parquet, parquet).Dans le cas des carreaux de céramique, un délaminage est possible. Le linoléum se déforme, se dessèche et se déforme.
- Une surface de sol surchauffée perturbe le microclimat des locaux.
- Si nous acceptons que la surface du sol se réchauffe à 50 degrés, il sera alors impossible de marcher pieds nus dessus.
De ce qui précède, il s'ensuit que l'unité de mélange n'est tout simplement pas remplaçable. Puisqu'il est tout simplement stupide et non rentable d'accrocher une chaudière séparée au système «plancher chaud».

Et il n'est pas difficile d'apporter des modifications mineures au schéma du système de chauffage (si le chauffage a déjà été installé). Et si vous montez le circuit à partir de zéro, cet appareil doit être fourni à l'avance.
Il faut dire qu'il existe des chaudières en vente qui prévoient immédiatement la technologie de chauffage et de production de deux vecteurs liquides de températures différentes à la fois. Cet équipement est très cher et peu populaire.
C'est intéressant : Panneaux décoratifs effet pierre pour la décoration extérieure
Le concept général de l'unité de mélange
Pour que la tâche soit effectuée facilement, l'interprète doit comprendre le but, les principes de fonctionnement de la structure achevée. Cette règle s'applique également à l'installation de l'unité de mélange.
Pourquoi cette conception est-elle importante ?
Considérez quel type de travail fait l'unité de mélange du chauffage par le sol.
Tout d'abord, il est nécessaire de préciser que la température du liquide circulant à travers les contours du sol chaud est deux fois inférieure à celle des systèmes de chauffage standard avec radiateurs et convecteurs.
Dans le système habituel à haute température, de l'eau chauffée à 70-80 degrés et plus est utilisée. Pour les modes de fonctionnement spécifiés, ils ont été créés auparavant et sont en cours de création de réseaux de chaleur, des chaudières de chauffage sont en cours de production.
La température du fluide admise dans un système de chauffage classique n'est pas adaptée au chauffage par le sol. Cela est dû à de tels facteurs:
- Sur la base de la zone d'échange de chaleur active (c'est presque tout le sol) et de la capacité thermique impressionnante de la chape avec des tuyaux posés pour le chauffage au sol, on peut supposer que +35 degrés de température de l'eau suffisent pour chauffer la pièce .
- La perception confortable du chauffage de surface pieds nus a un cadre caractéristique - il est optimal que le pied repose sur le sol chauffé à un maximum de 30 degrés. Si le sol est chaud, les pieds sont désagréables et inconfortables.
- Les finitions de sol standard ne conviennent pas à une chaleur élevée par le bas. Une température élevée provoque une déformation du sol, l'apparition de fissures entre les pièces, la rupture de l'emboîtement, des vagues et des bosses à la surface du revêtement, etc.
- Les températures élevées peuvent considérablement endommager la chape en béton dans laquelle les tuyaux de chauffage par le sol sont montés.
- Un fort chauffage affecte négativement les tuyaux des circuits posés. Lors de l'installation, ces éléments sont fixés rigidement et ne se dilatent pas sous l'influence des effets thermiques. Si de l'eau chaude est constamment dans les tuyaux, la tension commencera à monter dans ceux-ci. Au fil du temps, ce phénomène va rapidement abîmer les canalisations et provoquer des fuites.
En raison de la popularité croissante du chauffage au sol, les fabricants ont commencé à proposer des chaudières avec un principe de fonctionnement similaire. Mais de nombreux experts notent l'inutilité d'acheter un chauffe-eau spécial. Tout d'abord, un sol chaud "propre" est souvent utilisé dans certaines zones et associé à un sol standard.Deuxièmement, au lieu de deux chaudières, il est préférable de définir clairement l'emplacement d'un sol chaud et classique et de placer une unité de mélange à la frontière.
Un autre facteur expliquant la faisabilité d'utiliser une unité de mélange. Lors de l'installation d'un plancher chaud, il est nécessaire d'assurer la bonne circulation du fluide dans chaque circuit de plancher, et en effet ils mesurent parfois plus de 8 mètres de long, se plient plusieurs fois, tournent brusquement.
Comment fonctionne l'unité de mélange
Le liquide chauffé, lorsqu'il pénètre dans le collecteur du plancher chauffant, pénètre immédiatement dans la vanne dans laquelle le thermostat est stocké. Si l'eau des tuyaux est très chaude, la vanne s'ouvre et laisse entrer de l'eau froide dans le liquide chauffé, en les mélangeant à la température optimale.
Le collecteur du système est équipé de deux fonctions principales. En plus de mélanger l'eau afin d'obtenir la température requise, il fait circuler le liquide. Pour cela, le système est équipé d'un équipement de circulation spécial. Lorsque l'eau circule constamment dans les tuyaux, elle chauffe uniformément tout le sol. Pour une meilleure fonctionnalité, le collecteur est équipé de :
- Vannes d'arrêt;
- vannes de vidange;
- Bouches d'aération.
Si un plancher chaud est installé dans une seule pièce, une pompe doit également être installée ici. Pour que la boîte ne prenne pas beaucoup de place, une niche est d'abord faite pour elle dans le mur. Si le chauffage au sol va se répandre dans toutes les pièces, il est plus rationnel de créer un meuble collecteur commun.
Schémas des unités de mélange
- Les connecteurs (n° 6) sont connectés aux tuyaux.
- L'alimentation en liquide de refroidissement chaud de la chaudière est connectée à la sortie n ° 10 et le retour est connecté au n ° 11.
- Le schéma peut être complété par un purgeur d'air automatique.
La deuxième version du nœud convient également au chauffage de 15 à 20 m².m., mais contrairement à la version précédente, il a un réglage automatique, grâce à la tête thermique installée avec un capteur à distance.
- Pour le raccorder, le mitigeur (n°1) est monté avec un signe « + » en direction du robinet américain de l'alimentation.
- L'alimentation et le retour sont reliés aux femmes américaines par des connecteurs à filetage externe (n ° 4 - entrée, n ° 7 sortie d'eau).
- Le fonctionnement de la pompe de circulation (n°18) est dirigé vers la vanne mélangeuse (n°1).
- Les circuits de plancher chauffant sont raccordés aux sorties numérotées 12 et 22.
Unité de pompage et de mélange de Valtec
La troisième version du collecteur convient déjà pour 2 à 4 circuits de chauffage d'une superficie de 20 à 60 mètres carrés. m. Le schéma montre un exemple avec commande manuelle.
- Pour le raccordement, l'alimentation de la chaudière est raccordée à la borne n°16, et le retour à la borne n°17.
- Pour que le système fonctionne bien, la longueur des boucles doit être approximativement la même.
- Le schéma montre une option pour deux circuits, mais si trois ou quatre pièces doivent être connectées, les collecteurs (9) sont remplacés par un collecteur réglable et un avec vannes à bille (VTc.560n et VTc.580n).
Le schéma suivant convient également pour chauffer des pièces jusqu'à 60 mètres carrés. m., pour 2-4 circuits, mais il a un contrôle automatique de la température.
- L'alimentation est connectée via le robinet américain supérieur n ° 3 et le retour est connecté au robinet inférieur.
- La pompe doit travailler vers le mitigeur numéro 2.
- La vanne elle-même est installée avec un signe plus dans le sens de l'alimentation de la chaudière.
- Les contours du plancher chaud sont fixés aux collecteurs (12).
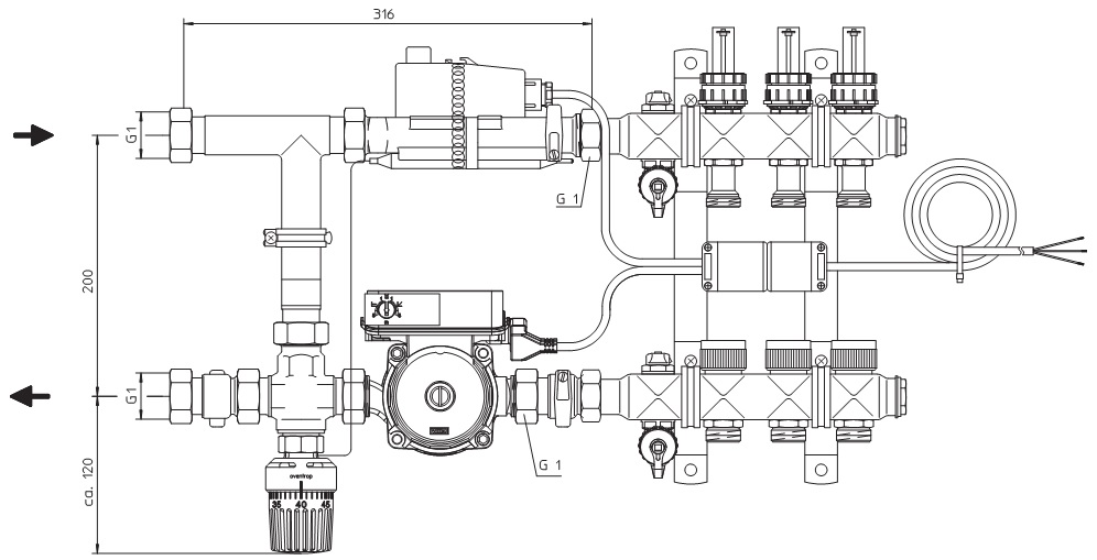
Et le dernier schéma avec réglage automatique convient à un système de chauffage par le sol pour 3 à 12 circuits, jusqu'à 150 m². M.
Spécification:
- 1 ensemble collecteur pour le nombre de sorties requis (VTc.594/VTc.596) ;
- pompe circulaire 180 mm;
- 2 raccords (pour chaque circuit) VT.4420.NE.16 de la norme Eurocone pour le raccordement de tuyaux métal-plastique.
La circulation du liquide de refroidissement dans un tel collecteur est représentée sur la figure. L'alimentation est reliée à la sortie supérieure, le retour à la sortie inférieure. Le fonctionnement de la pompe est dirigé vers le bas, ainsi le collecteur inférieur devient l'alimentation des circuits de chauffage au sol (orange sur la photo), et le collecteur supérieur va au retour (bleu).
armoire collecteur
Un collecteur pour un plancher chauffé à l'eau est généralement installé dans une armoire collectrice. Ils sont à la fois internes et externes. Leur profondeur standard est de 12 cm, donc tous les nœuds ne peuvent pas s'adapter, surtout si de grands capteurs thermiques sont installés. Dans ce cas, il est préférable de choisir une armoire interne dont la profondeur est augmentée en approfondissant le mur du fond.







































