- Cuisinière à gaz dans un hammam russe
- Solutions structurelles pour fours métalliques
- systeme ferme
- système ouvert
- Système combiné
- Matériaux de construction
- Qui a besoin?
- Où mettre le poêle dans le bain?
- L'emplacement du poêle dans le bain avec un hammam séparé
- Cuisinière dans un bain public avec une salle de lavage et un hammam
- Vidéo
- Avez-vous toujours besoin d'une fondation pour un four?
- Caractéristiques de conception que vous devez respecter lors de la construction d'un poêle de sauna
- four en métal
- Dessins et options pour fabriquer un poêle pour un bain à partir d'un tuyau
- four vertical
- Vidéo connexe
- Four horizontal
- Vidéo connexe
- Conseils pour les fabricants de poêles sur la façon d'améliorer le poêle dans un bain à partir d'un tuyau
- Quels paramètres rechercher lors du choix d'un four ?
- Classification spécialisée des poêles pour bains et saunas
- Un simple poêle-chauffage en métal pour un bain
- Poêle rond à faire soi-même pour un bain
Cuisinière à gaz dans un hammam russe
En fait, si nous parlons d'un four à briques, la différence dans la conception des options bois et gaz est faible - elle ne réside que dans la présence d'un brûleur à gaz où le bois de chauffage brûlerait.
La température de combustion du gaz naturel est beaucoup plus élevée que celle du bois de chauffage. Cependant, il est plus facile à régler (et encore plus si le four est équipé d'appareils de contrôle). Par conséquent, en principe, il est tout à fait réaliste d'atteindre les conditions souhaitées à l'aide d'une telle unité.
IMPORTANT! Peut-être que certains propriétaires trouveront l'option combinée rentable : un poêle à bois et à gaz.
En plus de la brique, il existe également des cuisinières à gaz en métal. Ils sont également mis dans des bains, mais ils ne valent pas la peine d'être mentionnés pour les raisons déjà mentionnées - le matériau et la conception sont plus importants que le carburant.
Solutions structurelles pour fours métalliques
L'appareil classique pour un four à bain métallique comprend la liste de nœuds suivante :
- four pour la combustion de combustibles;
- serpentin pour chauffer l'eau;
- palette avec des pierres;
- pour les appareils de chauffage au bois - des grilles et un cendrier pour la collecte des déchets ;
- une cuisinière à gaz pour un bain est équipée d'un système de brûleur et d'un contrôle et d'une surveillance automatiques;
- cheminée pour l'évacuation des produits de combustion.
Un poêle de sauna électrique est beaucoup plus simple - il n'a pas de chambre de combustion. Au lieu de brûleurs ou d'une chambre de combustion pour le bois de chauffage, il existe plusieurs éléments chauffants. Leur chaleur est directement transmise aux pierres et à l'air du hammam. Les unités métalliques, en raison de la facilité de traitement de ce matériau en feuille, sont aujourd'hui proposées dans le plus grand ensemble de solutions structurelles.
systeme ferme
Un poêle en métal sûr est appelé un poêle fermé. Le corps de l'unité est divisé en trois grands domaines fonctionnels.
- Foyer pour le bois de chauffage, récipient pour recueillir les cendres, souffleur. Ici, l'imagination des ingénieurs ne connaît pas de limites. Vous pouvez acheter un poêle avec un foyer en fonte ou avec des accessoires supplémentaires pour une combustion de combustible de haute qualité.
- En fait, un chauffe-sauna. Il s'agit d'un compartiment fermé où sont placées des pierres. Selon la solution de conception spécifique, ils peuvent être chauffés par convection ou à flamme nue.
- Réservoir pour le chauffage et l'alimentation en eau, ainsi que les accessoires.

Le dernier point mérite qu'on s'y attarde. La vapeur dite légère est obtenue en irriguant des pierres avec de l'eau chauffée à moins de 100 degrés Celsius.Mais obtenir une brume vraiment vive, chaude et fine n'est possible qu'à très haute température. Les pierres sont chauffées jusqu'à 500 degrés Celsius. Lorsque l'eau pénètre, une énorme quantité de vapeur se forme. Il est jeté à grande vitesse et comporte un grand danger.
Pour éviter les brûlures dans le hammam, les poêles à chauffage fermé sont fabriqués avec un échangeur de chaleur. Sa tâche est de fournir de l'eau et de libérer de la vapeur dans une direction sûre pour les visiteurs du hammam.
Les avantages d'un système fermé sont nombreux :
- la sécurité est assurée ;
- il y a beaucoup de vapeur, cela crée beaucoup d'humidité;
- garni de briques à l'intérieur et à l'extérieur du corps, le four métallique fermé présente une bonne inertie thermique. Chauffé, il ne refroidit pas longtemps.
Conseils! Ce type de construction est un choix idéal si vous souhaitez créer un véritable bain russe. Un poêle fermé chauffe modérément l'air, de sorte que le hammam remplit son objectif principal. Il agit sur une personne avec de la vapeur chaude et humide, avec des indicateurs de confort optimaux.
système ouvert
Le poêle ouvert offre une symbiose entre un banya russe classique et un sauna finlandais surchauffé. La conception consiste en une boîte pour le carburant ou les buses, ainsi qu'une grille pour la pose de pierres. Ce dernier est situé tout en haut du four.

Lorsqu'un poêle ouvert fonctionne, une grande quantité de chaleur est transférée à l'air du hammam. Il peut atteindre des températures supérieures à 100 degrés. Cela crée une sensation de chaleur sèche et de vapeur très active.
Conseils! Un tel poêle en métal est le choix parfait pour ceux qui aiment davantage la chaleur.
Système combiné
Comme son nom l'indique, le poêle métallique combiné se compose de plusieurs segments d'un appareil de chauffage fermé et ouvert.En règle générale, la solution de conception est effectuée comme suit :
- il y a plusieurs chambres pour la combustion du carburant, des soupapes doubles et un ventilateur ;
- un bloc est une structure avec un réchauffeur fermé;
- le système avec un radiateur ouvert est mis en œuvre de la manière la plus simple - les pavés sont posés directement sur le couvercle du corps, autour de la cheminée qui en sort.
Le four combiné convient aux familles ayant des préférences différentes. En ajustant le taux de combustion du carburant dans certaines chambres, il est possible de obtenir ou modérer la température à vapeur très humide, ou bien se réchauffer, en réchauffant intensément l'air.
Matériaux de construction
Couler un cadre en fonte à la maison ne fonctionnera pas, donc l'acier sera le matériau. Plusieurs options de conception pour les fours à bain d'acier ont été développées :
- Châssis soudé en tôle;
- D'un tuyau;
- À partir de disques de roues d'automobiles.
Habituellement, le matériau le plus facile à acheter est choisi.
S'il s'agit de tôles, leur épaisseur doit être d'au moins 8 mm. Si le tuyau mesure environ 50 à 60 cm de diamètre.
Vous aurez également besoin de :
- Grille (il peut s'agir d'un produit fini ou d'accessoires à partir desquels la grille est soudée manuellement)
- Porte pour le foyer, pour le ventilateur (vous pouvez le faire vous-même).
- Verrou sur toutes les portes.
- Robinet.
- Tuyau de cheminée d'environ 2 m de haut, d'un diamètre de 12 à 15 cm.
Au stade final, vous aurez besoin d'une brique pour l'écran, de pierres pour le chauffage et d'une peinture spéciale.
Qui a besoin?
La réponse est évidente : pour ceux qui n'ont pas de raccordement au réseau d'alimentation en eau chaude, et cela, malheureusement, n'est pas rare chez nous.Mais dans chaque cas, l'eau chaude peut être utilisée pour le lavage ou pour le chauffage, ou pour les deux, donc, dans des circonstances spécifiques, les fours avec réservoir d'eau différents types.
De plus, dans le hammam lui-même, il y a aussi un besoin d'eau chaude - il n'est pas bon de donner de l'eau froide aux pierres, car elles refroidissent brusquement et peuvent se fissurer; puis la température - elle va baisser à partir de là, mais pour l'instant elle va reprendre - c'est le moment. Donc, bien que petit, mais un réservoir d'eau chaude dans le hammam est approprié même s'il existe des réseaux d'alimentation en eau.

IMPORTANT! La température peut être de 70 degrés.
Où mettre le poêle dans le bain?
L'emplacement du four dépend de nombreux facteurs, notamment de son type, ainsi que de l'emplacement du four (dans la même pièce ou dans une pièce adjacente). De plus, la sécurité incendie est importante - tout combustible doit être à au moins un demi-mètre de distance.
Ainsi, ceux qui ont décidé d'installer un four à briques en font une fondation, de sorte que l'endroit était déjà déterminé au stade de l'esquisse. Mais avec un four en métal, ils tirent parfois jusqu'au bout, ne sachant pas quel modèle acheter. Par conséquent, il arrive que des murs prêts à l'emploi doivent être coupés et que d'autres travaux supplémentaires doivent être effectués.
IMPORTANT! L'emplacement de la ventilation d'alimentation dépend de l'emplacement de la fournaise, il est donc préférable de penser à l'avance.
Outre la ventilation, il convient de prendre en compte la sécurité incendie, en particulier dans un bain à parois combustibles. Souvent, pour l'assurer, une partie du mur est en brique. Ce qui parle encore de la nécessité d'une planification.
L'emplacement du poêle dans le bain avec un hammam séparé
Il peut y avoir deux options :
- soit le poêle, avec le foyer, est entièrement dans le hammam, c'est-à-dire qu'il ne chauffe que lui ;
- ou le foyer est sorti dans la pièce voisine, ce qui vous permet également de le chauffer partiellement.
L'emplacement du poêle dans le bain avec un hammam séparé: une option avec un foyer de la salle de repos. Schéma de l'article sur le capot
Dans le premier cas, pendant la saison froide, vous devrez réfléchir à comment et avec quoi chauffer les pièces voisines, dans le second - le même problème ne reste que partiellement.
Cuisinière dans un bain public avec une salle de lavage et un hammam
Ici aussi, vous pouvez trouver plusieurs solutions. La chambre de combustion peut être retirée non pas dans la salle de repos ou le dressing, mais dans la salle de lavage. Mais cela pose problème en termes de stockage du bois de chauffage. Par conséquent, il existe d'autres options.

Cuisinière dans un bain public avec une salle de lavage et un hammam
Vous ne pouvez pas du tout retirer le poêle, installez simplement un réservoir d'eau en haut, qui sera relié à travers le mur au «samovar» sur la cheminée du hammam. "Samovar" est un échangeur de chaleur (! les poêles avec échangeur de chaleur sont discutés ici), qui peut être trouvé en vente, il chauffe l'eau pour le lavage, et déjà la chaleur provient du réservoir, suffisante pour maintenir une température normale de 30-32 degrés de lavage.

Dans certains cas, le problème est résolu par des sources de chaleur supplémentaires - un sol chaud ou un deuxième poêle.
Vidéo
La vidéo suivante montre une explication du schéma ci-dessus :
Avez-vous toujours besoin d'une fondation pour un four?
Nous avons déjà dit plus haut que non, ce n'est pas toujours nécessaire. Le besoin n'en apparaît que lorsque le poids du poêle de sauna avec tout ce qui s'y rapporte (du réservoir d'eau à toutes les briques qui tapissent le sol, le poêle et la cheminée) dépasse 700 kg. Si le poids total est inférieur, au lieu de la fondation, vous pouvez simplement poser la base avec des briques, mettre de l'amiante de 12 mm dessus et dessus - une tôle d'acier de n'importe quelle épaisseur (à partir de 1 mm).Le sujet est abordé en détail ici.
IMPORTANT! Une fondation séparée pour un four à briques est faite de sorte qu'elle ait son propre rétrécissement, non lié au rétrécissement de la maison.
Une telle fondation est faite à fond, approfondie jusqu'à la couche portante. Si le poêle pèse plus de 700 kg, mais pas beaucoup, vous pouvez créer une fondation peu profonde.
Habituellement, la fondation de la fournaise n'est pas portée à la hauteur du sous-plancher, car les briques sont alors posées et la hauteur est comparée. La surface de la fondation du four doit être de 15 à 20 cm plus grande de chaque côté que la surface de la base du poêle.
La vidéo ci-dessous montre clairement le processus d'auto-versement de la fondation pour un bain. La vidéo est un peu sombre, mais donne une idée du processus.
Caractéristiques de conception que vous devez respecter lors de la construction d'un poêle de sauna
Comme mentionné ci-dessus, les fours peuvent être en métal et en brique et leurs conceptions diffèrent les unes des autres. Pour comprendre lequel sera le plus pratique pour l'installation dans une pièce particulière, vous devez considérer les deux afin que vous tiriez vous-même la bonne conclusion!
four en métal

Poêle de sauna en métal avec réservoir d'eau
Les versions en fonte et en acier des poêles de sauna à bois ont le même dispositif, et leur installation peut se faire de deux manières, selon leur conception :
- la chambre de combustion est située dans le dressing et le radiateur est dans le hammam;
- la chambre de combustion et le chauffage sont situés dans le sauna.
La première option est préférable, car dans le hammam, vous pouvez vous brûler accidentellement sur la porte du foyer. Avec le radiateur du hammam, il y a aussi un réservoir d'eau.
Ce schéma montre la conception d'un modèle de poêle de sauna, dans lequel la chambre de combustion entre dans le dressing.

Concevoir poêle à bois en métal pour sauna
- Ce four est équipé d'un distributeur d'eau. C'est pratique dans la mesure où vous n'avez pas besoin d'ajouter constamment du liquide au réchauffeur - de l'eau ou de la décoction, il viendra progressivement en une quantité donnée. Il est montré dans le diagramme au numéro un.
- Au numéro deux du schéma, il y a un radiateur fermé par un distributeur d'eau qui, lorsqu'il est chauffé, fera un cadeau pendant longtemps. Étant donné que le poêle en métal se refroidit rapidement, un radiateur fermé sera une bonne aide pour se réchauffer.
- Un tuyau de cheminée traverse le poêle depuis la fournaise. Son emplacement contribue également à la rétention de chaleur à proximité des pierres.
- De l'autre côté du tuyau se trouve la deuxième partie du réchauffeur - déjà ouverte. L'eau du distributeur, passant par la chambre fermée du premier réchauffeur et sous le tuyau, sort par le réchauffeur ouvert sous forme de vapeur sèche.
- Un foyer profond et volumineux en acier résistant à la chaleur a une finition chromée.
- Une grille en fonte est posée dans le foyer, qui refroidit longtemps, ce qui signifie qu'elle retient également la chaleur du combustible.
- Sous le foyer, il y a une chambre à cendres avec un tiroir. Les déchets de la combustion du bois y sont collectés et doivent être nettoyés après chaque chauffage du poêle.
- Un canal externe sort du four, ayant une certaine longueur, calculée sur l'épaisseur de la paroi à travers laquelle il passera. Ce modèle est conçu pour être installé de manière à ce que la porte du foyer se trouve dans la pièce adjacente.
- Une porte auto-refroidissante est installée sur le canal de combustion. Il se refroidit rapidement du fait qu'il est situé assez loin de la chambre de combustion.
- De l'arrière du foyer, qui mène au hammam, il y a un canal d'alimentation en air secondaire.
- De l'avant du boîtier, du côté qui sera près du mur du côté du hammam, un boîtier de convecteur est installé, ce qui contribue à la sortie d'air chaud vers le haut, et non dans le mur.
- Une cheminée est placée sur le tuyau qui traverse le réchauffeur.
- Un réservoir d'eau est installé sur la cheminée, fonctionnant sur le principe d'un samovar. Le tuyau chauffé à l'intérieur servira de bon échangeur de chaleur. Le réservoir peut être rempli d'eau manuellement ou il peut être raccordé à une alimentation en eau du robinet.
Réservoir d'eau chaude pratique
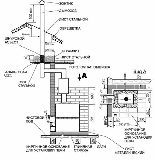
- Ensuite, une colonne montante de tuyau de cheminée est placée sur le tuyau du réservoir, qui est réalisée à travers le plafond et le toit. Lors du passage à travers des matériaux de plancher combustibles, la cheminée doit être isolée avec des matériaux incombustibles. L'épaisseur de l'isolant doit être supérieure à l'épaisseur du plafond de 7 à 10 centimètres et aller vers le grenier. Entre le plafond et le tuyau, la distance doit être de 10 à 15 centimètres, remplie d'isolant incombustible. Parfois, un caisson est aménagé pour la pose ou le remblayage de l'isolant.
- L'étanchéité est nécessairement disposée autour de la tête du tuyau sur le toit afin que l'humidité ne puisse pas pénétrer dans le grenier et n'endommage pas les éléments en bois de sa structure.
Pour installer une fournaise en métal, vous devez bien préparer l'endroit - il doit s'agir d'un site non combustible en brique, en béton ou en carreaux de céramique et d'un mur de briques à travers lequel passera le canal de combustion.

Schéma approximatif d'installation d'un poêle en métal dans un sauna
Le schéma d'installation du four ressemble à celui illustré sur la figure. Des ajustements mineurs sont possibles, par exemple, si le four est installé sur une brique ou podium en béton.
Dessins et options pour fabriquer un poêle pour un bain à partir d'un tuyau
Puisque nous avons décidé de consacrer un article séparé aux subtilités de la fabrication d'un poêle pour un bain à partir d'un tuyau, les principales étapes seront considérées ici dans les termes les plus généraux. Notre tâche est de clarifier les options disponibles, là où elles sont les plus efficaces.
En principe, seules deux manières d'utiliser le tuyau sont possibles : verticale ou horizontale. Tout le reste sera uniquement une recherche du rapport optimal entre le volume du four et de l'appareil de chauffage, des variations dans la méthode de chauffage des pierres - pierres coulantes ou isolantes du feu, etc.

Tout d'abord, la physique parle en faveur du placement horizontal du tuyau : lorsque le bois de chauffage brûle plus longtemps, il dégage plus de chaleur, brûle plus complètement, et tous ensemble peuvent être appelés brièvement : plus d'efficacité. Plus d'informations sur les poêles à bois ici.
Cependant, on pense qu'un four horizontal ne convient pas aux petits hammams. Eh bien, c'est un point discutable. Bien sûr, un quart de mètre carré qu'occupera un four vertical sera plus petit qu'un four horizontal, mais seuls les propriétaires de tout petits hammams n'ont vraiment pas le choix. Mais ici une autre question se pose : la puissance d'un poêle vertical pour un hammam miniature serait-elle trop importante ?
Un autre avantage d'un poêle horizontal est le foyer placé dans le dressing. Il y aura plus de propreté, mais ici chacun décide par lui-même ce qui lui est le plus agréable : courir au vestiaire ou nettoyer la saleté du hammam.
Le vertical convient à ceux qui souhaitent combiner le poêle avec un réservoir d'eau chaude - le moyen le plus simple de le faire est à la verticale - il suffit de séparer le réservoir du radiateur avec une cloison, et pas seulement le poêle va chauffer l'eau, mais aussi la cheminée traversant la cuve.
Le principal avantage d'un poêle vertical sera un appareil de chauffage fermé, car les appareils horizontaux sont généralement fabriqués avec un poêle ouvert, ce qui n'est pas bon pour les fans du bain russe, qui devraient faire attention à un article séparé.
four vertical
Le plus souvent, il s'agit d'une structure en trois parties, divisée à l'intérieur par des disques soudés. Il met en évidence :
- foyer;
- chauffage fermé ;
- réservoir d'eau.
Structure du foyer : cendrier, grille, chambre de combustion. Des grilles peuvent être trouvées en vente, vous pouvez les souder vous-même en coupant un cadre le long du diamètre de la circonférence intérieure du tuyau, puis en y soudant des tiges. Il est préférable de fabriquer un cendrier rétractable, sous la forme d'une pelle - en le poussant pendant le processus de combustion, vous obtenez une augmentation de la traction. Au lieu de cela, vous pouvez faire une porte sur le ventilateur.
La cheminée est située verticalement, elle traverse le réservoir. C'est bien, car une partie de la chaleur des gaz a le temps d'être transférée aux pierres et à l'eau.
Le réchauffeur, comme déjà mentionné, peut être traversant, auquel cas entre lui et la chambre de combustion il n'y a qu'une grille, comme une grille au fond du foyer. Dans le même temps, les pierres chaufferont davantage, deviendront inutilisables plus rapidement, mais la vapeur sera excellente.
Il existe une option pour souder transversalement un morceau de tuyau d'un diamètre inférieur à l'intérieur du tuyau vertical et faire une porte. Il s'agit d'un appareil de chauffage fermé, isolé de la flamme. Vous pouvez céder sans attendre que le bois de chauffage brûle complètement (dans la version précédente, vous devrez attendre).
Au-dessus de la chambre de combustion, il vaut la peine de mettre une coupure - un rectangle aux coins arrondis, laissant les gaz du four passer uniquement le long des murs. La fraise est située sous le réchauffeur.
Vidéo connexe
Une vidéo démontrant la fabrication d'un poêle vertical simple
Four horizontal

Le poêle dans le bain du tuyau est horizontal
La structure ne change pas, seule la forme change. Le cadre de la grille est fait le long du mur, pas en travers. Dans la version la plus simple, une grille pour les pierres est fabriquée sur le dessus, ce qui rend un tel poêle adapté à un sauna, mais pas à un bain russe. Parce qu'il y a deux inconvénients dans un radiateur ouvert :
- forte convection surchauffant le bain, empêchant la création d'un "gâteau de vapeur" ;
- l'impossibilité de chauffer les pierres à des températures auxquelles se forme une "vapeur légère" finement dispersée.
En d'autres termes, le corps du tuyau est purement une chambre de combustion, sur laquelle un treillis pour les pierres et un réservoir d'eau sont suspendus de l'extérieur. !Les poêles à réservoir d'eau font l'objet d'un article séparé.
D'AILLEURS! Il n'est pas nécessaire de faire passer la cheminée par l'extrémité du tuyau - dans ce cas, les gaz de la fournaise partiront plus rapidement, emportant de la chaleur avec eux et réduisant l'efficacité du poêle.
Vidéo connexe
Une vidéo démontrant la fabrication d'un poêle horizontal assez complexe. Vous aurez une idée de toutes les étapes du travail:
Conseils pour les fabricants de poêles sur la façon d'améliorer le poêle dans un bain à partir d'un tuyau
Eh bien, tout d'abord, si vous n'avez aucune expérience dans la création de poêles, préparez-vous au fait que le premier poêle pourrait s'avérer n'être qu'un prototype. Ceci s'applique également à ceux qui ont l'intention de commander un poêle selon leur croquis du maître. Le rapport optimal des pièces du poêle est toujours spécifique, c'est-à-dire que c'est votre hammam où le poêle fonctionnera qui est pris en compte. Et c'est pourquoi il est difficile de donner des conseils universels.
Il est particulièrement important de choisir la taille du radiateur et le nombre de pierres qu'il contient. Cela se fait par expérience.
Curieusement, les appareils de chauffage ouverts présentent une difficulté particulière, dans laquelle il est nécessaire d'obtenir exactement une telle zone de contact entre les pierres et le corps, ce qui conduira au degré de chauffage souhaité des pierres. Vous ne pouvez donc pas fabriquer un four horizontal sans prototype.
+++
Eh bien, nous espérons que vous avez trouvé des informations utiles pour vous-même. Sinon, écrivez des commentaires, car les questions les plus populaires feront l'objet de notre prochain article.
Quels paramètres rechercher lors du choix d'un four ?
En général, s'il existe des critères spécifiques pour choisir un poêle de sauna, le plus important d'entre eux est le suivant : le poêle doit avoir une puissance thermique suffisante et, de préférence, une large plage dynamique de régulation de cette puissance.
Mais que peut-on appeler une puissance thermique suffisante ? Ici tout dépend de la taille du hammam. Habituellement, il faut environ une demi-heure pour réchauffer cette pièce à 50 degrés et les pièces adjacentes en été et environ une heure en hiver. De plus, le temps d'allumage dépend également du fait qu'il s'agisse d'une baignoire à cadre ou d'une cabane en rondins.
Voici un exemple simple de calcul de la puissance nécessaire du poêle : le coût de chauffage d'une surface totale de 22 m². (sol, murs, plafond) sera de 4 kW. Si nous prenons en compte le chauffage du poêle lui-même, ses pierres, un réservoir d'eau, alors ce chiffre devrait être multiplié par 3 autres, ce qui fera 12 kW. Il s'agit d'un hammam recouvert de clins. Mais si ses murs sont une maison en rondins nus, vous devrez multiplier par 1,5 supplémentaire, ce qui donnera 18 kW. Si vous avez besoin de réchauffer des pièces adjacentes, puis un autre x2, ce qui donnera 26 kW. Mais, si vous ne perdez pas de temps pour vous échauffer, cette puissance suffisante peut être complètement réduite d'une fois et demie.
En ce qui concerne la plage dynamique, 1:10 suffira pour un poêle de sauna - il pourra alors fournir aussi bien 2 kW que 29 kW. Ceci est plus facilement mis en œuvre dans les cuisinières à gaz et électriques, avec du bois de chauffage, c'est un peu plus difficile.
De plus, un tel moment est également important : comment le poêle de sauna régulera-t-il exactement le plan d'alimentation ? Il y a trois options ici :
- en régulant le carburant fourni pendant une certaine période de temps;
- limitation du volume d'air;
- dégagement de chaleur excessive dans l'environnement.
Quant aux poêles à bois, la première méthode leur est difficile - tout cela à cause de l'inertie de la combustion. Mais le second est beaucoup plus efficace si vous réfléchissez bien aux conceptions spéciales des registres, des cendriers, etc. Mais avec la troisième méthode, vous devrez littéralement refroidir le hammam en ouvrant les portes de la rue.
Mais comment connaître la puissance thermique du four si elle n'est pas indiquée dans le passeport du fabricant ? Il est plus facile de le faire avec un ruban à mesurer - calculez le volume interne du poêle. Sa puissance est proportionnelle au volume du four, et elle peut même être calculée à l'aide de la formule suivante :
Puissance du four = 0,5 x V (volume du four en litres)
En général, un four standard avec un volume de four de 30 litres a généralement une puissance de 15 à 18 kW.
Pourquoi la plage dynamique est-elle si importante ? Oui, car pour que le four chauffe assez rapidement, le régime thermique était stable, mais la surchauffe ne s'est pas produite. Pour les poêles à bois, selon les experts, cette fourchette est de 1:5.
Comparaison des lectures de microclimat dans différents types de bains
En plus d'une bonne puissance thermique, le poêle de sauna doit également répondre aux normes suivantes :
Le poêle doit avoir un bon accumulateur de chaleur et un générateur de vapeur afin que vous puissiez facilement créer le mode souhaité et transformer le hammam en sauna finlandais sec ou en véritable bain russe selon votre humeur.
- Dans le four, des moyens de contrôle de la convection doivent être pensés.
- Il ne doit pas y avoir de surfaces importantes sur le four dont la température est supérieure à 150°C.
La taille de la chambre de combustion et du four lui-même est déjà une affaire individuelle, mais l'échangeur de chaleur à registre ne fera certainement pas de mal non plus.
Et les meilleurs poêles de sauna qui sont produits aujourd'hui ont tous les éléments ci-dessus.
Classification spécialisée des poêles pour bains et saunas
Il existe un certain nombre de critères différents qui ont contribué au développement d'un grand nombre de types de poêles pour bains et saunas. Considérez les principaux types de classification afin de comprendre ce que sont les autres poêles de sauna.
La méthode de chauffage des locaux détermine les types de poêles suivants :
- "Noir" - poêles sans cheminée, dans lesquels la fumée est évacuée exclusivement par la pièce et les ouvertures d'air naturelles: ouvertures du toit, du sol, des fenêtres et des portes.
- "Blanc" - poêles plus courants, car leur conception implique l'installation d'une cheminée.

Selon la méthode de chauffage de l'eau, on distingue les modèles de fours suivants:
- avec un réservoir d'eau suspendu au-dessus du poêle ou intégré dans le corps lui-même. Une chaudière ou un réservoir est généralement utilisé comme conteneur ;
- avec un serpentin traversant le four, à travers lequel l'eau froide se déplace et, déjà chauffée, est collectée dans un récipient spécial.
Selon la méthode de placement des pierres dans un compartiment spécial pour elles:
- dans le cas où le poêle est fermé, les pierres sont placées directement dans la cheminée et ce n'est pas la meilleure option ;
- avec un type ouvert, les pierres sont posées dans des récipients spéciaux en fonte ou en acier placés au-dessus du foyer.

Par type de combustion de carburant :
- périodique - vous permet de démarrer les procédures dans le hammam uniquement après que tout le carburant a brûlé;
- les permanents sont plus populaires, car ils peuvent maintenir un processus de combustion constant en jetant occasionnellement des matériaux choisis comme combustible.Lors de leur utilisation, seule la question se pose de savoir comment exactement la chambre de combustion sera placée: à l'intérieur du four ou elle sera amenée dans la bonne pièce du bain pour simplifier le processus de pose du combustible.
Enfin, les poêles sont divisés en plusieurs catégories selon le type de combustible utilisé :
- combustible solide - sur bois, tourbe ou charbon;
- carburant liquide ou gaz - sur carburant diesel, gaz en bouteille ou liquéfié (pour plus de détails: "Comment et lequel choisir un réchaud à gaz pour un sauna");
- électrique - fours qui fournissent un chauffage de haute qualité grâce à des éléments chauffants alimentés par un réseau électrique.
Résultat
Si vous utilisez correctement les informations présentées dans cet article, vous pouvez choisir le poêle de sauna le plus efficace, le plus fiable et le plus durable. Pour ce faire, lors de l'achat, vous devez vous concentrer sur tous ces critères. De plus, si vous le souhaitez, vous pouvez confier le choix à des spécialistes qui prendront en charge non seulement l'achat, mais également l'installation du four avec sa mise en service ultérieure.
Un simple poêle-chauffage en métal pour un bain
L'une des conceptions les plus simples est un four-chauffage rectangulaire en métal. Pour le réaliser, vous devez vous procurer :
- Tôles d'acier (plus de 5 mm)
- Cutter (vous pouvez utiliser une meuleuse)
- Machine de soudage
- Tuyaux
- Pierres et briques réfractaires
- coins métalliques
- Portes et accessoires pour eux (rideaux, loquets)
La base de l'installation est un réservoir rempli d'eau. L'une de ses surfaces est la paroi du four, divisée zonale en deux parties: le réchauffeur et le four. La fumée est évacuée dans la rue par une cheminée.
Un tel poêle de sauna en métal à faire soi-même est construit très facilement et rapidement.Tout d'abord, vous devez décider des dimensions de la future structure et découper les parois inférieure, latérale et arrière du métal préparé. Ils sont solidement soudés ensemble. De l'intérieur, à une certaine hauteur, les coins métalliques sont bouillis - ils serviront de supports pour le bas du radiateur (découpés dans une feuille plus épaisse).
Le périmètre de la paroi avant est ébouillanté avec des bandes d'acier et la porte est montée. Des trous doivent être percés par le bas à travers lesquels l'oxygène nécessaire à la combustion s'écoulera.
Afin que le métal n'entre pas en contact direct avec le feu, l'espace à l'intérieur du foyer doit être revêtu de briques en argile réfractaire.
Dans la feuille qui reposera sur les coins et formera le fond de l'appareil de chauffage, il est nécessaire de percer un trou égal au diamètre de la cheminée et d'y souder un tuyau.
Ensuite, vous devez penser à installer un réservoir d'eau. Il sera composé d'un fond et de trois parois, soudés directement sur un côté du four fini. Dans l'un des côtés (pour qui c'est plus pratique), un trou est fait par le bas et un tuyau est soudé avec un robinet qui draine l'eau.
Vous pouvez monter une conception similaire sur une base en briques (25-30 cm) ou sur un cadre soudé à partir de profilés métalliques. Des pierres d'un diamètre allant jusqu'à 12 cm, mais pas moins de 5 cm, sont posées sur le radiateur.Basalte, porphyrite, etc.
Ensuite, vous devez terminer la cheminée du tuyau qui a été retiré plus tôt. Le réservoir est rempli d'eau et fermé par un couvercle. Le bois de chauffage s'enflamme dans la chambre de combustion et il semble que toute la fumée soit évacuée vers l'extérieur.
Il ne sera pas difficile d'apporter de vos propres mains des modifications au poêle de sauna intégré et d'équiper un cendrier sous le foyer. Ainsi, il sera possible :
- Plus facile à nettoyer des produits de combustion
- Augmenter/diminuer le tirage avec une porte soufflante
Vous pouvez installer la vanne directement sur la cheminée. Avec son aide, il sera possible de contrôler le processus de combustion non moins efficacement.
Instruction vidéo
Chauffage alternatif avec une pompe à chaleur, découvrez comment
Poêle rond à faire soi-même pour un bain
La conception d'un four rond semble simple, dans laquelle le réservoir est situé directement au-dessus de la chambre de combustion. Pour commencer, vous devez préparer un réservoir ou un tuyau d'un diamètre de 0,5 m et d'une hauteur d'environ 1,5 m avec une épaisseur de paroi de 1 cm, des raccords, une vanne à mortaise, un tuyau d'un diamètre de 0,35 m, des portes, des charnières et rideaux, tôles d'acier.
Nous commençons la construction d'un poêle dans le bain de nos propres mains:
- Un gros tuyau doit être coupé en deux parties - 60 et 90 cm, un réservoir d'eau et une chambre de combustion, respectivement
- Un cercle correspondant au diamètre du foyer (50 cm) est découpé dans de la tôle d'acier et soudé au tuyau
- Ici, vous pouvez souder le cadre des jambes jusqu'à 15 cm de haut
- Ensuite, vous devez percer un trou pour le cendrier près du bas, un peu plus haut - pour le four, correspondant aux dimensions des portes achetées, les charnières et un support pour le loquet sont soudés
Une grille est soudée à l'intérieur, faisant passer l'air dans le four à partir du ventilateur, elle est située à une hauteur allant jusqu'à 15 cm du bas
Un panier est fait de barres d'armature et attaché avec du fil de plastique - ce sera un appareil de chauffage. Il est installé au sommet du tuyau, une porte est faite d'une forme appropriée pour la pose de pierres
Vous devez maintenant équiper un réservoir d'eau à partir d'un morceau de tuyau de 60 cm.Le fond y est soudé, à travers lequel passe le tuyau de cheminée, un tube avec une vanne est soudé plus près du fond
Les deux parties structurelles du four sont assemblées et soudées
Le dessus a un double couvercle.La première partie est soudée au tuyau et la seconde est fixée aux rideaux et équipée d'une poignée
Résumé
Construire des poêles dans un bain de vos propres mains est assez simple, mais vous devez aborder le travail de la manière la plus responsable possible. Si la conception est de mauvaise qualité ou avec des erreurs même mineures à première vue, elle ne produira pas la quantité souhaitée de vapeur de haute qualité et peut être très dangereuse en fonctionnement.
Pour commencer, il est recommandé de voir plusieurs fours dans l'otchuyu. S'il y a un maître ou un fabricant de poêles familier, vous ne devriez pas hésiter à lui demander conseil.





































