- Règles d'installation de l'unité extérieure du climatiseur
- paramètres principaux
- Quoi acheter
- Comment masquer une prise système split ?
- Exemples de taille finie
- Principe d'opération
- Unité extérieure en multi-systèmes
- A quoi sert un climatiseur extérieur ?
- Dispositif de module extérieur
- Paramètres et principe de fonctionnement de l'unité extérieure
- La longueur de la ligne de fréon
- Normes de distance entre blocs
- Conduite trop courte
- La distance est supérieure à la norme
- Types de supports
- Supports d'angle
- Structures en profil en U reliées par des boulons
- Supports profilés en U avec renfort supplémentaire
- Supports profilés en U fixés avec une barre horizontale
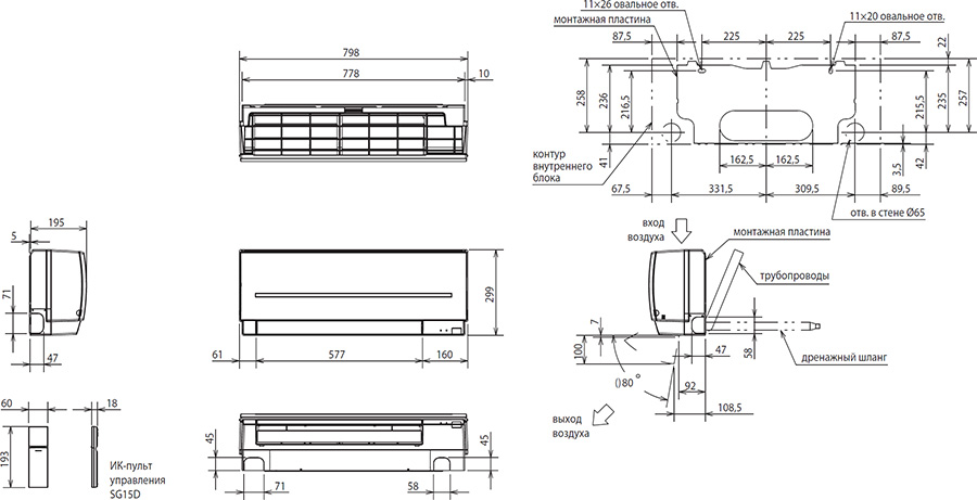
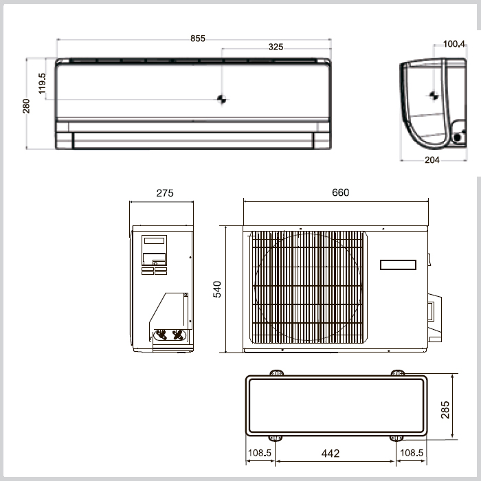
- Pourquoi vous devez connaître les dimensions du climatiseur
- Installation de l'unité extérieure du climatiseur
- Spécifications de l'unité intérieure
- Conclusions et vidéo utile sur le sujet
Règles d'installation de l'unité extérieure du climatiseur
placement normal du bloc avec accès aux vannes de service principales
Avant de procéder à la fixation, vous devez prendre en compte les règles d'installation de l'unité extérieure du climatiseur, dont le non-respect entraîne un fonctionnement incorrect de l'appareil :
- L'appareil ne doit pas rompre le silence la nuit - le bruit maximal autorisé est d'environ 32 dB.Il est nécessaire d'organiser un drain de condensat normal afin qu'il ne tombe pas sur les murs de la maison, la visière du porche et les passants;
- Assurez-vous de prendre en compte la résistance des murs. Il doit supporter une charge de plusieurs dizaines de kilogrammes. Il est impossible de fixer le climatiseur aux structures en béton cellulaire, au revêtement extérieur de la maison et à la couche d'isolation;
- Les supports avec un bloc fournissent la base et la fixation les plus fiables;
- Afin d'éviter la surchauffe du compresseur, la distance minimale entre le mur et l'unité extérieure ne doit pas être inférieure à 10 cm. Il ne doit y avoir aucun obstacle au flux d'air normal ;
- Le climatiseur est placé en tenant compte de la nécessité d'une libre circulation de l'air. Le radiateur a besoin d'un refroidissement normal ;
- Fournir un bon accès aux vannes de service afin qu'une inspection préventive puisse être effectuée ;
- Il est impossible d'autoriser plusieurs flexions de la canalisation en cuivre, car les plis empêchent le pompage normal du fréon par le compresseur;
- La longueur maximale du pipeline entre les modules du système divisé ne doit pas dépasser la longueur définie par le fabricant, sinon l'efficacité du travail diminue sensiblement ;
- Ne laissez pas la lumière directe du soleil tomber à l'arrière de l'appareil, il ne doit donc pas y avoir trop de distance entre le mur extérieur et l'unité extérieure ;
- Il est souhaitable de fournir une protection contre l'humidité.
paramètres principaux
Lors du choix et de l'achat d'une unité extérieure d'un système split, vous devez faire attention à quatre caractéristiques principales :
- Taille, hauteur, largeur, longueur.
- Du pouvoir.
- Bruit.
- Longueur de la ligne.

Les cotes dimensionnelles des unités extérieures dépendent de la puissance et de la fonctionnalité de l'équipement.
- largeur 80 cm;
- hauteur 50cm;
- épaisseur 30 cm.
Les modèles proposés sur le marché peuvent avoir des capacités différentes. Tout dépend de la destination de l'équipement. Un système split domestique standard a une capacité qui vous permet de couvrir un espace allant jusqu'à 100 mètres carrés. M.
Une caractéristique importante de l'unité extérieure est le bruit. Si le climatiseur de la pièce fonctionne sans bruit, l'unité extérieure peut causer des inconvénients importants aux voisins. Lors du choix d'un modèle, il est préférable de clarifier l'indicateur du bruit produit lors du fonctionnement de l'unité externe. Indicateur admissible 32 dB.
Il est nécessaire de faire attention à la longueur autorisée des lignes de connexion entre les blocs.

Quoi acheter
Pour ceux qui sont intéressés par l'achat d'un système split compact à faible consommation, je suggérerai de prêter attention aux 5 modèles suivants :
Des astuces:
- Si la mobilité du climatiseur n'est pas une exigence primordiale, je vous conseille tout de même d'opter pour un système split mural traditionnel. Il n'occupe pas une surface utile dans la pièce, fait moins de bruit et coûtera un peu plus cher qu'un équipement de climatisation mobile de puissance similaire uniquement en raison de l'installation.
- S'il n'y a pas de place pour les appareils muraux ou mobiles, recherchez les appareils à gaine dont l'unité intérieure est cachée derrière le plafond ou dans le grenier. Dans la pièce, seules des grilles spéciales (anémostats) seront visibles depuis le climatiseur.
Je suis tombé sur une invention intéressante - un climatiseur de bureau (regarder la vidéo). Si quelqu'un a rencontré un tel appareil, écrivez des critiques sur son efficacité.
Comment masquer une prise système split ?
Les prises pour le climatiseur sont généralement bien en vue. Ils n'ont pas besoin d'être forcés avec des meubles ou des appareils électroménagers, mais ils peuvent parfois perturber le concept de design global de toute la pièce.
Cela s'applique même aux prises plates modernes, qui ne dépassent que légèrement sur le mur, c'est-à-dire sur les modèles habituels "à ventre plat". Dans ce cas, les concepteurs optent pour de petites astuces et masquent les prises de la manière la plus inhabituelle.
Les prises rétractables spectaculaires sont idéales pour les espaces de vie réalisés dans un style moderne (hi-tech, moderne, gothique, etc.)
Par exemple, la prise est montée dans une étagère sur laquelle se trouve l'équipement climatique, cachée dans une image en trois dimensions à côté du climatiseur, ou réalisée sous la forme d'un bloc qui glisse hors du mur lorsqu'il est pressé. Cette dernière option convient si le climatiseur ne sera connecté qu'occasionnellement à l'alimentation électrique.
Aujourd'hui également, des prises avec couvercles (pliables et rétractables) sont produites. Ces couvertures peuvent en outre être décorées, peintes dans une couleur vive ou rendues aussi invisibles que possible.
L'étagère à côté du climatiseur, dans laquelle la prise électrique est cachée, peut également être utilisée conformément à sa destination, c'est-à-dire vous pouvez y mettre des livres ou des figurines
S'il y a un placard à côté du climatiseur, la prise peut y être cachée et disposée sous la forme d'un bloc rétractable (en haut, en bas ou sur le côté). Il peut également être fermé par un faux panneau ou une corniche.
Si l'équipement de climatisation a un cordon trop long, celui-ci, avec la prise, peut être masqué à l'aide d'un bloc de plaques de plâtre volumétrique non standard fabriqué dans le même style intérieur.
L'installation d'une peinture inhabituelle près du climatiseur dans la chambre, le hall ou le salon vous permet de rafraîchir l'intérieur de n'importe quel espace de vie.
Aujourd'hui également, il existe d'autres moyens de masquer les points de vente.Ils peuvent être fermés dans une petite armoire avec des portes à compartiments ou suspendus avec un miroir pliant. Si le style de l'intérieur le permet, le connecteur peut être placé derrière une petite porte décorative. Une telle solution sera intéressante dans les intérieurs de style campagnard, provençal, chalets, etc.
La sortie peut être recouverte de fleurs artificielles. Dans la chambre ou le salon, vous pouvez utiliser une impression, un panneau de vitrail ou un motif pour masquer le connecteur afin qu'il ressemble à une partie de la composition du design.
Dans la chambre des enfants, la prise électrique peut être dissimulée derrière un panneau multicolore rétractable, une carte interactive ou n'importe quel modèle en trois dimensions. Par exemple, si votre enfant aime Star Wars, vous pouvez cacher le connecteur derrière un modèle en plastique de l'Étoile de la Mort ou du Millennium Falcon.
Vous pouvez cacher la sortie du climatiseur dans un mini-casier dans le salon, dans le couloir, dans la chambre et dans la chambre des enfants
En règle générale, les prises du climatiseur sont cachées de la même manière que les prises des autres appareils électroménagers de la pièce. Le choix de l'une ou l'autre méthode de déguisement dépend des caractéristiques de conception de la pièce. Mais aujourd'hui, certains architectes proposent de ne pas cacher les prises et le câblage du climatiseur, mais de les rendre aussi ouverts que possible.
De plus, le concept de design prévoit l'utilisation de fils de couleurs contrastées (par exemple, fixez des fils noirs sur un mur blanc presque dans la partie centrale du mur). Si le câblage du climatiseur est ouvert, il ne servira à rien d'installer une prise cachée, et ce détail peut être rendu brillant.
Exemples de taille finie
Ainsi, chez Gree, la profondeur du module de chambre n'est que de 18 cm.La longueur et la largeur varient ici entre 70-120 et 24-32 cm, respectivement.
Les climatiseurs Mitsubishi ont les dimensions suivantes : 110-130x30-32x30 cm. Ces dimensions sont prises pour une raison : pour un flux d'air de haute qualité, le rayon d'un ventilateur cylindrique doit être d'au moins plusieurs centimètres et sa longueur doit être d'au moins 45 cm.
Les climatiseurs chinois de Ballu sont les plus petits systèmes. Le modèle BSWI-09HN1 a une unité de dimensions 70 × 28,5 × 18,8 cm Le modèle BSWI-12HN1 est similaire, ne différant que par une unité extérieure légèrement plus grande, dont la taille n'a pas beaucoup d'importance pour l'espace de vie interne.
Mais Supra est le plus avancé avec son modèle US410-07HA avec une unité intérieure de 68x25x18 cm, Pioneer est légèrement en retrait avec le KFR-20-IW de 68x26,5x19 cm, enfin Zanussi a également réussi : le modèle ZACS -07 HPR a une unité intérieure aux dimensions de 70 x 28,5 x 18,8 cm.
Une réduction supplémentaire de la taille des unités extérieures et intérieures pourrait entraîner une diminution de l'efficacité en raison d'une capacité globale insuffisante. Aucun fabricant n'a encore présenté d'unité intérieure rectangulaire dont la longueur ne dépasserait pas 60 cm.
Principe d'opération
Le principe de fonctionnement du module d'ambiance du climatiseur est basé sur la circulation d'air forcé, son refroidissement ou son chauffage. L'entrée d'air dans la pièce se fait par un trou spécial dans le boîtier du module. Le fonctionnement du ventilateur permet au flux d'air d'être repoussé dans la pièce, préchauffé ou refroidi par un échangeur de chaleur situé dans l'unité intérieure du climatiseur.
Grâce au système de filtre installé, des conditions microclimatiques favorables à la santé humaine peuvent être atteintes, même si le climatiseur dessert des locaux domestiques et industriels à faible et moyen niveau de pollution.
Dispositif d'unité intérieure
Unité extérieure en multi-systèmes
Le concept de mise en œuvre technique d'un système divisé prévoit la possibilité d'utiliser plusieurs modules intérieurs dans un complexe, qui sont desservis par une unité extérieure. Contrairement aux configurations standard, le module externe d'un tel système présente des différences d'ingénierie. Pour une intégration dans un multi-système, il est équipé d'un thermostat supplémentaire, qui permet de contrôler plus efficacement les réglages du ventilateur et du compresseur. À son tour, l'unité intérieure du climatiseur agit comme une source de signaux d'information qui déterminent le contrôle du module extérieur. C'est-à-dire que l'utilisateur, à l'aide de la télécommande, accède au panneau de l'unité intérieure, et cette dernière, à son tour, régule le système de communication de dérivation sur la ligne fréon via un canal numérique.
A quoi sert un climatiseur extérieur ?

L'unité extérieure du climatiseur est une des éléments constitutifs d'un système fractionné moderne. Il abrite l'unité de compresseur et de condenseur du système de climatisation. Cet élément d'équipement climatique est conçu pour refroidir ou chauffer une pièce à l'aide d'un fluide frigorigène.
A l'intérieur du bloc se trouvent :
- compresseur;
- vanne à quatre voies ;
- échangeur de chaleur;
- tubes capillaires;
- bobines d'expansion;
- destinataire;
- ventilateur.
Pour maintenir les performances de l'appareil en hiver, un "kit hiver" spécial est parfois installé.
Dispositif de module extérieur
Il s'agit d'une boîte de configuration rectangulaire, à l'intérieur de laquelle sont installés les éléments suivants :
- Le ventilateur est nécessaire pour souffler le condenseur. Grâce à cela, les masses d'air se déplacent activement dans l'unité extérieure.
- Un condenseur est un dispositif spécial conçu pour refroidir le fréon en vue de sa condensation ultérieure.
- Le compresseur comprime le réfrigérant pour le faire circuler dans la conduite de réfrigérant jusqu'à l'unité intérieure.
- Une vanne à quatre voies est installée dans les climatiseurs qui peuvent fonctionner non seulement pour chauffer la pièce, mais également pour la refroidir. Il est nécessaire de changer le sens de déplacement du réfrigérant dans différents modes de fonctionnement de l'équipement climatique.
- La carte de contrôle est située dans les modules externes des unités de type onduleur. De tels dispositifs ont un réglage en douceur de la vitesse de rotation des pales du ventilateur et sont plus résistants aux températures extrêmes et aux influences atmosphériques.
- Des fixations de montage sont nécessaires pour connecter les canalisations en cuivre qui relient deux blocs et sont conçues pour faire circuler le liquide de refroidissement.
- La grille de protection protège l'unité extérieure de divers insectes, de toutes sortes de contaminants et d'objets pouvant bloquer les pales du ventilateur.
- Un tube de vidange est installé pour éliminer l'humidité condensée.

L'unité dispose d'un régulateur de tension qui protège contre les charges de pointe et normalise les paramètres de courant. Certains modèles sont équipés de boîtiers spéciaux qui protègent l'appareil des effets négatifs de la neige, du vent et du gel. Pour protéger contre les chutes de glace, les glaçons et les parties de la finition de façade, une visière est installée au-dessus du module extérieur.
Paramètres et principe de fonctionnement de l'unité extérieure
Le principe de fonctionnement de tout équipement climatique est basé sur le mouvement de l'énergie thermique d'un environnement à un autre. Si l'unité fonctionne pour le refroidissement, elle transfère la chaleur de la pièce vers l'extérieur. Lors du chauffage de l'air d'une maison ou d'un appartement, l'appareil effectue l'action inverse, c'est-à-dire qu'il prélève la chaleur de l'environnement extérieur et la transfère à l'air ambiant.
Lorsque le fréon s'évapore dans l'unité intérieure, il absorbe la chaleur de l'air de la pièce. Et après être entré dans l'unité extérieure, il s'y condense. Dans le sens opposé, le fréon liquide s'écoule de l'unité externe vers le module interne, qui est à nouveau refroidi du fait qu'il a dégagé de l'énergie thermique vers l'environnement externe. L'air ambiant traverse à nouveau le climatiseur et est refroidi, dégageant de la chaleur.
Le principe de fonctionnement du module extérieur est le suivant :
- le fréon gazeux pénètre dans le compresseur à partir d'un conteneur spécial;
- ici, sous haute pression, il entre dans le condenseur, où il passe à l'état liquide et dégage de la chaleur;
- après la perte d'une partie de l'énergie thermique, le réfrigérant passe dans la conduite de fréon ;
- de là, le fréon passe dans un dispositif d'étranglement (ici la pression chute et la substance se refroidit);
- le milieu liquide refroidi pénètre dans les tubes de l'évaporateur, où il commence à circuler activement ;
- des courants d'air chaud de la pièce traversent également l'évaporateur, ils dégagent de la chaleur au fréon et se refroidissent;
- les masses d'air refroidies sont fournies par le climatiseur à la pièce;
- tout en recevant de la chaleur de l'air ambiant, le réfrigérant dans l'échangeur de chaleur de l'unité intérieure passe à l'état gazeux ;
- de l'échangeur de chaleur, le réfrigérant à l'état gazeux retourne au compresseur, le processus se répète à nouveau.

Les paramètres importants des unités externes qui doivent être pris en compte lors du choix d'un équipement climatique sont la puissance de l'unité, le niveau de bruit émis par l'équipement pendant le fonctionnement, la longueur de la ligne et les dimensions. Les dimensions de l'unité extérieure sont directement liées à sa puissance. Les paramètres moyens sont dans les 80x80x30 cm.
La puissance d'un climatiseur domestique standard est suffisante pour refroidir une surface de 100 m². Le niveau de bruit admissible ne doit pas dépasser 32 dB, afin de ne pas gêner les résidents de l'appartement et les voisins.
La longueur de la ligne de fréon
Les utilisateurs de la technologie climatique se disputent souvent sur la distance par rapport à l'extérieur unité de conditionnement d'air à l'intérieurpuis expérimentez l'installation. Ils peuvent être compris - parfois, les caractéristiques de l'intérieur ou l'emplacement des pièces nécessitent une augmentation de la longueur du pipeline.
Mais les installateurs professionnels savent avec certitude qu'il est impossible d'augmenter ou de diminuer arbitrairement la longueur du pipeline. En effet, un écart par rapport aux paramètres requis affecte immédiatement les performances du climatiseur.
Nous découvrirons quelles doivent être les normes d'installation et pourquoi elles ne peuvent pas être modifiées.
Normes de distance entre blocs
Les normes d'installation sont fixées par le fabricant. Si vous suivez les instructions, vous trouverez dans la section d'installation des schémas et des paramètres de fonctionnement sur lesquels vous devez vous concentrer lors de l'installation.
En règle générale, ils indiquent la longueur maximale de l'autoroute, rien n'est dit sur le minimum. Mais dans le kit avec les blocs, vous trouverez des tubes en cuivre pour les connecter - en aucun cas ils ne doivent être raccourcis.
La longueur de la tuyauterie dépend du modèle.
Pour les ménages split-systèmes avec unité murale intérieure les règles suivantes s'appliquent :
- la distance maximale entre les blocs est de 15 m ou 20 m (moins souvent - 10 m);
- la distance minimale entre les blocs est de 3, 4, 5 m (sur la longueur du tuyau dans le kit).
Les données exactes sont indiquées dans les documents techniques pour un modèle spécifique.
Selon les paramètres indiqués dans le tableau, il est clair que lorsque l'itinéraire est prolongé, un remplissage supplémentaire du circuit avec du fréon est nécessaire.
Si le système divisé est équipé d'un tuyau de 5 mètres, il ne peut pas être raccourci. Et si la distance entre les blocs n'était que de 3 m et que le tube était de 5 m ? Il vous suffit de l'enrouler soigneusement en gros anneaux, sans casser ni tordre, et de cacher les 2 m restants dans l'un des blocs.
Conduite trop courte
Si les fabricants n'indiquent la longueur minimale de la ligne de fréon dans aucune des sources disponibles (instructions papier ou électroniques, vidéo), laissez-vous guider par la valeur généralement acceptée - 3 m.Vous ne pouvez pas raccourcir l'itinéraire.
Si nous nous rappelons comment se déroule le processus de transition du réfrigérant d'un état à un autre, nous comprendrons alors qu'un tuyau court ne suffit tout simplement pas pour une transformation complète de la substance. Le fréon, qui n'a pas eu le temps de se transformer en gaz dans l'évaporateur, entrera dans le compresseur sous forme de liquide, ce qui ne doit pas être autorisé.
Les conséquences de l'installation d'une canalisation trop courte sont différentes :
- panne de pièces de climatiseur;
- la transition des vibrations du module extérieur vers le mur ;
- bruits inhabituels pour un climatiseur - gargouillis de fréon dans le pipeline.
Ces problèmes ne peuvent être éliminés qu'en augmentant la longueur du pipeline. Comme vous pouvez le voir, une petite nuance de montage s'est avérée très importante.
La distance est supérieure à la norme
Comme vous le savez déjà, la longueur maximale de la ligne de fréon est limitée à 20 mètres. Cette valeur est pertinente pour les modèles domestiques avec une performance moyenne de 2,5 à 3 kW. Mais pour les unités semi-industrielles de 8 à 9 kW, d'autres limites sont utilisées - la longueur du pipeline passe à 50 m.
On peut en conclure que les paramètres de distance entre les blocs des systèmes divisés sont directement liés à une caractéristique technique telle que la performance.
La chose la plus dangereuse qui puisse arriver si le pipeline est trop long est une diminution de la pression. De plus, les deux sections - gaz et liquide - s'attendent à des conséquences négatives.
Si la pression du gaz chute avant d'entrer dans le compresseur, elle diminue également à la sortie. En conséquence, les paramètres de température diminuent, la congélation se produit.
Il n'y a pas de fonction de chauffage de ligne spéciale, de sorte que le compresseur surchauffe et tombe en panne en raison de la charge. Vous avez examiné les caractéristiques du diagnostic du compresseur et la méthode de sa réparation dans l'article : Comment tracer l'itinéraire du climatiseur : spécificités de l'appareil de communication
Une diminution de la pression dans une section de canalisation avec du fréon liquide entraîne une augmentation de la proportion de gaz. Une teneur élevée en gaz augmente la vitesse du réfrigérant, ce qui entraîne une perte de charge encore plus importante. Dans de telles conditions, le fonctionnement normal du climatiseur est tout simplement impossible.
Mais il existe une solution : pour réduire les pertes de charge dans la ligne, augmentez le diamètre du tuyau en cuivre. Pour cela, utilisez la formule :
Les installateurs professionnels conseillent d'augmenter la longueur de la ligne de fréon uniquement dans les sections horizontales.
Afin de ne pas recourir à des calculs complexes, il est recommandé d'augmenter le diamètre tuyaux de gaz (il est légèrement plus épais) par 1 taille : c'est-à-dire remplacer 3/8 par 1/2, 1/2 par 5/8, etc.
Nous vous déconseillons de faire vous-même l'installation habituelle d'un climatiseur ou de remplacer les tuyaux. Les professionnels expérimentés savent mieux gérer les cas difficiles et éviter les problèmes.
Types de supports
Les supports pour le montage stable des climatiseurs ont des éléments horizontaux sur lesquels l'unité installée est placée et sécurisée contre les déplacements spontanés, et des parties verticales qui sont pressées contre le mur. Des trous sont prévus pour faciliter la fixation.
Dans la plupart des cas, les supports ressemblent à des pièces en forme de L utilisées par paires. Les différences concernent généralement la forme des profilés utilisés dans la fabrication et la présence d'éléments supplémentaires destinés à renforcer la structure.
Important! Pour la production de supports utilisés à l'air libre, on utilise de l'acier de construction inoxydable ou ordinaire avec traitement anti-corrosion.
Supports d'angle
Ce type de fixation le plus simple est réalisé par soudage perpendiculaire d'angles d'une épaisseur d'étagère d'au moins 2 mm. Il est capable de supporter des charges modérées, mais avec le temps, les vibrations affectent négativement la résistance de la couture.
De plus, un endommagement accidentel du revêtement anti-corrosion peut entraîner une diminution rapide de la résistance du produit et une modification de sa configuration.
Structures en profil en U reliées par des boulons
Ces supports sont plus fiables en raison de la présence de raidisseurs supplémentaires et d'un boulonnage résistant aux vibrations.Les fixations en acier galvanisé ne se corrodent pas pendant longtemps et peuvent être remplacées par des neuves si des dommages sont suspectés.
Supports pour unité extérieure
Supports profilés en U avec renfort supplémentaire
Cette conception est similaire à la précédente, mais comporte des éléments verticaux quelque peu allongés, auxquels une flèche supplémentaire est attachée à un certain angle. Il donne à l'ensemble du système une rigidité absolue et lui permet d'être chargé d'une charge assez lourde.
Supports profilés en U fixés avec une barre horizontale
De tels appareils, en plus de toutes les qualités positives des modèles décrits précédemment, sont également résistants au déplacement horizontal et faciles à monter au mur. Ils peuvent être installés sous les équipements les plus coûteux et les plus critiques.
Pour information! La présence de trous allongés sur les étagères horizontales des supports les rend adaptés à une installation sous n'importe quelle marque de climatiseurs.
Pourquoi vous devez connaître les dimensions du climatiseur
Pour les personnes soucieuses de leur santé et de leur bien-être, peu importe la quantité d'électricité consommée par le climatiseur.
Pour que le système fonctionne efficacement et maintienne la température au niveau souhaité, il est nécessaire de sélectionner le système climatique en tenant compte de ses dimensions et de sa puissance.
Il est recommandé d'installer des systèmes split dans les chambres et les bureaux. Il a été prouvé qu'à des températures supérieures à +26 et inférieures à +22 degrés, la productivité du travail diminue. Cela affecte négativement le rythme de travail, la psyché. Un climatiseur correctement dimensionné assurera le maintien d'un microclimat optimal dans la pièce
La taille du climatiseur est particulièrement importante pour les petites pièces.Les grands systèmes dans les petits espaces auront l'air volumineux et gâcheront l'apparence. De plus, lors de leur installation, de sérieuses difficultés peuvent survenir: l'appareil acheté peut ne pas tenir dans l'espace prévu à cet effet.
La climatisation est importante à positionner correctement. Du plafond, vous devez maintenir la distance recommandée par le fabricant
En règle générale, il se situe entre 60 et 150 mm. La distance optimale du mur perpendiculaire au système est de 400 mm.
Si ces exigences sont ignorées, l'efficacité de l'équipement sera faible.
Récemment, de nouvelles approches du placement des climatiseurs sont apparues. Il existe maintenant des unités intérieures verticales de systèmes split en vente. De tels appareils sont équipés d'une sortie latérale de l'air refroidi.
Les climatiseurs d'angle n'ont pas l'air aussi volumineux que les climatiseurs rectangulaires, ils prennent moins de place. De tels modèles sont la meilleure option pour les petites pièces.
Il est important de choisir un climatiseur d'une forme et d'une taille telles qu'il s'intègre parfaitement dans l'endroit qui lui est destiné et ait une apparence organique à l'intérieur de la pièce. De plus, l'appareil ne doit pas être trop bruyant.
Installation de l'unité extérieure du climatiseur
Lors de l'installation de climatiseurs, des kits d'installation spéciaux sont utilisés, qui comprennent des tuyaux flexibles, des supports avec des ensembles de matériel de fixation, des communications de drainage, etc. L'installation physique du segment est réalisée à l'aide de composants porteurs intégrés dans les murs à l'aide de éléments d'ancrage. Au même stade, des supports sont utilisés, dont le potentiel de puissance est orienté vers la masse d'un module particulier. De plus, l'installation de l'unité externe du climatiseur prévoit sa connexion de communication avec le segment interne.Pour ce faire, un trou du diamètre requis est pratiqué dans le mur, ce qui permettra d'organiser, en plus du câblage principal, également la pose d'une pompe à vide et d'un collecteur de jauge. Au stade final, une connexion directe des communications entre les deux blocs est établie.
Spécifications de l'unité intérieure
Pour choisir le modèle optimal de climatiseur, vous devez porter une attention particulière aux caractéristiques techniques de l'appareil. Chaque fabricant peut avoir son propre ensemble de caractéristiques de performance, mais la liste principale d'indicateurs est la même pour tous et comprend les éléments suivants :
- Consommation d'énergie. Souvent, la valeur totale est indiquée pour les unités extérieure et intérieure, où le module intérieur ne consomme qu'une petite partie - pas plus de 100 à 200 watts.
- Puissance de chauffage.
- Puissance de refroidissement.
- Flux d'air. Indique la quantité d'air que l'appareil est capable de traverser lui-même par unité de temps.
- Dimensions de l'appareil.
- Le poids.
- Zone recommandée. Facilite le choix des consommateurs en indiquant pour quels volumes de locaux le dispositif sera optimal.
Toutes ces données sont écrites dans la documentation jointe, ainsi que sur le panneau d'information sur l'appareil lui-même.
Conclusions et vidéo utile sur le sujet
Informations générales sur les climatiseurs gainables :
Théorie et expérience pratique :
Un exemple d'installation d'un système de répartition des canaux dans un appartement en ville :
Pour une "pièce de kopeck" de ville standard avec des plafonds de 2,5 ou une petite maison de campagne, qui est plus souvent utilisée de manière saisonnière, pendant la saison chaude, un système de canaux n'est pas nécessaire. Mais pour un appartement spacieux avec de hauts plafonds ou un cottage, un système split de type canal peut être la meilleure solution pour améliorer le microclimat dans les pièces.
Pour installer l'équipement, vous devrez vous lier d'amitié avec des serruriers et des installateurs, vous ne pouvez pas faire face à vous-même à l'installation d'une unité techniquement complexe. Ce sera beaucoup plus cher qu'un système split classique. Mais le résultat sera plus élevé - vous obtiendrez une conception fiable qui vous fournira de la fraîcheur, de la chaleur ou simplement de l'air frais lorsque vous en aurez besoin.
Vous voulez parler du fonctionnement de votre système de climatisation gainable ? Avez-vous des informations utiles sur un sujet qui mérite d'être partagées avec les visiteurs du site ? Veuillez laisser des commentaires dans le formulaire ci-dessous, publier des photos et poser des questions.




































