- Sélection des matériaux
- Concevoir
- En bref sur les principaux
- Nous commençons à construire. Cesspool et renfort de mur
- Où construire une toilette
- matériaux
- du bois
- de la brique
- Et du carton ondulé
- En contreplaqué ou panneau OSB
- Fondation ou soutiens
- Siège de toilette
- Toilettes à faire soi-même à la campagne - dessins et dimensions + photo
- cloaque
- Organisation d'un cloaque
- Comment faire soi-même un placard à poudre de tourbe?
- Étape 1. Se préparer pour le travail
- Étape #2. Règles de base pour la construction d'un cabinet de toilette
- Types de toilettes extérieures
- Standard
- Toilette extérieure sans fosse - salle d'eau
- WC extérieur avec fosse étanche
- Placard sec - une sous-espèce de placard à poudre
- Types de toilettes de campagne
- placard de jeu
- nettoyage
- Normes sanitaires
- Armoire à poudre
- Fondation
- Comment faire un cloaque ?
Sélection des matériaux
Si un bain public ou un belvédère se trouve loin de chaque site, les toilettes sont indispensables pour une vie confortable à la campagne. Comme d'autres bâtiments, de belles toilettes pour chalets d'été peuvent être fabriquées à partir de différents matériaux.
Avec toit en pente
Un placard en brique n'est pas typique du paysage d'un chalet d'été. C'est un bâtiment capital avec toutes les exigences qui en découlent; il est érigé une fois pour toutes. Pour une toilette en brique, une fondation solide est coulée, une maçonnerie lisse et soignée est réalisée et un toit en dur est couronné.
Une belle toilette extérieure en brique ne craint pas les catastrophes météorologiques, mais elle est rarement installée. Des toilettes capitales chaudes nécessitent des dépenses importantes, en plus, elles ont besoin de plus d'espace que d'autres options.
Immeuble de la capitale
La conception de la tôle profilée sur un cadre en métal peut difficilement être qualifiée de confortable. Bien qu'il soit de haute qualité et fiable, il fait chaud en été et froid au printemps et en automne. Par conséquent, il est recommandé de gainer un bâtiment métallique.
Du carton ondulé
Les entreprises industrielles produisent des cabines métalliques de haute qualité. Ils sont équipés d'isolation, font la doublure intérieure. Grâce à la production par convoyeur, les produits ont un faible coût.
Les projets finis comprennent des cabines en plastique multicolores. Ils sont faciles à installer, mais nécessitent une fixation soignée.
Projet de porte contrastée
Le plus souvent, le bois est utilisé pour concevoir des toilettes dans le pays. Le bois est populaire pour plusieurs raisons : il est abordable, facile à traiter et possède une surface texturée. Le bois n'est pas lourd, il n'est donc pas nécessaire de construire une fondation pour une toilette en bois.
modèles de bois
Les murs en bois retiennent bien la chaleur et respirent. Leur résistance aux intempéries et aux ravageurs peut être renforcée par un simple traitement de surface. Le bois traité reste inoffensif pour l'homme.
Durabilité maximale
À propos des toilettes de campagne en bois dans la vidéo suivante :
Concevoir
Il existe quatre formes architecturales principales qui, associées à une variété de décors, couvrent la plupart des idées de toilettes de campagne. Ils présentent les différences suivantes :
Cabane. L'option de conception la plus primitive, ce qui implique sa force et sa résistance au vent.La cabane occupe plus de terrain que les autres formes, et pour qu'elle devienne confortable et que vous n'ayez pas à vous cogner la tête sur les surfaces latérales, le cheval doit être élevé à une hauteur de trois mètres ou plus. Vous pouvez oublier d'économiser des matériaux.
cabane
Nichoir. C'est aussi une option assez facile à mettre en place, qui occupera en plus moins de terrain qu'une cabane. Mais à cause de sa puce - un toit en appentis, le bâtiment est plus fortement soufflé par le vent et empire la chaleur. Sur le toit, vous pouvez installer un réservoir en métal avec de l'eau. Cette conception de toilettes extérieures ne peut pas être qualifiée de belle, elle est donc placée dans la cour et masquée de plantes.
Sous un toit en polycarbonate
Loger. En termes de consommation de bois, la maison est comparable à un nichoir, mais structurellement plus solide et plus chaude ; il est souvent complété par une fenêtre pour la lumière naturelle et la ventilation. La forme de la maison est propice à l'utilisation de différents types de finitions décoratives.
Façon chalet
Cabane. La conception est plus compliquée que d'autres dans la mise en œuvre, mais elle s'avère particulièrement durable et à l'intérieur, il y a un espace supplémentaire pour une petite étagère et un lavabo. La cabane, en tant que plus belle toilette du pays, se joue facilement dans différents types de design. Il est facile de s'intégrer dans n'importe quel paysage, la cabane est parfaite entourée de fleurs et d'arbustes.
Le projet d'une cabane avec un toit décoratif
À propos des idées de toilettes de campagne dans la vidéo suivante :
En bref sur les principaux
L'aménagement d'une toilette de campagne commence par le choix du design. L'amélioration de la qualité de vie influe sur le choix : un placard sec est de plus en plus préféré à un cloaque classique. Lors du choix d'un lieu, les normes esthétiques et sanitaires, ainsi que le niveau des eaux souterraines, jouent un rôle important.
Pour la construction, le bois est plus souvent choisi, il existe des cabines en métal et en plastique.Option de brique pour donner - une rareté. La conception d'une toilette d'été dans le pays dépend de plusieurs paramètres. Il est créé sur la base de quatre formes de base (bien qu'il existe également des copies exclusives), et diversifié avec un décor et une décoration à votre goût.
Nous commençons à construire. Cesspool et renfort de mur
Cloaque
C'est la toilette avec puisard qui est la plus demandée en raison de sa simplicité de fonctionnement. Toutes les impuretés tombent dans une fosse profonde. Lorsqu'il est rempli aux 2/3, il faut le nettoyer. Il y a aussi la possibilité de le transférer, mais nous en parlerons ci-dessous.
Pour renforcer les futurs murs, plusieurs options optimales sont utilisées. Par exemple, vous pouvez prendre des planches prétraitées avec un antiseptique, des anneaux de béton, des briques, un tonneau sans fond ou de vieux pneus. Des précautions doivent être prises pour éliminer les eaux usées du puisard.
Si la maçonnerie est utilisée, la brique est posée en damier et les six dernières rangées sont solidement posées. Si un placard à jeu est équipé, une excellente étanchéité de la fosse est nécessaire ici. Par conséquent, une chape est coulée au fond ou simplement recouverte de gravats. Si un puisard en brique est fabriqué, un sol en béton est coulé sur le dessus. Pour cela, le coffrage est constitué de barres et de planches. Une fois le béton durci, le cadre doit être démonté.
Si vous ne voulez pas nettoyer constamment la fosse, vous pouvez la remplir et déplacer la maison à un autre endroit. Après plusieurs mouvements, il peut être remis à sa place d'origine et les déchets en décomposition peuvent être utilisés pour fertiliser les lits.
Où construire une toilette
Pour les latrines à fosse, il existe un certain nombre de normes et de restrictions sanitaires et hygiéniques dont dépend leur emplacement sur le site.Distances minimales entre les toilettes et d'autres objets :
- Aux sources d'eau (puits, puits, lacs, rivières) - 25 m;
- Aux maisons, caves - 12 m;
- Vers une douche ou un bain d'été - 8 m;
- À l'arbre le plus proche - 4 m et aux arbustes - 1 m;
- Aux clôtures - au moins 1 m.
Schéma : l'emplacement correct des toilettes par rapport aux autres bâtiments du chalet d'étéImportant ! Lors du choix d'un chantier de construction, il convient de considérer non seulement les objets situés sur votre propre site, mais également ceux situés sur le site voisin.
Pour que les soirées d'été en terrasse ne soient pas gâchées par l'ambre, le lieu est choisi en tenant compte de la rose des vents. Si le site est situé sur une pente, il est préférable de placer les toilettes au point le plus bas.
matériaux
En tant que matériaux pour la construction des toilettes, vous pouvez utiliser différentes options. Souvent, ce qui reste de la construction des structures principales sur le site est utilisé.
Pour équiper un cloaque, vous aurez besoin des éléments suivants :
- le sable;
- mélange de ciment;
- gravier;
- renforcement pour renforcer la fondation;
- un treillis métallique pour s'adapter au fond et aux parois de la fosse, ainsi que des épingles métalliques pour fixer ce treillis au sol.
Une autre option au lieu d'un maillon de chaîne et de béton est une brique, qui définit également le fond et les parois de la fosse. Vous pouvez également utiliser un anneau de puits en béton, qui a des trous dans ses parois ou de gros pneus en caoutchouc. L'option la plus simple consiste à acheter un conteneur spécial prêt à l'emploi, traité avec une solution septique et produit en différentes tailles.
La maison de toilette peut être fabriquée à partir de différents matériaux.
du bois
Pour fabriquer un bâtiment en bois peu lourd, il est préférable d'utiliser des planches. A partir d'une barre, la structure sera plus lourde, dans ce cas, vous devez d'abord prendre soin de la fondation.
La version la plus courante des toilettes de campagne est constituée de planches de bois. Il présente à la fois des avantages et des inconvénients.
Les avantages d'un bâtiment en bois comprennent:
- Aspect esthétique. Par rapport à une maison en métal ou en plastique, une maison en bois semble plus solide et confortable. De plus, il s'intègre harmonieusement dans l'atmosphère naturelle, car il est fait de matériaux naturels.
- La construction d'une telle maison ne nécessite pas de coûts financiers importants.
- Durabilité. Avec un traitement rapide du bois avec des solutions de protection et le nettoyage de la surface de la saleté, le bâtiment peut durer de nombreuses années.
- L'arbre lui-même a la propriété de neutraliser les odeurs désagréables, surtout la première fois après l'installation de la structure, dégageant un agréable arôme de forêt.
- Si le bâtiment devient impropre à une utilisation ultérieure, il peut être facilement démonté et éliminé à l'aide d'un poêle ou d'un feu à allumer.
de la brique
C'est une option solide, laborieuse et coûteuse. Il nécessitera également la construction d'une fondation. Il faut comprendre que l'utilisation de ce matériau ne fournira pas de chaleur supplémentaire à l'intérieur des toilettes. Pour ce faire, la pièce doit être isolée séparément, en utilisant des matériaux légers, tels que la mousse.
Et du carton ondulé
Une telle structure peut être érigée sans dépenser plus de temps et d'efforts. De plus, un bâtiment léger est obtenu à partir de la feuille profilée, ce qui ne permettra pas au sol de se déposer.
En contreplaqué ou panneau OSB
Option assez simple et pratique. Sa construction ne nécessitera pas beaucoup de temps et de coûts financiers.Vous pouvez également utiliser ce matériau pour recouvrir un cadre construit à partir d'un tuyau profilé ou de bois.
Les inconvénients d'une structure en bois sont les facteurs suivants :
- Tous les bâtiments en bois sont inflammables et en cas d'incendie, ils sont complètement détruits en peu de temps. Ceci peut être évité par une imprégnation spéciale avec une solution résistante à la chaleur.
- Si la surface n'est pas traitée avec un agent spécial, les planches peuvent rapidement devenir humides et pourrir.
- Le bois est un matériau dans lequel divers insectes peuvent commencer à détruire le bâtiment. Seul un traitement périodique des locaux avec un pesticide peut les éliminer.
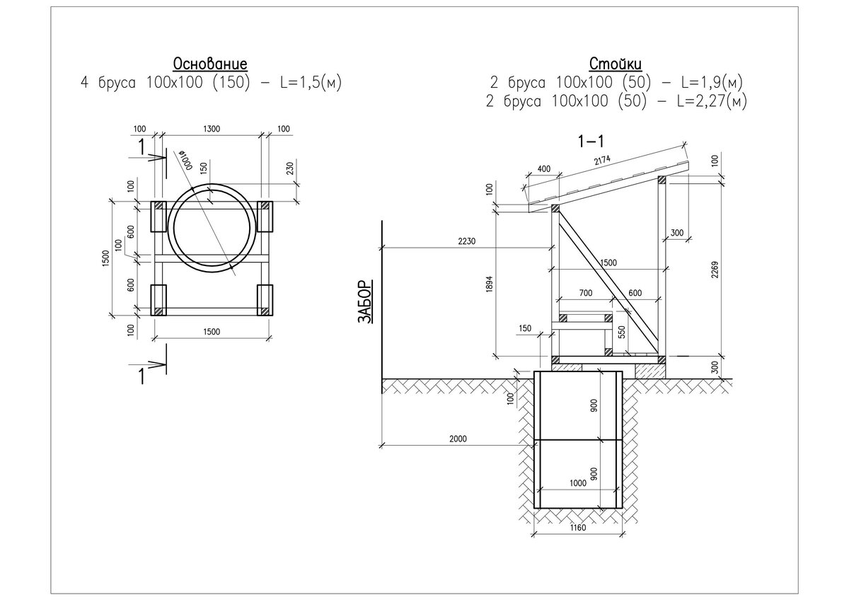
Fondation ou soutiens
Une maison simple peut être montée dès que la fosse pour les restes est complètement prête. Il n'y a rien de super naturel dans le processus de montage s'il y a un projet :
- Le bâtiment a une densité insignifiante et il suffira donc d'approfondir 4 supports constitués d'un tuyau métallique. S'il n'y en a pas, il est permis de faire des piliers de briques. Options existantes pour aménager la fondation d'une toilette extérieure
- Des barres 5x5 cm le squelette est équipé. Tout d'abord, assemblez deux rectangles en fonction de l'échelle des toilettes, puis reliez-les avec 4 barres verticales, les deux piliers arrière doivent être plus bas que les piliers avant, du montant de la pente du toit.
- Les supports sont fixés en montant une écharpe à partir d'une barre pour donner de la force à la structure.
- À une hauteur de 50 cm, un siège de toilette est monté, il vaut la peine de clouer deux barres sur le cadre. Le processus d'assemblage du cadre de toiletteFinition de la toilette extérieure
- Une caisse est fabriquée à l'étage, dont l'étape dépendra du choix du matériau de toiture. Lorsqu'il est prévu de recouvrir le toit d'une feuille d'ardoise, une caisse auxiliaire n'est pas nécessaire.Le processus de gainage du cadre des toilettes avec des planches
- S'il vous reste, par exemple, des carreaux souples de la construction de la maison, vous devez d'abord poser la feuille OSB, puis l'imperméabilisation, et seulement après cela, installez les carreaux. Le processus de recouvrement du cadre des toilettes avec des carreaux
- Mettez deux supports auxiliaires à la place de la fixation de la porte en bois sculpté.
- Placez le cadre préparé sur le cadre, qui s'est avéré être sur la base et procédez au revêtement.
Voyez dans la vidéo comment créer rapidement une fondation pour une toilette de campagne.
Siège de toilette
La conception la plus simple est un trou rond ou en forme de losange dans le sol. Mais plus confortable à utiliser comme une toilette.
Appliquez les solutions suivantes :
- toilettes achetées pour une résidence d'été. Un produit en plastique qui se différencie de l'habituel par l'absence de siphon ;
- une vieille chaise avec un trou dans le siège ;
- siège de toilette fait maison, assemblé sous la forme d'une boîte. Le cadre des barres peut être gainé, par exemple, de contreplaqué résistant à l'humidité;
- un siège de toilette sous la forme d'une planche avec un trou fixé sur un tuyau en acier de grand diamètre monté verticalement. L'extrémité supérieure du tuyau est dépliée avec une «camomille», faisant plusieurs coupes à partir de l'extrémité, ce qui vous permet d'y attacher une planche.
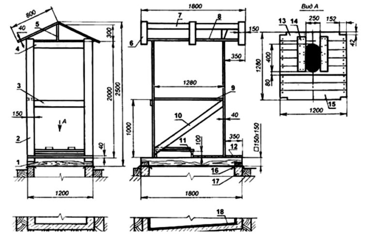
Toilettes à faire soi-même à la campagne - dessins et dimensions + photo
Pour que le bâtiment réponde pleinement à ses exigences, un dessin doit être élaboré avant le début de la construction.
Lors de la planification de l'espace intérieur, vous devez vous assurer que la cabine est confortable et sûre à utiliser. La hauteur du bâtiment ne doit pas être inférieure à deux mètres.
Pour faciliter l'utilisation des toilettes la nuit, il convient de prévoir l'alimentation en éclairage électrique. Sinon, il vaut la peine de prévoir une petite fenêtre sur le dessus pour fournir un niveau de lumière naturelle suffisant.

Parfois, une fenêtre est prévue sur la porte. La même fenêtre servira de ventilation. Si son dispositif n'est pas fourni, un tuyau d'échappement sera nécessaire.
Lors du choix des dimensions des futures toilettes, vous devez faire référence à la zone. Pour qu'en été ce ne soit pas étouffant à l'intérieur, il vaut la peine de privilégier la partie ombragée du site et de maintenir la distance minimale par rapport au puits, puits, réservoirs ouverts.
cloaque
Les cloaques sont une question distincte. Les nuances de leur construction et comment vous pouvez vous en passer seront discutées ci-dessous.
Appareil de toilette extérieur: photo
Et cette figure montre un schéma de la construction d'un bloc économique et d'une toilette dans la cour. Une attention particulière doit être portée au réflecteur 1, qui est l'un des principaux composants de la toilette, car c'est lui qui dirige les matières fécales vers l'avant de la fosse de vidange. Puis toute la masse glisse progressivement dans la poche dite de pompage. Au cours de ce processus, les masses rejetées sont mélangées avec des bactéries. C'est grâce au réflecteur que la bonne biocénose se produit. Si vous ne l'utilisez pas, la fosse devra être 2 fois plus profonde et plus volumineuse. Les drains "gris" peuvent se fondre dans une fosse sans réflecteur et tomber également dans sa partie avant. Afin d'éviter les infiltrations dans le sol, il est impératif d'utiliser un caisson béton borgne 4 et un sas en terre cuite 3. Une porte de visite et de nettoyage 2 est également indispensable.
Organisation d'un cloaque
Si vous devez construire de vos propres mains une structure telle qu'une toilette dans le pays, une instruction, un dessin avec des dimensions, vous aidera à organiser ce travail. Souvent, l'égout d'une telle structure est un réservoir de stockage. Il est assez facile de construire un tel système.Mais vous devez d'abord choisir la bonne taille et l'emplacement. Si vous faites une erreur, les eaux usées empoisonneront non seulement le sol, mais la vie même du propriétaire du site.
Au début des travaux, de nombreuses questions se posent souvent sur le thème de la fabrication de toilettes à la campagne de vos propres mains, d'un dessin et de la meilleure façon de creuser un trou? Pour ce faire, vous pouvez utiliser une pelle ou louer les services d'une excavatrice.
Mais ce n'est pas important, mais la finition ultérieure du drain. De nombreux matériaux sont utilisés pour construire des fosses.
La durée de vie de la structure finie dépend du choix correct de la technologie de fabrication.
Vous devez savoir que les fosses d'égout peuvent être cumulatives et filtrantes. Les accumulations nécessitent des pompages fréquents et le filtre pollue le sol. En principe, les fosses avec un indicateur d'étanchéité insuffisant sont interdites, mais elles sont toujours construites dans les zones périurbaines.
Les fosses de toilettes à faire soi-même dans le pays sont construites à partir de:
- briques;
- réservoir en plastique;
Pour construire un tel système à partir du matériau sélectionné, il est nécessaire de creuser un trou, il est préférable de le faire avec une pelle. Le volume de cette conception n'est pas grand, mais avec l'aide d'une pelle, il sera égal. Ainsi, le processus de pose des briques est facilité. Au cours de cette procédure, il convient de prendre en compte les paramètres de la brique et la couche d'étanchéité. Il est préférable de creuser 20 cm plus large et plus profond que nécessaire.

Lorsqu'une fosse pour toilettes dans une maison de campagne est creusée de vos propres mains, elle doit être équipée. Le fond doit être compacté, recouvert d'une couche de sable de 15 cm et également compacté étroitement. Ensuite, des briques brisées et des treillis d'armature sont posés sur la zone inférieure. Et ils sont coulés avec du béton, également avec une couche de 15 cm.Si le fond est du type filtre, une couche de pierre concassée est coulée sur la couche de sable.
Pour la pose de briques, il est nécessaire de remplir la fondation autour du périmètre. La finition des murs du drain d'égout pour les toilettes de la maison de campagne de vos propres mains est réalisée sur une demi-brique. Pour ce type de finition, il est recommandé d'utiliser une brique de type silicate, le rouge est une option plus adaptée. Une fosse à faire soi-même pour une toilette dans la maison de campagne en parpaing durera plus longtemps. Une fois la maçonnerie terminée, s'il est décidé que la fosse sera étanche à l'air, il est nécessaire de combler les vides et les joints avec du mortier ou du mastic, puis de la recouvrir.
S'il existe des dimensions et un dessin des toilettes dans le pays de vos propres mains, vous pouvez organiser le chevauchement de cette manière:
- Pour construire une dalle de plancher, vous devez d'abord remplir les vides entre la maçonnerie et le sol avec de la terre. Lors d'une telle manipulation, il est souhaitable de laisser une distance de 20 cm au sommet de la structure, lors de cet écart, il est nécessaire de couler du béton, qui servira de renfort sous le plafond.
- Pour éviter que le béton ne tombe dans la fosse, il doit être recouvert de feuilles de métal ou d'étain, mais pour s'assurer que la feuille ne se plie pas, des supports sont installés dans la fosse. La solution elle-même est faite de ciment et de sable. Il est conseillé de prendre du ciment grade 400. Le lot se fait dans un rapport de 1 à 3, à savoir 1 ciment et 3 sable. S'il y a de la pierre concassée, il est préférable de l'ajouter, car la qualité de la solution s'améliore et elle devient plus fiable. La dalle est coulée en une seule pièce.
Pour rendre la dalle plus fiable, le site est renforcé et ensuite seulement il est coulé. Pour faire des toilettes à la campagne de vos propres mains, des dessins vous aideront.
Lors de la conception d'une fosse de vidange pour une toilette dans une maison de campagne avec vos propres mains, des instructions, un dessin avec des dimensions doivent être nécessaires, surtout si du plastique est utilisé
Il est important de considérer qu'il faut creuser un tel trou un peu plus grand, d'une vingtaine de centimètres de chaque côté. Le remplissage du fond s'effectue selon le même principe que dans les fosses à briques
Mais même lors du renforcement sous la dalle de plancher, il faut faire 2 boucles. Un réservoir leur sera attaché à l'avenir.
Une fois le béton complètement durci, un conteneur est descendu dans la fosse et attaché aux boucles, ce qui empêchera le matériau léger de flotter à la surface sous l'influence des eaux souterraines. Maintenant, vous devez remplir les vides entre la fosse et le réservoir lui-même avec de la terre. L'idéal serait que les vides soient remplis d'un mélange de sable et de ciment.
Il est recommandé de remplir le récipient avec de l'eau tout en remplissant les vides. Ainsi, il ne s'effondre pas sous la pression.
Comment faire soi-même un placard à poudre de tourbe?
Puisque nous savons déjà que les matières fécales traitées à la tourbe font un bon engrais, avant de construire un placard à poudre, pensez à l'emplacement du site de compostage.
Étape 1. Se préparer pour le travail
Pour construire un cabinet de toilette, nous avons besoin de :
- planches;
- contre-plaqué;
- attaches (vis et clous);
- siège de toilette.
Le siège prêt à l'emploi peut être acheté au magasin.
Étape #2. Règles de base pour la construction d'un cabinet de toilette
Avant de fabriquer des toilettes en tourbe dans le pays, vous devez assembler une boîte. Pour ce faire, nous avons besoin de quatre planches, qui doivent être fixées ensemble avec des vis autotaraudeuses. Afin de pouvoir installer l'accumulateur de matières fécales à l'intérieur de la boîte, une découpe est pratiquée dans sa partie avant.
Ensuite, prenez une feuille de contreplaqué et faites un trou dedans.Cette feuille sert à gainer la partie supérieure de la boîte. Nous installons du contreplaqué de manière à ce que le trou technique soit situé directement au-dessus du réservoir de stockage.

Pour la commodité de placer le lecteur sous le trou technique, il n'est pas du tout nécessaire de faire une découpe à l'avant du boîtier: vous pouvez simplement faire plier l'élément en contreplaqué
Vous devez attacher les pieds à la boîte, en calculant leur hauteur afin de pouvoir facilement installer et retirer le lecteur. Il reste à fixer un siège confortable autour du trou technique. Comme déjà mentionné, un siège de placard à poudre peut être acheté au magasin. Selon le matériau de fabrication, cela vous coûtera de 250 à 5000 roubles.
Sous le trou se trouve un récipient pour les matières fécales. Il doit être immédiatement rempli d'environ cinq centimètres de tourbe. Il est préférable d'avoir plusieurs conteneurs de stockage afin de pouvoir les changer au fur et à mesure qu'ils se remplissent.
Comme tout autre, une toilette en tourbe a besoin de ventilation. A cet effet, vous pouvez utiliser le tuyau que nous connaissons déjà avec un déflecteur qui y est attaché. Il n'est pas nécessaire de l'abaisser dans le conteneur lui-même. Un trou dans la porte de la cabine sera également utile. Il augmentera le niveau de ventilation et permettra l'utilisation de la lumière du jour pour éclairer la cabine.
L'article suivant vous familiarisera avec les dessins des toilettes en bois de campagne, réalisées sous la forme d'une cabane, dont nous vous conseillons de lire le contenu.
Types de toilettes extérieures
Lors de la construction d'une résidence d'été, même pour une vie saisonnière, un système d'égouts et une salle de bain doivent être équipés dans la maison. Une autre chose est que si vous êtes souvent dans la rue, presque personne ne voudra traîner la saleté des lits dans la maison lors de la visite des toilettes.
La solution à ce problème est la construction de latrines dans la rue.
La construction d'une telle structure doit être traitée avec une attention particulière. Après tout, une telle structure n'est pas destinée à un usage temporaire.
La meilleure option serait de conclure un accord avec une équipe de construction qualifiée. Les professionnels effectueront les travaux de manière qualitative et la structure durera de nombreuses années.
Envisager des options pour les latrines modernes.
Standard
C'est une petite maison familière à tout le monde avec une fosse en dessous. Pour sa construction, ils creusent généralement un trou et placent les toilettes elles-mêmes au-dessus. Lorsque la fosse est remplie, elle est nettoyée, pour laquelle une machine spécialement équipée (puisard) est appelée.
Cette version des toilettes pour une résidence d'été a fait ses preuves. Auparavant, cette méthode de construction de latrines était utilisée partout. Aujourd'hui, il existe des moyens plus modernes d'éliminer les eaux usées.

La "cabine" standard n'est pas d'origine, mais fait correctement son travail
Toilette extérieure sans fosse - salle d'eau
Il est principalement utilisé dans les cas où il n'est pas possible de creuser un trou ou s'il n'est pas nécessaire d'utiliser fréquemment les toilettes.
Ce type de chalet d'été est pratique pour sa compacité. Le siège des toilettes est placé sur un petit récipient. Après chaque visite dans cette pièce, il est nécessaire de verser un mélange spécial de tourbe dans le récipient. D'autres types de remblai sont également possibles : terre, cendre, sciure, feuilles sèches broyées, etc. Il aide à se débarrasser des mauvaises odeurs.
Il y a aussi des aspects négatifs d'un tel bâtiment : un petit volume du conteneur. Si les toilettes sont régulièrement utilisées par un grand nombre de personnes, le conteneur devra souvent être vidé, par conséquent, cela n'a de sens dans un tel achat que si les toilettes seront utilisées de temps en temps.

Salle d'eau - toilette sans fosse
WC extérieur avec fosse étanche
Cette solution convient aux personnes qui ne peuvent pas éloigner la structure de l'espace de vie principal. Néanmoins, il devra être utilisé en cas de nappe phréatique haute ou de présence de toute autre source d'eau à proximité de la parcelle.

Une fosse étanche est constituée de conteneurs en béton ou en plastique
Placard sec - une sous-espèce de placard à poudre
Si vous souhaitez acquérir une telle conception, il faut garder à l'esprit que sa capacité de travail nécessite un nettoyage environ une fois par semaine. La principale différence avec le cabinet de toilette est la séparation des déchets. Dans deux conteneurs, les eaux usées sont séparées en solides et liquides.
Il n'y a pas d'odeur désagréable ici, ce qui s'explique par la lente oxydation d'otdov. La condition principale pour cela est un couvercle de toilette bien fermé. Mais vous devez vous assurer que les mouches ne volent pas dans les toilettes. Si les insectes commencent à pondre des œufs, les vers commenceront dans la biomasse et l'oxydation rapide des déchets humains commencera. En conséquence, la distribution de l'odeur correspondante commencera.
Les options de remblai pour les placards secs sont différentes. Le produit est versé dans le couvercle des toilettes. Lorsqu'il est relevé, une partie du remblai tombe dans le trou d'évacuation. Après fermeture du couvercle, la poubelle est automatiquement remplie.

Design de placard sec reconnaissable
Types de toilettes de campagne
Considérons trois types: contrecoup - placards à poudre, placards secs.
placard de jeu
Il tire son nom du conduit de ventilation, associé à la cheminée. En raison de son échauffement, une traction se forme. Naturellement, pas d'odeurs. En été, pour créer un tirage, un simple radiateur tel qu'une lampe à incandescence de 15 à 20 W est intégré dans la partie inférieure de la cheminée.
La fosse est périodiquement pompée.
Il devrait avoir un mur extérieur, une fenêtre y est aménagée.
Riz. 3.1 - cheminée; 2 - canal de jeu ; 3 - couverture isolée; 4 - trappe d'égout standard; 5 - tuyau de ventilation; 6 - château d'argile; 7 - murs de briques.
Riz. 4. Placard de jeu intérieur avec ventilation individuelle
Une conception sanitaire assez compliquée, mais impeccable. Le calcul du volume est le suivant: lors du nettoyage une fois par an, 1 mètre cube par personne: avec quatre - 0,25 mètre cube. Pour tout calcul, la profondeur est d'au moins 1 mètre : le niveau du contenu ne doit pas être à moins de 50 cm du sol.
La fosse est étanche : un fond en béton est coulé sur le château d'argile, les parois sont également en béton ou revêtues de briques. Les surfaces internes sont isolées au bitume. L'évent doit toujours être plus haut que le bord du tuyau d'évacuation.
Bien sûr, un tel schéma ne correspond pas tout à fait au concept de maison de campagne, mais ce type de toilettes ne provoquera pas de réclamations de la part des voisins ou des autorités locales.
Il est très important!. Même conception de type de rue
La même conception du type de rue.
Riz. 5 ; 1 - conduit de ventilation; 2 - couvercle scellé; 3 - château d'argile; 4 - coque hermétique de la fosse; 5 - contenu ; 6 - panneau d'impact; 7 - fenêtre d'aération.
Il existe de nombreux modèles de siège de toilette, il est produit spécifiquement pour ces toilettes et appareils sanitaires.
Riz. 6. Cuvette de toilette pour placards de jeu.
Diamètre du trou intérieur 300 mm, couvercle non inclus.
nettoyage
Au fil du temps, du limon se forme dans la fosse, ce qui empêche le liquide de s'écouler. En conséquence, le trou se remplit rapidement.
Afin de rétablir sa filtration, les artisans conseillent de mélanger le contenu par voie chimique : chaux vive, carbure de calcium, levure.Un effet positif peut être observé dans 1 à 2 cas sur 10. Dans le reste - de gros problèmes.
Aujourd'hui, il existe une large gamme d'agents biologiques et de stimulants pour les puisards qui éliminent les boues sans bruit ni poussière, transforment le contenu en compost, adapté à la culture même de légumes.
Bien sûr, cela prend du temps : au moins 2 à 3 ans, selon la température annuelle moyenne, respect strict des instructions du fabricant, notamment en termes d'application. L'odeur peut être éliminée en quelques semaines.
Si cela n'a pas de sens pratique ou est contraire aux traditions culturelles, faire appel à un véhicule spécial résoudra tous les problèmes. Lorsque de telles visites semblent coûteuses, il est temps d'envisager une autre option, dont nous parlerons ci-dessous.
Normes sanitaires
Vous devrez construire de vos propres mains des toilettes de campagne avec un puisard, en tenant compte du fait qu'avec un débit quotidien moyen inférieur à 1 mètre cube, il peut avoir un fond ouvert, d'en haut il ne peut être fermé.
Il est libéré du contenu au moins 2 fois par an. Le signal pour cela est que le niveau du contenu est à moins de 35 cm du niveau du sol.
La désinfection des puisards des latrines de rue est réalisée avec un mélange d'une telle composition.
- Chlorure de chaux 10%.
- Hypochlorite de sodium 5 %.
- Naphtalizol 10%.
- Créoline 5%
- Métasilicate de sodium 10 %.
L'eau de Javel sèche pure est interdite : libère du chlore mortel lorsqu'elle est mouillée.
Armoire à poudre
Ici, la fosse est remplacée par un petit récipient. Il existe des seaux avec un couvercle scellé, qui est retiré avant la procédure. A son extrémité, le contenu est « saupoudré » de matière organique. Il y a une odeur lorsque le couvercle est ouvert, surtout par temps chaud. L'utilisation de biopréparations le réduit considérablement.
Riz. sept.1 - fenêtre de ventilation; 2 - couverture; 3 - siège de toilette; 4 - capacité ; 5 - cadre en bois; 6 - base de cadre; 7 - remblai de gravier et pierre concassée; 8 - porte.
Les avantages de cette conception sont qu'une toilette extérieure n'est pas nécessaire. Il peut s'agir d'un angle de dépendance, d'un sous-sol. La présence d'une fenêtre ou d'un tuyau de ventilation est requise.
La poudre de placard se transforme facilement en compost et vice versa. Une solution rationnelle consiste à le combiner avec une douche ou une buanderie.
Riz. 8. Structure combinée.
Les modèles modernes sont présentés par Elena Malysheva.
Les toilettes électriques laissent derrière elles une poignée de cendres, mais vous ne pouvez pas les utiliser comme engrais. Ceci s'applique également aux appareils chimiques.
Fondation
Un bâtiment de si petite taille n'a pas besoin d'une fondation enterrée au niveau du gel du sol: les forces de soulèvement maximales provoqueront une légère inclinaison, mais elles ne pourront pas détruire la cabine. Pour une "maison" à ossature de poutres ou de métal laminé, une fondation en colonnes est construite à partir de 4 piliers dans les coins.
Les piliers sont fabriqués de deux manières:
- après avoir creusé un renfoncement de tailles pratiques à une profondeur de 40 à 50 cm, un coussin de drainage en sable et gravier de 20 cm d'épaisseur (damé) est disposé au fond de celui-ci et une colonne de briques est érigée juste au-dessus du niveau du sol. C'est-à-dire que la hauteur de ce dernier sera de 20 à 30 cm.Ensuite, l'excavation est remblayée, en tassant soigneusement le sol autour de la colonne. La brique utilisée est rouge (céramique). Le silicate (blanc) dans le sol deviendra vite inutilisable ;
- avec une perceuse de jardin, un trou rond est formé dans le sol à une profondeur de 40 à 50 cm, un mélange de sable et de gravier est versé au fond et un tuyau en plastique de grand diamètre est placé dans la cavité. Ensuite, une hypothèque est fixée à l'intérieur du tuyau sous la forme d'une épingle à cheveux et du béton y est coulé.
Si le chantier n'est pas protégé du vent par des arbres ou des bâtiments, la fondation est enterrée plus profondément afin que la «maison» ne se renverse pas. Dans ce cas, la colonne en béton est renforcée par trois tiges verticales disposées sous la forme de nervures d'un parallélépipède à base triangulaire (elles sont reliées en un seul cadre par des traverses plus fines).
Pour une toilette en brique, une fondation en bande peu profonde est disposée. Le béton est renforcé avec une ceinture de trois barres de renforcement situées plus près de la semelle (avec une pénétration importante - deux ceintures, supérieure et inférieure). Les coins sont renforcés avec des tiges pliées en forme de L - cela assure une connexion rigide entre les bandes.
La distance minimale entre le bord intérieur de la fondation et le bord du puisard est de 30 cm.
Comment faire un cloaque ?
Pour que la salle de bain soit fabriquée dans le pays selon toutes les règles, il est important de respecter strictement certaines exigences sanitaires et hygiéniques:
un emplacement pour les toilettes doit être situé à une distance d'au moins 20 m du puits;
il est inacceptable de placer une salle de bain au centre même de la cour;
lors du choix d'un emplacement pour les toilettes, il faut tenir compte du fait qu'il se trouve à au moins 1 m du bord de la parcelle voisine;
lors de l'installation directe des toilettes, il faut tenir compte de la rose des vents pour ne pas ressentir d'odeur désagréable ;
lors du choix d'un emplacement pour les toilettes, vous devez vous assurer qu'il existe une opportunité pour l'entrée d'un camion d'égout.
Pour respecter toutes les normes d'hygiène, les points suivants doivent être pris en compte :
- La fosse de drainage doit avoir une profondeur d'au moins 2 m ;
- La fosse d'égout est réalisée dans une configuration carrée, dans laquelle la longueur de chaque côté doit être de 1 m.Il est également possible de faire un trou en forme de cercle d'un diamètre intérieur de 2 m, afin d'y installer des anneaux en béton armé.
Parmi les méthodes possibles de scellement du puisard, la pose d'anneaux en béton offre la plus grande fiabilité. Cette option est préférée pour les raisons suivantes :
- la conception des anneaux en béton armé ne permettra pas au ruissellement de pénétrer dans les eaux souterraines ;
- vous assurerez une protection contre la contamination de la future récolte.
En utilisant des anneaux en béton armé pour un puisard, vous pouvez garantir un haut niveau d'étanchéité des égouts dans le pays.
Il y a quelques décennies, des planches de bois ou des briques étaient utilisées pour renforcer la fosse d'égout de l'intérieur. Maintenant, afin de verrouiller solidement les drains, des anneaux en béton sont utilisés et le fond est réalisé sur la base d'une chape en béton. Certes, cette option présente un inconvénient important: pour nettoyer un tel puisard, il est nécessaire d'impliquer une machine à égoutter. Cependant, si votre chalet n'est pas utilisé toute l'année, vous n'aurez pas à engager de frais importants pour garder la salle de bain propre.
de nouvelles entrées
Tronçonneuse ou scie électrique - que choisir pour le jardin 4 erreurs lors de la culture de tomates en pots que presque toutes les ménagères fontLes secrets de la culture des semis des Japonais, très sensibles à la terre
Considérant diverses options pour l'installation d'une fosse septique dans le pays, de nombreux propriétaires choisissent un système de drainage. Cependant, cette option pour une salle de bain n'est conseillée que si la famille consomme de l'eau en petite quantité. Le fait est que si le taux de consommation d'eau est suffisamment important, cela créera certaines difficultés d'élimination des déchets.De plus, lors de l'utilisation du système de drainage, le propriétaire et les membres de sa famille sentiront constamment dans la cour, car dans ce cas, le risque de contamination des eaux souterraines est élevé.
En général, le système de drainage est réalisé selon le même schéma que celui décrit ci-dessus. La différence est qu'elle ne nécessite pas l'installation d'une dalle en béton armé, à la place la fosse est remplie d'une couche de sable et de gravier :
- le sable doit être à gros grains et avoir une épaisseur d'environ 10 cm;
- gravier de granit est recommandé d'utiliser une petite fraction et de le recouvrir d'une couche de 5 cm.
La partie supérieure de la fosse septique est recouverte d'un géotextile thermocollé. Cependant, lorsque vous décidez de construire une telle fosse septique, vous devez tenir compte du fait que les services environnementaux ont une attitude négative envers de telles structures.












































