- Que rechercher lors de l'achat, comment décider du lieu d'installation
- Caractéristiques de l'installation d'installations de différents fabricants
- Types de systèmes d'installation
- Bloquer
- Cadre
- Instructions pour l'installation d'un WC d'angle sur pied
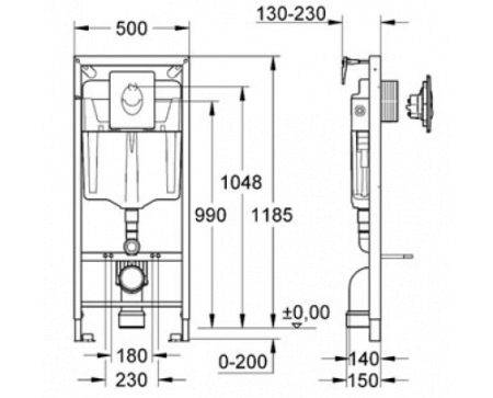
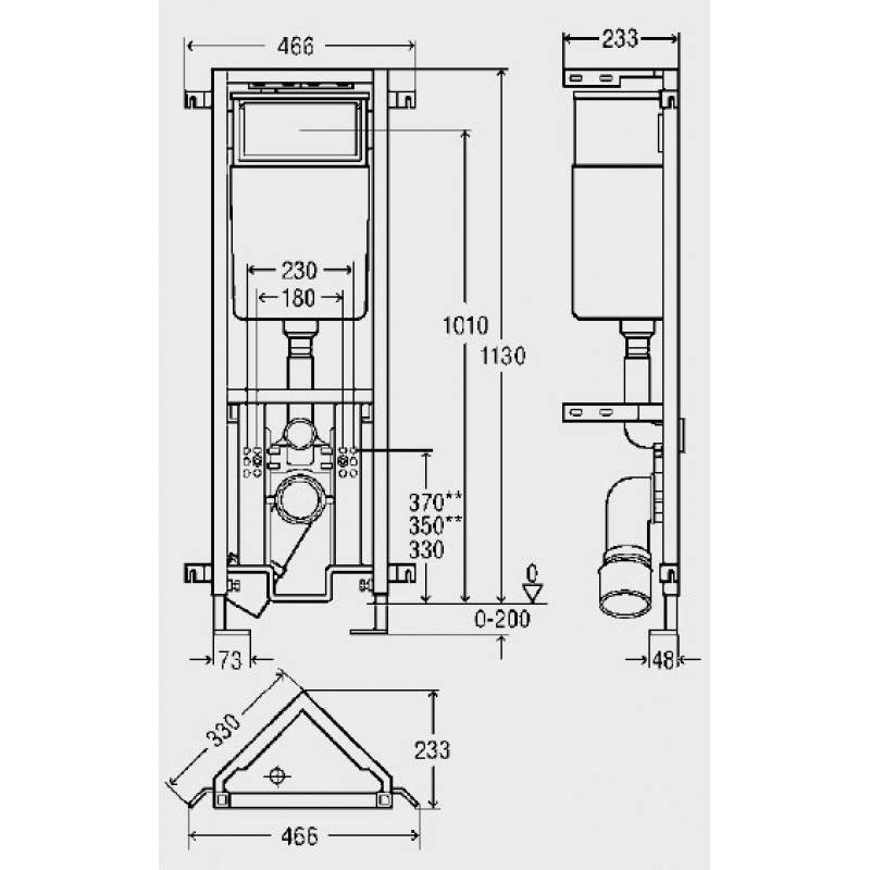
- Dimensions des installations pour une cuvette de toilettes de différents fabricants
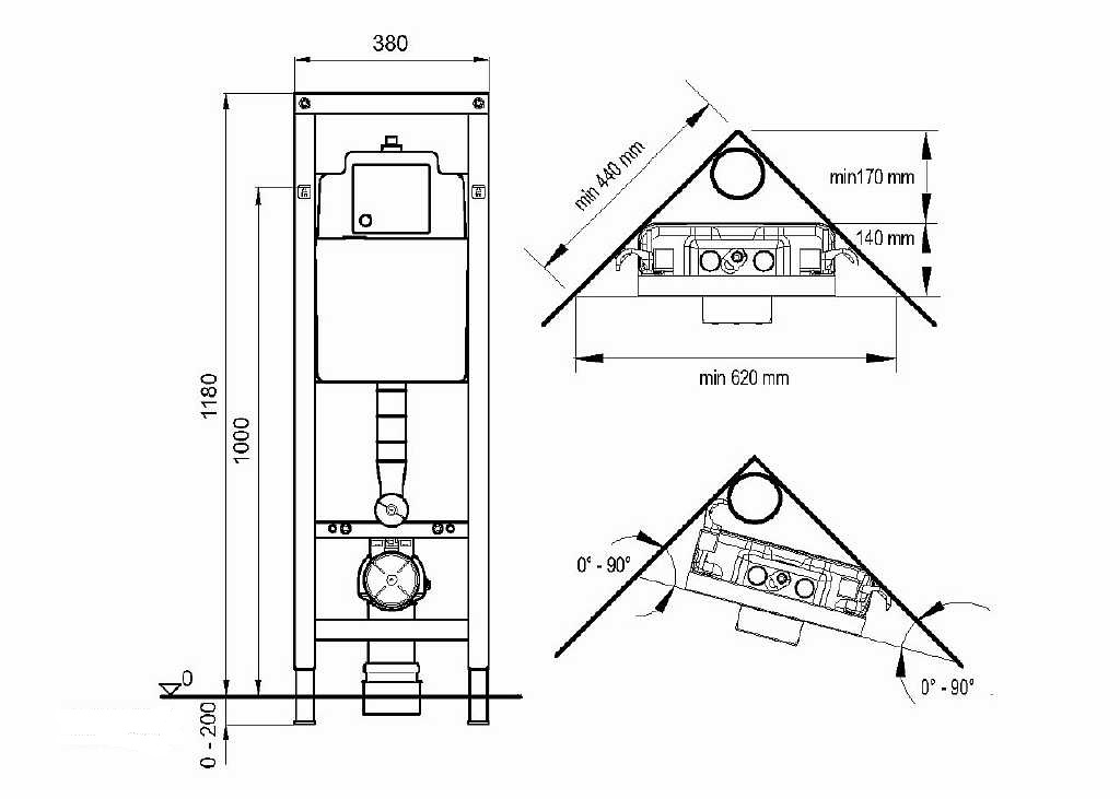
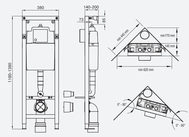
- Conception de modèles d'angle
- Quels outils seront nécessaires ?
- Étapes d'installation d'une cuvette de toilettes avec installation
Que rechercher lors de l'achat, comment décider du lieu d'installation
Le choix de la taille de la boîte pour l'installation de la cuvette des toilettes dépend en grande partie des dimensions de la salle de toilette: si la pièce a une grande surface, vous pouvez envisager d'installer non seulement une cuvette de toilette intégrée, mais également un bidet. Dans ce cas, il vaut mieux s'arrêter à l'achat d'un système de cadre. Si la salle de bain a un mur principal, une structure en blocs fera l'affaire. Pour une salle de bain avec une configuration non standard ou pour une petite surface, les experts recommandent de choisir des modèles d'angle.
Sur cette base, nous pouvons conclure que le choix de la taille de la boîte pour l'installation de la cuvette des toilettes doit être effectué non seulement en fonction des préférences personnelles, mais également conformément aux normes d'installation élémentaires.La taille de l'installation de la cuvette de toilette intégrée doit être telle qu'il y ait une distance de plus de 60 cm entre le bord de la cuvette et le mur ou la surface la plus proche d'un autre meuble. Sinon, il sera peu pratique de positionner le jambes, car elles s'appuieront contre la restriction.

Installation standard - convient pour une installation dans des pièces sans restriction de taille
Pour une utilisation plus confortable, la même distance doit être laissée sur les côtés des toilettes. Le bol est fixé à une distance de 18-20 cm du corps de l'installation. Cet indicateur doit être pris en compte lors du calcul des dimensions de la cuvette des toilettes avec l'installation dans le plan, qui est établi avant même l'achat de l'ensemble du système.
Avant d'effectuer un achat, vous devez étudier le plan d'étage, choisir le bon emplacement d'installation et, en tenant compte de cela, choisir le type de construction :
- Si vous prévoyez une installation standard près d'un mur latéral ou central, vous pouvez acheter à la fois un bloc et un type d'installation de cadre auprès de n'importe quel fabricant.
- Pour installer le système sous une fenêtre ou dans une pièce de petite hauteur, par exemple au grenier, vous devez choisir les dimensions des installations de toilettes encastrées réduites en hauteur - 82-85 cm.
- Si vous souhaitez installer des appareils des deux côtés de la structure, achetez une installation avec un type de montage à deux côtés qui vous permet de fixer deux éléments de plomberie indépendants.
- Dans une salle de bain dans laquelle l'installation de plusieurs produits suspendus est prévue, une installation de type linéaire d'une largeur de 115 cm ou plus doit être installée.

Avant de choisir un modèle d'installation, il est nécessaire de savoir où il sera installé.
Le cadre de l'installation est principalement de forme rectangulaire et vous devez choisir une option qui correspond aux paramètres de la niche.Si les dimensions de la boîte pour l'installation de la cuvette des toilettes sont plus grandes que la structure elle-même, l'espace restant doit être rempli d'un type de matériau de construction doté de caractéristiques d'insonorisation. Une option universelle est le choix d'un cadre, dans lequel la partie supérieure est réglable, ce qui vous permet d'ajuster la taille de l'installation à une boîte de n'importe quelle taille.
Pour que l'achat procure du plaisir pendant longtemps et ne nécessite pas de réparations, vous devez acheter des produits uniquement auprès de fabricants de confiance. Dans ce cas, vous devrez débourser un peu plus pour la marque, mais le plus souvent cette décision est justifiée. Sur la base des avis des plombiers et des utilisateurs, nous pouvons distinguer les entreprises suivantes qui ont fait leurs preuves sur le marché de l'installation :
- Geberit, qui a lancé la production de réservoirs sans soudure uniques. L'entreprise a pensé à de telles dimensions d'installations qui permettent l'installation, malgré toutes les difficultés, par exemple, dans le cas de tuyaux peu espacés.
- Grohe est un fabricant allemand reconnu spécialisé dans la production d'articles de plomberie. Tous les cadres d'installation sont en métal de haute qualité et traités avec un revêtement anti-corrosion.
- Viega est une autre entreprise allemande qui se consacre principalement à la production de cadres d'installation. En règle générale, dans les kits fabriqués par l'entreprise, il n'y a pas de cuvettes de toilettes.

Pour une utilisation plus confortable, vous devez laisser une distance sur les côtés des toilettes
En plus de ces entreprises, il existe un grand nombre d'autres fabricants qui jouissent d'une bonne réputation sur le marché russe :
- TECE ;
- Roca ;
- MATIN APRÈS-MIDI;
- Cersanite.
Caractéristiques de l'installation d'installations de différents fabricants
Rappelez-vous, dans la liste des facteurs affectant la taille, il y avait des paramètres individuels des fabricants ? Le fait est que nombre d'entre eux, voulant se démarquer sur le marché de l'installation, utilisent des solutions techniques originales. Prenons l'exemple de plusieurs entreprises :
- Grohé. Il a une rangée de trous en hauteur pour les goujons. De plus, l'entreprise présente un choix pour le consommateur: il peut placer le bouton affleurant à l'avant ou sur le dessus (par exemple, si l'installation est située sous le rebord de la fenêtre). Les jambes sont réglables verticalement de 20 centimètres.
- Geberit. Les cuvettes de toilettes de cette société sont également équipées d'un bouton universel, qui peut être situé à l'avant ou en haut. Les jambes sont réglables non seulement verticalement, mais également horizontalement, dans la plage de 0 à 20 centimètres.
- Cersanite. Dans le contexte des précédents, ils sont plus économiques, l'élan des jambes prend jusqu'à 17 centimètres, cependant, la différence est insignifiante.
- Tece. Structures de châssis, les montants sont réglables en hauteur, de 0 à 18 centimètres.
- Viega. Les installations de ce fabricant se distinguent par deux à quatre rangées de trous pour les broches.
Geberit a choisi de miser sur la diversité et une large gamme. Ainsi, elle a sorti un grand nombre d'installations, leur hauteur totale dépend du type de réservoir qui leur sera attaché. Ce qui est intéressant : lors du choix d'un réservoir, vous aurez le choix entre trois installations de hauteur différente. Ainsi, pour le modèle Omega, ce sera 82, 98 et 112 centimètres, pour le Sigma - 112.
La même société produit le modèle universel Geberit Duofix UP320 d'une hauteur de 112 cm.Si la largeur du bol suspendu est de 18 à 23 cm, alors absolument tout conviendra à cette installation, vous pouvez donc choisir celui que vous voulez et l'intégrer à votre décoration intérieure.
Comme vous pouvez le voir, il existe de nombreuses possibilités pour ajuster la hauteur des toilettes suspendues à votre taille. Cela ne sera empêché ni par les normes (qui relèvent plus de recommandations que de règles strictes), ni par les erreurs des constructeurs qui installent des égouts au hasard. Vous pouvez mettre un podium, vous pouvez connecter les toilettes via un té, ou vous pouvez utiliser la possibilité d'ajuster la hauteur prévue pour de nombreuses installations de cadre.
Types de systèmes d'installation
Il peut y avoir de nombreuses différences mineures, mais l'essentiel est de savoir à quoi l'installation doit être attachée. Sur cette base, ces structures sont divisées en deux types:
Bloquer
De telles structures sont accrochées au mur, ce qui, bien sûr, doit être capital. Si vous réparez une telle installation sur une partition mince, elle s'effondrera immédiatement sous le poids de l'utilisateur.

Blocage de l'installation
Cadre
Les installations de ce type sont également appelées autoportantes. Ils ne sont pas fixés au mur et transfèrent toute la charge au sol, ils ont donc des pieds renforcés. Ainsi, une conception similaire peut être installée même à proximité d'une cloison en plaques de plâtre.
Instructions pour l'installation d'un WC d'angle sur pied

matériaux et outils :
- perforateur;
- Tuyau ondulé;
- mastic (pour correspondre à la cuvette des toilettes ;
- boulons;
- tuyau pour le raccordement à l'eau.
Étapes d'installation :
- Vous devez d'abord ajuster le trou d'égout et la cuvette des toilettes.
- Une extrémité du tuyau ondulé est placée sur le trou des toilettes et l'autre sur le trou d'égout.
- Marquez l'endroit où fixer les toilettes.
- Faites un trou sur les marques avec un perforateur.
- Les toilettes sont fixées au sol avec des boulons.
- La cuvette de vidange est implantée sur une cuve (conception solide). Pour ce faire, les trous de vidange sont combinés, en essayant de ne pas déplacer le joint en silicone qui protège l'installation des fuites d'eau. Ensuite, les vis sont serrées.
- Un tuyau flexible est attaché, qui est ensuite connecté à l'alimentation en eau.
- À l'aide de mastic, couvrez les espaces à la base de la cuvette des toilettes. Ceci est nécessaire pour éviter les bavures.
- Vérifier le réservoir de vidange. Si rien ne fuit lors de la vidange de l'eau, les toilettes sont correctement installées.
Dimensions des installations pour une cuvette de toilettes de différents fabricants
Le bon choix de marque est la clé du fonctionnement à long terme de tout produit à un coût minimal. L'analyse des produits de différents fabricants nécessite un certain temps. Cependant, cette approche est pleinement justifiée.
Conformément à de nombreuses critiques de spécialistes et d'utilisateurs, les marques suivantes sont aujourd'hui les leaders du marché.
Geberit est une entreprise dont l'histoire a commencé avec la production de réservoirs sans soudure. Les cadres d'installation de cette marque, en raison de leurs dimensions, permettent d'installer des appareils de plomberie dans des pièces aux caractéristiques de conception différentes. Cela inclut les situations où la distance au mur est minime.



Outre les trois premiers, le marché intérieur présente des produits de haute qualité de marques telles que:
- Cersanite ;
- Tece ;
- MATIN APRÈS-MIDI;
- Roca.
Geberit propose à ses clients toute une gamme d'installations appelées Duofix. Des modèles équipés de réservoirs de vidange sont proposés aux clients, en tenant compte de leurs exigences.
Par exemple, le modèle Omega est disponible en hauteurs de 82, 98 et 112 cm.

La hauteur de la citerne Sigma est de 112 cm et son épaisseur n'est que de 8 cm.Grâce à un tel appareil ultra-mince, les développeurs ont réussi à créer un système d'installation avec une distance minimale du mur. Et le plus abordable est le modèle conçu pour installer la citerne Delta.
En analysant les caractéristiques techniques des produits de ce fabricant, il convient de souligner le modèle Duofix UP320. Grâce à ses dimensions, il est universel et compatible avec presque toutes les cuvettes de WC. Ainsi, la distance entre les goujons de montage peut varier entre 18 et 23 cm.
Les principaux avantages concurrentiels du modèle UP320 de la collection mentionnée incluent une facilité d'installation maximale. Aucun outil supplémentaire n'est requis pour l'installation. La boîte d'installation est équipée de supports autobloquants réglables en hauteur jusqu'à 20 cm.La hauteur, la largeur et la profondeur de cette conception sont de 112, 50 et 12 cm.

Un autre représentant de la gamme de modèles Duofix est le modèle portant le numéro 458.120.11.1, conçu pour le modèle de réservoir Delta mentionné ci-dessus. Les développeurs ont prévu une installation de type caché sur des faux murs en plaques de plâtre. Lors de la détermination des dimensions de la boîte, il faut tenir compte du fait que la profondeur, la hauteur et la largeur du cadre sont respectivement de 12, 112 et 50 cm.

Récemment, des produits de la marque allemande Grohe ont été fabriqués en Thaïlande et au Portugal. Malgré cela, sa qualité reste constamment élevée et la clientèle continue de croître régulièrement. Solido-39192000 peut être distingué parmi les modèles les plus populaires de cadres d'installation.Sa base est un cadre autoportant en acier à haute résistance avec un revêtement anticorrosion de haute qualité.
L'installation peut être installée au mur ou au sol devant une cloison en plaques de plâtre. Conformément aux critiques, cette conception se distingue par la commodité de fournir des communications. La profondeur, la hauteur et la largeur du modèle sont de 23, 113 et 50 cm.
Le Rapid Sl-38721-000 est également l'un des produits Grohe les plus populaires. Il est complété par un réservoir de vidange d'un volume de 6 à 9 litres et d'une hauteur de 120 centimètres. Le coffret se monte devant un mur ou des cloisons et permet de régler rapidement l'installation du WC.
Comme dans le cas précédent, ce système est équipé de fixations pour l'installation de la plomberie, dont la distance est standard de 18 à 23 cm.Le raccordement de l'alimentation en eau et des égouts peut être effectué d'un côté plus pratique. Le tuyau de sortie a une taille de 9 cm, et la largeur et la profondeur de la structure sont respectivement de 50 et 16,5 cm.

Conception de modèles d'angle
Les modèles d'angle diffèrent visuellement. Par exemple, la façon dont ils sont placés vous permet de créer une structure en blocs directement dans vos toilettes. Vous pouvez facilement placer deux appareils de plomberie différents par paires, mais ils seront dans le même bloc et ne feront qu'un.

Le design est le principal problème de toute toilette. Après tout, il faut non seulement prendre en compte toutes les règles d'hébergement, mais aussi le faire de manière à ce que les invités ne soient pas visuellement repoussés par la pièce.Les toilettes d'angle sont conçues pour se fondre dans la pièce. Cela rend l'appareil presque invisible, il n'interfère avec personne. Non seulement physiquement, mais aussi visuellement.
Il existe un grand nombre de modèles différents sur le marché, chacun trouvera son propriétaire. Les couleurs, les matériaux, la texture, le design diffèrent. Seule l'installation et ses règles ne changent pas. Par conséquent, les toilettes d'angle sont devenues très populaires récemment, dépassant leur homologue "direct".
Quels outils seront nécessaires ?
L'installation d'une installation de toilettes de vos propres mains ne nécessite en principe aucun outil professionnel coûteux. Pour faire face au travail, il suffit d'avoir les éléments suivants dans votre arsenal :
- Marqueur ou crayon ordinaire.
- Niveau bâtiment.
- Mètre ruban.
- Perforateur. Dans le même temps, une perceuse à béton doit être à portée de main, dont le diamètre doit être proportionnel au trou de fixation, qui à son tour est fourni avec l'installation elle-même.
- Clés à fourche dont la section doit également correspondre au diamètre des fixations utilisées.
Étapes d'installation d'une cuvette de toilettes avec installation
La clé de nombreuses années de fonctionnement sans problème de l'équipement est l'installation correcte de la plomberie avec installation
Il est important d'installer l'équipement dans le bon ordre
L'exécution des travaux de plomberie d'installation est généralement divisée en les étapes suivantes:
Installation de structures de plomberie - l'opération doit commencer par marquer les sites d'installation et fixer l'équipement. Ensuite, l'installation de la plomberie est effectuée avec l'alignement soigneux obligatoire par rapport aux murs et au sol.

Mise en place mise en place
Installation de la cuvette des toilettes (y compris l'équipement suspendu) - une attention particulière lors des travaux d'installation doit être accordée à l'ajustement exact des raccords de tuyauterie.
Finition - consiste à installer des panneaux décoratifs finis en tenant compte de la conception globale de la salle de toilette.







































