- Comment fixer au mur ?
- Installer une baignoire en acrylique sur un cadre
- Nous tordons le cadre
- Fixation de la baignoire au cadre
- Montage écran
- Préparation des outils et du matériel
- construction en brique
- pose de briques
- Étanchéité
- Orienté vers
- Instructions étape par étape pour l'installation d'une baignoire en acrylique sur un cadre en métal
- Installer un bain en acrylique sur des briques
- Comment installer une baignoire d'angle en acrylique
- Recommandations générales pour l'installation d'une baignoire
- Isolation bain moussant
- Caractéristiques du choix d'un bain
- Types d'écran
- Écrans coulissants
- écran articulé
- Écran blanc
Comment fixer au mur ?
Si votre cadre prévoit des butées supplémentaires pour le montage mural, vous devez suivre les instructions suivantes :
ÉTAPE 1. Sur le dessous des côtés du mur, nous mettons des marques avec un marqueur.

ÉTAPE 2. Nous enlevons la structure et, à l'aide d'un niveau de construction et d'un marqueur, traçons une ligne pour le côté de la baignoire.

ÉTAPE 3. Nous appliquons les supports latéraux, comme indiqué sur la figure, et marquons les endroits pour le perçage.

ÉTAPE 4. À l'aide d'un perforateur et d'une perceuse de 8 mm (dépend de la taille des chevilles, mais est généralement utilisé
percez des trous à la profondeur indiquée dans les instructions.

ÉTAPE 5. Fixez les butées latérales au mur avec des chevilles et des vis autotaraudeuses.

ÉTAPE 6. Pour un meilleur effet de fixation, nous enduisons les points d'appui des côtés de la baignoire avec du scellant.

ÉTAPE 7.Nous assemblons le bain avec le cadre sur les butées. Nous appuyons bien, le remplissons d'eau et enduisons le joint avec le mur avec du mastic ou le fermons avec un coin.

Vous pouvez maintenant vous occuper de l'installation des égouts et des écrans.
Installer une baignoire en acrylique sur un cadre
Pour chaque bain, le cadre est développé différemment, donc les nuances d'assemblage sont différentes pour chaque cas. Même pour une entreprise, pour différents modèles de la même forme, les cadres sont différents. Ils tiennent compte de la géométrie du bain, ainsi que de la répartition des charges. Néanmoins, l'ordre des travaux est général, de même que certains points techniques.
Un exemple de cadres pour baignoires en acrylique de différentes formes
Nous tordons le cadre
Un cadre est assemblé sur lequel repose le fond. Dans certains cas, il est soudé et ne nécessite pas d'assemblage. Le cadre est posé sur le fond de la baignoire inversée jusqu'à ce que rien ne soit fixé. Il est exposé exactement, car il doit être attaché.
-
Des rondelles avec des attaches sont installées sur les racks. Les crémaillères sont soit des pièces profilées (tuyaux à section carrée), soit des tiges métalliques filetées aux deux extrémités. Ils doivent être fixés sur les parois de la baignoire. Les entreprises développent généralement des attaches de leur propre forme. La photo montre l'une des options.
-
Les racks sont généralement installés aux coins de la baignoire. Dans ces endroits, il y a des plaques, il peut y avoir des trous, ou ils peuvent ne pas l'être - vous devez vous percer. Le nombre de racks dépend de la forme du bain, mais pas moins de 4-5, et de préférence 6-7 pièces. Dans un premier temps, les racks sont simplement assemblés et placés aux endroits qui leur sont attribués (jusqu'à ce que nous les fixions).
-
Le deuxième côté des racks est relié au cadre supportant le fond. Un écrou fileté est monté à l'extrémité du rack, nous y vissons la vis, reliant le cadre et le rack.
- Après avoir installé les racks, à l'aide de boulons, alignez la position du cadre.Il doit être situé strictement horizontalement et le fond doit reposer fermement dessus, sans espace.
Fixation de la baignoire au cadre
Une fois le cadre de niveau, il est vissé au fond renforcé de la baignoire en acrylique. Il est nécessaire d'utiliser des vis autotaraudeuses de la longueur recommandée, qui sont fournies avec le cadre.
Nous fixons le cadre au fond
- La prochaine étape de l'installation d'une baignoire en acrylique consiste à installer et à fixer les supports. Ils ont déjà été ajustés en hauteur, vous devez maintenant les régler verticalement (nous contrôlons le niveau du bâtiment des deux côtés ou vérifions la précision du fil à plomb). Les racks exposés sont "assis" sur des vis autotaraudeuses. La longueur des attaches est indiquée dans les instructions de chaque bain, mais elles sont généralement inférieures à celles qui fixent le fond.
- Ensuite, installez les pieds sur le cadre.
-
Du côté où il n'y a pas d'écran, un écrou est vissé sur la goupille de la jambe, après quoi ils sont insérés dans les trous du cadre (suspendus à cet écrou), fixés au cadre avec un autre écrou. Le résultat est une conception réglable en hauteur - en serrant les écrous, vous pouvez régler la baignoire dans la position souhaitée.
-
L'assemblage des pieds du côté de l'écran est différent. L'écrou est vissé, deux grosses rondelles sont installées, une butée pour l'écran (plaque en forme de L) est insérée entre elles, le deuxième écrou est vissé. Nous avons reçu un accent pour l'écran réglable en longueur et en hauteur. Ensuite, un autre écrou est vissé - l'écrou de support - et les pieds peuvent être placés sur le cadre.
-
Montage écran
Ce n'est plus vraiment pose de bain acrylique, mais cette étape est rarement supprimée : on installe l'écran. Si vous avez acheté cette option, le kit est livré avec des plaques qui le supporteront. Ils sont placés le long des bords et au milieu. Après avoir fixé l'écran et réglé les butées sur les pieds, fixez-les dans la position souhaitée.Ensuite, sur la baignoire et l'écran, les endroits où les plaques doivent être fixées sont marqués, puis des trous sont percés pour les attaches et l'écran est fixé.
Nous mettons les attaches pour l'écran sur le côté
-
Ensuite, vous devez installer des fixations pour le bain acrylique sur les murs. Ce sont des plaques courbes pour lesquelles les côtés s'accrochent. Nous déplaçons le bain installé et nivelé au mur, marquons où seront les côtés, plaçons les plaques de sorte que leur bord supérieur soit à 3-4 mm en dessous de la marque. Ils sont fixés aux chevilles en perçant des trous dans les murs pour eux.
- Lors de l'installation, la baignoire est posée sur les planches sur les plaques vissées. Une fois installé, nous vérifions s'il se tient exactement, si nécessaire, ajustez la hauteur avec les jambes. Ensuite, nous connectons le drain et la dernière étape - nous fixons l'écran aux plaques installées sur le côté. En bas, il repose simplement contre les plaques apparentes. Installation de la baignoire en acrylique terminée.
L'installation à faire soi-même d'une baignoire en acrylique est terminée
Ensuite, il faudra rendre étanche la jonction des côtés de la baignoire avec le mur, mais plus sur celle ci-dessous, puisque cette technologie sera la même pour n'importe quel mode d'installation.
Préparation des outils et du matériel
Le processus d'installation d'une baignoire en acrylique de vos propres mains nécessite la préparation d'un lieu où se trouvera le futur objet, les matériaux et outils nécessaires
Il est important de créer un environnement de travail à part entière afin que rien n'interfère dans la pièce, la procédure se déroulera alors à un rythme optimal et la qualité de la réparation sera à son meilleur.
Pour un travail à part entière sur l'installation d'un bain en acrylique, vous devez avoir avec vous:
- le produit lui-même à installer ;
- matériaux pour un type de fixation spécifique : pieds, cadre, briques ;
- un marteau;
- Bulgare;
- perforateur;
- mastic silicone;
- niveau;
- clé;
- ruban électrique ou ruban de montage;
- Tuyau ondulé;
- supports avec lesquels la baignoire sera fixée au sol ou au mur.

Pour que le processus de réparation se déroule correctement, il est important de tout faire dans un certain ordre :
- bloquer l'approvisionnement en eau;
- démantèlement de l'ancien bain;
- remplacement de l'ancien drain;
- nettoyage des égouts;
- installation d'une nouvelle ondulation dans la prise d'égout;
- lubrification de la jonction de l'ondulation avec l'égout;
- le processus de nivellement du sol pour les nouveaux équipements.
Une fois tous les travaux terminés, vous pouvez procéder à l'installation d'un nouveau produit acrylique.


construction en brique
Une baignoire en brique et carrelage peut remplacer avec succès une cuvette standard. La conception peut être réalisée de vos propres mains, en tenant compte des préférences personnelles, des tailles et des formes. Pour sa fabrication, on utilise de la brique de silicate qui recouvre une couche de béton et de carreaux de céramique résistant à l'humidité.
Une baignoire en brique présente plusieurs avantages par rapport aux modèles standards :
- le propriétaire peut donner vie aux idées les plus audacieuses pour créer une baignoire sur mesure, le design doit s'intégrer parfaitement dans le design de toute salle de bain,
- l'utilisation de matériaux naturels comme matières premières (brique, béton, carreaux de céramique),
- le coût minimum du produit,
- la faible conductivité thermique du matériau augmente le temps de refroidissement de l'eau chaude dans la fonte,
- la possibilité d'utiliser différents schémas, une conception intéressante du récipient de lavage, contrairement aux modèles standard.
pose de briques
Au stade initial des travaux, il est nécessaire de poser les murs de la baignoire en briques rouges ou en silicate.Pour une fixation fiable des éléments, une solution résistante à l'humidité avec l'ajout d'un antiseptique est utilisée. Les compositions empêchent l'apparition de champignons et de moisissures à la surface du produit pendant le fonctionnement. Pour la pose des murs, vous aurez besoin d'une truelle, d'un niveau de construction, d'un récipient, ainsi que d'une perceuse avec une buse pour mélanger le mortier.
Le travail se fait dans l'ordre suivant :
- Nettoyez la surface des débris, retirez le revêtement de sol de la salle de bain.
- Connectez le siphon avec des tuyaux, connectez-les au système d'égout.
- Étalez les murs de la police à la hauteur requise, lors des travaux d'installation, utilisez le niveau du bâtiment.
- Lorsque vous faites de la maçonnerie de vos propres mains, les joints entre les éléments individuels sont observés entre 1 et 1,5 millimètres. L'excédent de mélange de construction est éliminé avant qu'il ne durcisse.
Étanchéité
L'un des inconvénients d'une brique est la possibilité de sa destruction sous l'influence de l'humidité. Le matériau doit donc être protégé des effets nocifs de l'eau. À cet égard, la maçonnerie a besoin d'une étanchéité efficace. Premièrement, les parois du bain sont recouvertes d'une solution résistante à l'humidité, dans la partie inférieure de la structure, l'imperméabilisation est réalisée avec l'un des matériaux suivants:
- le matériau de toiture ou les membranes spéciales sont découpées en bandes de la longueur souhaitée (les panneaux se chevauchent avec un espace de 10 cm, les bords des produits sont également installés sur les côtés de la baignoire),
- le revêtement imperméabilisant à base de bitume est appliqué sur les parois de la structure à la spatule ou à la truelle en couche épaisse et uniforme, le principal inconvénient de la méthode est la longue période de séchage de la solution:
- l'imperméabilisation de la peinture n'a pas gagné en popularité parmi les utilisateurs après une courte période de fonctionnement, une émulsion de bitume polymère ou résistant à l'humidité est posée en 4 à 6 couches.
Orienté vers
Pour donner à la structure un aspect attrayant, la baignoire est finie avec un matériau résistant aux chocs, à l'humidité et durable.
Ces qualités correspondent aux produits suivants :
- un petit carreau de mosaïque en céramique est utilisé pour finir les surfaces de produits de formes géométriques complexes - les professionnels doivent faire la finition du bain, le travail prend beaucoup de temps,
- les carreaux de céramique de la couleur choisie permettent de simplifier le processus - les produits devront être coupés, il y a certaines difficultés lors de la finition des structures courbes,
- l'acrylique liquide sèche pendant 5 jours, vous permet d'ajouter de la brillance à la surface du bain.
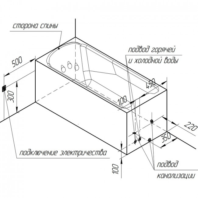
Instructions étape par étape pour l'installation d'une baignoire en acrylique sur un cadre en métal
Il n'y a rien de compliqué à installer une baignoire en acrylique sur un cadre de vos propres mains. Après avoir préalablement assemblé le cadre métallique, vous pouvez procéder à sa fixation à la baignoire.
Première étape - balisage :
- Retournez la baignoire et fixez-la bien pour qu'elle ne vacille pas. Ainsi, vous éviterez la formation de copeaux et de fissures sur la surface acrylique du bain.
- Fixez soigneusement le cadre assemblé au fond de la salle de bain et marquez avec un crayon l'emplacement des trous pour les vis de montage.
Essayez de dessiner aussi précisément que possible la ligne longitudinale de la salle de bain et les axes perpendiculaires à celle-ci pour une fixation ultérieure.
Deuxième étape - percer des trous et fixer le cadre à la salle de bain :
- Une fois tous les marquages effectués, des trous sont percés exactement selon les marques dans le fond de la salle de bain à une profondeur de 7-10 mm et un diamètre de 3 mm.
- Ensuite, nous fixons le cadre au bain lui-même.

Troisième étape - installation des pieds :
Lorsque les raccords du cadre sont fermement vissés à la salle de bain, vous pouvez procéder à l'installation des pieds. Pour ce faire, à l'aide de contre-écrous, nous les fixons à l'armature. Ensuite, nous les alignons en hauteur.
Quatrième étape - installation de la salle de bain :
Nous déplaçons la baignoire assemblée avec le cadre sur le site d'installation, la posons sur des pieds et la rapprochons du mur.
Ensuite, j'ajuste la hauteur des pieds pour niveler la baignoire afin qu'elle repose fermement sur le sol. Un alignement parfait peut être obtenu à l'aide d'un niveau liquide.
Avec un crayon, nous marquons les endroits où le bord du bord de la salle de bain et le mur entrent en contact. Nous déplaçons la baignoire de côté et installons les bandes de fixation avec un retrait sur la largeur du rebord de la baignoire.
Une fois les bandes de montage installées, nous mettons la baignoire en place et y connectons la plomberie et le système d'égouts.

Installer un bain en acrylique sur des briques
L'installation de plomberie en acrylique peut se faire sur des briques. Cette option est populaire depuis de nombreuses années et vous pouvez la mettre en œuvre vous-même. Cette technologie, selon les professionnels, vous permet de fixer en toute sécurité et rapidement le bain acrylique à la hauteur requise. Et en fait, les pieds qui l'accompagnent peuvent se déformer après quelques années de fonctionnement, et les supports en briques à haute résistance dureront beaucoup plus longtemps et aideront à maintenir l'intégrité de la baignoire.

Il n'y a rien de difficile dans la question de savoir comment installer correctement une baignoire en acrylique sur des briques, vous n'avez besoin que d'équipements de construction, de matériaux de construction et de mortier. L'étape principale du travail est la préparation, y compris les calculs et le balisage. Il est nécessaire de tout calculer au millimètre près avant même d'acheter une baignoire, en tenant compte de son emplacement et des lieux d'alimentation en eau et des égouts.
Après avoir choisi une baignoire et effectué les calculs nécessaires, apportez-la pour marquage dans la pièce où elle sera installée.
La stabilité maximale de la baignoire en acrylique est obtenue en posant la base du dos de 19 centimètres et le devant - 17. Ce rapport est une condition nécessaire pour assurer un débit d'eau normal. Cependant, certains modèles proposés par des boutiques spécialisées tiennent déjà compte de cet angle d'inclinaison.
Après la pose, vous pouvez passer en toute sécurité à l'étape des travaux d'installation. Pour augmenter la stabilité de la structure, vous devez utiliser un scellant. Pour plus de fiabilité et de résistance, la baignoire peut être fixée à un profilé métallique installé avec des chevilles et des vis autotaraudeuses, cependant, même sans cette étape, la structure sera très durable.
Comment installer une baignoire d'angle en acrylique
L'installation d'angle ne diffère de l'installation habituelle que par les dimensions de la salle de bain et du cadre. L'installation elle-même n'est pas très différente de l'installation d'une baignoire conventionnelle et ne prend pas plus de temps. La baignoire d'angle sera plus rigide, car elle est toujours équipée d'un paravent.
La seule difficulté sera l'alignement préalable du coin dans lequel il sera installé. Si l'angle est légèrement supérieur ou inférieur à 90 degrés, la baignoire ne s'adaptera pas parfaitement au mur, ce qui signifie que les bandes de montage deviendront bientôt inutilisables et que les parois de la baignoire en acrylique seront endommagées.
Ainsi, mettre en place une salle de bain en acrylique de vos propres mains n'est pas si difficile. Un poids léger et des instructions détaillées vous permettront de l'assembler sans maître en seulement une heure.
Recommandations générales pour l'installation d'une baignoire

Avant de commencer l'installation de la baignoire, assurez-vous de vérifier le degré d'angle dans lequel se tiendra la structure rectangulaire ou d'angle. S'il n'y a pas de 90º clair, la surface des murs est nivelée par enduit. Parfois, il est plus facile de retirer le vieux plâtre mal posé, puis de faire une correction à 90º.
Si cette condition n'est pas remplie, la conception rectangulaire droite de la baignoire deviendra dans ce coin avec des espaces, ce qui nécessitera un scellement supplémentaire des fissures. Cela n'est pas toujours efficace dans des conditions de forte humidité et n'apportera pas d'équilibre esthétique à la conception de la salle de bain.
L'installation de la baignoire se fait après la pose de la finition finale sur les murs carrelés. Après avoir installé la baignoire de vos propres mains, le joint entre le mur et le côté est scellé avec du silicone ou un ruban adhésif élastique spécial est collé, ce qui scellera l'écart de l'eau qui coule le long du mur arrière.
L'installation de l'écran est assurée à l'aide de clips spéciaux. Sur les côtés de la baignoire, il y a une couche renforcée pour fixer les clips supérieurs. Après leur installation, le niveau est réglé verticalement et les repères d'emplacement des clips inférieurs sont transférés au sol, après quoi ils commencent à s'adapter à l'écran.
Pour la fabrication de l'écran, seuls des matériaux résistants à l'humidité qui n'absorbent pas l'humidité sont utilisés. Il peut s'agir de plastique, de cloisons sèches résistantes à l'humidité, de panneaux OSB, de verre organique ou trempé. Les briques en céramique rouge sont également classées comme matériaux résistants à l'humidité. Le cadre en bois, s'il est nécessaire dans la structure, doit être imprégné trois fois de composants résistant à l'humidité ou d'huile siccative.
Isolation bain moussant

Le traitement du fond de la baignoire avec de la mousse de l'extérieur vous permet d'augmenter les propriétés d'isolation thermique du matériau acrylique et de réduire à zéro les effets sonores des jets battants.
Pour cela, vous aurez besoin d'un pistolet de montage et de trois ou quatre cylindres de mousse de montage. Vous pouvez utiliser une telle boîte de mousse, pour laquelle vous n'avez pas besoin de pistolet, la mousse est libérée en appuyant sur un bouton. Le bain est moussé dans une position inversée avec un cadre et des pieds métalliques fixes. Avant d'appliquer la mousse, la surface est humidifiée avec une brosse ou un chiffon.
La mousse est répartie uniformément sur le fond et les murs, étant donné qu'après le séchage de la mousse, son volume doublera
Montez soigneusement la mousse autour du trou de vidange et des boulons de réglage des pieds et du cadre. Après la procédure, la mousse sèche pendant 20 heures, puis le bain peut être installé
Caractéristiques du choix d'un bain
Lors de l'achat d'une baignoire, faites attention à la présence d'un certificat du fabricant et au matériau de la baignoire. Il est conseillé d'acheter des produits en acrylique coulé, et non dans une combinaison de plastique et d'acrylique, dont la qualité est inférieure. Ils achètent des baignoires de marques mondiales célèbres qui ont fait leurs preuves en termes de durabilité et de qualité des produits.
Ils achètent des baignoires de marques mondiales célèbres qui ont fait leurs preuves en termes de durabilité et de qualité des produits.
Les contrefaçons turques et chinoises, bien qu'elles soient moins chères, sont de mauvaise qualité et durent peu de temps. Avant de se rendre au magasin, ils mesurent l'espace libre pour l'installation, afin de ne pas se tromper avec les dimensions du produit.
L'installation de bain à faire soi-même est disponible pour un propriétaire qualifié et permettra d'économiser des fonds importants.
Types d'écran
Norme d'usine dimensionnelle - 70 x 50 cm.Les paramètres des panneaux non standard varient entre 75 - 120 cm de longueur et 40 - 60 cm de hauteur. L'équipement d'usine comprend un cadre, des pieds et des fixations. Les structures sont divisées en trois groupes.
Écrans coulissants
Ce sont deux ou trois sections qui s'écartent dans différentes directions des portes. L'avantage de la décoration est évident et ne nécessite pas de publicité supplémentaire. Le commerce de détail propose un mécanisme coulissant sur roulettes et des panneaux sur patins.
écran articulé
Les paravents à charnières ou pliants sont une option rare. Il est fait selon des projets individuels. Les portes battantes/battantes nécessitent beaucoup d'espace. Dans les conditions de petits appartements, il y a une pénurie de mètres carrés. Par conséquent, les portes qui s'ouvrent vers l'extérieur sont un luxe.

Écran blanc
Sourds - structures fixes monolithiques d'usine ou de production indépendante. Installé sous une plomberie lourde en fonte ou en acier.












































