- Nettoyage des conduits de ventilation
- Particularités
- Conseils de pro
- Normes d'État
- Ventilation forcée
- Volume d'échange d'air prioritaire
- Le rôle de la distribution d'air dans l'efficacité du système de ventilation
- Utilisation de clapets anti-retour
- Ventilation sous-sol
- Section et dimensions
- Quel est le meilleur, rond ou rectangulaire ?
- Connecteurs et raccords
- Où quelle section est utilisée
- Caractéristiques de la documentation du projet
- Installation des vannes d'alimentation étape par étape
- Le principe de fonctionnement des systèmes de ventilation
- Comment faire une ventilation naturelle dans le chalet
Nettoyage des conduits de ventilation
Au fil du temps, le système de ventilation doit être nettoyé de la saleté et de la poussière. Si les conduits de ventilation ne sont pas longs, ce travail peut être effectué indépendamment avec un aspirateur. Avec un canal long, mieux vaut recourir aux services d'organismes spécialisés.
Cela présente certains avantages :
- Le nettoyage sera effectué par des spécialistes compétents et formés.
- La qualité d'un tel nettoyage sera beaucoup plus élevée.
- Les entreprises qui se livrent à cette activité disposent d'équipements spéciaux.
- En plus du nettoyage, la désinfection et la désinfection de la ventilation peuvent être effectuées.
L'appareil de cette conception dans une maison privée n'est pas un luxe, mais une nécessité.La présence de cette conception doit être définie au stade de la conception de la maison. Lorsque vous utilisez un système naturel, vous pouvez le monter vous-même.
Si des options forcées ou combinées plus complexes sont prévues, en utilisant un équipement spécial pour le chauffage de l'air, vous devez contacter les spécialistes.
Ces systèmes complexes sont d'abord calculés dans des programmes spéciaux, après quoi un projet distinct est élaboré pour eux. Pour le dispositif de ces structures, des installateurs ayant des connaissances techniques particulières seront nécessaires.
Particularités
Les concepteurs de ventilation traitent apparemment "en apesanteur", mais avec une substance très capricieuse - l'air. Si pour le développement du projet de câblage électrique, plomberie et autres communications, une augmentation du volume du bâtiment ne fait qu'augmenter la complexité quantitative des travaux, alors avec la ventilation ce n'est pas le cas. Sur une superficie de 1000 m². des problèmes qualitativement nouveaux se posent. De plus, il est nécessaire d'analyser dès le début où il est possible d'utiliser le cours naturel de l'air et où il est nécessaire de l'aider. Dans certains cas, les ventilateurs sont indispensables.
Autre mise en garde : vous devez tenir compte de l'emplacement de la ventilation. Si le bâtiment a un étage, c'est une situation, mais dans les bâtiments à plusieurs niveaux, la situation est différente. La préparation de projets pour des bâtiments tels que:
- bâtiments résidentiels;
- les locaux industriels (avec une ventilation par branche d'activité) ;
- établissements médicaux;
- les organisations éducatives;
- hôtels et ainsi de suite.
Conseils de pro
Certains propriétaires de maisons privées font des erreurs lors de la conception des réseaux et achètent ensuite des équipements coûteux pour éliminer les points négatifs.
Il y a certaines des erreurs les plus courantes :
- L'installation d'un climatiseur résoudra le problème. Non. L'équipement ne crée pas de circulation de flux, il assure uniquement le refroidissement et l'assèchement de l'environnement de la pièce sans apport d'oxygène frais.
- Un ventilateur d'extraction suffira pour la ventilation. Non. Sans ventilation d'alimentation, quelques minutes après le fonctionnement du dispositif d'extraction, le niveau de pression chutera tellement qu'il n'alimentera plus en air les pales du ventilateur.
- Pour assurer la ventilation, une ventilation régulière ou le réglage de l'ouvrant de la fenêtre en mode micro-ventilation suffit. Non. Dans des conditions de forte humidité dans la pièce ou d'accumulation d'un grand nombre de personnes, ces mesures ne résolvent pas un problème permanent et ne peuvent faire gagner que peu de temps.
La disposition du système de ventilation est une mesure nécessaire pour maintenir un microclimat confortable dans une maison privée. Lors du choix de l'équipement, il est conseillé à l'utilisateur de prendre en compte la puissance des appareils, les indicateurs de l'intensité de l'échange d'air et le silence pendant le fonctionnement.
Normes d'État
Toutes les règles sont résumées dans les normes d'État - GOST, règles et normes sanitaires - SanPiN, ensembles de règles - SP.
Dans ces réglementations, des calculs du débit d'air dans différents types de locaux sont donnés, qui dépendent de divers facteurs. Ils réglementent les paramètres nécessaires de l'échange d'air et d'un microclimat sain, ainsi que d'établir des normes pour l'installation de l'équipement de ventilation et son fonctionnement. Par exemple, selon les GOST, en moyenne, un mètre carré d'un espace clos devrait représenter jusqu'à trois mètres cubes d'air frais. De plus, jusqu'à 30 mètres cubes par heure sont fournis pour un locataire adulte.Ils indiquent également que pour les cuisines gazéifiées, la norme est plus élevée que pour les cuisines équipées de cuisinières électriques - 90 mètres cubes par heure contre 60 mètres cubes. Dans le même temps, 25 mètres cubes suffisent pour les salles de bain. m/h, et salles de bains - jusqu'à 50.
En plus des normes nationales, il existe des documents réglementaires de la communauté étrangère d'ingénieurs Ashare. Si vous envisagez d'utiliser des systèmes de ventilation de fabrication américaine pour équiper votre propre chalet, vous devez vous familiariser avec eux. En particulier, Ashare 62.1 définit les coefficients et paramètres minimaux admissibles pour la ventilation, et Ashare 55 fournit les conditions nécessaires au microclimat et au confort thermique des bâtiments.


La première étape de la conception des communications de ventilation consiste à élaborer une mission technique, qui doit spécifier les exigences pour l'échange des flux d'air dans chaque pièce du bâtiment. L'élaboration d'un tel document nécessite certaines connaissances, donc s'il n'y a pas confiance dans l'auto-développement, il est préférable d'inviter des spécialistes.
Étapes de développement de base.
- Détermination des normes pour la quantité d'air fournie à chaque pièce. Ce paramètre est nécessaire pour calculer les dimensions et les sections des conduits d'air, ainsi que pour élaborer le schéma de leurs branches. À l'avenir, en utilisant les données calculées de la première étape, la solution optimale pour l'emplacement des conduits de ventilation est sélectionnée.
- Choix de la méthode de débit d'air. Après avoir analysé les conditions techniques des locaux, les exigences de sécurité et les souhaits du client, l'option la plus rationnelle est choisie. Elle peut être naturelle, forcée ou mixte.
- Calcul de la distribution du débit à l'intérieur du complexe de ventilation.A ce stade, la puissance requise du ventilateur, le volume d'air qui doit traverser une certaine section et les pertes de chaque unité sont calculés.
- Calcul des caractéristiques sonores et calcul de la pression acoustique exercée par les flux d'air lorsqu'ils se déplacent dans les conduits. Selon SNiP, le bruit ne doit pas dépasser 70 dB.
- La dernière étape est la préparation de dessins avec tous les détails et les spécificités de chaque nœud du système.

Sur la base de la tâche développée, le schéma du système de ventilation est sélectionné. Il est nécessaire de le coordonner et de l'approuver avant les travaux de finition internes du bâtiment, car sa mise en œuvre nécessitera des travaux d'installation supplémentaires pour le forage de divers trous et canaux. Rappelons que certains locaux techniques nécessitent l'installation d'un cycle de ventilation séparé. Par exemple, une chaufferie et une chaufferie - selon les exigences de sécurité incendie, un garage - selon les exigences techniques. Les méthodes de solution peuvent être différentes, mais elles doivent respecter les termes de référence, assurer la facilité d'installation et de fonctionnement ultérieur, c'est-à-dire respecter les critères suivants.
- Le nombre de nœuds dans le système devrait tendre vers un minimum, car moins il y a de pièces, moins elles se cassent.
- La maintenance du service doit être organisée de manière à être accessible aux utilisateurs ordinaires - les résidents.
- Si le réglage de l'échange d'air et le réglage du microclimat sont compréhensibles pour les non-spécialistes, cela augmente considérablement la cote de l'équipement aux yeux de l'acheteur, car cela réduit le coût de son entretien.
- Le système de ventilation doit comporter des unités redondantes qui remplaceront les principales en cas de panne et lors de la maintenance.
- L'ergonomie n'est pas le dernier facteur: le complexe doit être correctement entré à l'intérieur de la maison.


Ventilation forcée
Une ventilation forcée est installée lorsqu'il n'est pas possible de faire une ventilation naturelle. Cette option vous permet de réguler mécaniquement l'entrée et la sortie d'air. Les ventilateurs sont utilisés pour la ventilation forcée. Le plus souvent, les périphériques de canal sont montés. Ils sont choisis en fonction du diamètre de la section du conduit.
Ventilation forcée - une option plus sûre dans la chaufferie
Si la chaufferie est équipée d'une chaudière à gaz au sol, les appareils mécaniques sont sélectionnés avec une marge de 30% de leur charge maximale. Les performances de l'équipement dépendent de la longueur des conduits de ventilation et de leurs coudes, ainsi que du diamètre de la section de tuyau. Pour le faire plus précisément, vous devez au moins utiliser la formule de calcul de l'échange d'air :
L = V x K
L - la productivité maximale de l'équipement est exprimée en m3 / 1 heure
V est le volume de la pièce ventilée. Il peut être trouvé en multipliant la surface par la hauteur (V = S x h).
K est une valeur qui indique le taux de renouvellement d'air individuellement pour chaque pièce. Connaissant tous ces indicateurs, vous pouvez facilement choisir un ventilateur avec la puissance requise. Il existe également une option plus simple pour effectuer des calculs - une calculatrice sur notre site Web.
L'air soufflé peut être chauffé ou refroidi au choix. Il existe des options pour aménager des chaufferies avec un système de climatisation. Il est préférable de monter des ventilateurs dans des boîtiers métalliques dans des conduits d'air.
Le système de ventilation forcée peut être équipé d'une automatisation. Par exemple, lorsque la chaudière est allumée, les ventilateurs s'allument en même temps.
Il est important de rappeler que selon les normes du SNiP, un renouvellement complet de l'air dans la chaufferie doit être effectué 3 fois en 1 heure. Sur la base de ces exigences, vous devez veiller à la fabrication correcte d'un conduit de ventilation dans une maison privée pour une chaudière à gaz
Volume d'échange d'air prioritaire
Les documents réglementaires sont destinés à déterminer les paramètres de la circulation naturelle de l'air. Pour une habitation d'une superficie de 30 m2, l'échange d'air doit être de 4,5 m3 d'air pour 1 m2. Avec un volume de pièce plus important, chaque personne a besoin de 30 m3 d'air frais par heure.
Selon les lois de la gravité, l'air chaud, saturé de la vapeur de notre haleine et d'autres vapeurs domestiques, monte. Cette propriété est prise en compte lors de la conception du système. Les composants d'alimentation sont situés sous l'échappement
Dans la cuisine et la salle de bain, l'indicateur doit être compris entre 110 et 140 m3 / h. Pour la ventilation forcée, les indicateurs seront plus élevés.
Les tuyaux en plastique d'un diamètre de 160 mm sont excellents pour organiser la ventilation de votre maison. Ce paramètre fournit un débit d'air d'environ 30 mètres cubes par heure avec une hauteur de conduit de 3 mètres. Avec d'autres indicateurs, l'efficacité sera moindre.
Si vous avez besoin d'augmenter le débit, vous pouvez augmenter la section transversale du conduit et sa longueur. Pour assurer un tirage maximal dans chaque pièce, la même longueur de conduit doit être au même étage.
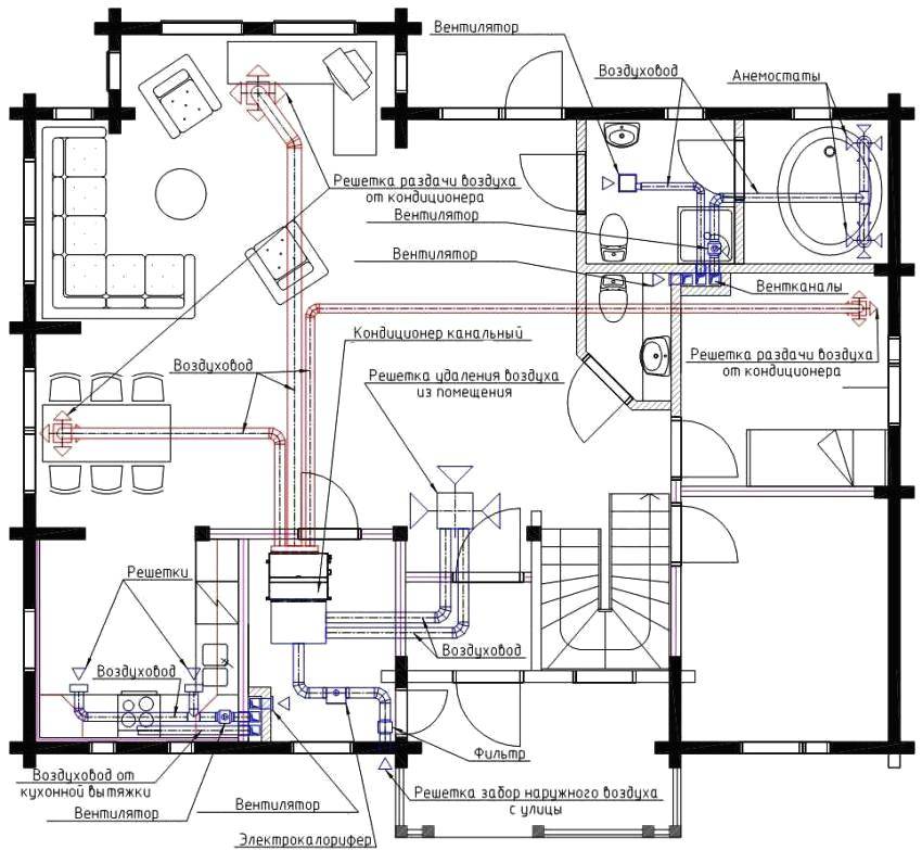
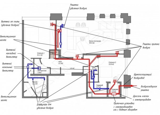
Le rôle de la distribution d'air dans l'efficacité du système de ventilation
Dans la conception de la ventilation d'alimentation et d'extraction, le processus de distribution appropriée des flux d'air joue un rôle important.Si ces données ne sont pas prises en compte dans les calculs, le système de ventilation, même avec des taux de renouvellement d'air élevés, peut s'avérer inefficace dans le processus d'élimination de l'air pollué d'un appartement ou d'un chalet. L'une des principales tâches de la conception de la ventilation est l'emplacement correct des dispositifs de distribution d'alimentation et d'évacuation pour obtenir un effet maximal.

- Grilles, réglables et non réglables, de différentes formes géométriques et avec une direction de l'air à la fois dans une direction et dans toutes les directions. Ces distributeurs d'air peuvent être utilisés pour les systèmes de ventilation d'alimentation, d'évacuation et de débordement et être situés au plafond, aux murs ou au sol.
- panneaux perforés. Ces appareils sont des panneaux perforés, situés à la fois sur une et sur plusieurs rangées. Ils éliminent les courants d'air du haut de la pièce.
- Diffuseurs ou abat-jour. De tels dispositifs sont utilisés pour la ventilation d'alimentation et d'extraction, ils peuvent être avec un régulateur de débit d'air.
- Buse et fente. Ils sont à la fois soufflants et refoulants et peuvent créer un grand jet d'air à grande vitesse, jusqu'à 30-40m/s.
C'est leur emplacement correct qui vous permet de répartir efficacement l'air d'alimentation et d'évacuation dans toute la pièce.
Un schéma de répartition correcte des masses d'air dans un bâtiment est commandé séparément du projet, aux entreprises spécialisées dans ce domaine, et vous pouvez effectuer des calculs indépendamment à l'aide d'ouvrages de référence ou de divers programmes informatiques. L'un de ces programmes s'appelle Swegon.
Utilisation de clapets anti-retour
La technologie d'installation des conduits de sortie décrite ci-dessus vous permet d'équiper un système de ventilation assez efficace dans la maison. Cependant, dans certaines conditions, dans de telles gaines d'immeubles résidentiels privés, malheureusement, en raison de leur faible hauteur, un refoulement peut se produire. Dans ce cas, les odeurs des buanderies commencent, bien sûr, à pénétrer dans les pièces.
Pour éviter que cela ne se produise, des dispositifs spéciaux appelés clapets anti-retour sont souvent installés sur les tuyaux d'échappement. La conception de tels éléments peut être différente. Dans certains cas, ils sont montés à l'entrée du conduit de ventilation et, dans certains cas, à la sortie.
On pense que lors de l'installation d'un système de ventilation naturelle de vos propres mains, il est préférable d'acheter simplement des grilles décoratives pour les sorties des bras d'échappement, déjà équipées de clapets anti-retour. Dans ce cas, l'installation de l'appareil s'effectuera approximativement comme suit :
- l'ouverture du canal d'échappement dans la pièce se dilate en fonction de la taille de la grille achetée avec une vanne;
- les bords de la grille sont enduits de colle silicone;
- la grille est insérée dans le trou de manière à ce que le corps de la vanne se trouve dans l'arbre et soit fermement pressé contre le mur.
Ventilation sous-sol
Pour éviter l'humidité, chaque sous-sol doit être ventilé. Habituellement, à cette fin, des évents ou des fenêtres sont disposés autour du périmètre du sous-sol, ouverts périodiquement pour la ventilation. Mais la meilleure solution est la ventilation par des canaux spéciaux disposés dans des unités de désenfumage et s'étendant au-delà du sol ou du toit du grenier. Le tuyau d'échappement commence sous le plafond du sous-sol et sort avec le reste des tuyaux au-dessus du toit de la maison.Pour améliorer la traction, il est conseillé de le poser à côté du canal de fumée du four ou de la chaudière de chauffage. Plus la section transversale du canal d'échappement est grande, mieux c'est; dans tous les cas, il ne doit pas être inférieur à 140 x 140 mm. En été, le tirage naturel peut ne pas suffire et un ventilateur devra être installé dans la cheminée.

L'afflux d'air est généralement fourni en raison des non-densités dans l'enveloppe du bâtiment. Vous pouvez également aménager des caniveaux spéciaux avec prise d'air soit depuis la rue, soit depuis des espaces clos (tambour, véranda). Il est préférable de démarrer le tuyau d'alimentation dans le grenier. Les canaux d'alimentation et d'évacuation sont situés sur les côtés opposés du sous-sol, le premier près du sol et le second près du plafond.
Section et dimensions
Le choix des dimensions de la section doit être basé sur la valeur normative de la vitesse d'écoulement. Ainsi, pour les bâtiments résidentiels, ce chiffre dans les branches est de 4 m/s, pour les bâtiments publics - 5 m/s, à des fins industrielles - 9 m/s. À d'autres vitesses, le bourdonnement du système dérangera les gens.
Les tailles standard selon VSN 353-86 et SNiP 41-01-2003 sont :
- pour conduits ronds : 100, 125, 160, 200, 250, 315, 355, 400, 450, 500, 560, 630, 710, 800, 900, 1000, 1120, 1250, 1400, 1600, 1800 et 2000 mm ;
- pour les conduits d'air rectangulaires et carrés, les longueurs de paroi en section transversale varient de 100 mm à 3200 mm.
Quel est le meilleur, rond ou rectangulaire ?
Le choix d'utiliser des conduits d'air ronds ou rectangulaires pour la construction d'un système de ventilation est basé sur des paramètres tels que la superficie du bâtiment, l'emplacement des canaux et leur configuration, ainsi que les exigences relatives au niveau de bruit dans la pièce.

Lors de la conception, les conditions de température et d'humidité et les décisions prises en matière de design d'intérieur sont également prises en compte. Dans les systèmes de ventilation rectangulaires, des fuites d'air sont possibles en raison de l'utilisation de deux brides lors de l'installation, les sections de conduits d'air ronds sont connectées à l'aide d'un raccord, elles sont donc plus étanches.
Cependant, ils sont plus difficiles à cacher derrière des éléments de décoration intérieure.
Connecteurs et raccords
Pour connecter des sections de conduits d'air, pour connecter des équipements de ventilation, différents types de pièces de quincaillerie et de raccords sont utilisés. La liste de ces éléments comprend:
- mamelon - une pièce conçue pour assurer l'étanchéité des connexions des conduits d'air. Habituellement, les mamelons ont des filetages gauche et droit en même temps, ce qui vous permet de fixer les deux extrémités des tuyaux en même temps.
- raccords - un élément de raccordement de conduits d'air à section circulaire;
- virages 30º, 45º, 60º, 90º - utilisés pour changer la direction du mouvement de l'air à un certain angle lors du contournement d'obstacles lors de l'installation du système;
- transition ronde - utilisée pour articuler des tuyaux de différents diamètres, reliant des éléments façonnés avec une section ronde;
- tee - détails pour connecter deux branches de pipelines avec une ligne principale;
- raccordements ronds ou rectangulaires - remplacez le té et permettent de connecter les éléments à la structure finie;
- bouchons - régulent le débit d'air, protègent le système de ventilation des corps étrangers et des débris;
- canards (sortie en forme de S) - contribue à modifier le niveau des conduits d'air;
- parapluie rond - protège la partie extérieure du conduit des précipitations;
- croix - pièces pour connecter à angle droit trois branches dans un conduit commun;
- transition d'une section rectangulaire à une section ronde - utilisée pour connecter des parties d'un système de ventilation de différentes tailles.
Où quelle section est utilisée
Les modèles à section rectangulaire ne sont pas l'option la plus idéale pour un conduit d'air, cela est dû à une aérodynamique insatisfaisante et à une installation plus complexe. Cependant, avec leur aide, vous pouvez économiser de l'espace, car les parois du tuyau sont aussi proches que possible des surfaces sans fixations supplémentaires. Cet avantage place les conduits rectangulaires en premier lieu pour organiser la ventilation dans les locaux résidentiels et les bureaux d'une petite surface.
Ils ont moins de résistance à l'air et ont un haut niveau de rigidité et d'étanchéité. De plus, les tuyaux d'échappement ronds nécessitent moins de matériaux, donc, avec le même débit, ils sont moins chers et il est beaucoup plus rentable de les utiliser dans de grandes installations.
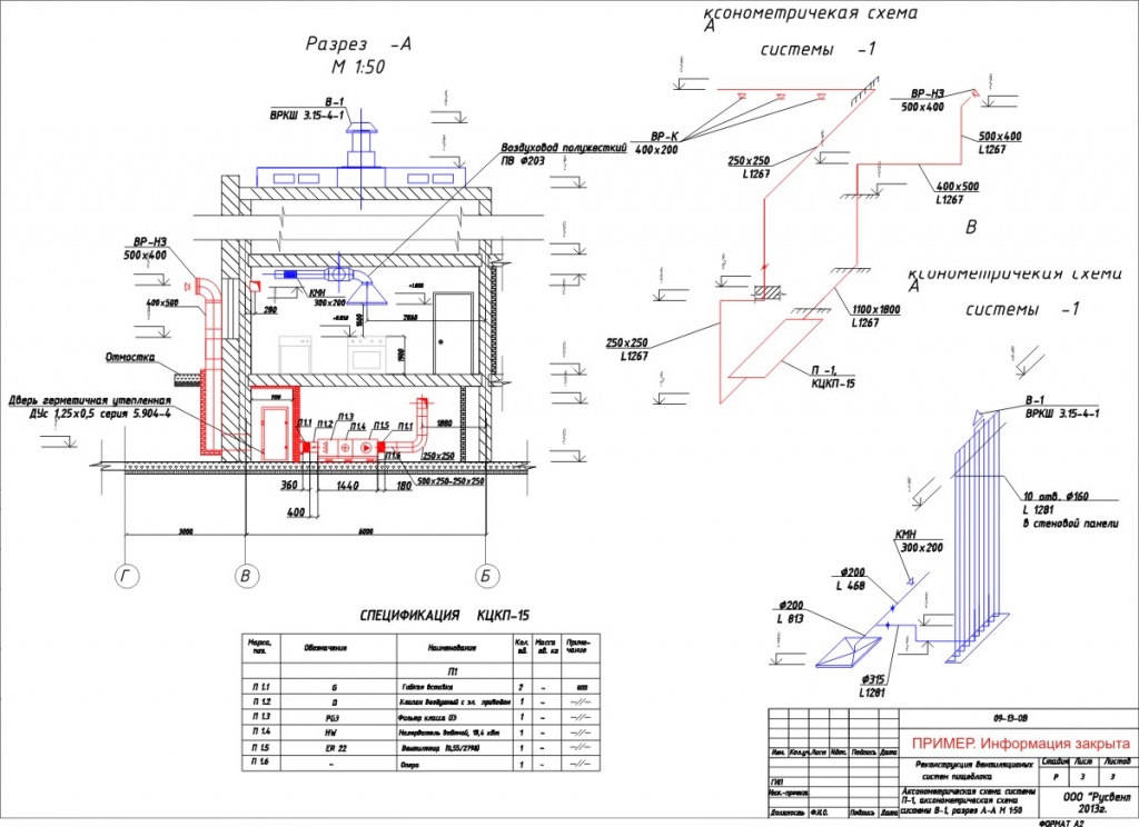
Caractéristiques de la documentation du projet
La documentation du projet peut être divisée en trois parties :
- note explicative;
- ensemble de dessins;
- Informations Complémentaires.
La note explicative contient une brève description de la ventilation, les spécifications techniques pour la disposition des conduits de ventilation, la consommation électrique et thermique, la valeur de l'échange d'air dans le contexte des locaux.
Dans les locaux d'habitation, en règle générale, un système d'alimentation et d'évacuation est installé. La branche dite avec unités de ventilation comprend des ventilateurs individuels, des unités de ventilation, une commande de chauffage automatique, des clapets anti-retour
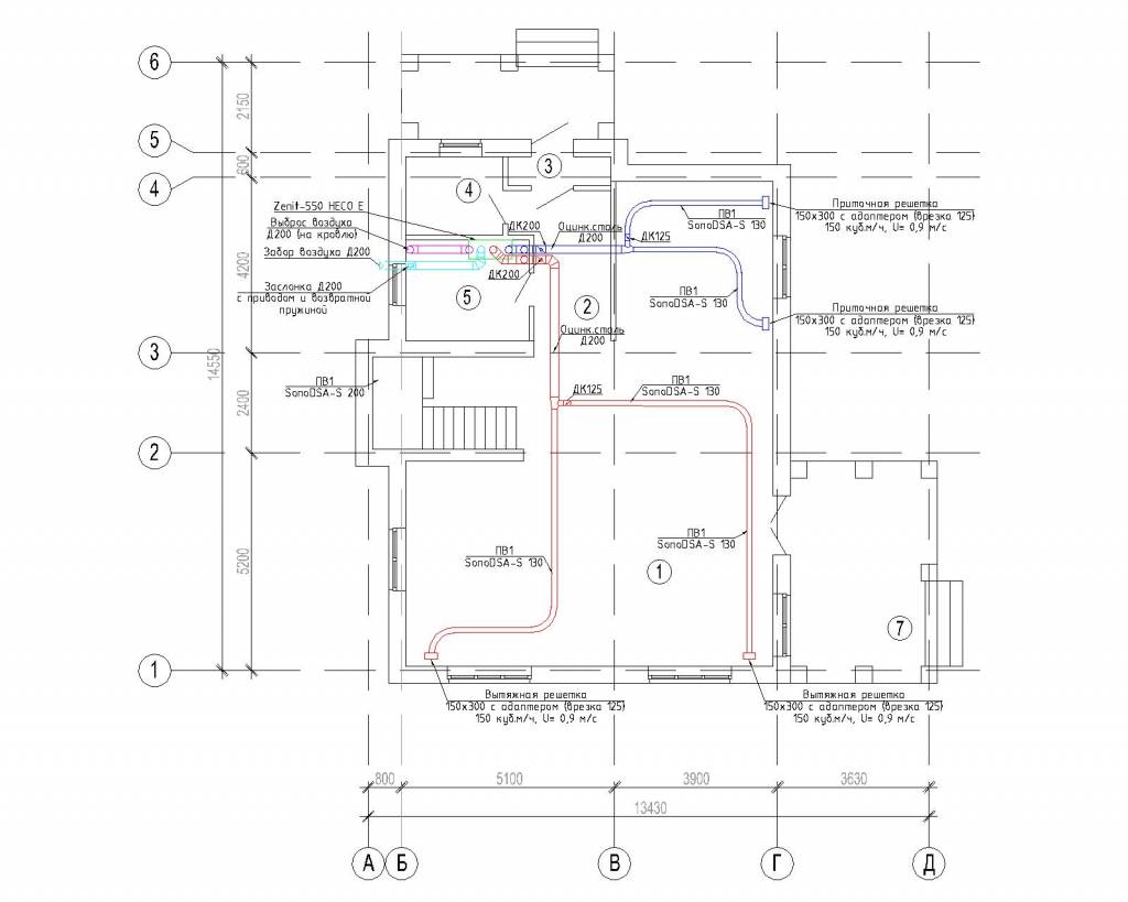
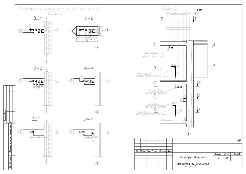
L'ensemble de dessins comprend un schéma de distribution des équipements de ventilation avec le détail des nœuds et un schéma structurel, des dessins de nœuds, des plans d'implantation des itinéraires, des conduits d'air. Cette partie du projet comprend également les règles de maintien des communications et des informations supplémentaires pour l'installation d'un système de ventilation.
Un ensemble complet de documentation de projet est impossible sans informations supplémentaires - certificats, licences, tableaux d'intégration, schémas axonométriques et spécifications de l'équipement.
Installation des vannes d'alimentation étape par étape
Structurellement, les vannes d'entrée de ventilation naturelle se composent des éléments suivants :
- conduit d'air court en plastique;
- corps cylindrique ;
- filtre;
- couvercle de protection.
Les trous pour les soupapes sont faits comme suit :
- sur le mur, des marquages sont faits sous l'ouverture pour l'appareil;
- de petits trous sont percés le long du contour de marquage avec un pas d'environ 10 mm;
- le matériau restant est éliminé avec un marteau et un ciseau.
La vanne elle-même est montée comme ceci :
- le conduit d'air est enveloppé d'un isolant thermique;
- enfoncez-le dans le trou de manière à ce qu'il dépasse légèrement du côté de la pièce;
- l'espace libre restant dans le trou est moussé;
- inséré dans le conduit d'air à l'aide de silicone à l'intérieur de la valve.
L'installation du dispositif d'alimentation en air est complétée par la fixation de la rondelle filtrante sur la paroi intérieure.
Le principe de fonctionnement des systèmes de ventilation
L'installation de conduits de ventilation dans une maison privée ou un chalet vous permet d'éliminer rapidement les odeurs désagréables des locaux. Si vous économisez sur la disposition des systèmes de ventilation, l'accumulation périodique d'air vicié peut nuire à la santé des résidents de la maison.Il est nécessaire de sélectionner, concevoir et assembler correctement un système de ventilation afin d'assurer un fonctionnement décent du logement privé. Les types de systèmes de ventilation existants sont basés sur les principes de circulation d'air suivants :
- Naturel;
- mécanique;
- mixte.
L'utilisation de la méthode de circulation naturelle n'est pas associée à l'installation de mécanismes permettant de pomper le flux d'air. Des vannes en bois plastique et métal sont utilisées, qui sont remplacées par des fenêtres avec micro-ventilation. Pour évacuer l'air évacué des locaux de la maison, des conduits de ventilation sont posés dans les murs. Le système forcé de conduits de ventilation est assuré par l'installation d'un ventilateur dans le puits. Le dispositif des systèmes de type mécanique implique l'installation d'un équipement d'alimentation, qui est responsable de la fourniture d'un flux d'air propre dans le volume requis à chaque pièce de la maison.
Le système doit fournir la sortie du flux d'air extrait vers l'extérieur. Cette méthode d'installation des conduits de ventilation est plus compliquée que l'installation d'un système de ventilation avec circulation d'air naturelle. La méthode d'installation de la ventilation mixte est associée à l'utilisation d'un système de ventilation mécanique et naturelle. Les masses d'air d'échappement sont évacuées des locaux de la maison lors de l'installation des équipements mécaniques.
Comment faire une ventilation naturelle dans le chalet
Si, selon tous les indicateurs, c'est la ventilation naturelle qui vous convient le mieux, et qu'elle n'était pas prévue à l'origine d'une manière ou d'une autre, alors nous le faisons nous-mêmes.
- Dans un premier temps, on fait un flux d'air. Pour ce faire, en reculant de 15 à 20 cm du cadre de la fenêtre, percez un trou pour installer les vannes d'alimentation. Il est recommandé de les fabriquer dans chaque pièce du gîte.Si vous n'avez pas envie de marteler un mur, contactez le fabricant de vos merveilleuses fenêtres en métal-plastique. Les soupapes d'admission peuvent être montées directement dans les fenêtres.
- Nous faisons du flux d'air. Pour cela, percez plusieurs petits trous dans le bas de chaque porte intérieure pour une libre circulation des masses d'air. Les ouvertures peuvent être fermées par un treillis métallique pour une meilleure isolation phonique.
- On fait une extraction. Dans la cuisine, les toilettes et la salle de bain, vous devez percer le plafond et le toit. Il est nécessaire d'insérer des conduits d'air dans les trous préparés, c'est-à-dire des segments d'un tuyau en plastique ou sandwich avec isolation dans le grenier, et avec des parapluies installés pour se protéger des précipitations.
- Fixez les conduits d'air au mur avec des pinces et scellez les espaces avec de la mousse de montage.






































